Скачать Типовой проект 902-1-150.1.88 Альбом 5.1. Подземная часть. Конструкции железобетонные. Конструкции металлические. ИзделияДата актуализации: 01.01.2021
|
| Обозначение: | Типовой проект 902-1-150.1.88 |
| Обозначение англ: | 902-1-150.1.88 |
| Статус: | не определен законодательством |
| Название рус.: | Альбом 5.1. Подземная часть. Конструкции железобетонные. Конструкции металлические. Изделия |
| Дата добавления в базу: | 01.09.2013 |
| Дата актуализации: | 01.01.2021 |
| Дата введения: | 15.09.1988 |
| Дата окончания срока действия: | 30.06.2003 |
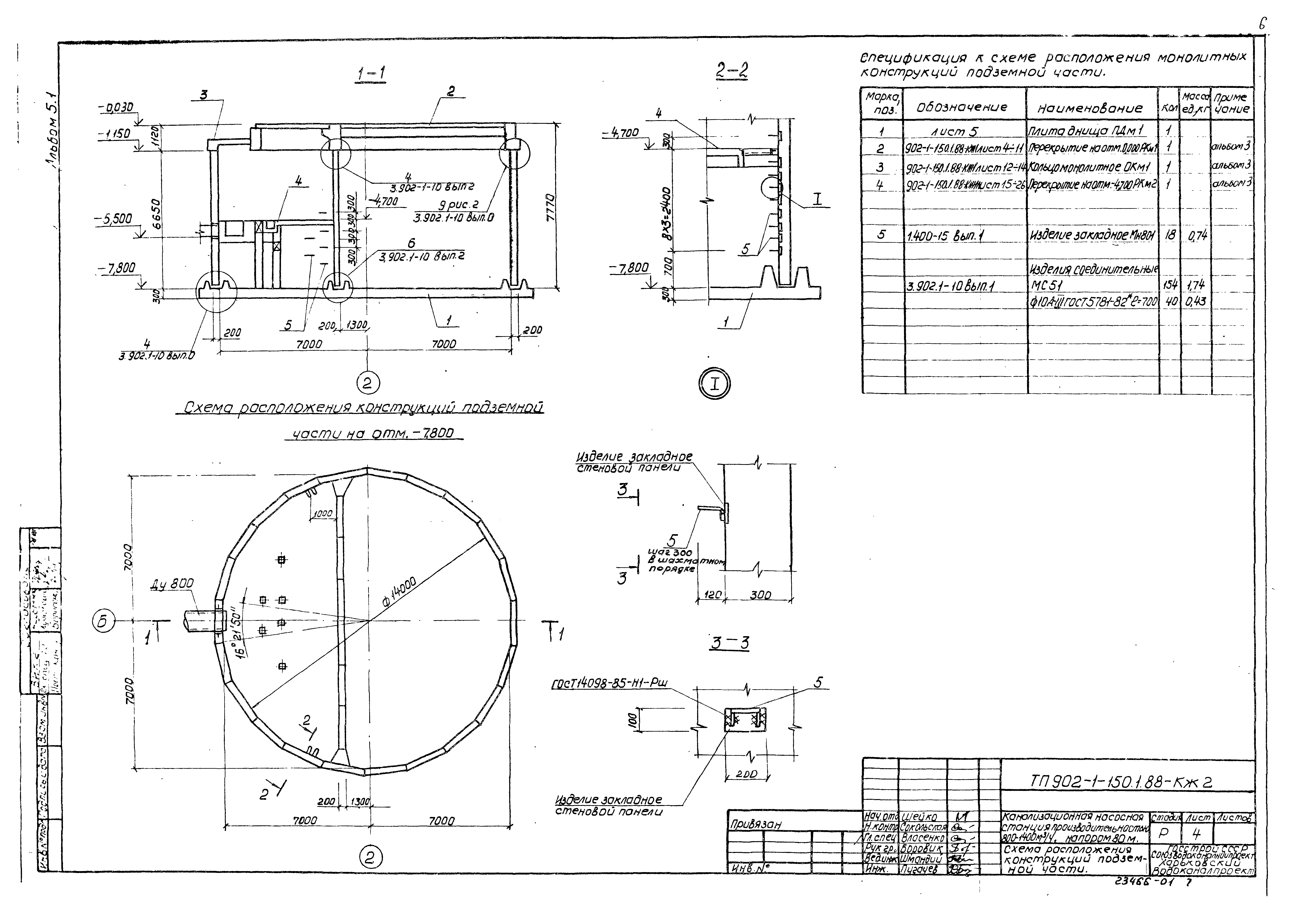
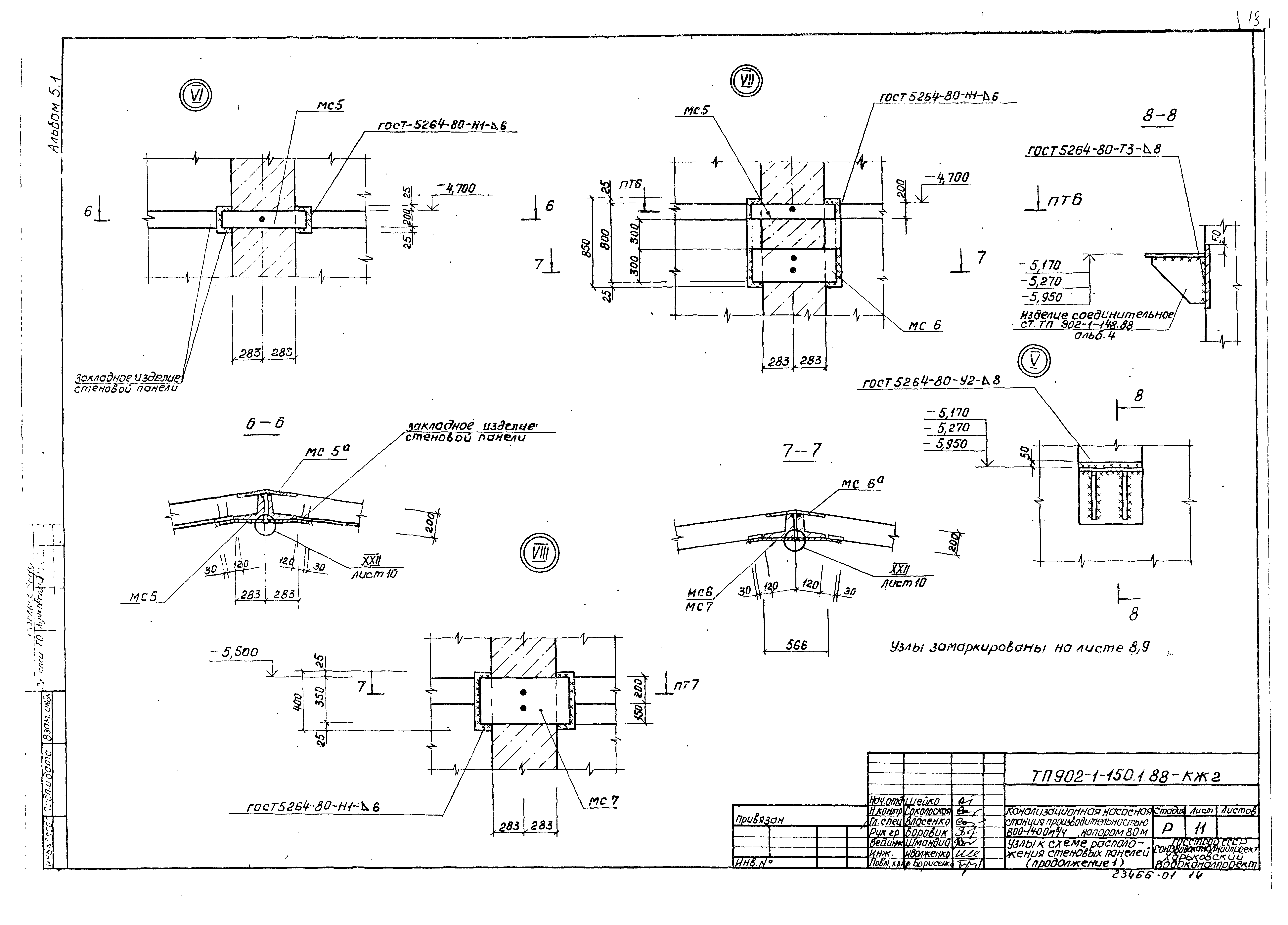
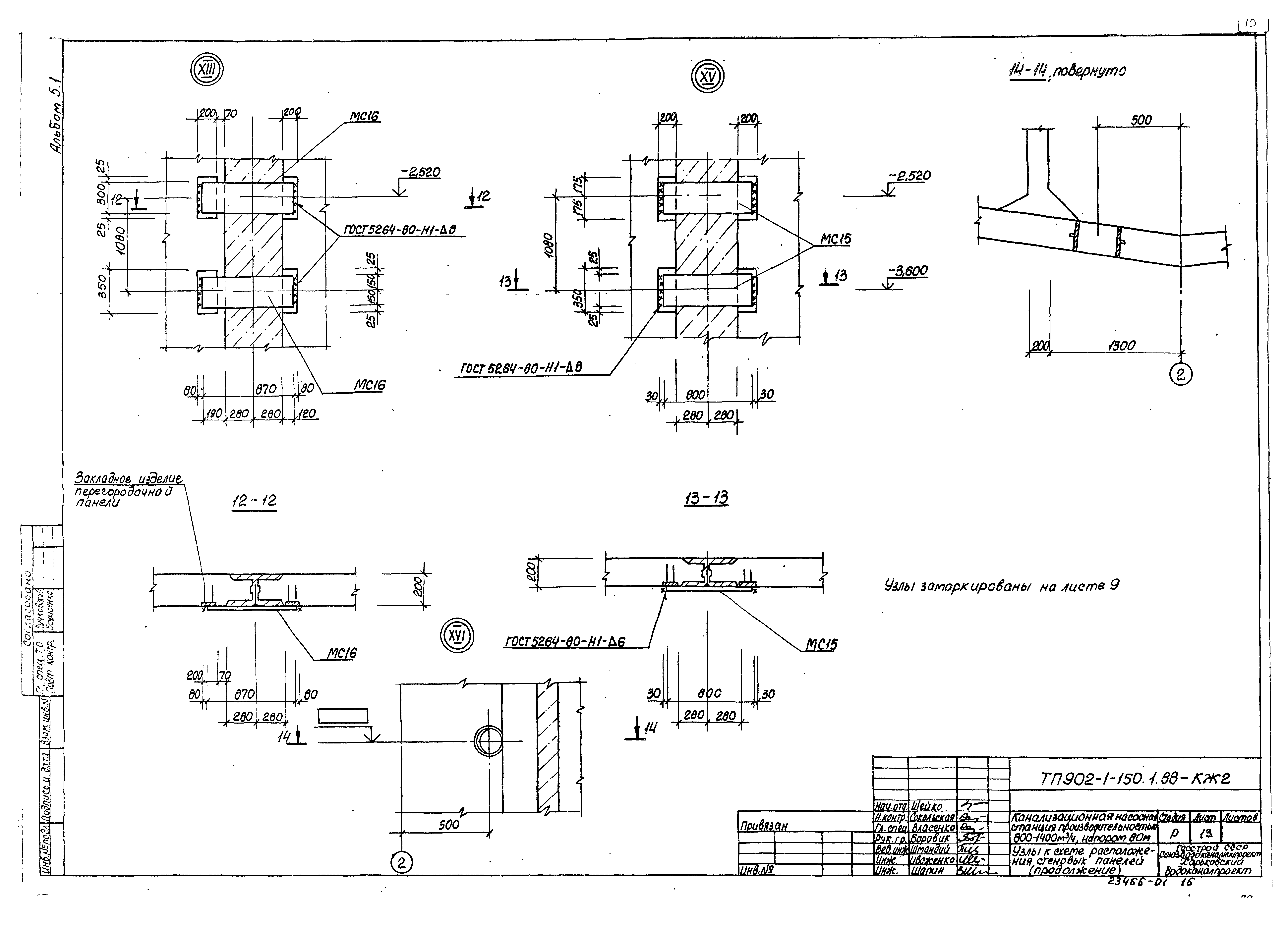
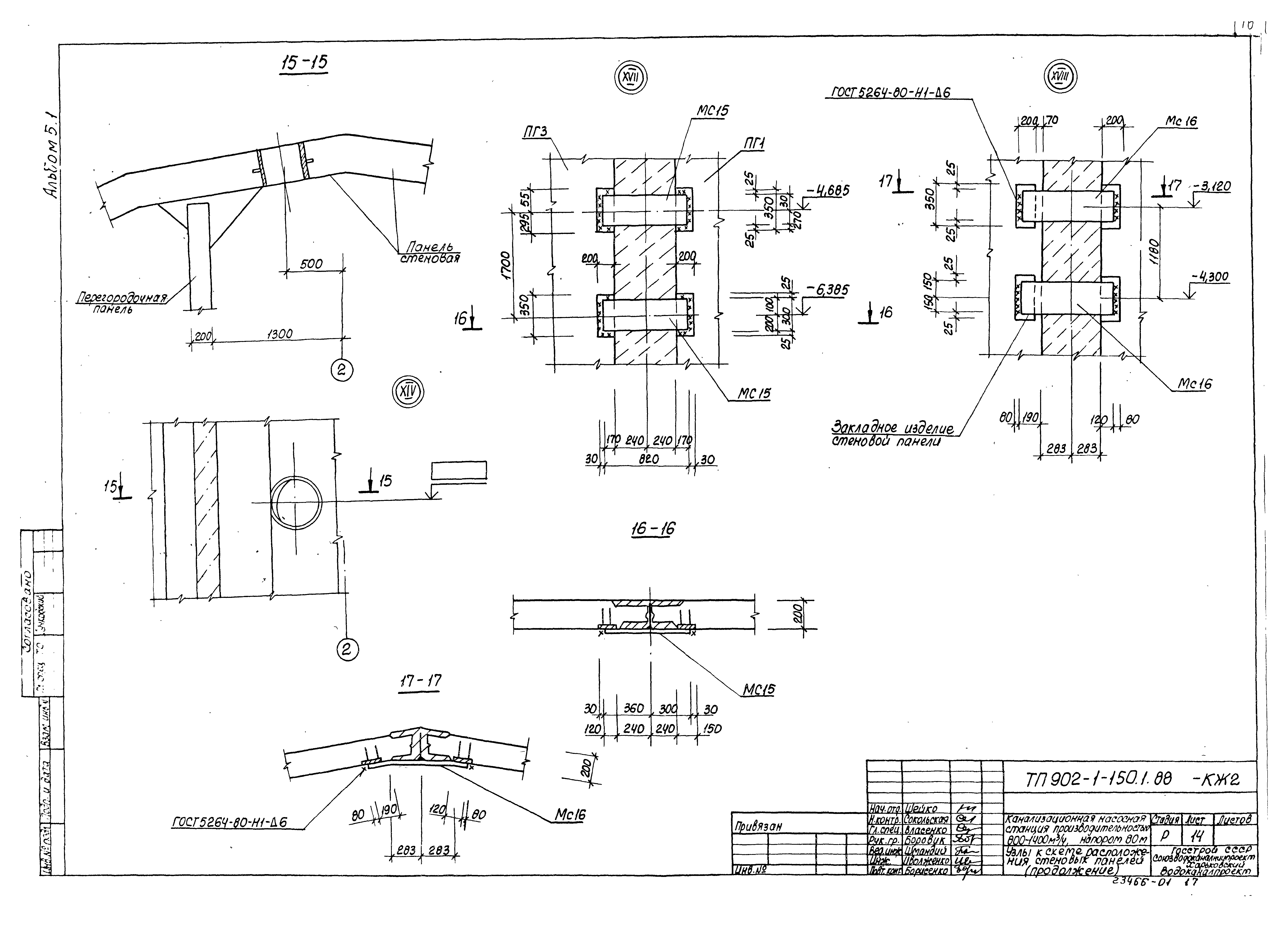
| Оглавление: | Содержание Основной комплект чертежей марки КЖ2 Общие данные Планы на отм. 7,390; 4,700. Разрез 1-1 Схема расположений конструкций подземной части Плита днища ПДМ1. Общий вид и схема армирования Схема расположения стеновых панелей Узлы к схеме расположения стеновых панелей Спецификация к схеме расположения стеновых панелей Основной комплект марки КМ2 Общие данные Схемы расположения щитов, лестниц и переходных площадок Схема расположения площадки ПМ1 Схема расположения металлической площадки для обслуживания крана Изделия КЖ2.И Содержание выпуска Технические требования Панель стеновая ПС1 - ПС-20 Ведомость расхода стали Панель перегородочная ПГ1 Панель перегородочная ПГ2 Панель перегородочная ПГ3 Ведомость расхода стали Каркас КР1, КР3, КР4 Изделие соединительное МС1, МС2, МС3 Изделие соединительное МС5, МС6, МС7, МС13, МС15, МС16, МС17 Изделие соединительное МС18, МС19, МС20 Изделие соединительное МС3А, МС4А, МС5А, МС6А, МС10, МС11 Площадка металлическая ПМ2 Щит металлический Щ1 |
| Разработан: | Харьковский Водоканалпроект |
| Утверждён: | 08.07.1986 Госстрой СССР (Государственный комитет Совета Министров СССР по делам строительства) (USSR Gosstroy 20) |









































