Скачать Серия 1.143-4 Выпуск 1. Панели толщиной 220 мм под расчетную нагрузку 300; 450; 600 кг/кв. м (без учета собственного веса). Рабочие чертежиДата актуализации: 01.01.2021
|
| Обозначение: | Серия 1.143-4 |
| Обозначение англ: | Series 1.143-4 |
| Статус: | не действует |
| Название рус.: | Выпуск 1. Панели толщиной 220 мм под расчетную нагрузку 300; 450; 600 кг/кв. м (без учета собственного веса). Рабочие чертежи |
| Дата добавления в базу: | 01.09.2013 |
| Дата актуализации: | 01.01.2021 |
| Дата введения: | 01.08.1978 |
| Дата окончания срока действия: | 01.06.1987 |
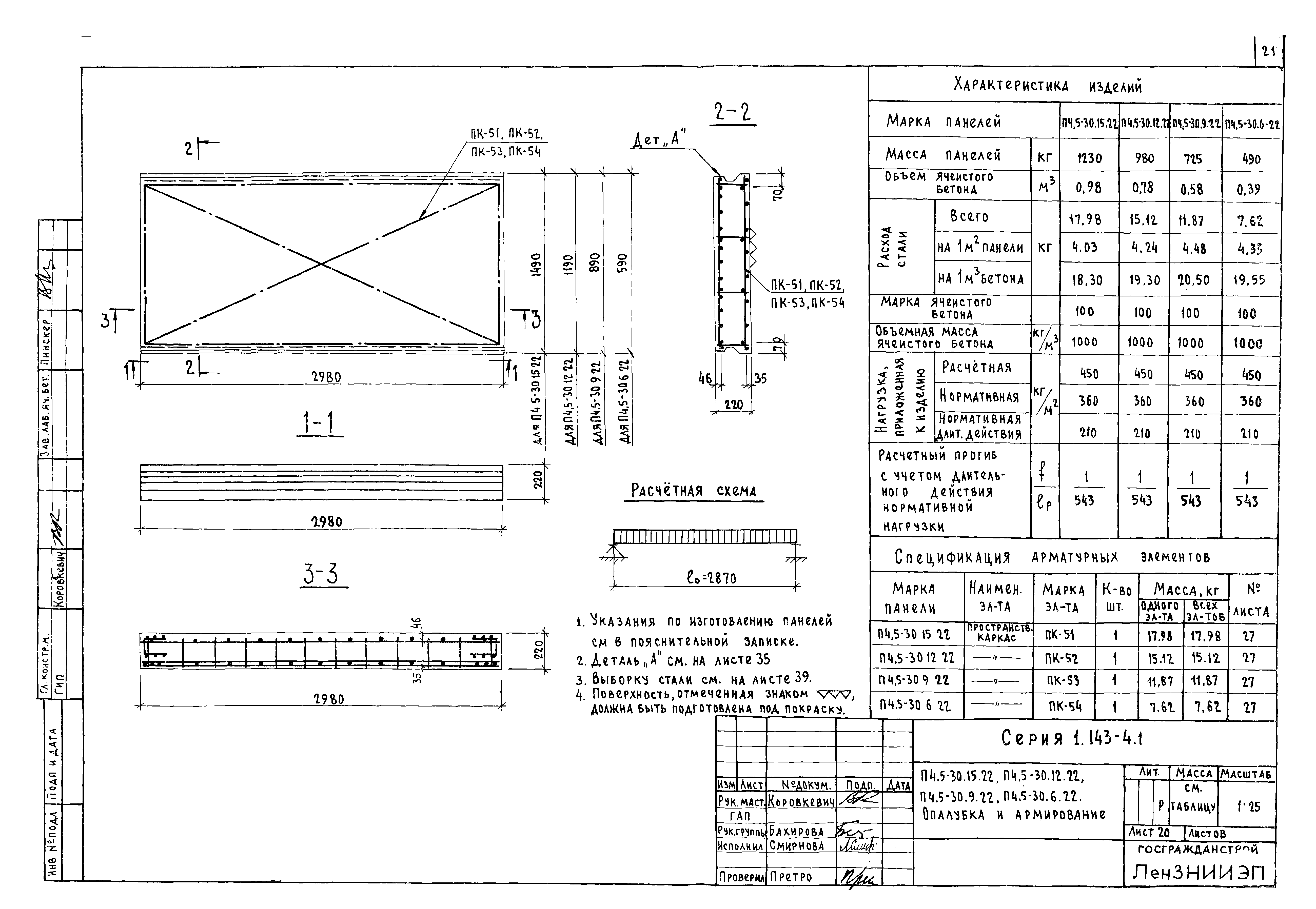
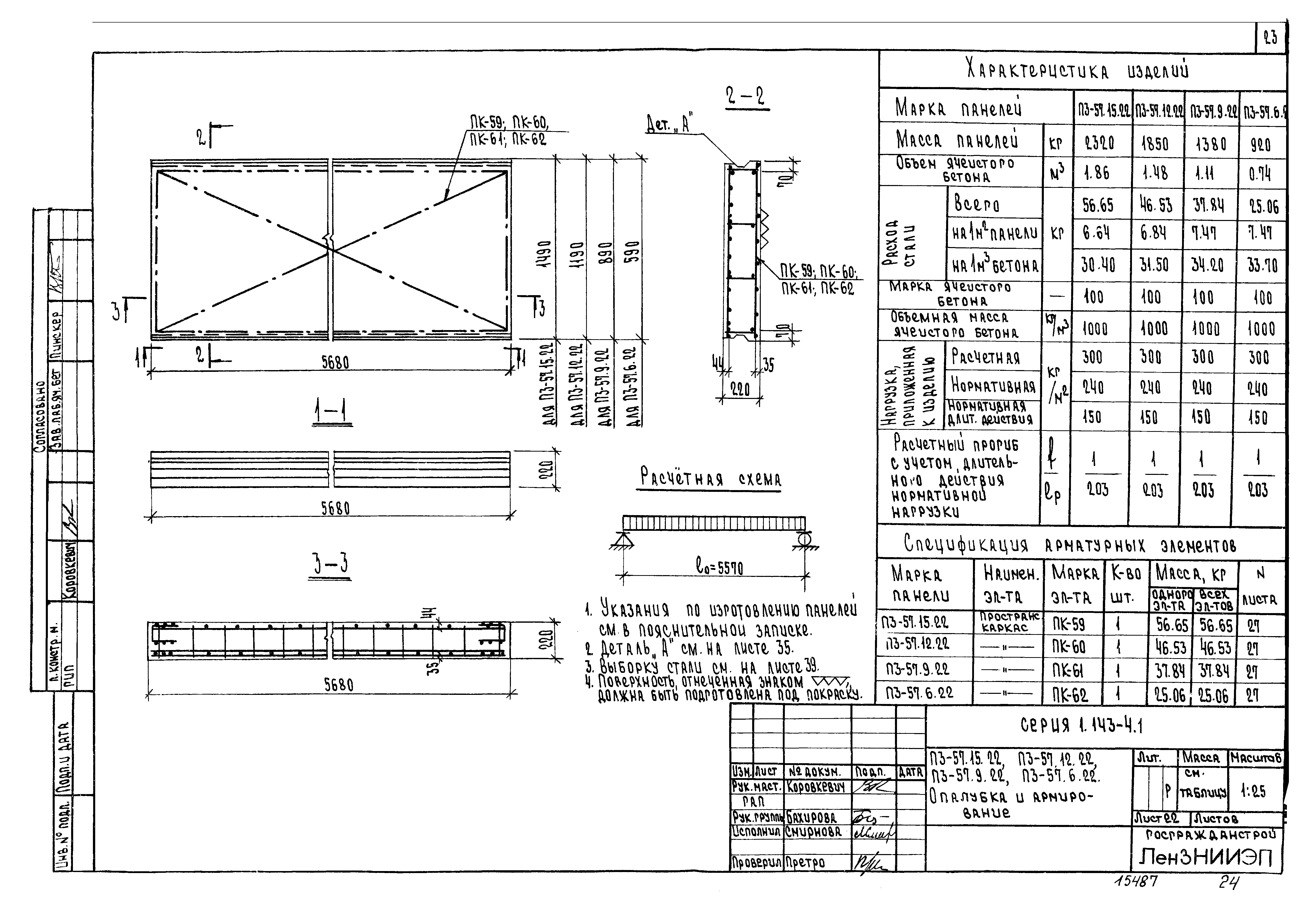
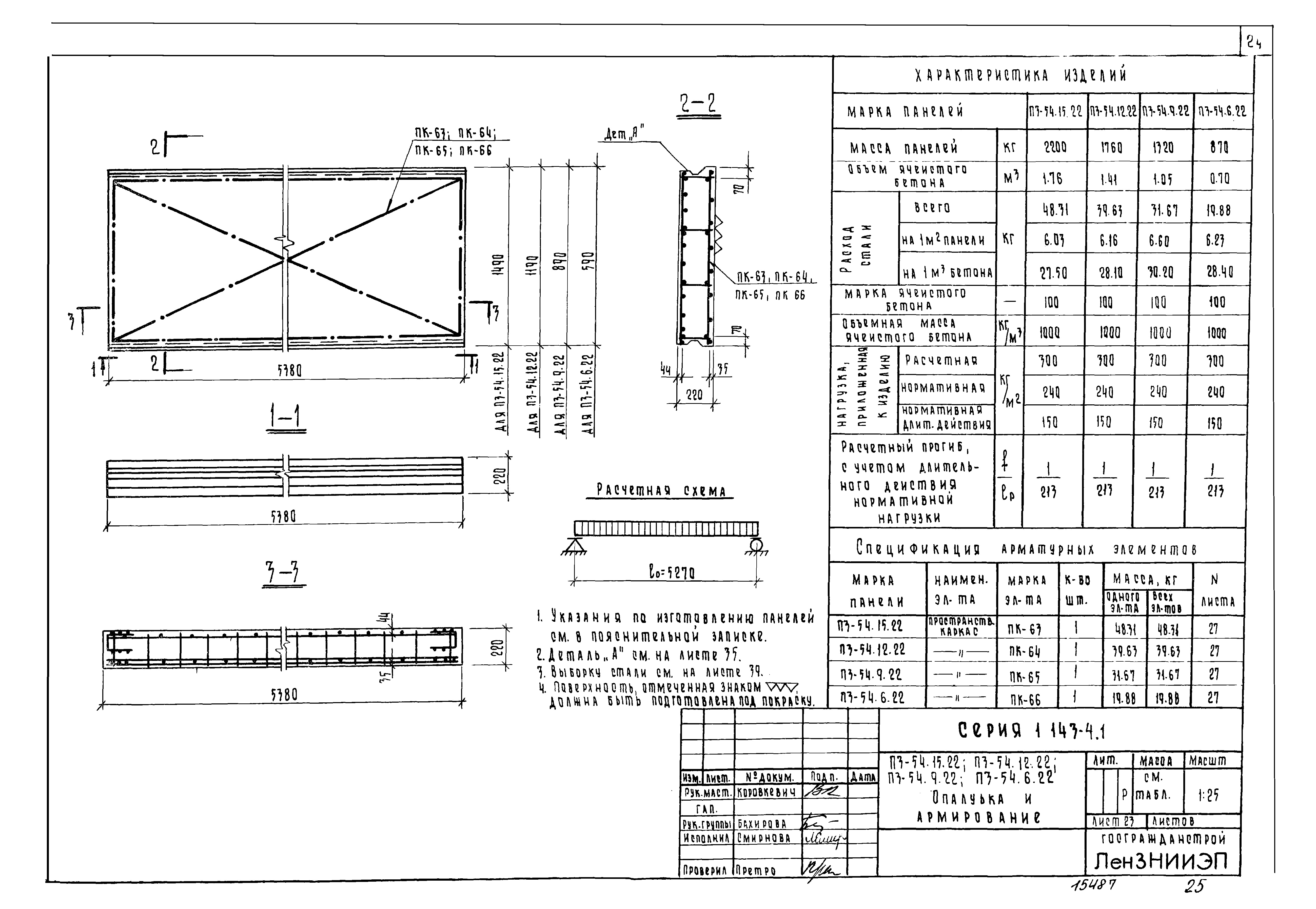
| Оглавление: | Содержание. Пояснительная записка Пояснительная записка Номенклатура изделий альбома П5-60.15.22; П5-60.12.22; П5-60.9.22, П5-60.6.22. Опалубка и армирование П6-54.15.22; П6-54.12.22; П6-54.9.22, П6-54.6.22. Опалубка и армирование П6-45.15.22; П6-45.12.22; П6-45.9.22, П6-45.6.22. Опалубка и армирование П6-36.15.22; П6-36.12.22; П6-36.9.22, П6-36.6.22. Опалубка и армирование П6-33.15.22; П6-33.12.22; П6-33.9.22, П6-33.6.22. Опалубка и армирование П6-30.15.22; П6-30.12.22; П6-30.9.22, П6-30.6.22. Опалубка и армирование П5-57.15.22; П5-57.12.22; П5-57.9.22, П5-57.6.22. Опалубка и армирование П4,5-60.15.22; П4,5-60.12.22; П4,5-60.9.22, П4,5-60.6.22. Опалубка и армирование П4,5-57.15.22; П4,5-57.12.22; П4,5-57.9.22, П4,5-57.6.22. Опалубка и армирование П4,5-54.15.22; П4,5-54.12.22; П4,5-54.9.22, П4,5-54.6.22. Опалубка и армирование П4,5-45.15.22; П4,5-45.12.22; П4,5-45.9.22, П4,5-45.6.22. Опалубка и армирование П4,5-36.15.22; П4,5-36.12.22; П4,5-36.9.22, П4,5-36.6.22. Опалубка и армирование П4,5-33.15.22; П4,5-33.12.22; П4,5-33.9.22, П4,5-33.6.22. Опалубка и армирование П4,5-30.15.22; П4,5-30.12.22; П4,5-30.9.22, П4,5-30.6.22. Опалубка и армирование П3-60.15.22; П3-60.12.22; П3-60.9.22, П3-60.6.22. Опалубка и армирование П3-57.15.22; П3-57.12.22; П3-57.9.22, П3-57.6.22. Опалубка и армирование П3-54.15.22; П3-54.12.22; П3-54.9.22, П3-54.6.22. Опалубка и армирование Пространственные каркасы ПК1 - ПК-66 Сетки С-1 - С-16 Сетки С-17 - С-32 Сетки С33 - С-48 Сетки С-49 - С-60 Сетки С-61 - С-71 Сетки С-72 - С-82 Сетки С-83 - С-94 Сетки С-95 - С-98; отд. поз. 43 Каркасы К1 - К7 Выборка стали Схема испытаний и контрольные нагрузки панелей |
| Разработан: | ЛенЗНИИЭП Госгражданстроя |
| Утверждён: | 30.06.1978 Госгражданстрой (Gosgrazhdanstroy 138) |













































