Скачать Серия 1.232-3 Выпуск 8. Панели толщиной 160 мм с обрамлением наружных обшивок алюминиевым профилем с двойным и тройным остеклением оконных блоковДата актуализации: 01.01.2021
|
| Обозначение: | Серия 1.232-3 |
| Обозначение англ: | Series 1.232-3 |
| Статус: | не действует |
| Название рус.: | Выпуск 8. Панели толщиной 160 мм с обрамлением наружных обшивок алюминиевым профилем с двойным и тройным остеклением оконных блоков |
| Дата добавления в базу: | 01.09.2013 |
| Дата актуализации: | 01.01.2021 |
| Дата введения: | 01.06.1976 |
| Дата окончания срока действия: | 01.05.1999 |
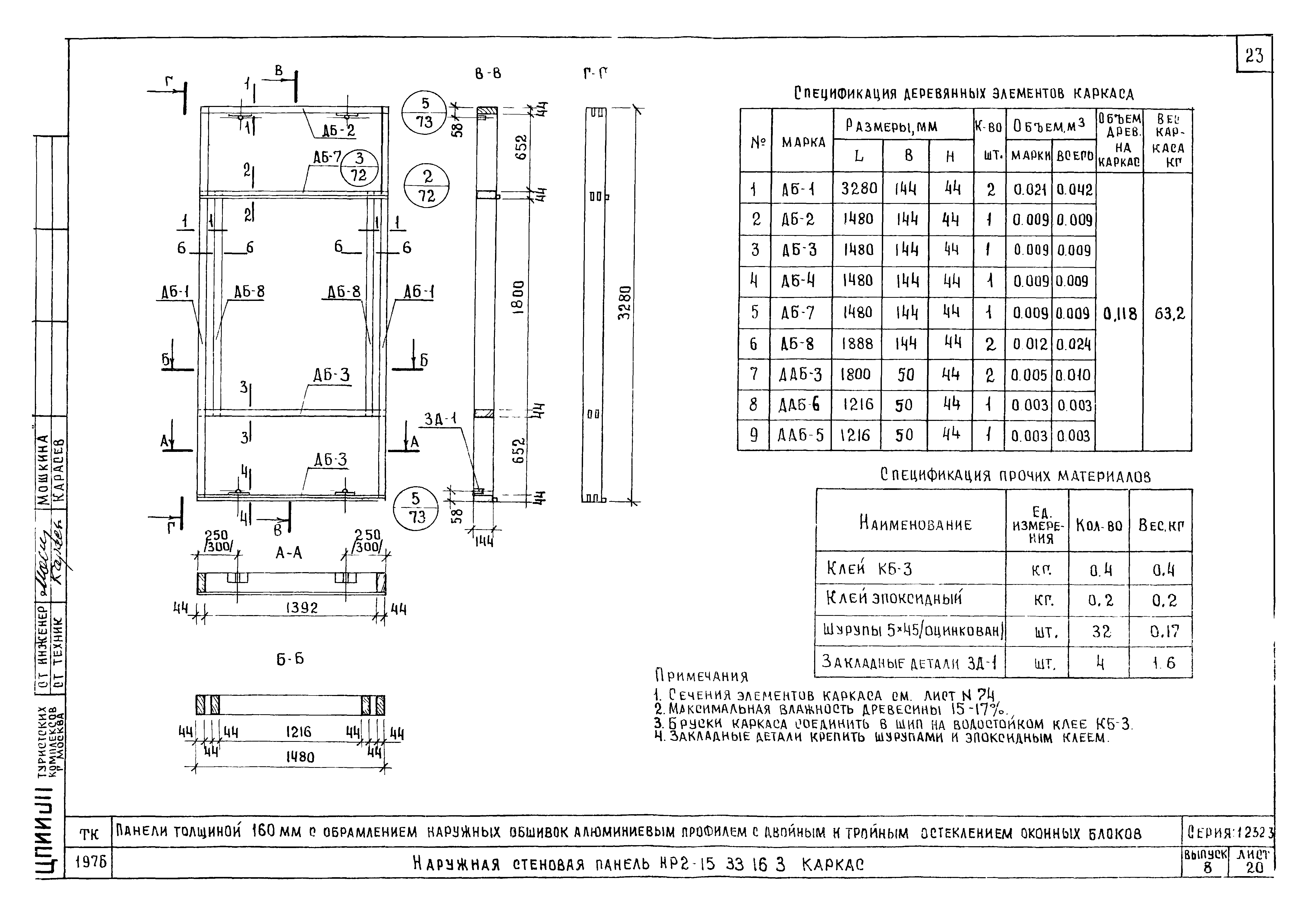
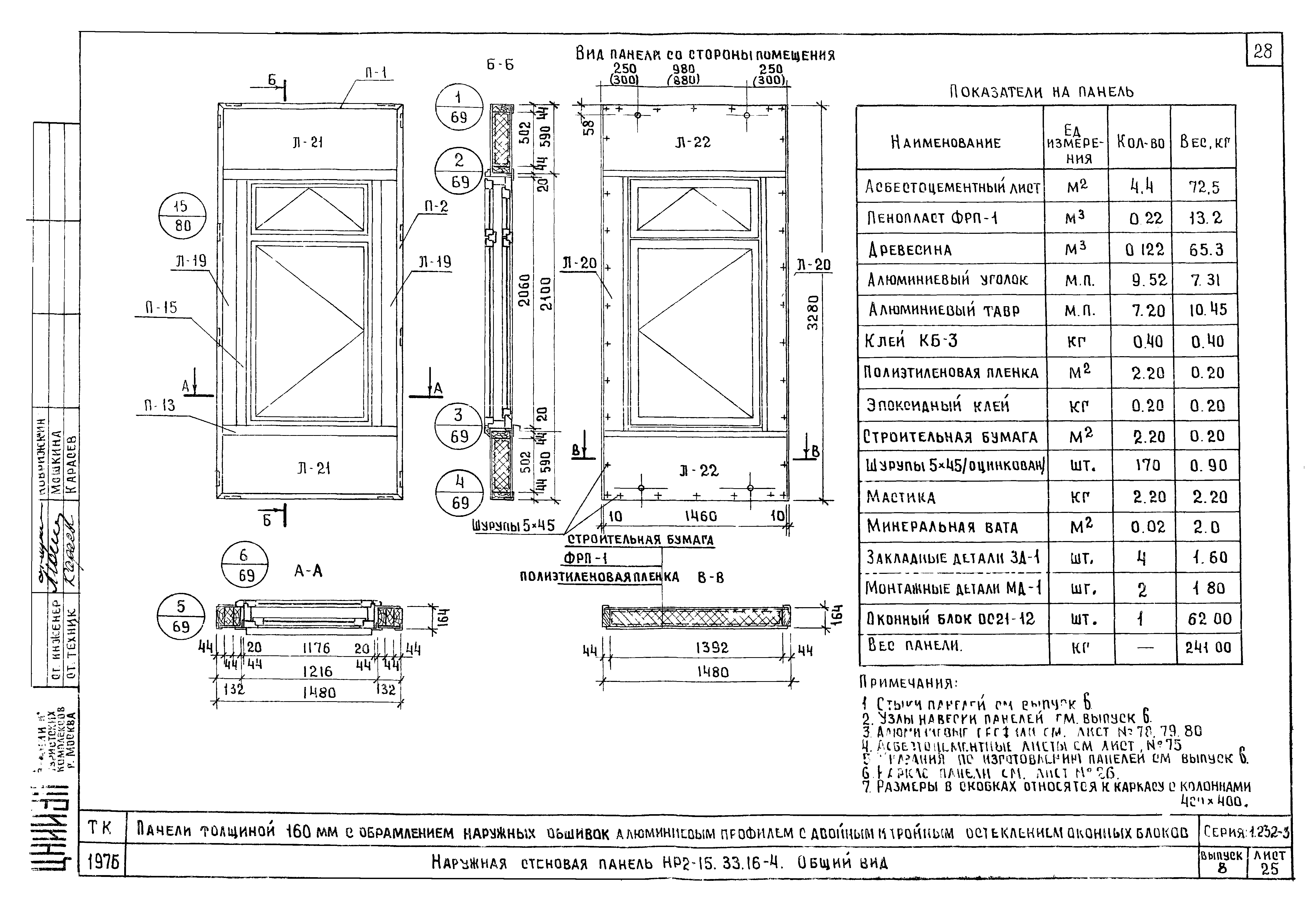
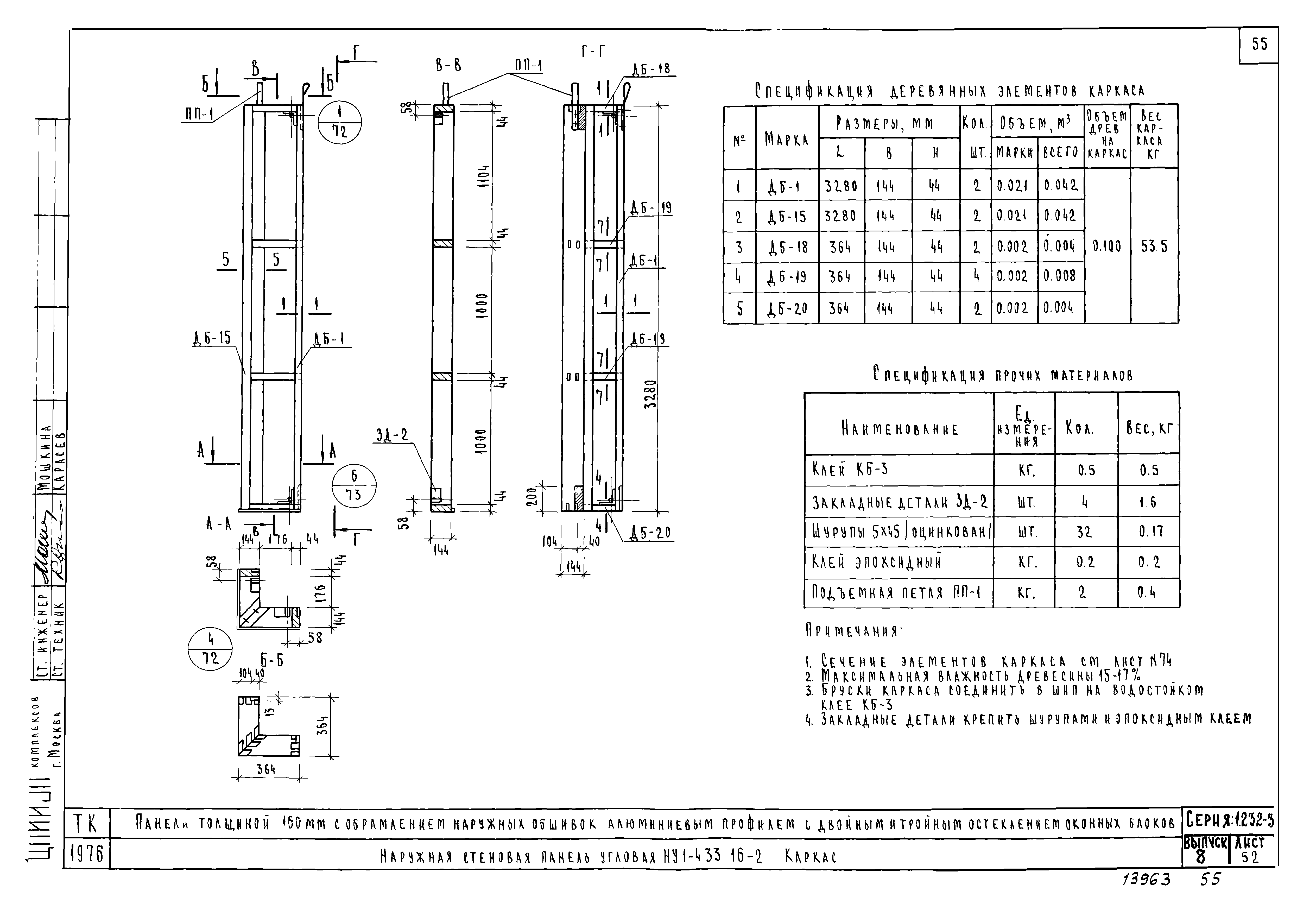
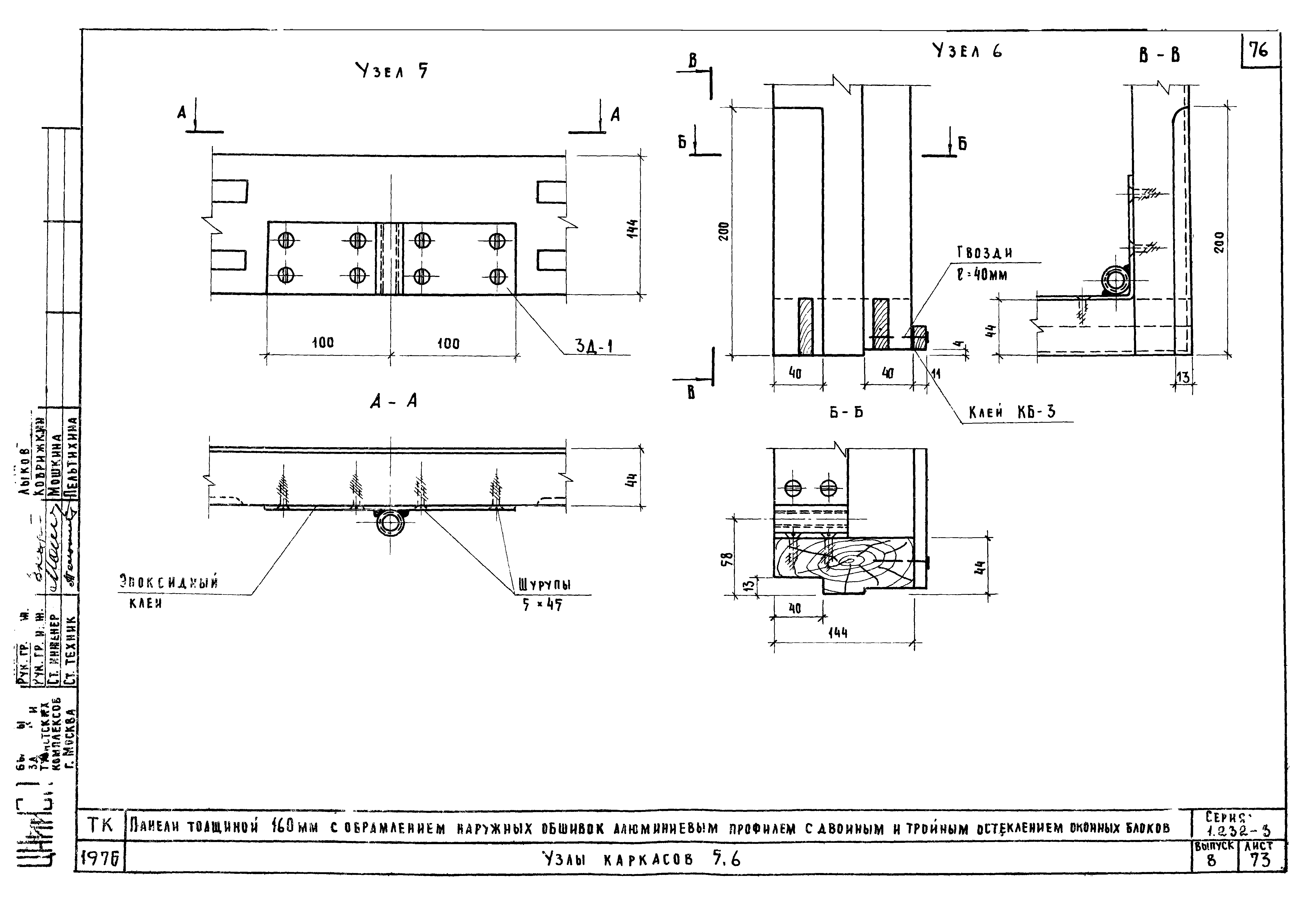
| Оглавление: | Содержание альбома Наружная стеновая панель НР1-15.33.16-1. Общий вид Наружная стеновая панель НР1-15.33.16-1. Каркас Наружная стеновая панель НР1-15.39.16-1. Общий вид Наружная стеновая панель НР1-15.39.16-1. Каркас Наружная стеновая панель НР1-15.42.16-1. Общий вид Наружная стеновая панель НР1-15.42.16-1. Каркас Наружная стеновая панель НР2-15.33.16-1. Общий вид Наружная стеновая панель НР2-15.33.16-1. Каркас Наружная стеновая панель НР2-15.39.16-1. Общий вид Наружная стеновая панель НР2-15.39.16-1. Каркас Наружная стеновая панель НР2-15.42.16-1. Общий вид Наружная стеновая панель НР2-15.42.16-1. Каркас Наружная стеновая панель НР2-15.33.16-2. Общий вид Наружная стеновая панель НР2-15.33.16-2. Каркас Наружная стеновая панель НР2-15.39.16-2. Общий вид Наружная стеновая панель НР2-15.39.16-2. Каркас Наружная стеновая панель НР2-15.42.16-2. Общий вид Наружная стеновая панель НР2-15.42.16-2. Каркас Наружная стеновая панель НР2-15.33.16-3. Общий вид Наружная стеновая панель НР2-15.33.16-3. Каркас Наружная стеновая панель НР2-15.39.16-3. Общий вид Наружная стеновая панель НР2-15.39.16-3. Каркас Наружная стеновая панель НР2-15.42.16-3. Общий вид Наружная стеновая панель НР2-15.42.16-3. Каркас Наружная стеновая панель НР2-15.33.16-4. Общий вид Наружная стеновая панель НР2-15.33.16-4. Каркас Наружная стеновая панель НР2-15.39.16-4. Общий вид Наружная стеновая панель НР2-15.39.16-4. Каркас Наружная стеновая панель НР2-15.42.16-4. Общий вид Наружная стеновая панель НР2-15.42.16-4. Каркас Наружная стеновая панель НР2-15.42.16-5. Общий вид Наружная стеновая панель НР2-15.42.16-5. Каркас Наружная стеновая панель НР3-15.33.16-1. Общий вид Наружная стеновая панель НР3-15.33.16-1. Каркас Наружная стеновая панель НР3-15.39.16-1. Общий вид Наружная стеновая панель НР3-15.39.16-1. Каркас Наружная стеновая панель НР3-15.42.16-1. Общий вид Наружная стеновая панель НР3-15.42.16-1. Каркас Наружная стеновая панель НР3-15.33.16-2. Общий вид Наружная стеновая панель НР3-15.33.16-2. Каркас Наружная стеновая панель НР3-15.39.16-2. Общий вид Наружная стеновая панель НР3-15.39.16-2. Каркас Наружная стеновая панель НР3-15.42.16-2. Общий вид Наружная стеновая панель НР3-15.42.16-2. Каркас Наружная стеновая панель угловая НУ1-3.33.16-1. Общий вид Наружная стеновая панель угловая НУ1-3.33.16-1. Каркас Наружная стеновая панель угловая НУ1-3.39.16-1. Общий вид Наружная стеновая панель угловая НУ1-3.39.16-1. Каркас Наружная стеновая панель угловая НУ1-3.42.16-1. Общий вид Наружная стеновая панель угловая НУ1-3.42.16-1. Каркас Наружная стеновая панель угловая НУ1-4.33.16-2. Общий вид Наружная стеновая панель угловая НУ1-4.33.16-2. Каркас Наружная стеновая панель угловая НУ1-4.39.16-2. Общий вид Наружная стеновая панель угловая НУ1-4.39.16-2. Каркас Наружная стеновая панель угловая НУ1-4.42.16-2. Общий вид Наружная стеновая панель угловая НУ1-4.42.16-2. Каркас Наружная стеновая панель доборная НД1-13.33.16-1. Общий вид Наружная стеновая панель доборная НД1-13.33.16-1. Каркас Наружная стеновая панель доборная НД1-13.39.16-1. Общий вид Наружная стеновая панель доборная НД1-13.39.16-1.Каркас Наружная стеновая панель доборная НД1-13.42.16-1. Общий вид Наружная стеновая панель доборная НД1-13.42.16-1. Каркас Наружная стеновая панель доборная НД1-12.33.16-2. Общий вид Наружная стеновая панель доборная НД1-12.33.16-2. Каркас Наружная стеновая панель доборная НД1-12.39.16-2. Общий вид Наружная стеновая панель доборная НД1-12.39.16-2. Каркас Наружная стеновая панель доборная НД1-12.42.16-2. Общий вид Наружная стеновая панель доборная НД1-12.42.16-2. Каркас Узлы панелей 1 - 6 Узлы панелей 7 - 10 Узлы панелей 11 - 14 Узлы каркасов 1 - 4 Узлы каркасов 5 - 6 Сечения элементов каркасов Заготовки асбестоцементных листов 1 - 24 Заготовки асбестоцементных листов 25 - 40, 57 - 58 Заготовки асбестоцементных листов 41 - 56 Заготовки алюминиевых профилей П1 - П5, П8 Заготовки алюминиевых профилей П6 - П14 Заготовки алюминиевых профилей П15 - П17. Узел 15 Заготовки алюминиевых профилей П18 - П23, П9 |
| Разработан: | ЦНИИЭП торгово-бытовых зданий и туристских комплексов |
| Утверждён: | 17.05.1976 Государственный комитет по гражданскому строительству и архитектуре при Госстрое СССР (110) |
| Нормативные ссылки: |




















































































