Скачать Серия 1.265-1 Выпуск 3. Утепленные панели длиной 298 и 598 см, шириной 149, 256 и 295 см для укладки по деревянным балкам. Рабочие чертежиДата актуализации: 01.01.2021
|
| Обозначение: | Серия 1.265-1 |
| Обозначение англ: | Series 1.265-1 |
| Статус: | не действует |
| Название рус.: | Выпуск 3. Утепленные панели длиной 298 и 598 см, шириной 149, 256 и 295 см для укладки по деревянным балкам. Рабочие чертежи |
| Дата добавления в базу: | 01.09.2013 |
| Дата актуализации: | 01.01.2021 |
| Дата введения: | 30.11.1979 |
| Дата окончания срока действия: | 01.08.1982 |
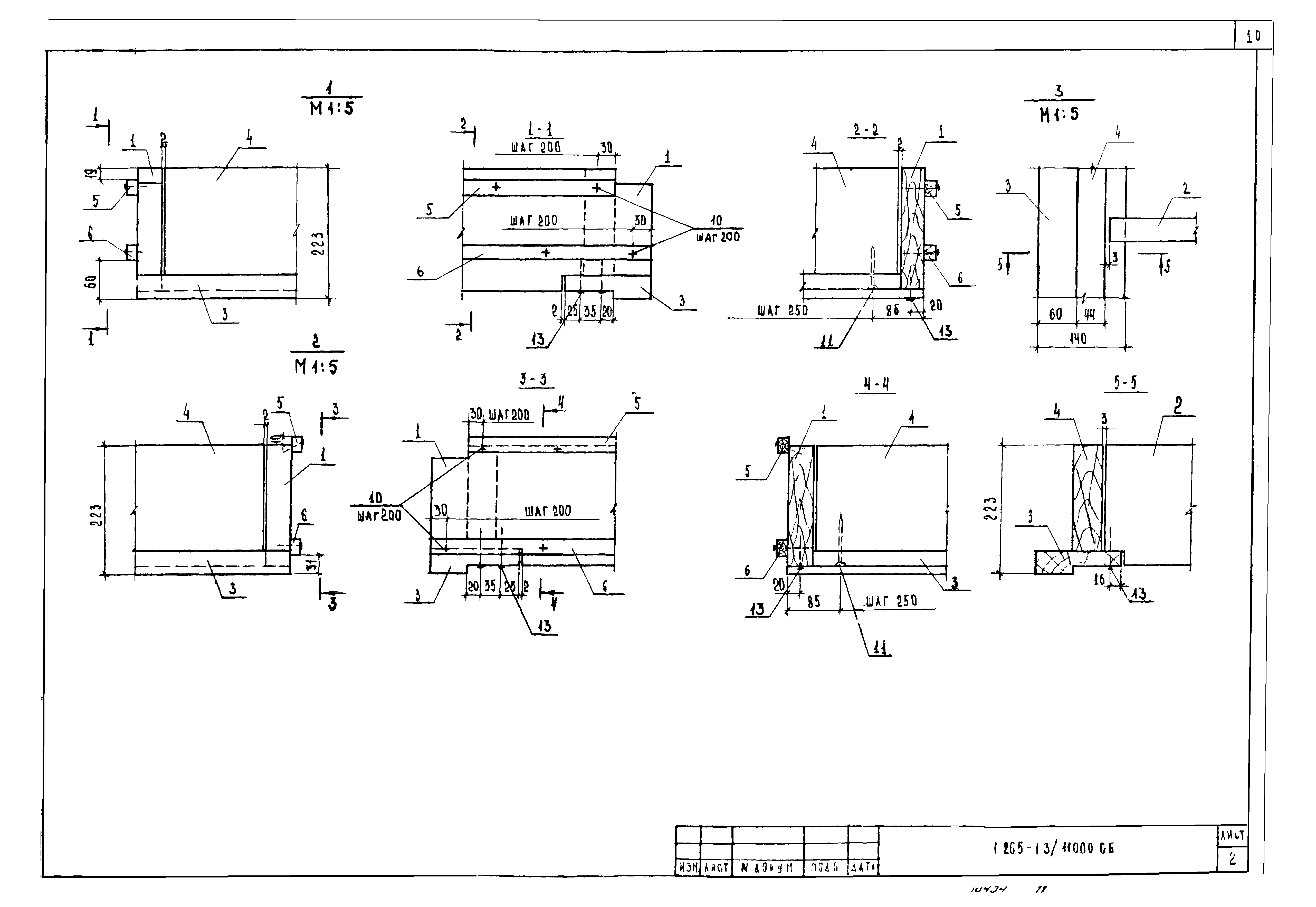
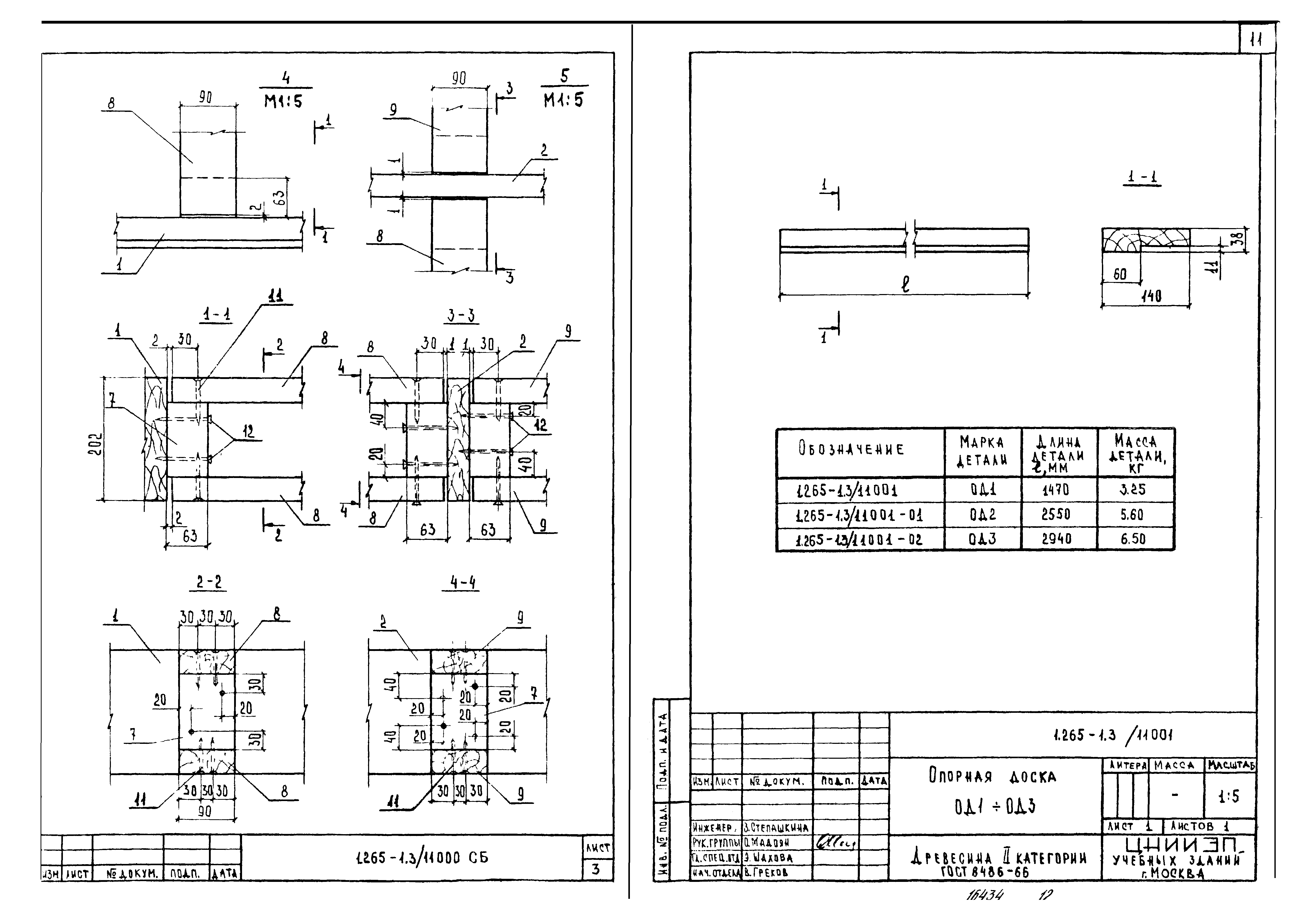
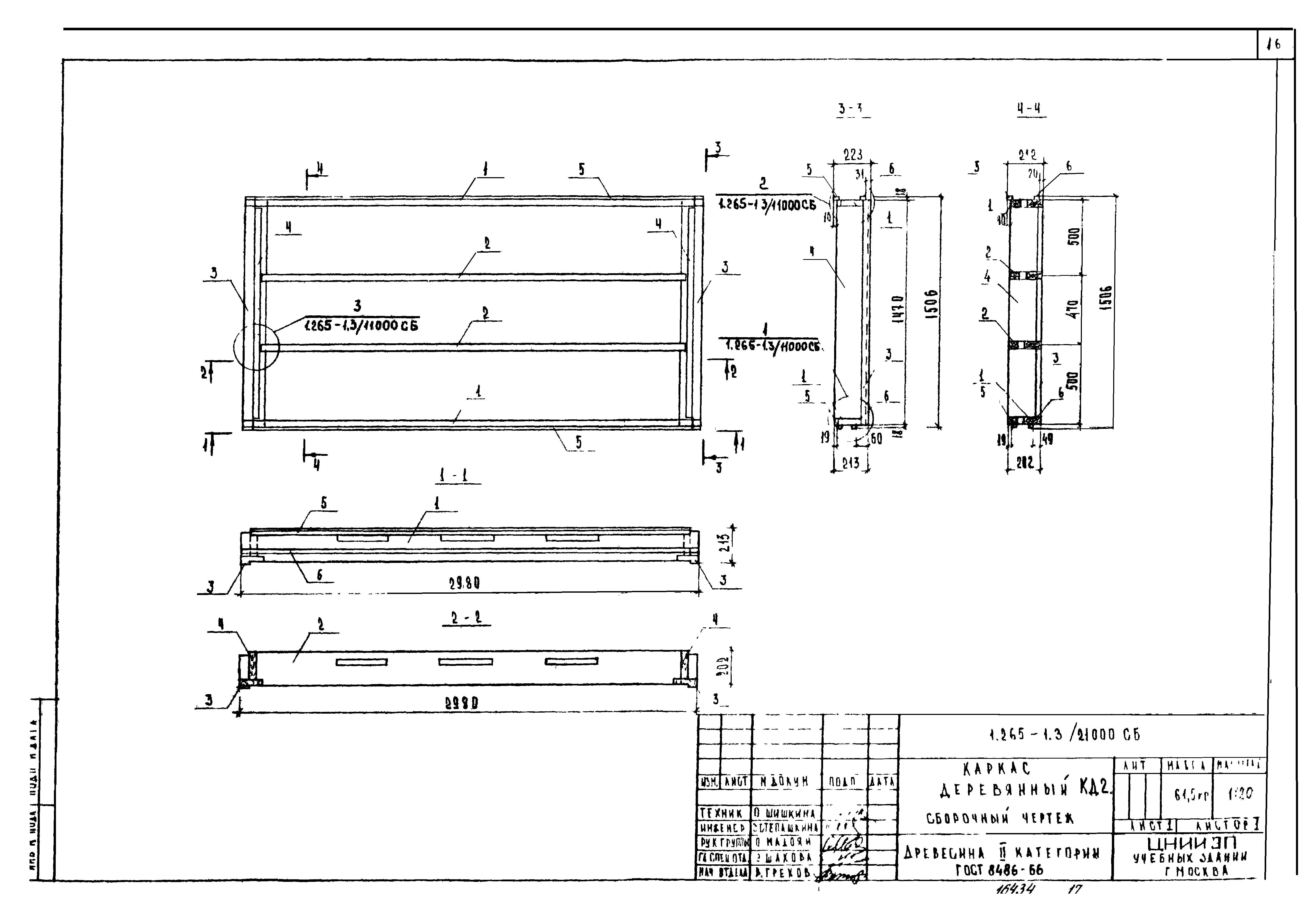
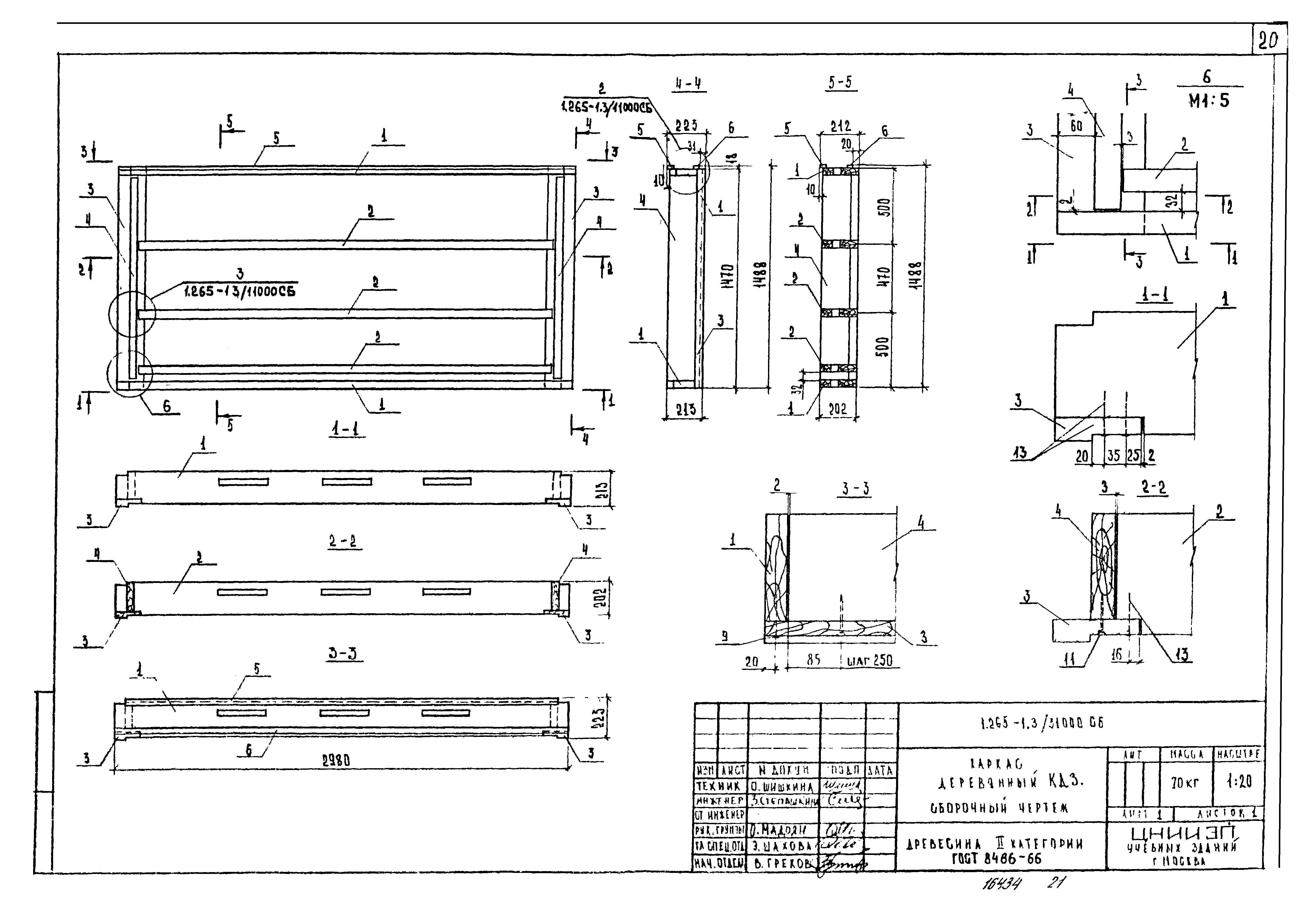
| Оглавление: | 1.265-1.3 Содержание 1.265-1.3/0000 ТО Техническое описание 1.265-1.3/10000 Утепленная панель покрытия ДАБ2-6.1,5. Спецификация 1.265-1.3/11000 Каркас деревянный КД1. Спецификация 1.265-1.3/10000 СБ Утепленная панель покрытия ДАБ2-6.1,5. Сборочный чертеж 1.265-1.3/11000 СБ Каркас деревянный КД1. Сборочный чертеж 1.265-1.3/11001 Опорная доска ОД1 - ОД3 1.265-1.3/11100 Продольное ребро Д1 1.265-1.3/11200 Продольное ребро Д2 1.265-1.3/12000 Изделие закладное (М1л, М1пр). Спецификация 1.265-1.3/12000 СБ Изделие закладное (М1л, М1пр). Сборочный чертеж 1.265-1.3/20000 Утепленная панель покрытия ДАБ2-3.1,5. Спецификация 1.265-1.3/21000 Каркас деревянный КД2. Спецификация 1.265-1.3/20000 СБ Утепленная панель покрытия ДАБ2-3.1,5. Сборочный чертеж 1.265-1.3/21000 СБ Каркас деревянный КД2. Сборочный чертеж 1.265-1.3/21100 Продольное ребро Д3 1.265-1.3/21200 Продольное ребро Д4 1.265-1.3/30000 Утепленная панель покрытия ДАБК2-3.1,5. Спецификация 1.265-1.3/31000 Каркас деревянный КД3. Спецификация 1.265-1.3/30000 СБ Утепленная панель покрытия ДАБК2-3.1,5. Сборочный чертеж 1.265-1.3/31000 СБ Каркас деревянный КД3. Сборочный чертеж 1.265-1.3/40000 Утепленная панель покрытия ДАБК2-3.2,5. Спецификация 1.265-1.3/41000 Каркас деревянный КД4. Спецификация 1.265-1.3/40000 СБ Утепленная панель покрытия ДАБК2-3.2,5. Сборочный чертеж 1.265-1.3/41000 СБ Каркас деревянный КД4. Сборочный чертеж 1.265-1.3/50000 Утепленная панель покрытия ДАБК2-3.3,3. Спецификация 1.265-1.3/51000 Каркас деревянный КД5. Спецификация 1.265-1.3/50000 Утепленная панель покрытия ДАБК2-3.3,3. Сборочный чертеж 1.265-1.3/51000 Каркас деревянный КД5. Сборочный чертеж 1.265-1.3/0000 Д1 Выборка материалов 1.265-1.3/0000 Д1 Данные для испытаний |
| Разработан: | ЦНИИЭП учебных зданий |
| Утверждён: | 30.11.1979 Государственный комитет по гражданскому строительству и архитектуре при Госстрое СССР (255) Государственный комитет по гражданскому строительству и архитектуре при Госстрое СССР |
| Заменяет собой: |
|





























