Скачать Типовой проект 407-3-348.84 Альбом II. Электротехническая часть. Чертежи-задания заводу изготовителюДата актуализации: 01.01.2021
|
| Обозначение: | Типовой проект 407-3-348.84 |
| Обозначение англ: | 407-3-348.84 |
| Статус: | не определен законодательством |
| Название рус.: | Альбом II. Электротехническая часть. Чертежи-задания заводу изготовителю |
| Дата добавления в базу: | 01.09.2013 |
| Дата актуализации: | 01.01.2021 |
| Дата введения: | 15.12.1983 |
| Дата окончания срока действия: | 30.06.2003 |
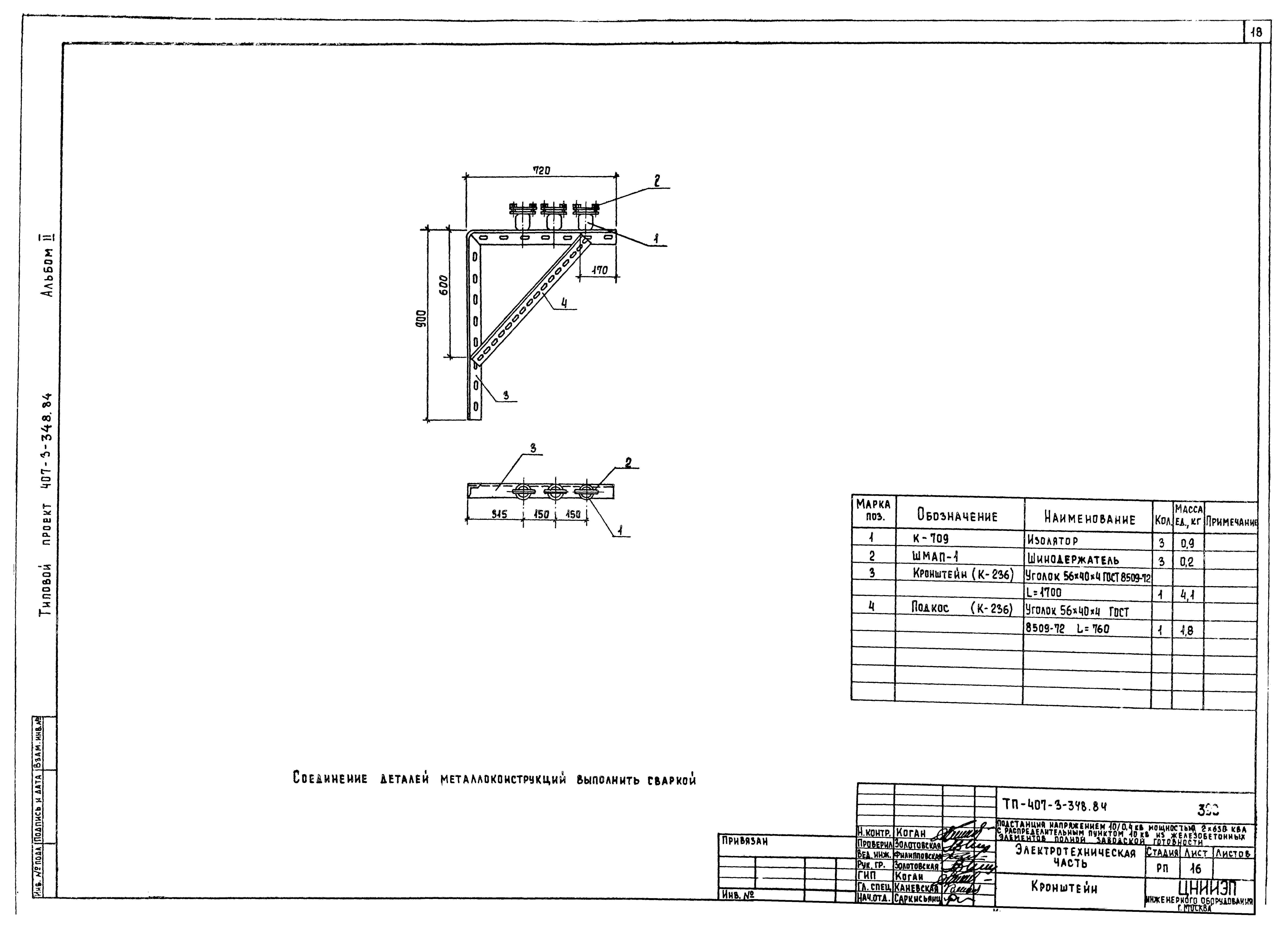
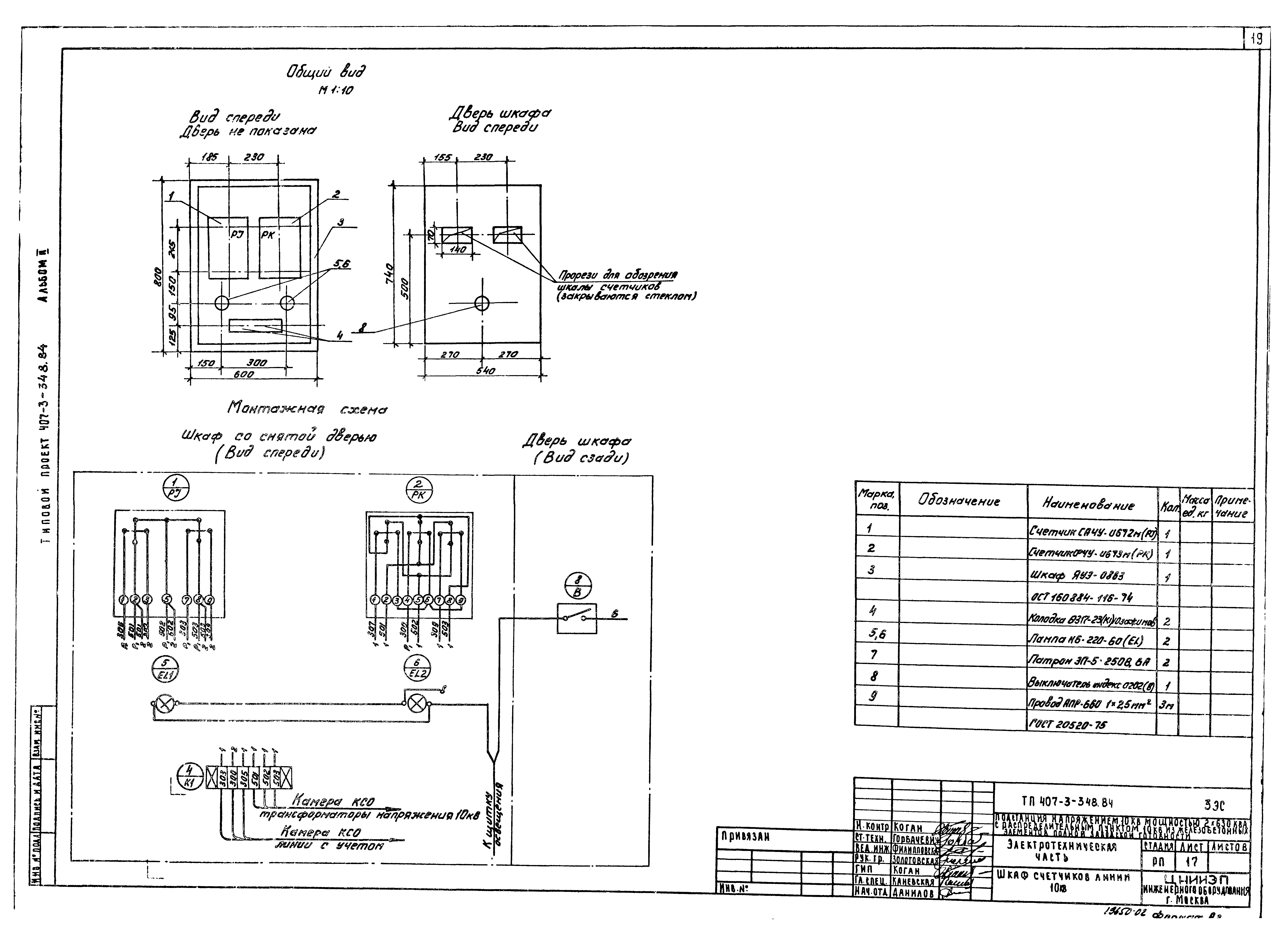
| Оглавление: | Технические решения Трансформаторная подстанция. План расположения оборудования План трансформаторной подстанции. Ошиновка Разрезы 1-1; 2-2 Электроосвещение. План. Раскладка кабелей Кабельное расписание Заземление. Внутренний контур Элементные схемы камер отходящих линий 10 кВ с защитой Трансформатор напряжения шин 10 кВ. Элементная схема. Ряд зажимов камеры КСО Камера ввода 0,4 кВ. Схема внешних соединений Установка светильников на камерах КСО-366 Установка светильников и автоматов на вводной панели ЩО 70 Проходная плита для шин 10 кВ Проходная плита для шин 0,4 кВ Конструкция с изоляторами Кронштейн Шкаф счетчиков линии 10 Кв Изолирующая подставка Опросный лист для заказа камер КСО-366 (схема №1) Опросный лист для заказа камер КСО-366 (схема №2) Опросный лист для заказа камер КСО-366 (схема №3) Опросный лист для заказа панелей ЩО 70 Барьер в камере трансформатора |
| Разработан: | ЦНИИЭП |
| Утверждён: | 10.05.1983 Госгражданстрой (Gosgrazhdanstroy 138) |

























