Скачать Типовой проект 801-6-2 Альбом I. Пояснительная записка. Технология и механизация производственных процессов. Архитектурно-строительные решения. Конструкции железобетонные. Внутренний водопровод и канализация. Отопление и вентиляция. Электротехнические чертежи. Автоматизация сантехнических систем. Связь и сигнализацияДата актуализации: 01.01.2021
|
| Обозначение: | Типовой проект 801-6-2 |
| Обозначение англ: | 801-6-2 |
| Статус: | действует |
| Название рус.: | Альбом I. Пояснительная записка. Технология и механизация производственных процессов. Архитектурно-строительные решения. Конструкции железобетонные. Внутренний водопровод и канализация. Отопление и вентиляция. Электротехнические чертежи. Автоматизация сантехнических систем. Связь и сигнализация |
| Дата добавления в базу: | 01.09.2013 |
| Дата актуализации: | 01.01.2021 |
| Дата введения: | 25.06.1981 |
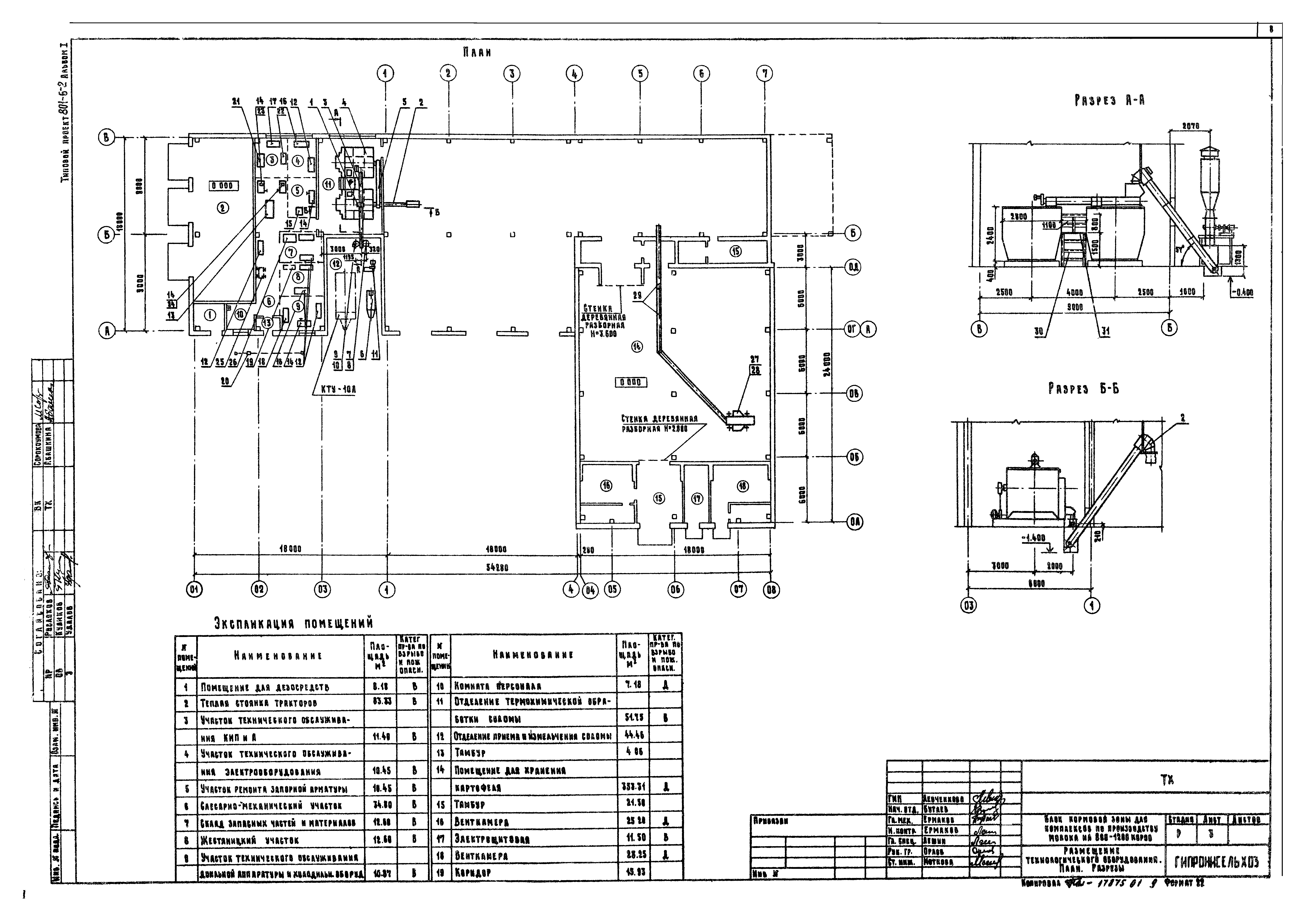
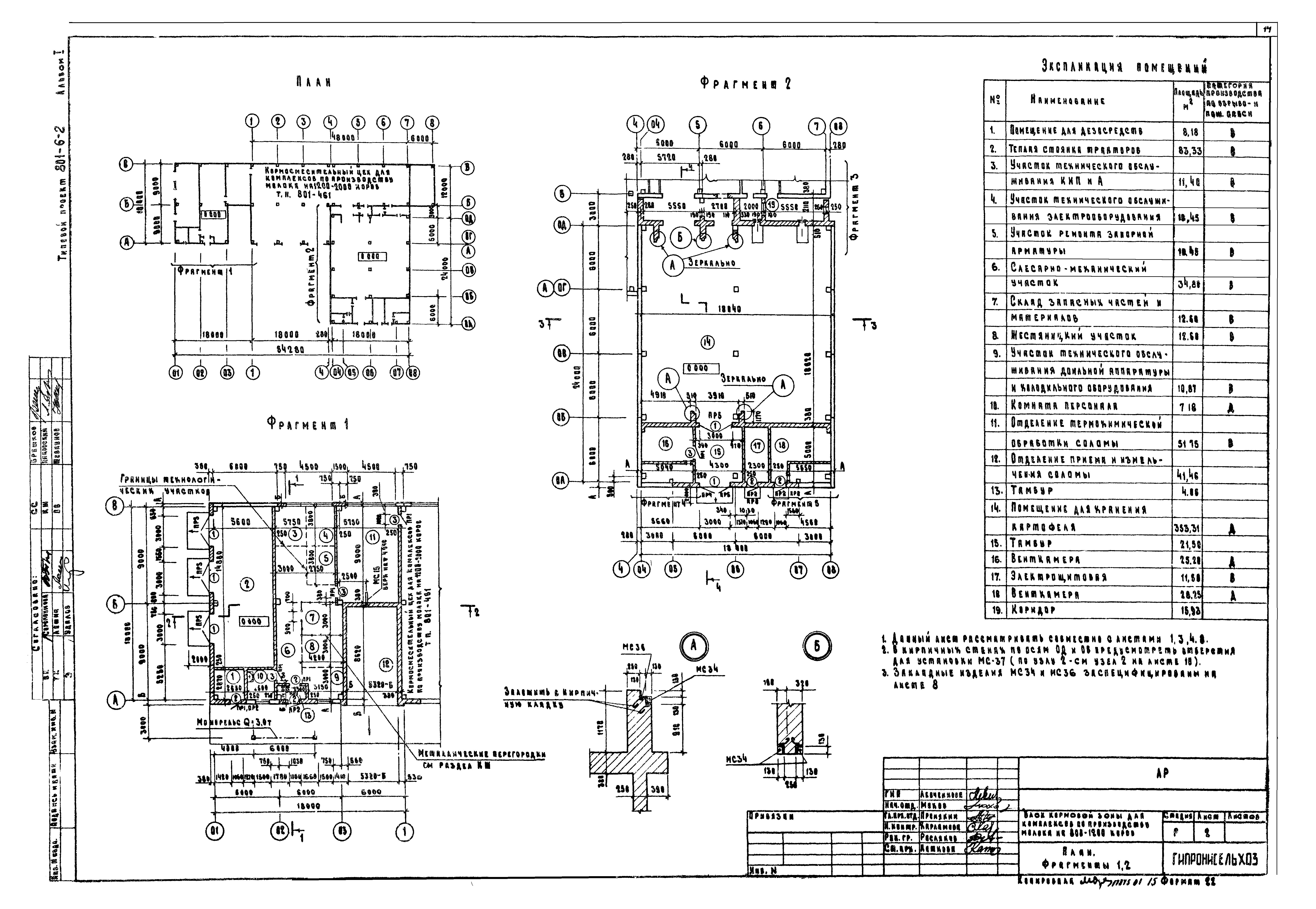
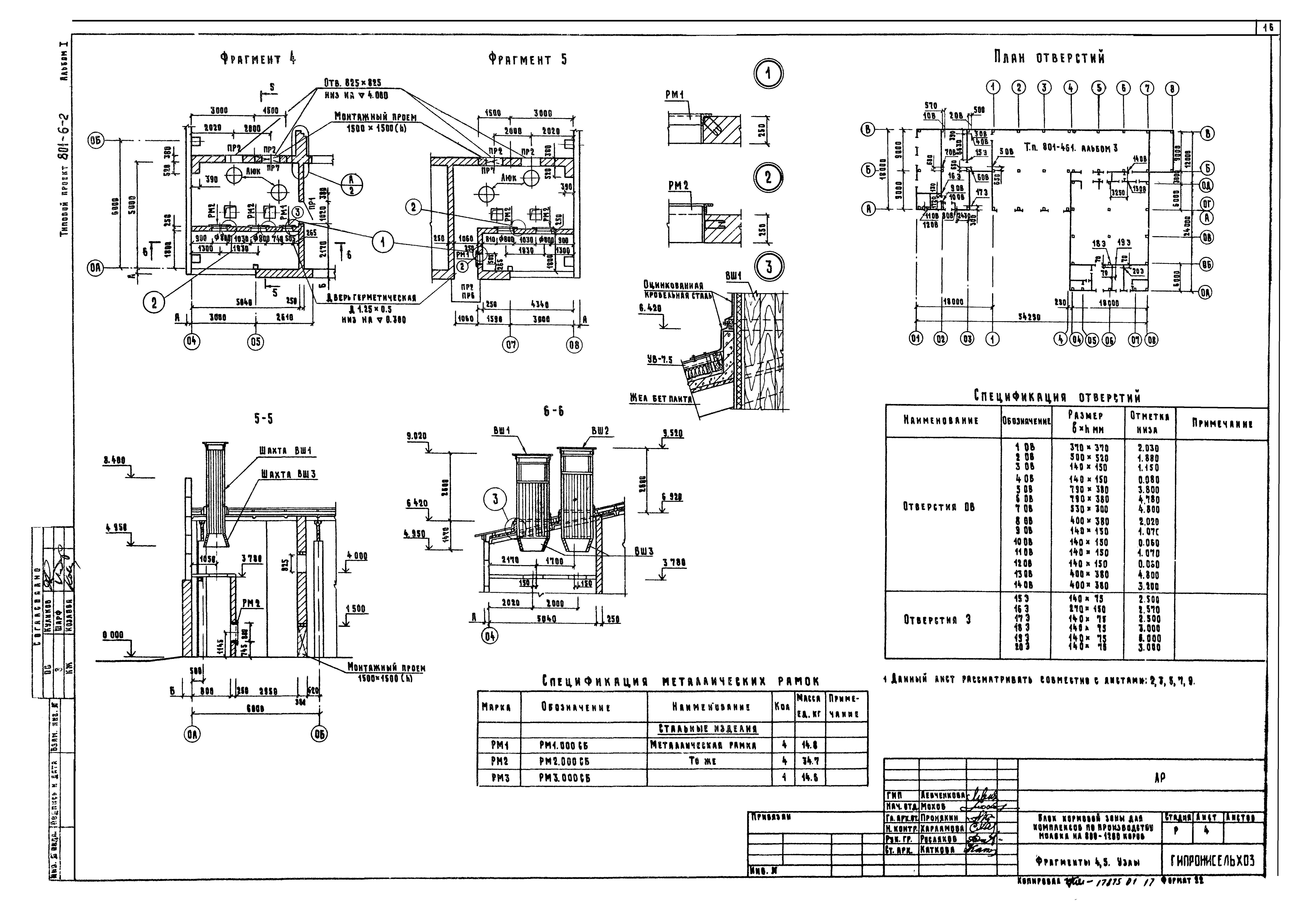
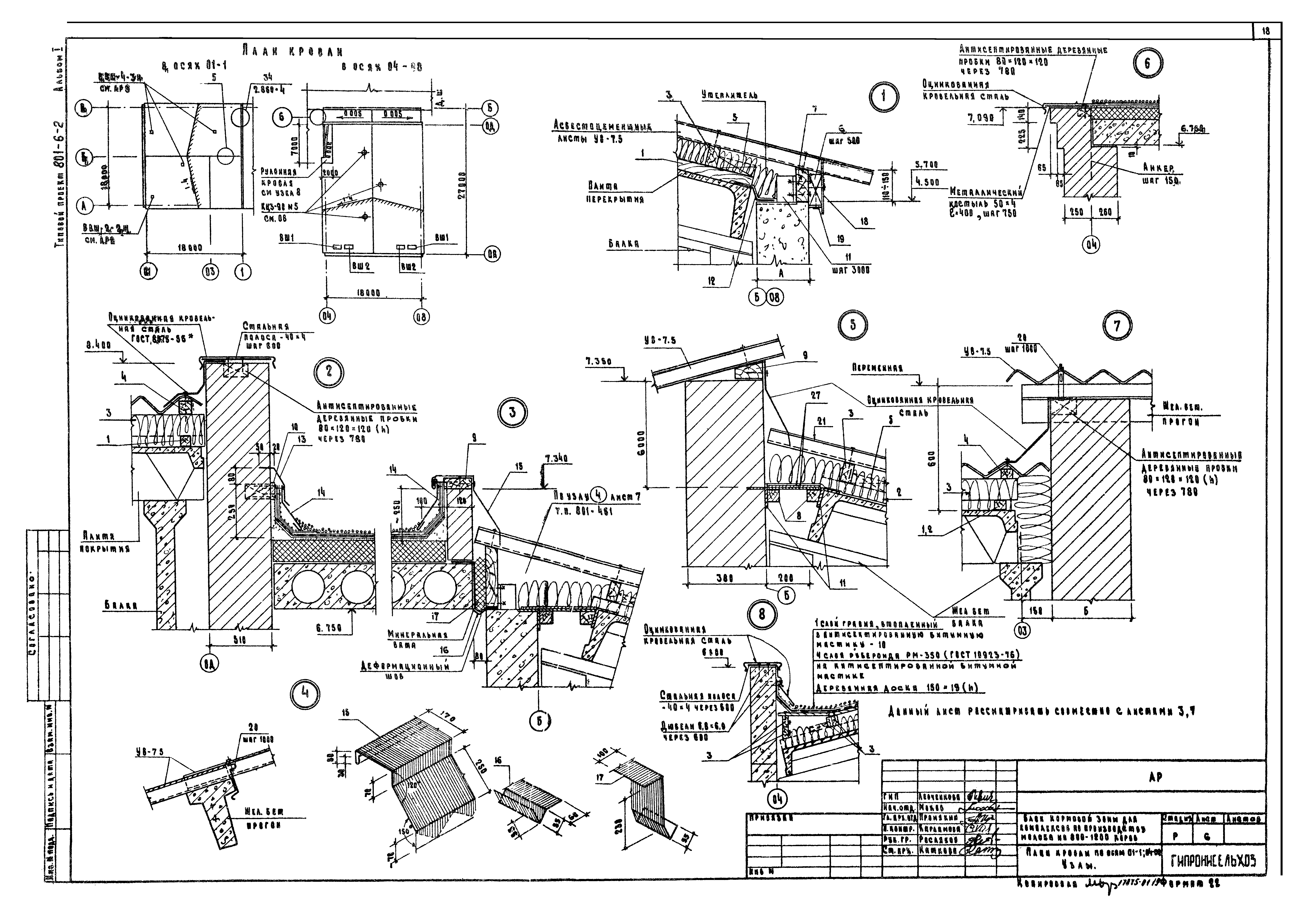
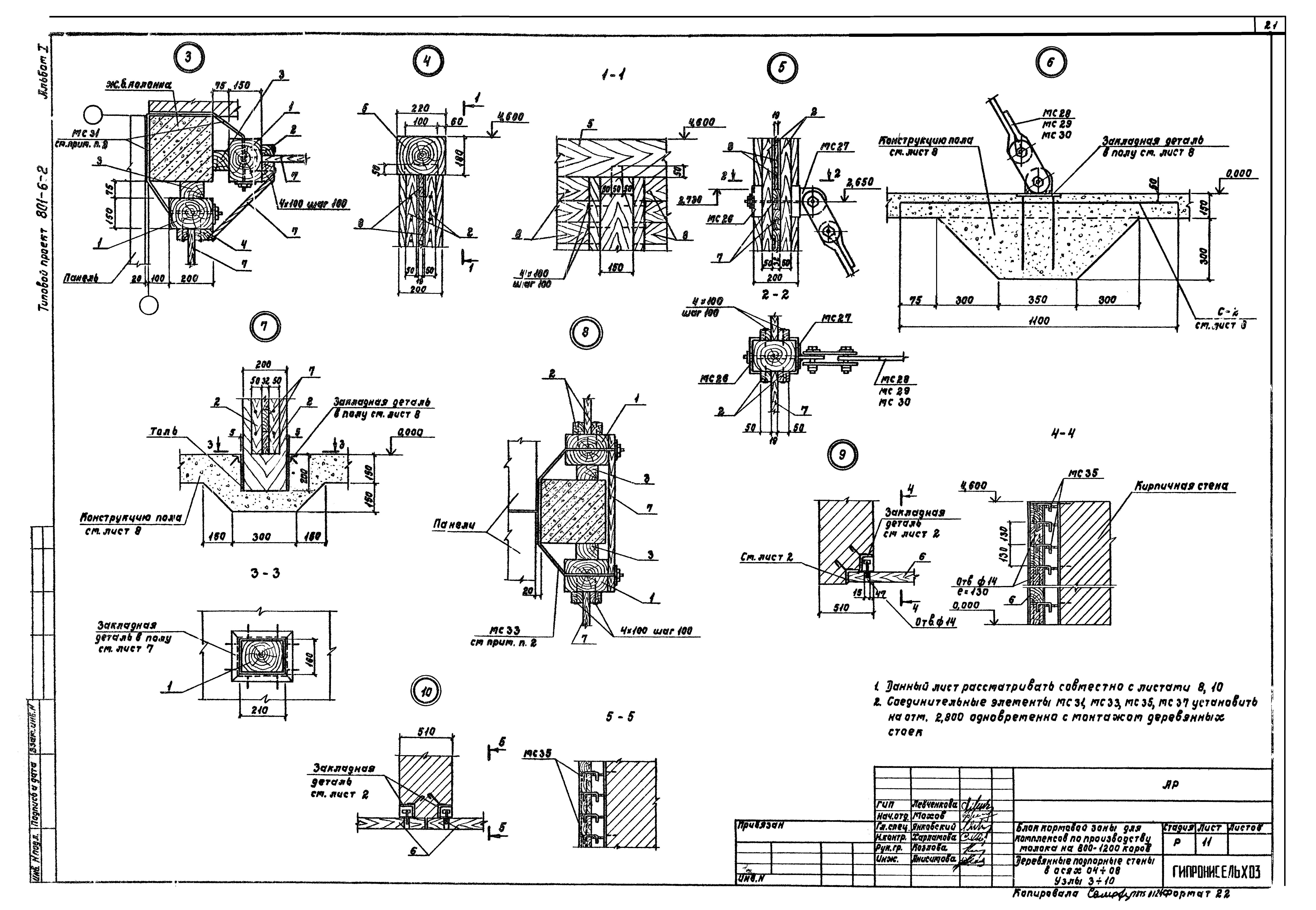
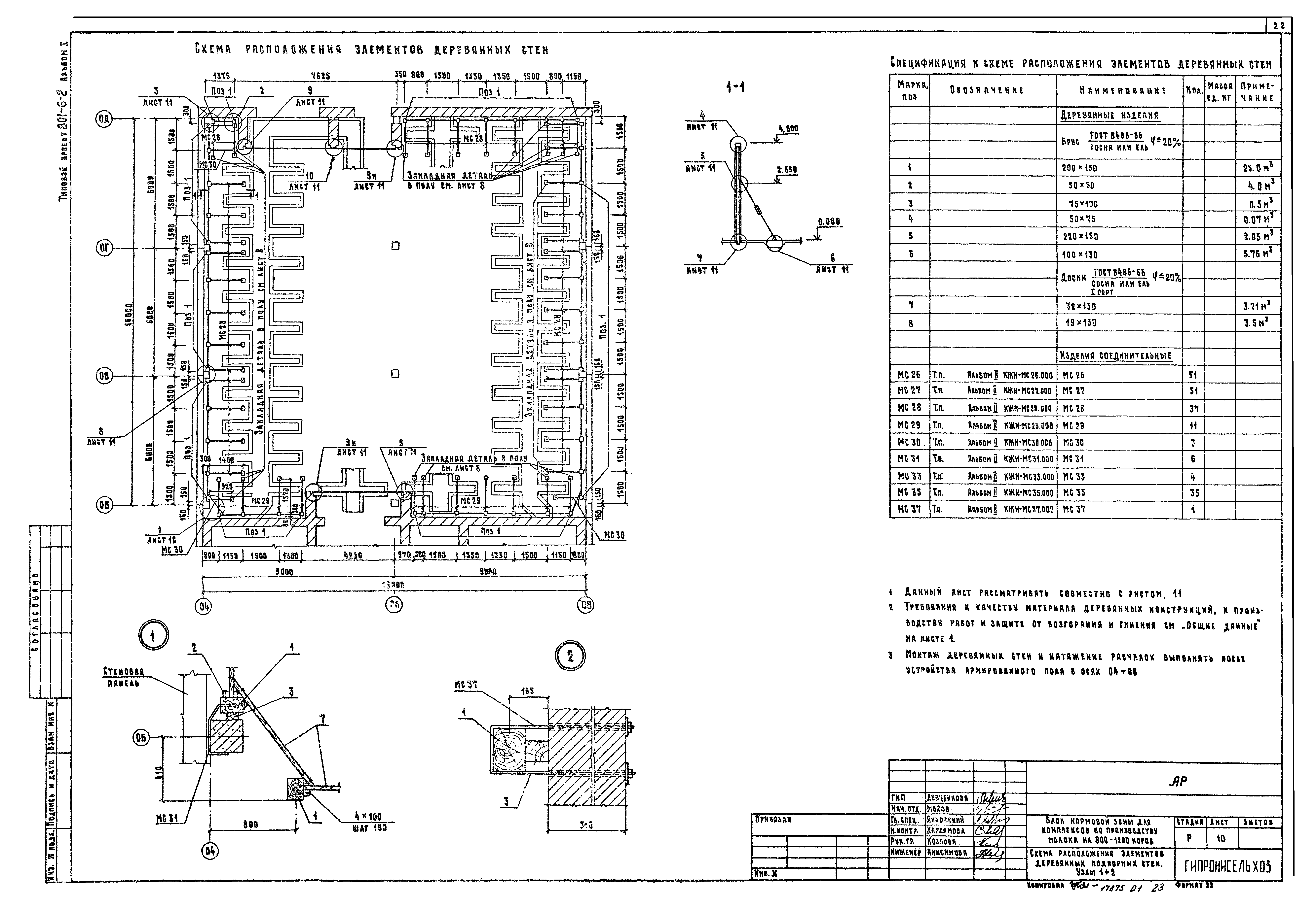
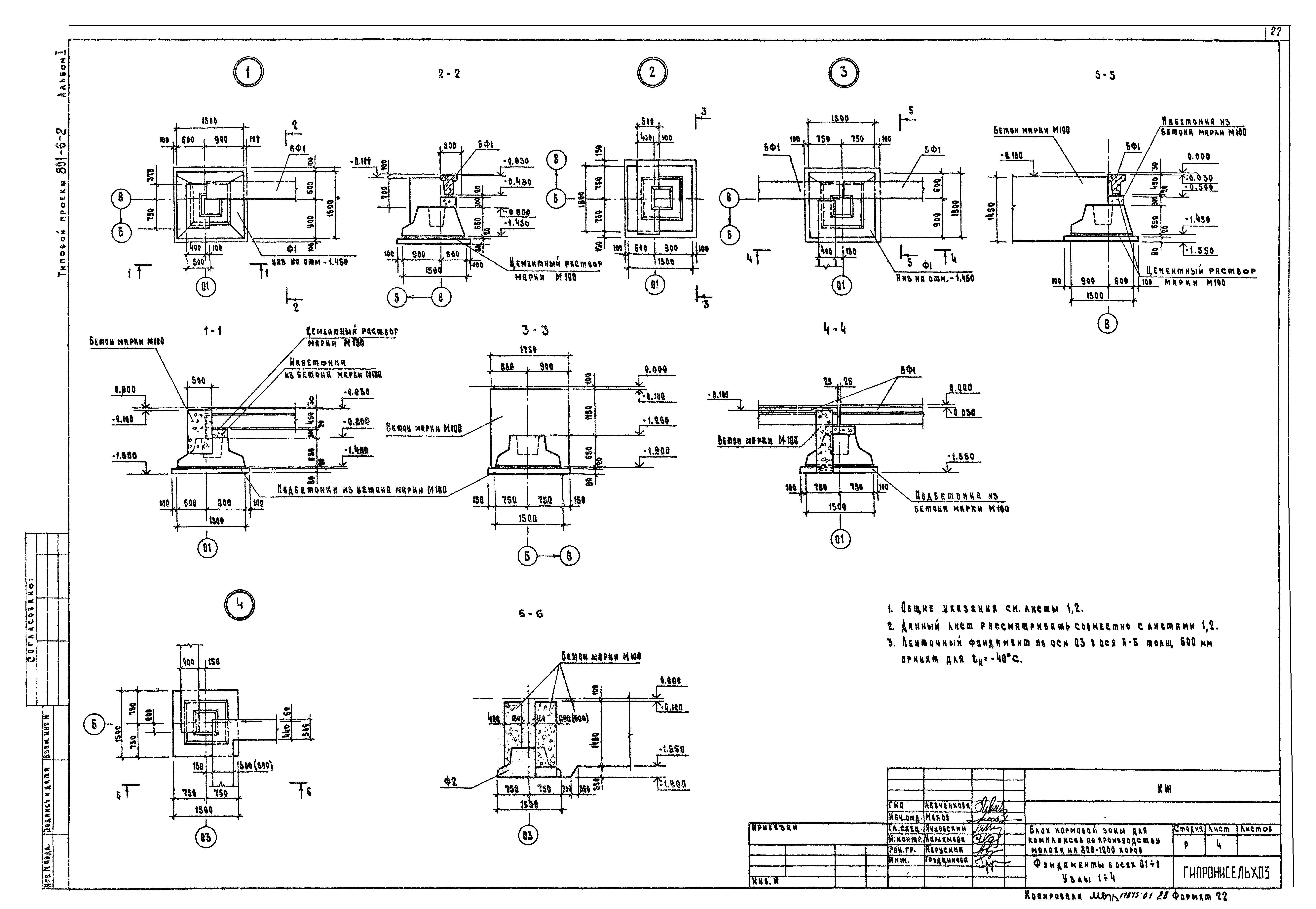
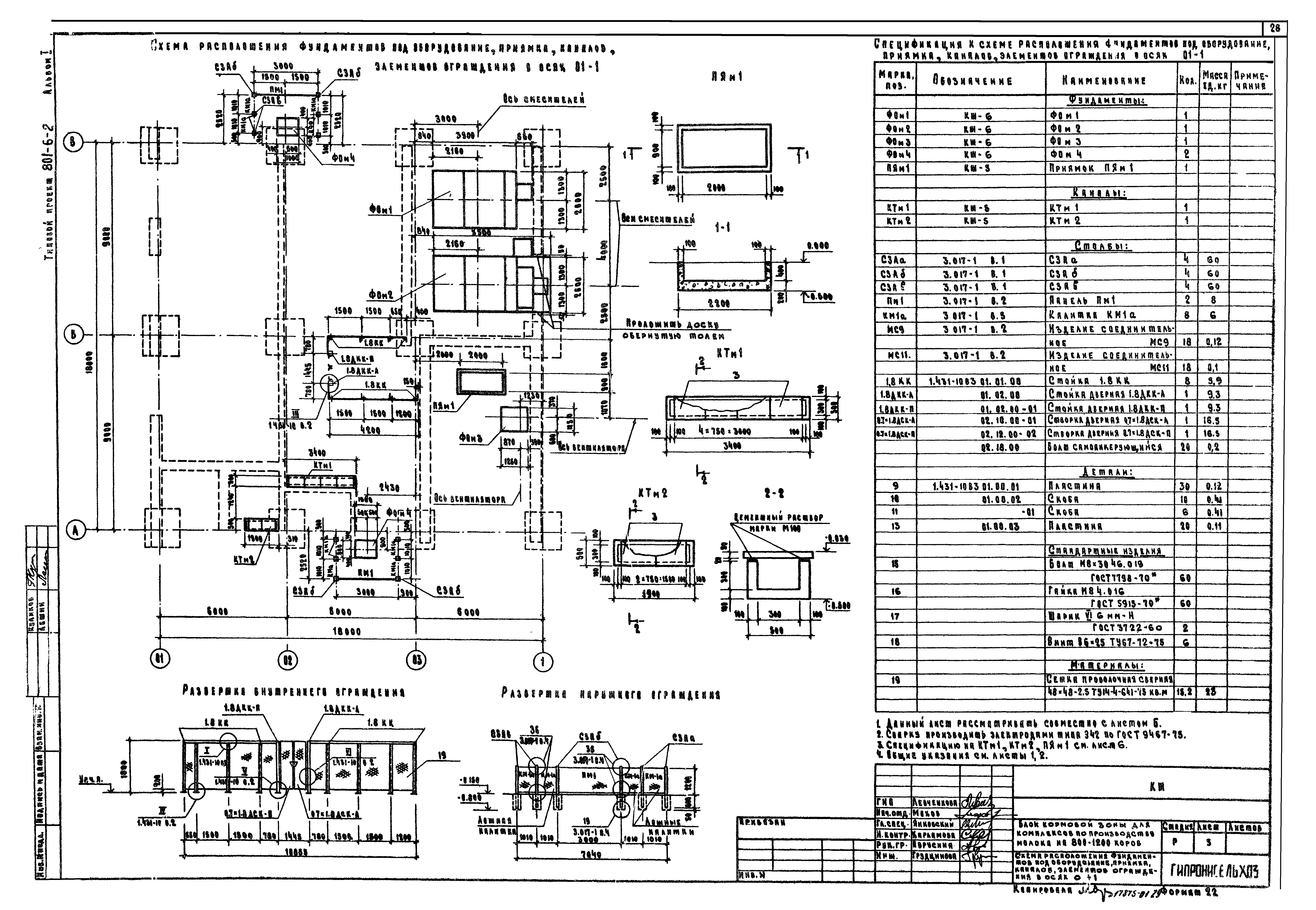
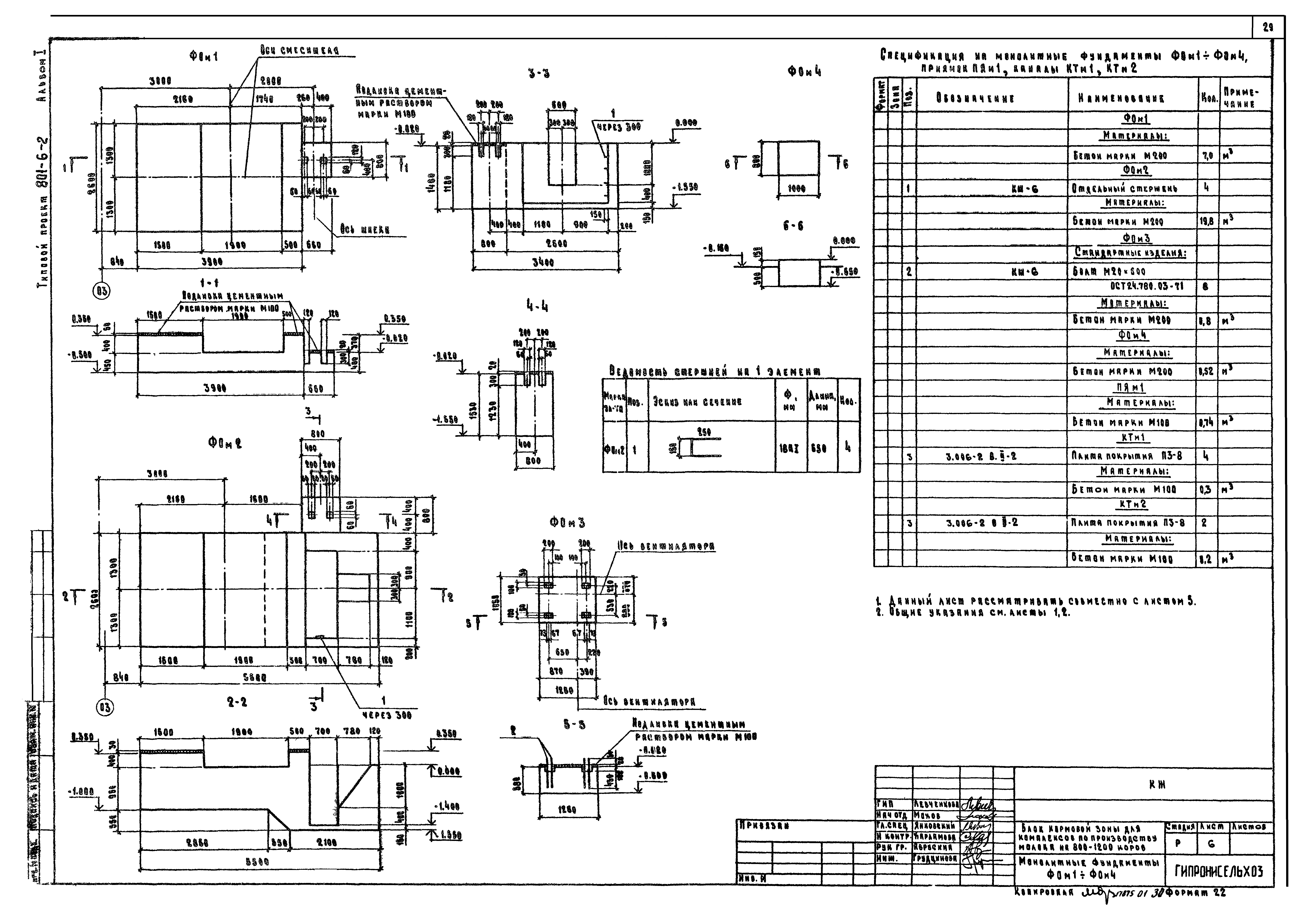
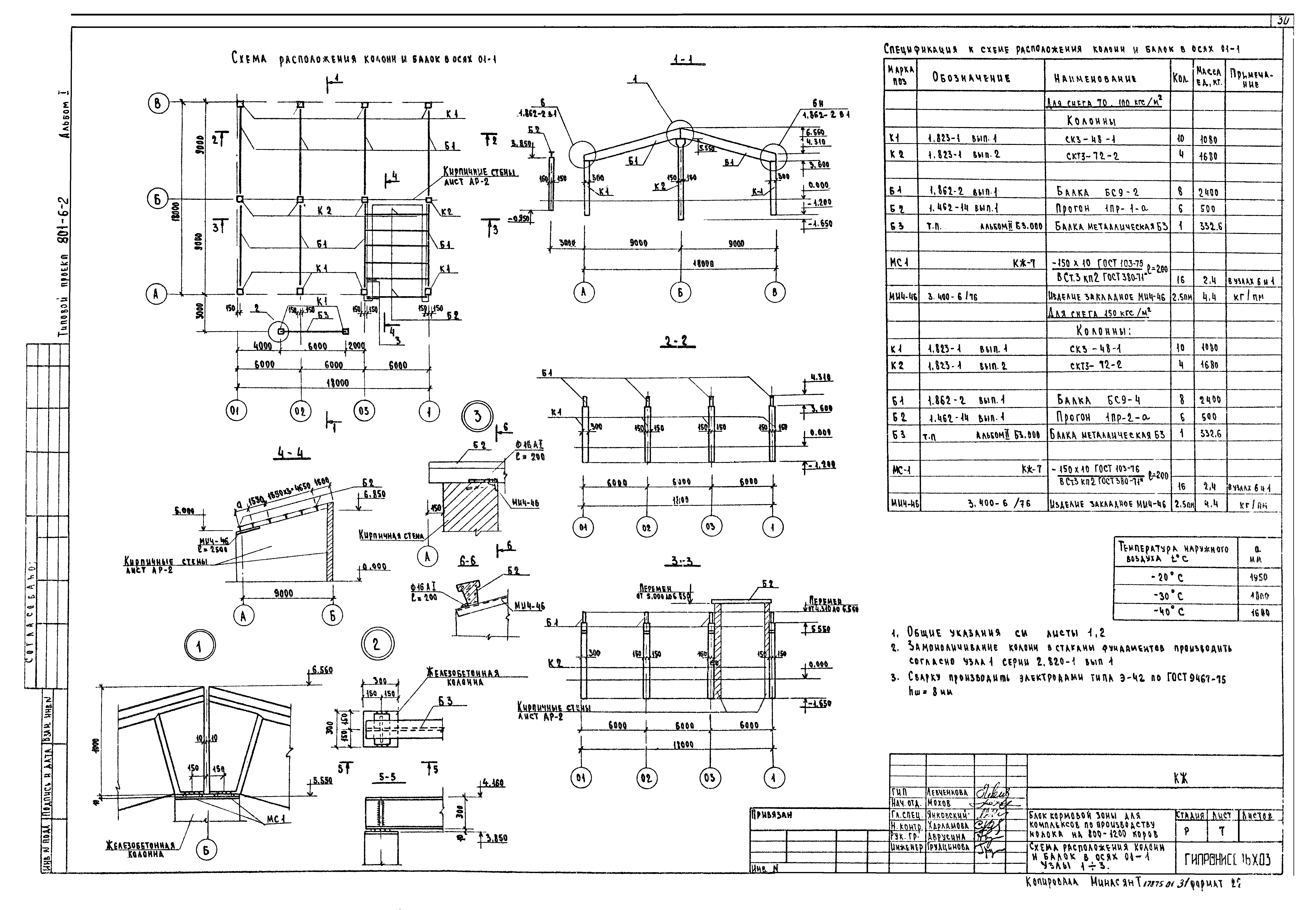
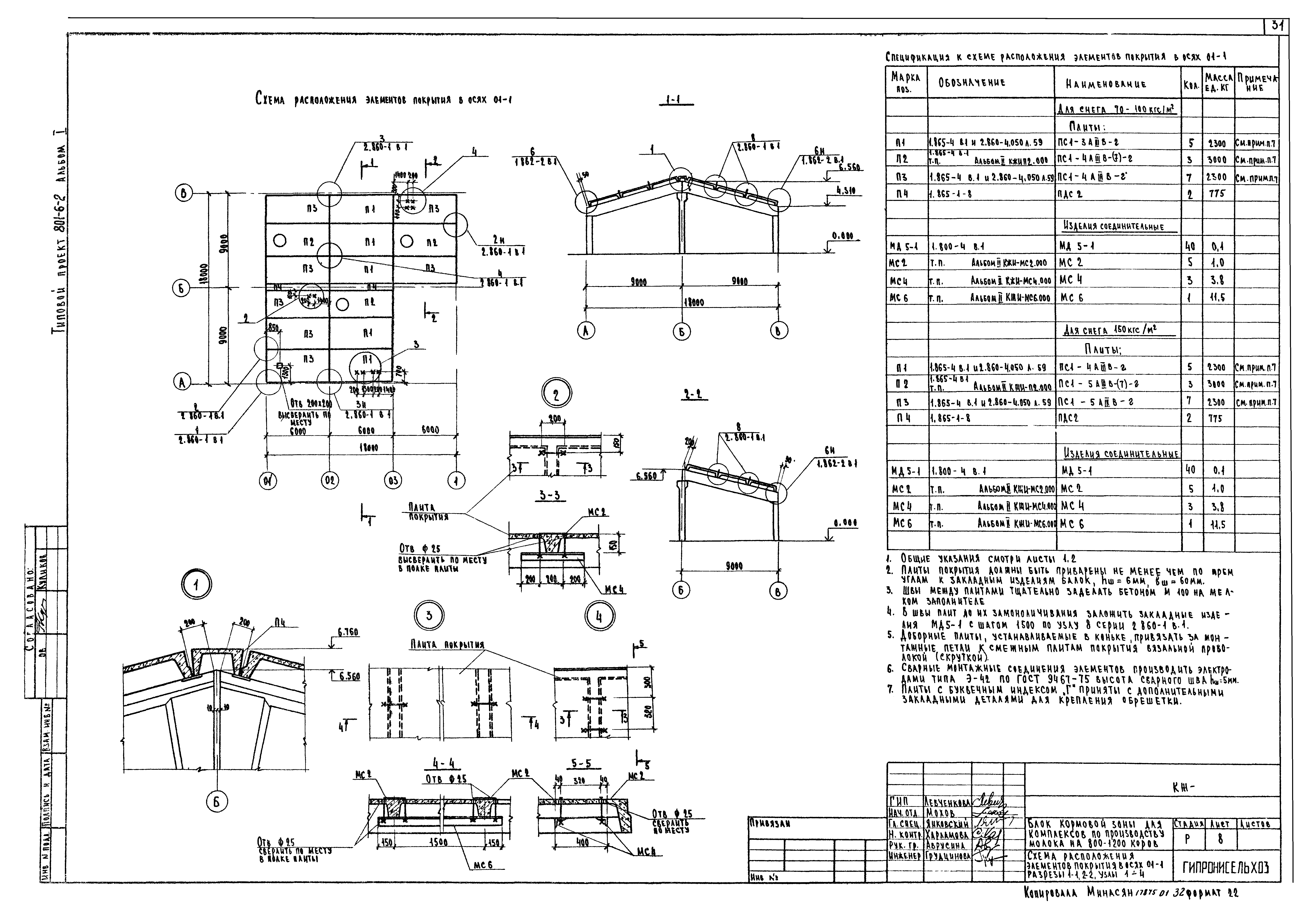
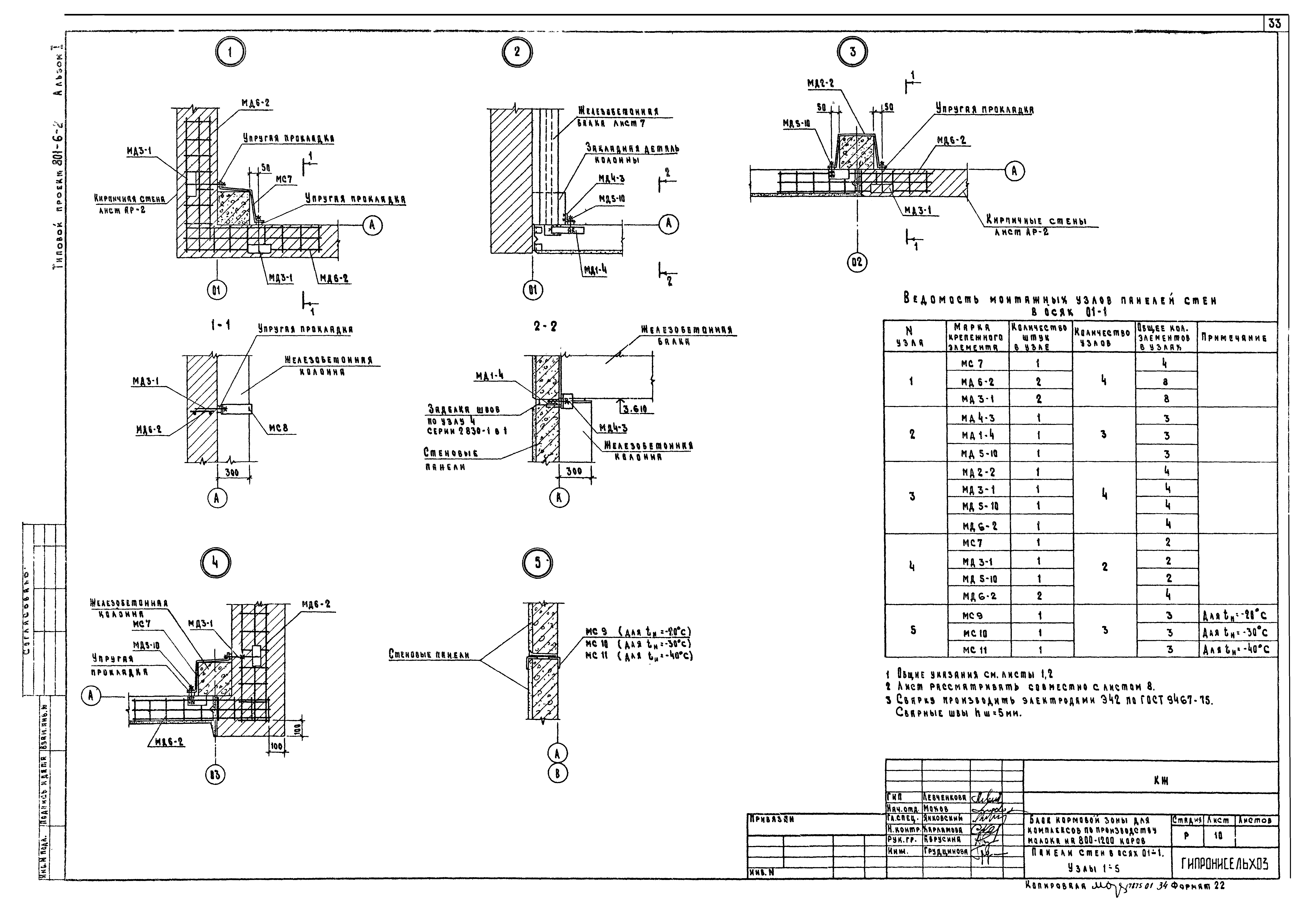
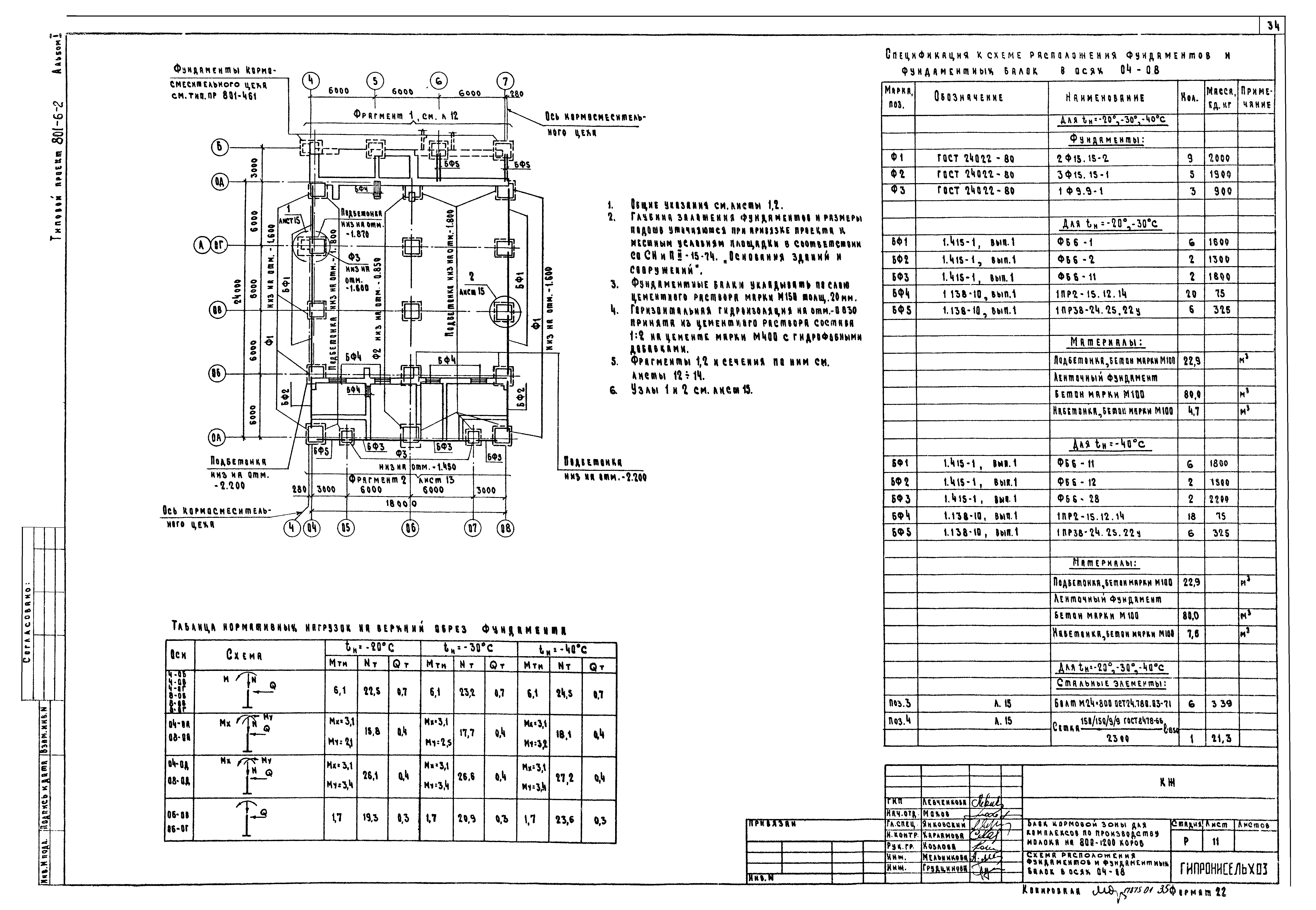
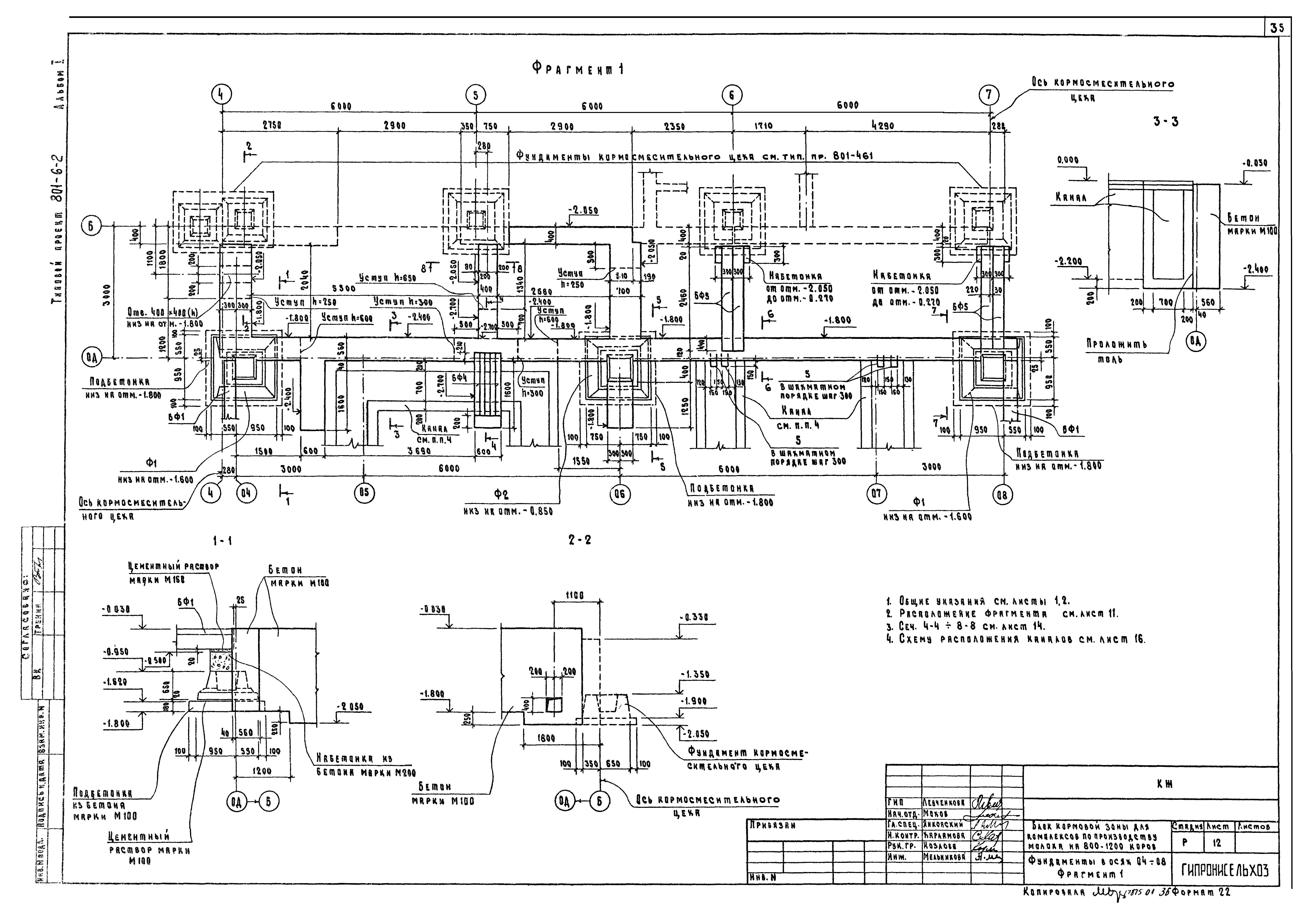
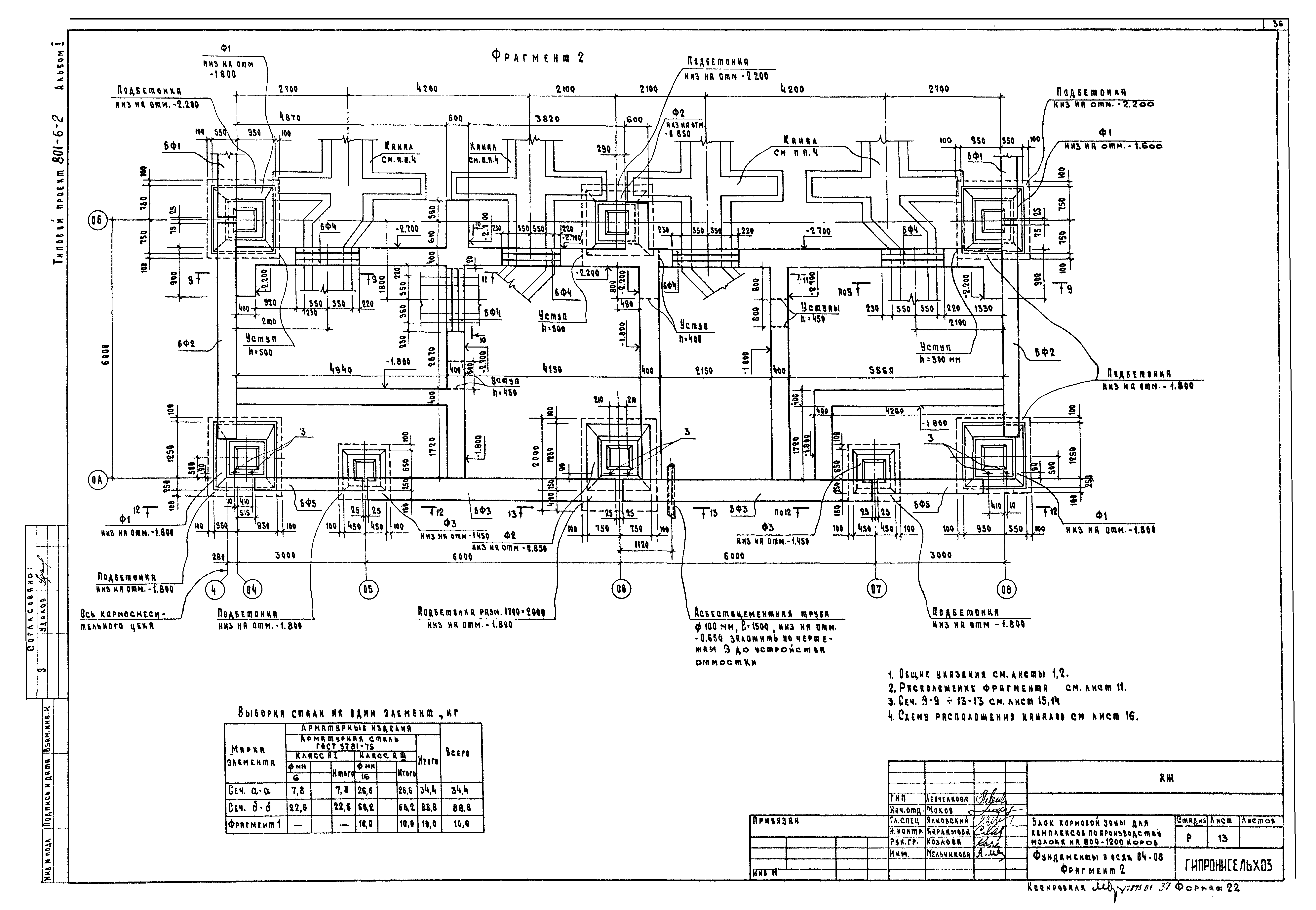
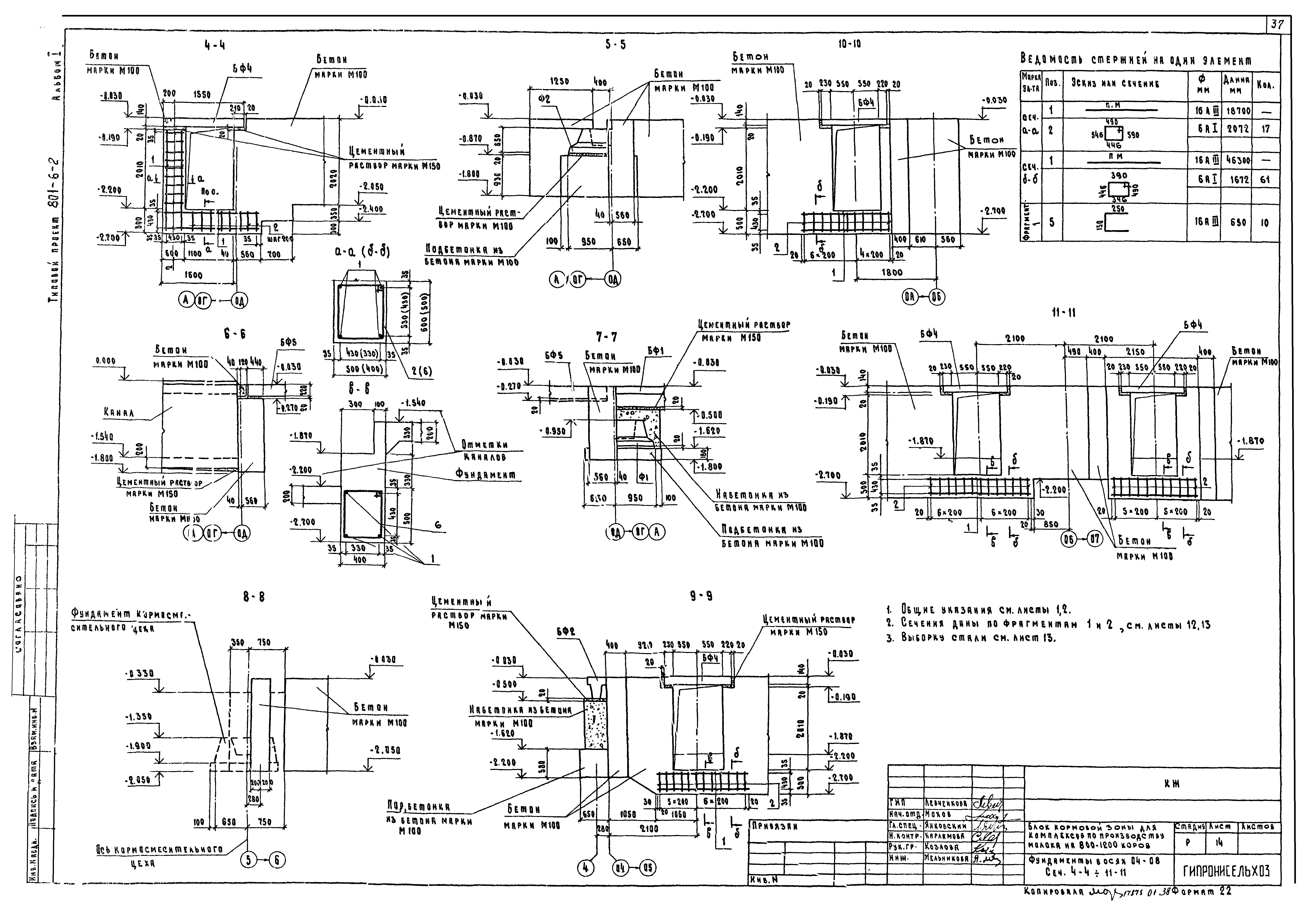
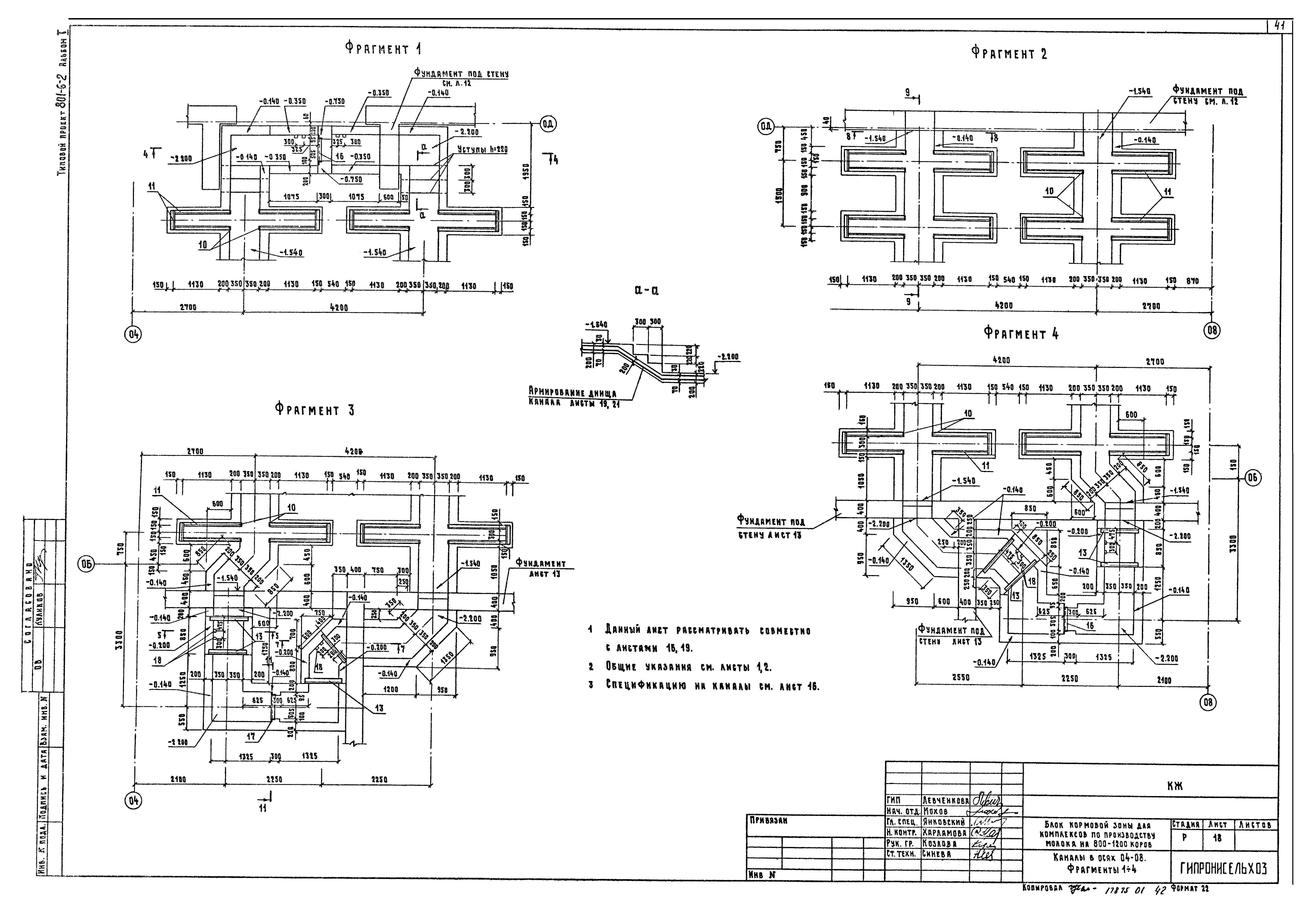
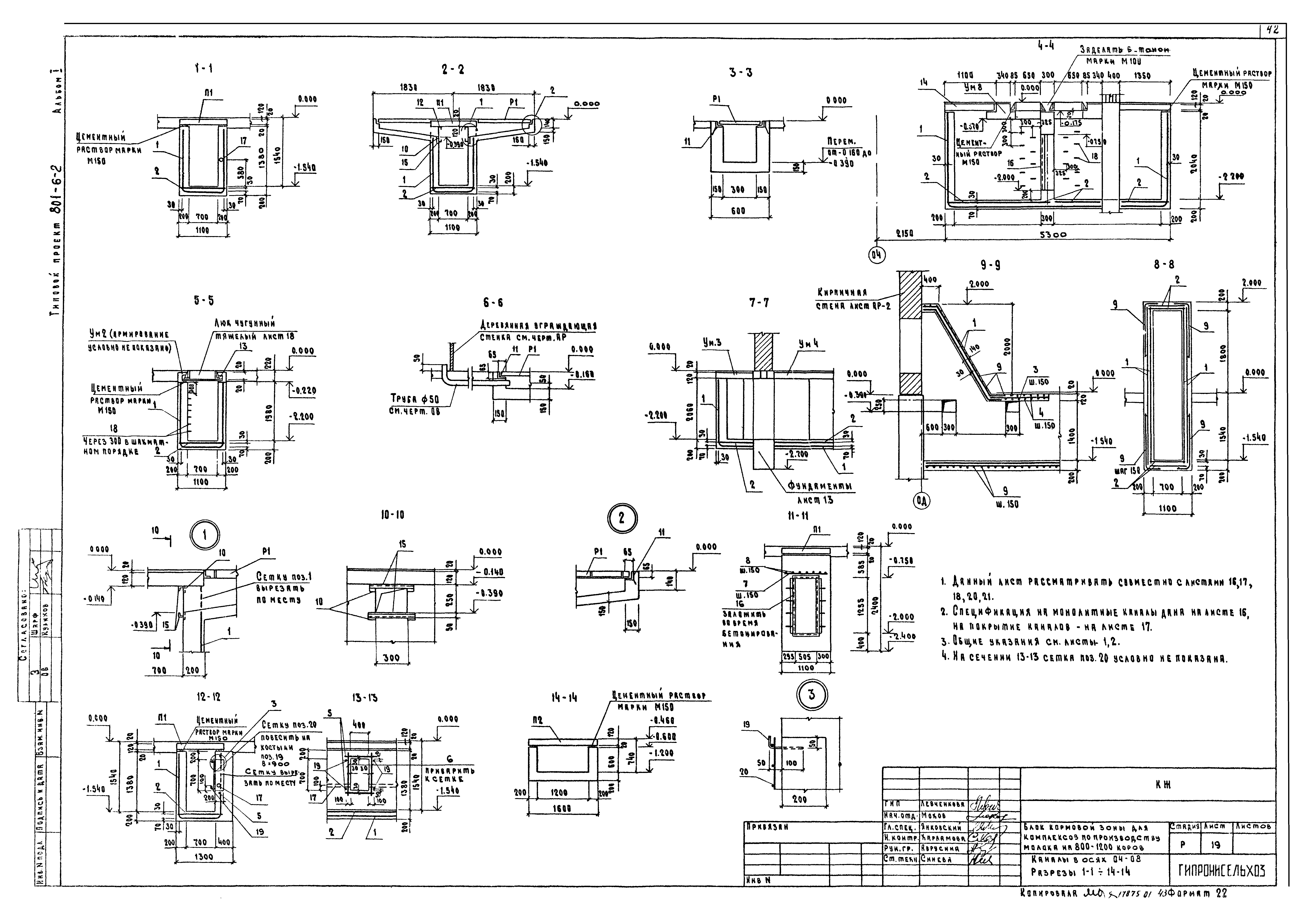
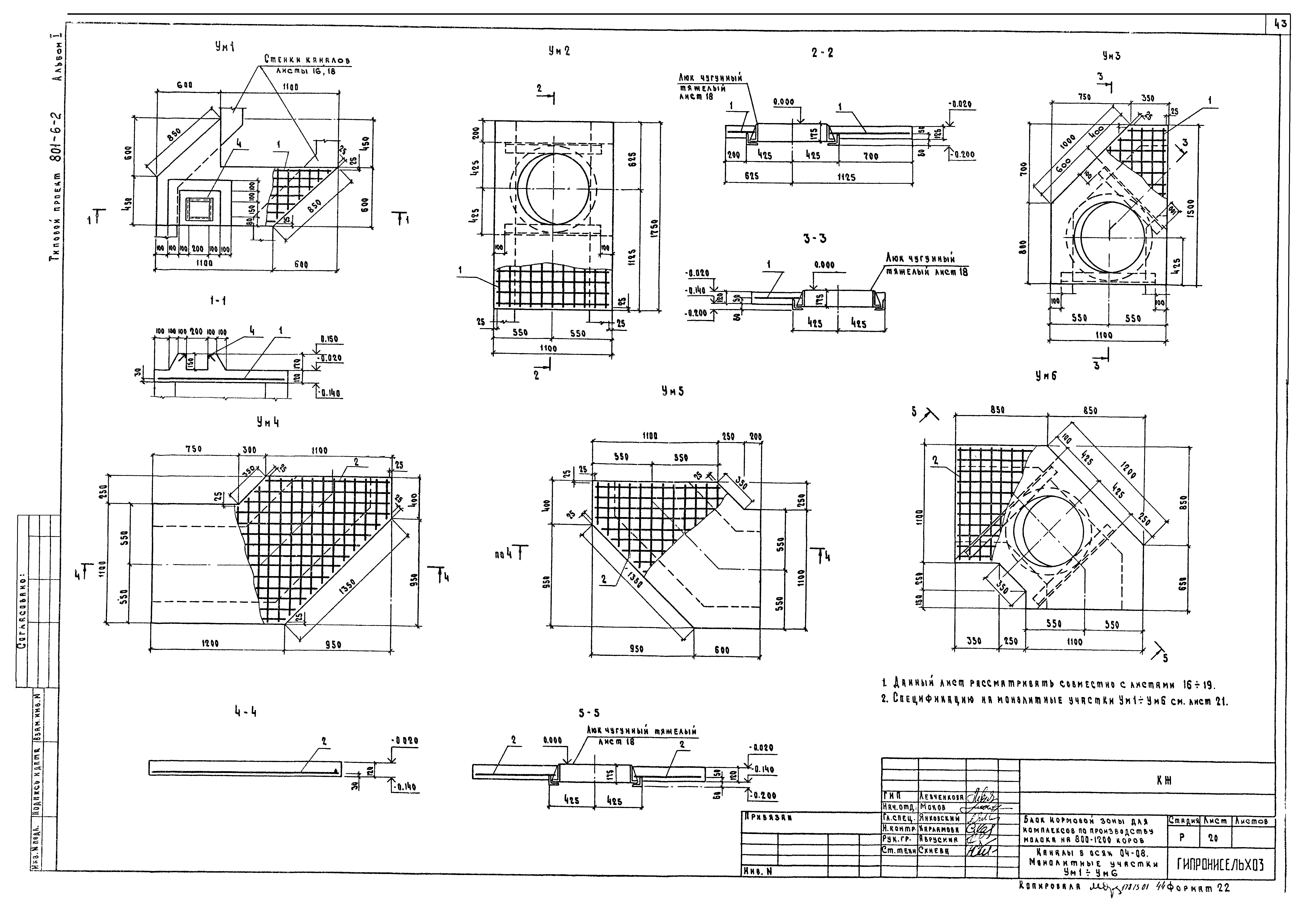
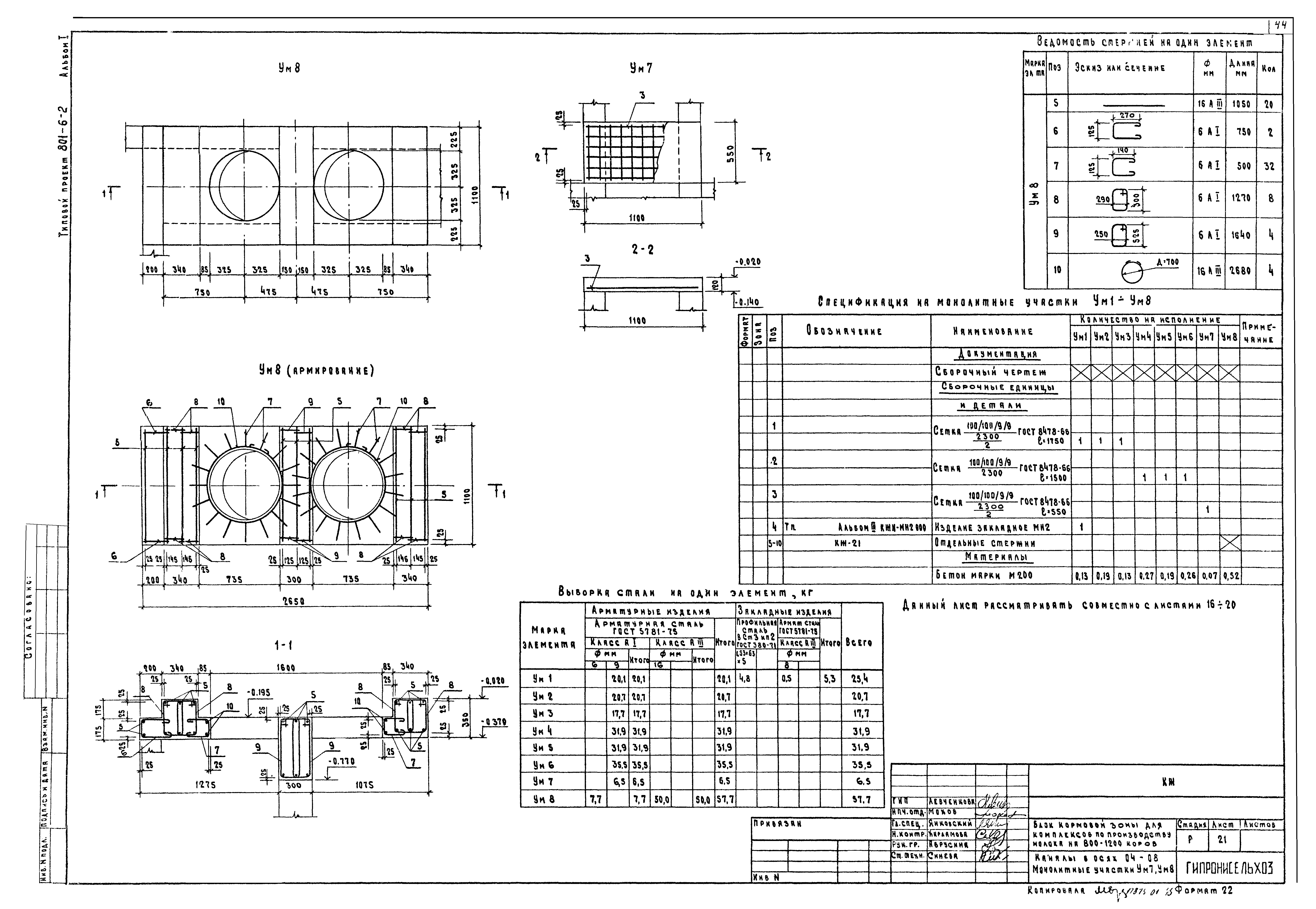
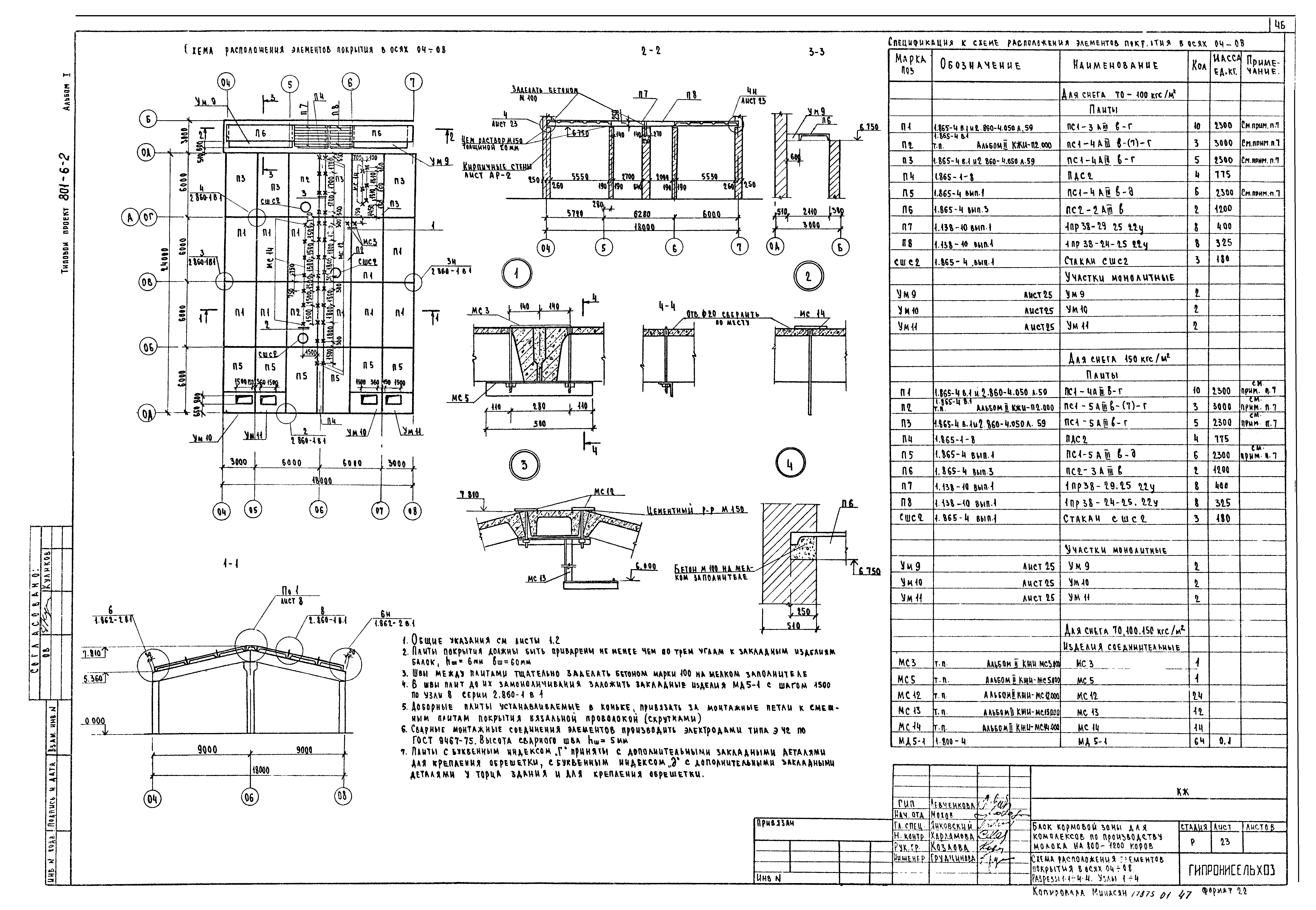
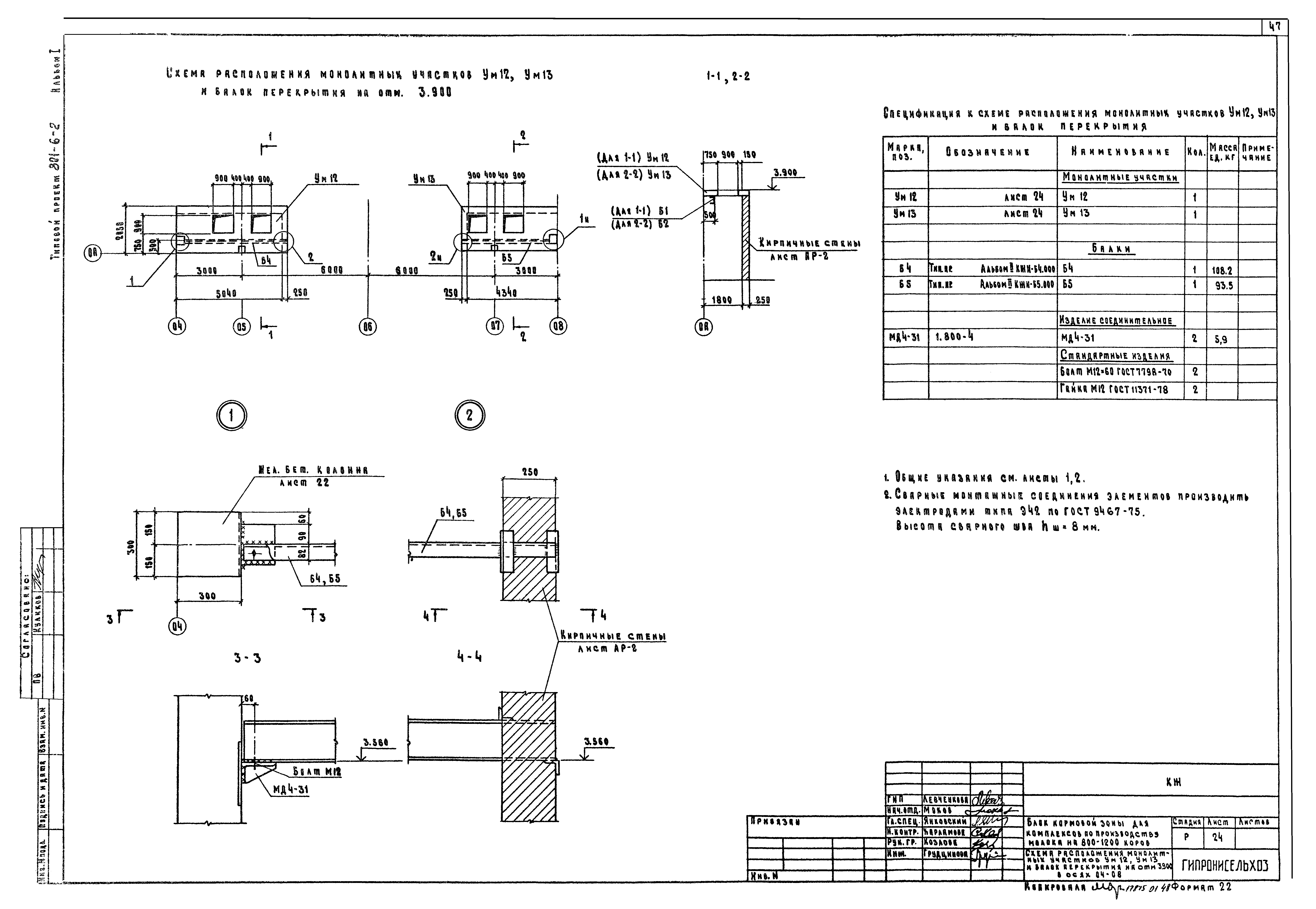
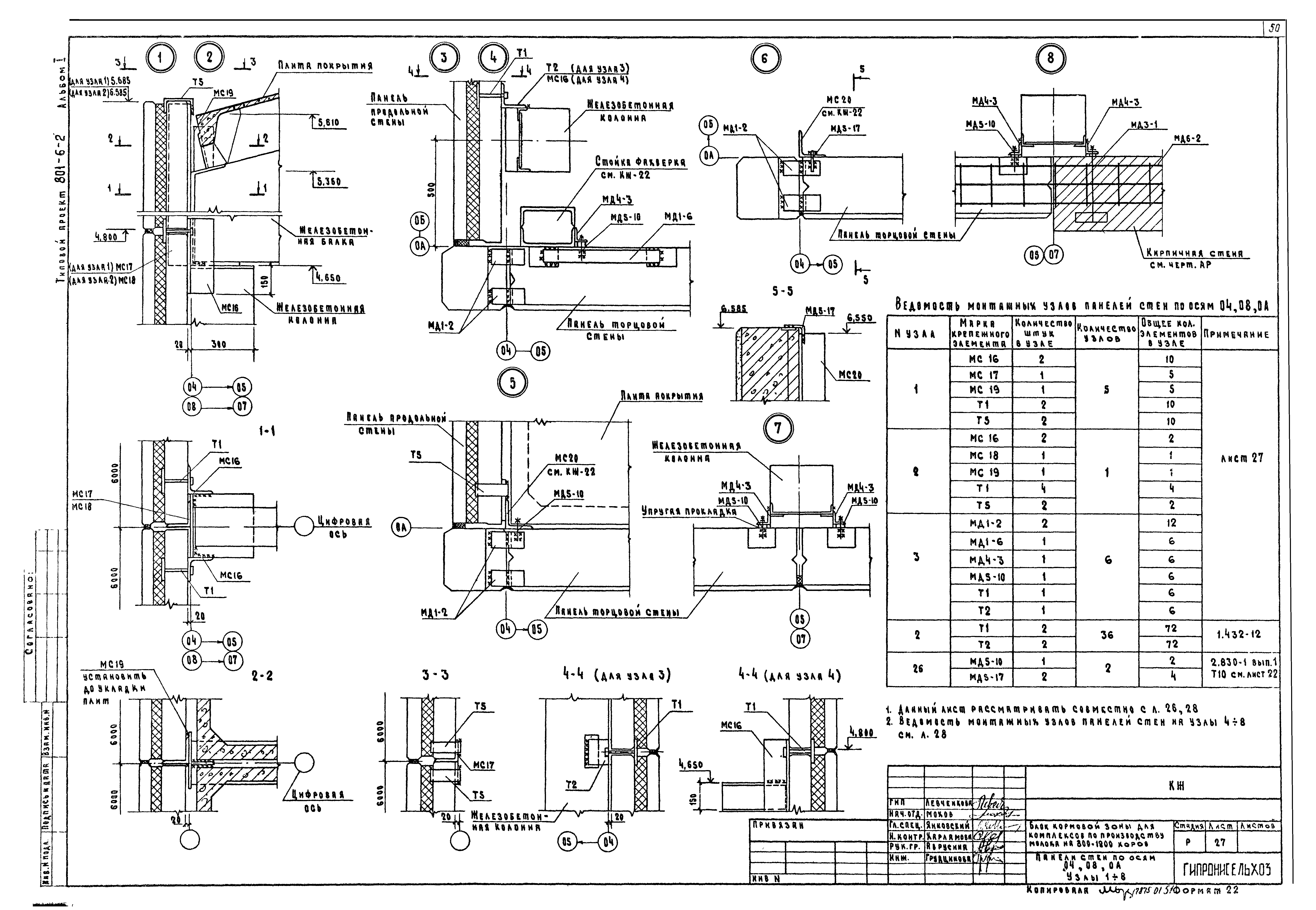
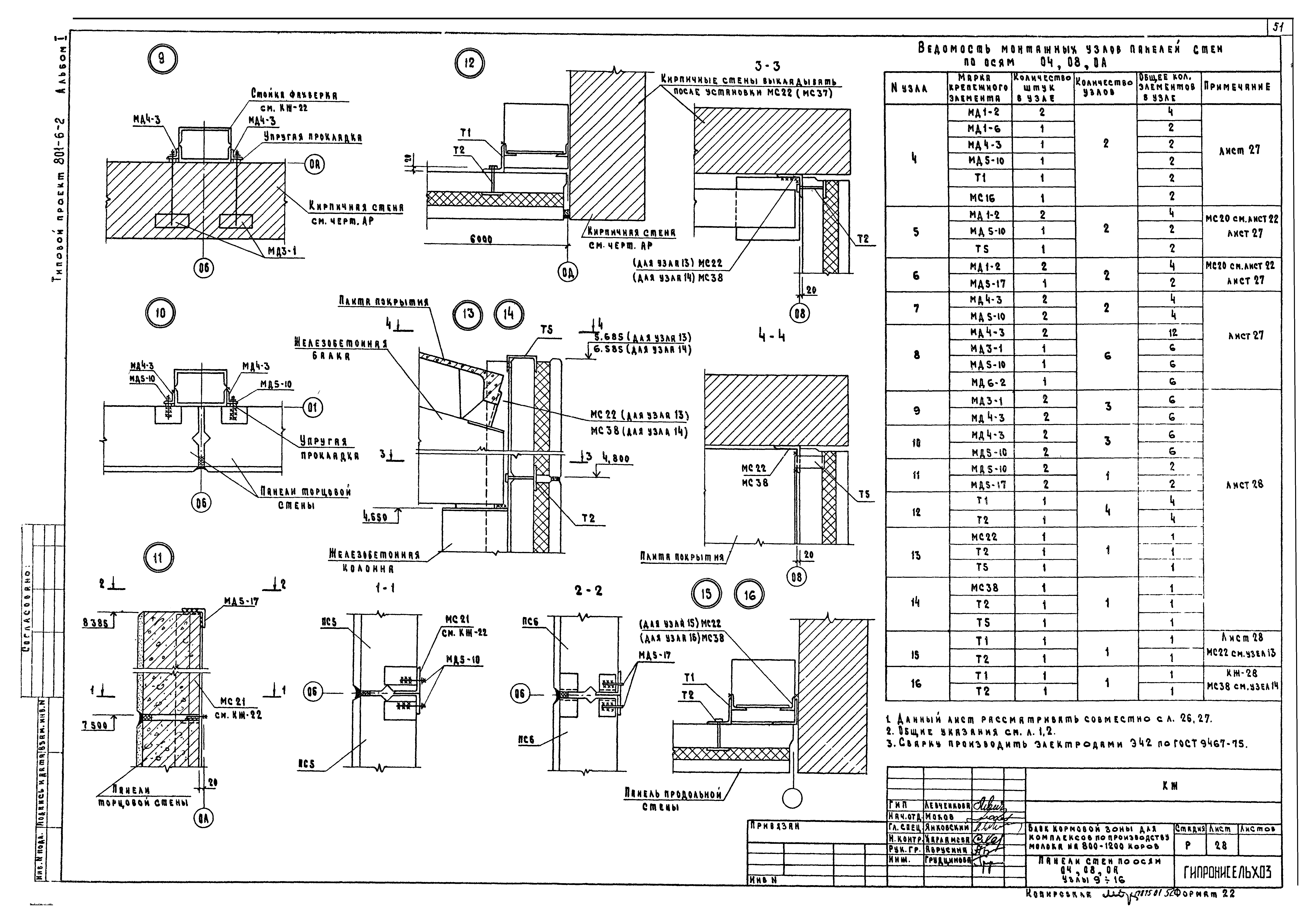
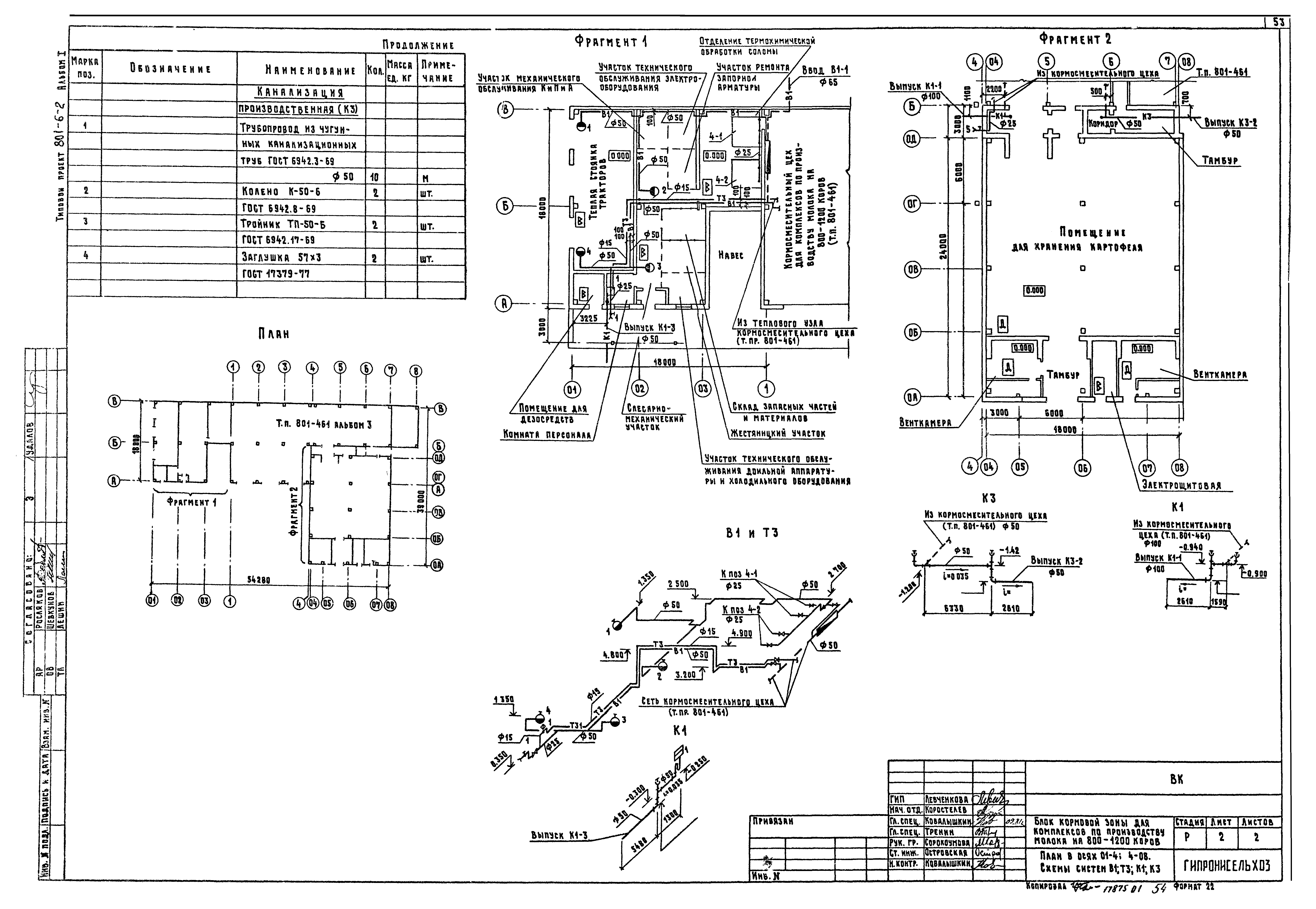
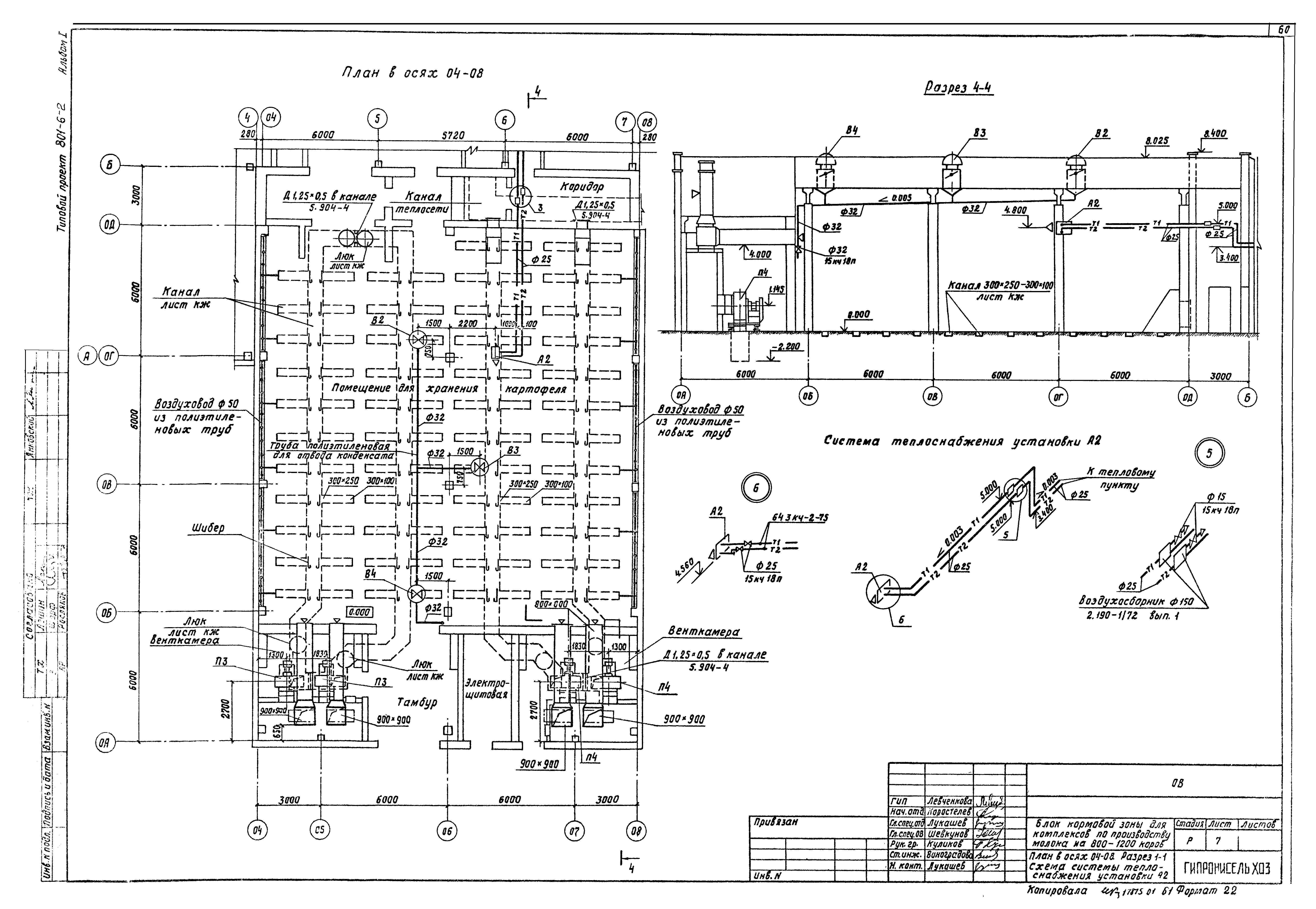
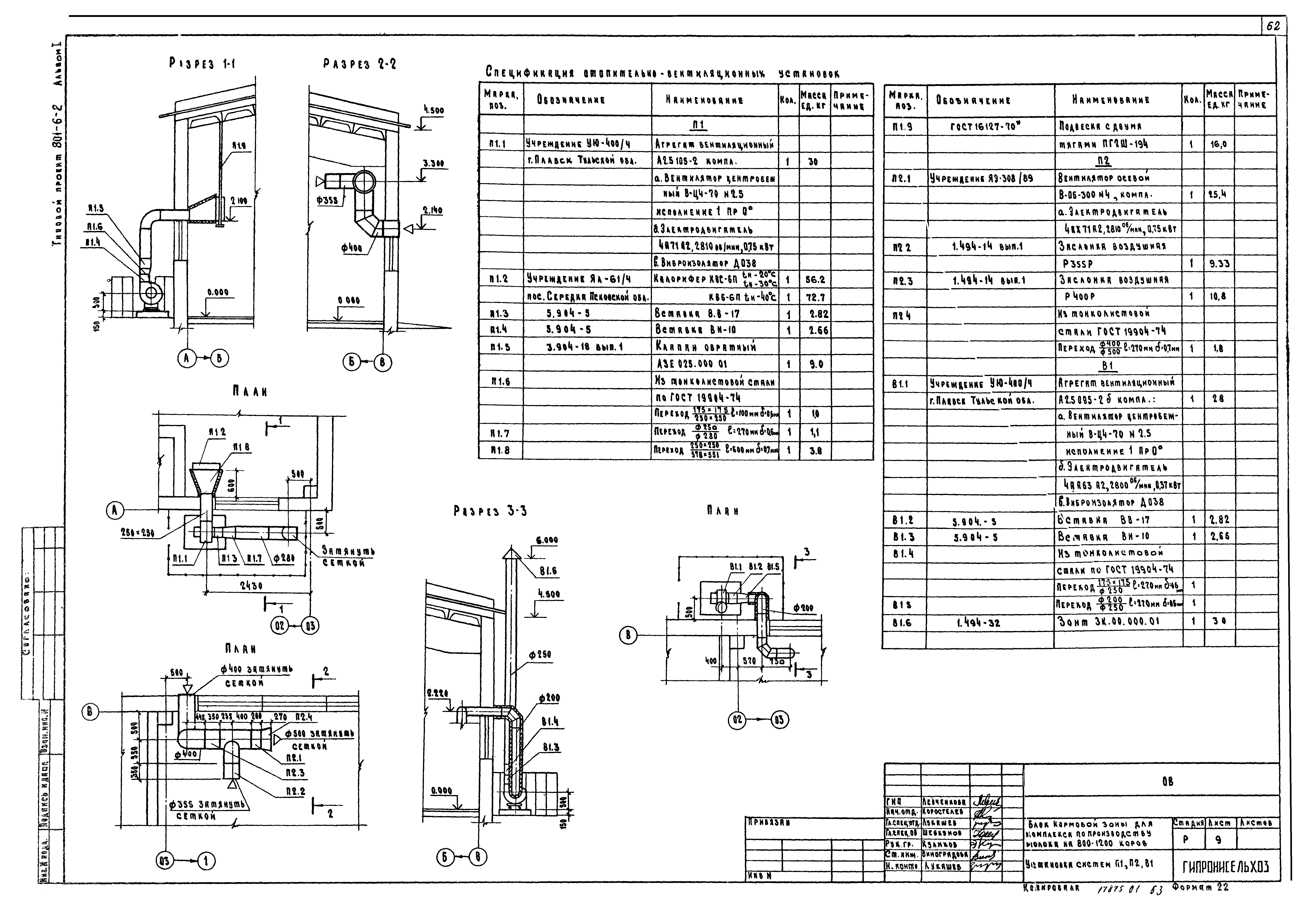
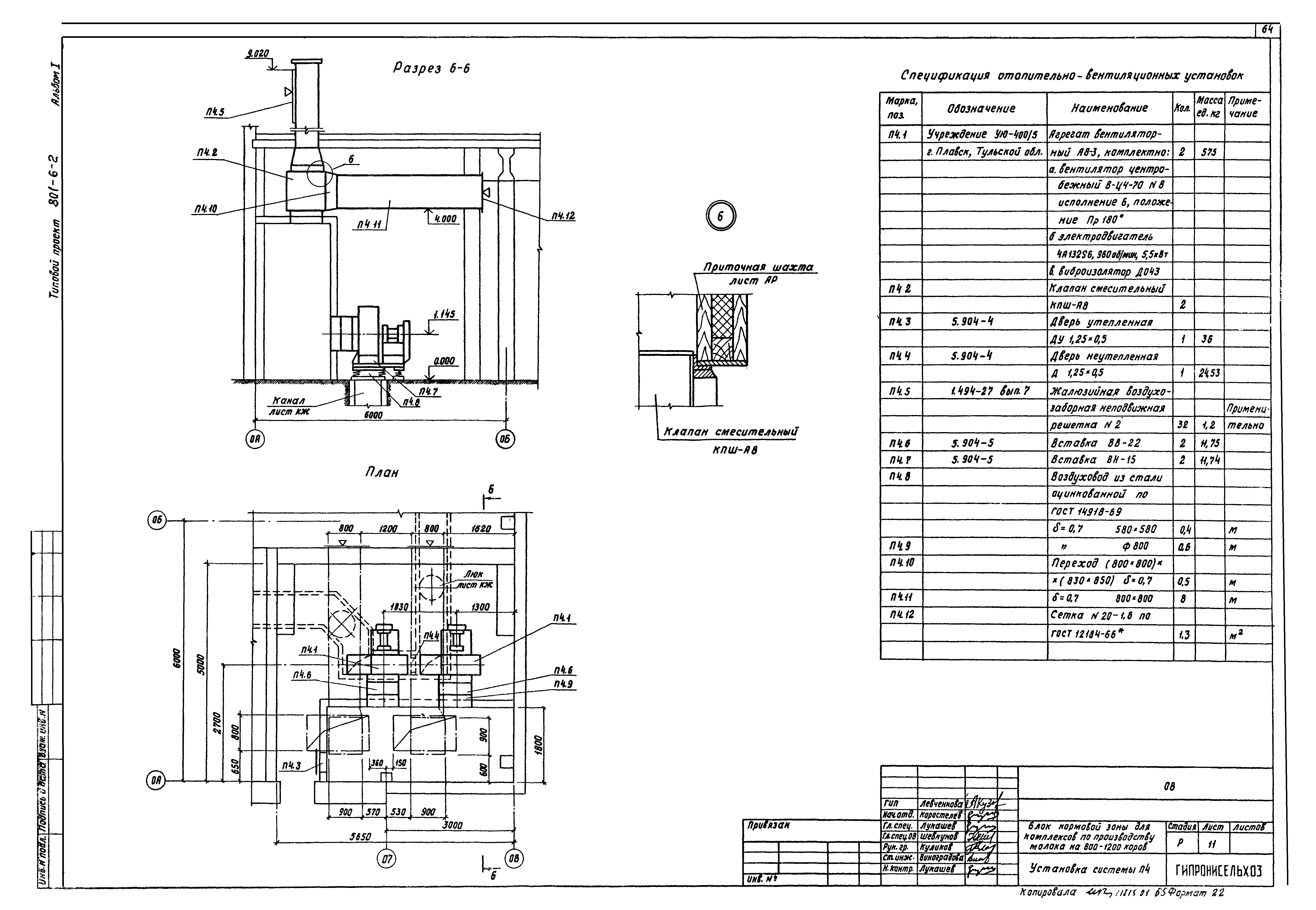
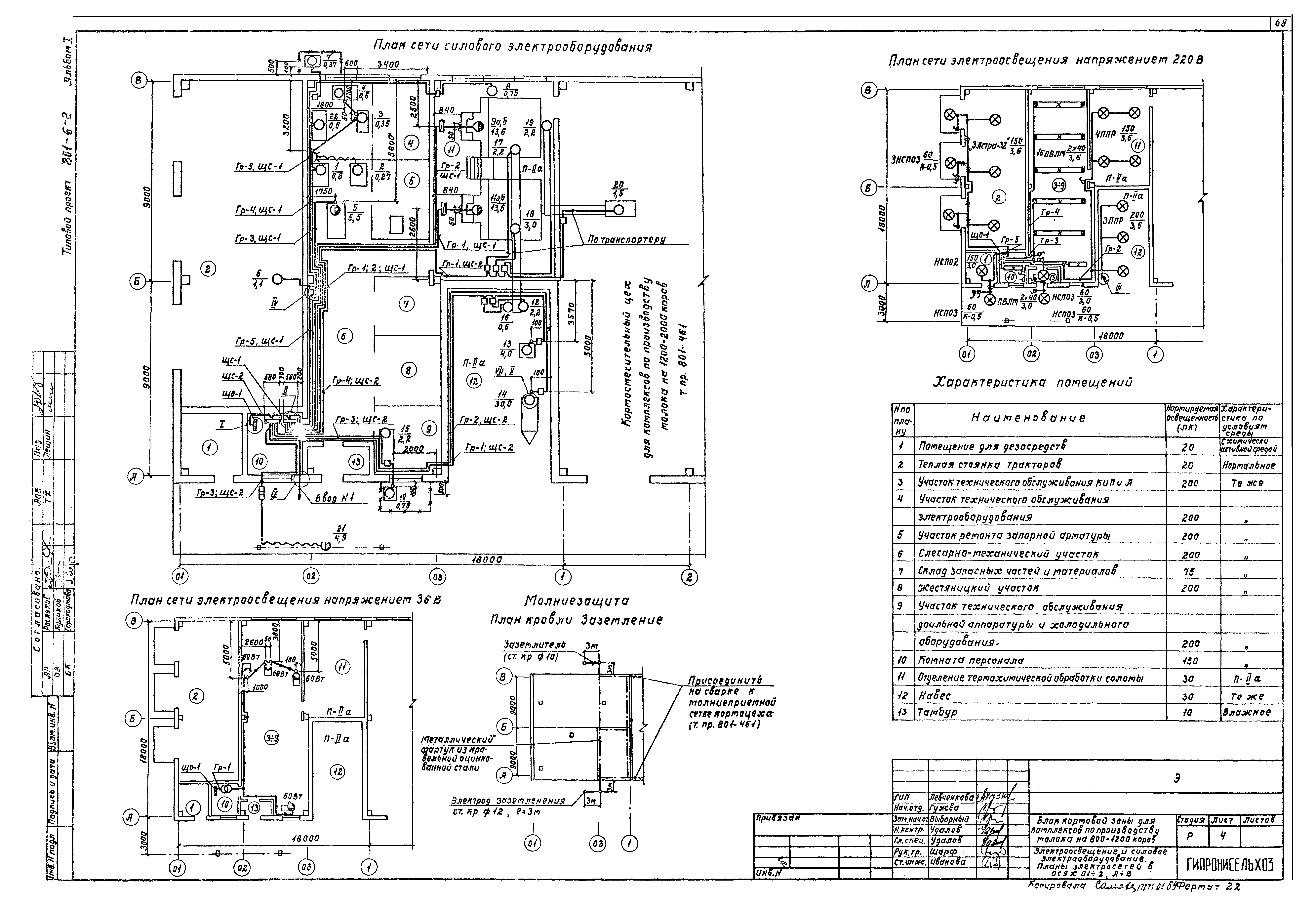
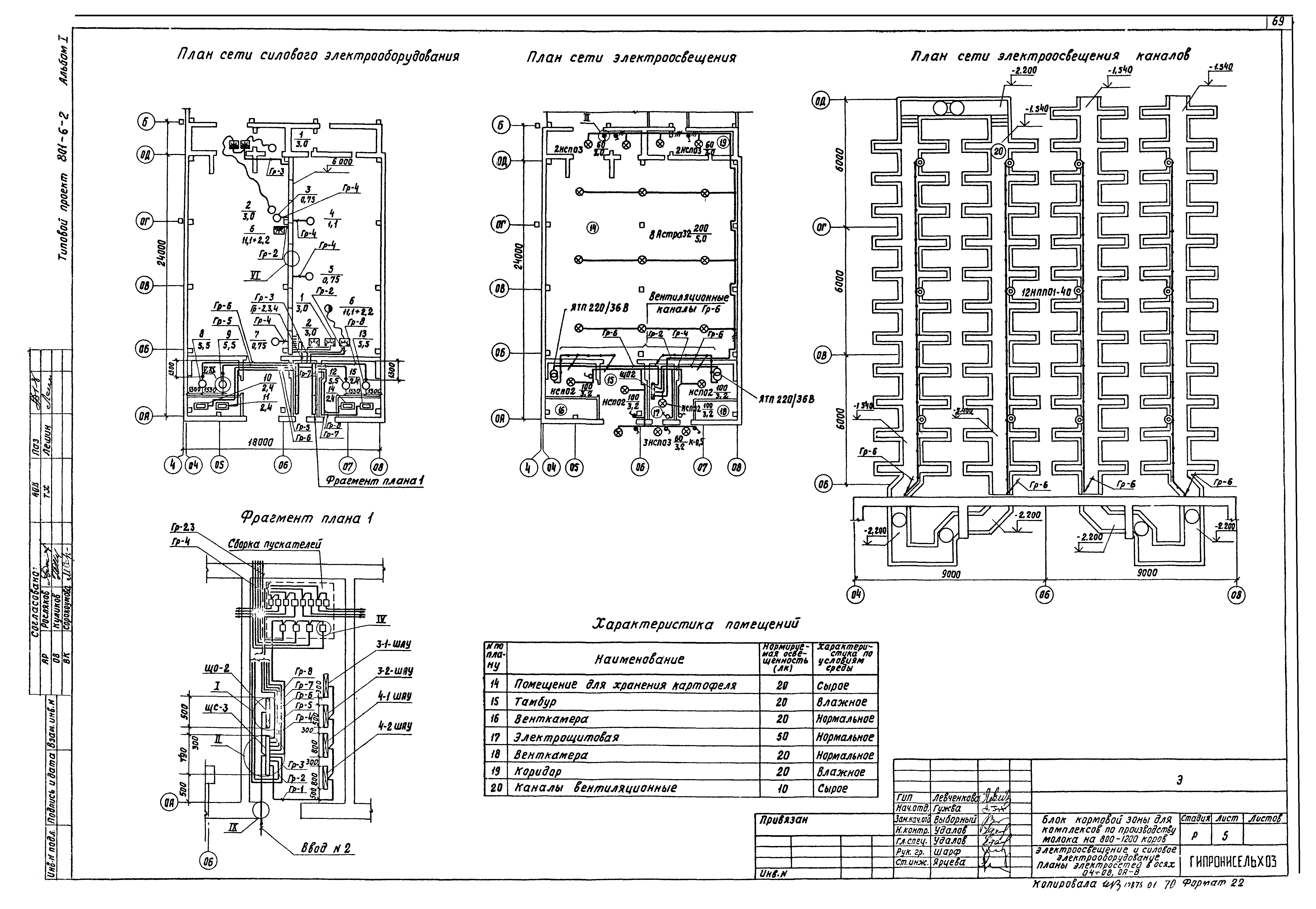
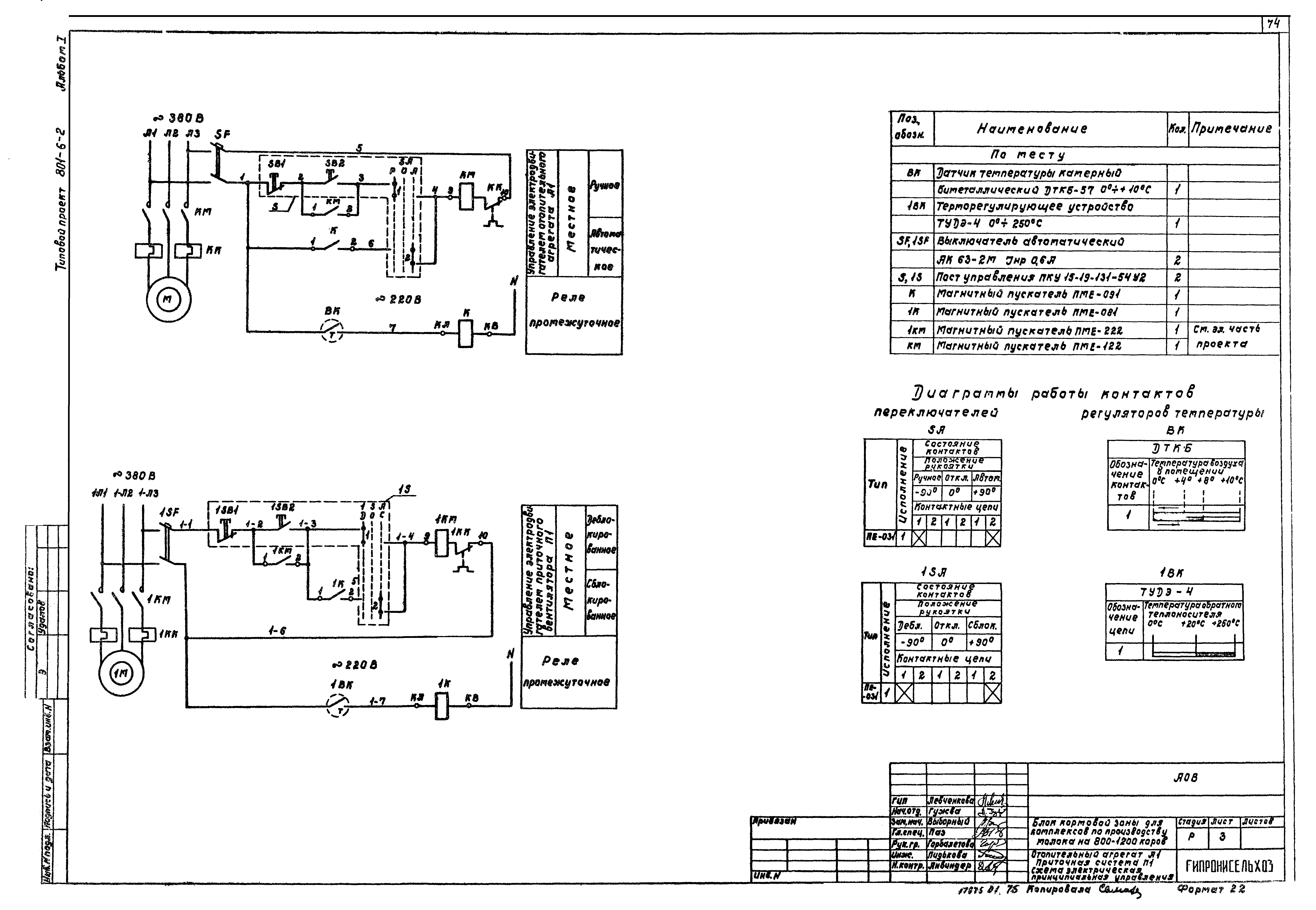
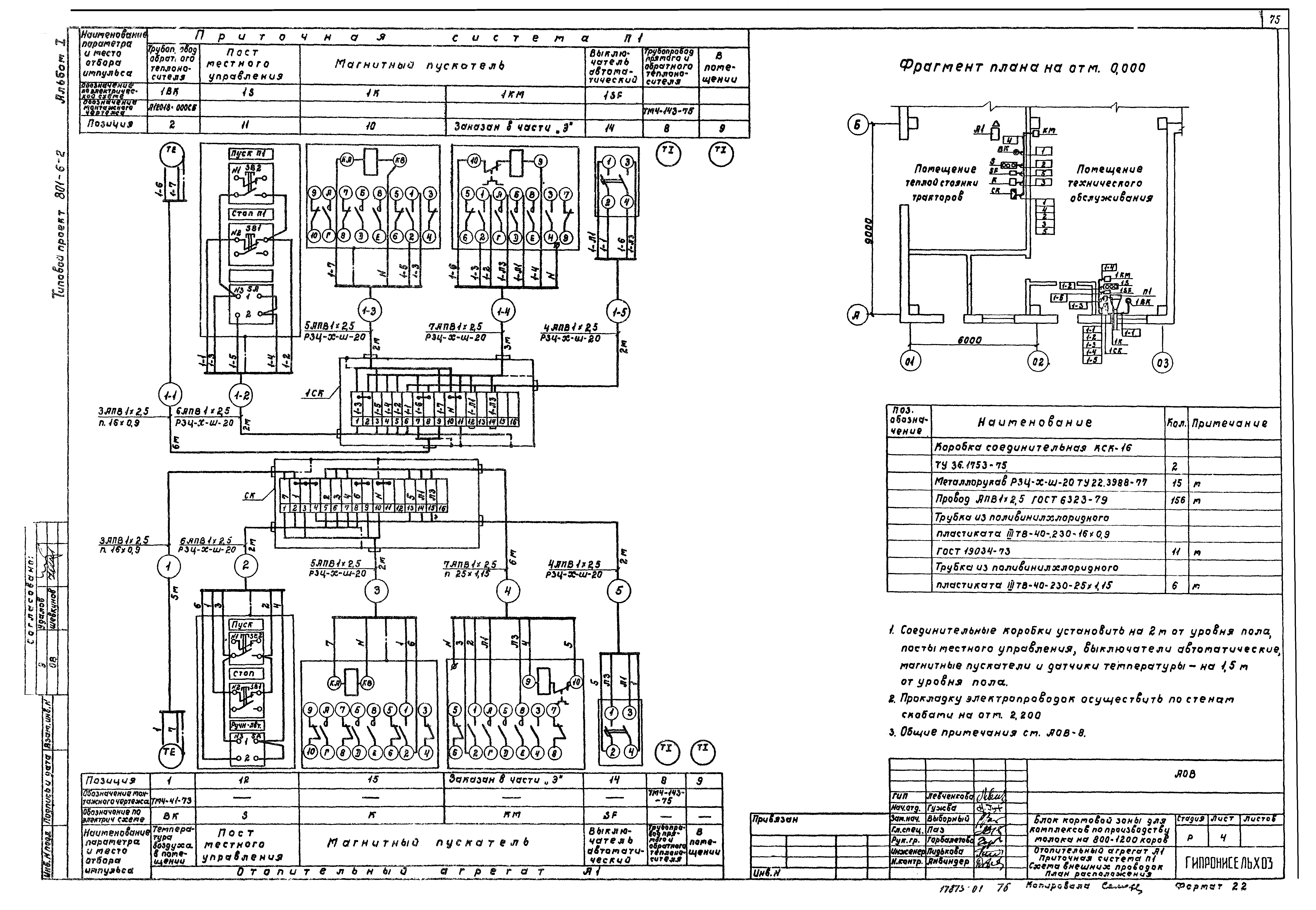
| Оглавление: | Содержание Пояснительная записка Основной комплект рабочих чертежей марки ТХ Общие данные Размещение технологического оборудования. План. Разрезы Размещение технологического оборудования. Спецификация Опора под циклоны ЦОЛ-3 Опора под циклоны ЦОЛ-3. Спецификация План в осях 03 и 1. Аспирационная сеть 2 Основной комплект рабочих чертежей марки АР Общие данные План. Фрагменты 1, 2 Разрезы 1-1; 2-2; 3-3; 4-4. Фрагмент 3 Фрагменты 4, 5. Узлы Фасады План кровли в осях 01 - 1; 04 - 08. Узлы Схема расположения обрешетки, брусков под обрешетку и асбестоцементных листов кровли в осях 01 - 1; 04 - 08. Разрезы План полов. Фрагмент 6, 7 Вентиляционные шахты ВШ-1; ВШ-2; ВШ-3 Схема расположения элементов деревянных подпорных стен. Узлы 1 - 2 Деревянные подпорные стены в осях 04 - 08. Узлы 3 - 10 Основной комплект рабочих чертежей марки КЖ Общие данные Схема расположения фундаментов и фундаментных балок в осях 01 - 1 Фундаменты в осях 01 - 1. Узлы 1 - 4 Схема расположения фундаментов под оборудование приямка каналов, элементов ограждения в осях 01 - 1 Монолитные фундаменты ФОм1 - ФОм4 Схема расположения колонн и балок в осях 01 - 1. Узлы 1 - 3 Схема расположения элементов покрытия в осях 01 - 1. Разрезы 1-1; 2-2. Узлы 1 - 4 Схемы расположения панелей стен по осям А и В между осями 01 - 1 Панели стен в осях 01 - 1. Узлы 1 - 5 Схема расположения фундаментов и фундаментных балок в осях 04 - 08 Фундаменты в осях 04 - 08. Фрагмент 1 Фундаменты в осях 04 - 08. Фрагмент 2 Фундаменты в осях 04 - 08. Сечения 4-4 - 11-11 Фундаменты в осях 04 - 08. Сечения 12-12; 13-13. Узлы 1, 2 Схема расположения каналов в осях 04 - 08 Схема расположения плит и решеток покрытия каналов в осях 04 - 08 Каналы в осях 04 - 08. Фрагменты 1 - 4 Каналы в осях 04 - 08. Разрезы 1-1 - 14-14 Каналы в осях 04 - 08. Монолитные участки Ум1 - Ум6 Каналы в осях 04 - 08. Монолитные участки Ум7, Ум8 Схема расположения колонн, балок, стоек и насадок торцевого фахверка в осях 04 - 08 Схема расположения элементов покрытия в осях 04- 08. Разрезы 1-1 - 4-4. Узлы 1 - 4 Схема расположения монолитных участков Ум12, Ум13 и балок перекрытия на отм. 3.900 в осях 04 - 08 Покрытие в осях 04 - 08. Монолитные участки Ум9 - Ум13 Схема расположения панелей стен по осям 04, 08, 0А между осями 04 - 08 Панели стен по осям 04, 08, 0А, Узлы 1 - 8 Панели стен по осям 04, 08, 0А. Узлы 9 - 16 Основной комплект рабочих чертежей марки ВК Общие данные План в осях 01 - 4; 4 - 08. Схемы систем В1, Т3, К1, К3 Основной комплект рабочих чертежей марки ОВ Общие данные План в осях 01-1. Схема системы отопления. Схемы систем вентиляции П1, П2, В1. Схема системы теплоснабжения установок А1, П1 План в осях 04 - 08. Разрез 1-1. Схема системы теплоснабжения установки А2 Схемы систем П3, П4 Установки систем П1, П2, В1 Установки системы П3 Установки системы П4 Основной комплект рабочих чертежей марки Э Общие данные Электроосвещение и силовое электрооборудование. Планы электросетей в осях 01 - 2, А - В Электроосвещение и силовое электрооборудование. Планы электросетей в осях 04 - 08, 0А - Б Расчетная схема электросети напряжением 380/220 В Основной комплект рабочих чертежей марки АОВ Общие данные Отопительный агрегат А1. Приточная система П1. Схема функциональная Отопительный агрегат А1. Приточная система П1. Схема электрическая принципиальная управления Отопительный агрегат А1. Приточная система П1. Схема внешних проводок. План расположения Приточная система П3-1 (П3-2; П4-1; П4-2). Схема функциональная Приточная система П3-1 (П3-2; П4-1; П4-2). Схема внешних проводок Приточные системы П3-1, П3-2, П4-1, П4-2. План расположения. Схема подключения Основной комплект рабочих чертежей марки СС План на отм. 0.000 с сетями связи и сигнализации |
| Разработан: | ГипроНИсельхоз (Институт Гипронисельхоз ) |
| Утверждён: | 29.04.1980 Минсельхоз СССР (USSR Minselkhoz 44) |















































































