Скачать Типовой проект 801-6-9.84 Альбом II. Технология и механизация производственных процессов. Внутренние водопровод и канализация. Отопление и вентиляция. Электротехнические чертежи. Автоматизация санитарно-технических системДата актуализации: 01.01.2021
|
| Обозначение: | Типовой проект 801-6-9.84 |
| Обозначение англ: | 801-6-9.84 |
| Статус: | действует |
| Название рус.: | Альбом II. Технология и механизация производственных процессов. Внутренние водопровод и канализация. Отопление и вентиляция. Электротехнические чертежи. Автоматизация санитарно-технических систем |
| Дата добавления в базу: | 01.09.2013 |
| Дата актуализации: | 01.01.2021 |
| Дата введения: | 30.09.1984 |
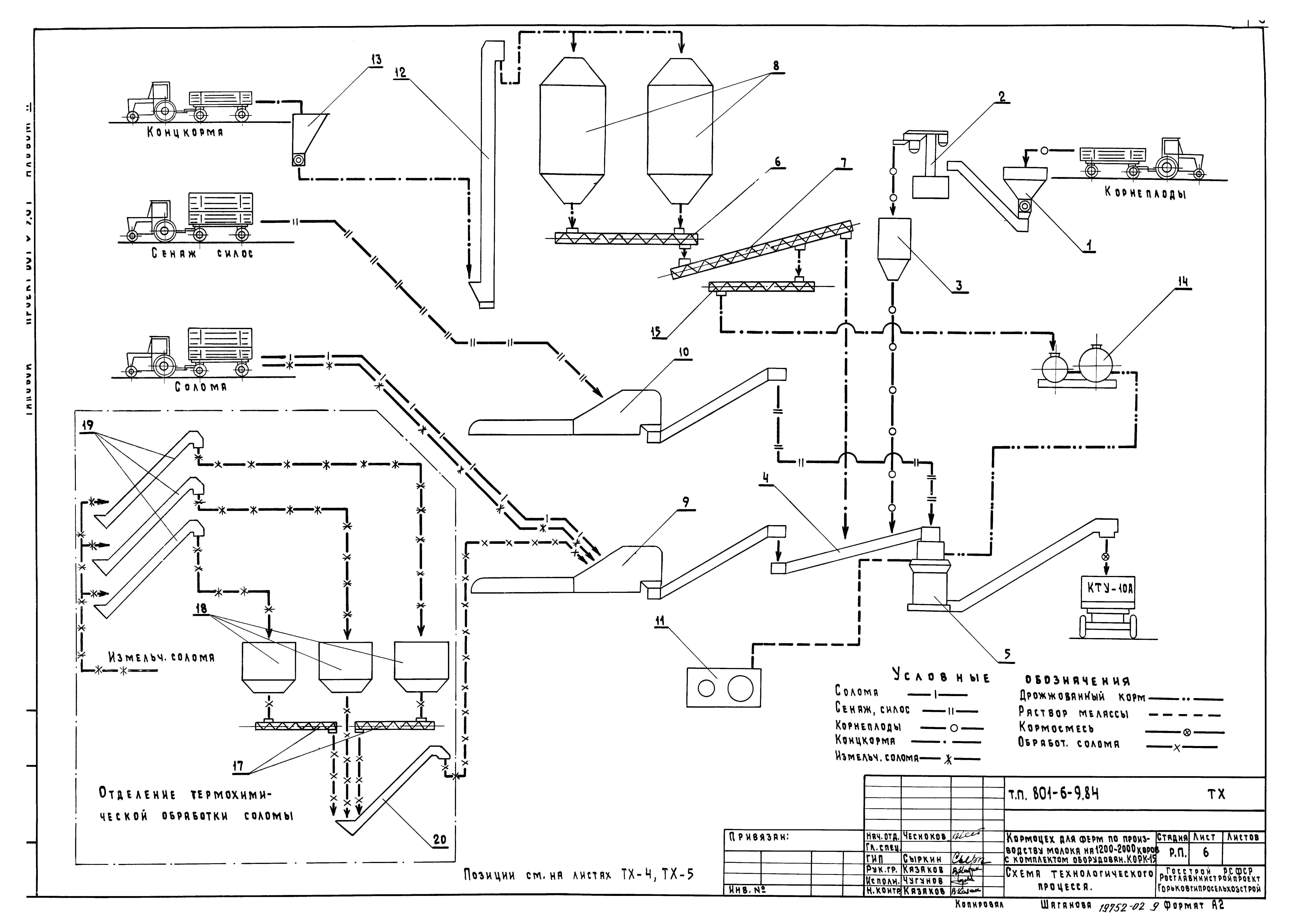
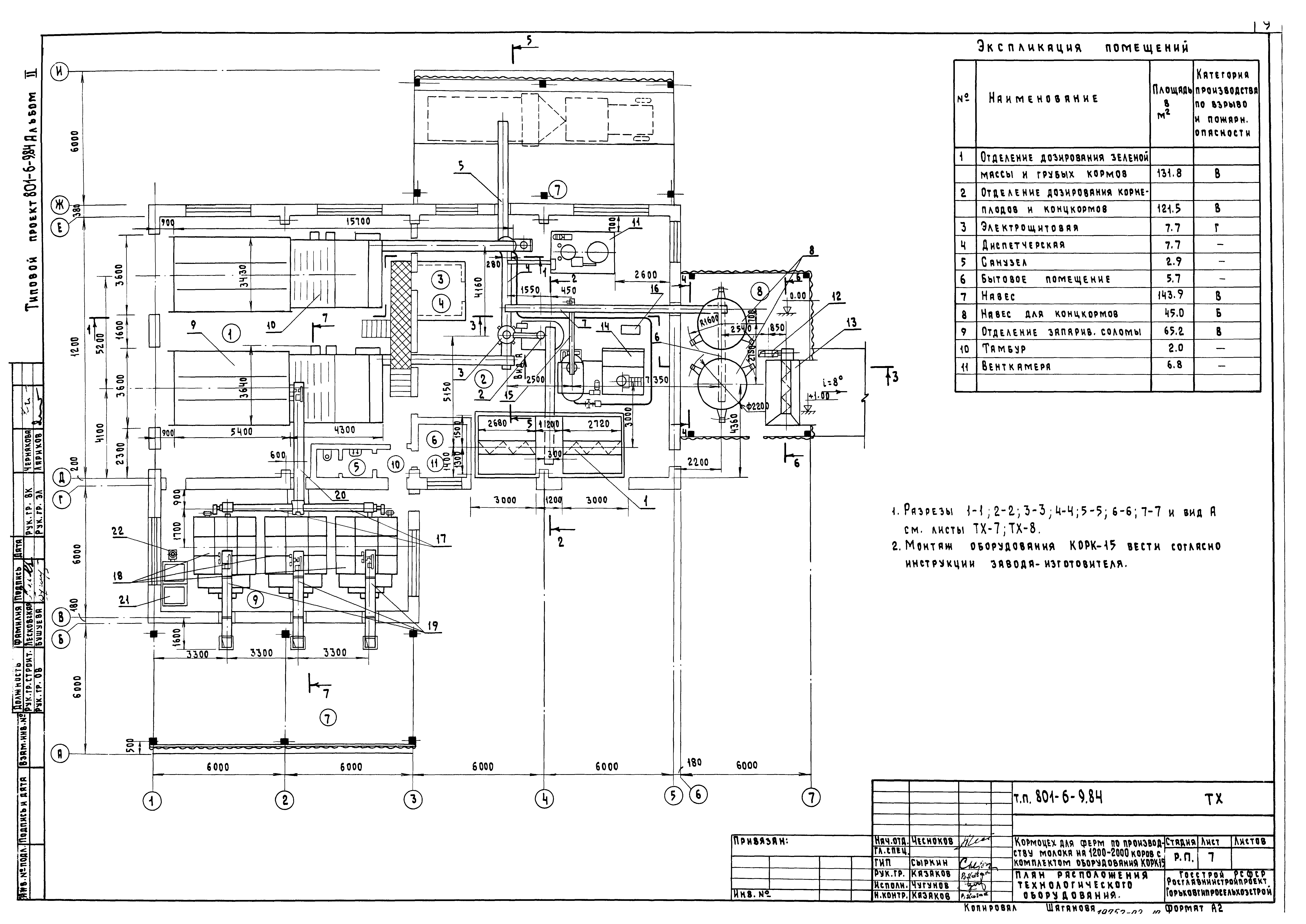
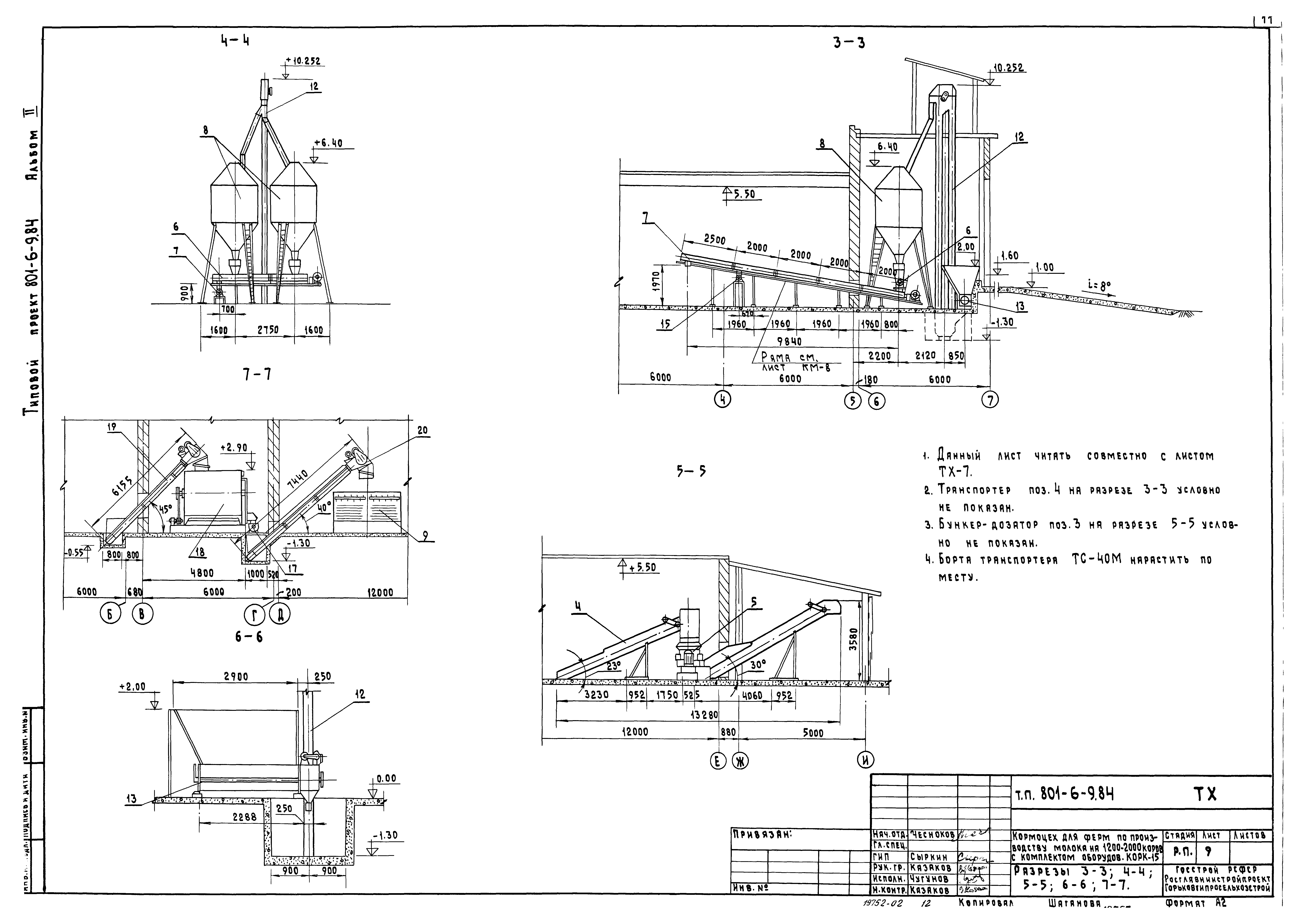
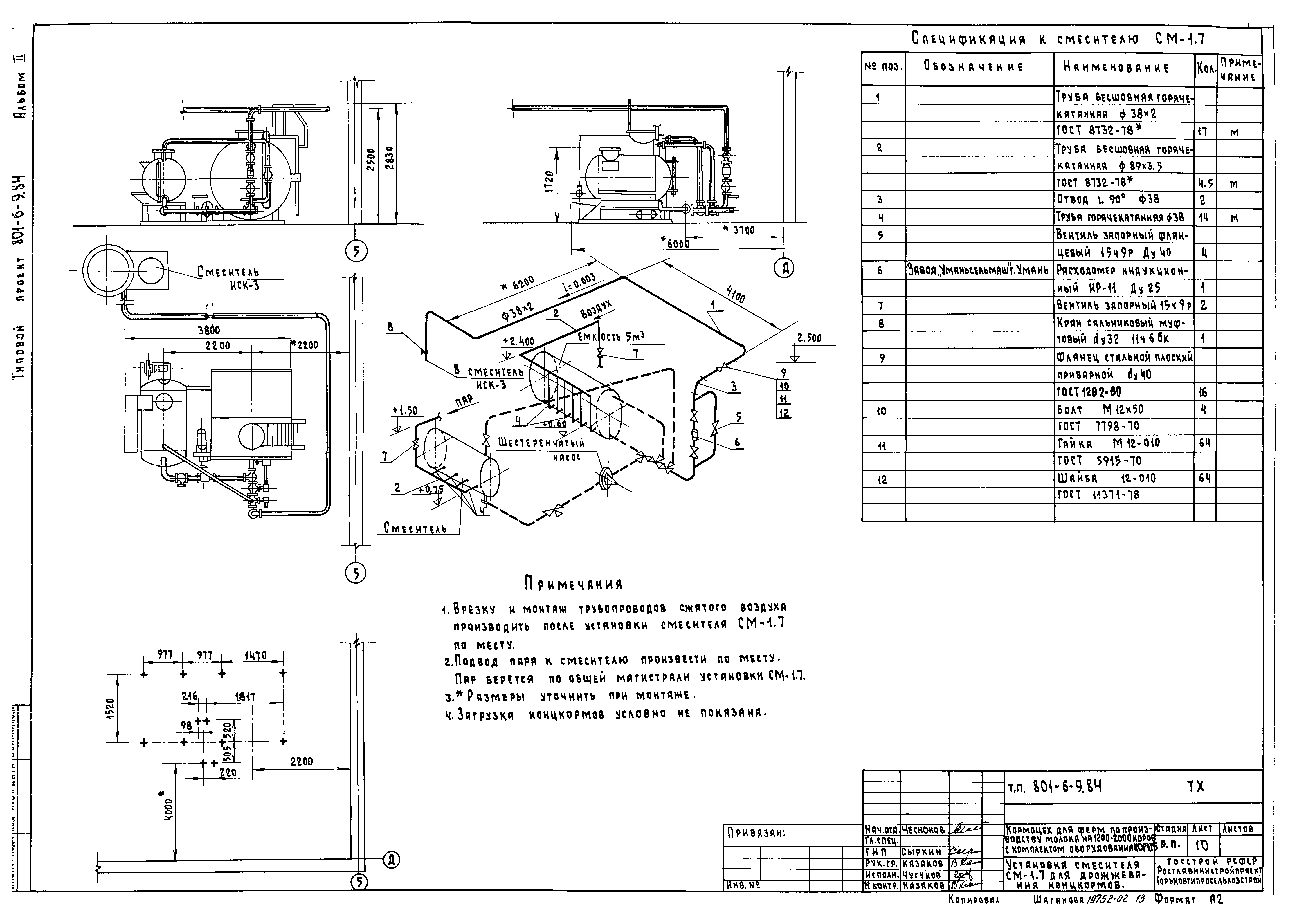
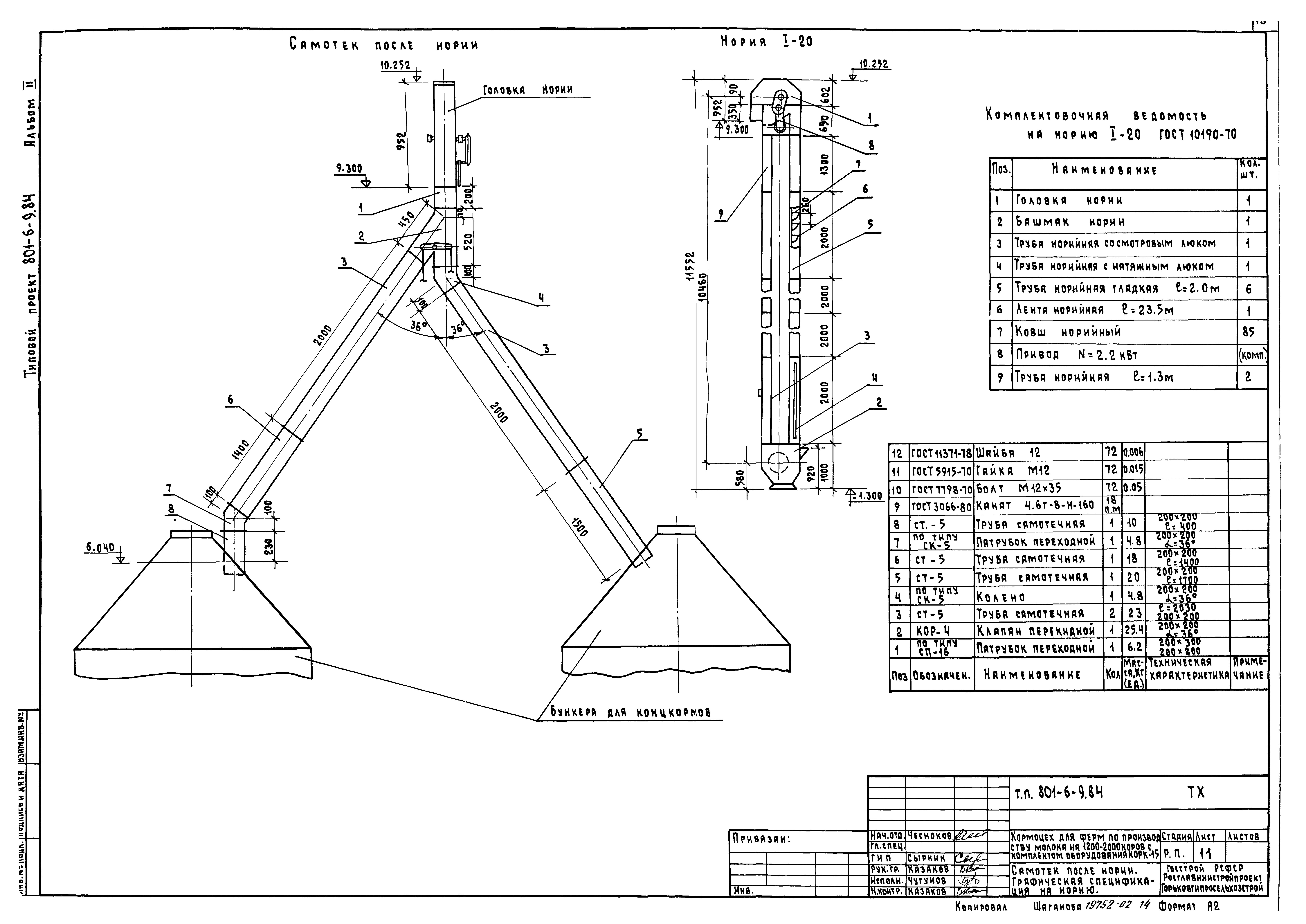
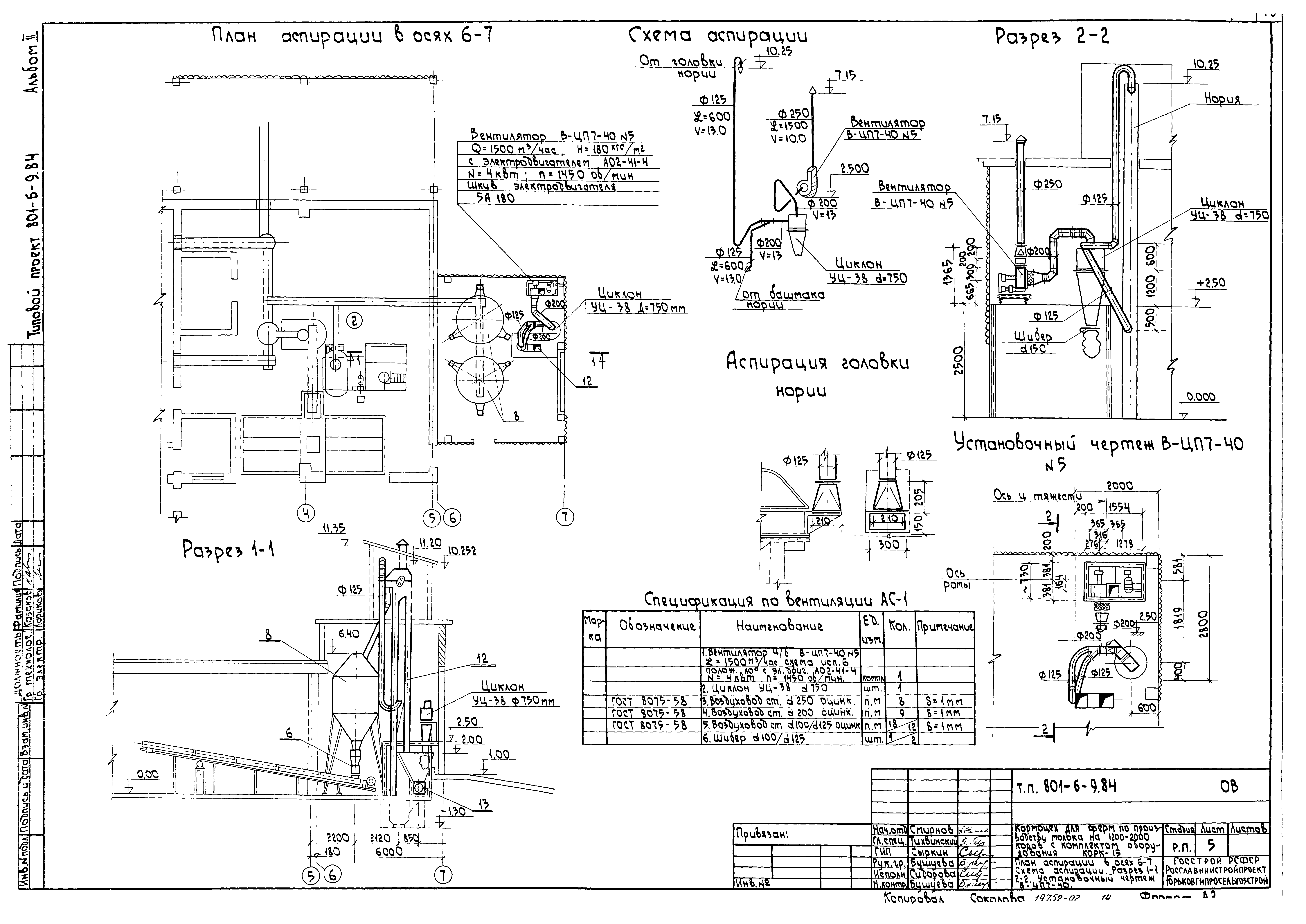
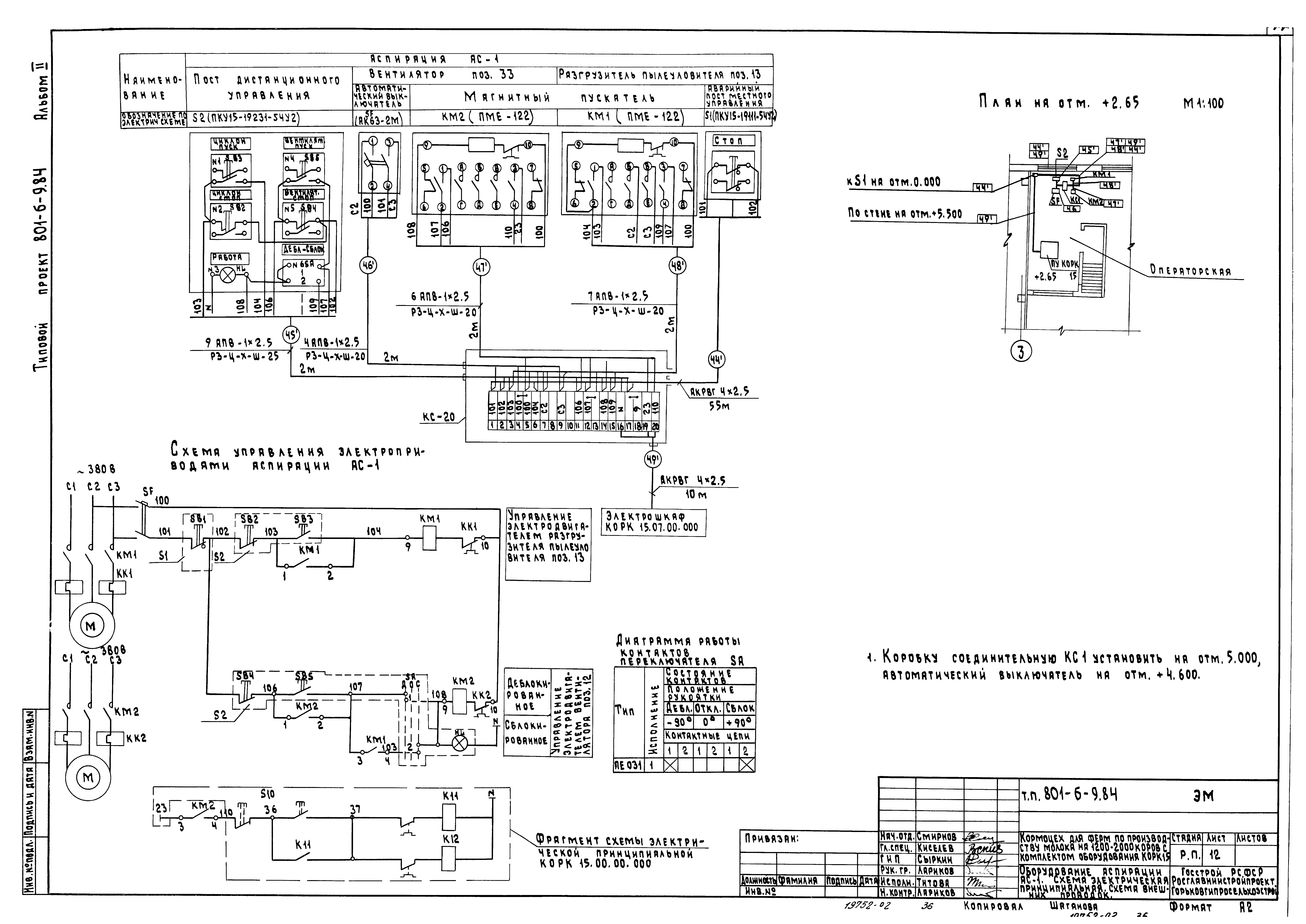
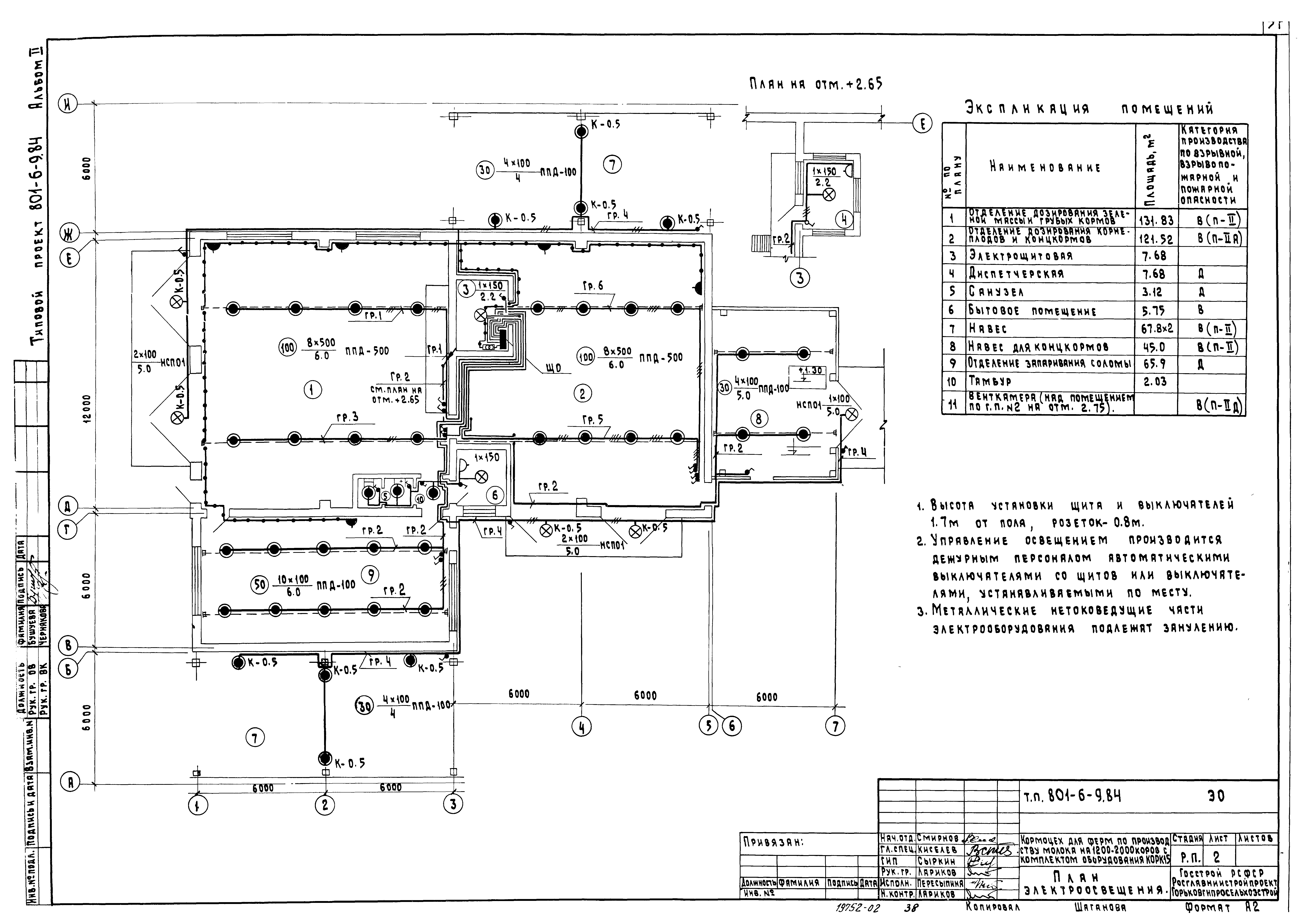
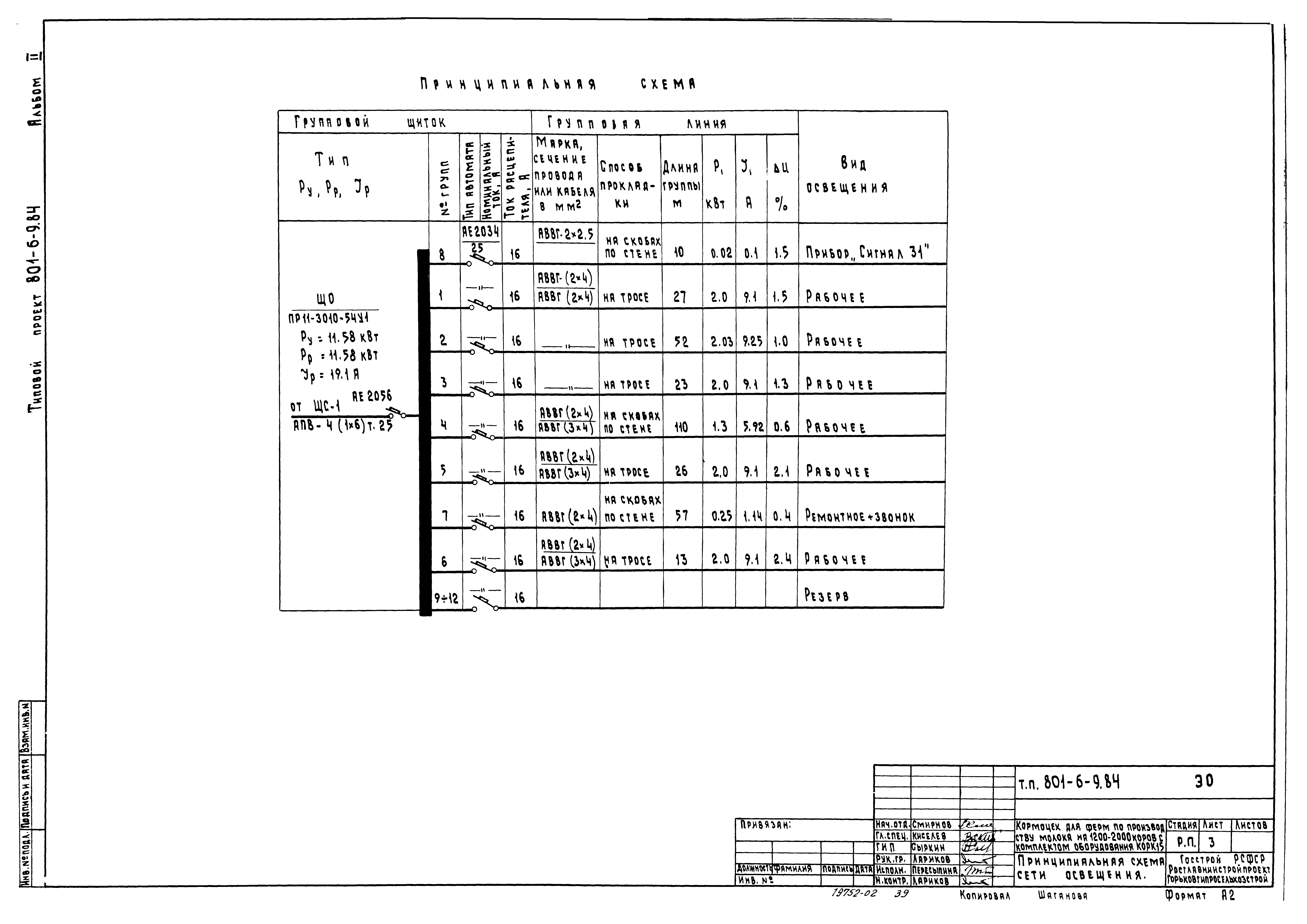
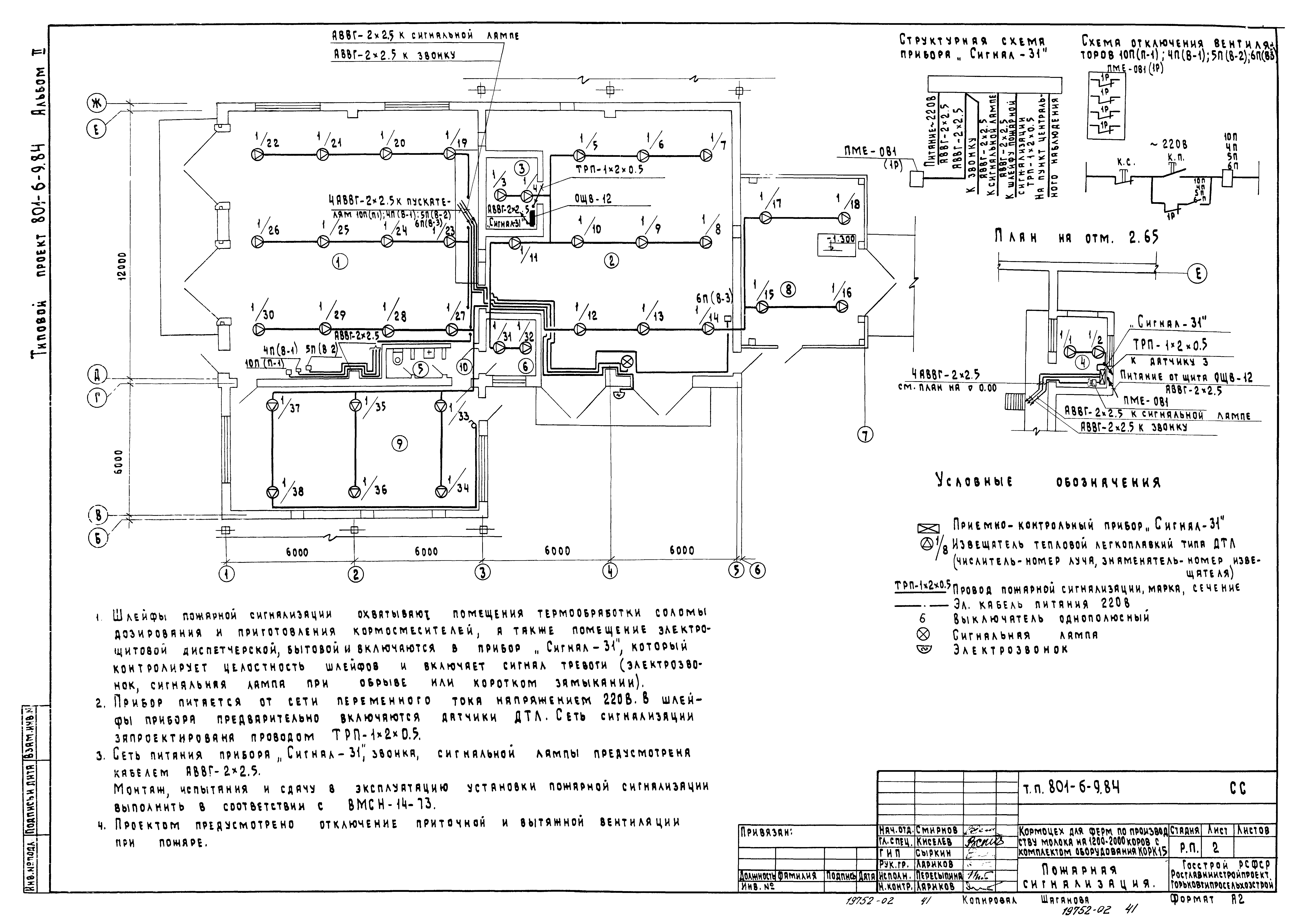
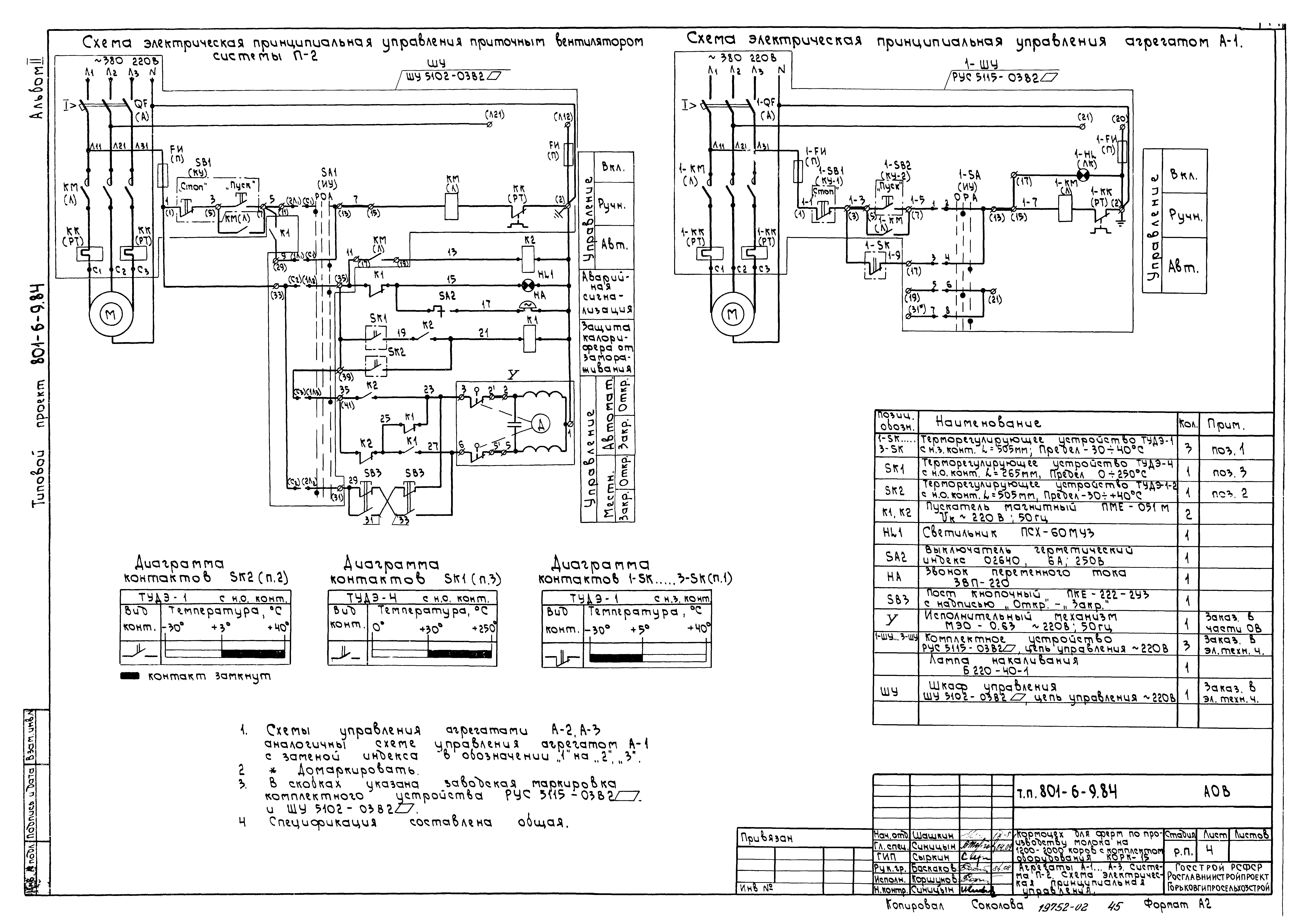
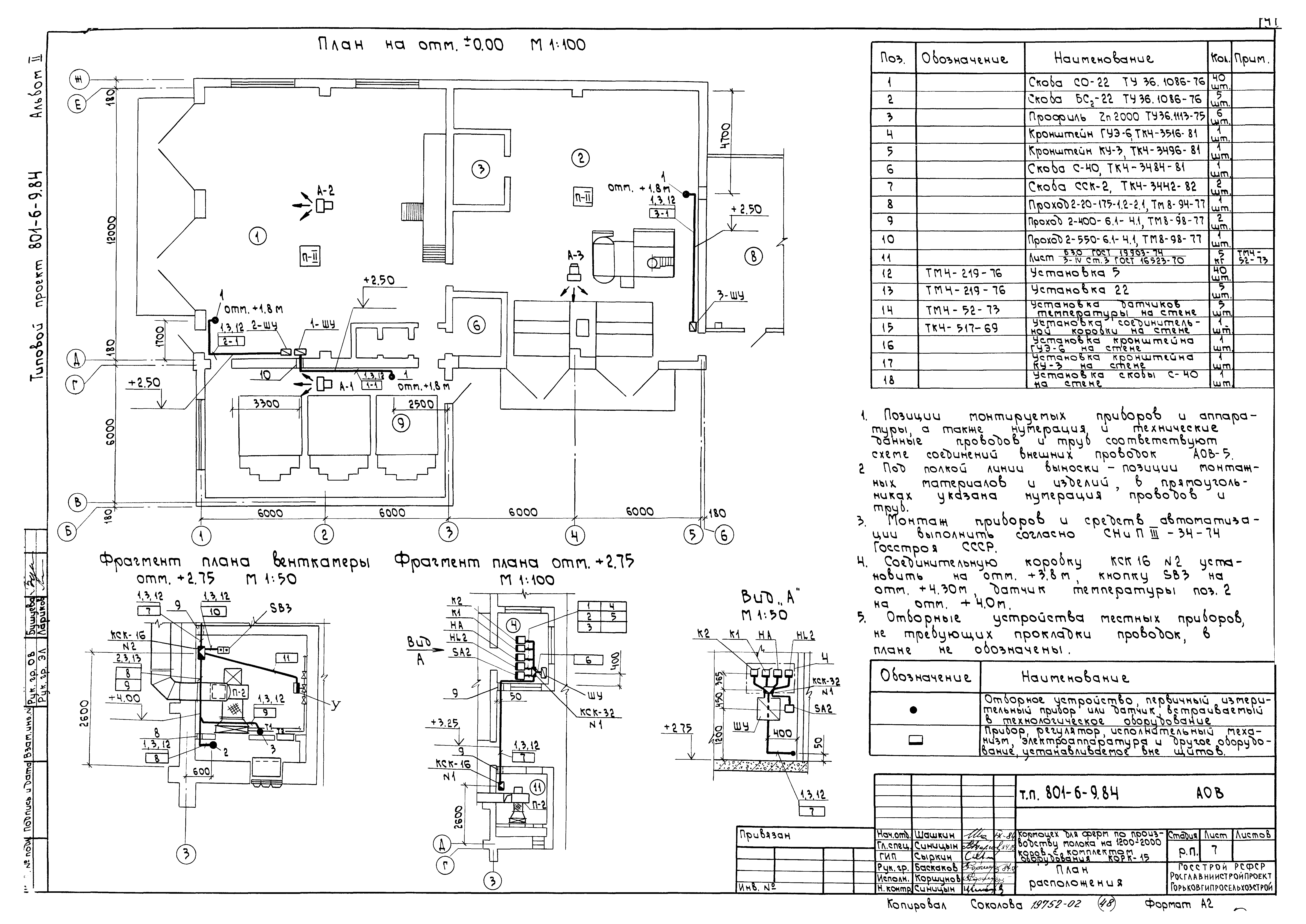
| Оглавление: | Содержание альбома Основной комплект рабочих чертежей марки ТХ Пояснительная записка Спецификация оборудования Схема технологического процесса План расположения технологического оборудования Разрезы 1-1; 2-2. Крепежные узлы Разрезы 3-3; 4-4; 5-5; 6-6; 7-7 Установка смесителя СМ-1.7 Самотек после нории. Графическая спецификация на норию Основной комплект рабочих чертежей марки ОВ Общие данные План отопления и вентиляции в осях 1 - 5. План на отм. +2.65 Схема системы отопления. Схема теплоснабжения отопительно-вентиляционных агрегатов. Схемы систем П-1; ВС-1; 2; 3 План аспирации в осях 6 - 7. Схема аспирации. Разрез 1-1; 2-2. Установочный чертеж В-ЦП7-40 План на отм. +2.75. Разрез 1-1; 2-2. Схема приточной системы П-2. Схема обвязки калорифера Основной комплект рабочих чертежей марки ВК Общие данные План с сетями водопровода и канализации Схемы водопровода и канализации Основной комплект рабочих чертежей марки ЭМ Общие данные План силовых электрических сетей Силовое электрооборудование. Расчетная схема Кабельный журнал Молниезащита Схема электрическая трубных проводок КОРК-15 Клеммные ряды шкафа управления КОРК-15 Оборудование аспирации АС-1. Схема электрическая принципиальная. Схема внешних проводок Основной комплект рабочих чертежей марки ЭО Общие данные План электроосвещения Принципиальная схема освещения Основной комплект рабочих чертежей марки СС План сети телефона и радио на отм. 0.000; +2.65 Пожарная сигнализация Основной комплект рабочих чертежей марки АОВ Общие данные Схема функциональная Агрегаты А-1 - А-3. Система П-2. Схема электрическая принципиальная управления Агрегаты А-1 - А-3. Система П-2. Схема соединений внешних проводок Узел ввода тепловой сети. Автоматизация План расположения |
| Разработан: | Горьковгипросельхозстрой |
| Утверждён: | 12.05.1984 Минсельхоз РСФСР (Russian Federation Minselkhoz 2) |














































