Скачать Типовой проект 801-9-3 Альбом I. Общая пояснительная записка. Технология производства. Архитектурно-строительные решения. Конструкции железобетонные. Внутренний водопровод и канализация. Отопление и вентиляция. Электрооборудование. АвтоматизацияДата актуализации: 01.01.2021
|
| Обозначение: | Типовой проект 801-9-3 |
| Обозначение англ: | 801-9-3 |
| Статус: | действует |
| Название рус.: | Альбом I. Общая пояснительная записка. Технология производства. Архитектурно-строительные решения. Конструкции железобетонные. Внутренний водопровод и канализация. Отопление и вентиляция. Электрооборудование. Автоматизация |
| Дата добавления в базу: | 01.09.2013 |
| Дата актуализации: | 01.01.2021 |
| Дата введения: | 13.08.1981 |
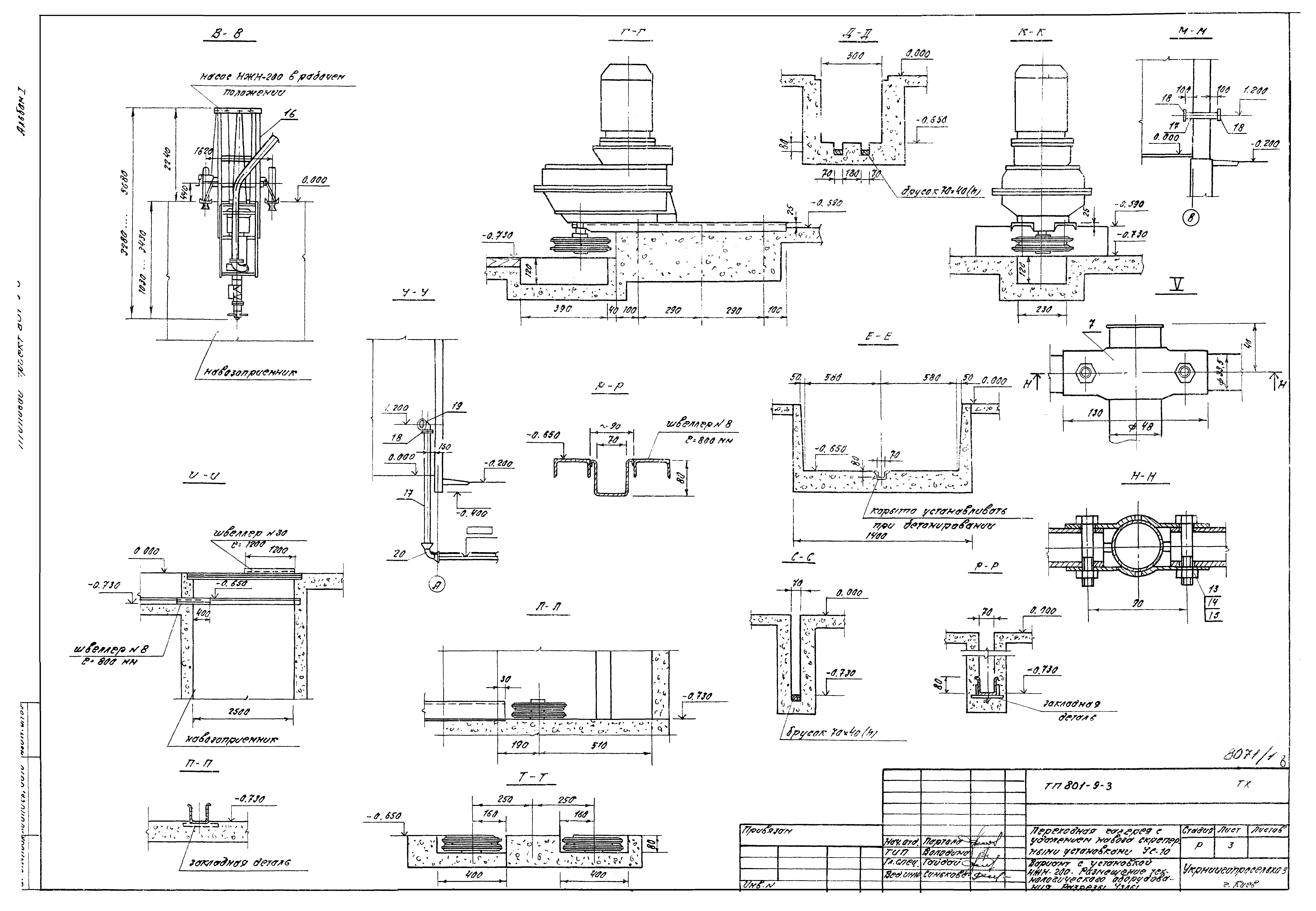
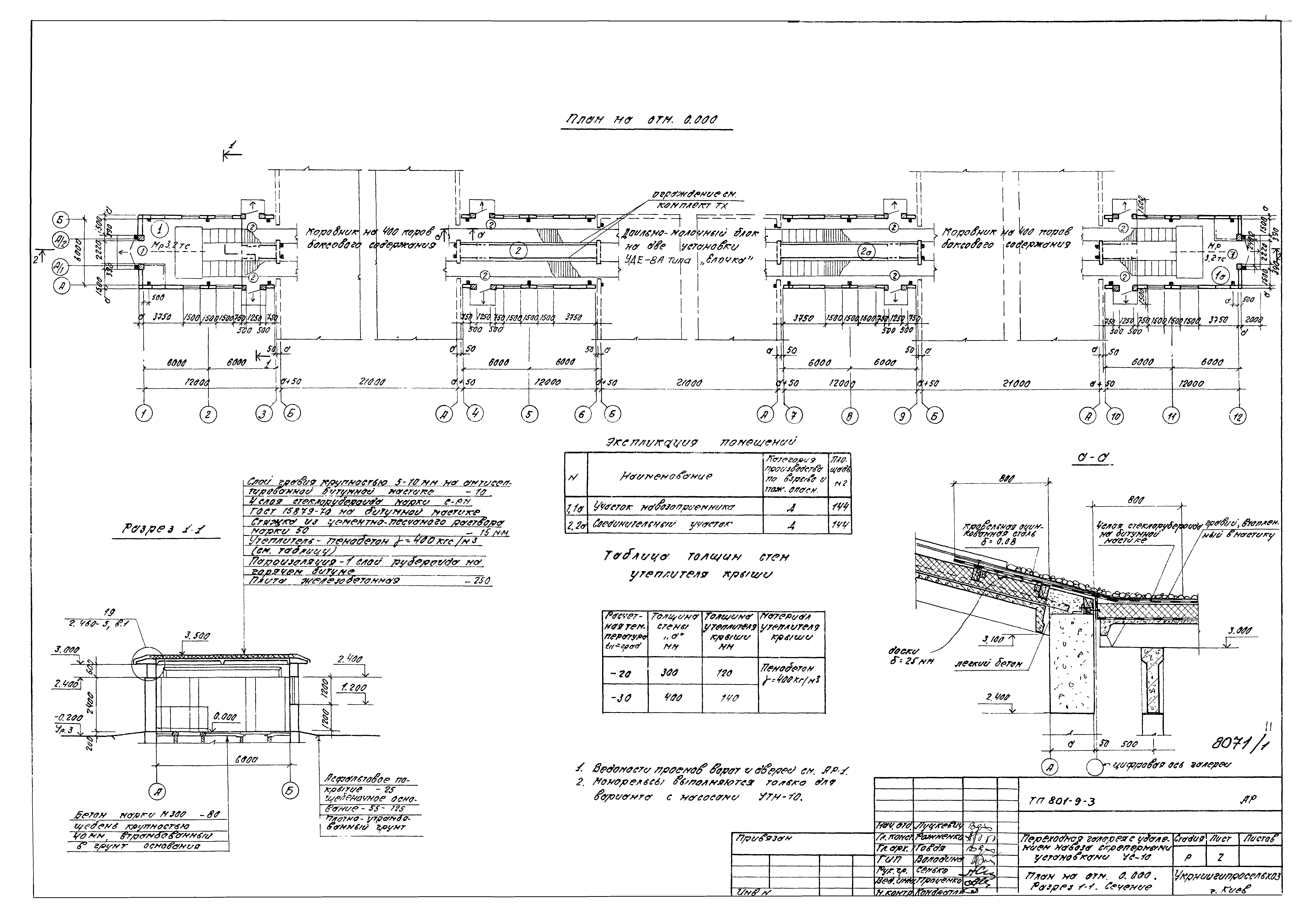
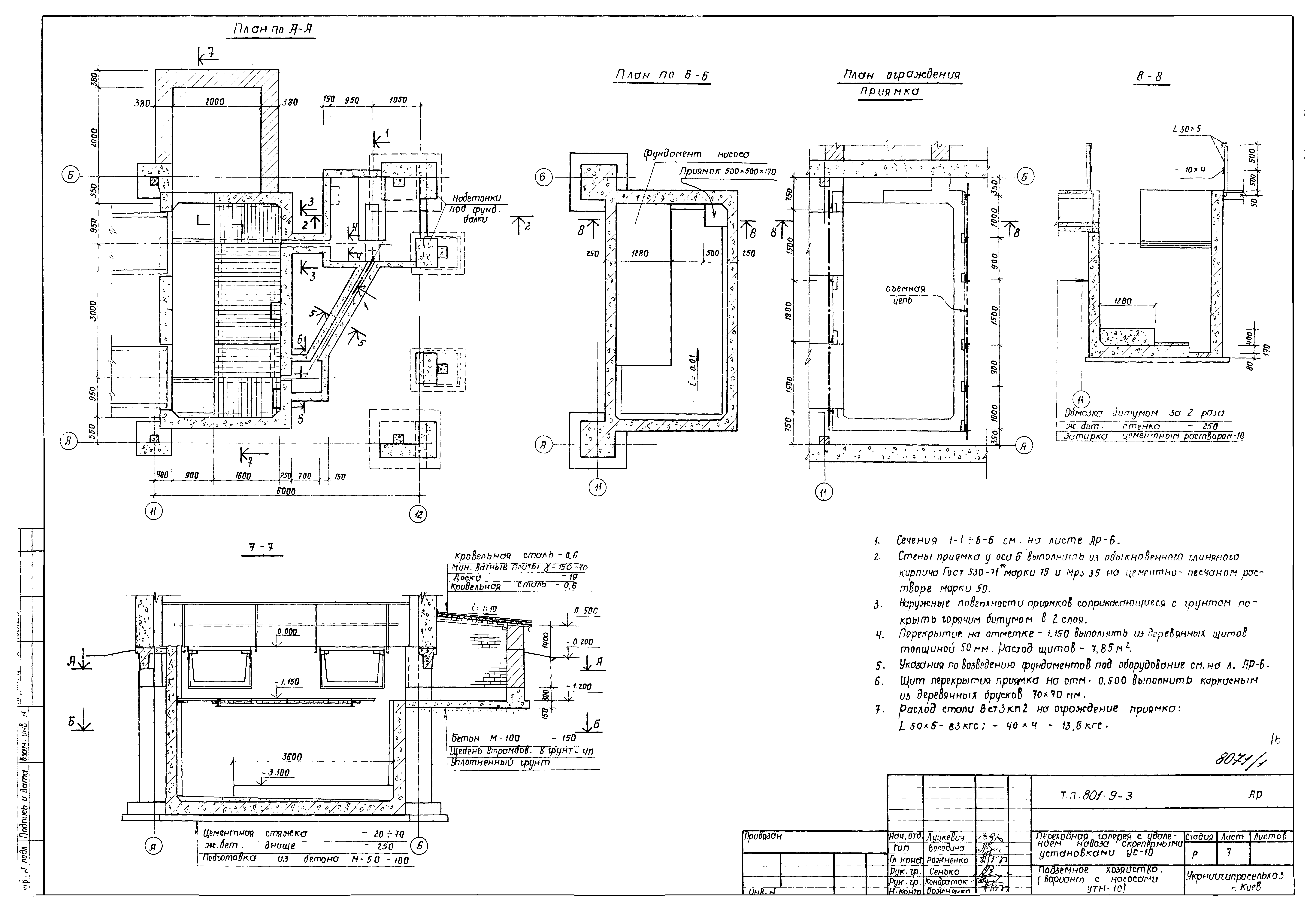
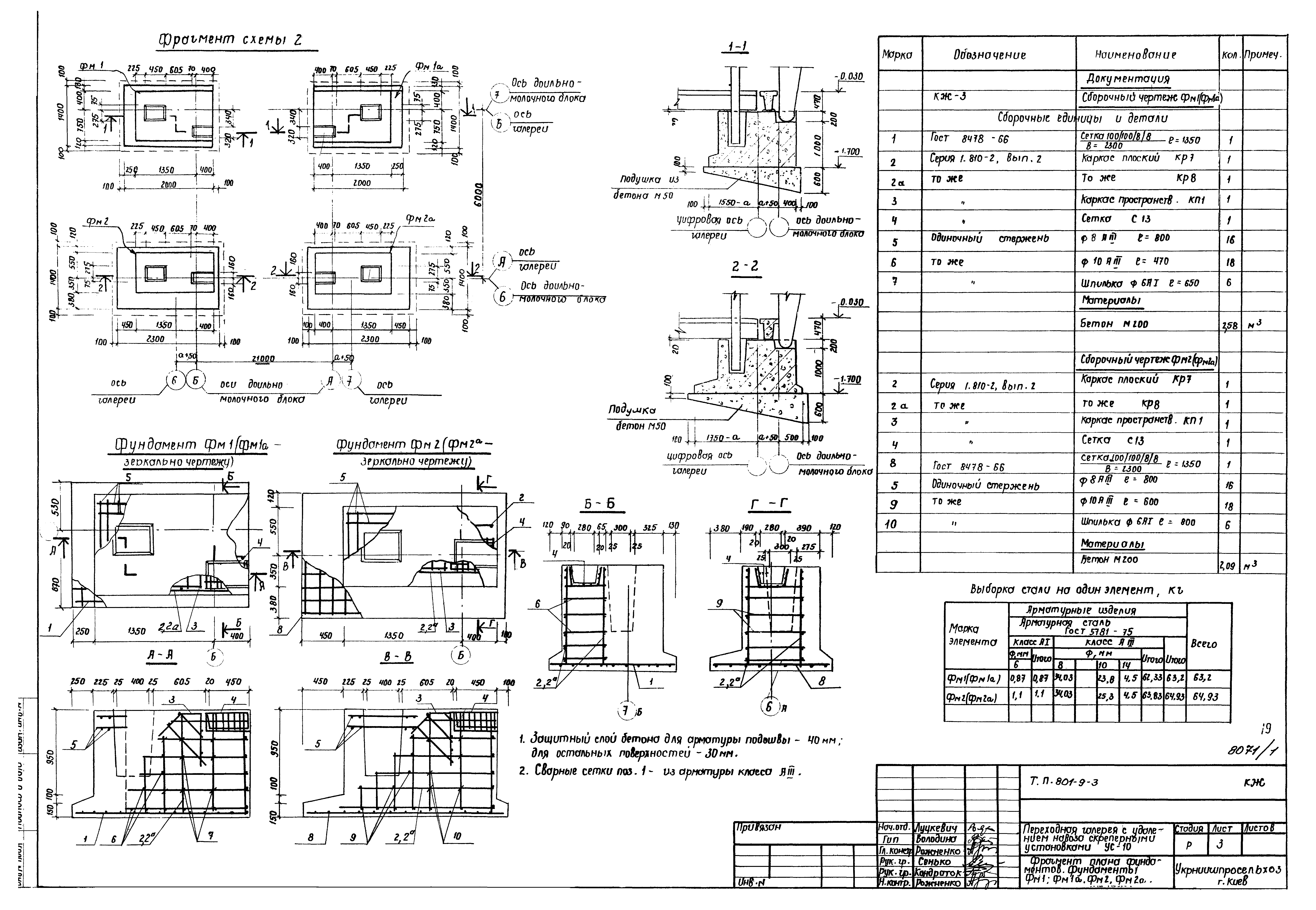
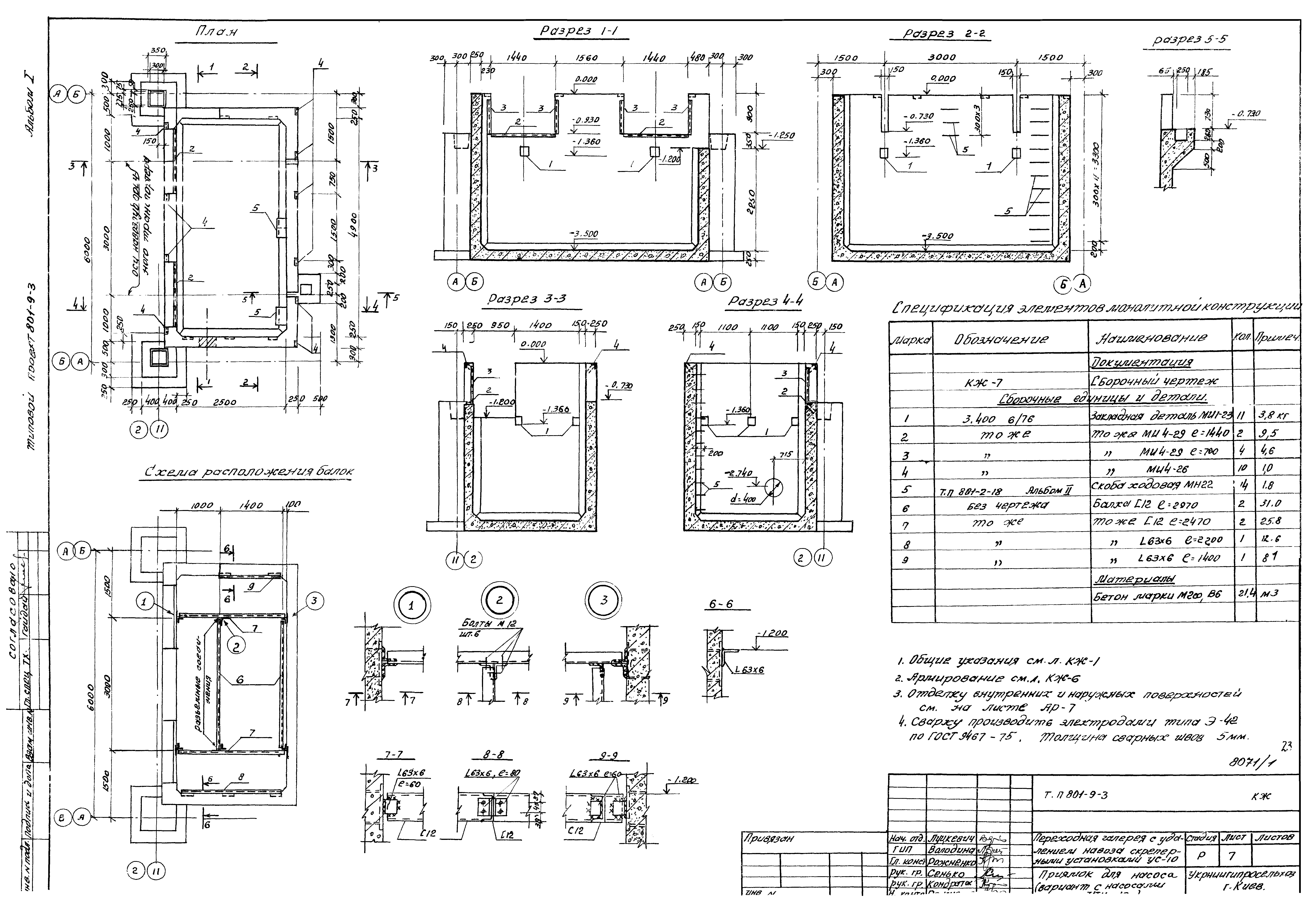
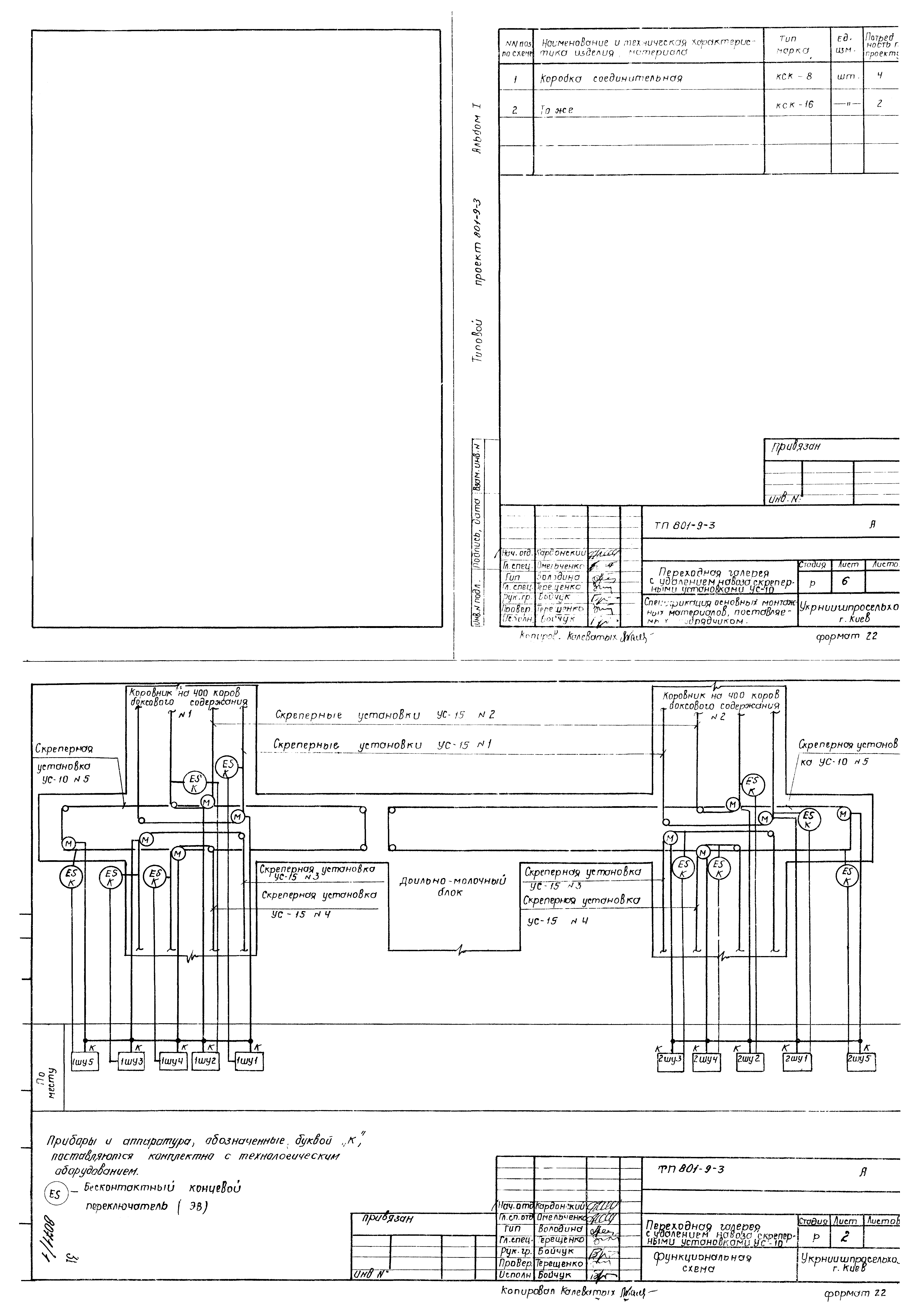
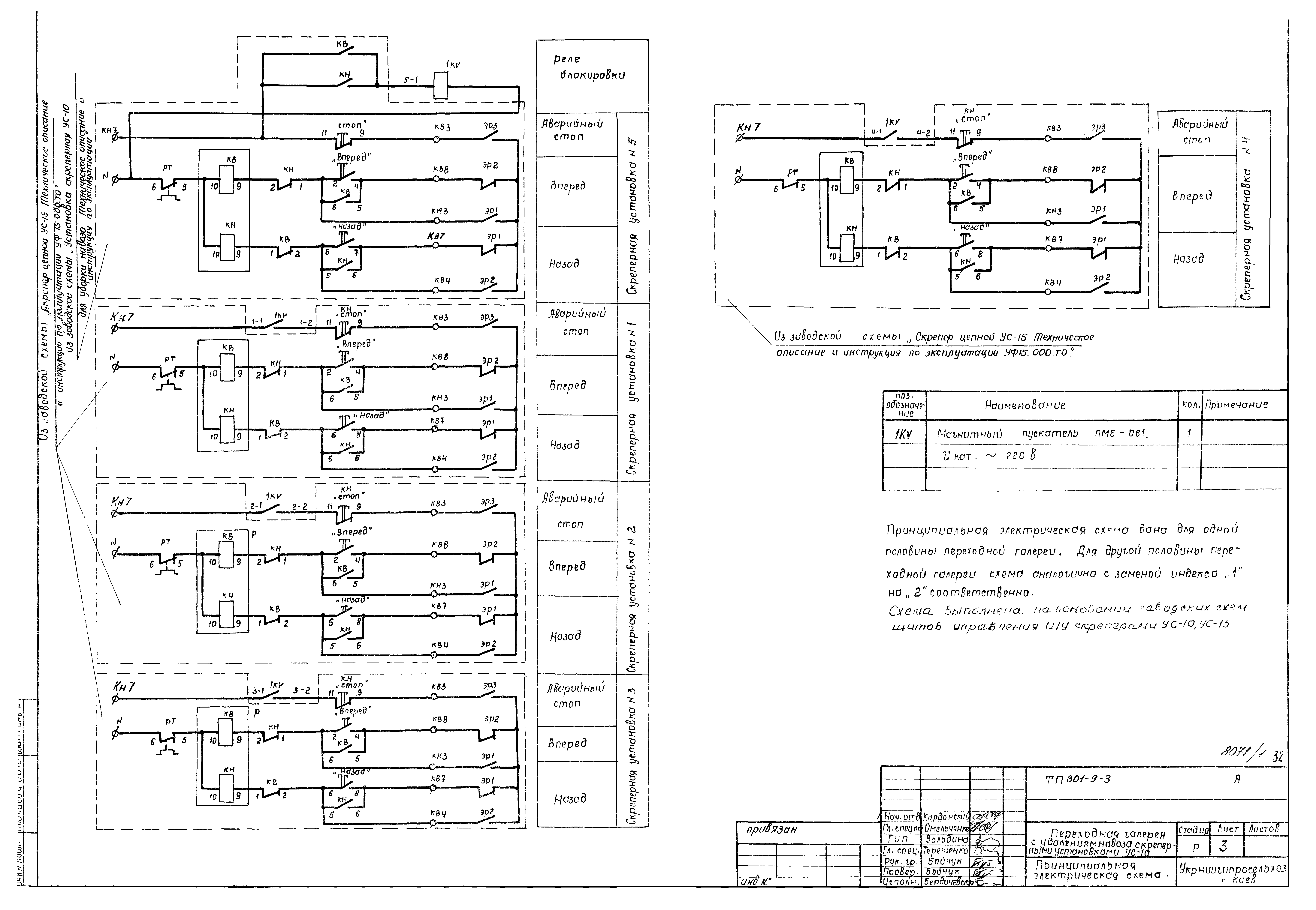
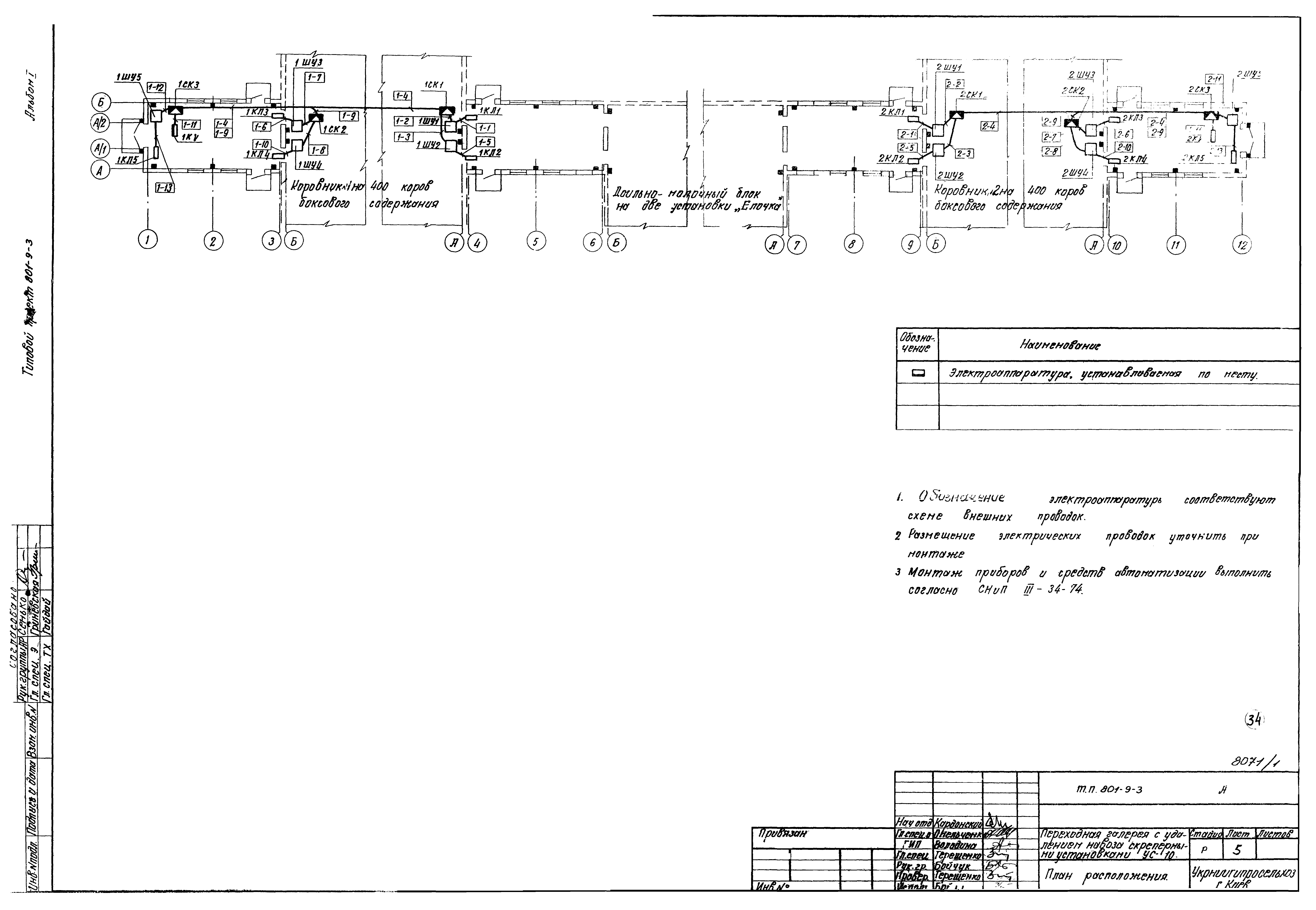
| Оглавление: | Титульный лист Содержание альбома Общая пояснительная записка Комплект ТХ Общие данные Вариант с насосами НЖН-200. Размещение технологического оборудования. План. Разрезы Вариант с насосами НЖН-200. Размещение технологического оборудования. Разрезы. Узлы Вариант с установкой УТН-10. Размещение технологического оборудования. План. Разрезы Комплект АР Общие данные. Схема блокировки План на отм. 0.000. Разрез 1-1. Сечение Разрез 2-2. Фасады 1-12; 12-1; А-Б; Б-А Схема расположения элементов каналов навозоудаления Монолитные участки Ум1, Ум2, Ум3 (Ум3а) Подземное хозяйство (вариант с насосами НЖН-200) Подземное хозяйство (вариант с насосами УТН-10) Комплект КЖ Общие данные Схемы расположения фундаментов и фундаментных балок покрытия Фрагмент плана фундаментов. Фундаменты Фм1, Фм1а, Фм2, Фм2а Схемы расположения плит покрытия и стеновых панелей Приямок для навоза (вариант с насосами НЖН-200) Приямок. Армирование Приямок для навоза (вариант с насосами УТН-10) Монорельсы (вариант с насосами УТН-10) Комплект ВК Общие данные План с сетями В1; Т3. Схемы В1; Т3 Комплект ОВ Общие данные План на отм. 0.000. Схемы систем отопления и вентиляции Комплект Э Электрооборудование Комплект А Общие данные Функциональная схема Принципиальная электрическая схема Схема внешних проводок План расположения Спецификация основных монтажных материалов, поставляемых подрядчиком |
| Разработан: | Укрниигипросельхоз |
| Утверждён: | 01.07.1981 Главсельстройпроект Минсельхоза СССР (Glavselstroyproject, USSR Minselkhoz 58) |


































