Скачать Типовой проект 801-490 Альбом II. Элементы конструкций. Узлы и деталиДата актуализации: 01.01.2021
|
| Обозначение: | Типовой проект 801-490 |
| Обозначение англ: | 801-490 |
| Статус: | действует |
| Название рус.: | Альбом II. Элементы конструкций. Узлы и детали |
| Дата добавления в базу: | 01.09.2013 |
| Дата актуализации: | 01.01.2021 |
| Дата введения: | 29.06.1979 |
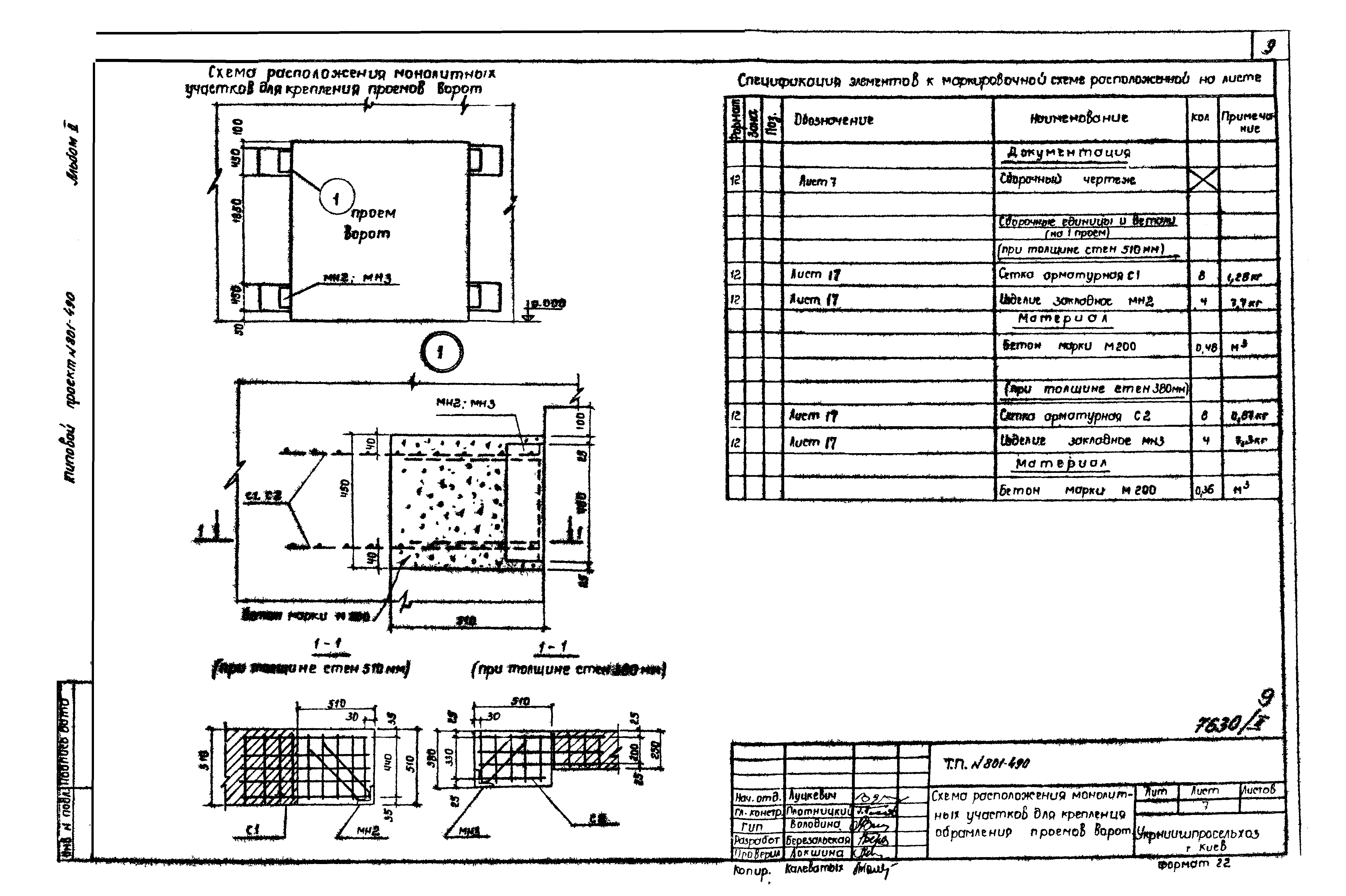
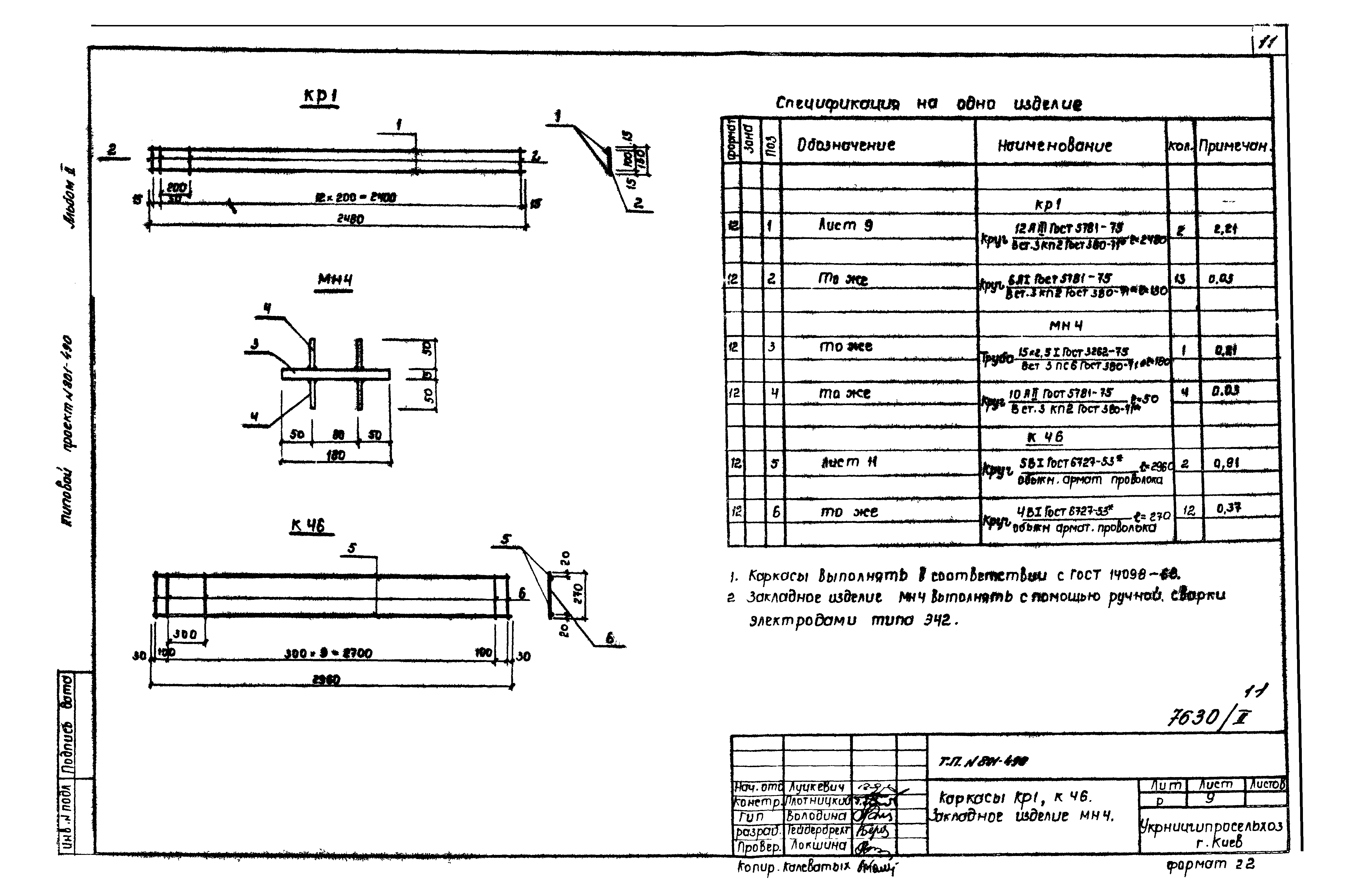
| Оглавление: | Содержание альбома Экспликация полов Узлы 1 - 6 Узлы 7 - 9 Узлы 10 - 14 Щиты Щ1 - Щ4 Схема расположения монолитных участков для крепления обрамления проемов ворот Стойки СК1, СК2 Каркас КР1. Закладное изделие МН4 Панель-перемычка СПСЛ30/0,9х3 311 Пространственный каркас КП74 Схема размещения закладных изделий в панелях СПСЛ40/0,9х3 311 и СПСЛ50/0,9х3 311 Схема установки дополнительных закладных изделий в колонне СК2-42-1а Рамки обрамления проемов Р1 - Р13, закладные и соединительные изделия МН1, МН2, МН3, МС2, МС3. Сетки С1; С2 Спецификация элементов на 1 закладное и соединительное изделие Ограждения МО1, МО2, МО3 Металлическое ограждение площадки входа МОП1 и МОП2 Схема размещения закладных изделий перемычки БП2-2А |
| Разработан: | Укрниигипросельхоз |
| Утверждён: | 19.03.1979 Минсельхоз СССР (USSR Minselkhoz 13/34) |






















