Скачать Рекомендации по конструктивно-технологическим решениям облицовок стен листовыми материалами, устройству подвесных потолков и сборных перегородокДата актуализации: 01.01.2021
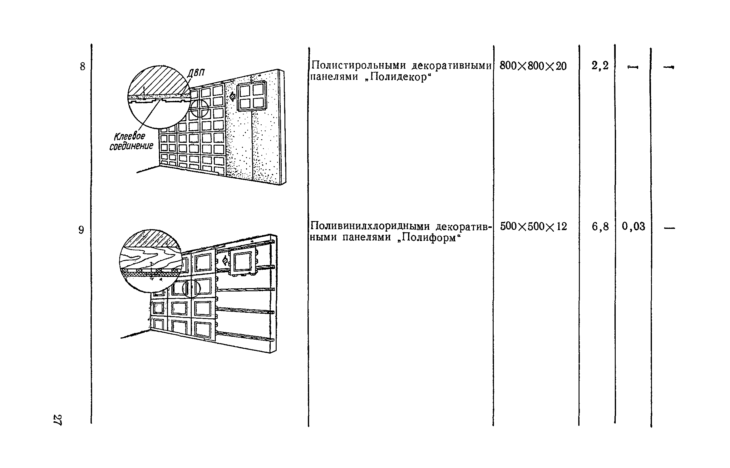
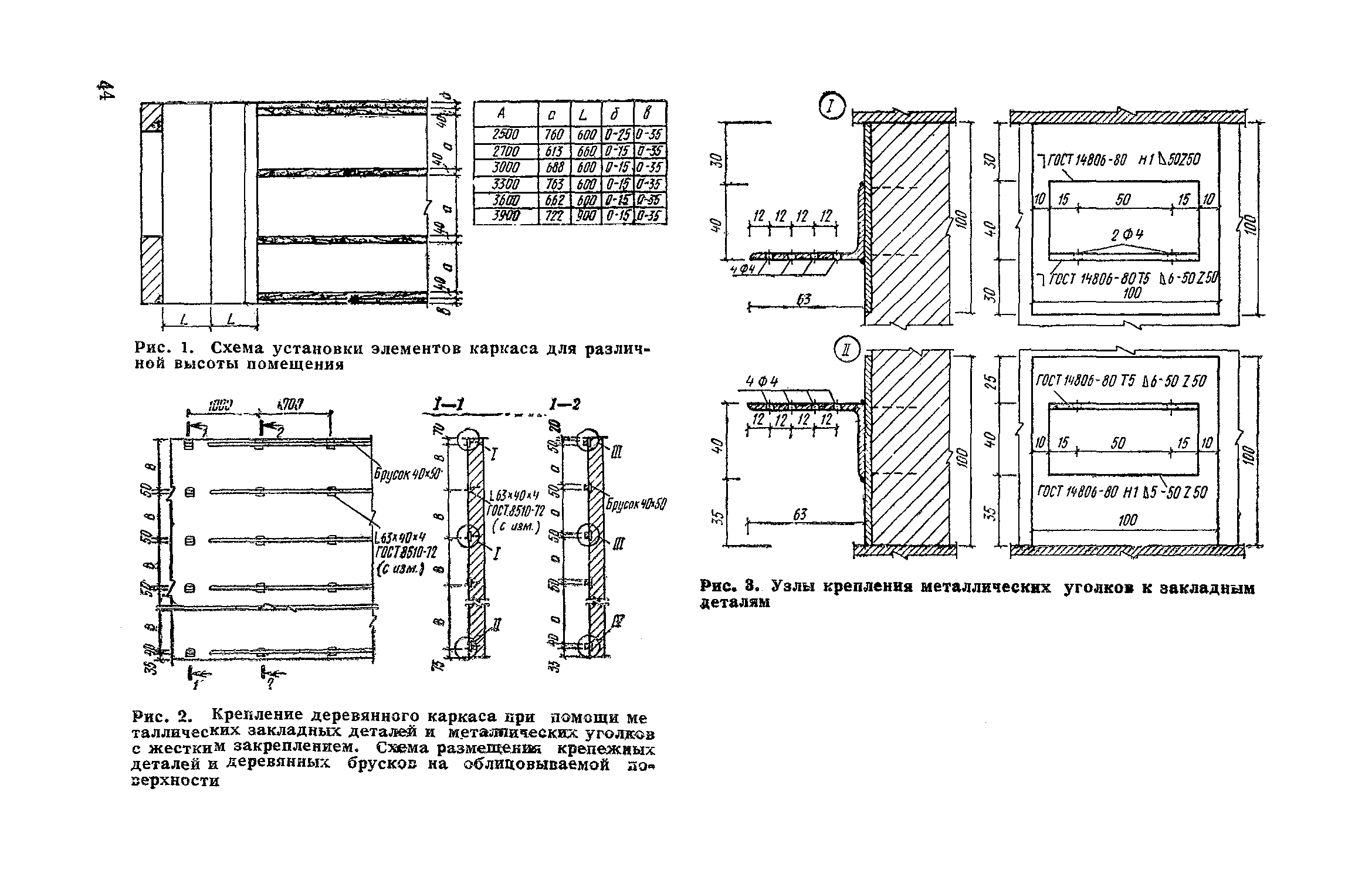
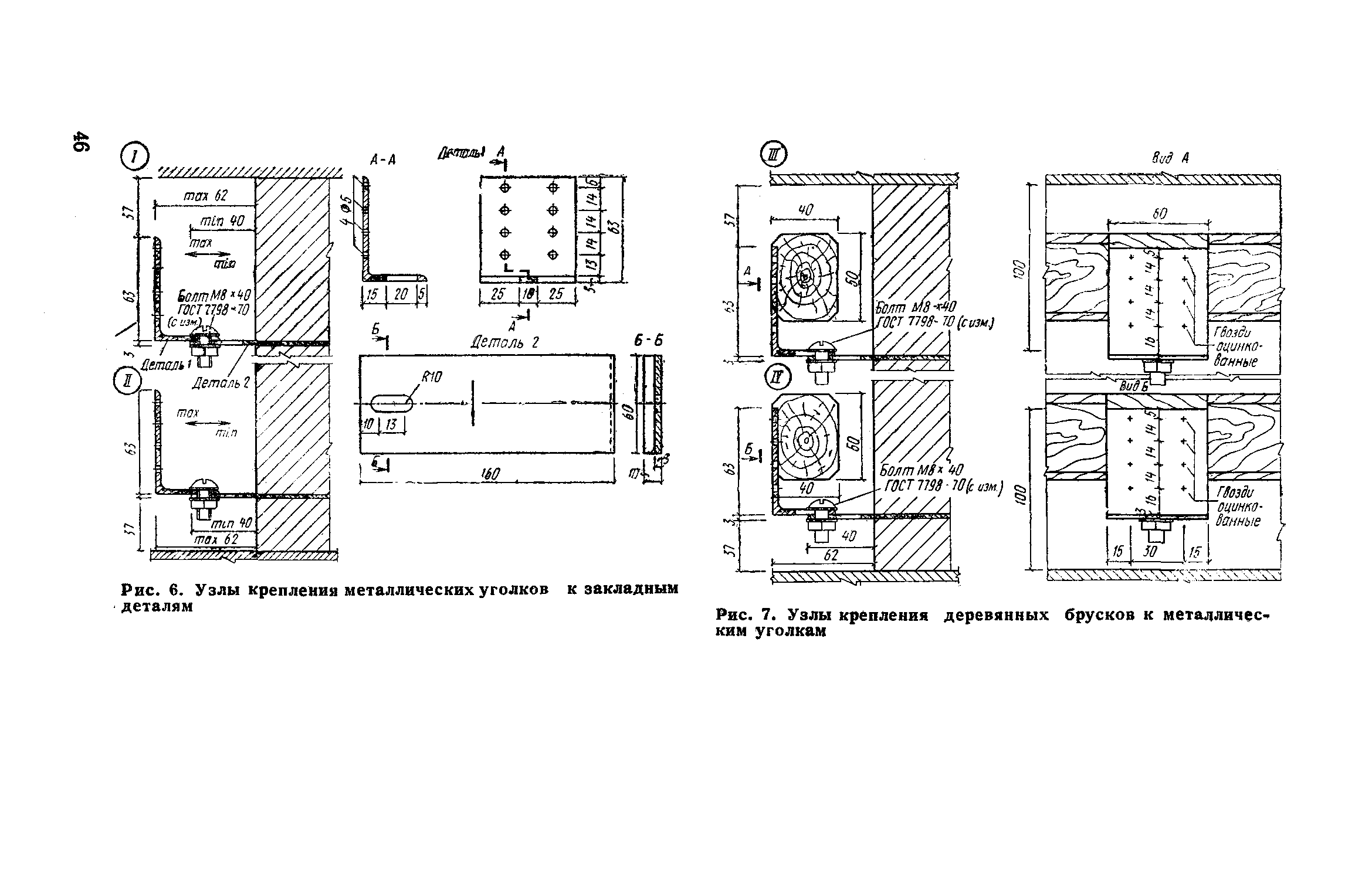
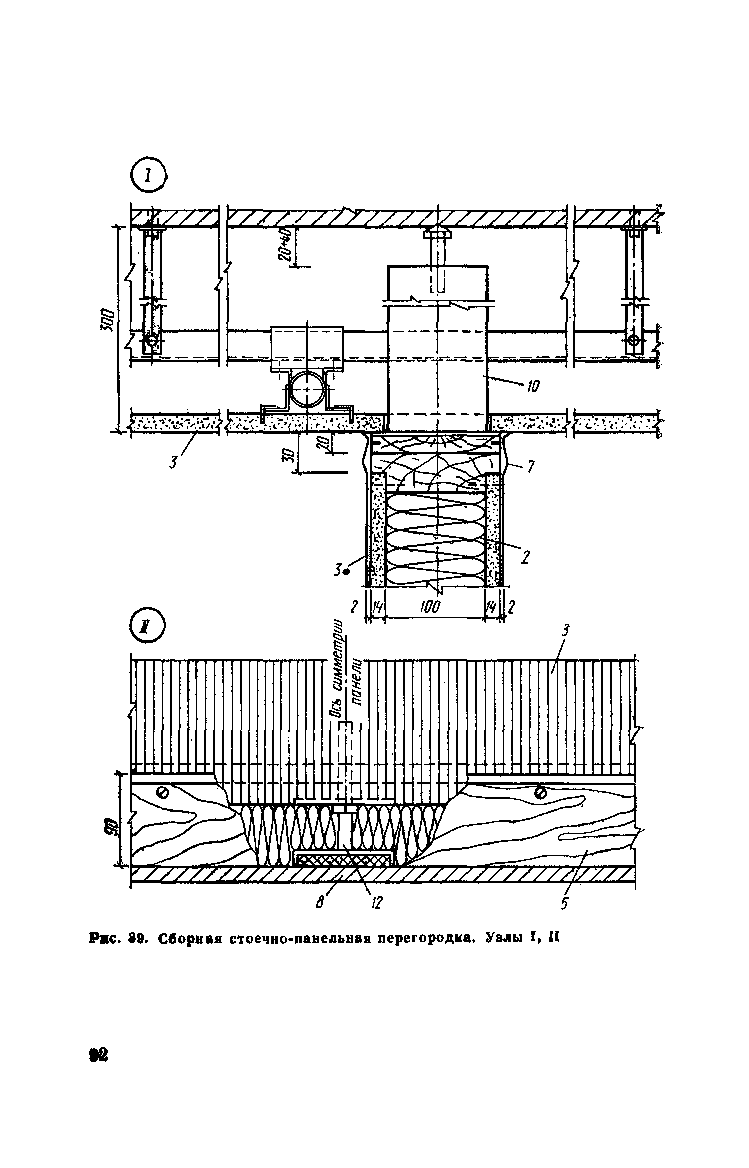
Рекомендации по конструктивно-технологическим решениям облицовок стен листовыми материалами, устройству подвесных потолков и сборных перегородок| Статус: | действует | | Название рус.: | Рекомендации по конструктивно-технологическим решениям облицовок стен листовыми материалами, устройству подвесных потолков и сборных перегородок | | Дата добавления в базу: | 01.09.2013 | | Дата актуализации: | 01.01.2021 | | Область применения: | В документе приведена номенклатура технических решений индустриальной отделки стен, подвесных потолков, сборных перегородок, отделочных материалов и изделий. Разработана технология отделочных процессов. Даны технико-экономические показатели эффективного применения индустриальных ме | | Оглавление: | Предисловие 1. Область применения 2. Технология производства работ Отделка стен Устройство подвесных потолков Устройство сборных перегородок Техника безопасности 3. Номенклатура технических решений 4. Технические решения Индустриальная отделка стен Подвесные потолки Сборные перегородки 5. Номенклатура материалов и изделий 6. Технико-экономические показатели | | Разработан: | КиевЗНИИЭП Госгражданстроя ЦНИИОМТП
| | Издан: | Стройиздат (1987 г. )
| | Нормативные ссылки: | |
                                                                                                                         
|