Скачать Типовой проект 801-2-26 Альбом II. Общая пояснительная записка. Рабочие чертежиДата актуализации: 01.01.2021
|
| Обозначение: | Типовой проект 801-2-26 |
| Обозначение англ: | 801-2-26 |
| Статус: | действует |
| Название рус.: | Альбом II. Общая пояснительная записка. Рабочие чертежи |
| Дата добавления в базу: | 01.09.2013 |
| Дата актуализации: | 01.01.2021 |
| Дата введения: | 18.06.1982 |
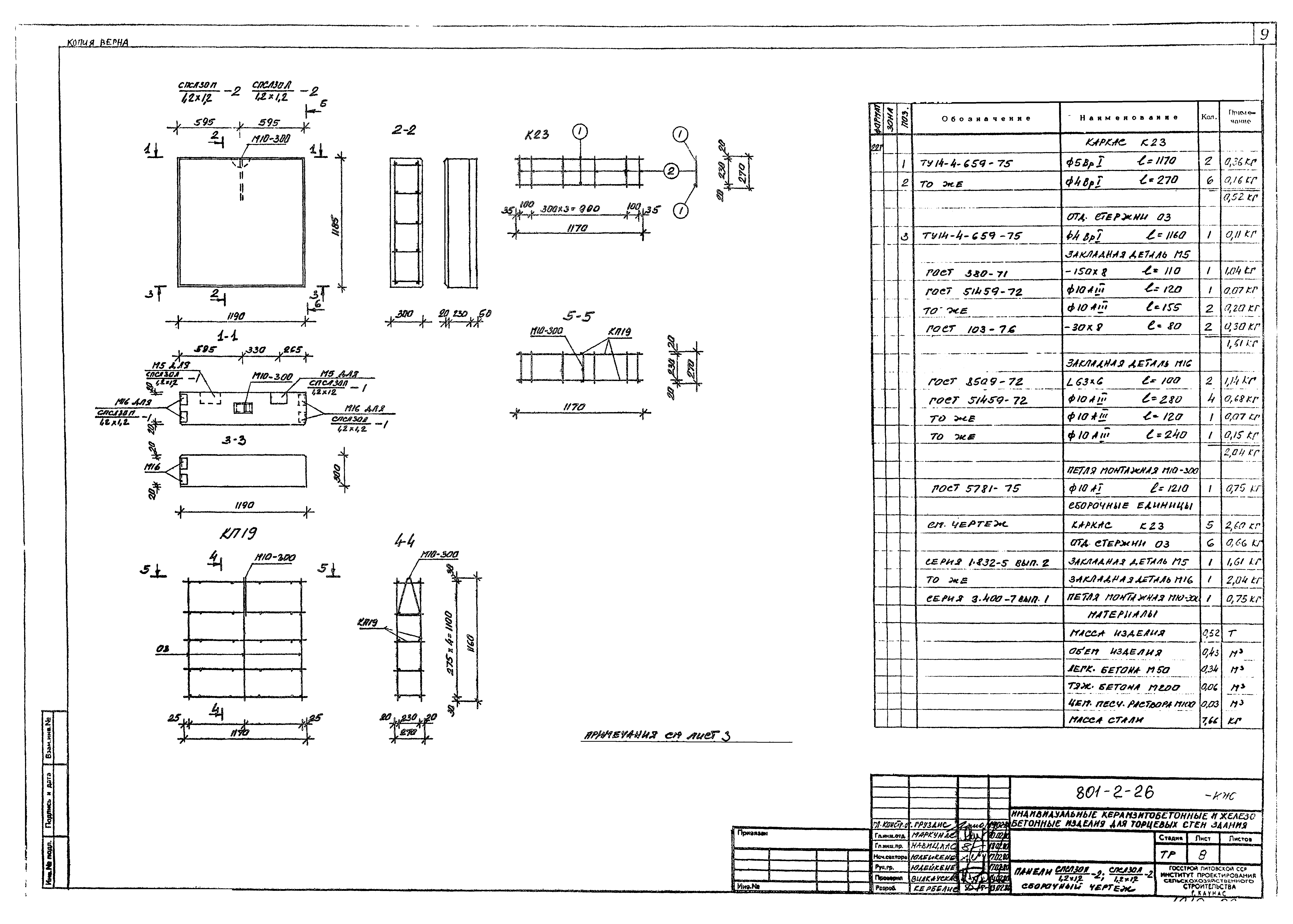
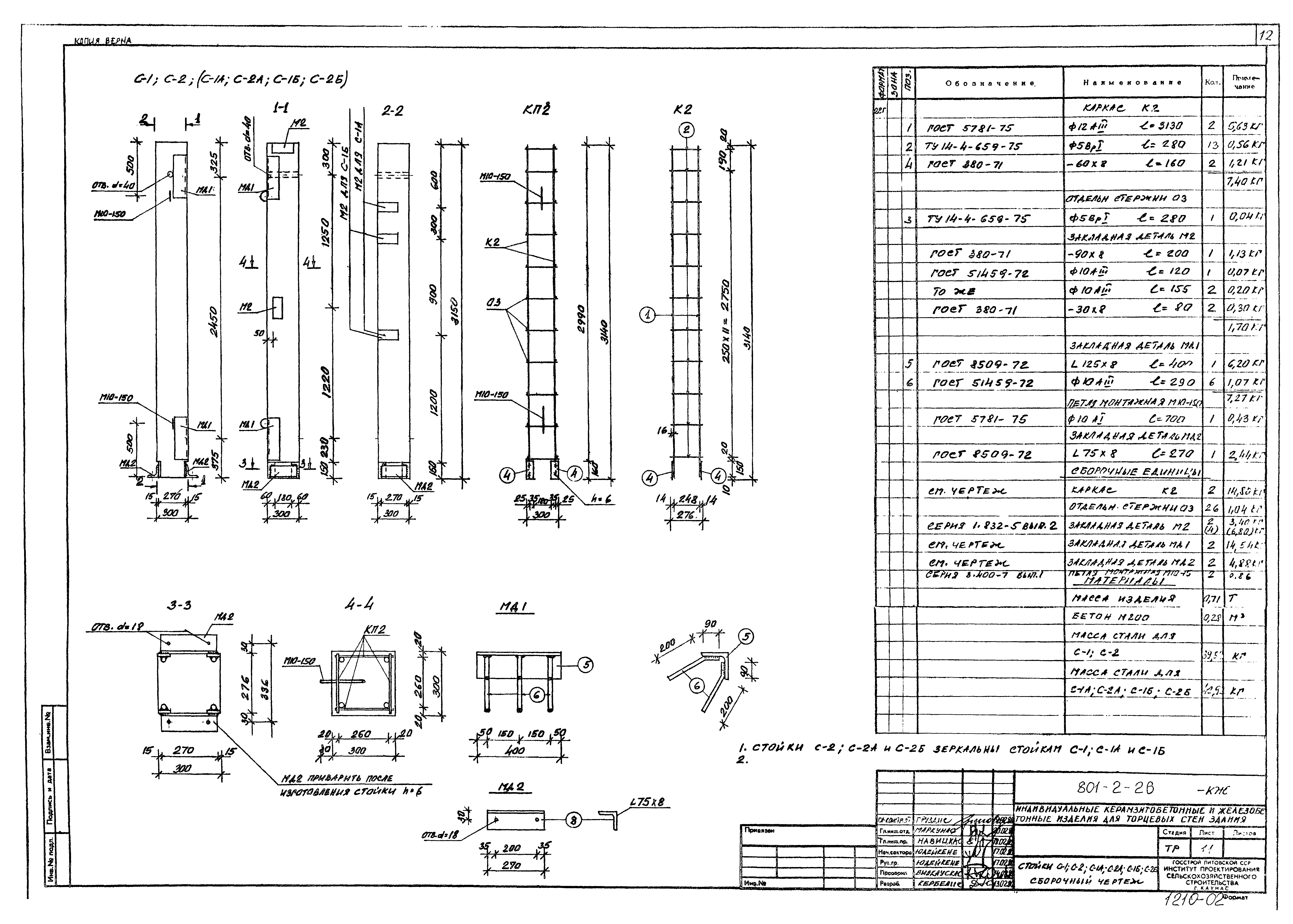
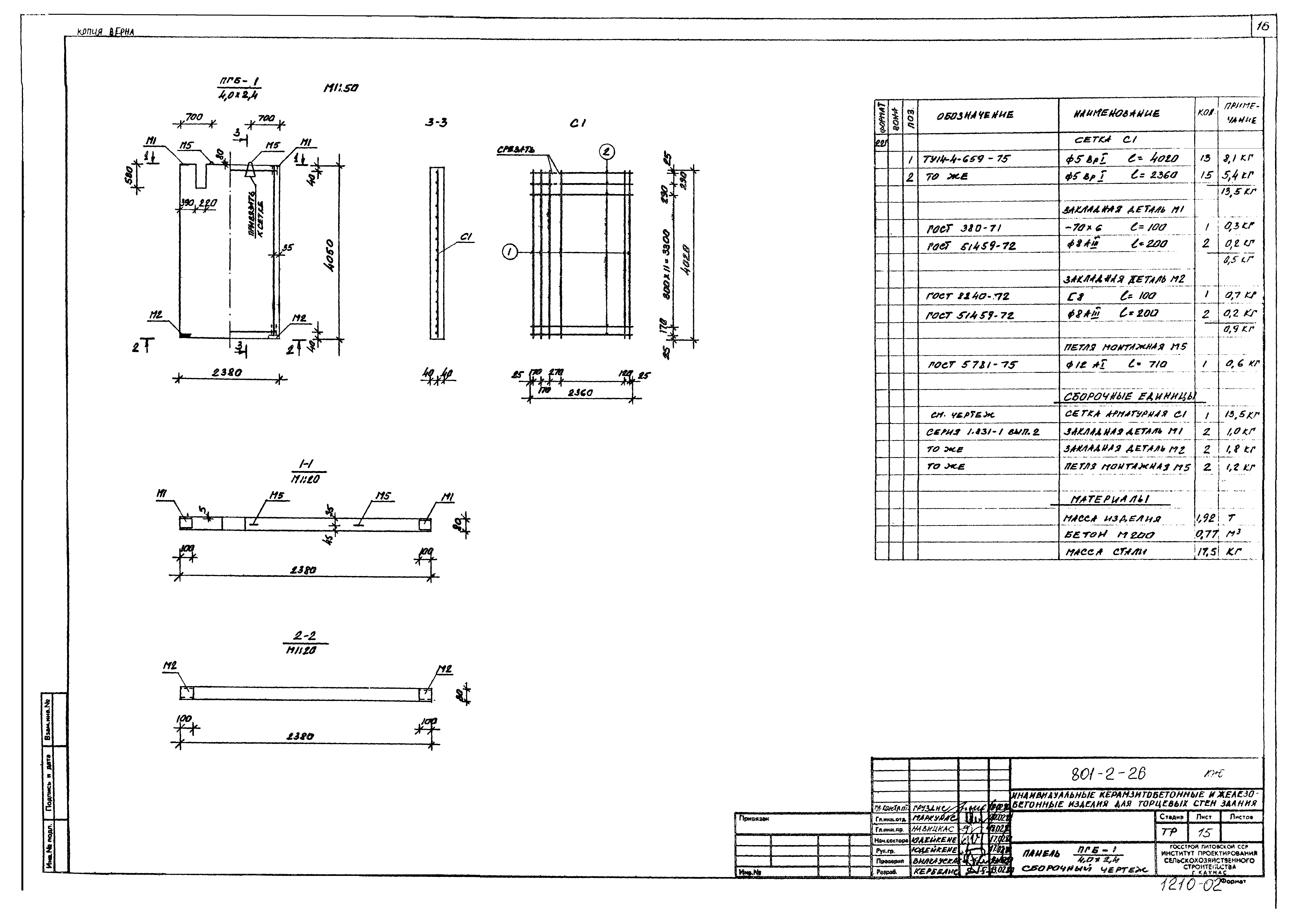
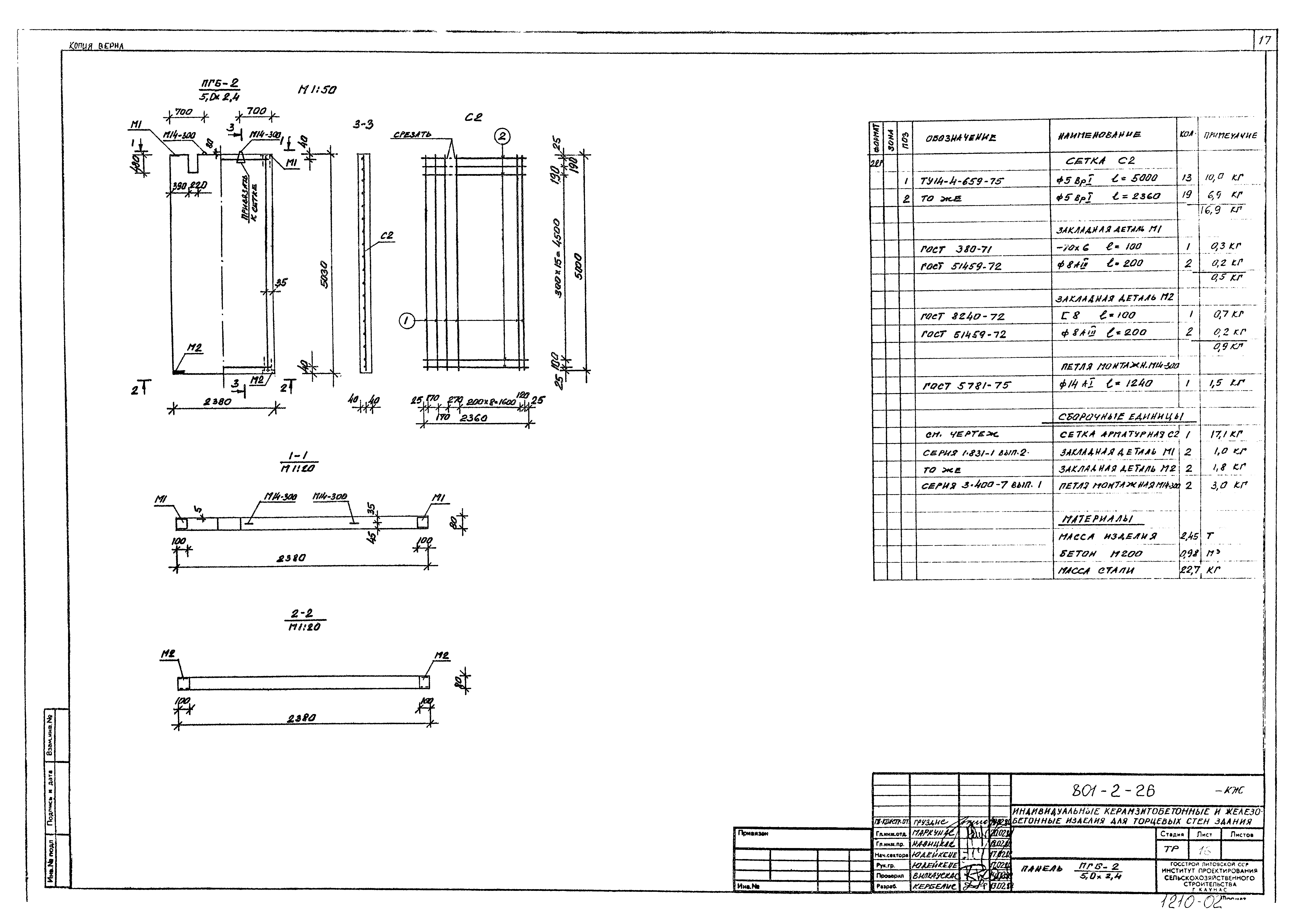
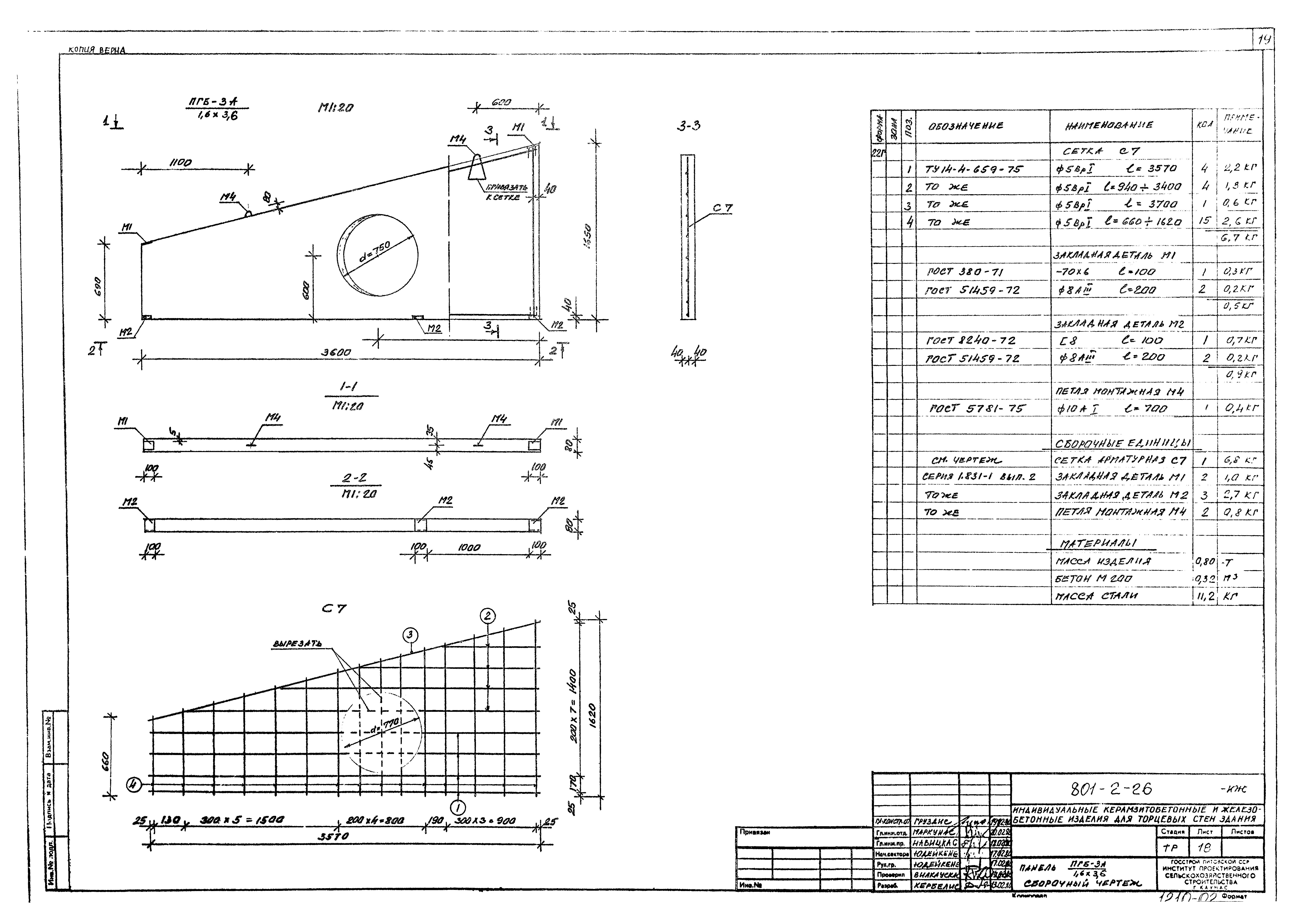
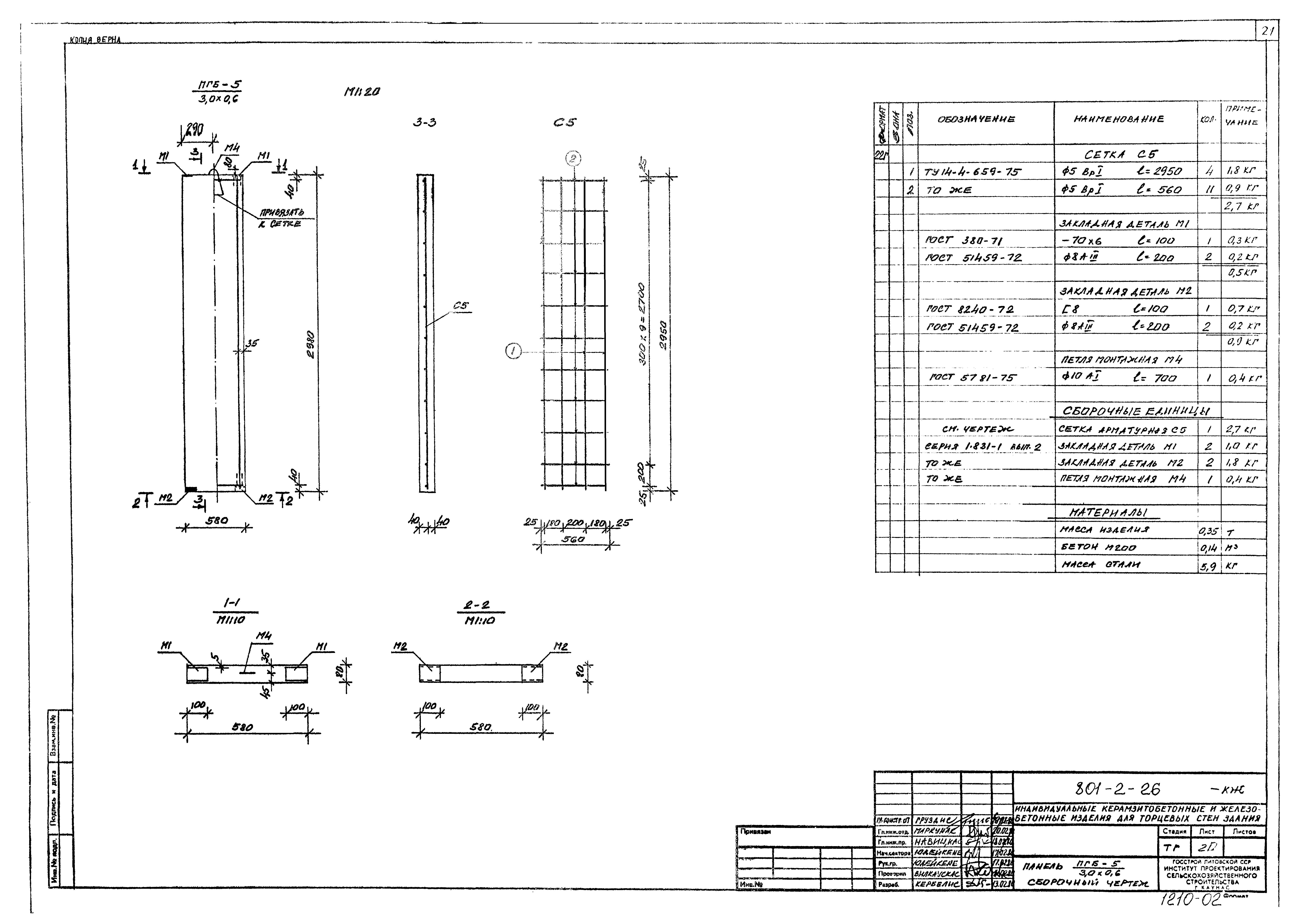
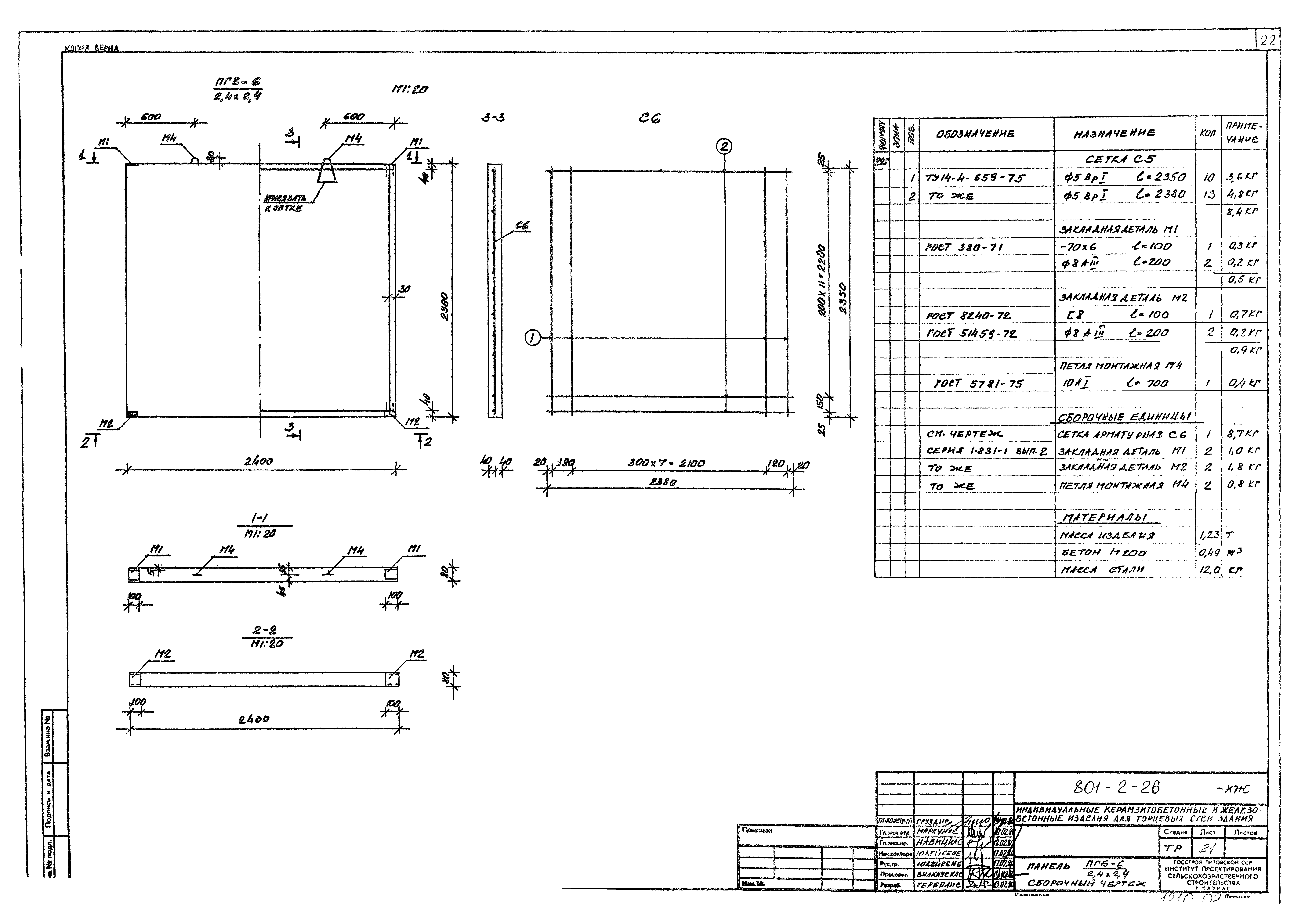
| Оглавление: | Ведомость чертежей. Пояснительная записка Керамзитобетонные изделия Панели СПСЛ30Л/1,4х4,2 - 1; СПСЛ30П/1,4х4,2 - 1; сборочный чертеж Панели СПСЛ30Л/1,4х3,6 - 1; СПСЛ30П/1,4х3,6 - 1; сборочный чертеж Панель СПСЛ30/1,6х6,0 - 1; сборочный чертеж Панели СПСЛ30Л/1,2х4,2 - 1; СПСЛ30П/1,2х4,2 - 1; сборочный чертеж Панели СПСЛ30Л/0,6х4,2 - 3; СПСЛ30П/0,6х4,2 - 3; сборочный чертеж Панель СПСЛ30/1,2х2,4 - 1; сборочный чертеж Панели СПСЛ30Л/1,2х1,2 - 2; СПСЛ30П/1,2х1,2 - 2; сборочный чертеж Панель СПСЛ30/0,6х3,6 - 1; сборочный чертеж Панель СПСЛ30/0,9х2,4 - 1; сборочный чертеж Железобетонные изделия Стойки С-1; С-2; С-1А; С-1Б; С-2А; С-2Б; сборочный чертеж Стойки С-3; С-4; сборочный чертеж Ригель Р-1; сборочный чертеж Ригель Р-2; сборочный чертеж Панель ПГБ-1/4,0х2,4; сборочный чертеж Панель ПГБ-2/5,0х2,4; сборочный чертеж Панель ПГБ-3/1,6х3,6; сборочный чертеж Панель ПГБ-3А/1,6х3,6; сборочный чертеж Панель ПГБ-4/2,0х4,1; сборочный чертеж Панель ПГБ-5/3,0х0,6; сборочный чертеж Панель ПГБ-6/2,4х2,4; сборочный чертеж Выборка стали. Схемы испытаний |
| Разработан: | Госстрой Лит. ССР |
| Утверждён: | 29.12.1978 Министерство сельского хозяйства Литовской ССР (1630) |
























