Скачать Типовой проект 801-3-18 Альбом I. Общая пояснительная записка. Технологические чертежи. Архитектурно-строительные решения. Конструкции железобетонные. Внутренний водопровод и канализация. Отопление и вентиляция. Электроосвещение и электрооборудование. Автоматизация санитарно-технических системДата актуализации: 01.01.2021
|
| Обозначение: | Типовой проект 801-3-18 |
| Обозначение англ: | 801-3-18 |
| Статус: | действует |
| Название рус.: | Альбом I. Общая пояснительная записка. Технологические чертежи. Архитектурно-строительные решения. Конструкции железобетонные. Внутренний водопровод и канализация. Отопление и вентиляция. Электроосвещение и электрооборудование. Автоматизация санитарно-технических систем |
| Дата добавления в базу: | 01.09.2013 |
| Дата актуализации: | 01.01.2021 |
| Дата введения: | 18.06.1982 |
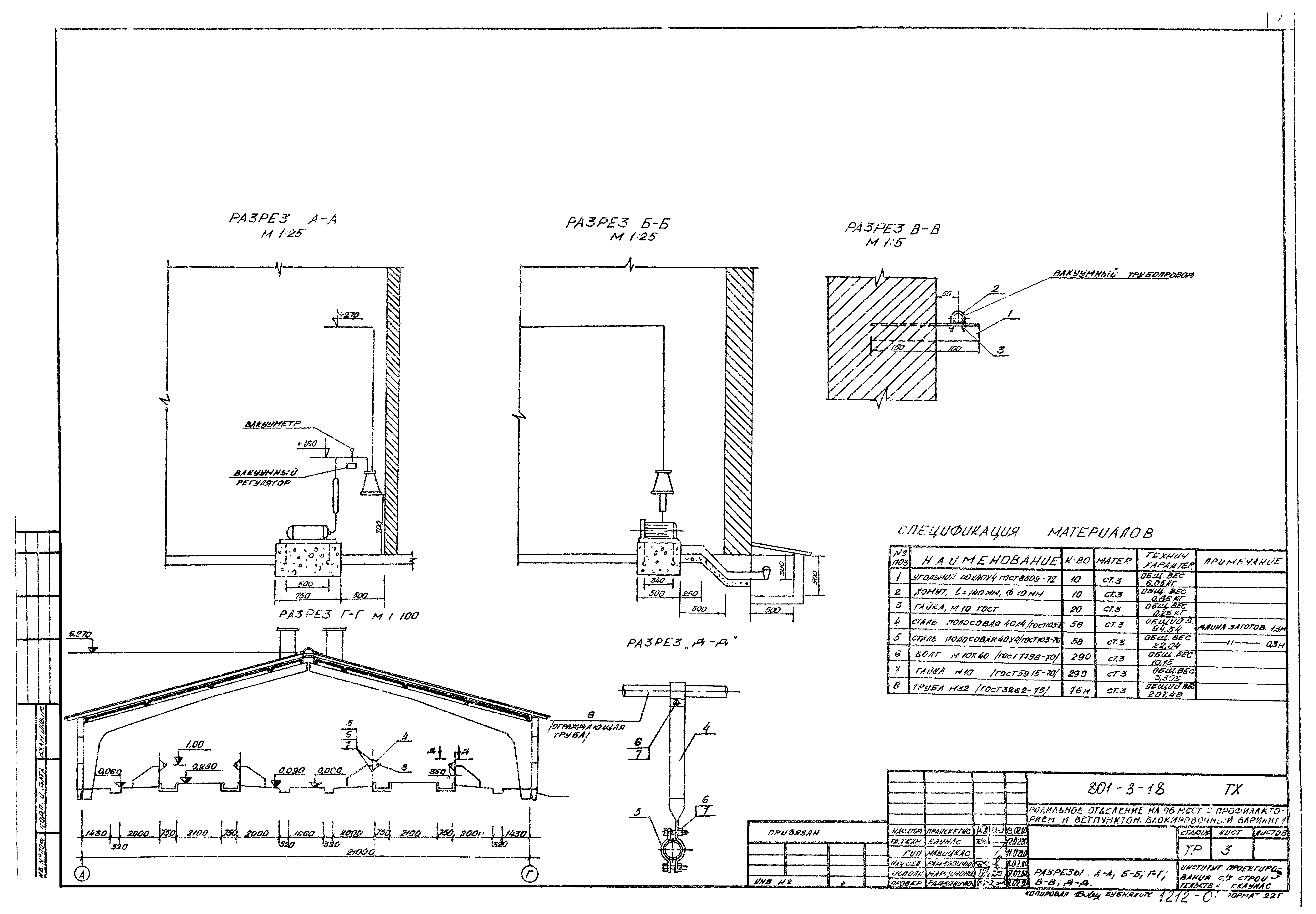
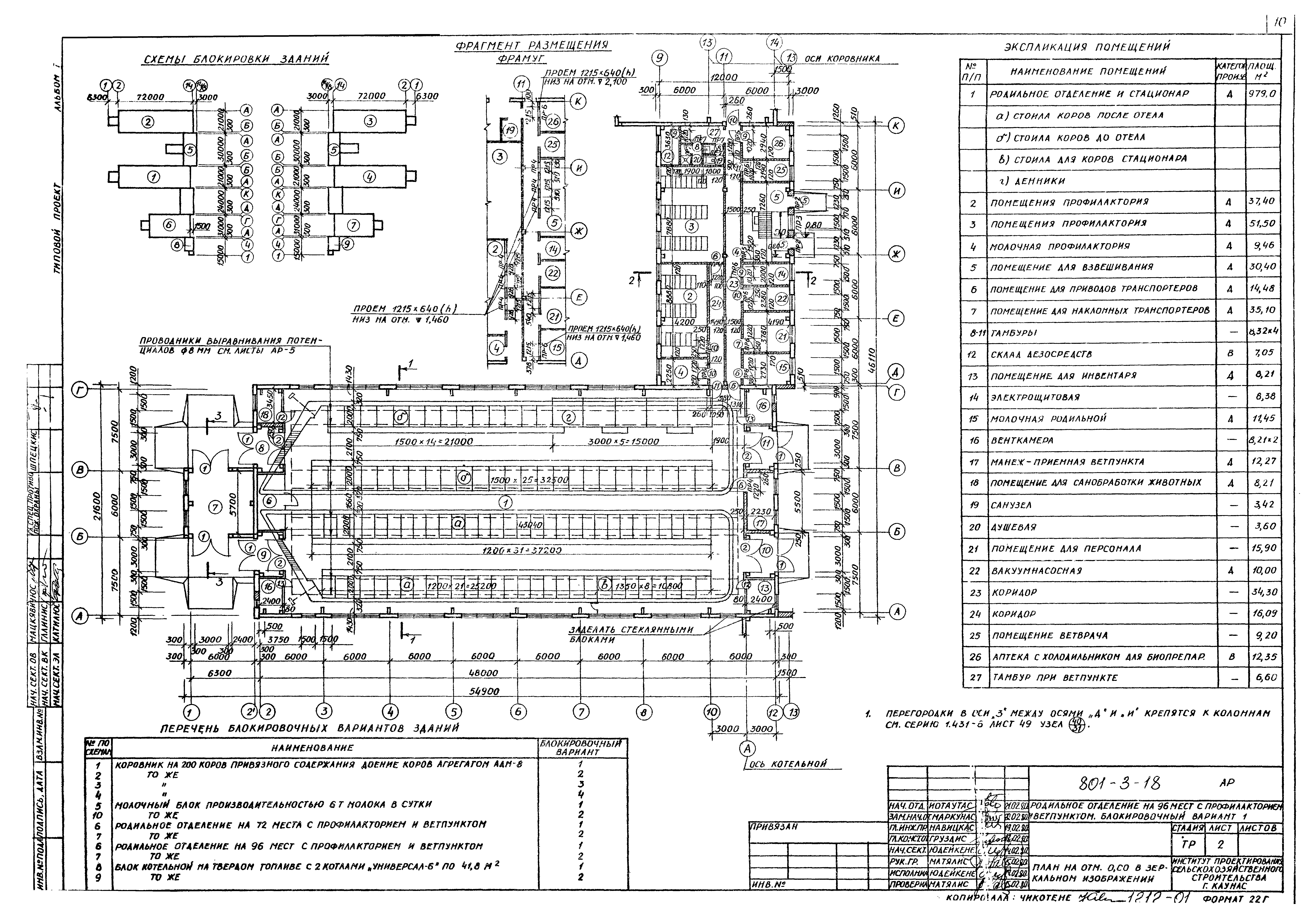
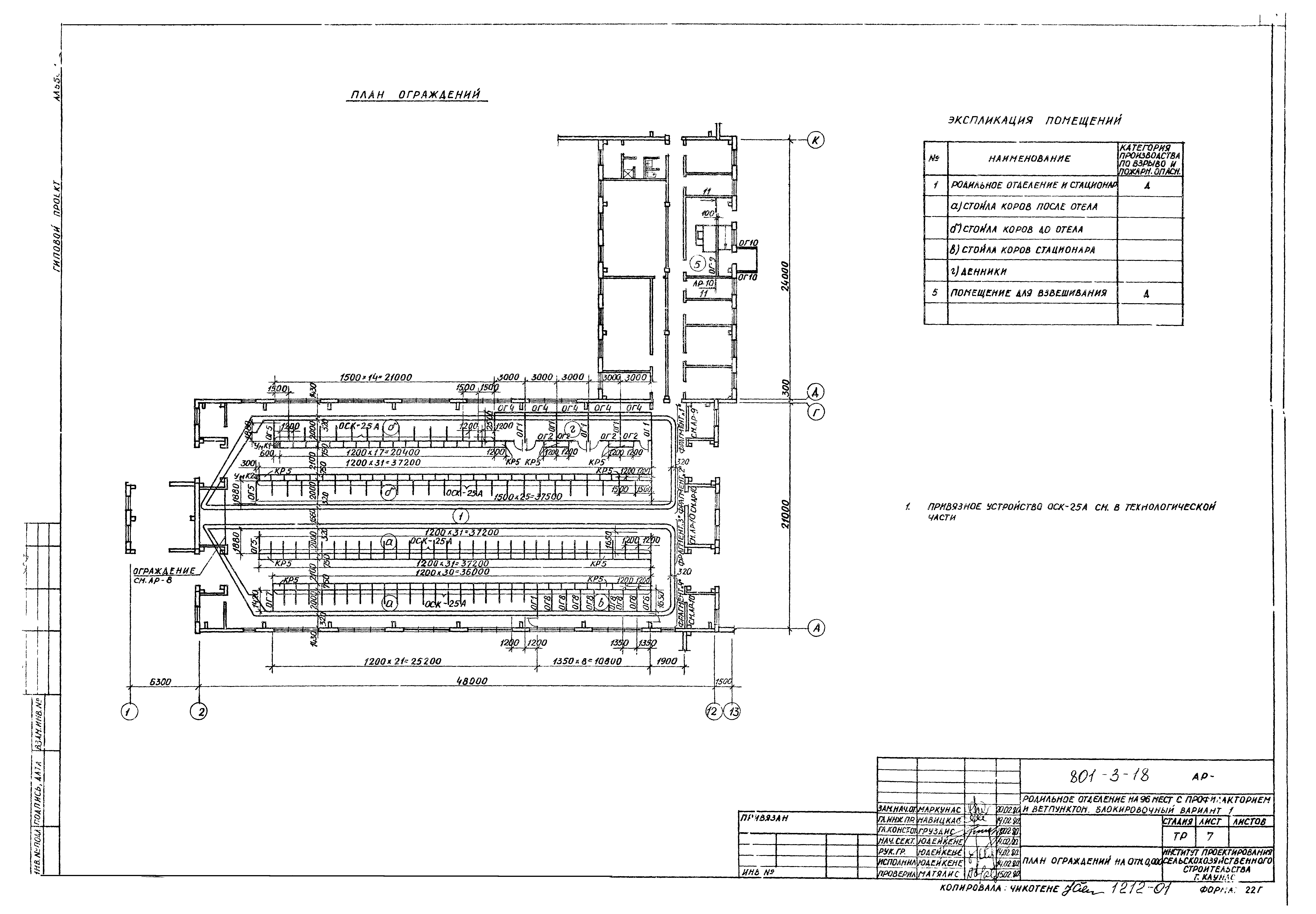
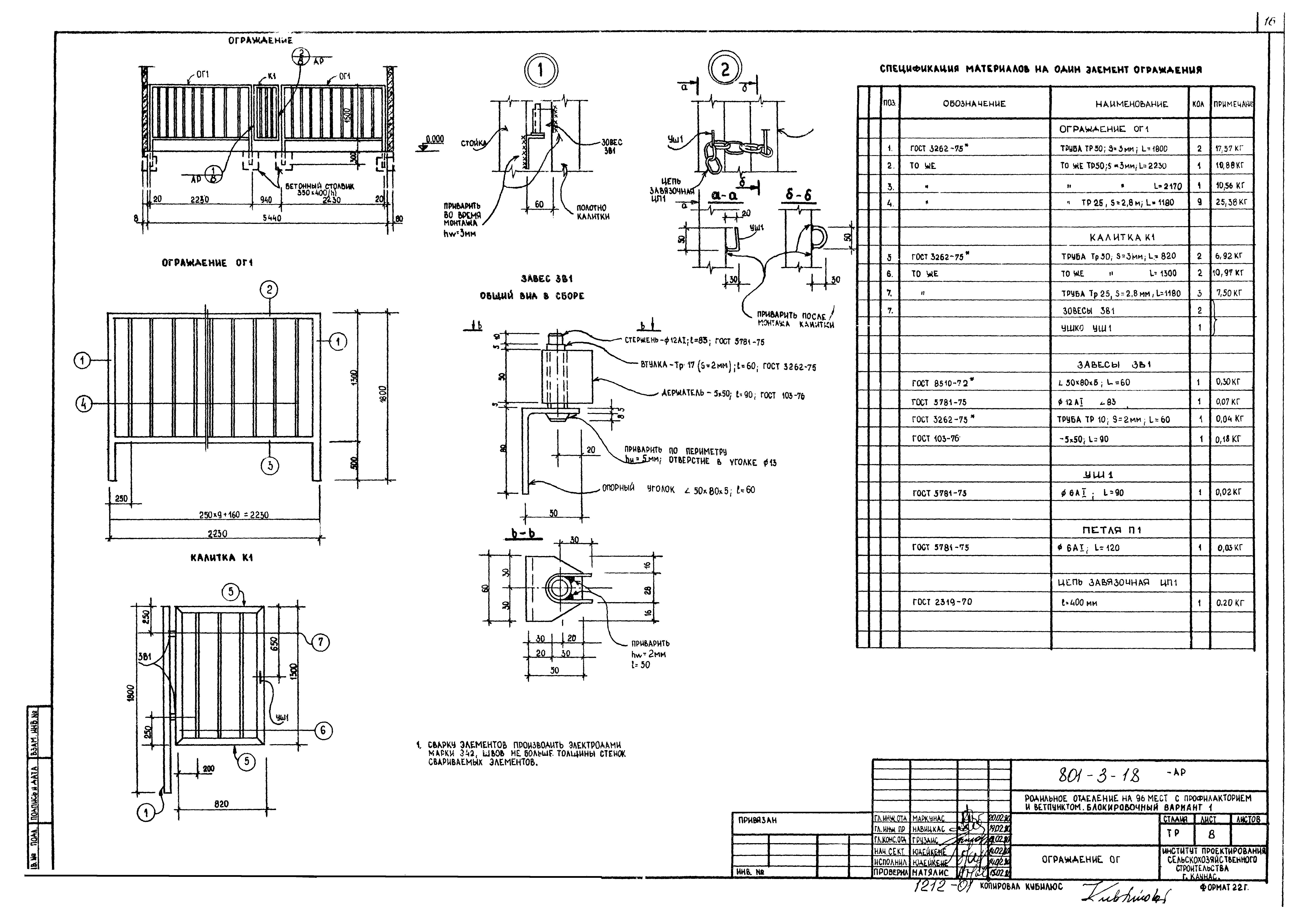
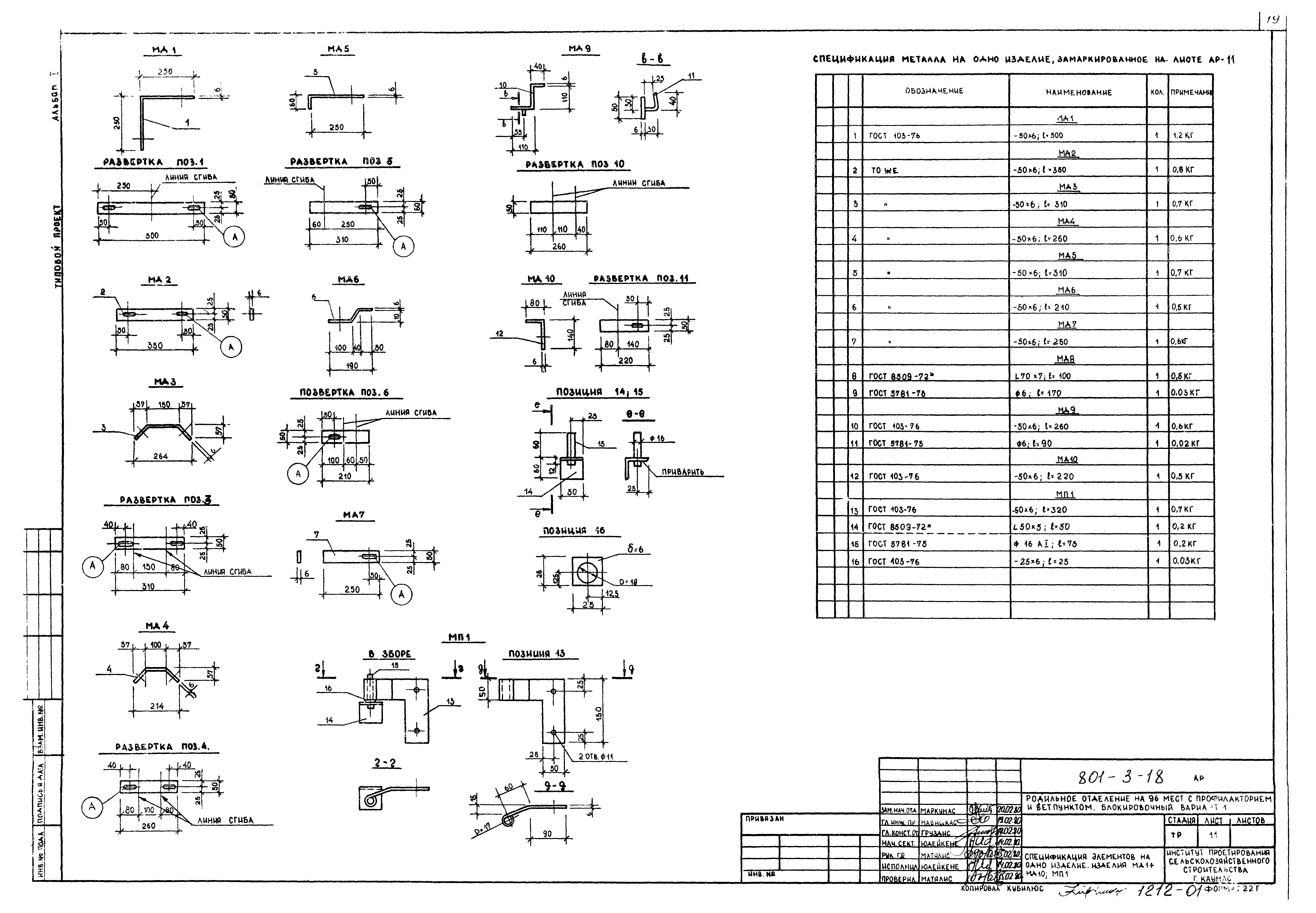
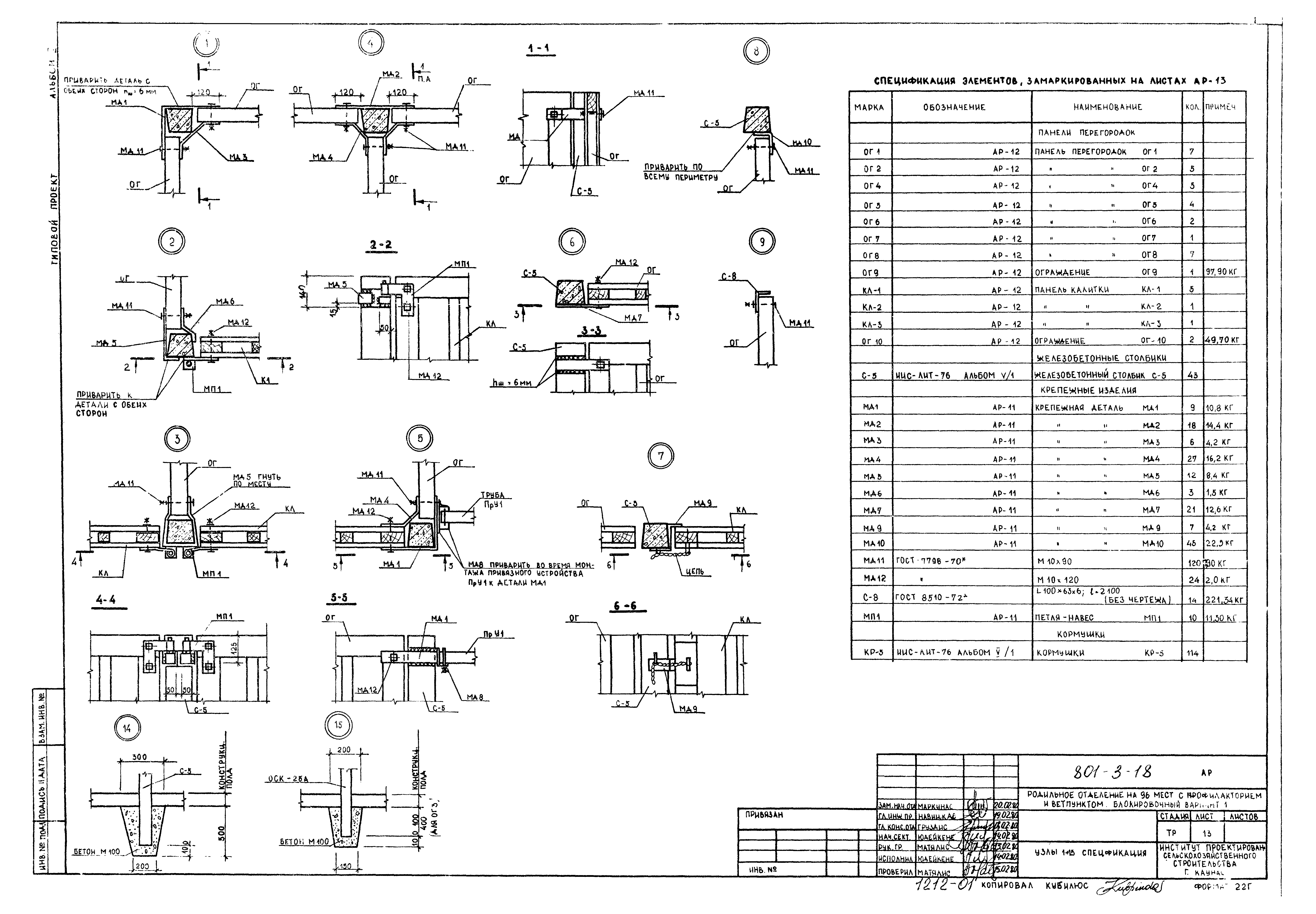
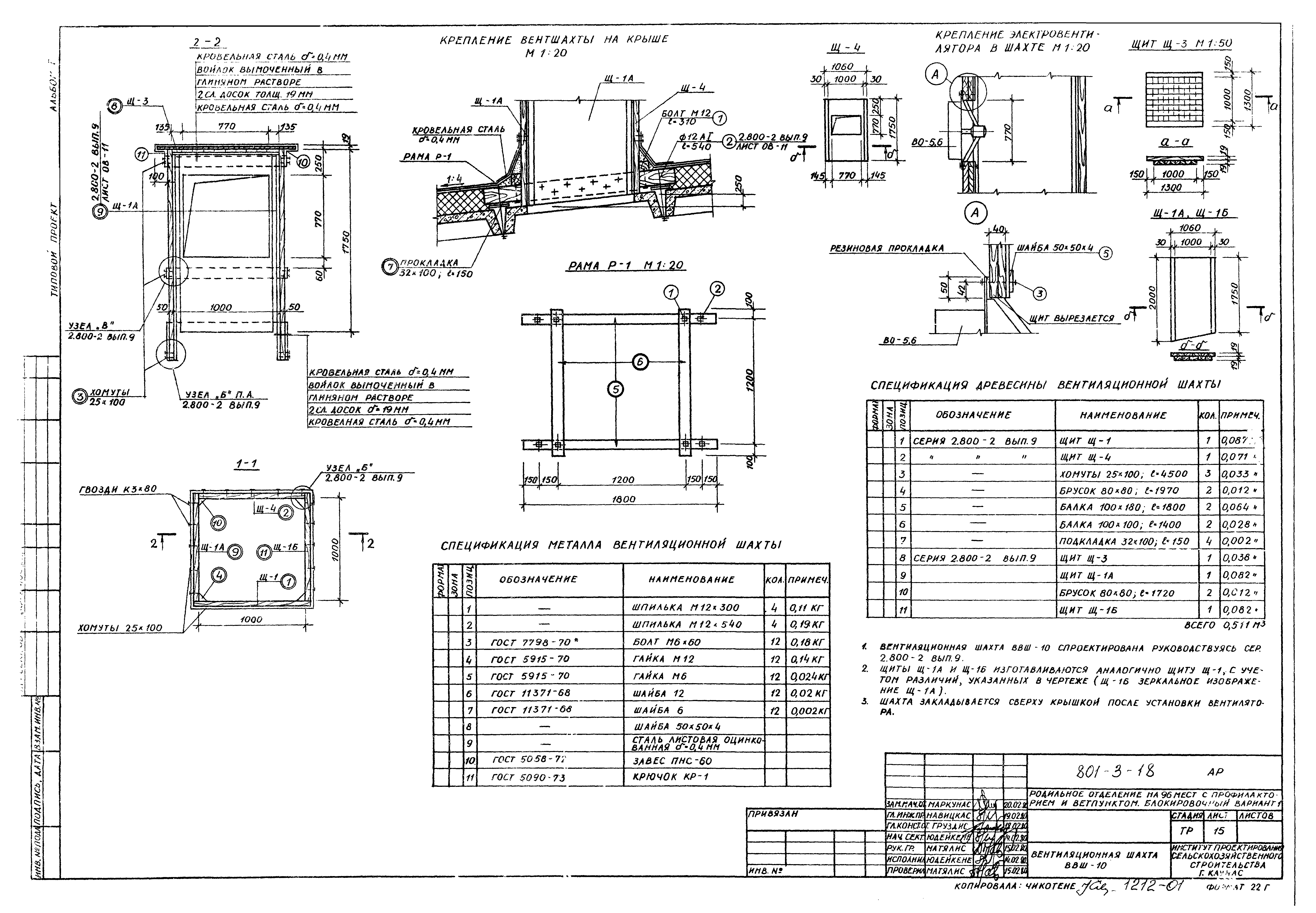
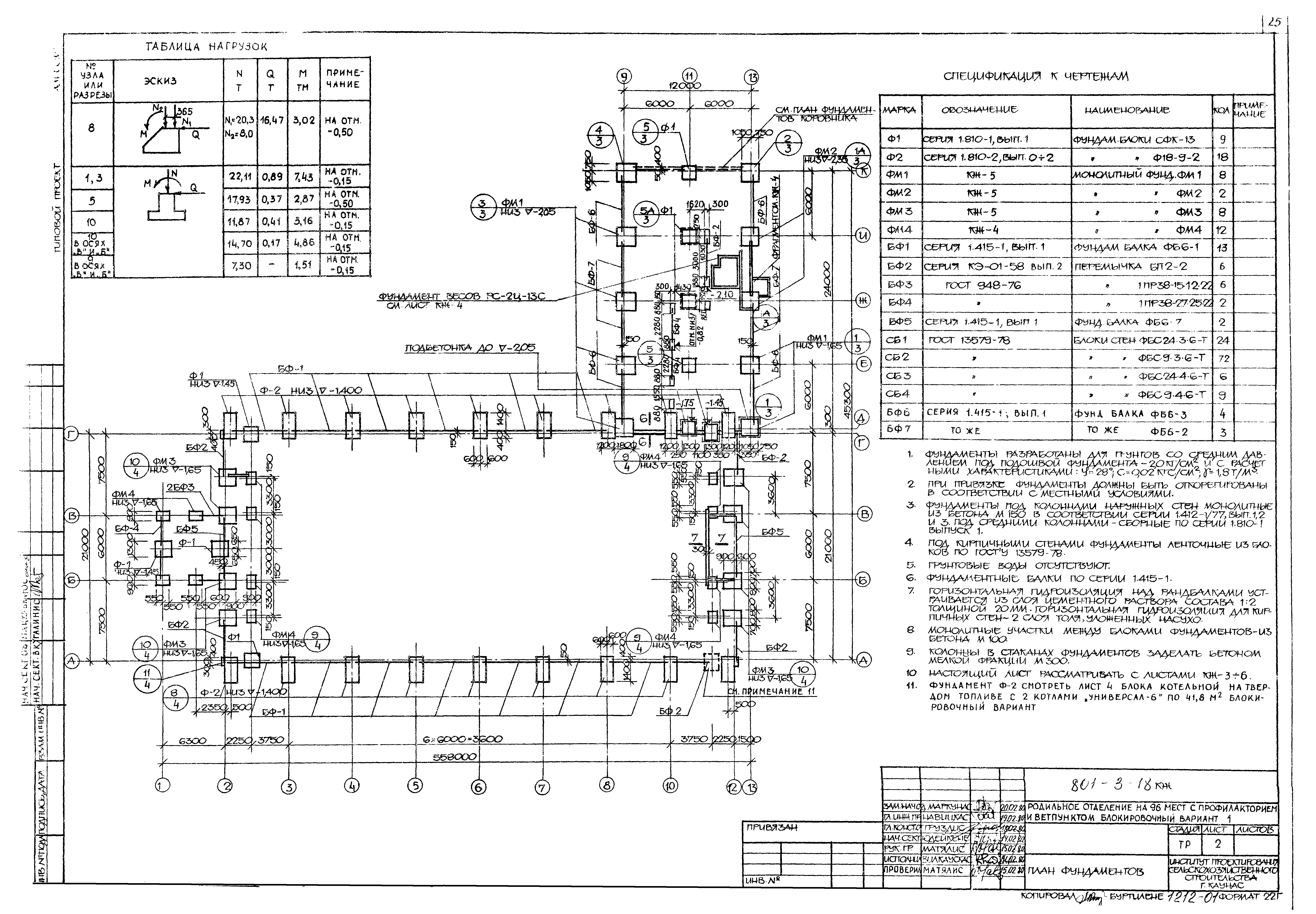
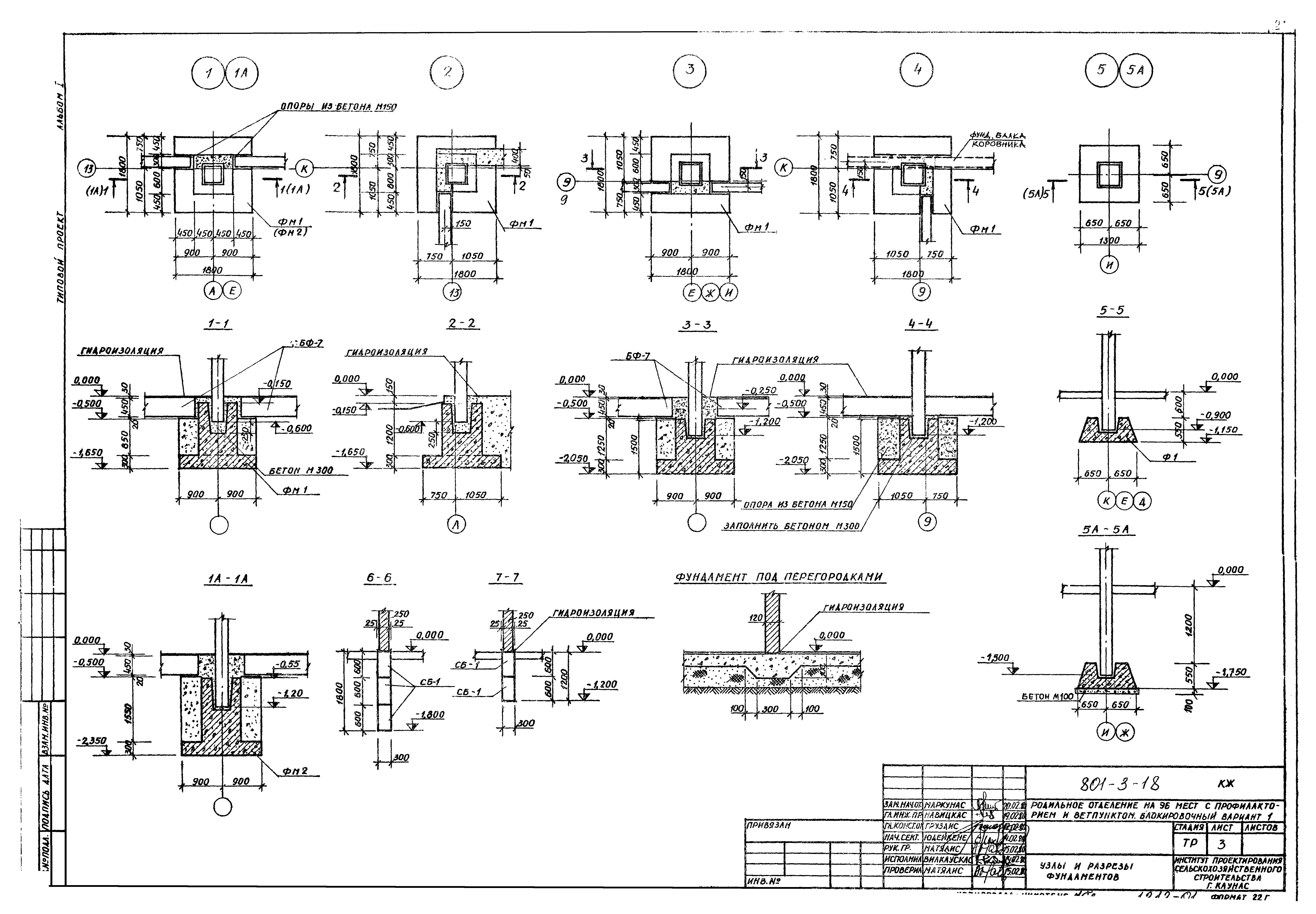
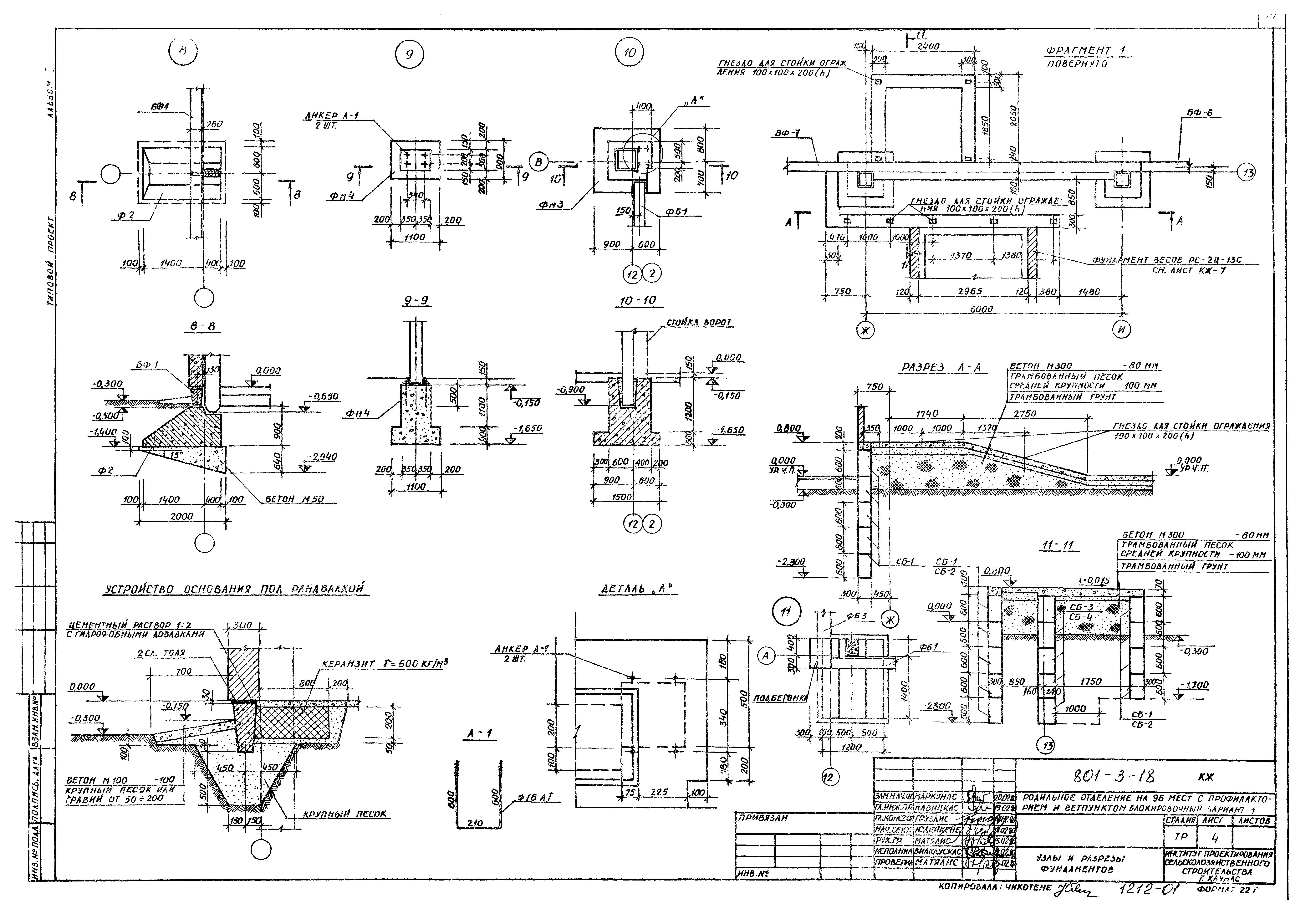
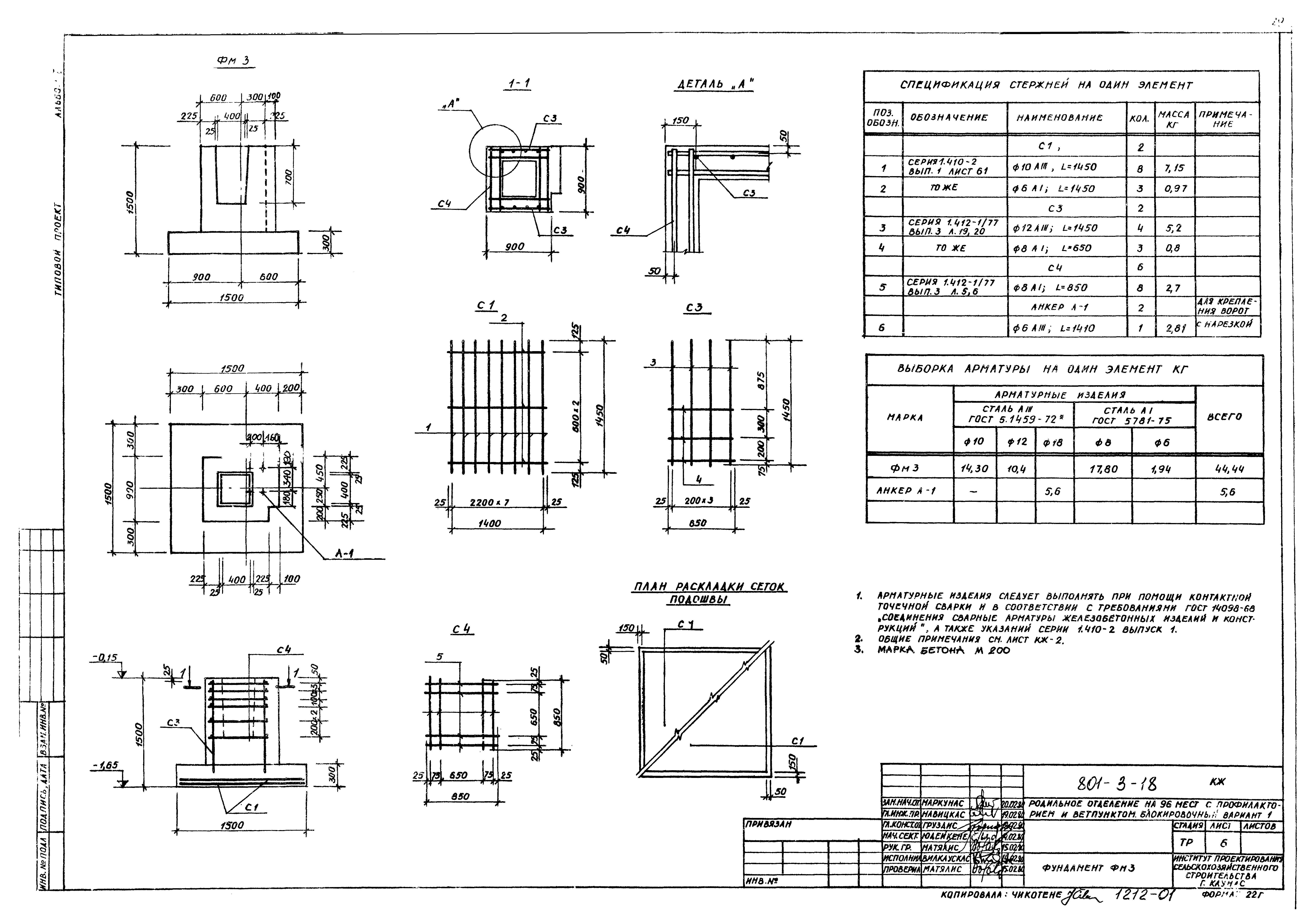
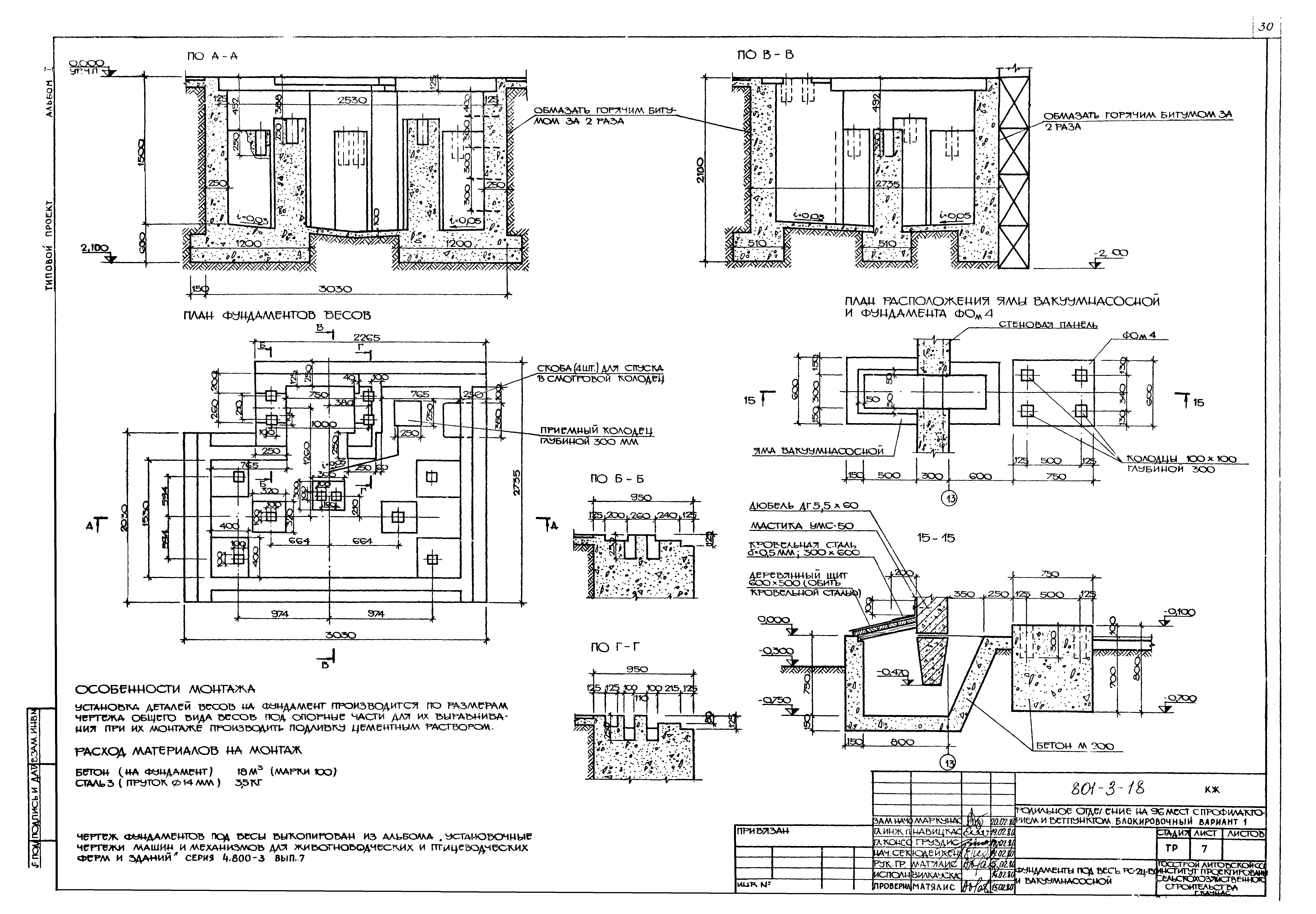
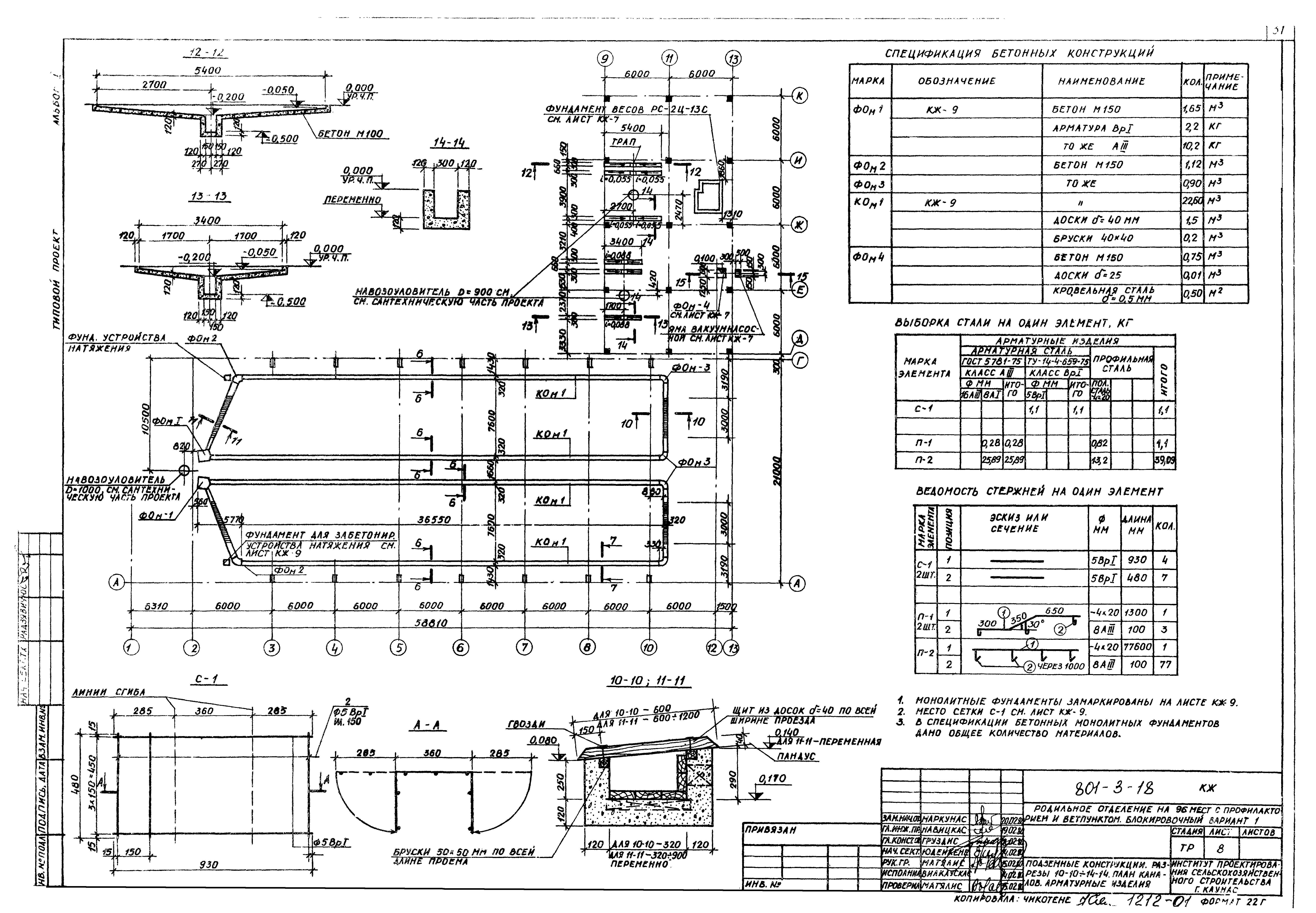
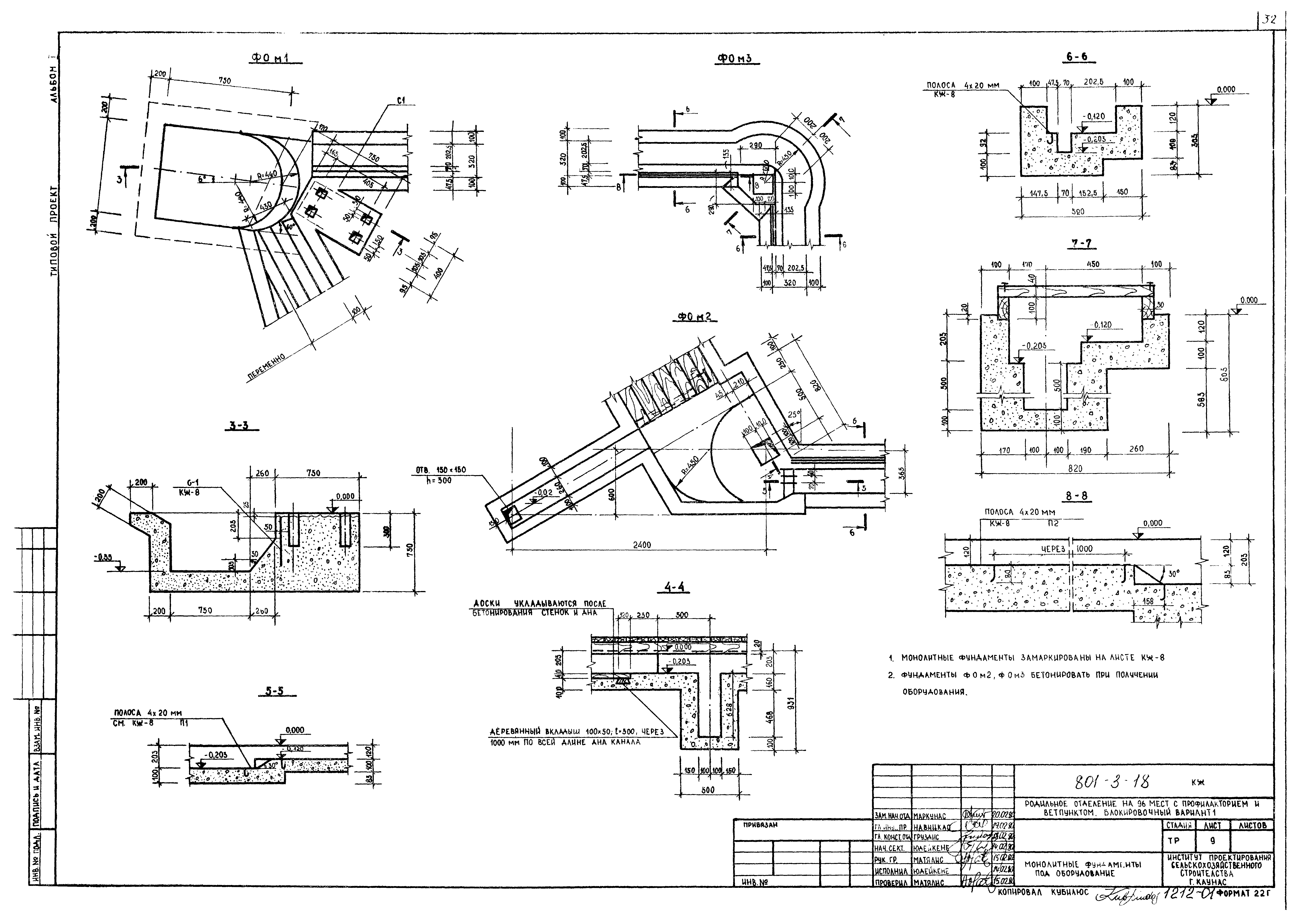
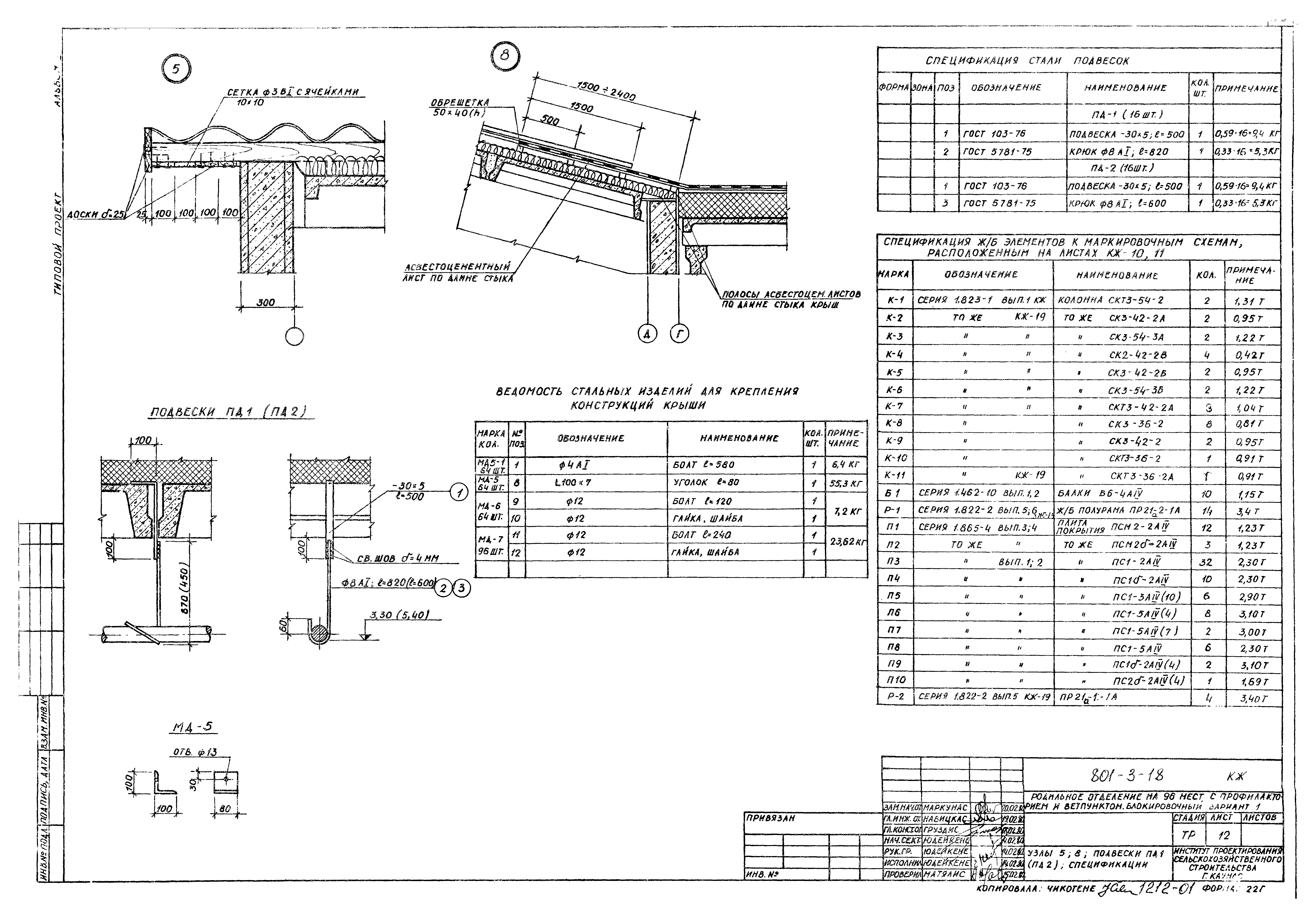
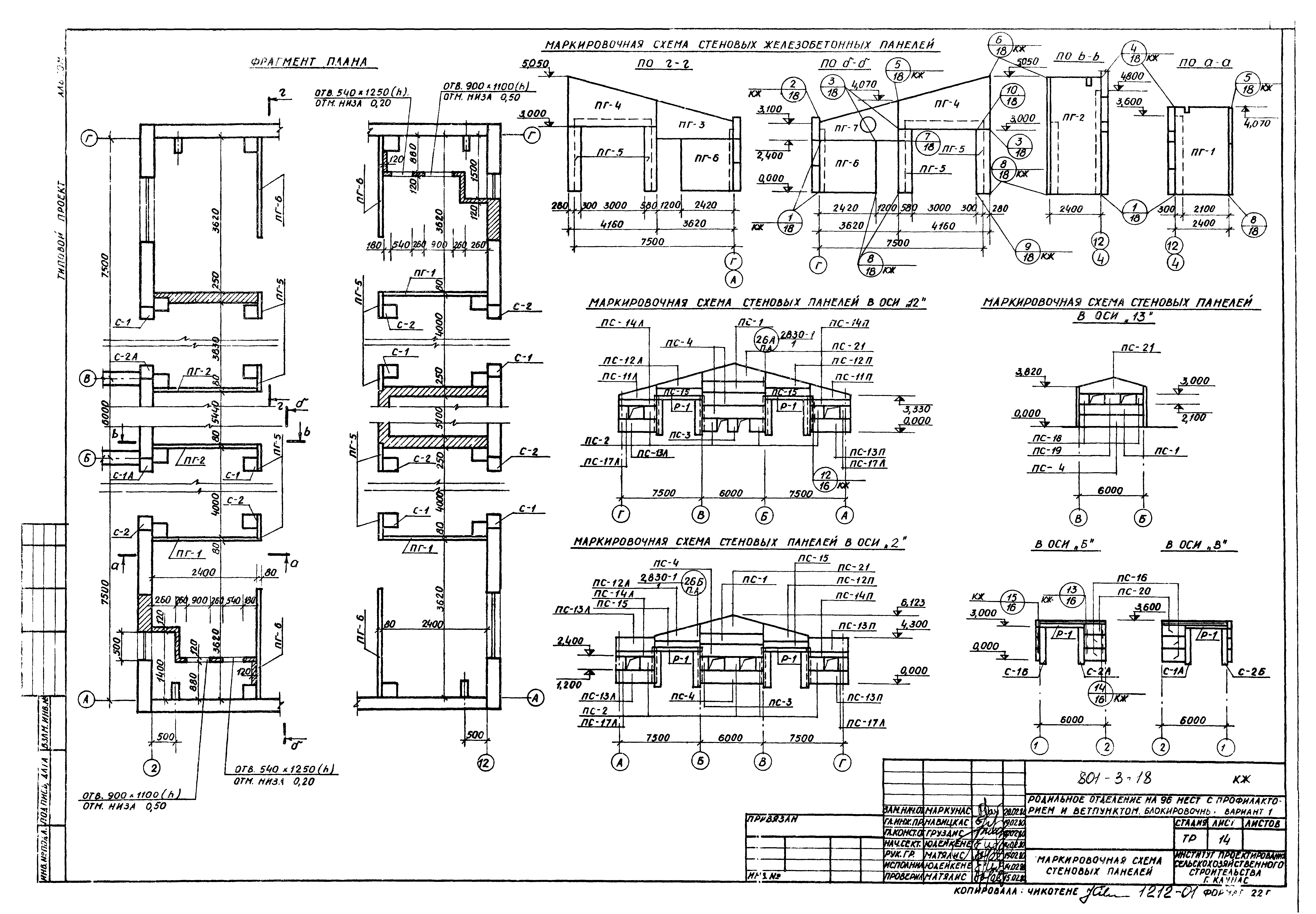
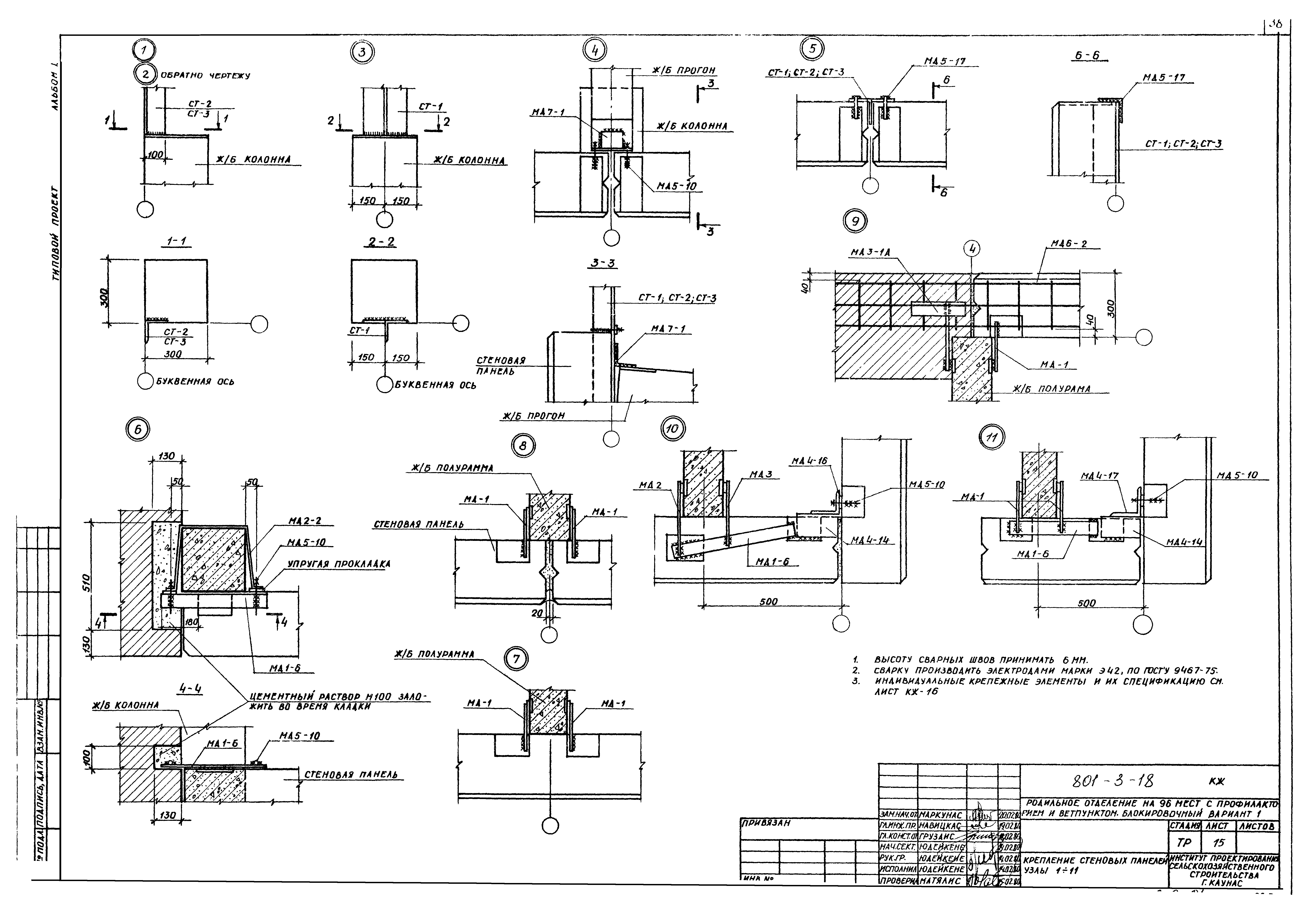
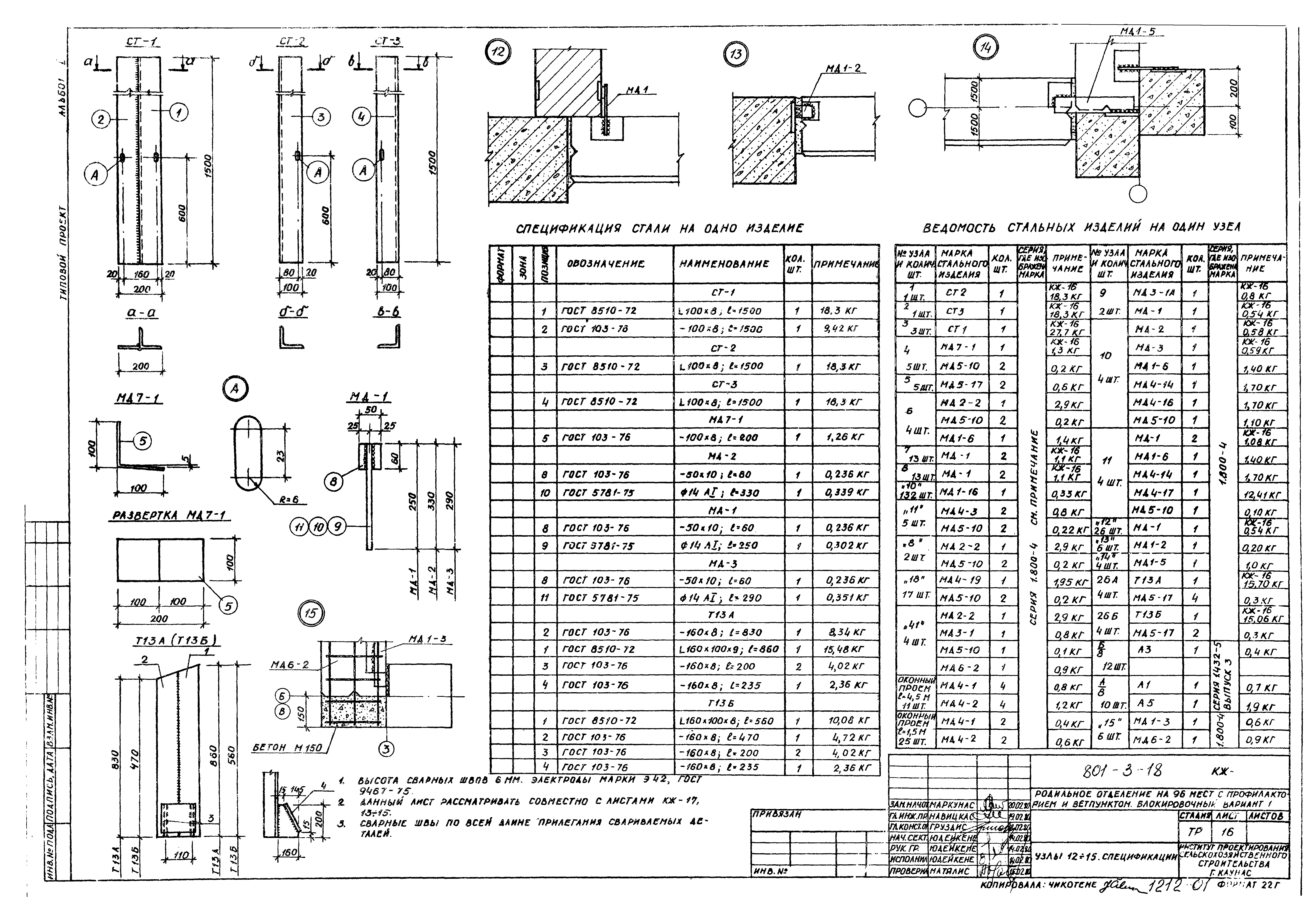
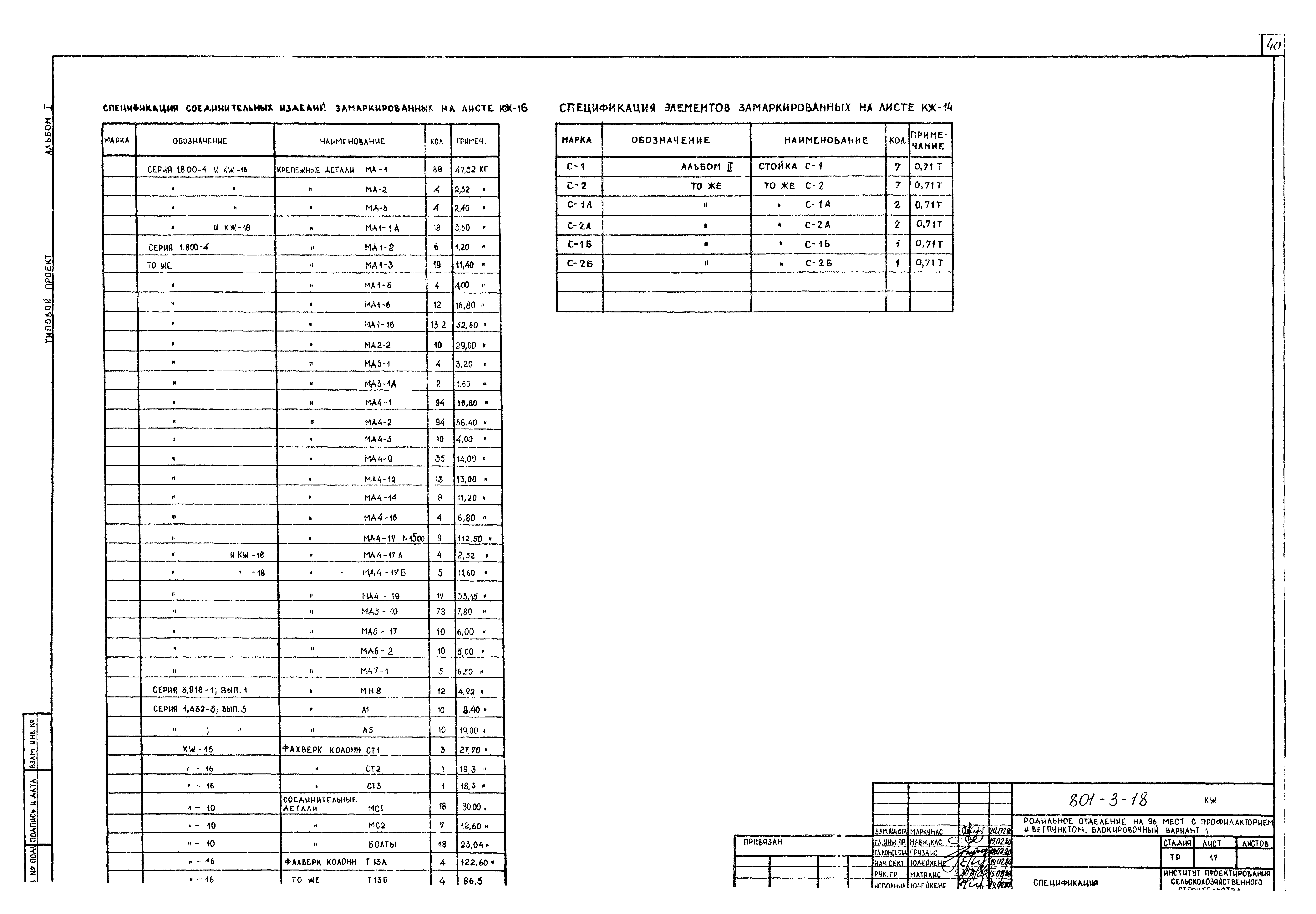
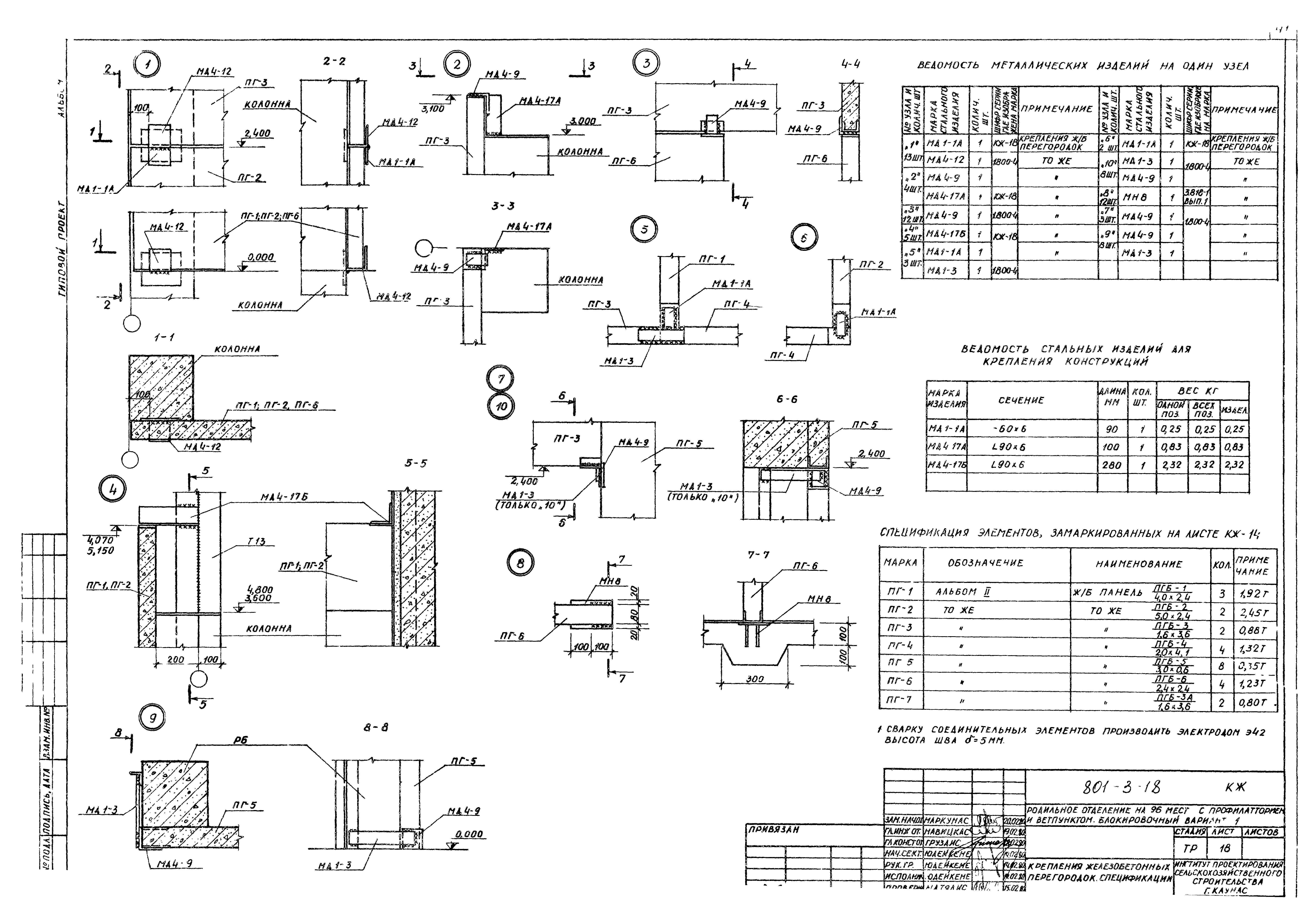
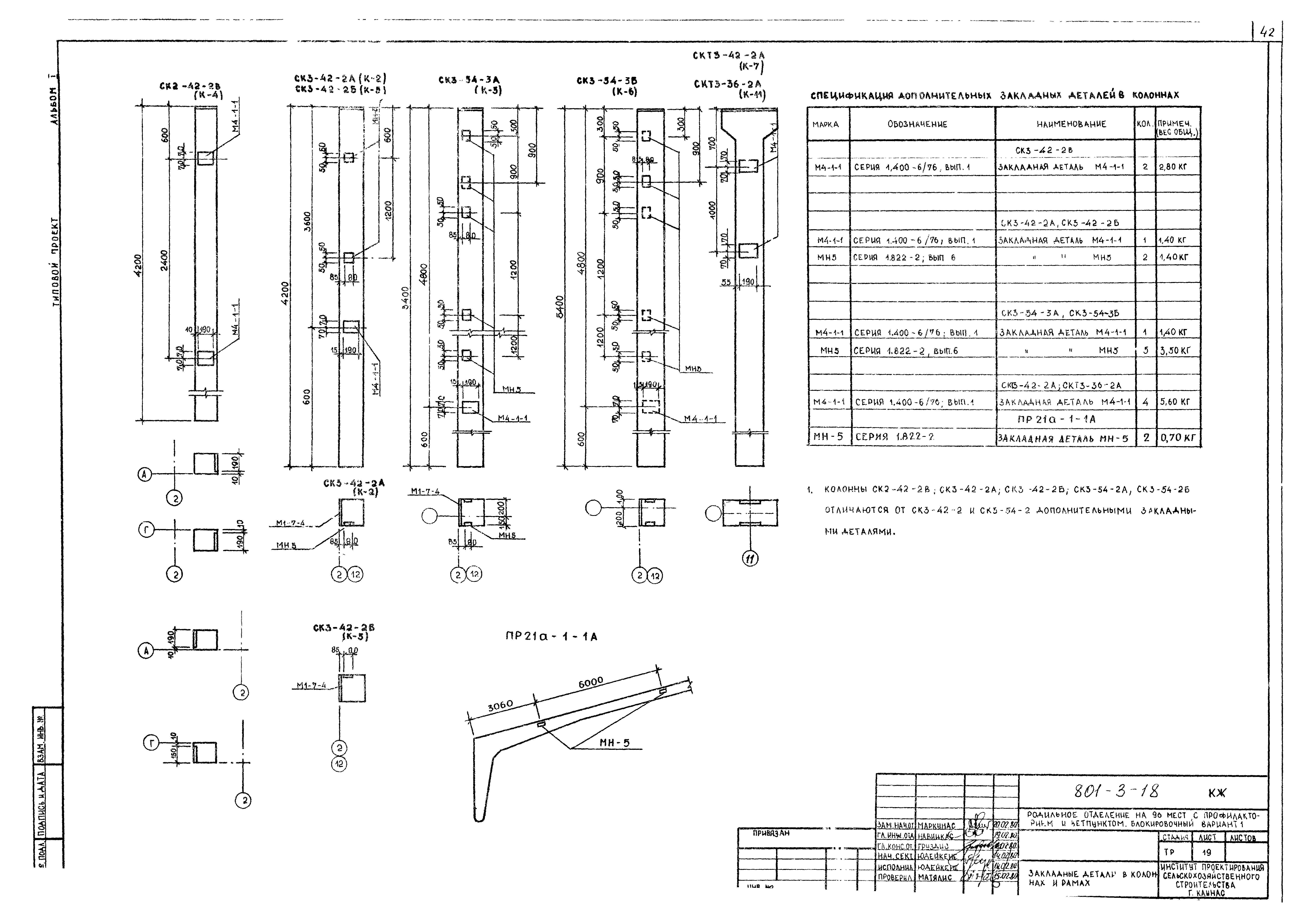
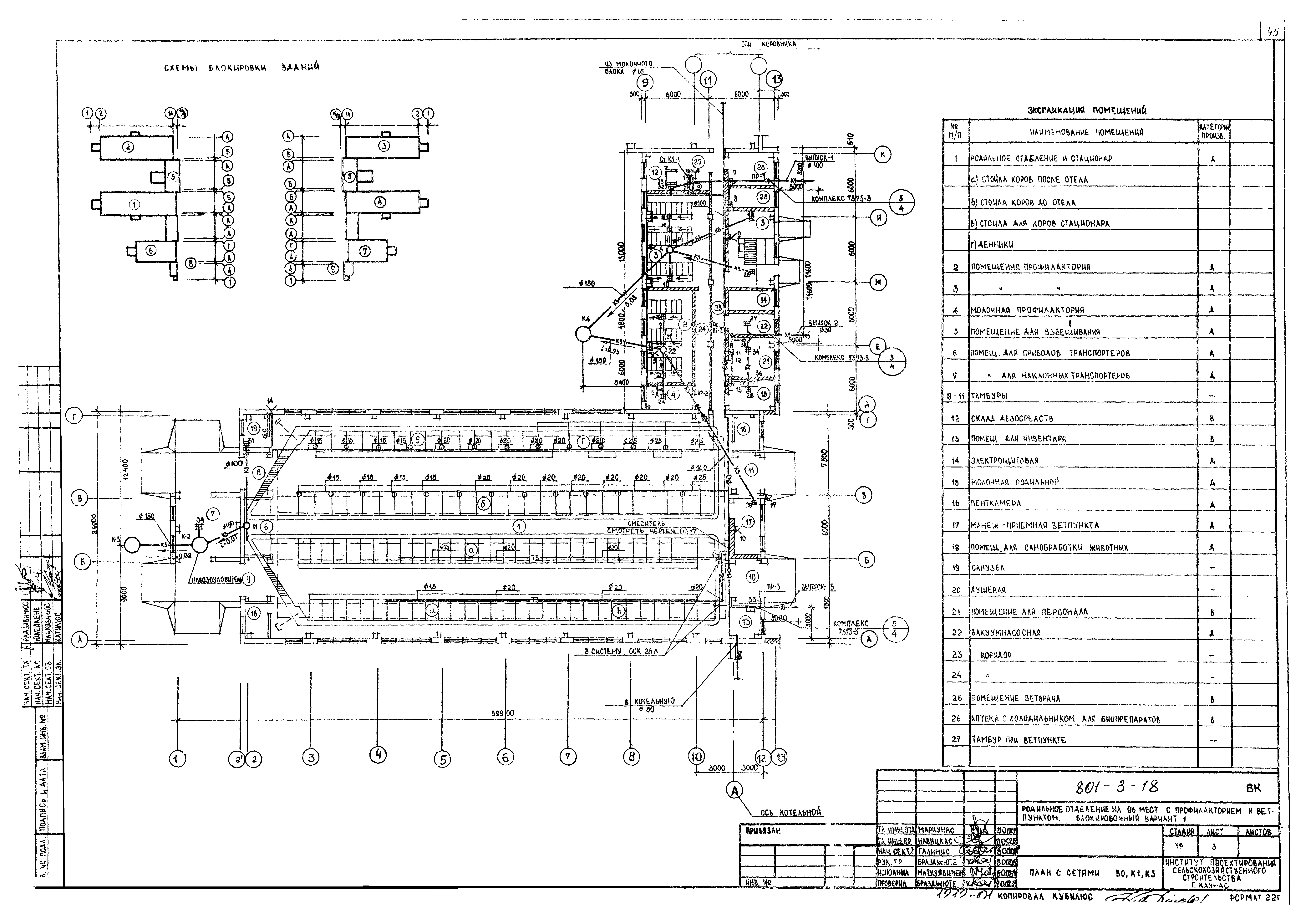
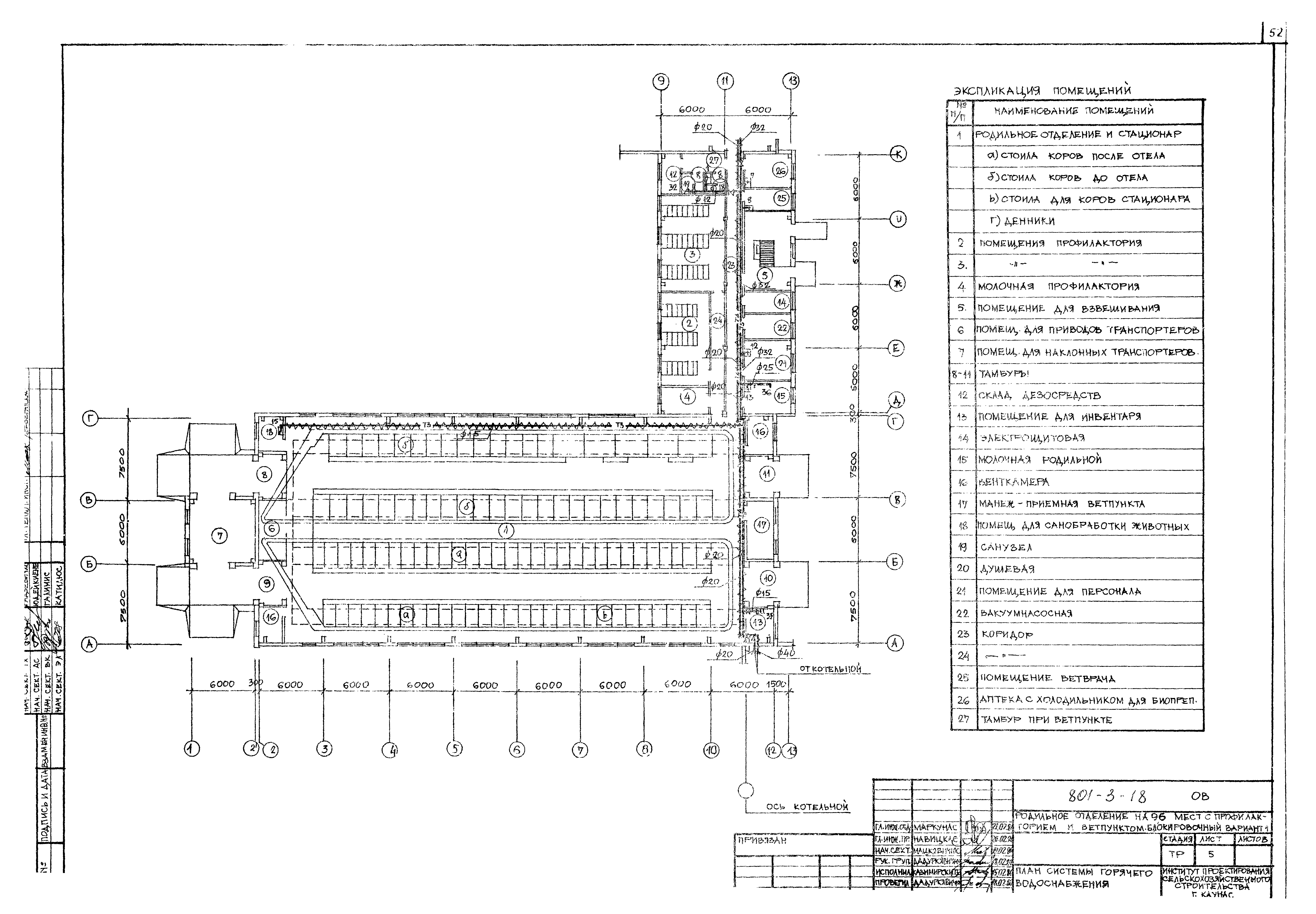
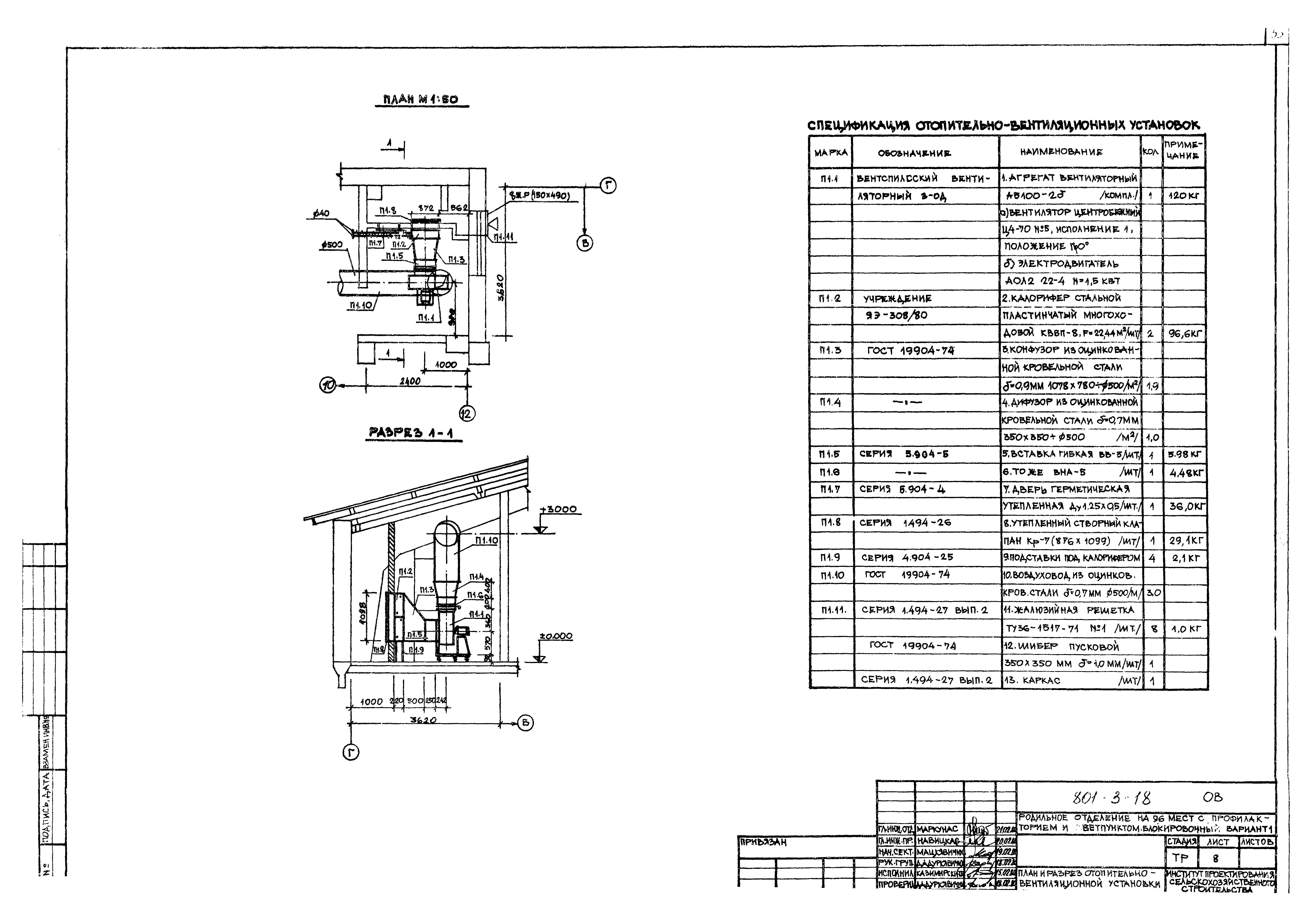
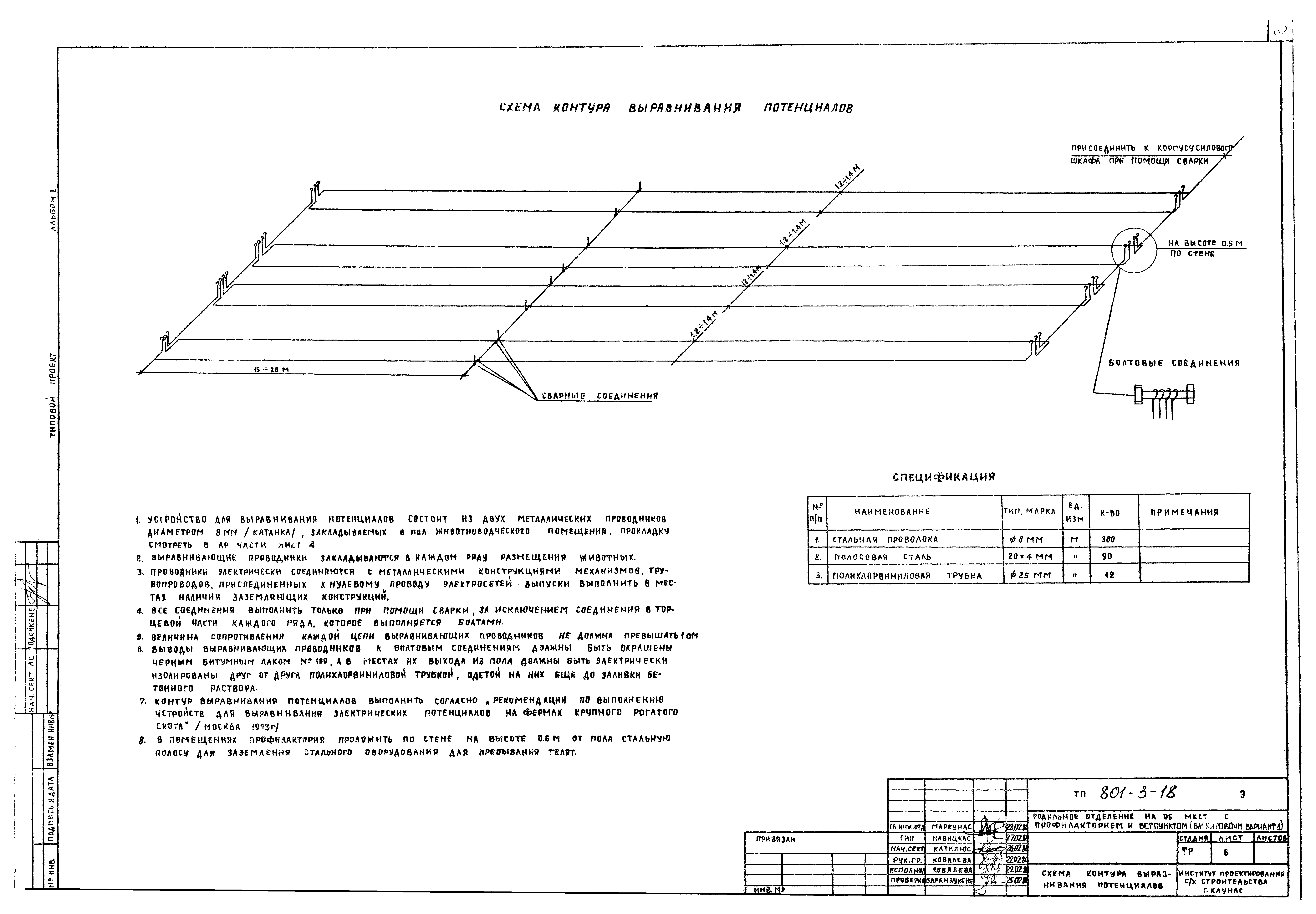
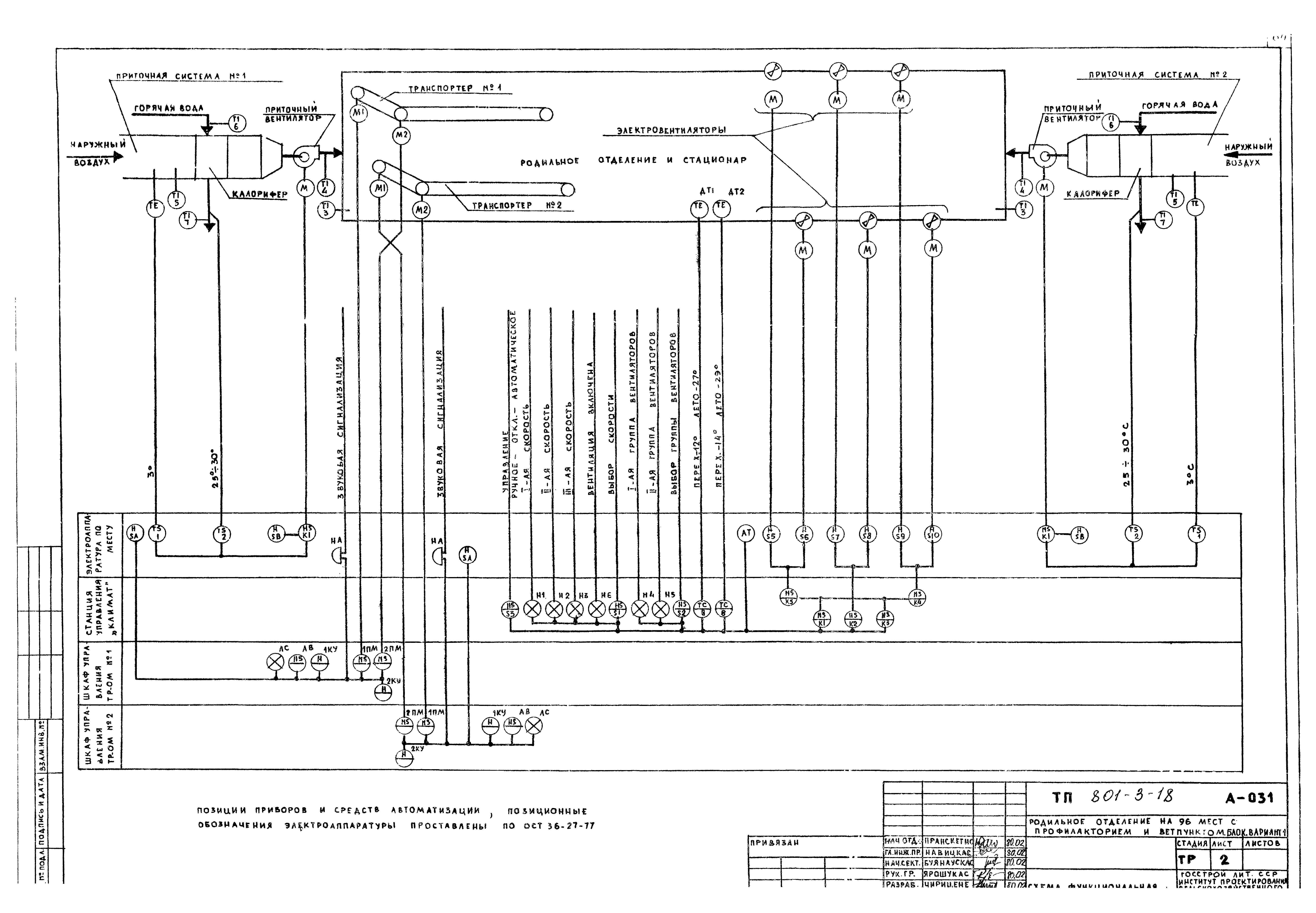
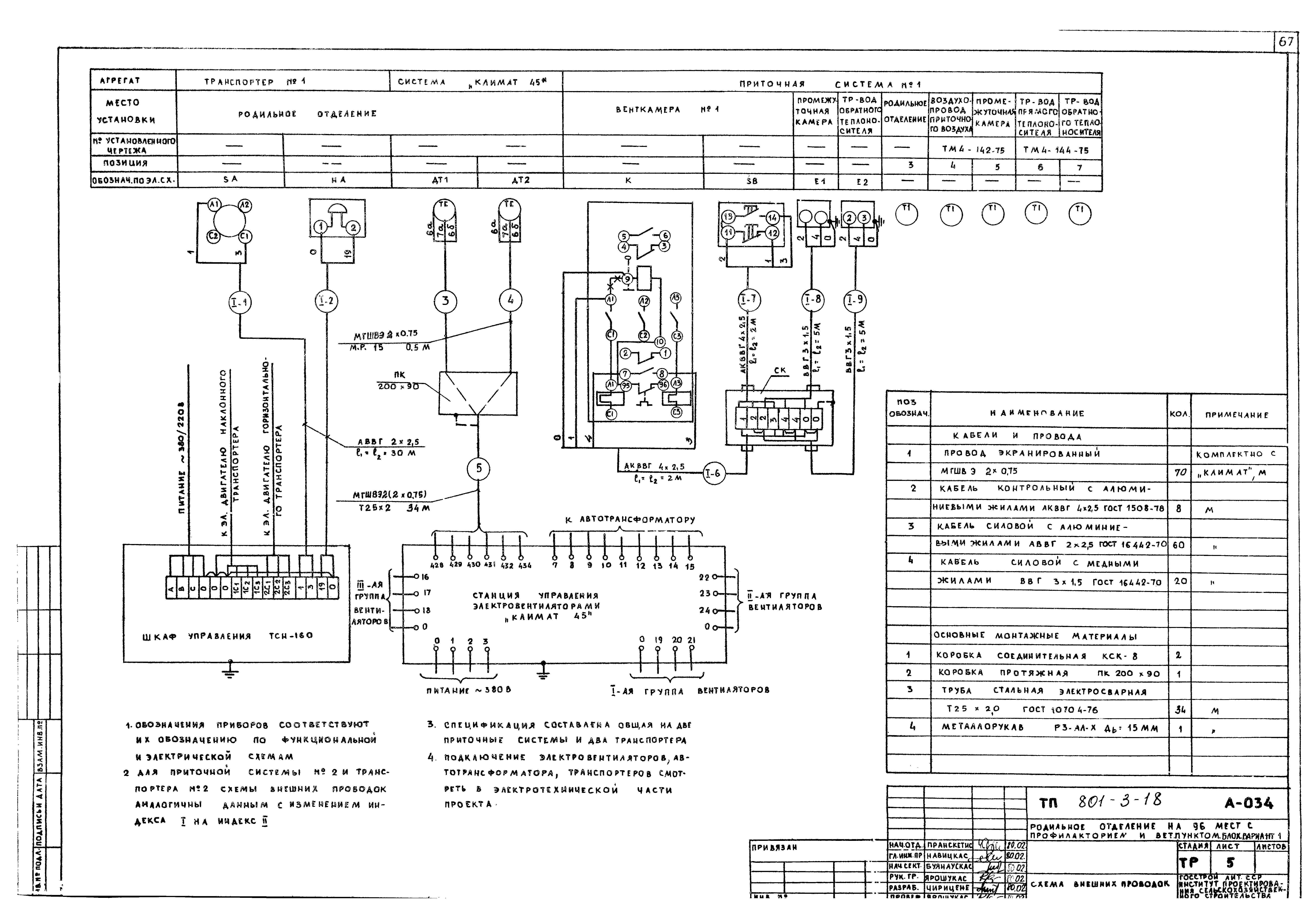
| Оглавление: | ПЗ Пояснительная записка Общие данные ТХ Технологические решения Общие данные План с расположением технологического оборудования Разрезы А-А; Б-Б; Г-Г; В-В; Д-Д Монтажная схема транспортера ТСН-160. Разрезы А-А; Б-Б; Г-Г; Д-Д; Ж-Ж; Е-Е; F-F; С-С; Н-Н АР Архитектурно-строительные решения Общие данные План на отм. 0.00 в зеркальном изображении Разрезы 1-1; 2-2. Узел 1, 2 Фасады А-К; К-А; 1-12; 12-1 Схемы заполнения оконных проемов. План полов. План кровли. Узел 9 Узлы 1 - 4 План ограждений на отм. 0.000 Ограждение ОГ Фрагмент плана "1". Разрезы 1-1; 6-6 Фрагменты плана "2", "3", "4". Разрезы 7-7; 8-8; 9-9; 10-10 Спецификации элементов на одно изделие. Изделия МД1 - МД10; МП1 Панели перегородок ОГ1 - ОГ8. Панели калиток КЛ-1; КЛ-2, КЛ-3 Узлы 1 - 15. Спецификация Спецификации Вентиляционная шахта ВВШ-10 КЖ Конструкции железобетонные Общие данные План фундаментов Узлы и разрезы фундаментов Фундамент Фм1, Фм2 Фундамент Фм3 Фундаменты под весь РС-2Ц-150 и вакуумно-насосной Подземные конструкции. Разрезы 10-10 - 14-14. План каналов. Арматурные изделия Монолитные фундаменты под оборудование Маркировочная схема железобетонных рам, колонн и ригелей. Узел 1 Маркировочная схема плит покрытия. Узлы 2, 3, 4, 5 Узлы 5, 8. Подвески ПД1 (ПД2). Спецификации Маркировочные схемы стеновых панелей Крепление стеновых панелей Узлы 12 - 15. Спецификации Спецификация Крепление железобетонных перегородок. Спецификации Закладные детали в колоннах и рамах ВК Внутренние водопровод и канализация Общие данные Сводная спецификация систем водопровода и канализации План с сетями ВО, К1, К3 Схемы систем ВО и ТЗ Схемы систем К1 - К3 ОВ Отопление и вентиляция Общие данные План систем отопления и вентиляции План системы горячего водоснабжения Схемы систем отопления Схемы систем вентиляции и горячего водоснабжения План и разрез отопительно-вентиляционной установки Э Электроосвещение и электрооборудование Общие данные Схема принципиальная распределительной сети Кабельный журнал Расположение электрооборудования и прокладка кабелей План с электросетями освещения Схема контура выравнивания потенциалов АП Автоматизация производства Общие данные Схема функциональная Приточная система. Транспортер ТСН-160. Схема электрическая принципиальная Схема внешних проводок План расположения СУ Слаботочные устройства Общие данные План на отм. 0.000 |
| Разработан: | Госстрой Лит. ССР |
| Утверждён: | 29.12.1978 Министерство сельского хозяйства Литовской ССР (1630) |






































































