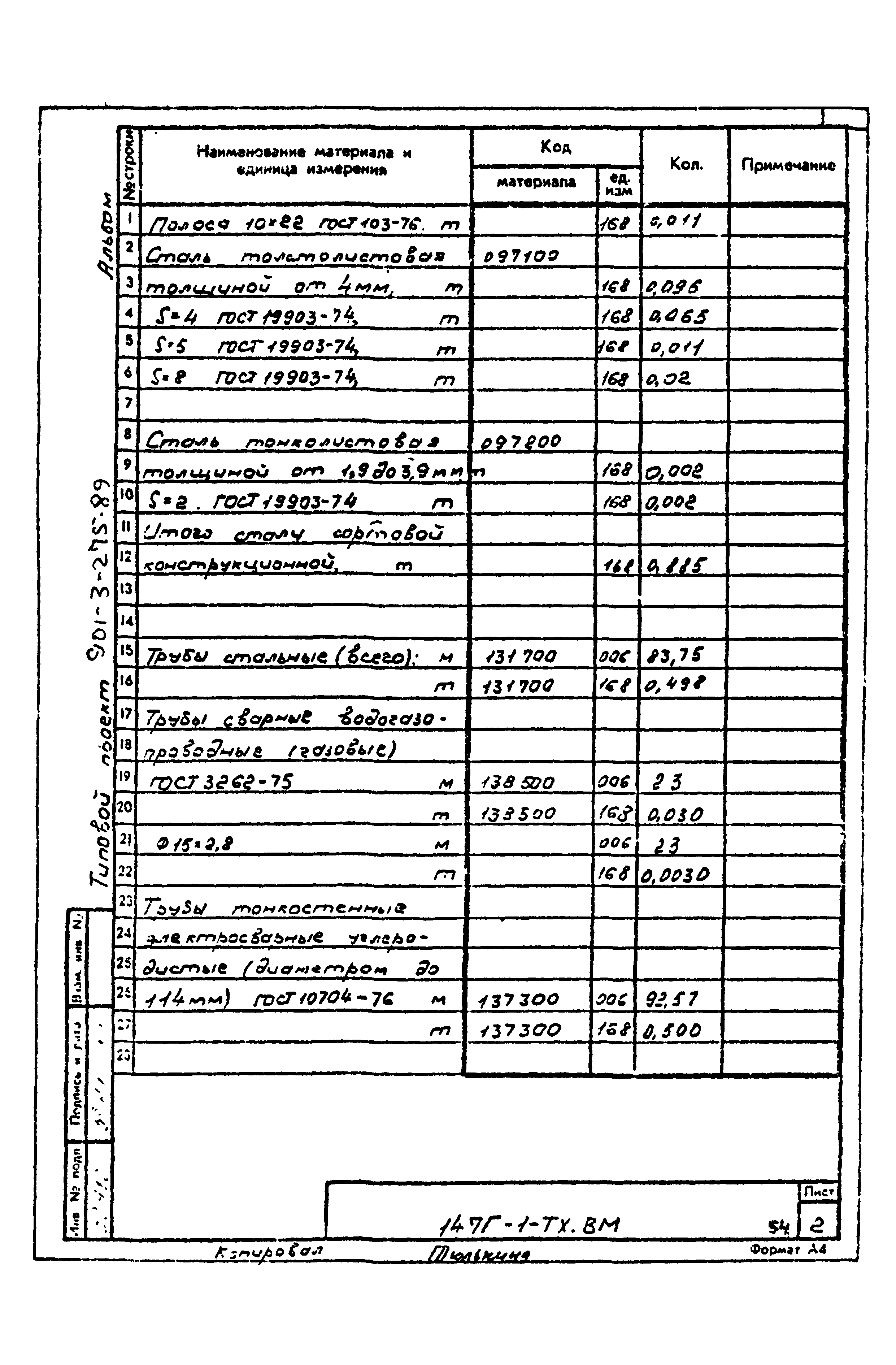
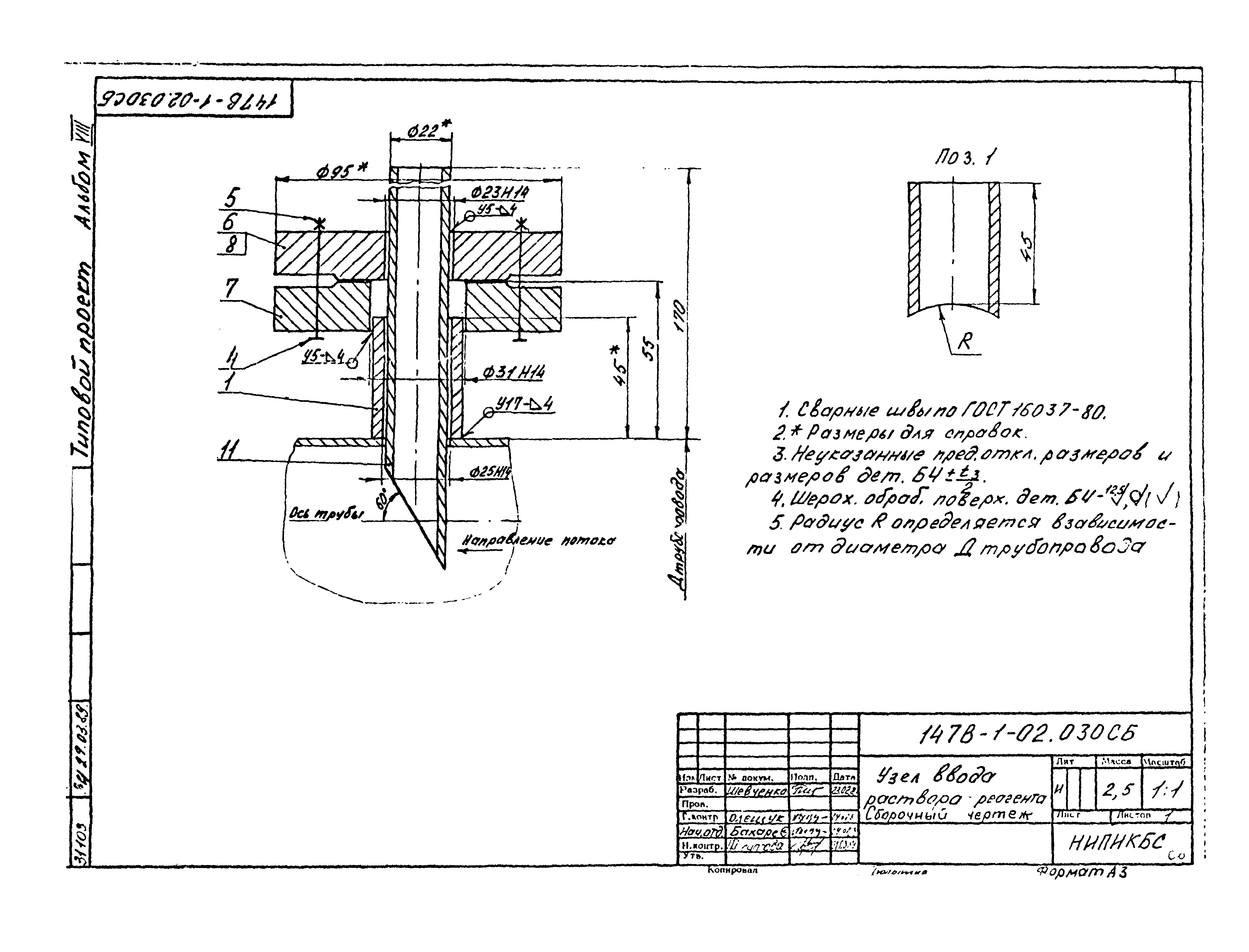
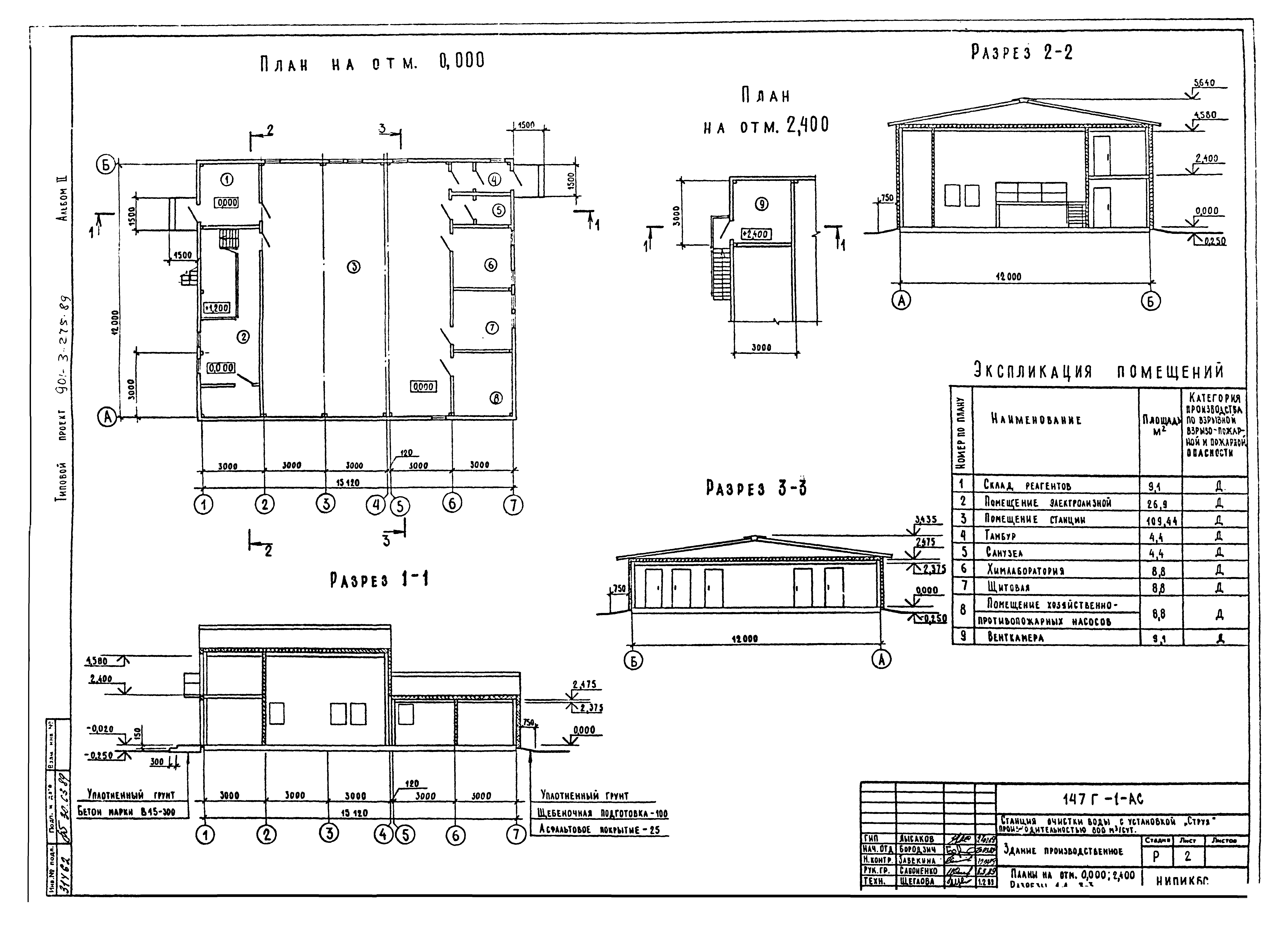
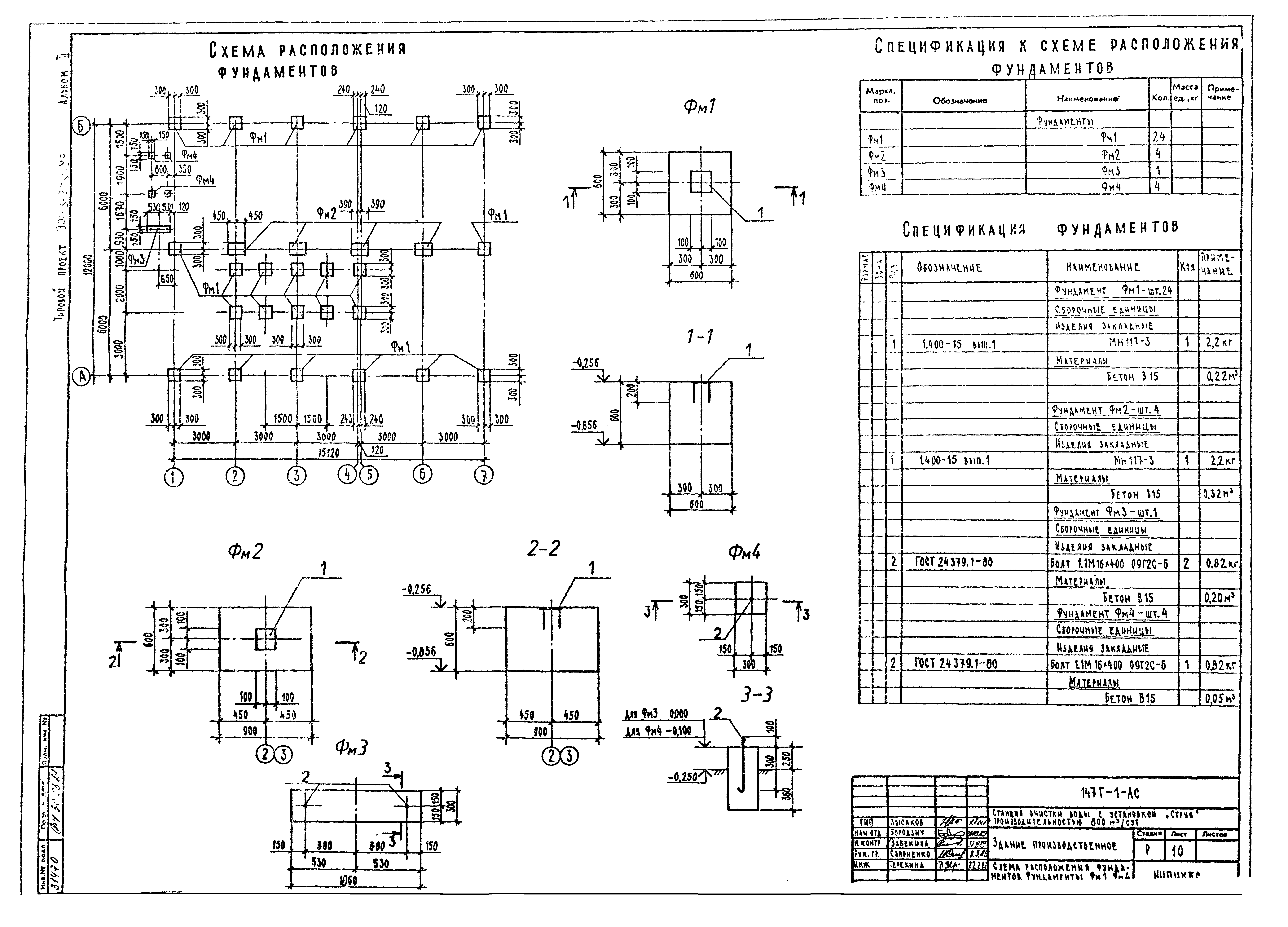
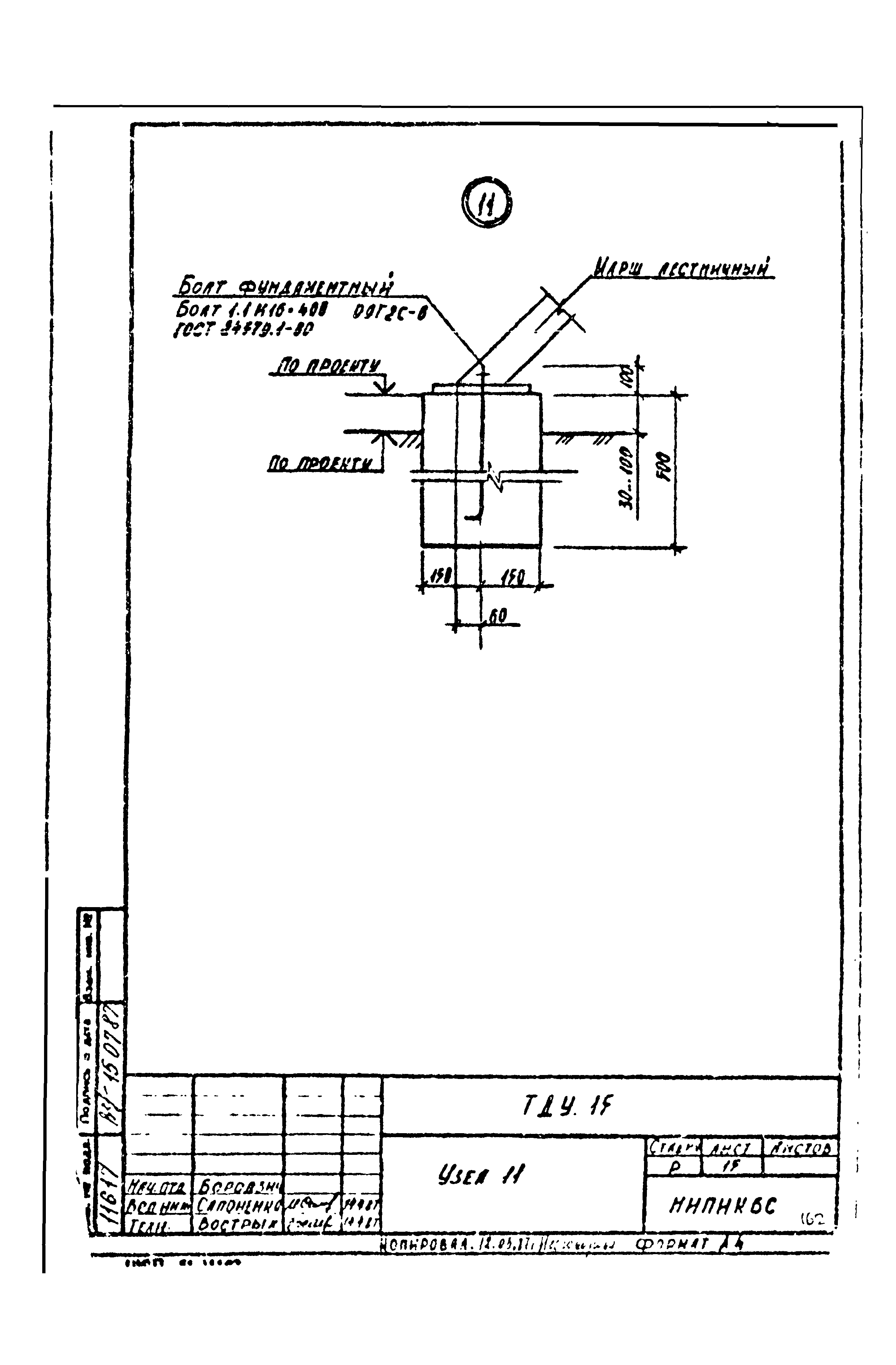
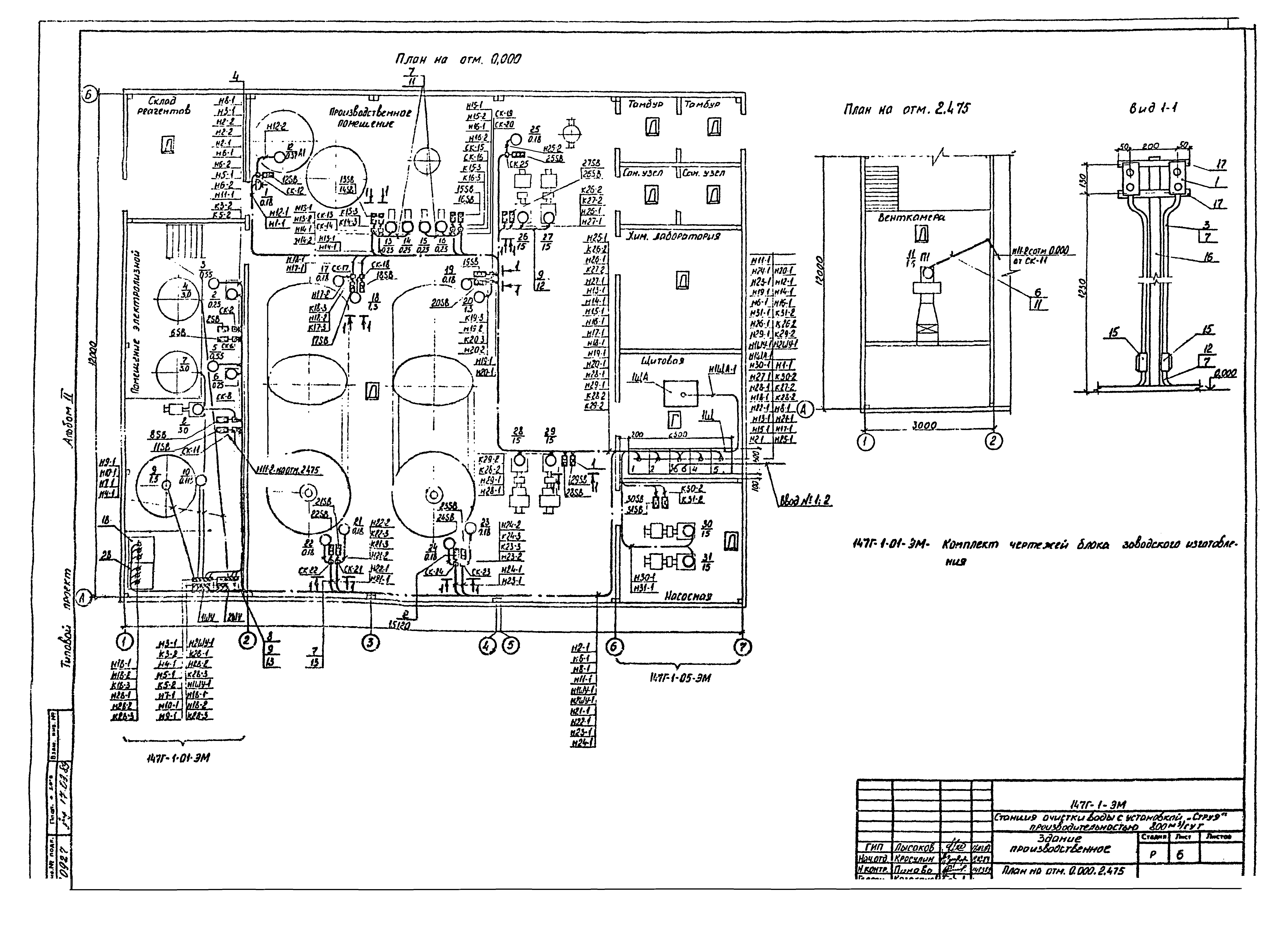
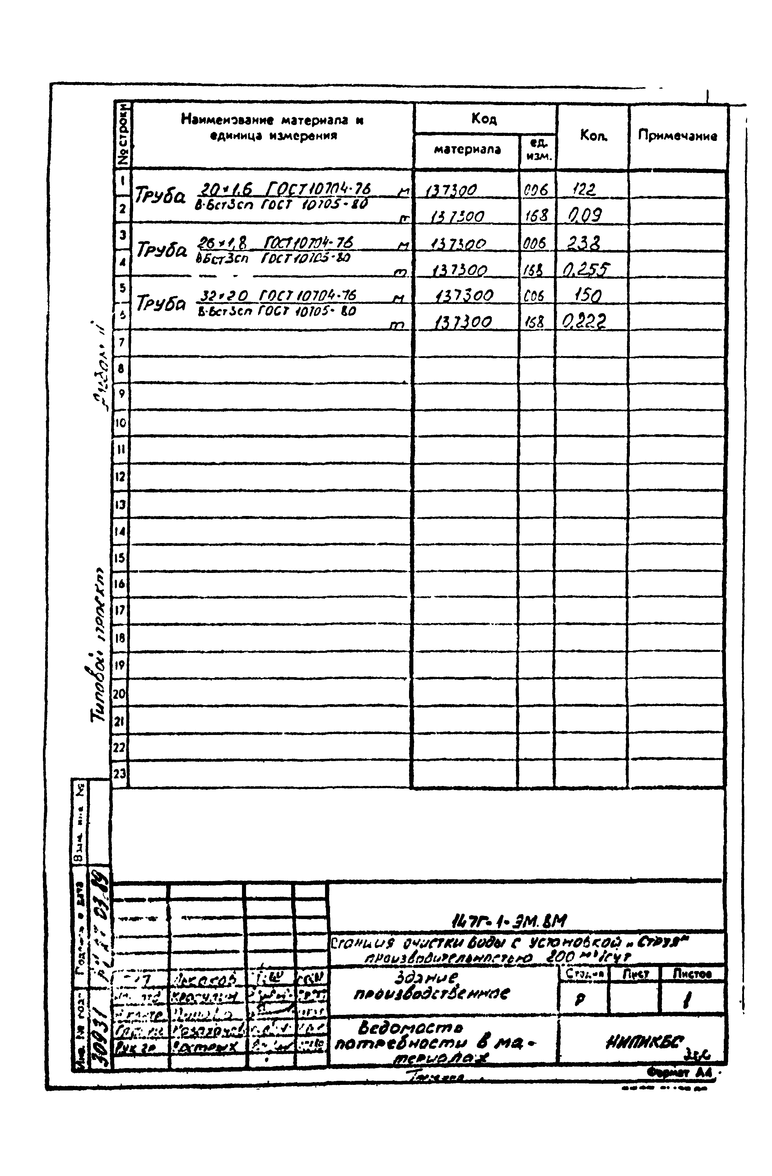
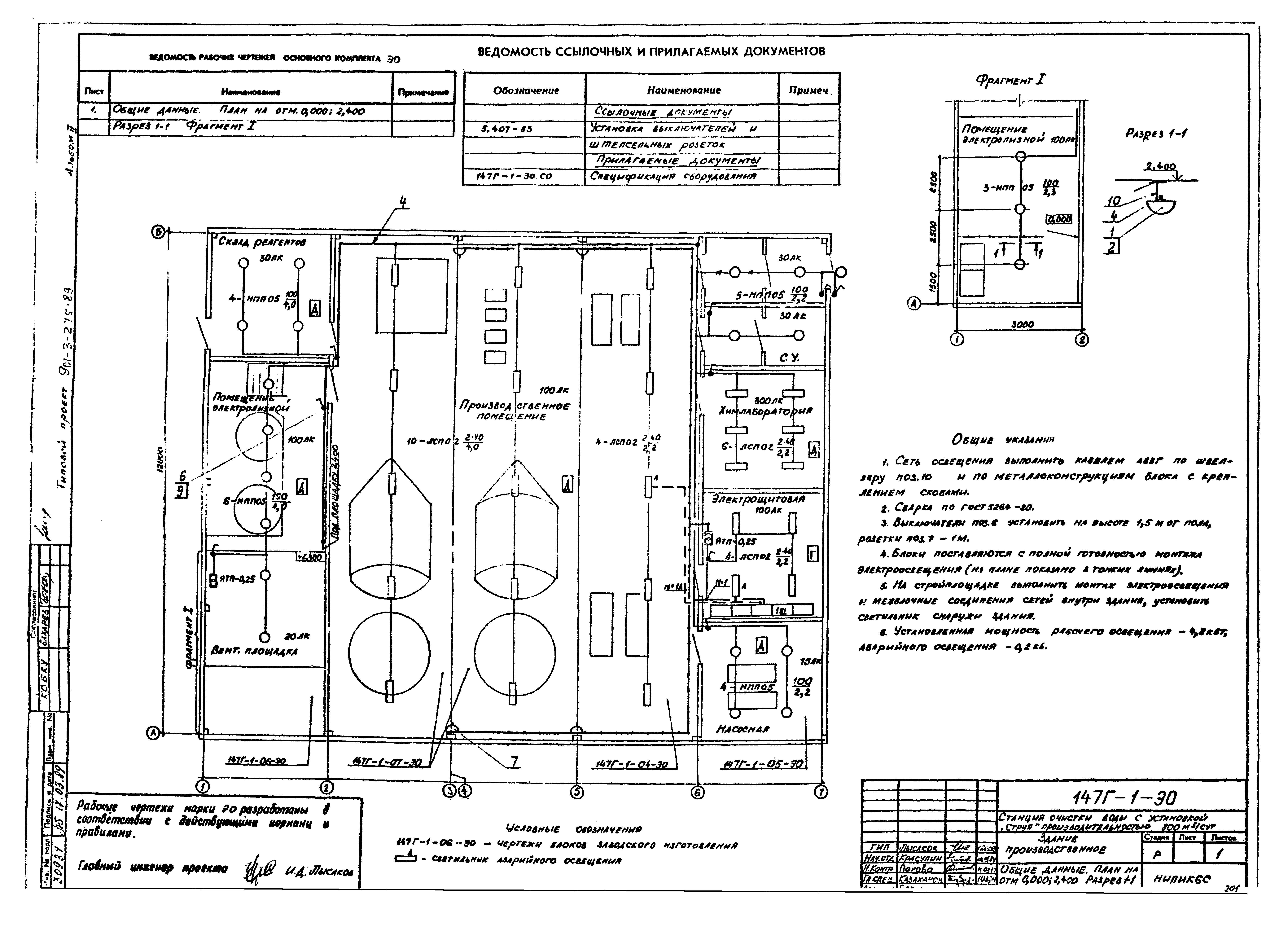
Скачать Типовой проект 901-3-275.89 Альбом 2. Рабочие чертежи и документации для производства работ на строительной площадкеДата актуализации: 01.01.2021
|
| Обозначение: | Типовой проект 901-3-275.89 |
| Обозначение англ: | 901-3-275.89 |
| Статус: | не определен законодательством |
| Название рус.: | Альбом 2. Рабочие чертежи и документации для производства работ на строительной площадке |
| Дата добавления в базу: | 01.09.2013 |
| Дата актуализации: | 01.01.2021 |
| Дата введения: | 24.07.1989 |
| Дата окончания срока действия: | 30.06.2003 |
| Разработан: | НИПИ КБС Миннефтегазстроя |
| Утверждён: | 05.12.1988 Главное техническое управление Миннефтегазстроя |
| Издан: | ЦИТП Госстроя СССР (CITP, Gosstroy (USSR) 1990 г. ) |






































































































































































































































