Скачать Шифр А614А Линии электроосвещения с люминесцентными лампами во взрывоопасных помещениях в трубахДата актуализации: 01.01.2021
|
| Обозначение: | Шифр А614А |
| Обозначение англ: | А614А |
| Статус: | действует |
| Название рус.: | Линии электроосвещения с люминесцентными лампами во взрывоопасных помещениях в трубах |
| Дата добавления в базу: | 01.09.2013 |
| Дата актуализации: | 01.01.2021 |
| Дата введения: | 06.09.1977 |
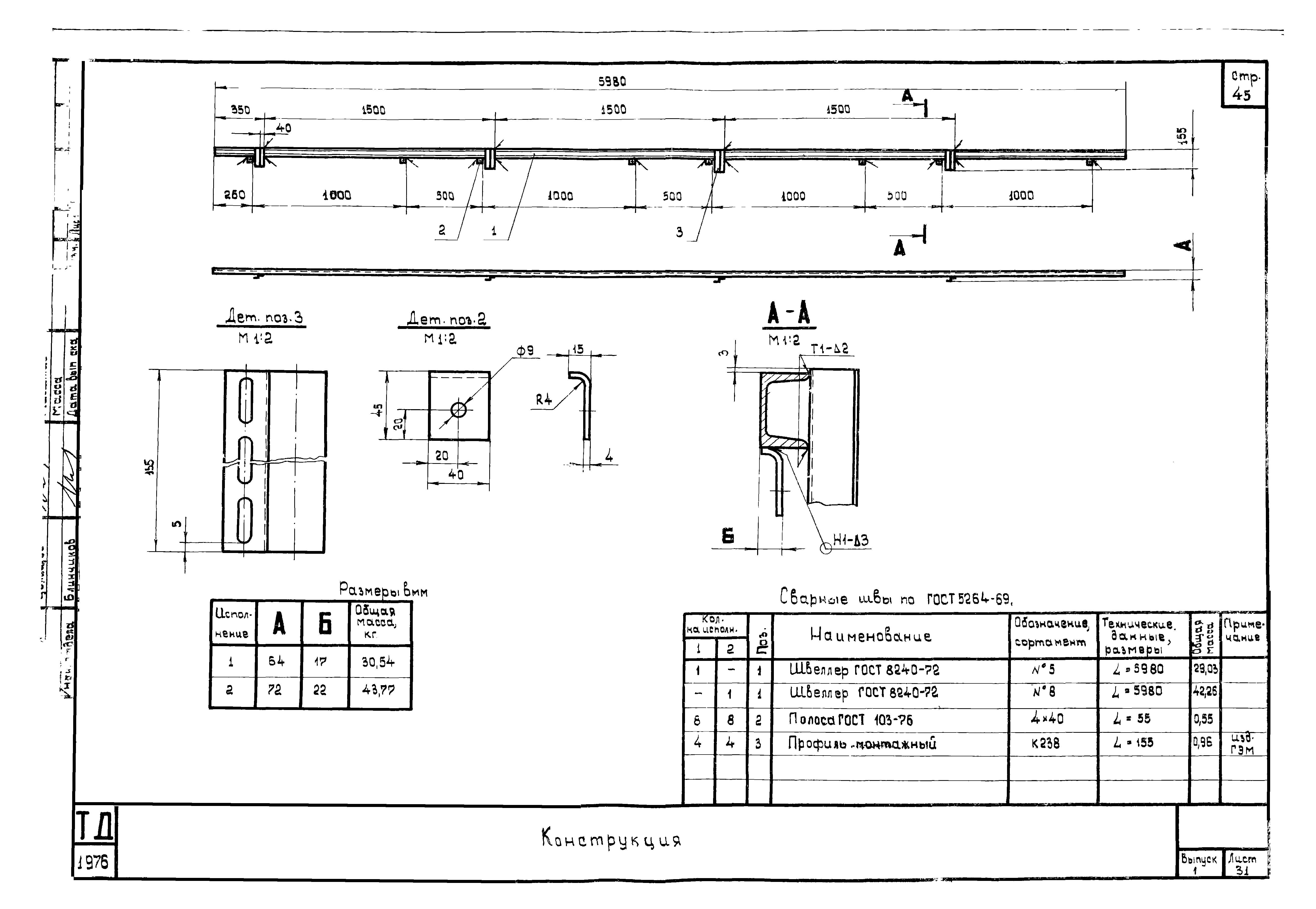
| Оглавление: | Содержание Пояснительная записка План линий электроосвещения. Пример Справочный материал Таблица выбора установочных чертежей Строительные задания Строительные задания на анкера для установки стойки Установочные чертежи Установка однорядного блока со светильниками типов НОГЛ-1х80, НОГЛ-2х80, НОДЛ-1х40 на кронштейнах Установка двухрядного блока со светильниками типов НОГЛ-1х80, НОГЛ-2х80, НОДЛ-1х40 на кронштейнах Установка однорядного блока со светильниками типов НОГЛ-1х80, НОГЛ-2х80, НОДЛ-1х40 с одной стороны колонн Установка двухрядного блока со светильниками типов НОГЛ-1х80, НОГЛ-2х80, НОДЛ-1х40 с одной стороны колонн Установка однорядного блока со светильниками типов НОГЛ-1х80, НОГЛ-2х80, НОДЛ-1х40 по обе стороны от колонн Установка двухрядного блока со светильниками типов НОГЛ-1х80, НОГЛ-2х80, НОДЛ-1х40 по обе стороны от колонн Установка однорядного блока со светильниками типов НОГЛ-1х80, НОГЛ-2х80, НОДЛ-1х40 поперек балок Установка двухрядного блока со светильниками типов НОГЛ-1х80, НОГЛ-2х80, НОДЛ-1х40 поперек балок Установка двухрядного блока со светильниками типов НОГЛ-1х80, НОГЛ-2х80, НОДЛ-1х40 поперек решетчатых балок Установка двухрядного блока со светильниками типов НОГЛ-1х80, НОГЛ-2х80, НОДЛ-1х40 поперек металлических ферм Установка однорядного блока со светильниками типов НОГЛ-1х80, НОГЛ-2х80, НОДЛ-1х40 поперек железобетонных плит перекрытия Установка двухрядного блока со светильниками типов НОГЛ-1х80, НОГЛ-2х80, НОДЛ-1х40 поперек железобетонных плит перекрытия Установка однорядного блока со светильниками типов НОГЛ-1х80, НОГЛ-2х80, НОДЛ-1х40 вдоль железобетонных плит перекрытия Установка двухрядного блока со светильниками типов НОГЛ-1х80, НОГЛ-2х80, НОДЛ-1х40 вдоль железобетонных плит перекрытия Установка однорядного блока со светильниками типов НОГЛ-1х80, НОГЛ-2х80, НОДЛ-1х40 на Г-образных стойках Установка двухрядного блока со светильниками типов НОГЛ-1х80, НОГЛ-2х80, НОДЛ-1х40 на Г-образных стойках Установка однорядного блока со светильниками типов НОГЛ-1х80, НОГЛ-2х80, НОДЛ-1х40 на Т-образных стойках Установка двухрядного блока со светильниками типов НОГЛ-1х80, НОГЛ-2х80, НОДЛ-1х40 на Т-образных стойках Сборочные чертежи и детали Блок однорядный Конструкция Блок двухрядный Конструкция Блок двухрядный Конструкция Блок однорядный Конструкция Блок двухрядный Конструкция Блок двухрядный Конструкция Кронштейн Основание Хомут Кронштейн Обхват Подвеска Растяжка Подвес Растяжка Основание Подвес Основание Прижим Шпилька Основание Растяжка Стойка Г-образная Стойка Т-образная Номенклатура изделий завода Габаритные, установочные размеры и масса светильников типов НОГЛ, НОДЛ |
| Разработан: | ВНИИПроектэлектромонтаж |
| Утверждён: | 06.09.1977 Тяжпромэлектропроект им. Ф.Б.Якубовского (213) |





































































