Скачать Шифр 24.07-00 Альбом I. Технологическая, архитектурно-строительная, сантехническая и электротехническая частиДата актуализации: 01.01.2021
|
| Обозначение: | Шифр 24.07-00 |
| Обозначение англ: | 24.07-00 |
| Статус: | не действует |
| Название рус.: | Альбом I. Технологическая, архитектурно-строительная, сантехническая и электротехническая части |
| Дата добавления в базу: | 01.09.2013 |
| Дата актуализации: | 01.01.2021 |
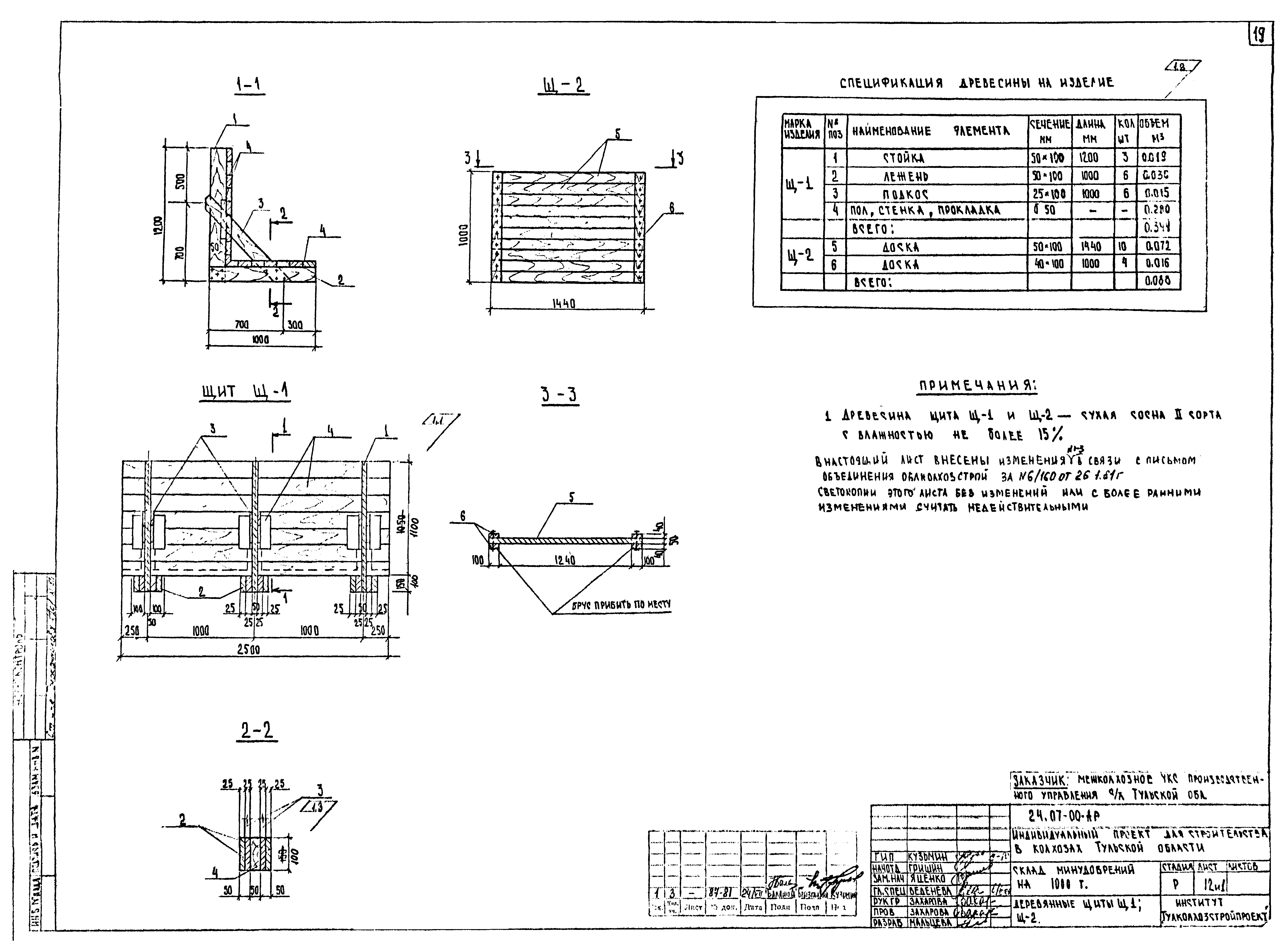
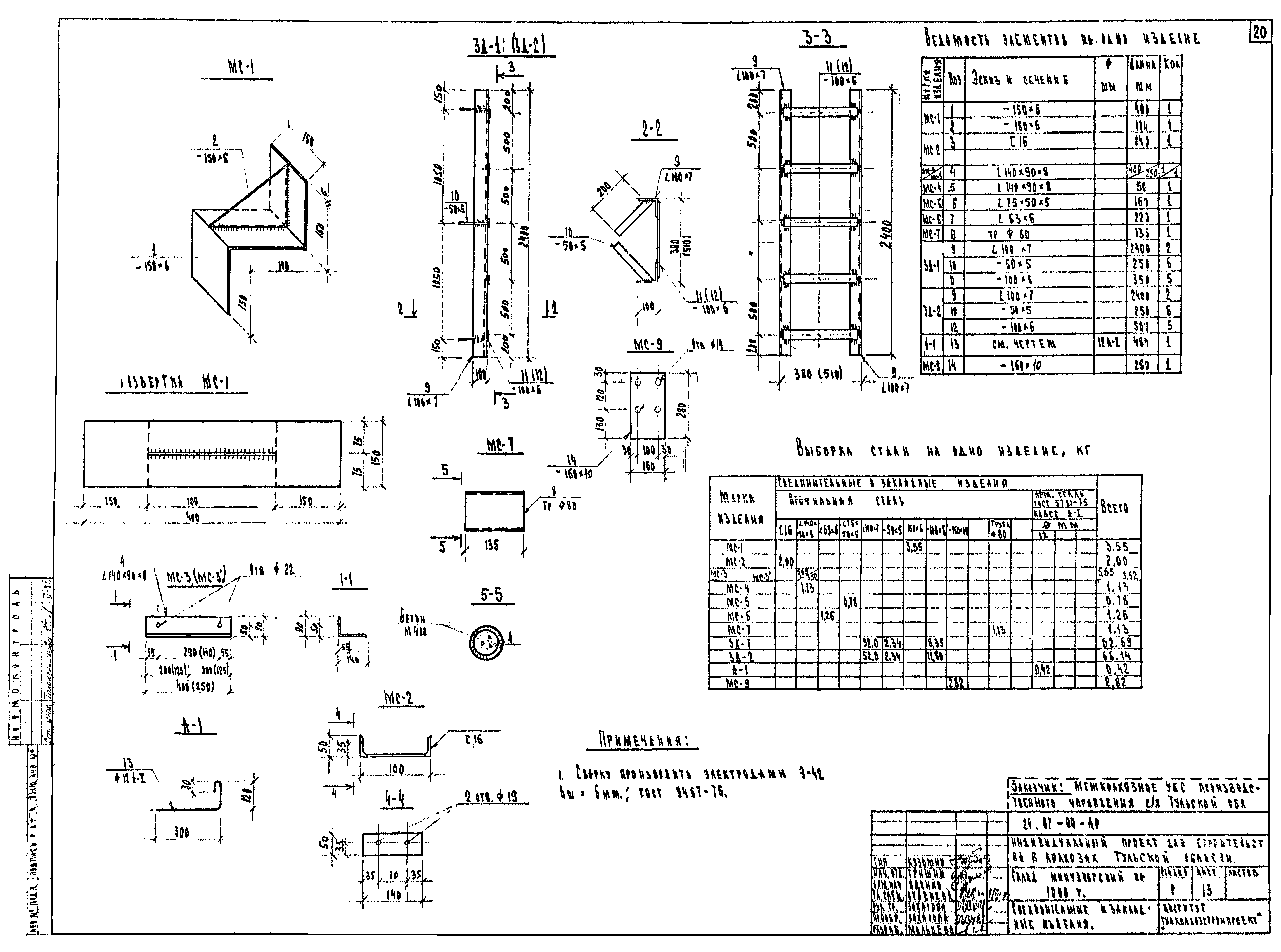
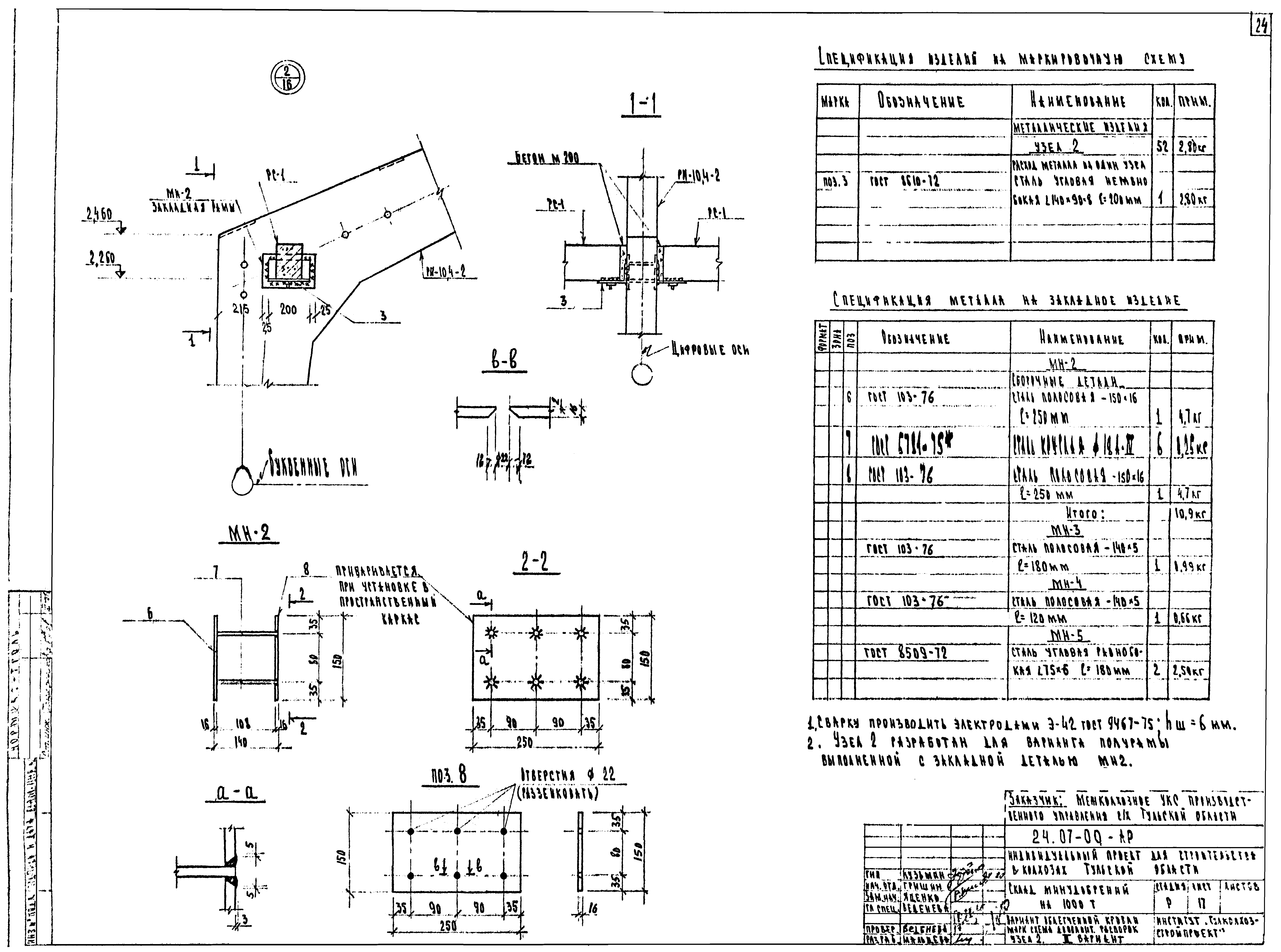
| Оглавление: | Содержание альбома Технологическая часть Пояснительная записка Технологический план. Разрез. Спецификация Механизированный грузчик удобрений (для буртования) Архитектурно-строительная часть Пояснительная записка Заглавный лист Фасады 1 - 17; А - Б. План на отм. 0.000 Разрезы 1-1; 2-2. Фундамент плана 1 Архитектурные узлы 1 - 6 Маркировочная схема фундаментов Фундаменты. Фрагменты плана 1 - 4 Маркировочная схема железобетонных рам, распорок, стеновых панелей и металлических связей Монтажные узлы 1 - 8 Маркировочная схема плит покрытия Монтажные узлы 9 - 11 Деревянные щиты Щ-1; Щ-2 Соединительные и закладные изделия Вариант облегченной кровли. Маркировочная схема плит и прогонов покрытия. Разрез 1-1 Вариант облегченной кровли. Монтажные узлы 12 - 17 Вариант облегченной кровли. Маркировочная схема дополнительных распорок Вариант облегченной кровли. Маркировочная схема дополнительных распорок. Узел 2 Сантехническая часть План на отм. 0.000. Разрез 1-1. Пояснения к проекту Электротехническая часть Электрооборудование и электроосвещение. План сетей. Схема принципиальная |
| Разработан: | Тулколхозстройпроект |
| Утверждён: | 28.04.1980 Облисполком (187-Р) |

























