Скачать Типовой проект 282-1-154 Альбом II. Отопление и вентиляция. Водопровод и канализация. Электроснабжение и силовое электрооборудование. Автоматизация устройств инженерного оборудования. Связь и сигнализацияДата актуализации: 01.01.2021
|
| Обозначение: | Типовой проект 282-1-154 |
| Обозначение англ: | 282-1-154 |
| Статус: | не определен законодательством |
| Название рус.: | Альбом II. Отопление и вентиляция. Водопровод и канализация. Электроснабжение и силовое электрооборудование. Автоматизация устройств инженерного оборудования. Связь и сигнализация |
| Дата добавления в базу: | 01.09.2013 |
| Дата актуализации: | 01.01.2021 |
| Дата введения: | 03.03.1982 |
| Дата окончания срока действия: | 30.06.2003 |
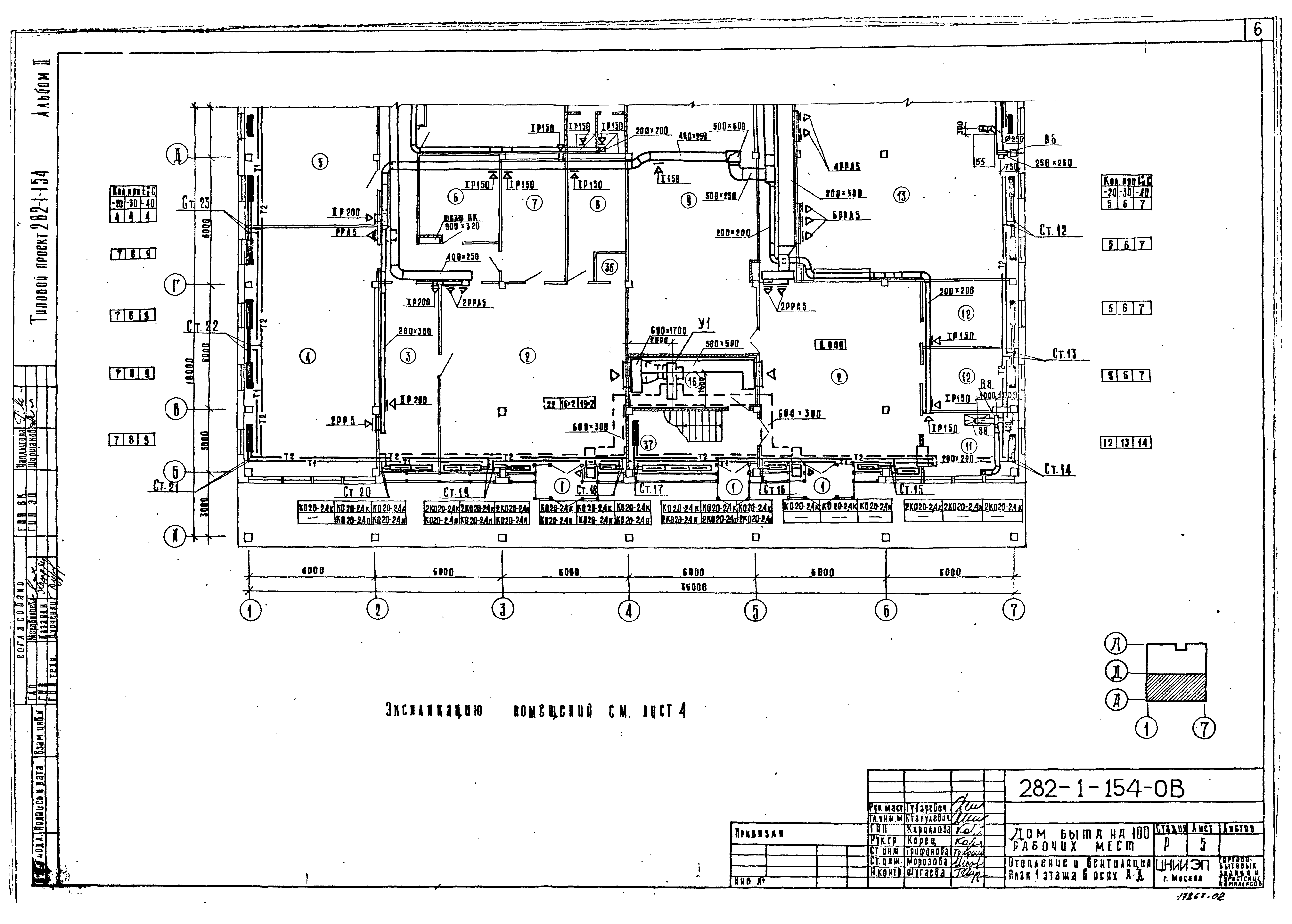
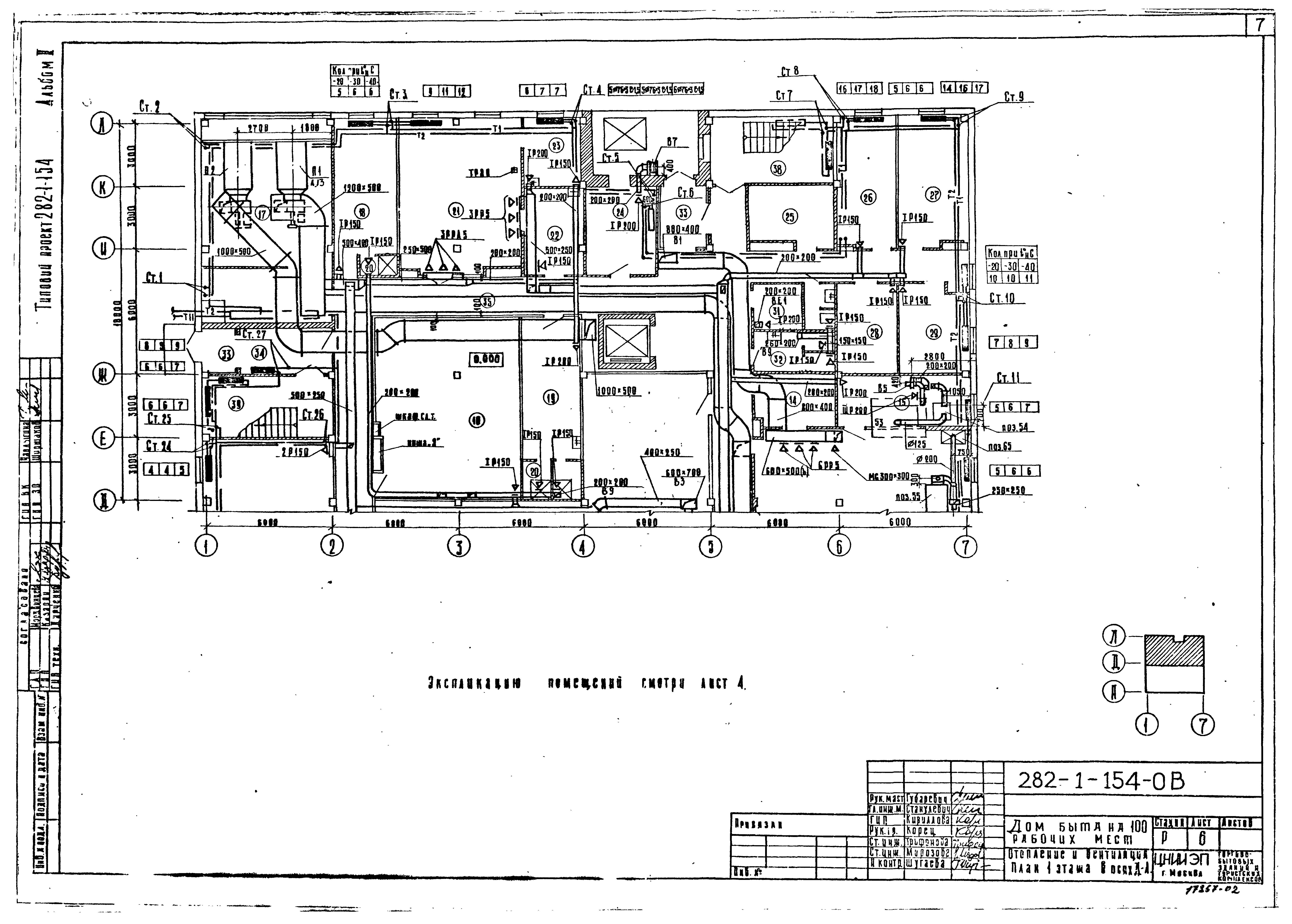
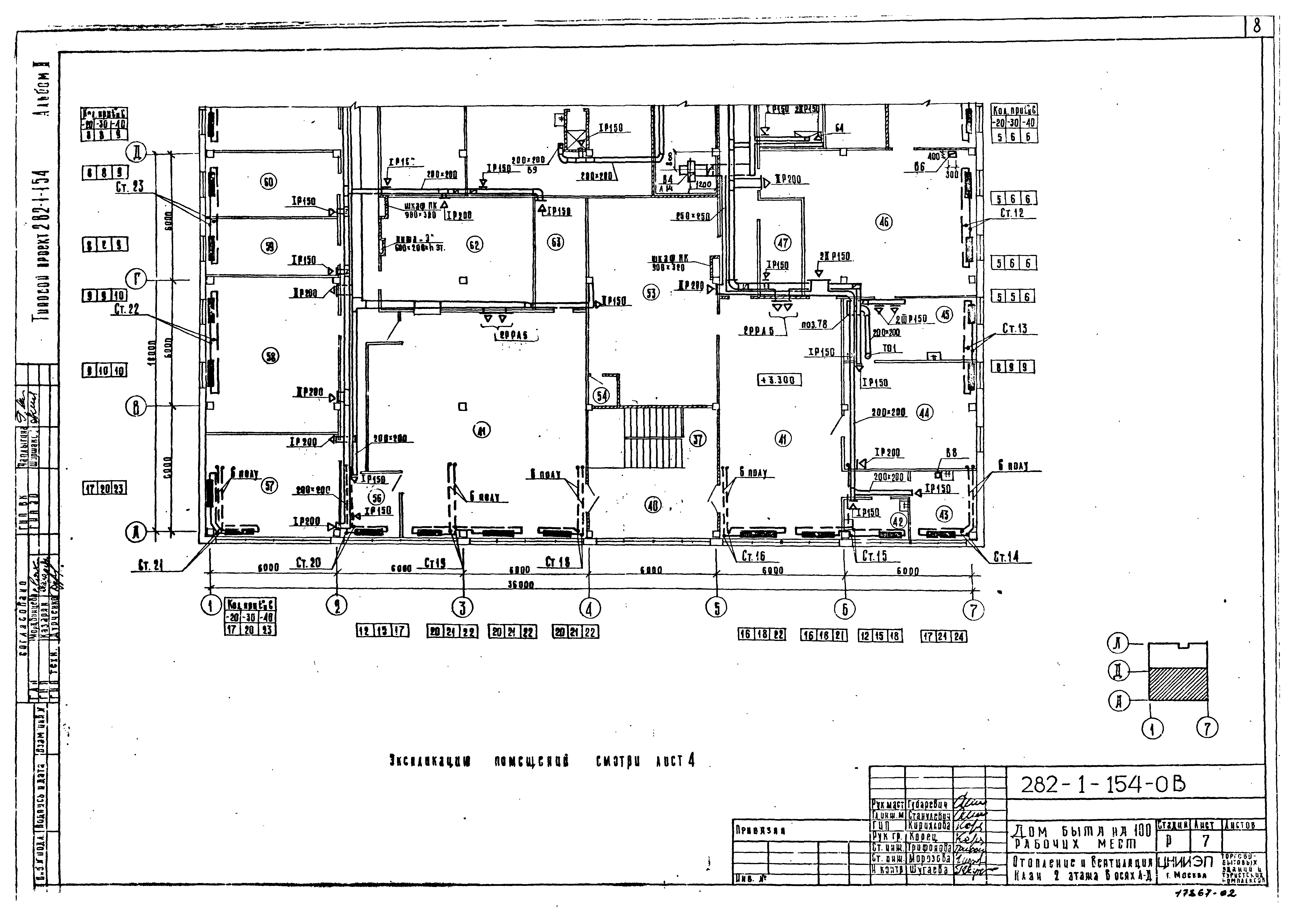
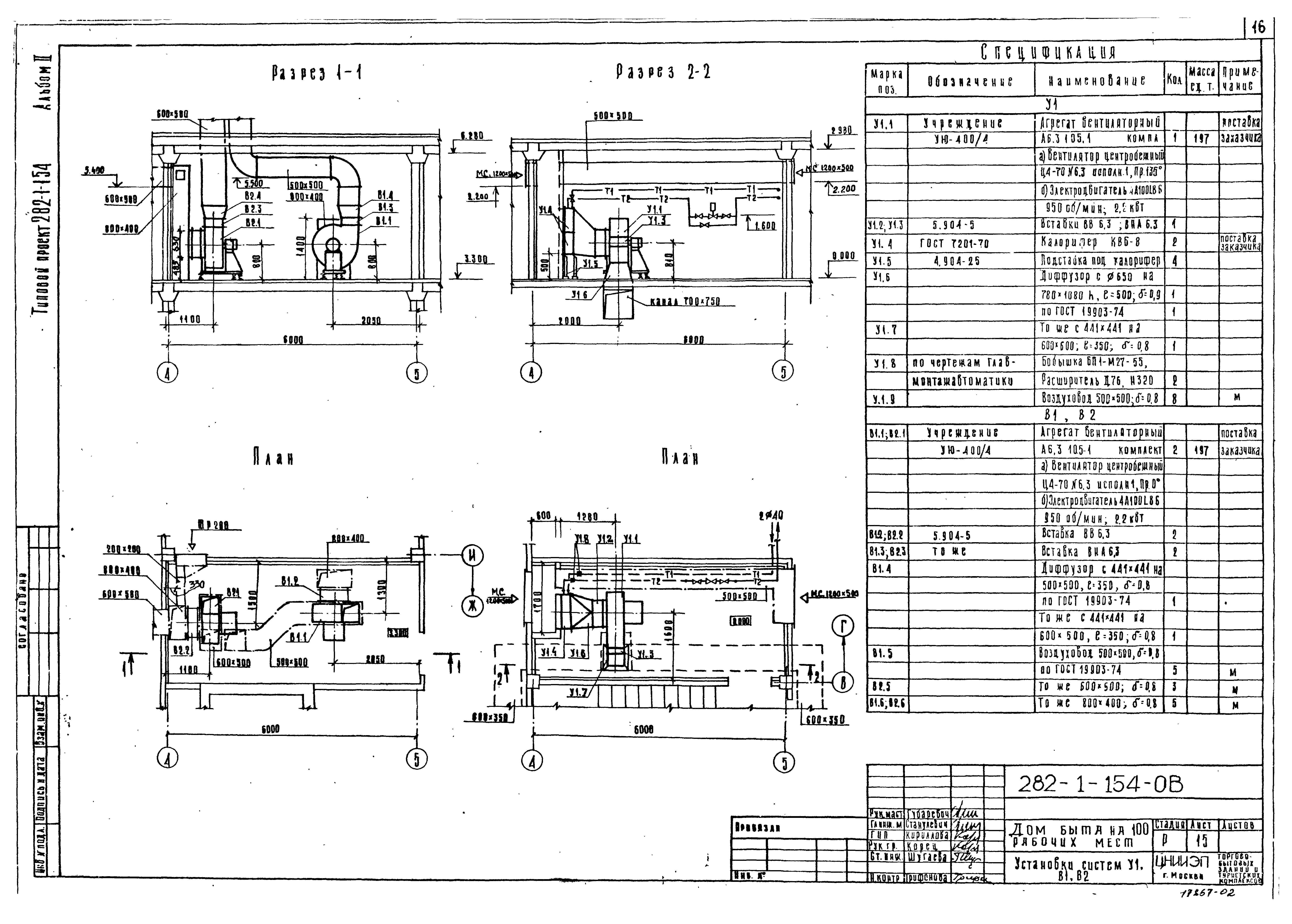
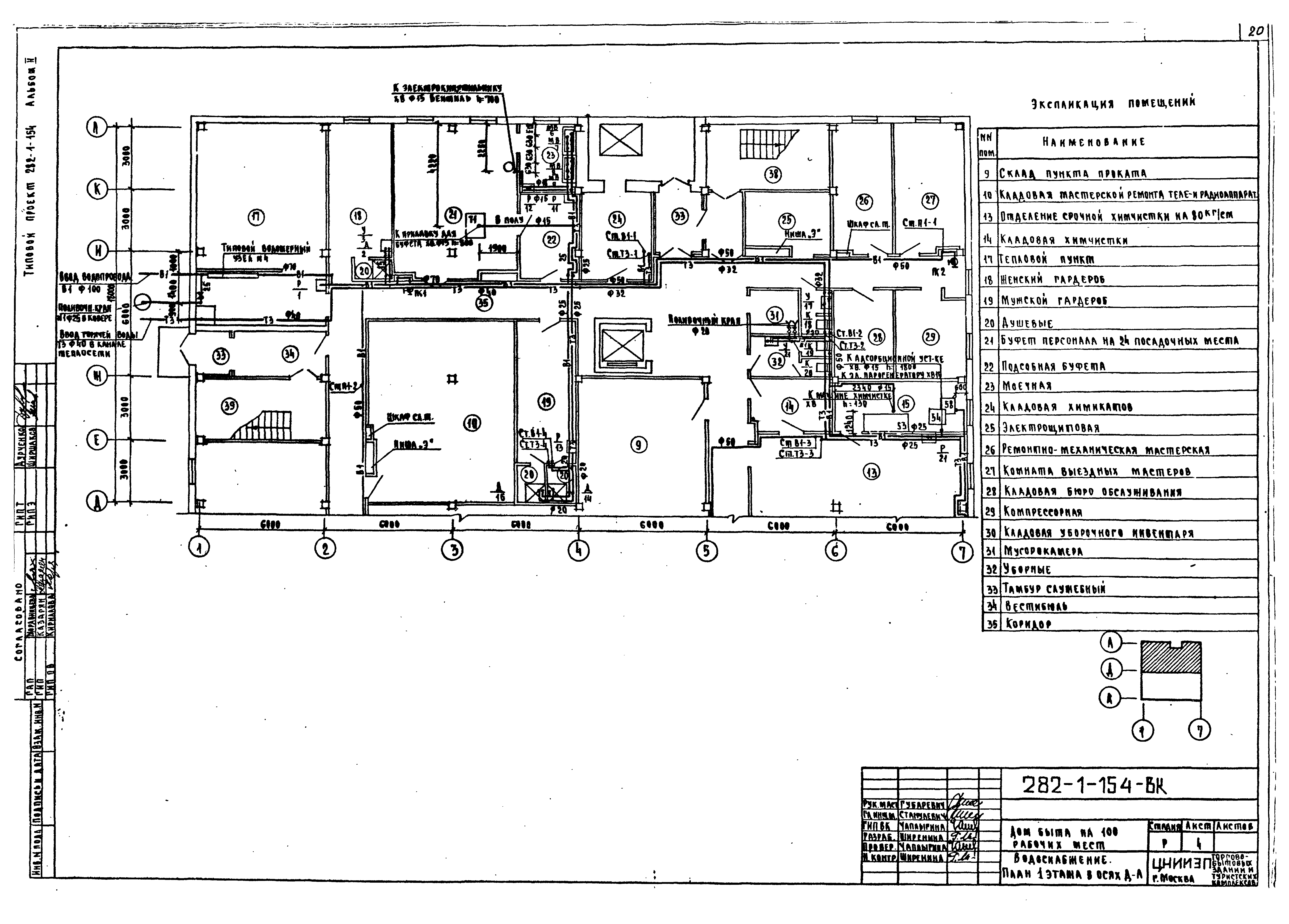
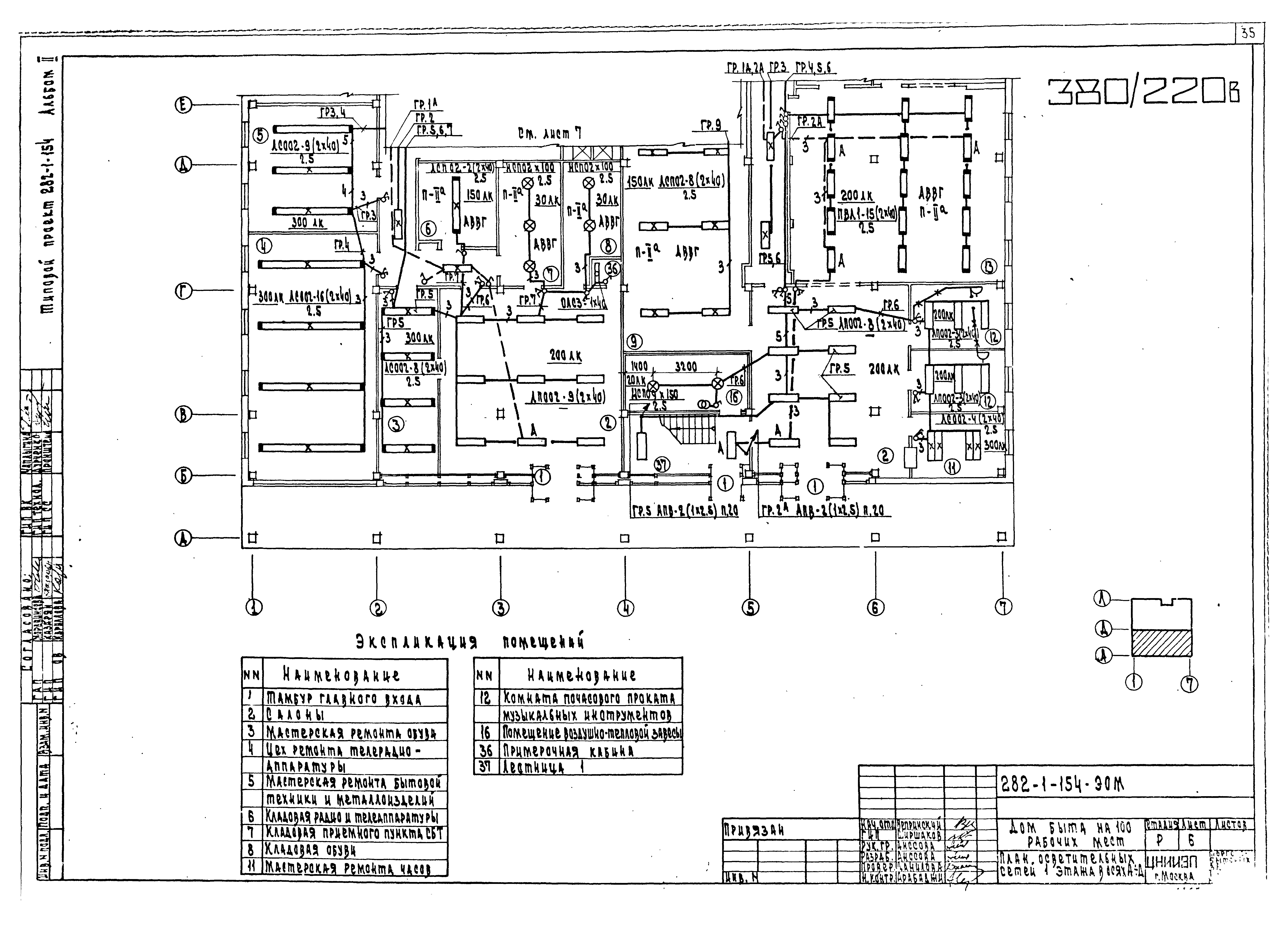
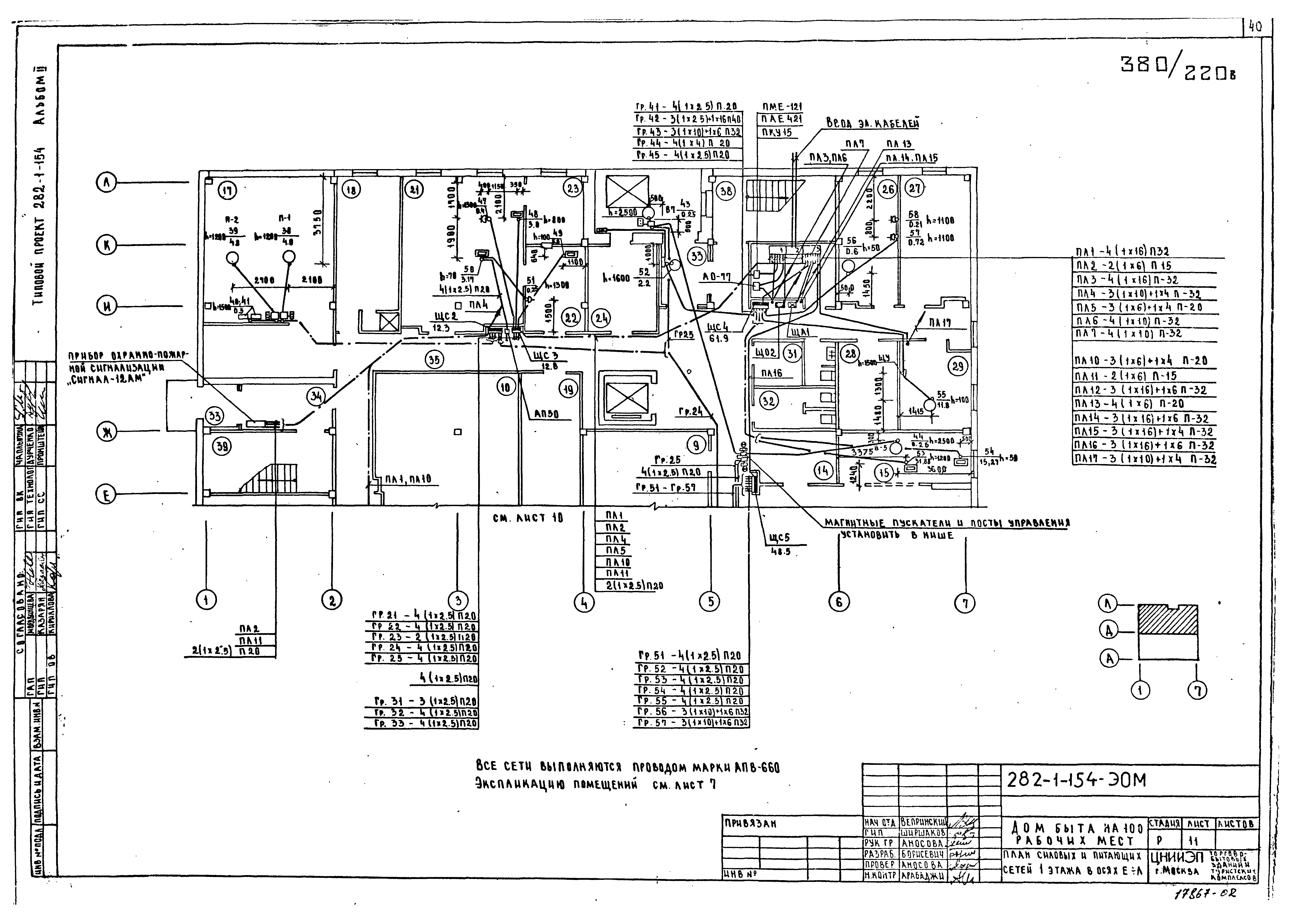
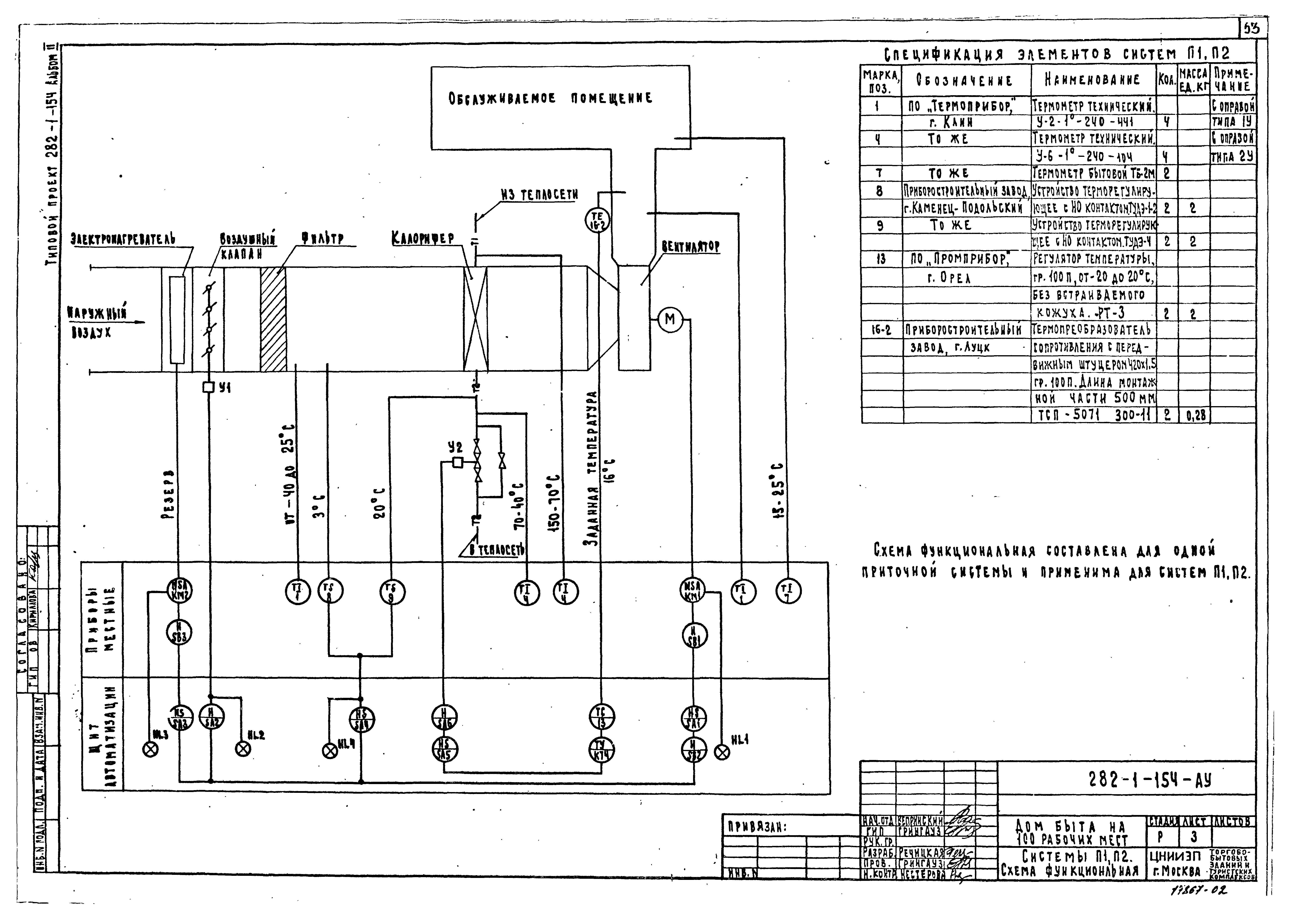
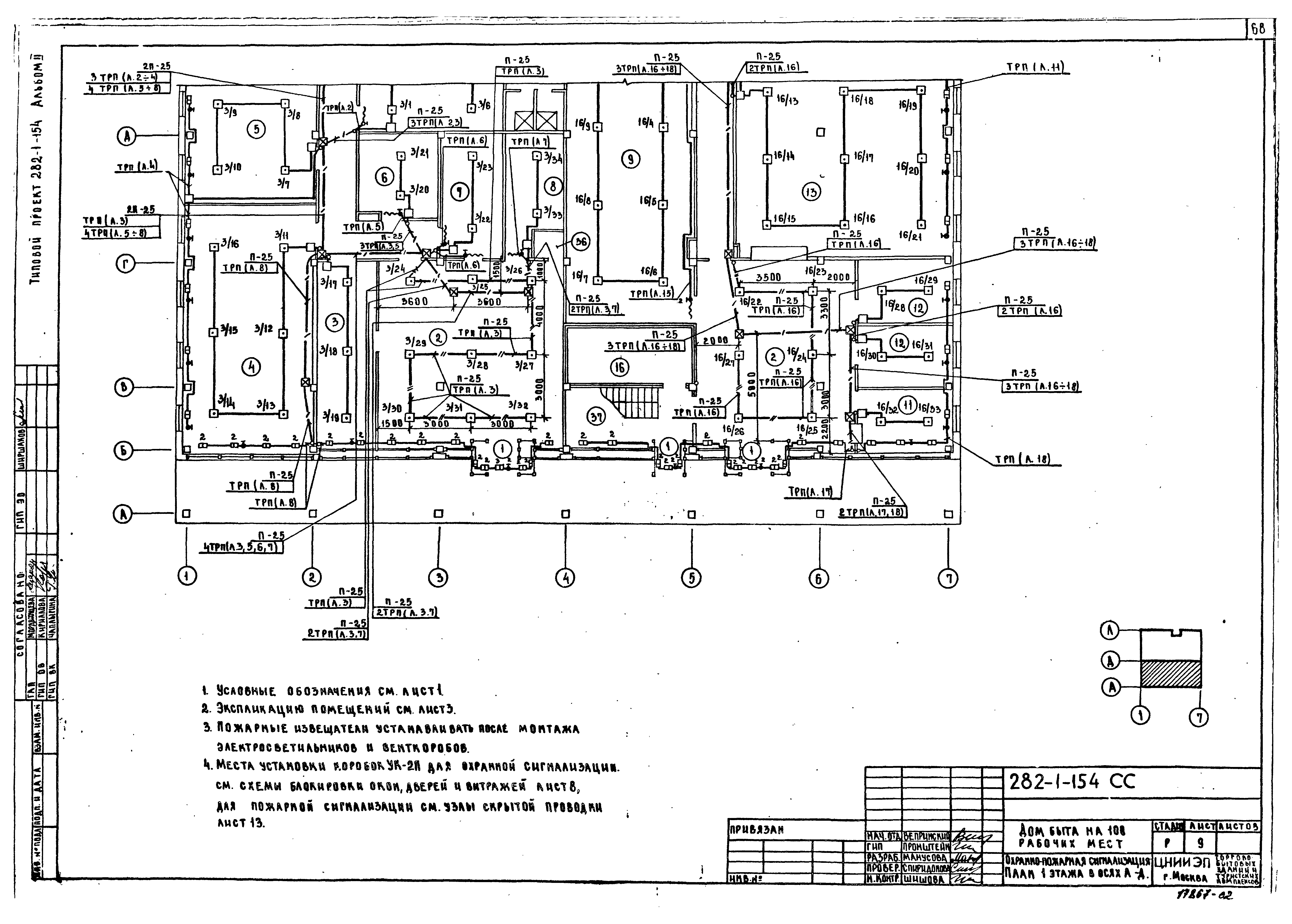
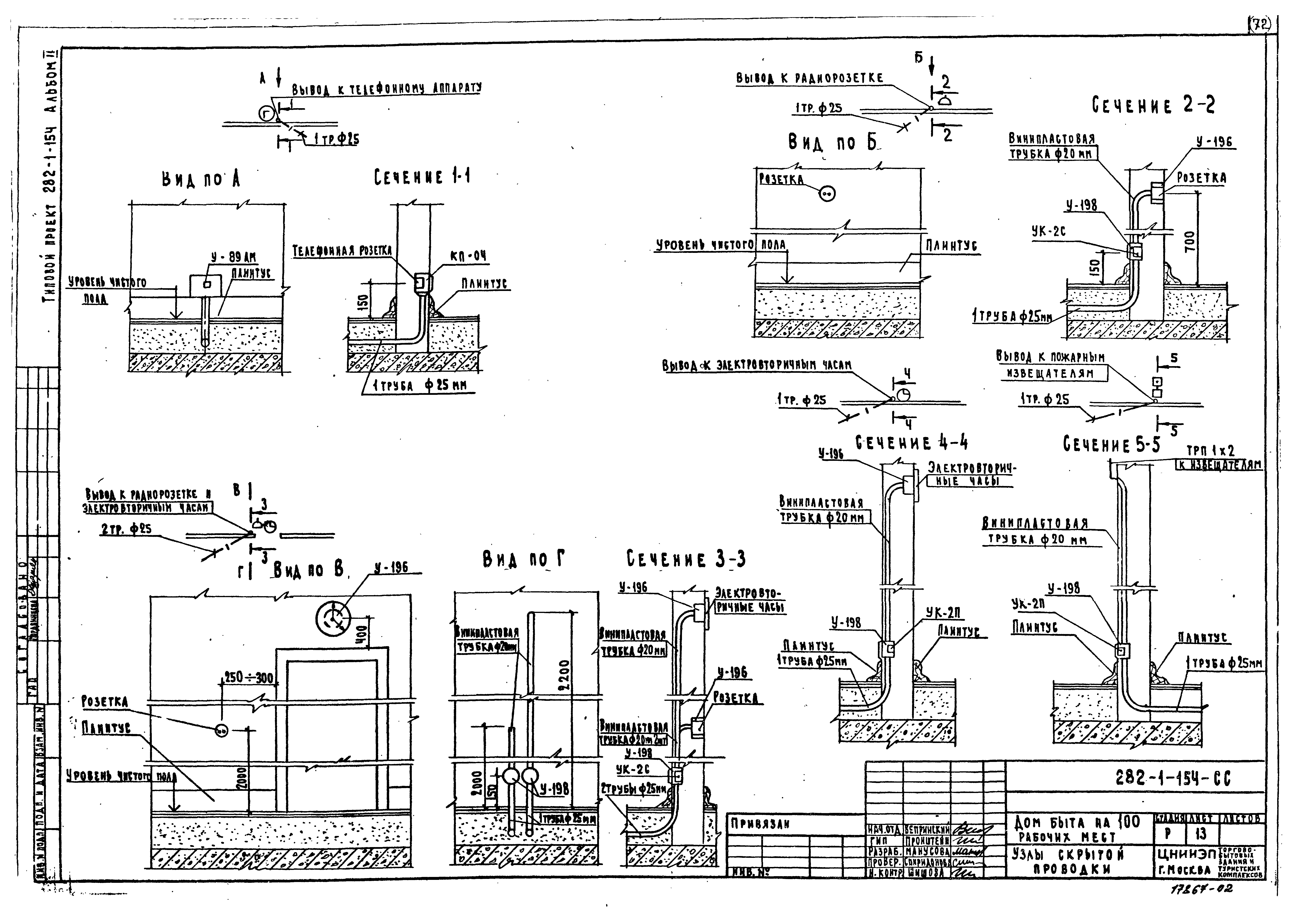
| Оглавление: | Основной комплект рабочих чертежей марки ОВ Общие данные Отопление и вентиляция. План 1 этажа в осях А - Д Отопление и вентиляция. План 1 этажа в осях Д - Л Отопление и вентиляция. План 2 этажа в осях А - Д Отопление и вентиляция. План 2 этажа в осях Д - Л Схема системы отопления Схема теплоснабжения калориферов систем П1, П2, У1 Схемы систем вентиляции П1, П2, В1, В4 - В6, ТО-2 Схемы систем вентиляции В2, В3, В9, У1, ТО-1 Установки систем П1, П2 Установки систем В3, В4, В9 Установки систем У1, В1, В2 Основной комплект рабочих чертежей марки ВК Общие данные Спецификация Водоснабжение. План 1 этажа в осях А - Д Водоснабжение. План 1 этажа в осях Д - Л Водоснабжение. План 2 этажа в осях А - Д Водоснабжение. План 2 этажа в осях Д - Л Водоснабжение. Схема Канализация. Водосток. План 1 этажа в осях А - Д Канализация. Водосток. План 1 этажа в осях Д - Л Канализация. Водосток. План 2 этажа в осях А - Д Канализация. Водосток. План 2 этажа в осях Д - Л Канализация. Водосток. Схемы Воронка. Воронка с гидрозатвором. Гидрозатвор Основной комплект рабочих чертежей марки ЭОМ Общие данные Спецификация Схема питающих сетей. Схем автоматического отключения вентиляции при пожаре План осветительных сетей 1 этажа в осях А - Д План осветительных сетей 1 этажа в осях Д - Л План осветительных сетей 2 этажа в осях А - Д План осветительных сетей 2 этажа в осях Д - Л План силовых и питающих сетей 1 этажа в осях А - Е План силовых и питающих сетей 1 этажа в осях Е - Л План силовых и питающих сетей 2 этажа в осях А - Д План силовых и питающих сетей 2 этажа в осях Д - Л Расчетная схема ЩС1 Расчетная схема ЩС1 - ЩС3 Расчетная схема ЩС4, ЩС5 Расчетная схема ЩС6 Расчетная схема ЩС7 Расчетная схема ЩС8, ЩС9 Расчетная схема ЩС9, ЩС10 Размещение вводно - распределительного устройства. Опросный лист Основной комплект рабочих чертежей марки АУ Общие данные Системы П1, П2. Схема функциональная Системы П1, П2. Схема электрическая принципиальная Системы П1, П2. Схема внешних проводок Системы П1, П2. План расположения Система У1. Схемы функциональная, электрическая принципиальная, внешних проводок и план расположения Узел присоединения калориферов. Схемы функциональная, внешних проводок и план расположения Основной комплект рабочих чертежей марки СС Общие данные Спецификация Связь и сигнализация. Экспликация помещений. Схемы Связь и сигнализация. План 1 этажа в осях А - Д. Схема Связь и сигнализация. План 1 этажа в осях Д - Л. Схема Связь и сигнализация. План 2 этажа в осях А - Д. Схема Связь и сигнализация. План 2 этажа в осях Д - Л. Схема Охранно-пожарная сигнализация. Схема. Схемы блокировки окон, дверей и витражей Охранно-пожарная сигнализация. План 1 этажа в осях А - Д Охранно-пожарная сигнализация. План 1 этажа в осях Д - Л Охранно-пожарная сигнализация. План 2 этажа в осях А - Д Охранно-пожарная сигнализация. План 2 этажа в осях Д - Л Узлы скрытой проводки |
| Разработан: | ЦНИИЭП торгово-бытовых зданий и туристских комплексов |
| Утверждён: | 04.08.1980 Госгражданстрой (Gosgrazhdanstroy 201) |









































































