Скачать Типовой проект 286-1-179 Альбом I. Технология производства. Архитектурно-строительные решения. Внутренние водопровод и канализация. Отопление и вентиляция. Газоснабжение. Электроснабжение. Связь и сигнализацияДата актуализации: 01.01.2021
|
| Обозначение: | Типовой проект 286-1-179 |
| Обозначение англ: | 286-1-179 |
| Статус: | не определен законодательством |
| Название рус.: | Альбом I. Технология производства. Архитектурно-строительные решения. Внутренние водопровод и канализация. Отопление и вентиляция. Газоснабжение. Электроснабжение. Связь и сигнализация |
| Дата добавления в базу: | 01.09.2013 |
| Дата актуализации: | 01.01.2021 |
| Дата введения: | 20.01.1982 |
| Дата окончания срока действия: | 30.06.2003 |
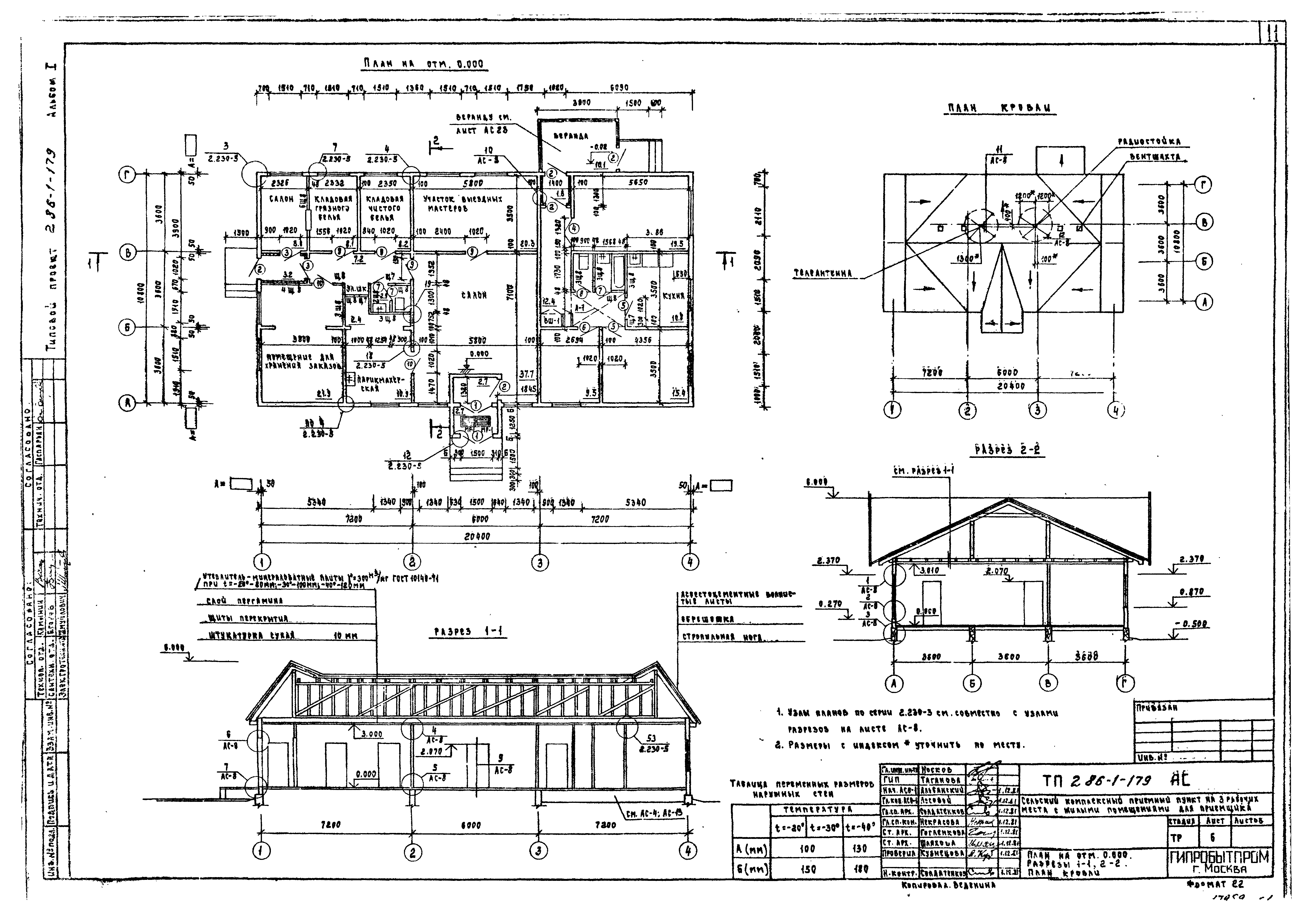
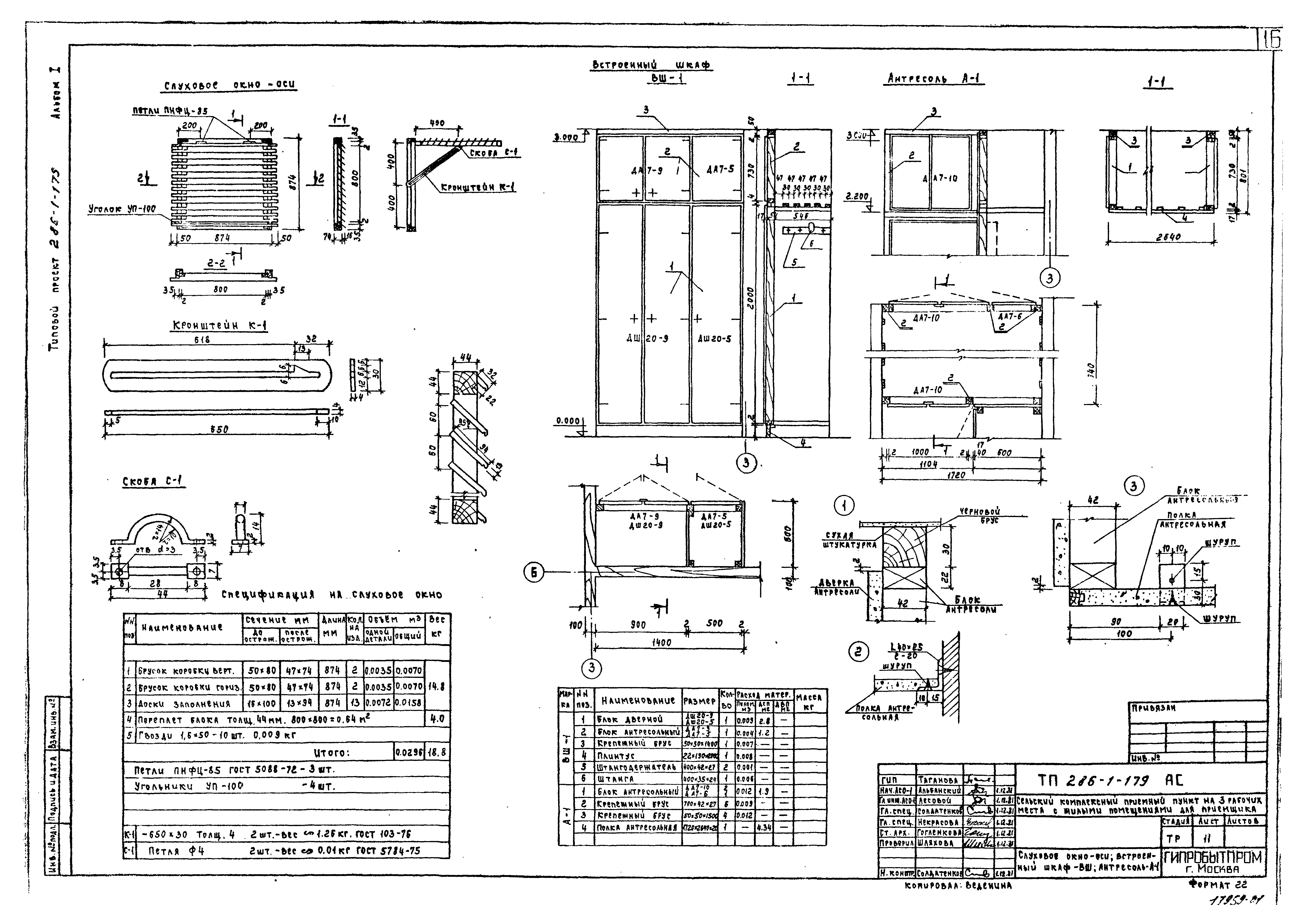
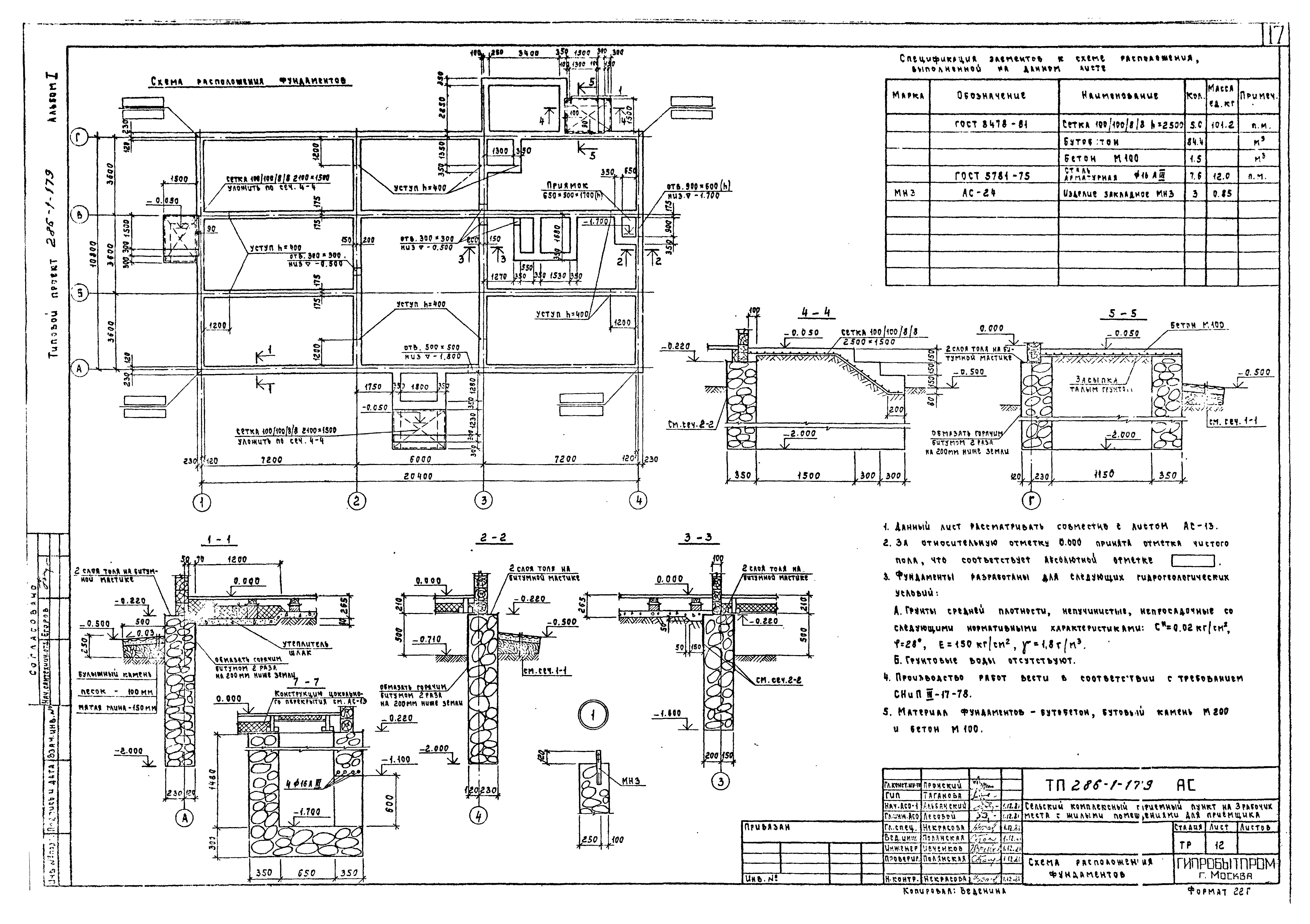
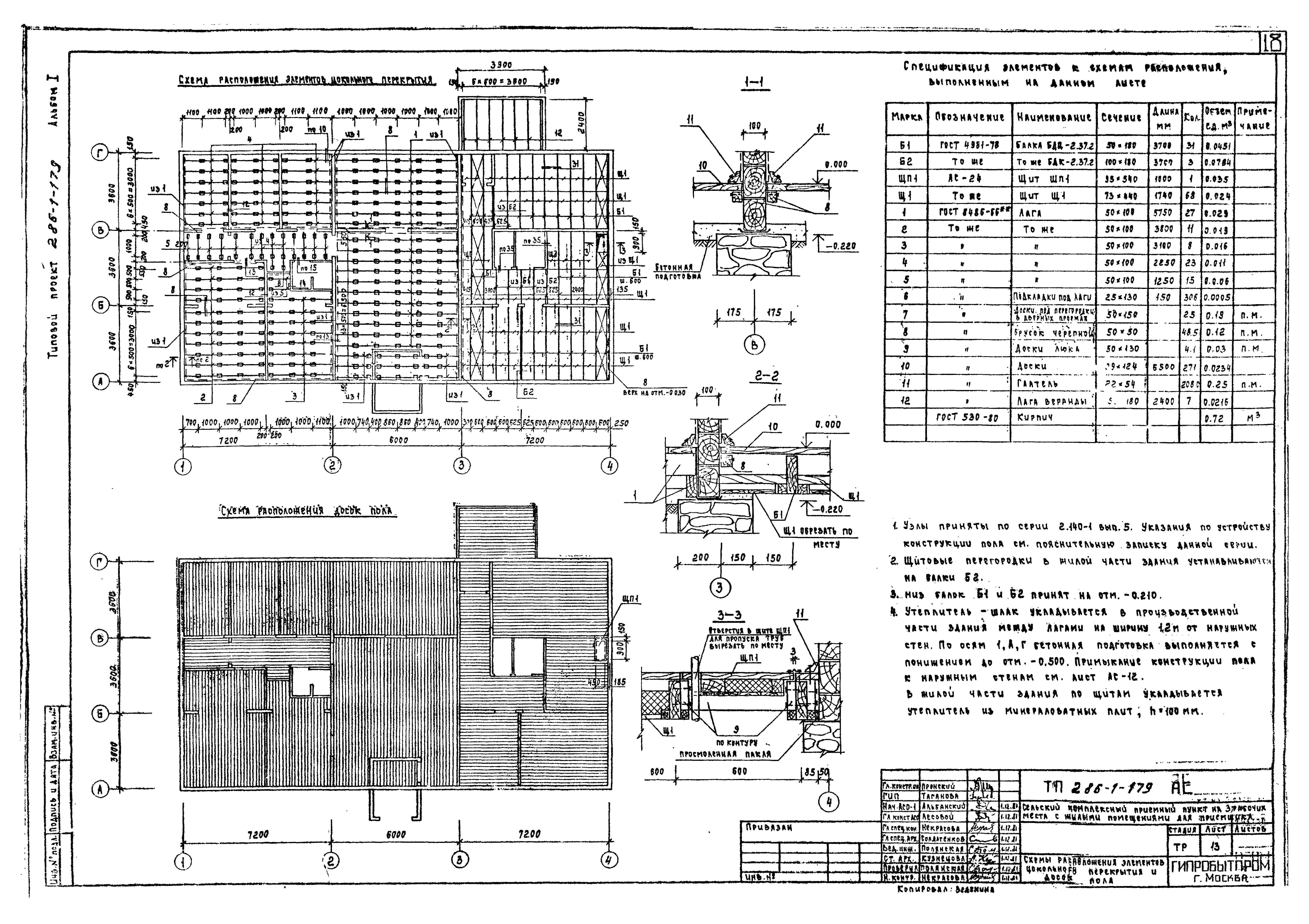
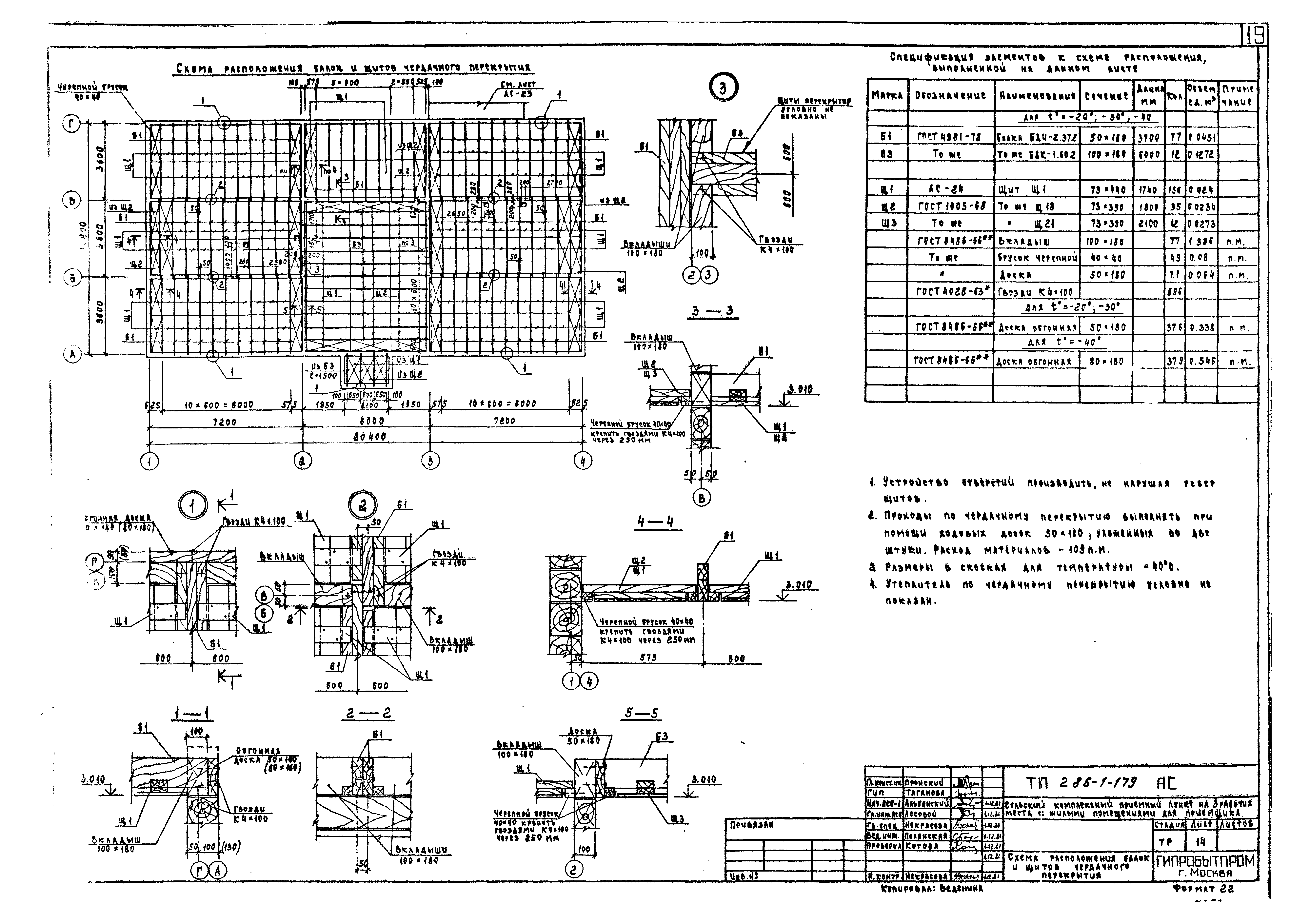
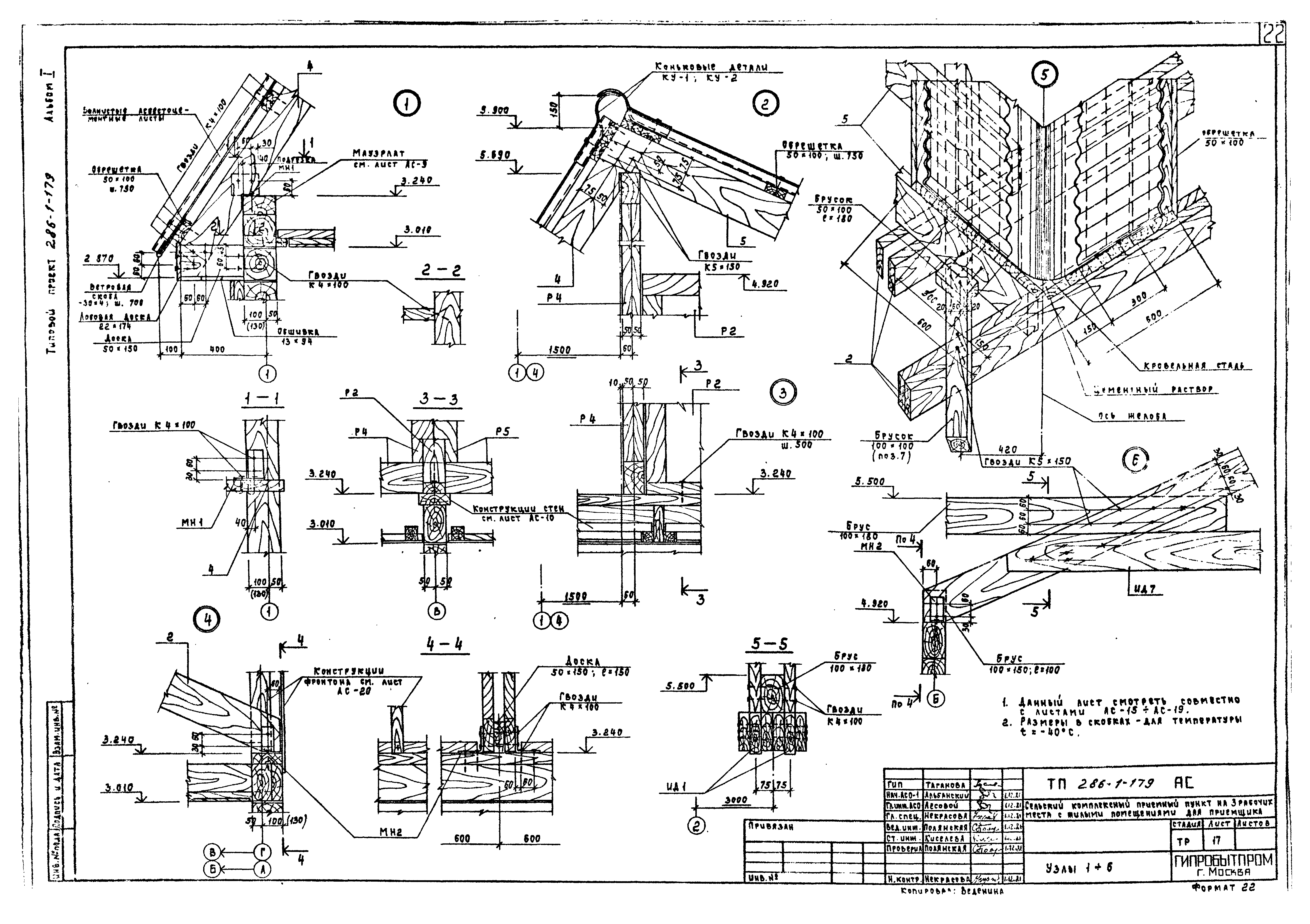
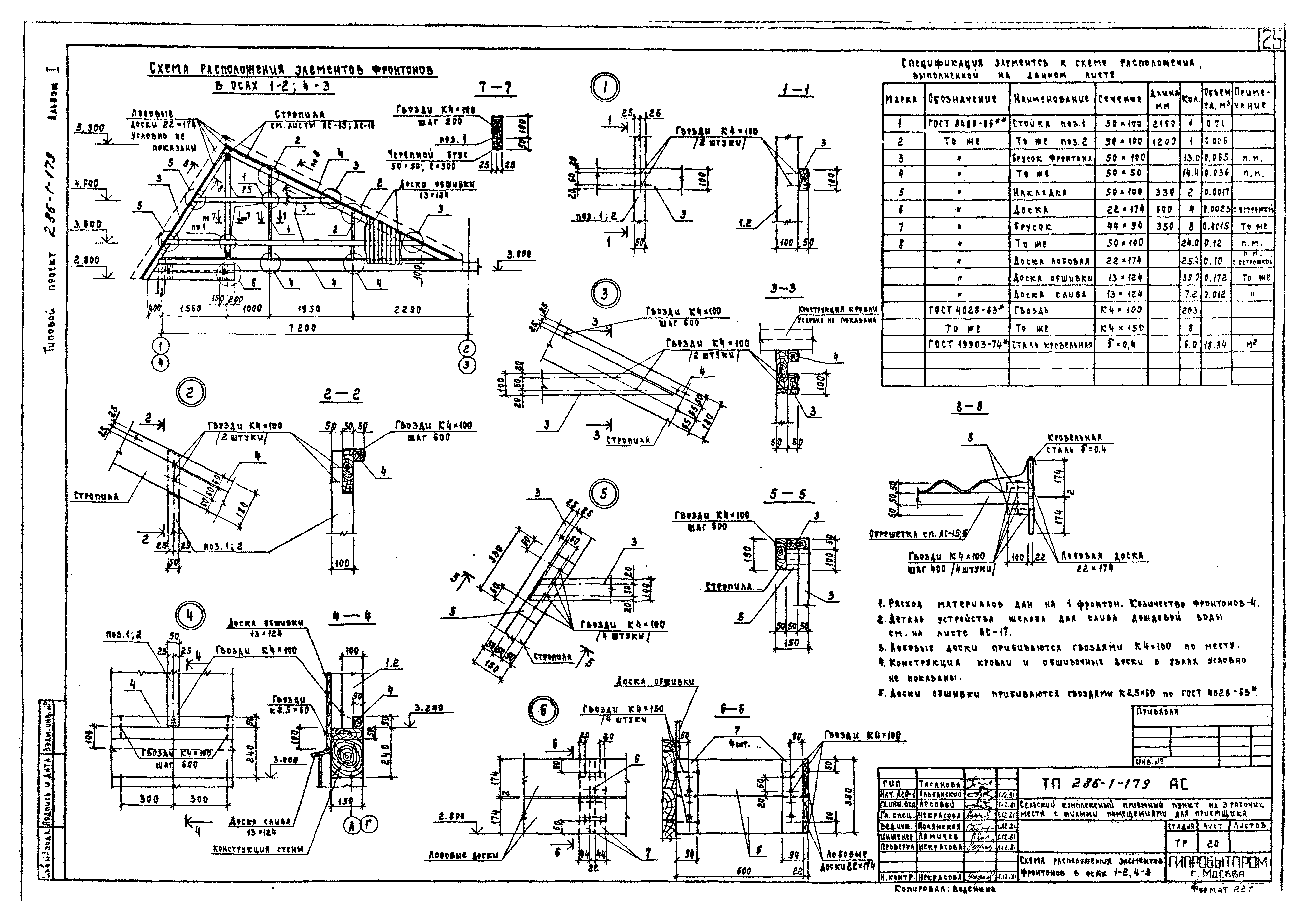
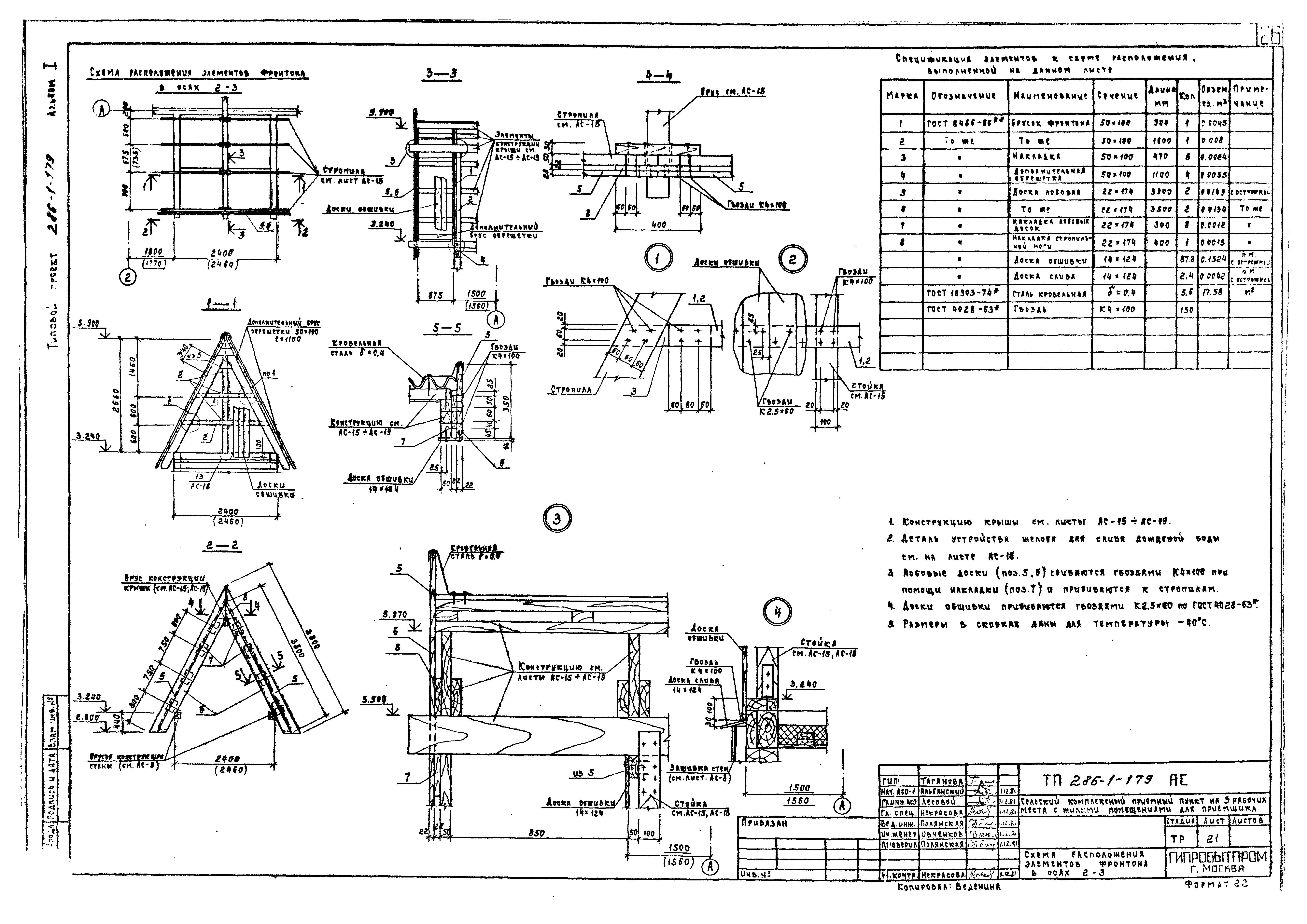
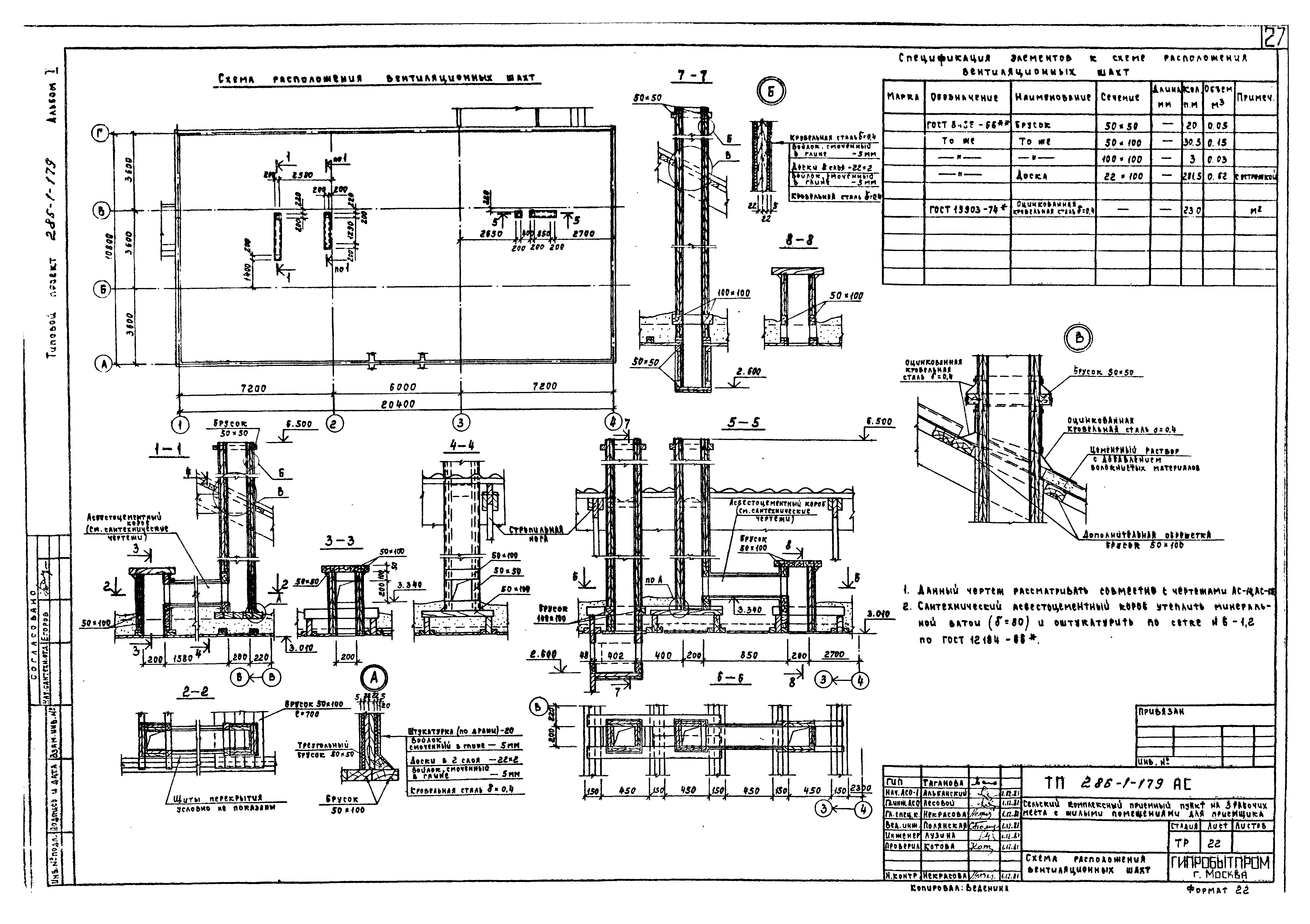
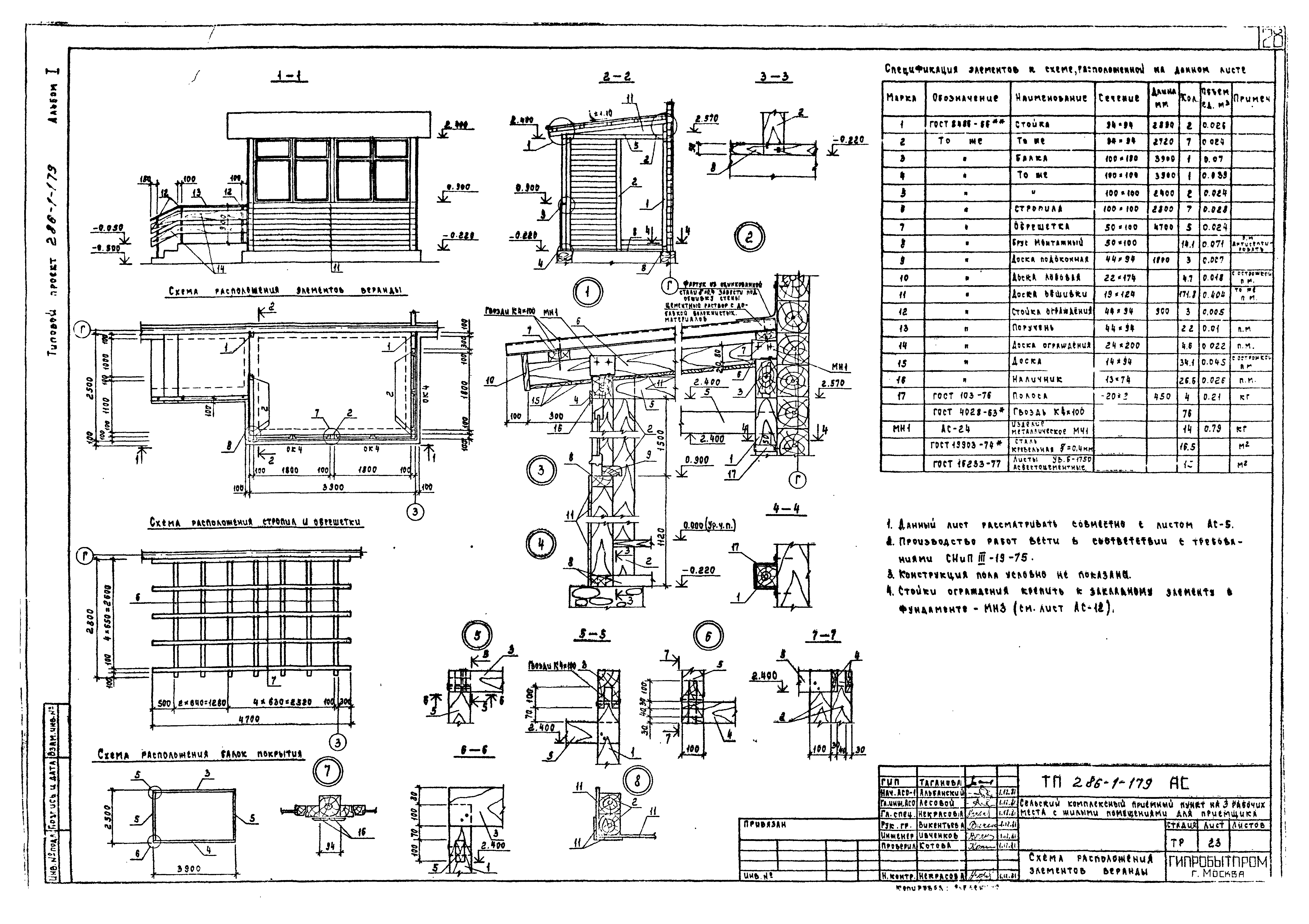
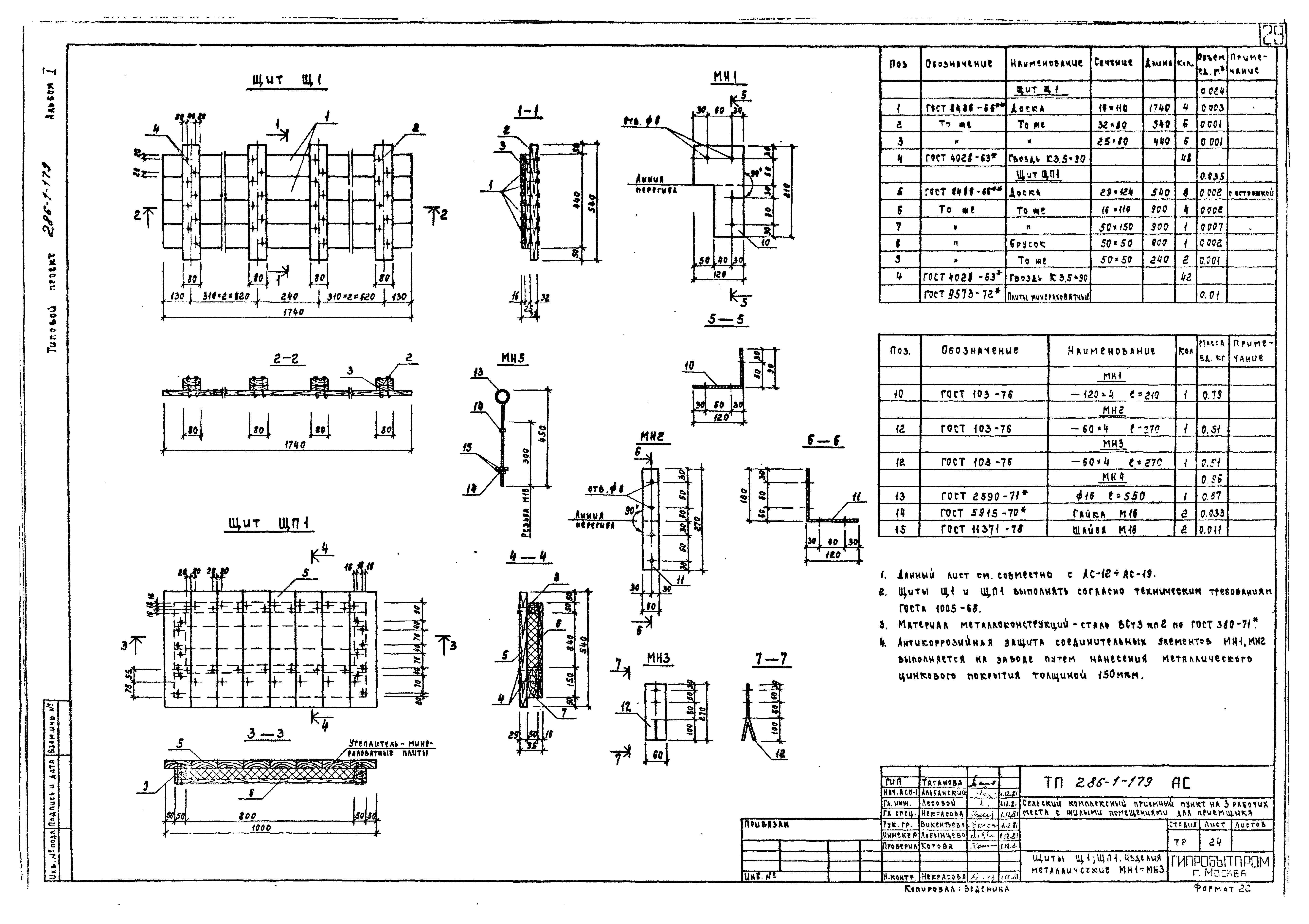
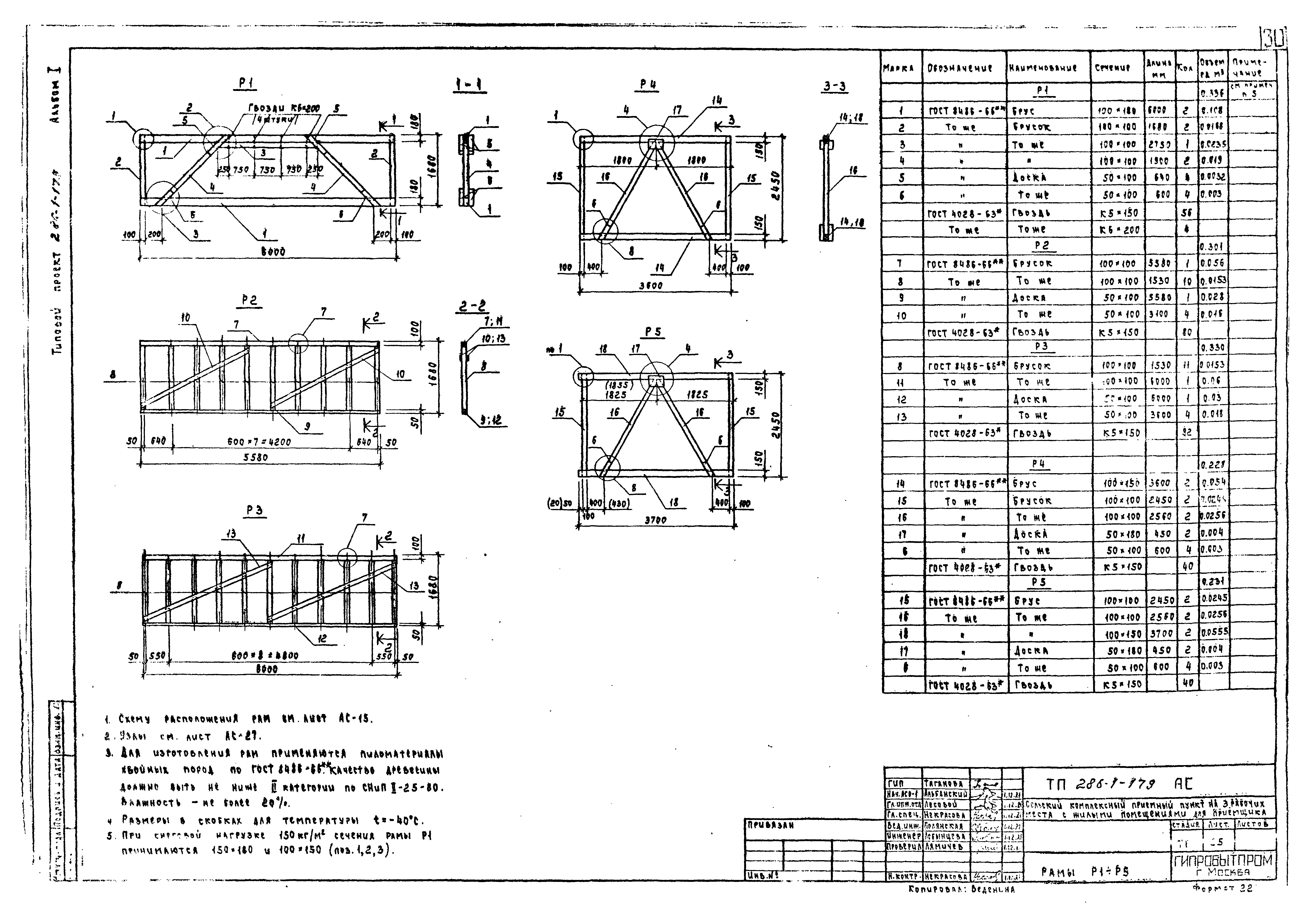
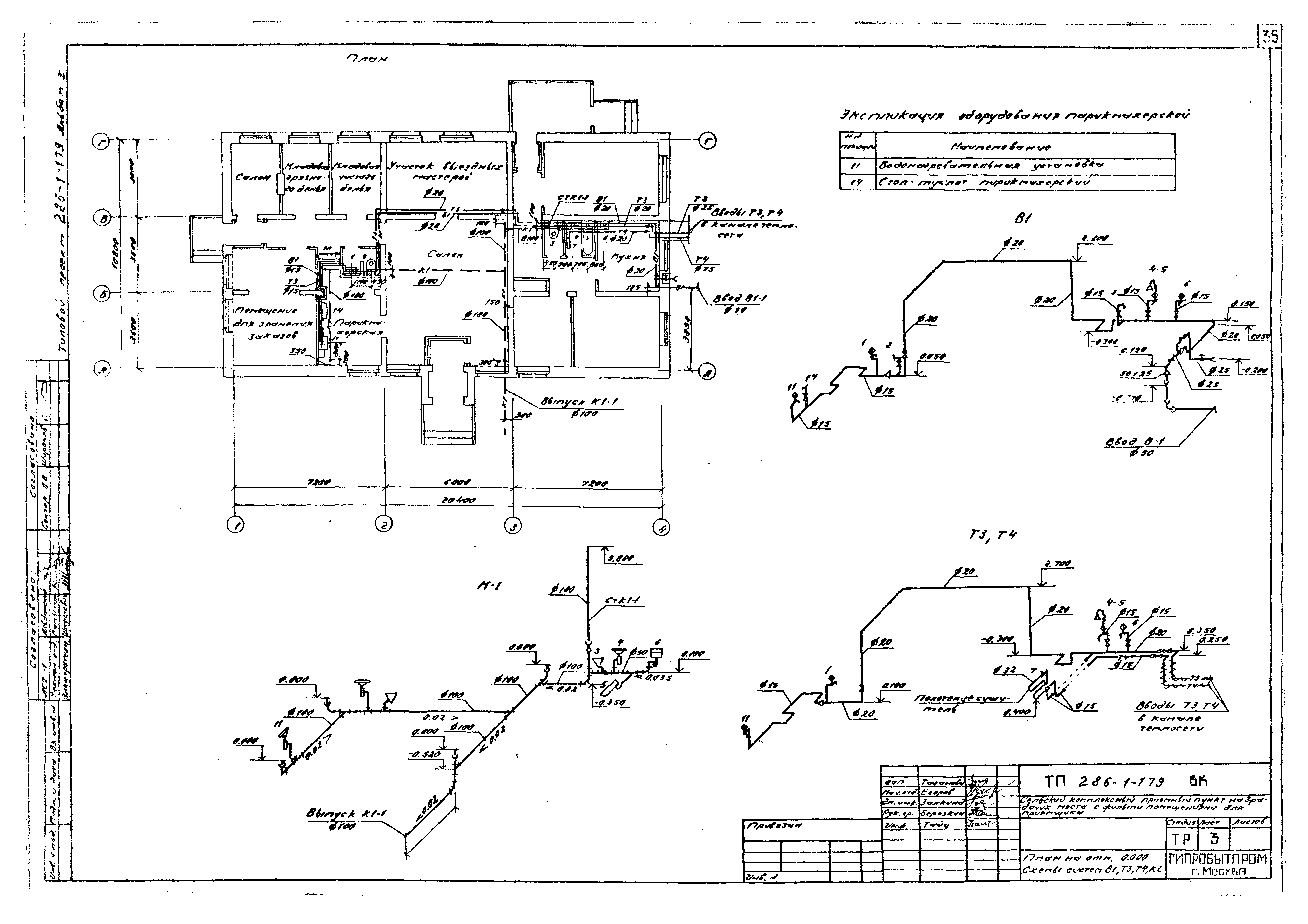
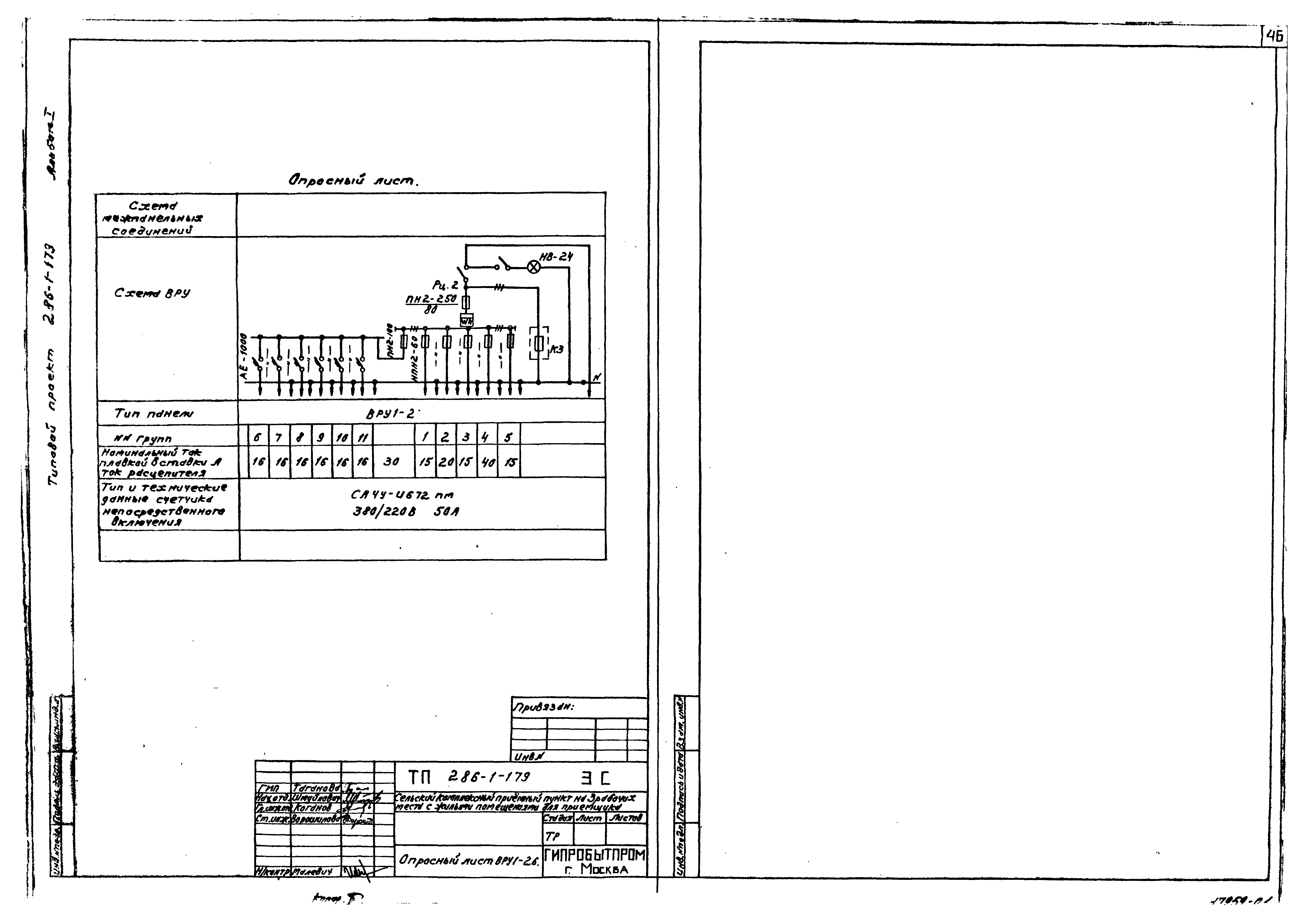
| Оглавление: | Титульный лист Содержание альбома Технология производства Общие данные План на отм. 0.000. Фрагменты плана салона и кухни. Спецификация Архитектурно-строительные решения Общие данные План на отм. 0.000. Разрезы 1-1, 2-2. План кровли Фасады 1-4, 4-1; А-Г, Г-А Детали стен и перегородок Развертки наружных стен Развертки внутренних стен Слуховое окно - оси. Встроенный шкаф ВШ-1. Антресоль А-1 Схема расположения фундаментов Схемы расположения элементов цокольного перекрытия и досок пола Схема расположения балок и щитов чердачного перекрытия Схемы расположения рам, стропил и обрешетки Разрезы 1-1 - 7-7 Узлы 1 - 6 Узлы 7 - 14 Узлы 15 - 20 Схема расположения элементов фронтона в осях 1-2, 4-3 Схема расположения элементов фронтона в осях 2-3 Схема расположения вентиляционных шахт Схема расположения элементов веранды Щиты Щ1; Щп1. Изделия металлические МИ-1 - МИ-3 Рамы Р1 - Р5 Стропильная ферма ИД-1. Стропила поз. 1 - поз. 6д Узлы 1 - 6 Внутренние водопровод и канализация Общие данные План на отм. 0.000. Схемы систем В1, Т3, Т4, К1 Отопление и вентиляция Общие данные План на отм. 0.000 и 3.300. Схемы Звено прямого участка шовного асбестоцементного воздуховода Газоснабжение План на отм. 0.000. Схема газопроводов Электроснабжение Общие данные Силовое электрооборудование. Распределительная сеть. Схема принципиальная Шкаф ВРУ1-26 Электрическое освещение. План на отм. 0.000. Схема размещения Силовое электрооборудование. План на отм. 0.000. Схема размещения Ведомость объемов электромонтажных и строительных работ Опросный лист на ВРУ1-26 Связь и сигнализация Общие данные Городская телефонная связь. Охранно-пожарная сигнализация. Теле- и радиоантенна. Радиофикация. Схемы структурные План на отм. 0.000. Фрагмент плана чердака с установкой радиостойки и радиоантенны. Схема воздушного ввода. Фрагменты блокировки окон и дверей Организация строительства Краткие рекомендации по монтажу |
| Разработан: | Гипробытпром |
| Утверждён: | 03.11.1981 Минбыт РСФСР (371) |





















































