Скачать Серия 1.134-1 Выпуск 3. Стеновые бетонные блоки толщиной 30 смДата актуализации: 01.01.2021
|
| Обозначение: | Серия 1.134-1 |
| Обозначение англ: | Series 1.134-1 |
| Статус: | заменен |
| Название рус.: | Выпуск 3. Стеновые бетонные блоки толщиной 30 см |
| Дата добавления в базу: | 01.09.2013 |
| Дата актуализации: | 01.01.2021 |
| Дата введения: | 01.07.1973 |
| Дата окончания срока действия: | 01.07.1984 |
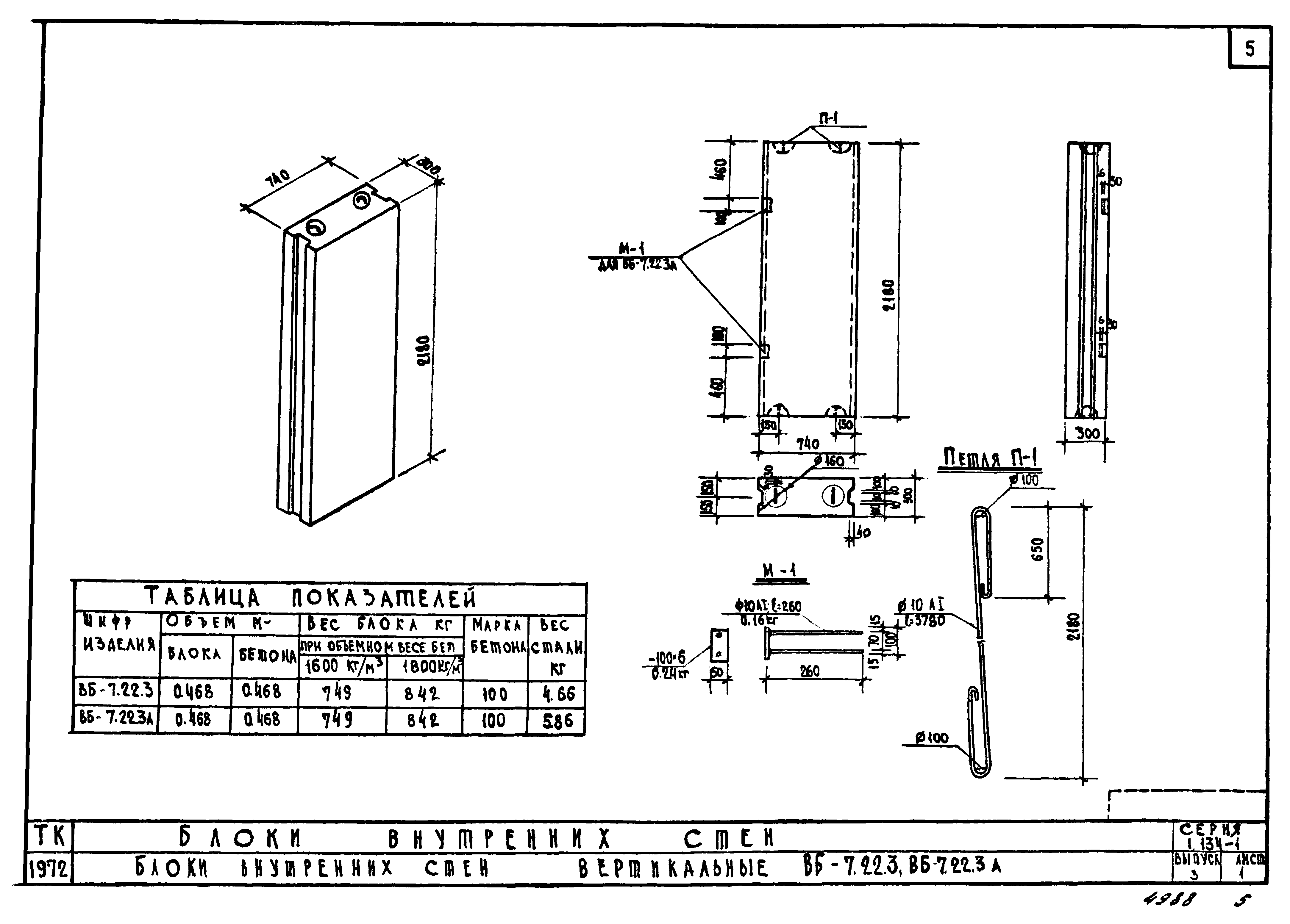
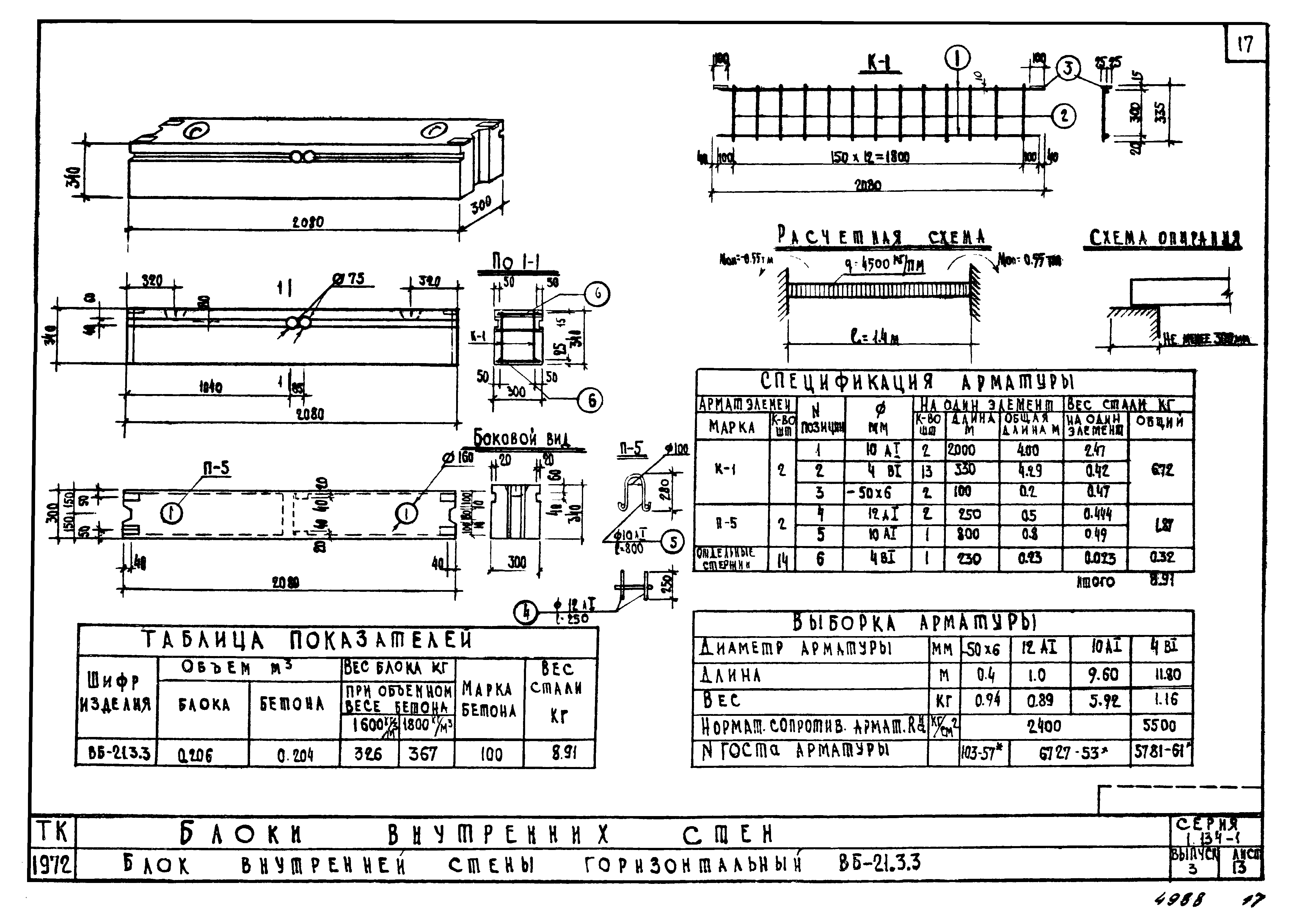
| Область применения: | В альбом включены рабочие чертежи блоков внутренних стен толщиной 30 см и горизонтальных поясных блоков 5 и 9-этажных жилых зданий с высотой этажа 2,8 м для обычных условий строительства |
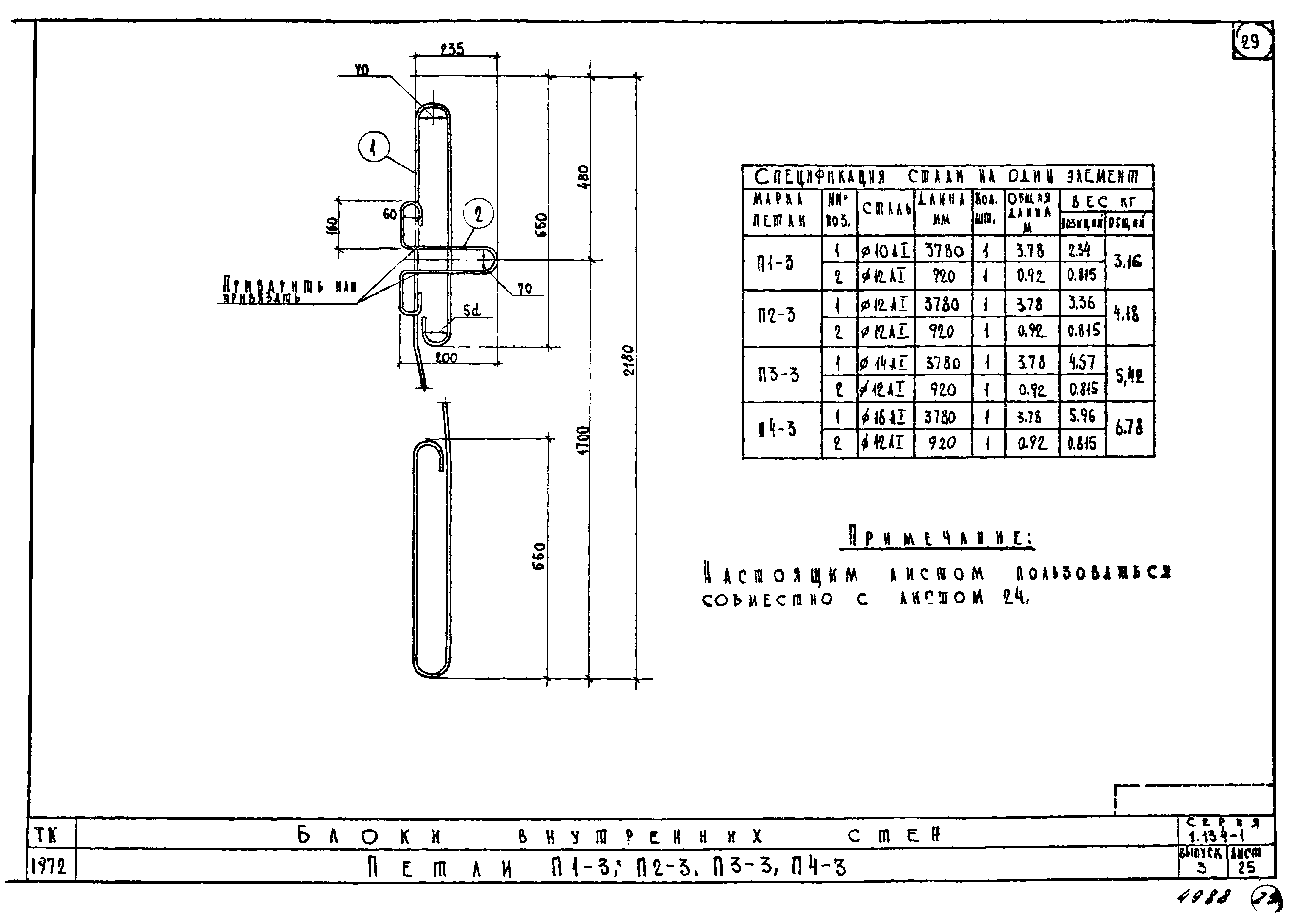
| Оглавление: | Содержание Пояснительная записка Блоки внутренних стен вертикальные Блоки внутренних стен горизонтальные Конструкция внутренних блоков при применении подкосов во время монтажа стен Петли П1-3, П2-3, П3-3, П4-3 |
| Разработан: | КиевЗНИИЭП |
| Утверждён: | 23.04.1973 Государственный комитет по гражданскому строительству и архитектуре при Госстрое СССР (85) |
| Нормативные ссылки: |
|





























