Скачать Типовой проект 704-4-37.86 Альбом I. Технологические решения. Архитектурно-строительные решения. Отопление и вентиляция. Автоматизация сантехсистем. Водопровод и канализация. Электротехнические решения. Связь и сигнализацияДата актуализации: 01.01.2021
|
| Обозначение: | Типовой проект 704-4-37.86 |
| Обозначение англ: | 704-4-37.86 |
| Статус: | не определен законодательством |
| Название рус.: | Альбом I. Технологические решения. Архитектурно-строительные решения. Отопление и вентиляция. Автоматизация сантехсистем. Водопровод и канализация. Электротехнические решения. Связь и сигнализация |
| Дата добавления в базу: | 01.09.2013 |
| Дата актуализации: | 01.01.2021 |
| Дата введения: | 22.07.1986 |
| Дата окончания срока действия: | 30.06.2003 |
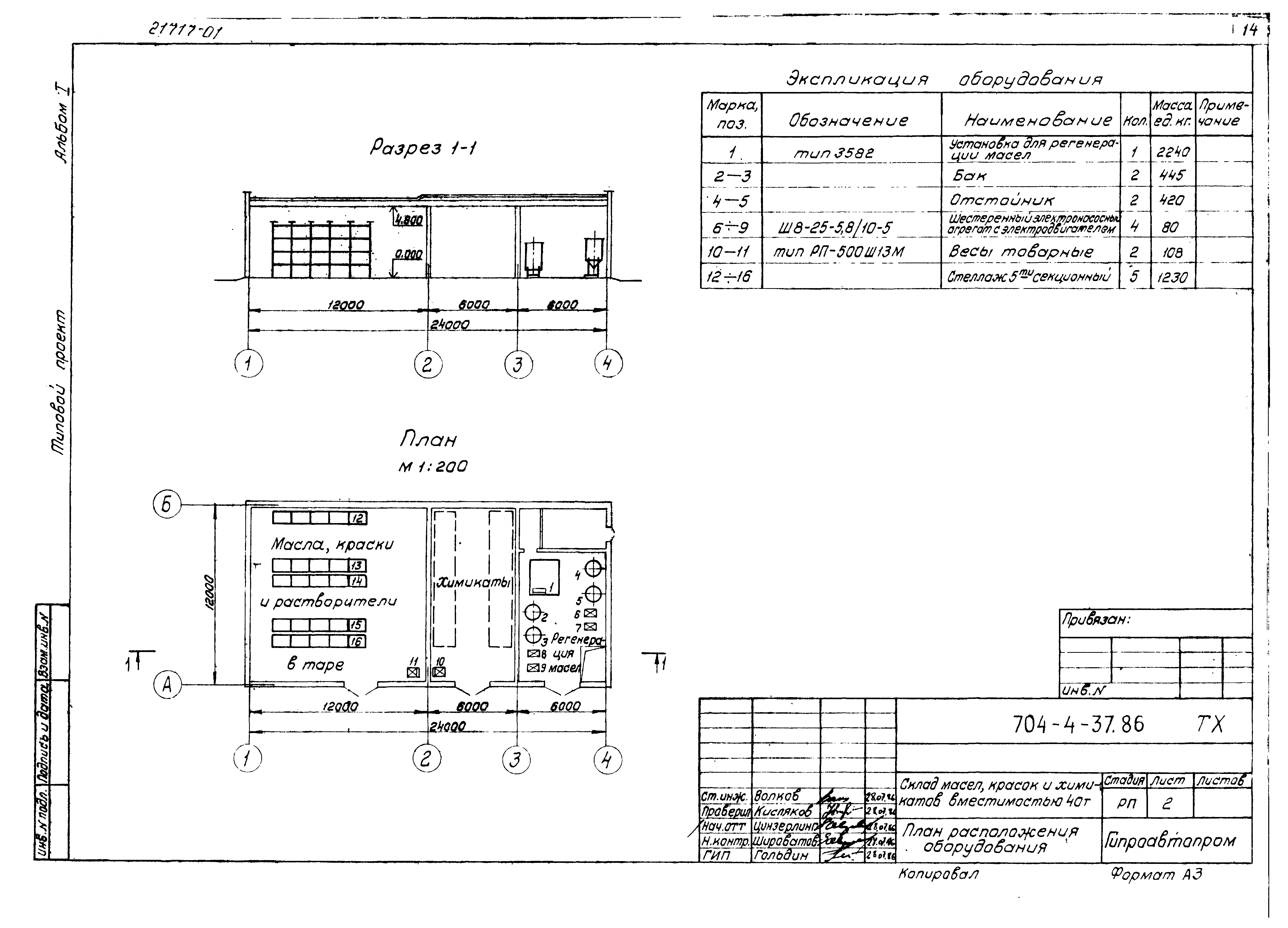
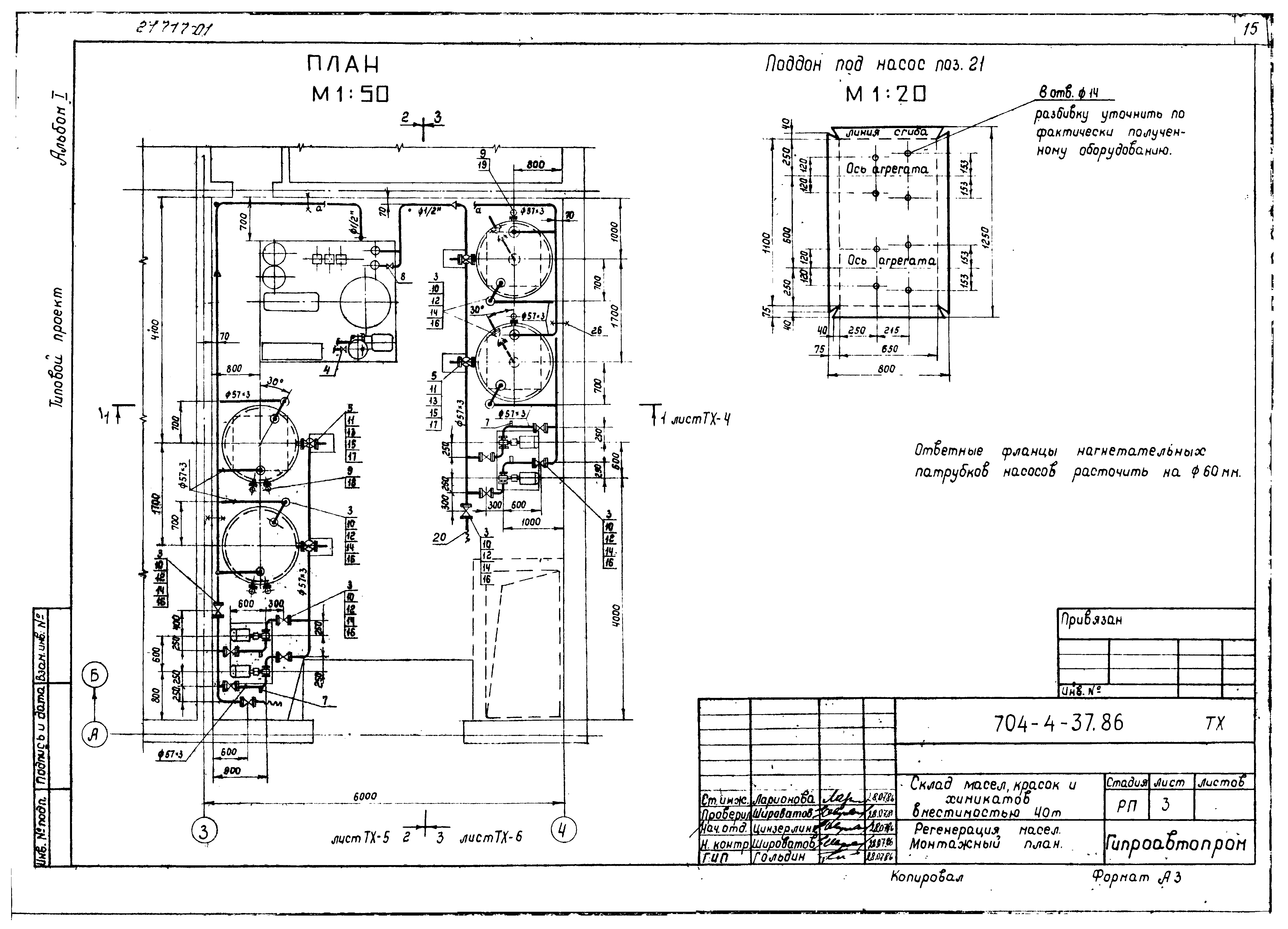
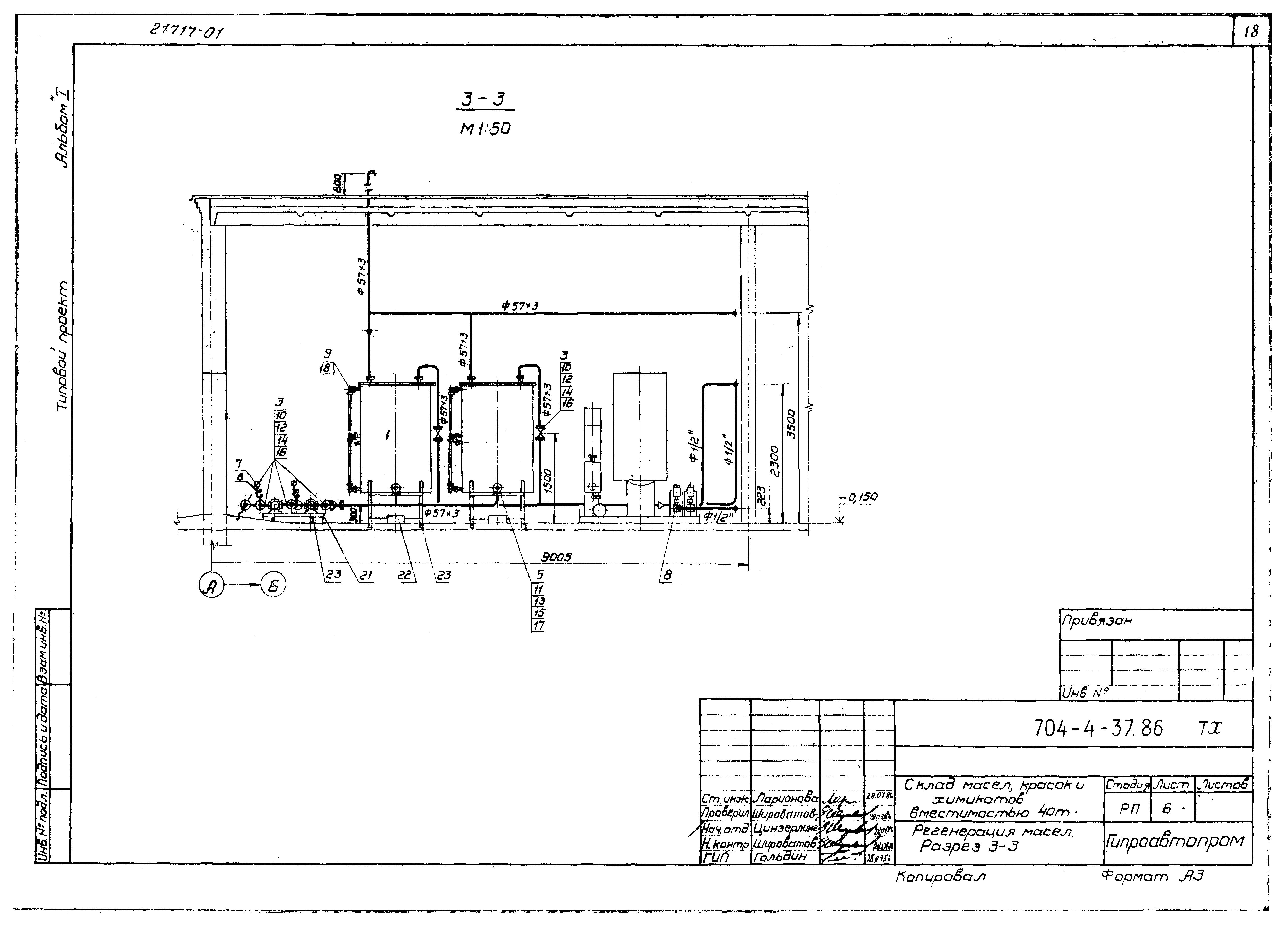
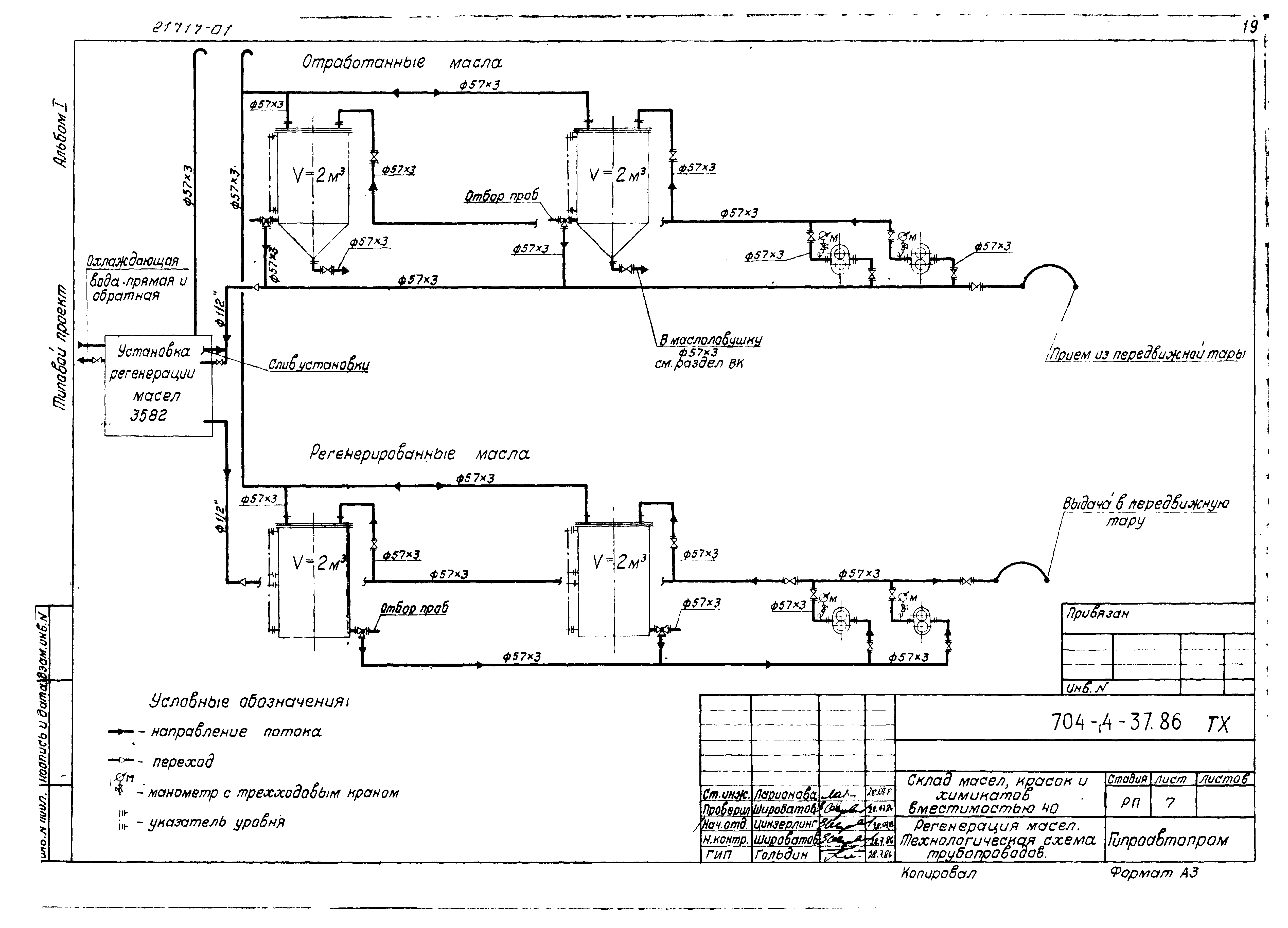
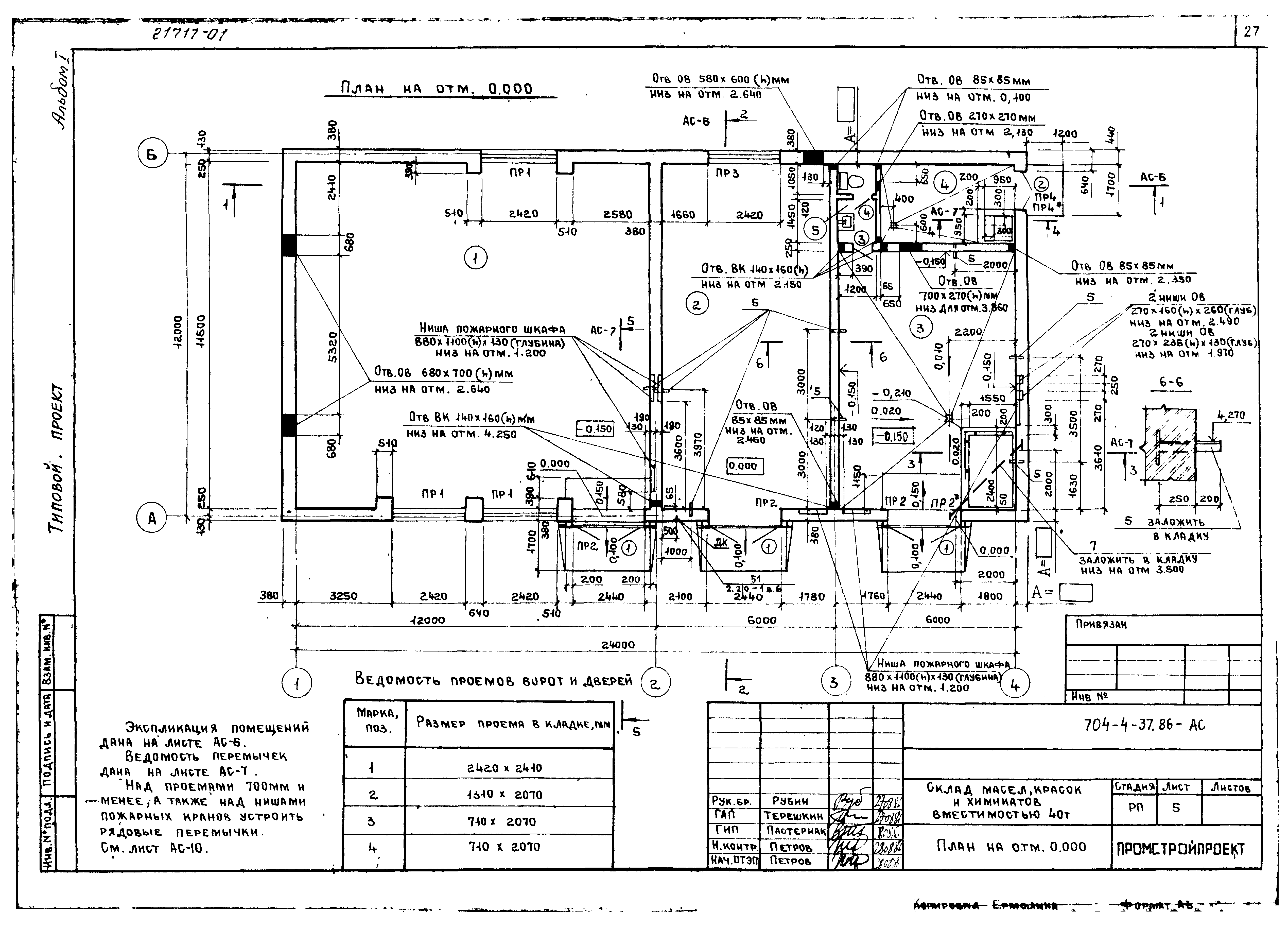
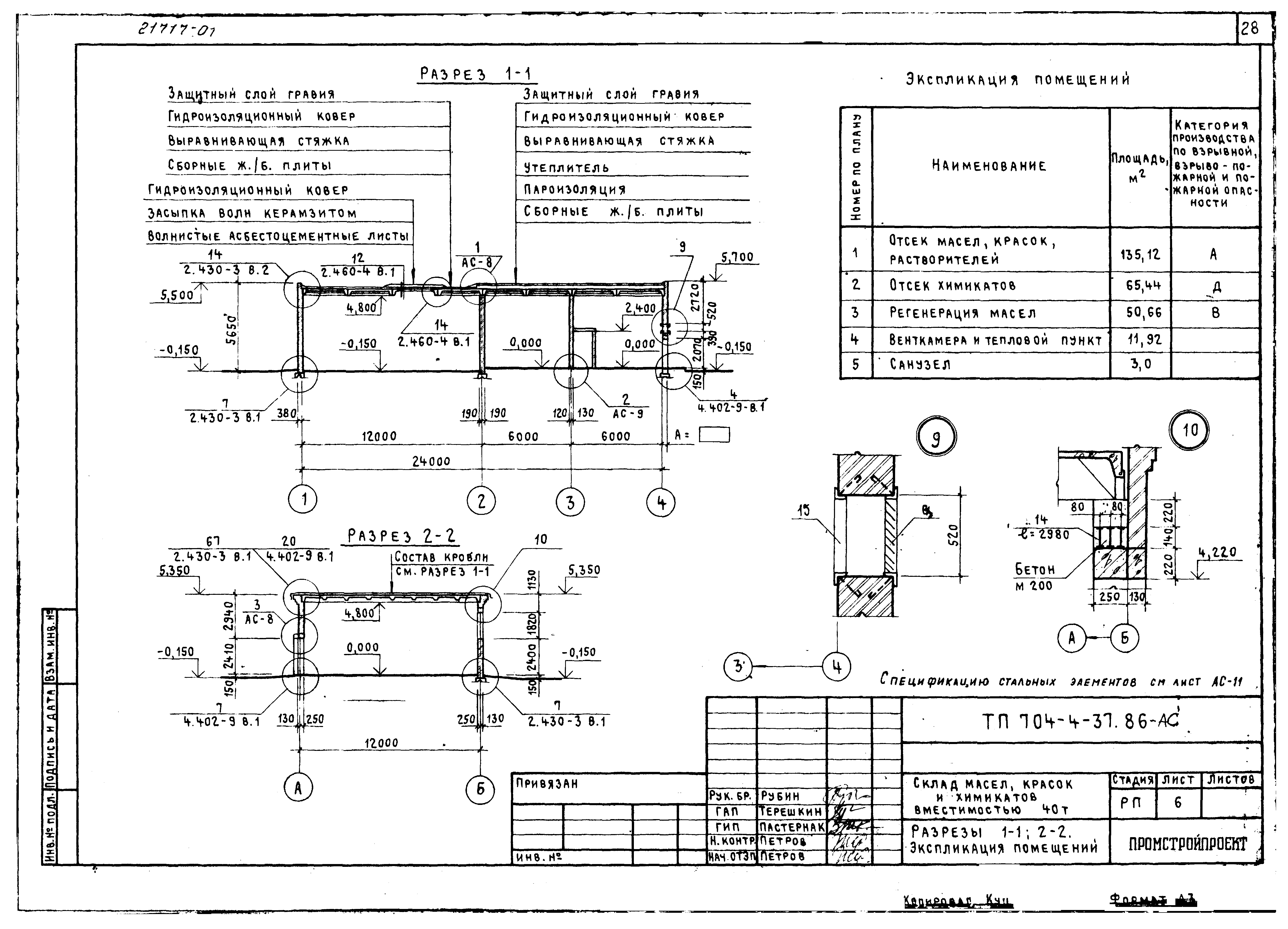
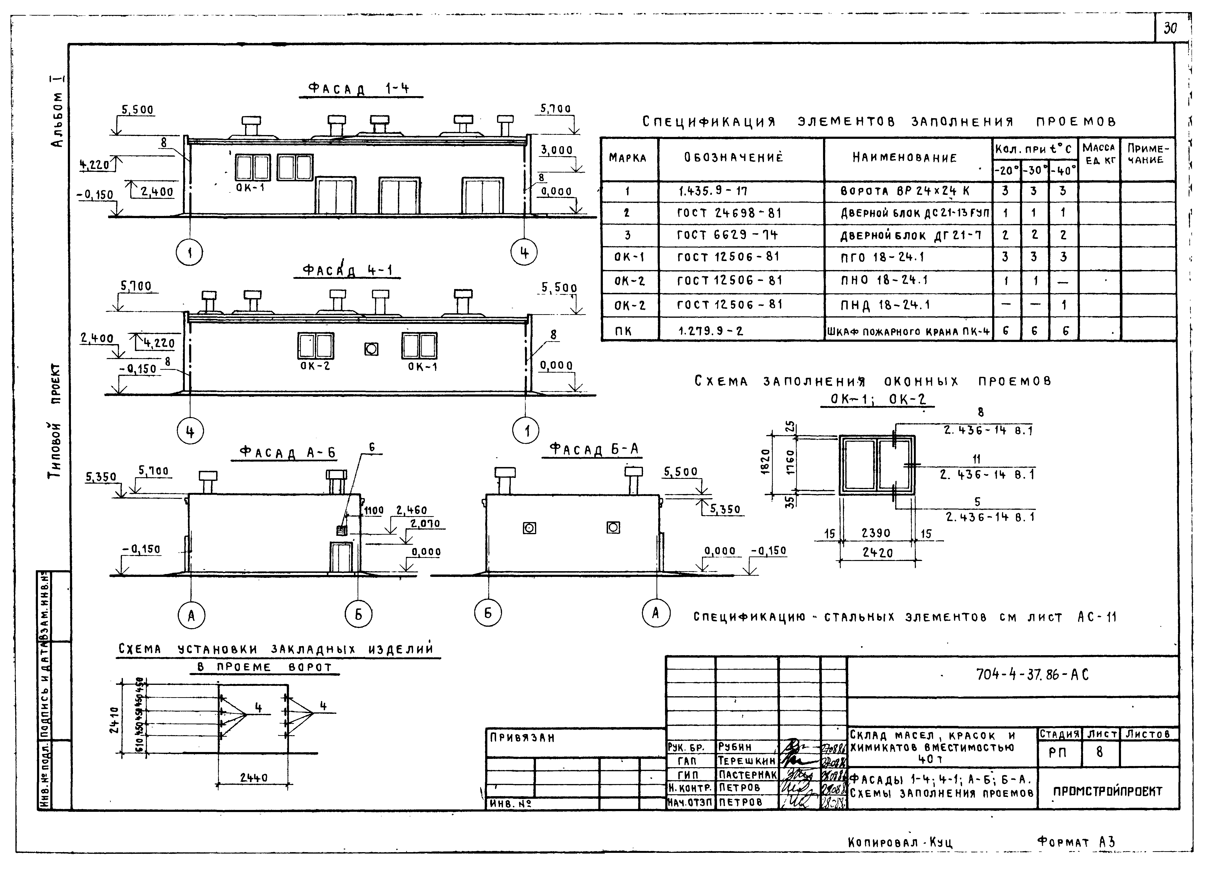
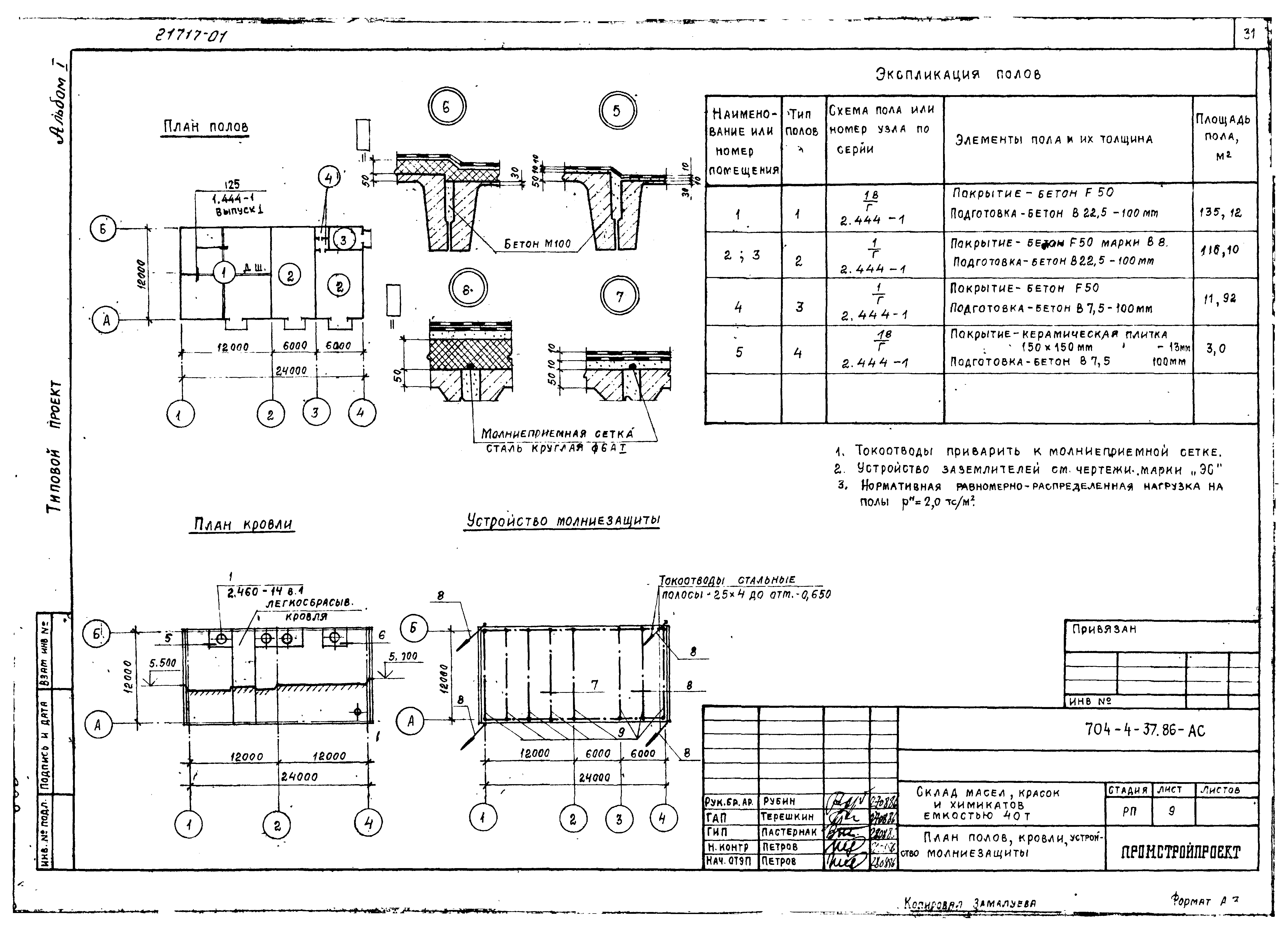
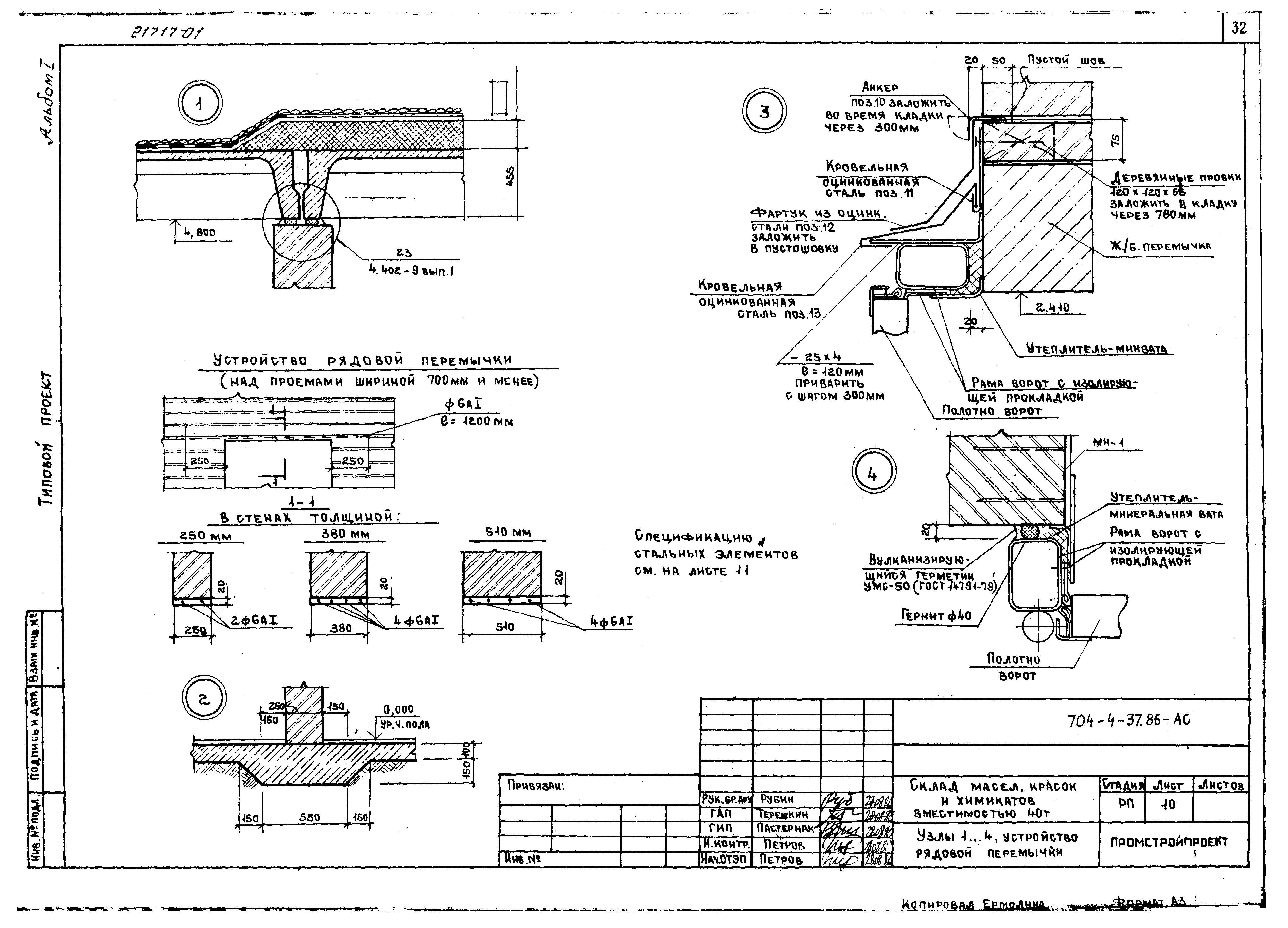
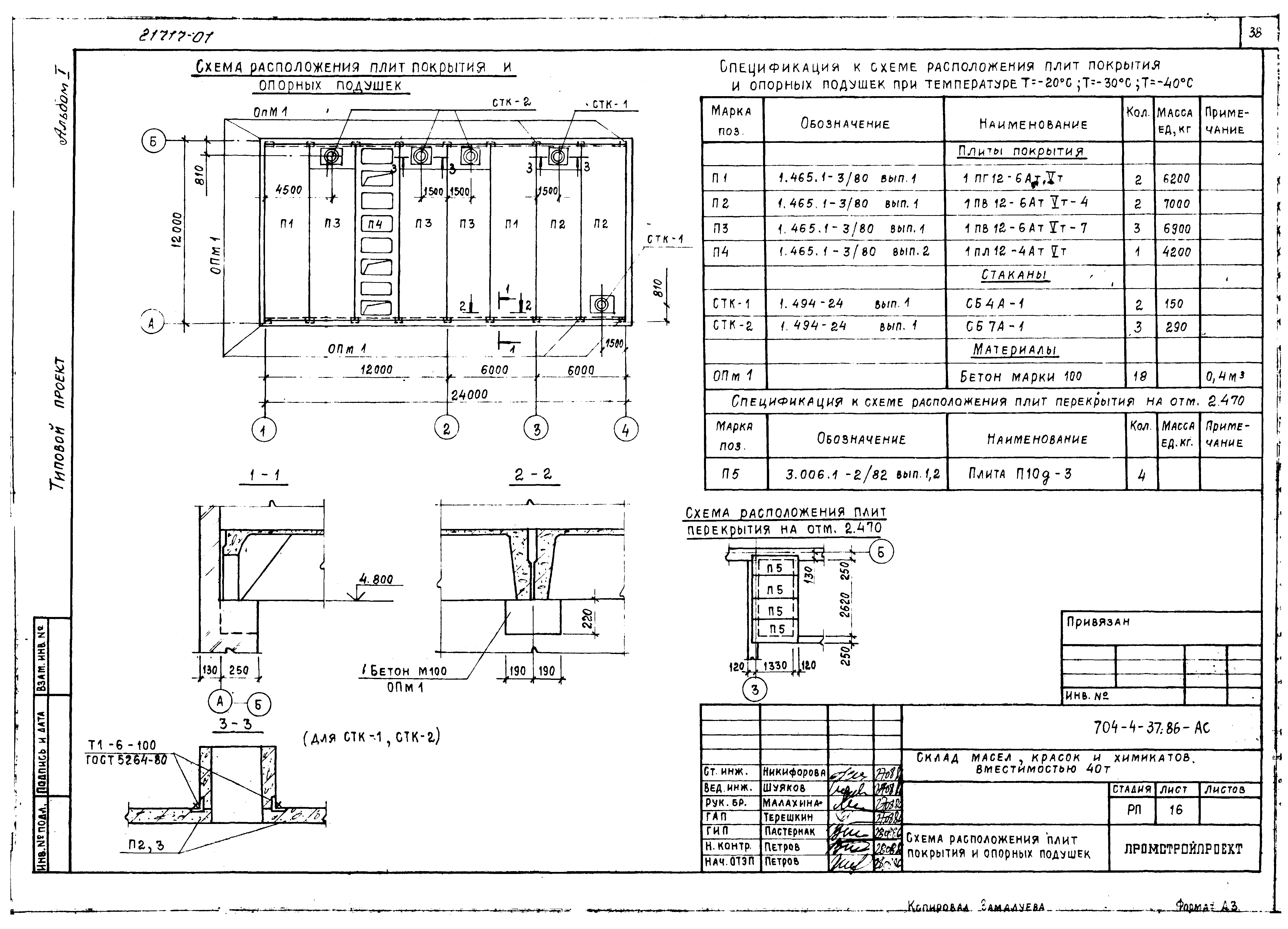
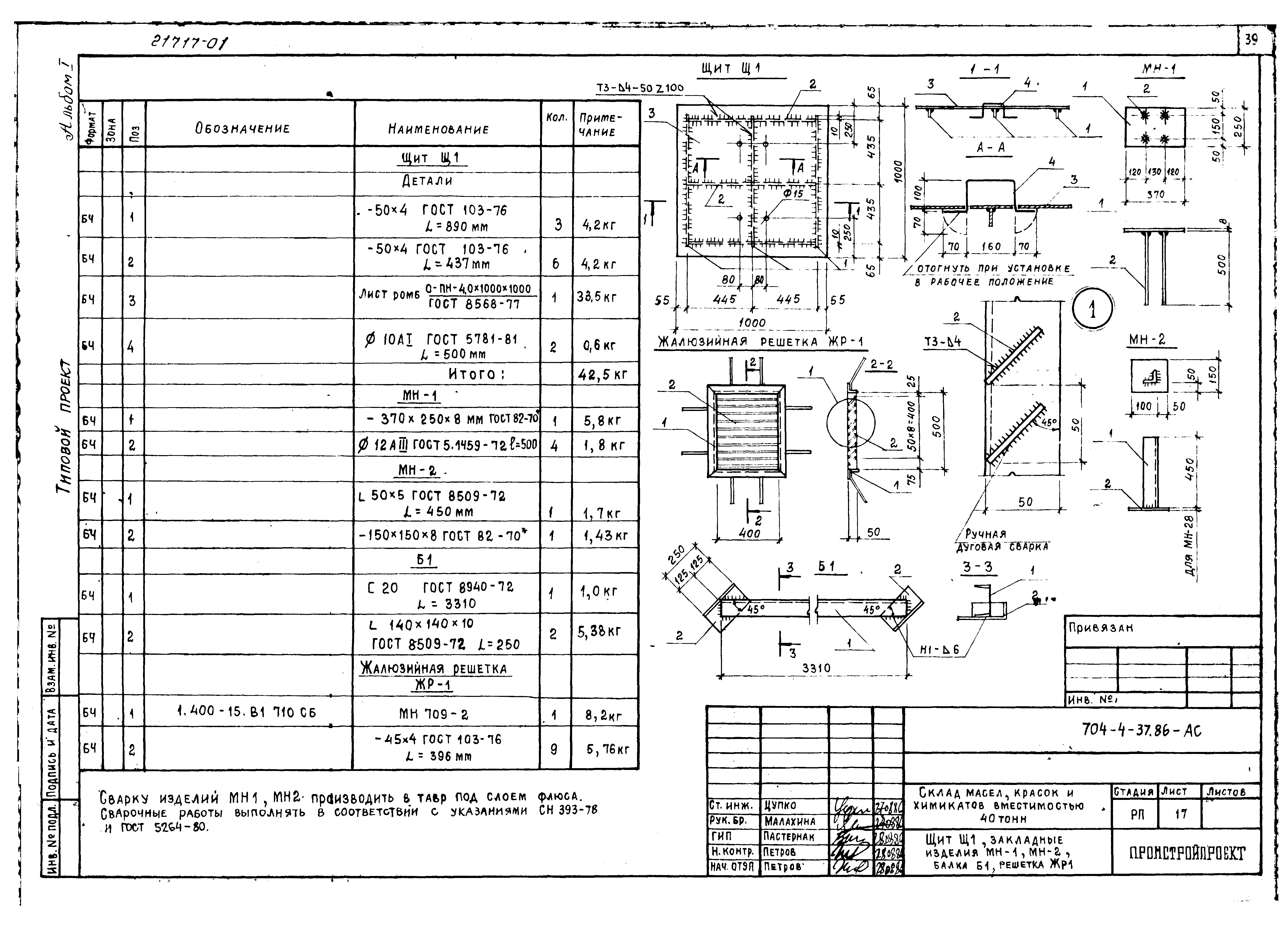
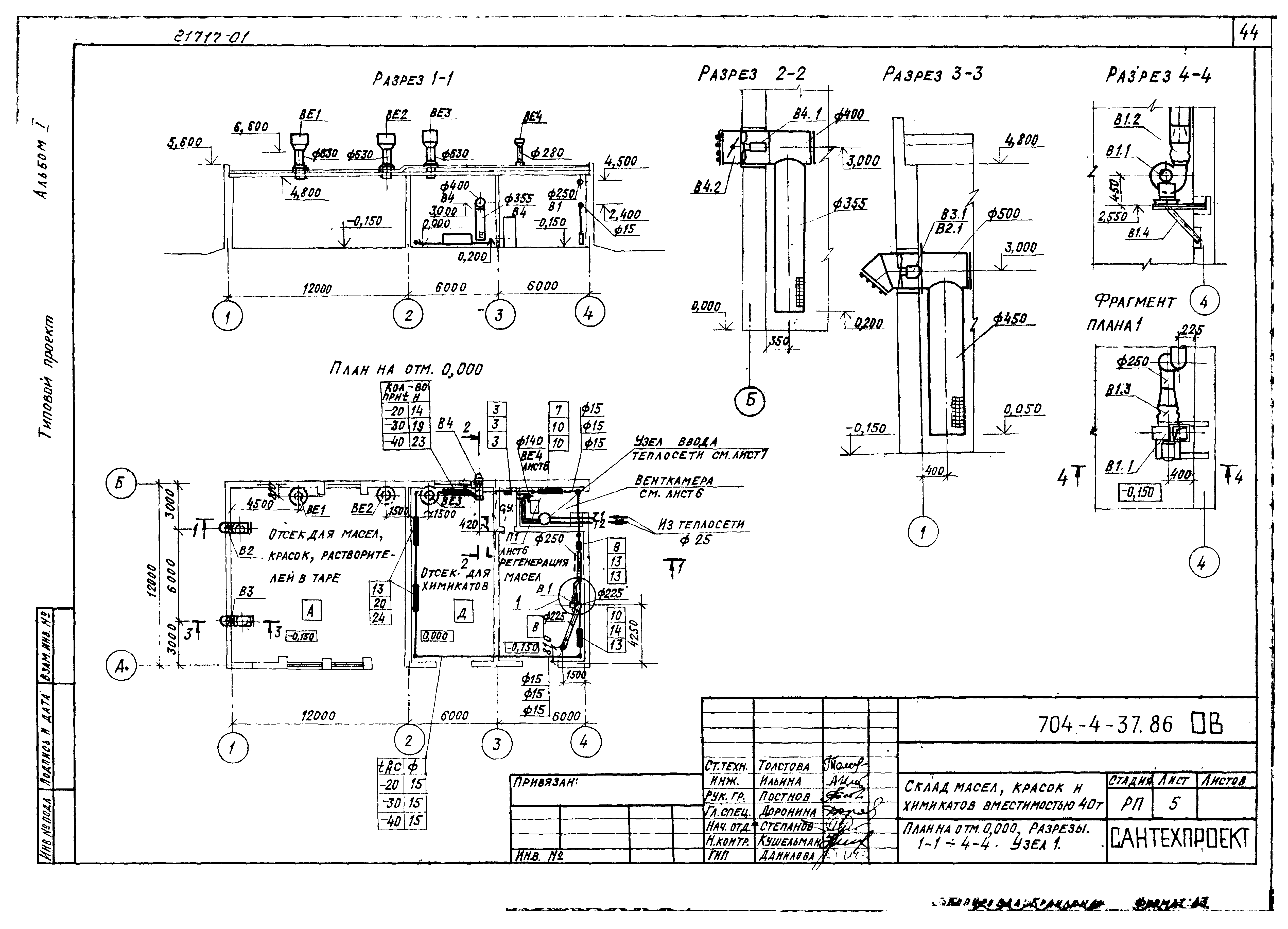
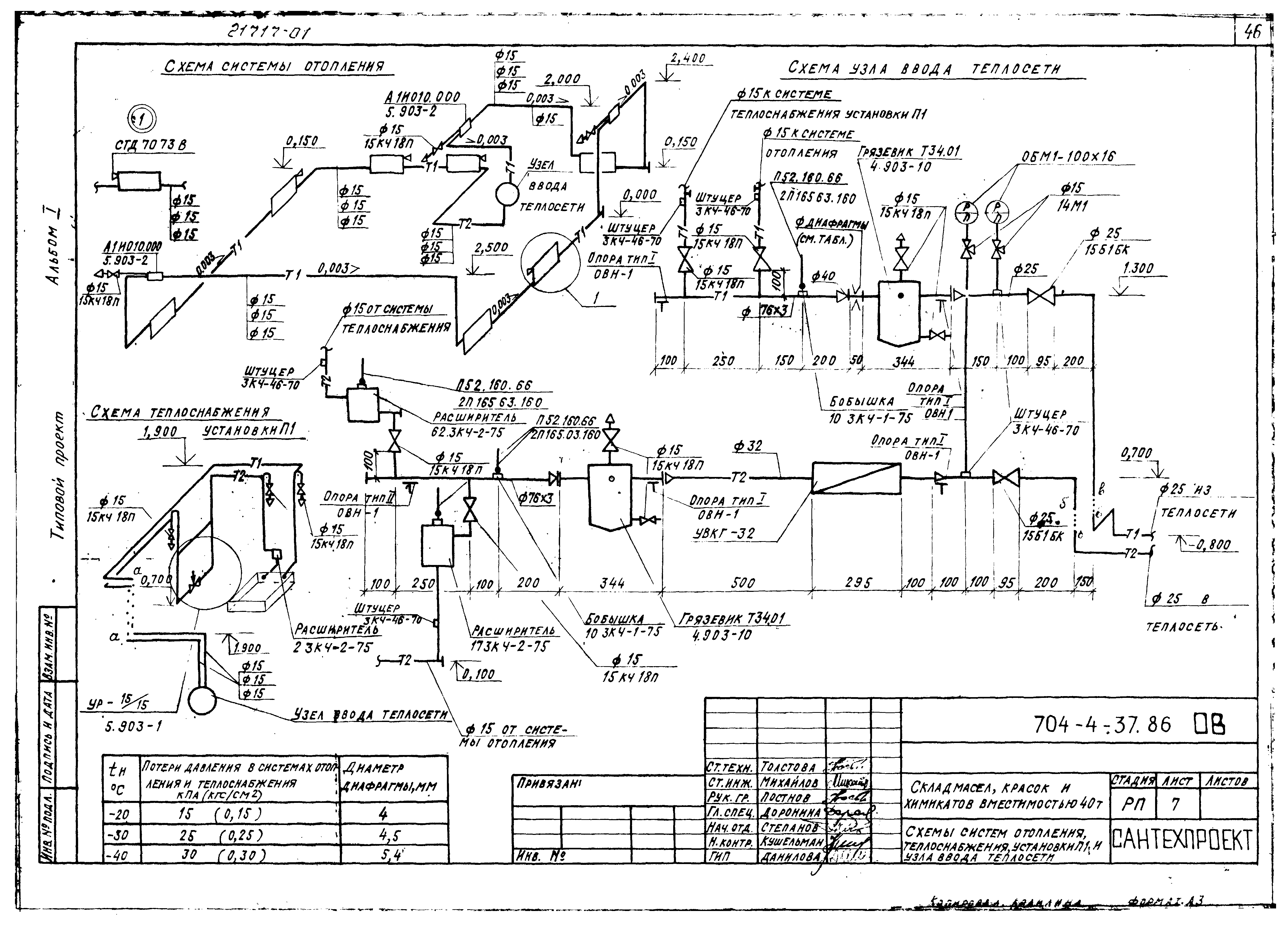
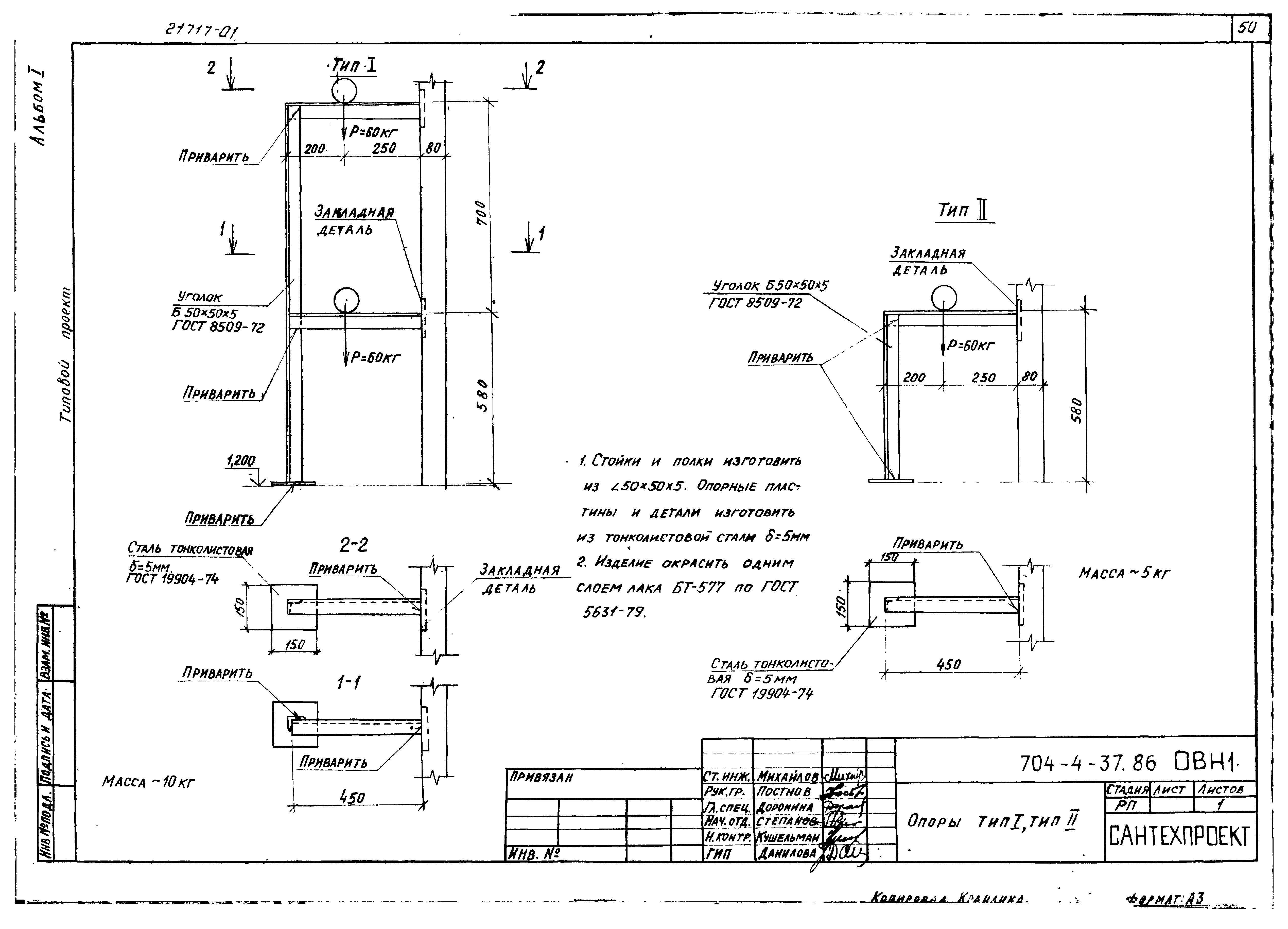
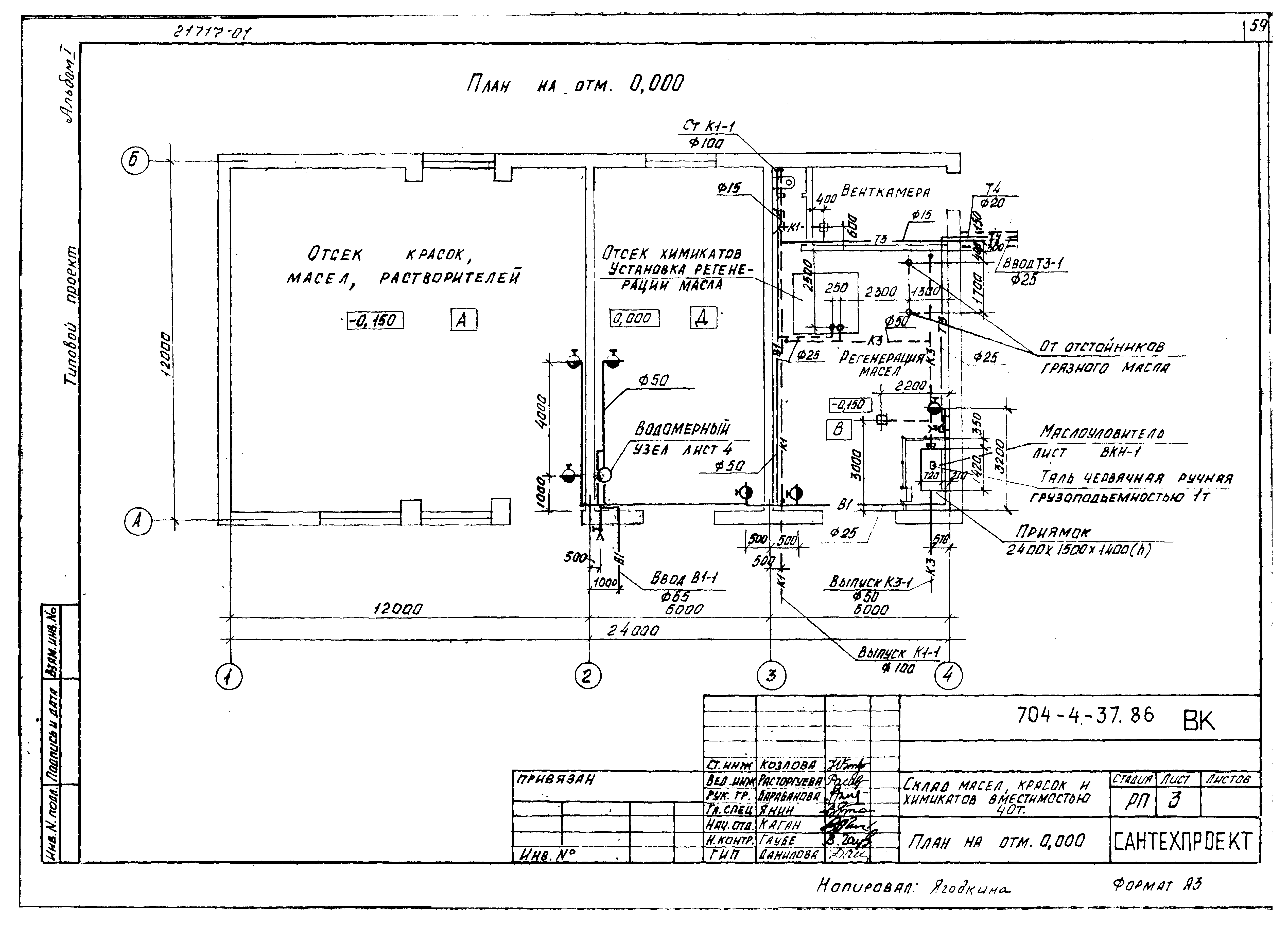
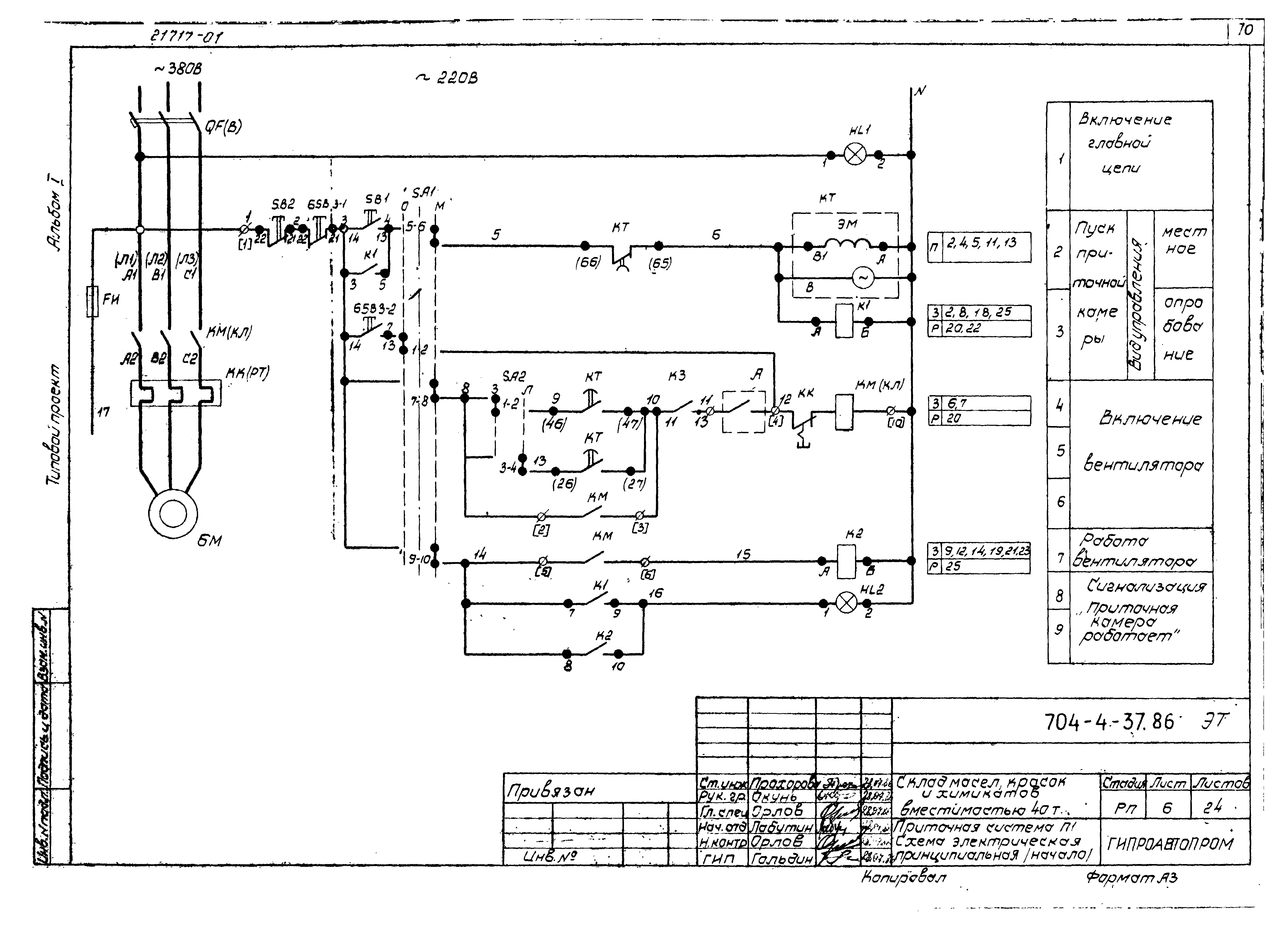
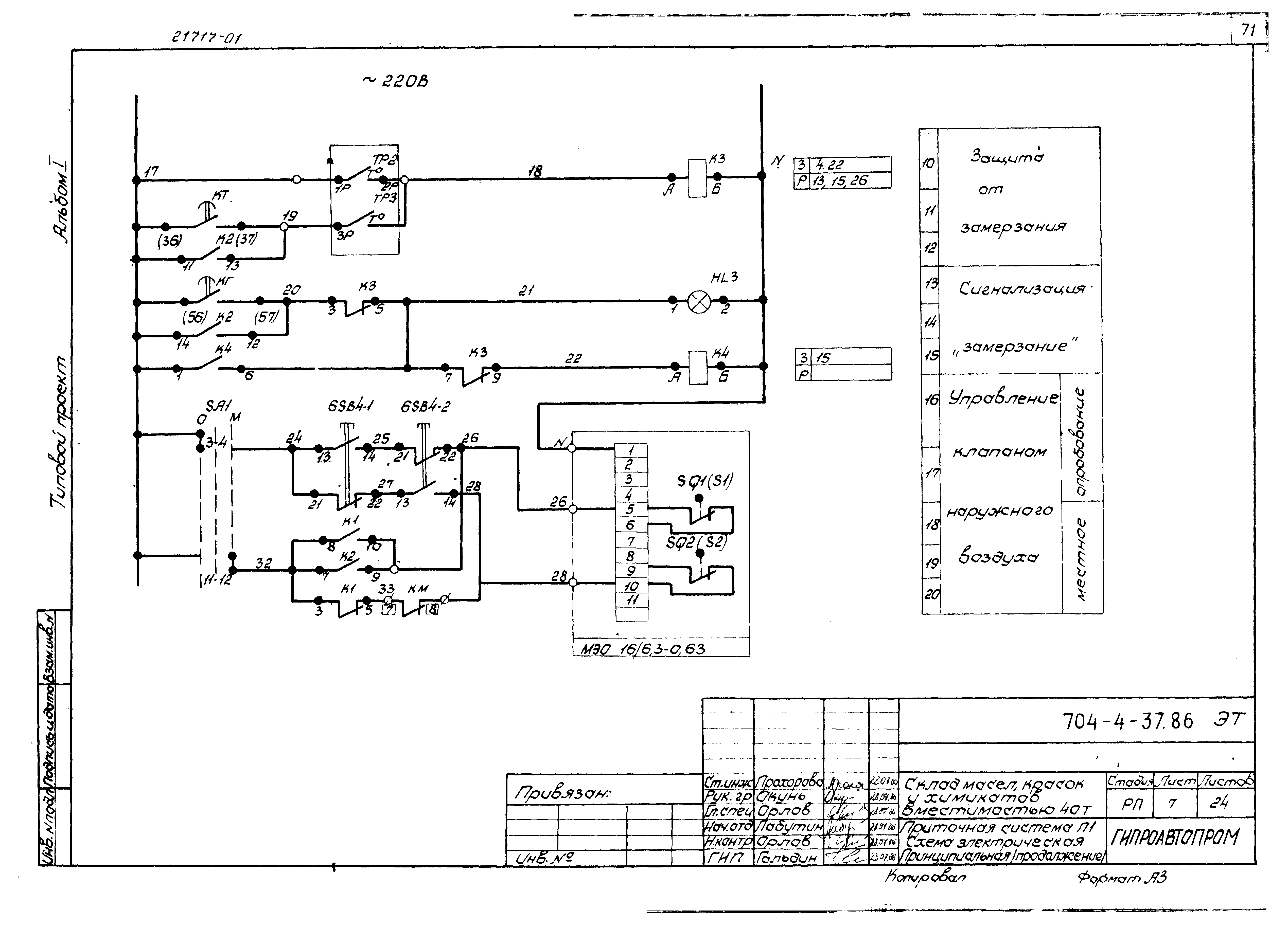
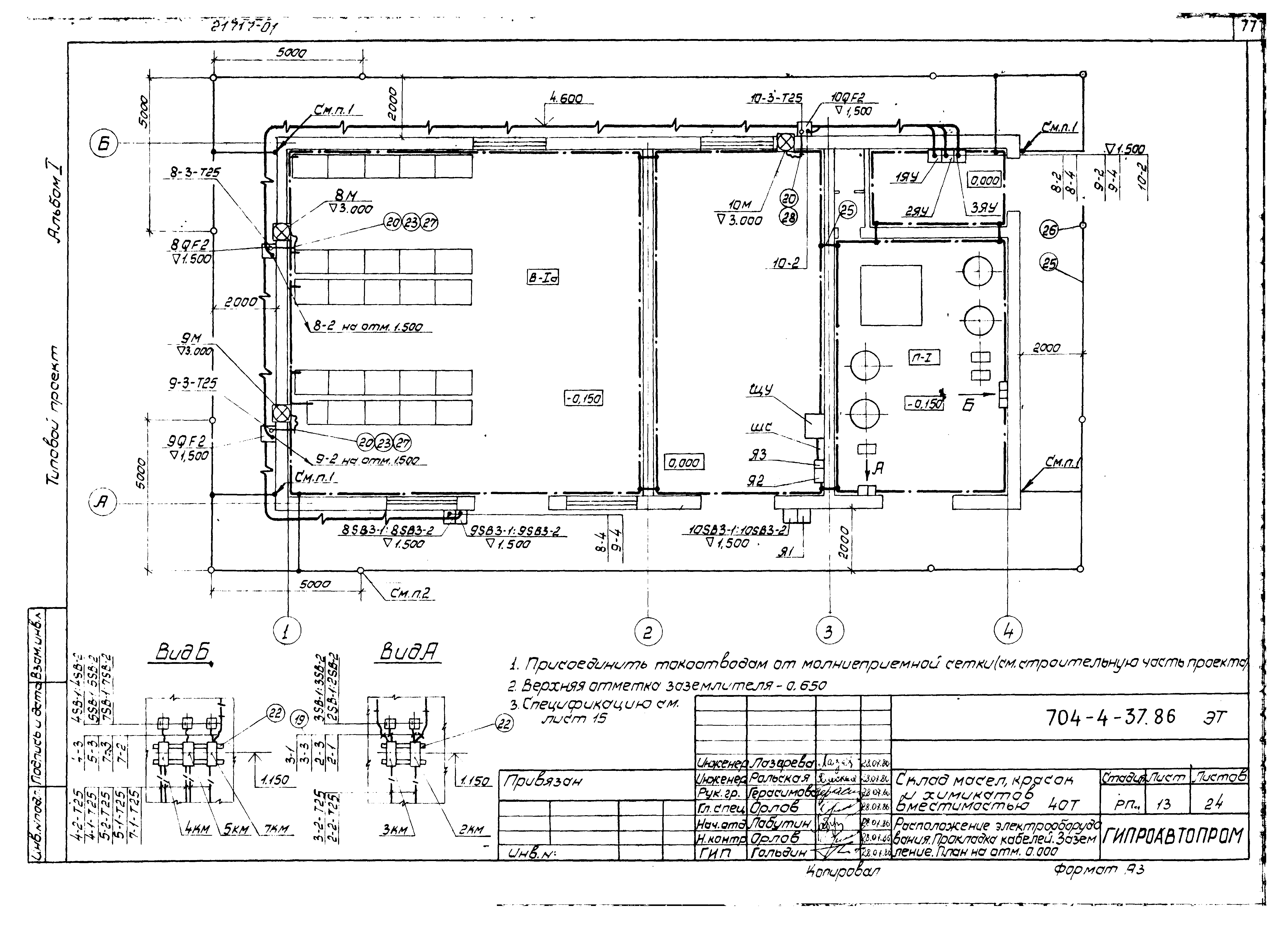
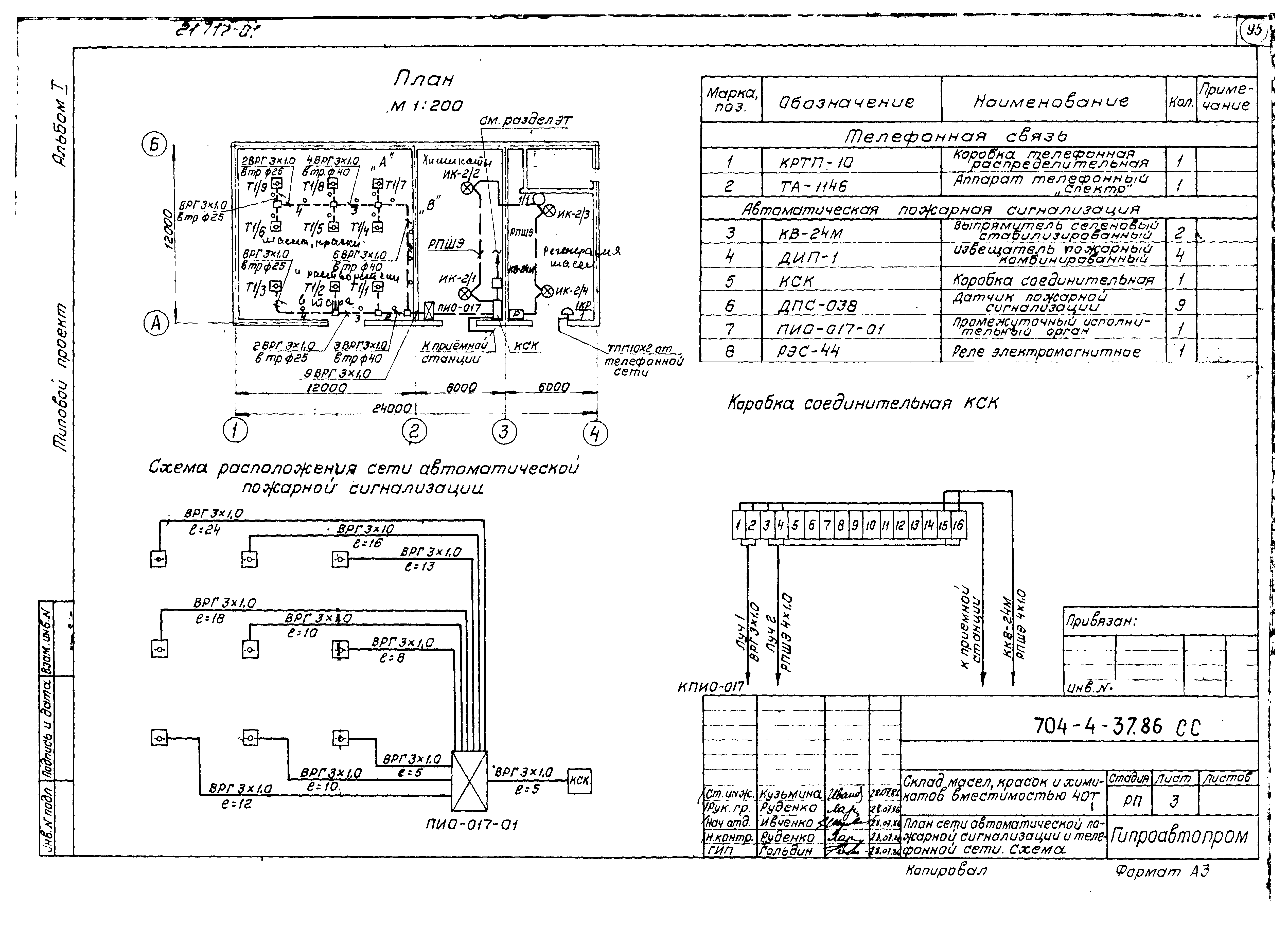
| Оглавление: | Пояснительная записка Технологические решения Общие данные План расположения оборудования Регенерация масел. Монтажный план Регенерация масел. Спецификация. Разрез 1-1 Регенерация масел. Разрез 2-2 Регенерация масел. Разрез 3-3 Регенерация масел. Технологическая схема трубопроводов Бак. Техническое задание Отстойник. Техническое задание Стеллаж сборно-разборный. Техническое задание Архитектурно-строительные решения Общие данные План на отм. 0.000 Разрезы 1-1; 2-2. Экспликация помещений Разрезы 3-3 - 5-5. Ведомость перемычек Фасады 1-4; 4-1; А-Б; Б-А. Схемы заполнения проемов План полов, кровли, устройство молиезащиты Узлы 1 - 4, устройство рядовой перемычки Спецификация стальных элементов, замаркированных на листах АС5 - АС10 Схема расположения фундаментных блоков t = минус 20; 30 градусов Цельсия Схема расположения фундаментных блоков t = минус 20; 30 градусов Цельсия. Разрезы 1-1 - 4-4; 7-7 Схема расположения фундаментных блоков t = минус 40 градусов Цельсия Схема расположения фундаментных блоков t = минус 40 градусов Цельсия. Разрезы 1-1 - 4-4; 7-7 Схема расположения плит покрытия и опорных подушек Щит Щ1, изделия закладные МН1, Мн2, балка Б1 Отопление и вентиляция Общие данные План на отм. 0.000, разрезы 1-1 - 4-4. Узел 1 Установка систем П1; ВЕ4. План. Разрез. Спецификация установки П1 Схемы систем отопления, теплоснабжения установки П1 и узла ввода теплосети Схемы систем П1; В1 - В3; ВЕ1 - ВЕ4 Спецификация установок В1 - В4 Содержание Опоры тип I; тип II Автоматизация сантехсистем Общие данные Приточная система П1. Схема автоматизации Приточная система П1. Схема принципиальная электрическая регулирования Приточная система П1. Схема соединений внешних проводок Приточная система П1. План расположения приборов Водопровод и канализация Общие данные План на отм. 0.000 Схемы систем В1; Т3; Т4; К1; К3. Водомерный узел Содержание Маслоуловитель Воронка стальная сварная Электротехнические решения Общие данные Принципиальная схема питающей сети 380/220 В Принципиальная схема управления двигателями вентилятора В1 и насосов Н1 - Н4 Принципиальная схема управления двигателями вентиляторов В2 - В4 Приточная система П1. Схема электрическая принципиальная Вентилятор В2 (В3, В4). Схема подключений Щит управления 6ЩУ. Схема подключений Расположение электрооборудования. Прокладка кабелей. Заземление. План на отм. 0.000 Расположение электрооборудования. Прокладка кабелей в трубах и лотках. План на отм. - 0.150 Прокладка кабелей в трубах и лотках. Спецификация к листам Кабельный журнал Сводка кабелей и проводов, учтенных кабельным журналом Таблица заполнения труб кабелями План электроосвещения на отм. 0.000 План электроосвещения на отм. 0.000. Фрагмент 1 Условные обозначения Щит управления 6ЩУ. Таблица технических данных Щит управления 6ЩУ. Чертеж общего вида Щит управления 6ЩУ. Схема электрическая соединений Щит управления 6ЩУ. Таблица перечня надписей Связь и сигнализация Общие данные План сети автоматической пожарной сигнализации и телефонной сети. Схема |
| Разработан: | Гипроавтопром Промстройпроект |
| Утверждён: | 22.07.1986 Минавтопром СССР (USSR Minavtoprom 1) |































































































