Скачать Типовой проект 284-6-1 Альбом I. Пояснительная записка. Архитектурно-строительные решения. Конструкции железобетонные и металлические. Технологический чертеж. Внутренний водопровод и канализация. Отопление и вентиляция. Электроосвещение. Связь и сигнализацияДата актуализации: 01.01.2021
|
| Обозначение: | Типовой проект 284-6-1 |
| Обозначение англ: | 284-6-1 |
| Статус: | действует |
| Название рус.: | Альбом I. Пояснительная записка. Архитектурно-строительные решения. Конструкции железобетонные и металлические. Технологический чертеж. Внутренний водопровод и канализация. Отопление и вентиляция. Электроосвещение. Связь и сигнализация |
| Дата добавления в базу: | 01.09.2013 |
| Дата актуализации: | 01.01.2021 |
| Дата введения: | 26.02.1980 |
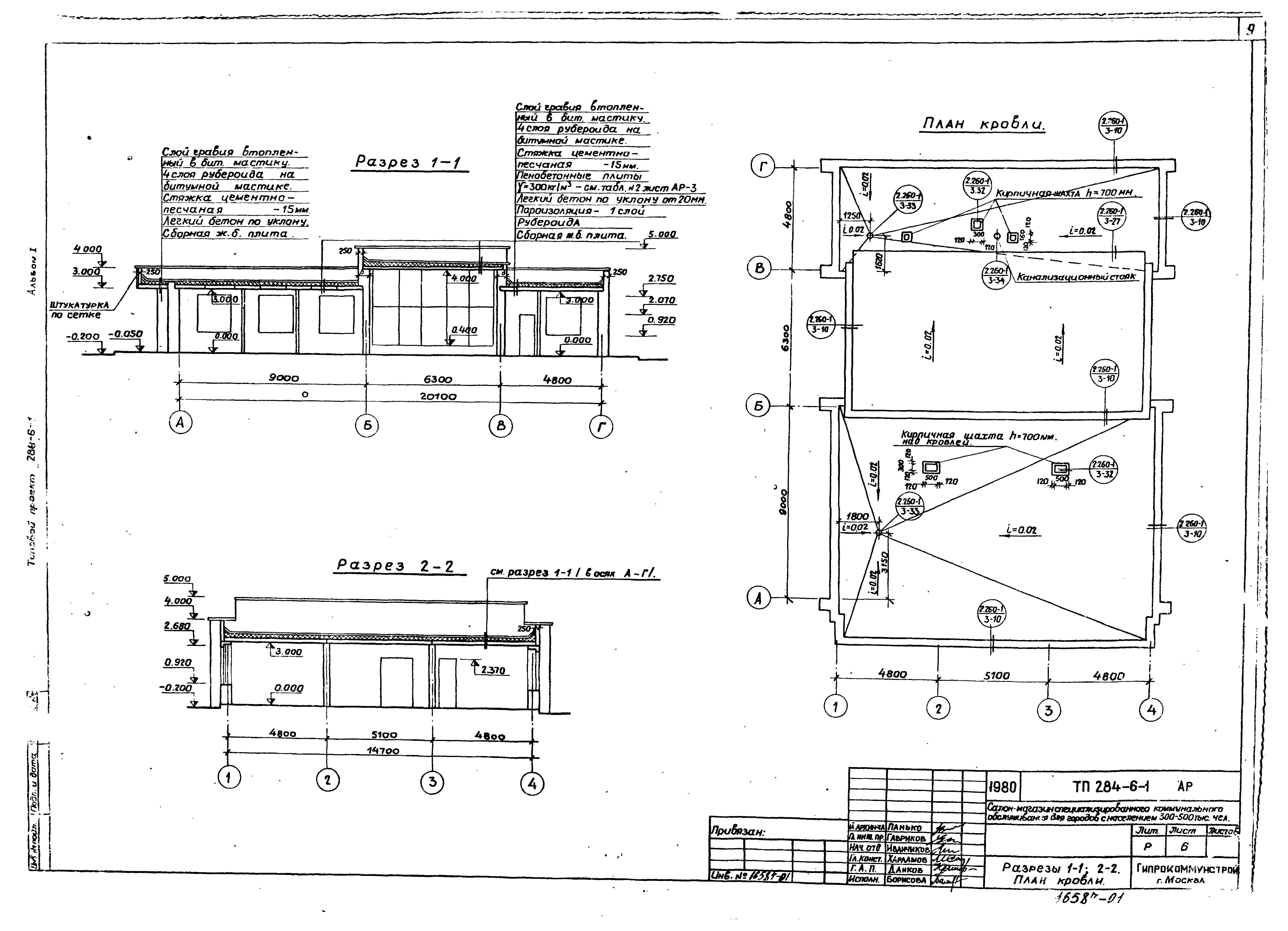
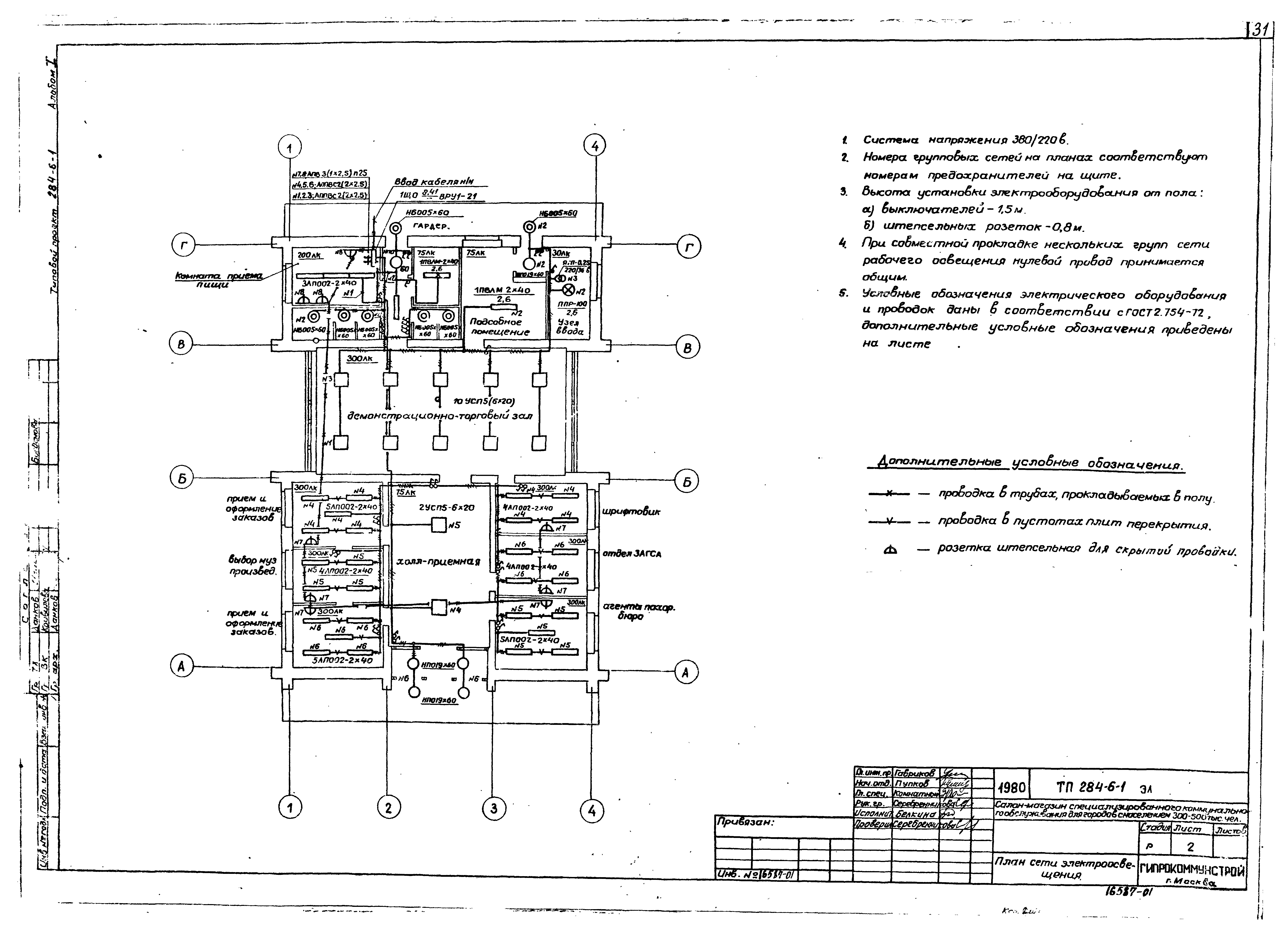
| Оглавление: | Обложка Титульный лист Содержание альбома Архитектурно-строительная часть Заглавный лист Сводная спецификация План на отм. 0.000. Экспликация помещений Разрезы 1-1; 2-2. План кровли Фасады в осях 1 - 4; 4 - 1; А - Г; Г - А. Ведомость отделки фасадов Ведомость отделки помещений План перемычек. Отверстия для сетей инженерного оборудования. Маркировка дверных проемов Схемы заполнения оконных и дверных проемов. Перечень элементов Декоративная решетка План фундаментов Сечения фундаментов 1-1 - 9-9 План покрытия План раскладки карнизных плит по оси В. Сечения 3-3 - 6-6 Металлическая балка МБ-1. Анкера А-1, 2, 3, 4, 5 Подвеска с крюками для венков. Подставка под гроб План с расстановкой технологического оборудования. Спецификация Водопровод и канализация Общие данные План и схема систем В1, Т3, К1, К2 Отопление и вентиляция Основные данные Сводная спецификация План отопления. Схема отопления План вентиляции. Схемы вентиляции ВЕ-1; ВЕ-2; ВЕ-3; ВЕ-4; ВЕ-5 Узел управления. План, схема, разрез 1-1 Звено прямого участка шовного асбестоцементного воздуховода Электроосвещение Заглавный лист. Пояснительная записка. Состав проекта. Спецификация на оборудование и материалы. Основные показатели проекта План сети электроосвещения Расчетная схема распределительной сети. Опросный лист ВРУ1-21 Устройства связи и сигнализации Пояснения. Спецификация на оборудование и основные материалы Сети на отм. 0.000. Условные обозначения. Объемы работ |
| Разработан: | Гипрокоммунстрой |
| Утверждён: | 30.05.1979 Госстрой РСФСР (Russian Federation Gosstroy 39) |


































