Скачать Типовой проект 704-9-29.90 Альбом 1. Общая пояснительная записка. Технология производства. Архитектурно-строительные решения. Внутренние водопровод и канализация. Отопление и вентиляция. Силовое электрооборудование. Автоматизация отопления и вентиляции. Автоматизация технологии производства. Связь и сигнализацияДата актуализации: 01.01.2021
|
| Обозначение: | Типовой проект 704-9-29.90 |
| Обозначение англ: | 704-9-29.90 |
| Статус: | не определен законодательством |
| Название рус.: | Альбом 1. Общая пояснительная записка. Технология производства. Архитектурно-строительные решения. Внутренние водопровод и канализация. Отопление и вентиляция. Силовое электрооборудование. Автоматизация отопления и вентиляции. Автоматизация технологии производства. Связь и сигнализация |
| Дата добавления в базу: | 01.09.2013 |
| Дата актуализации: | 01.01.2021 |
| Дата введения: | 24.10.1990 |
| Дата окончания срока действия: | 30.06.2003 |
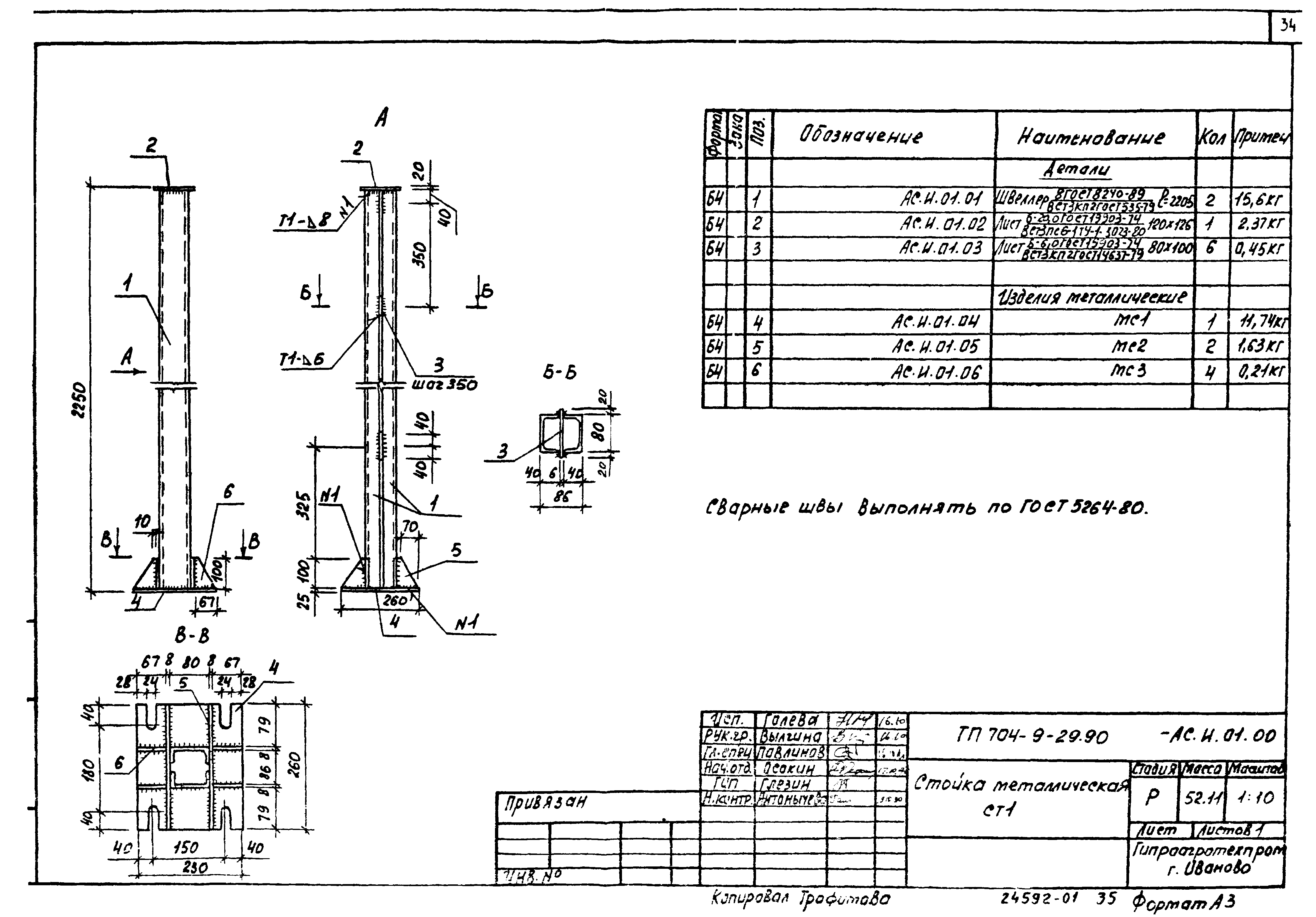
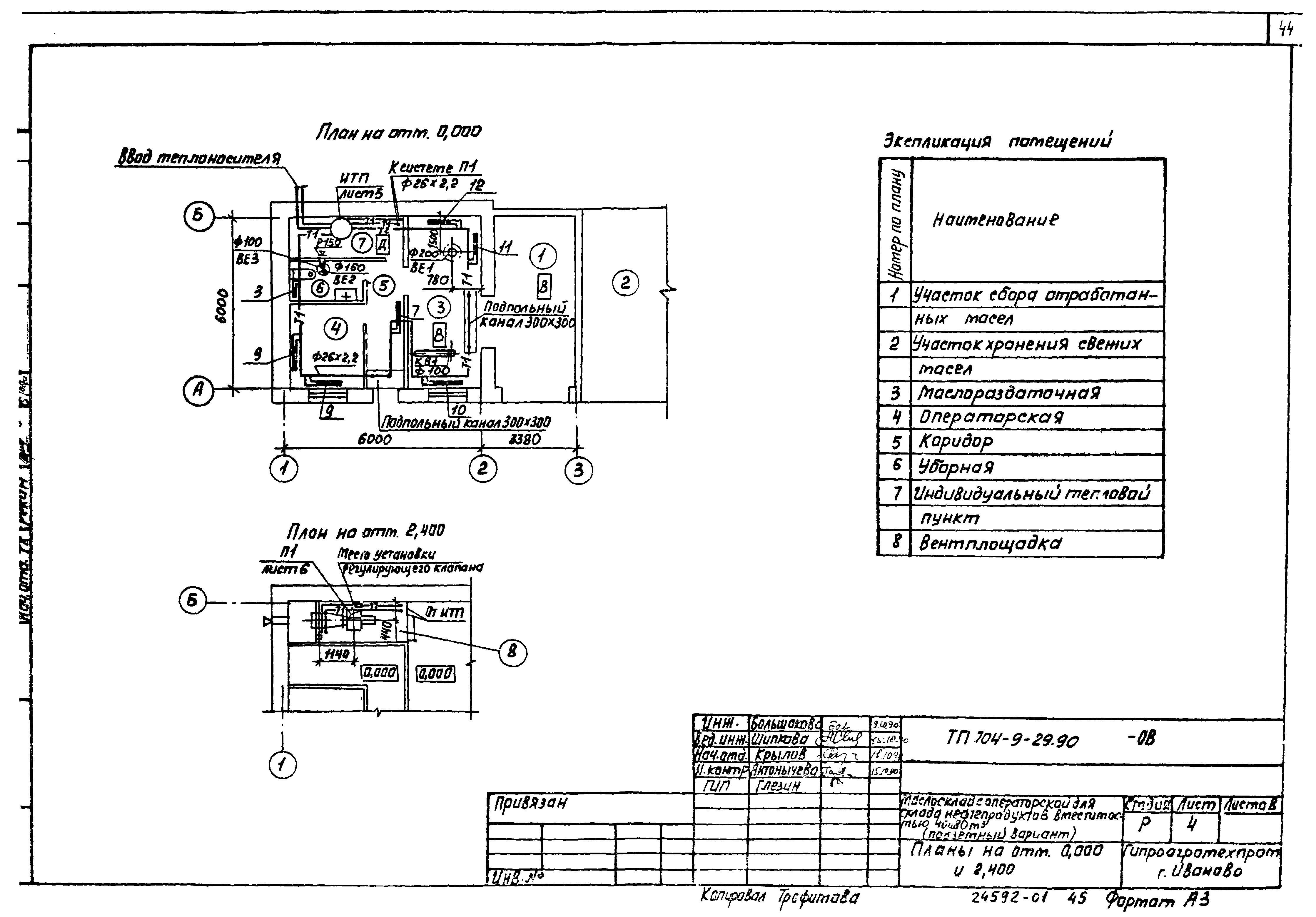
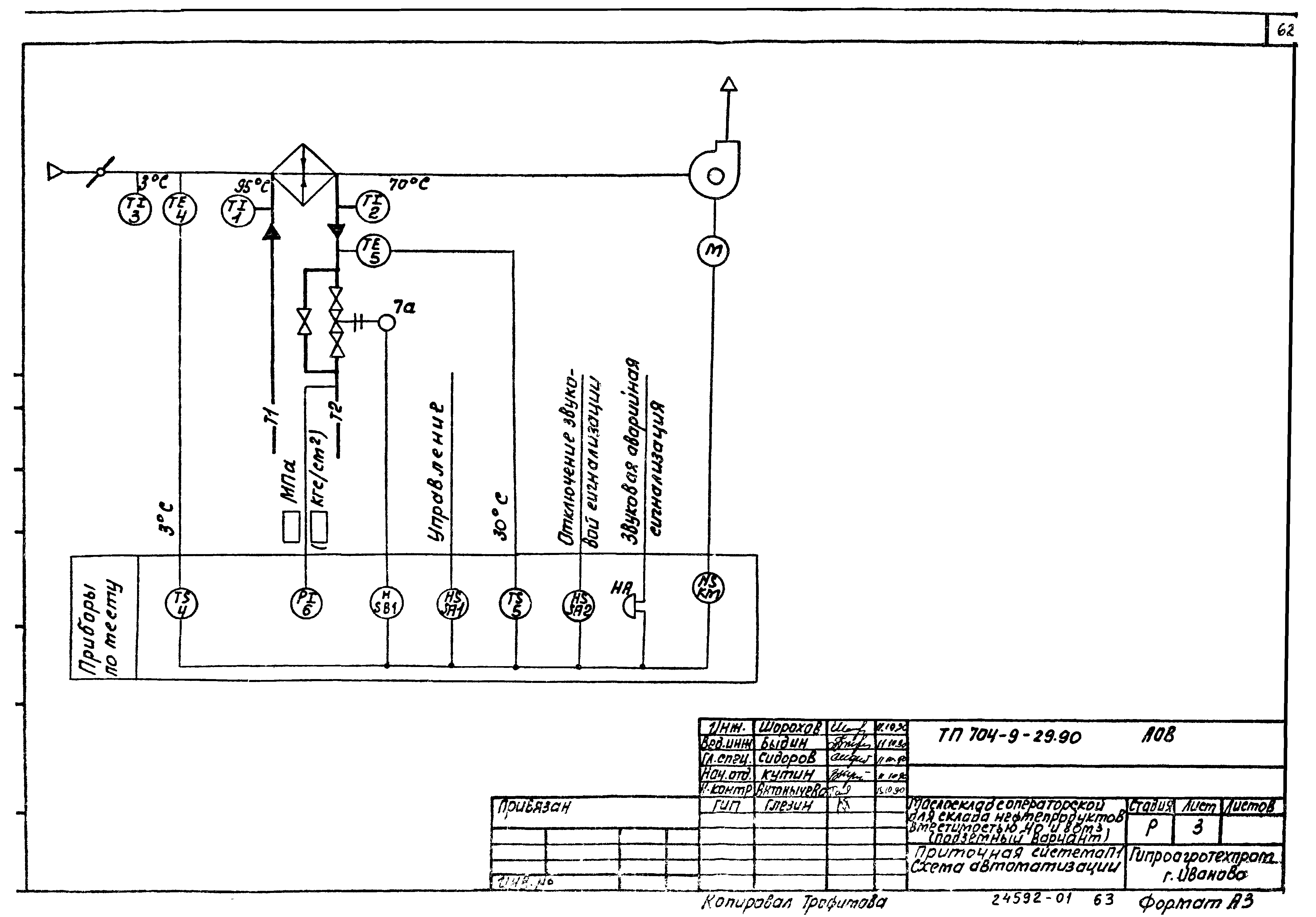
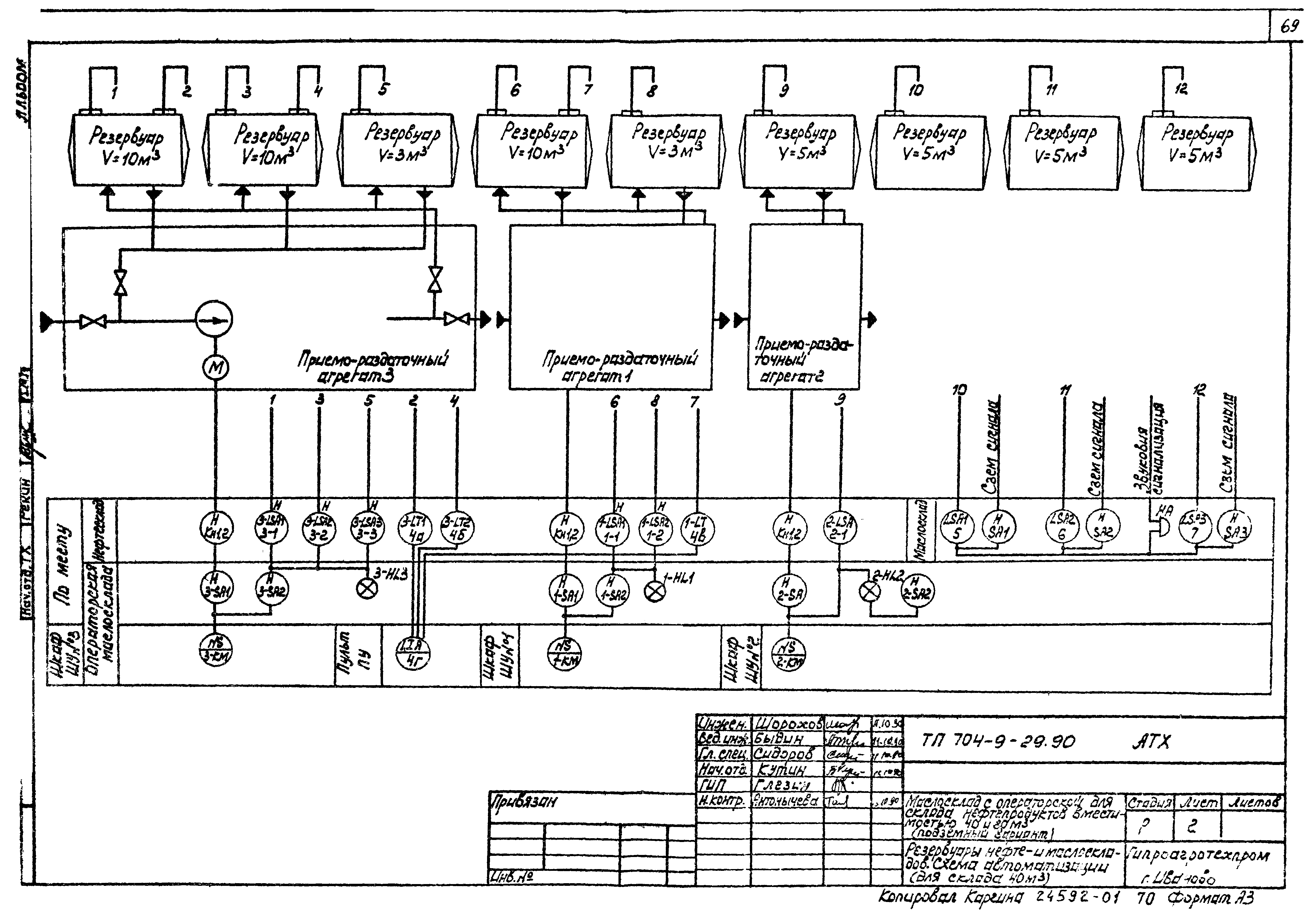
| Оглавление: | Общая пояснительная записка Технология производства Общие данные План расположения оборудования и трубопроводов масла. Схема соединений трубопроводов масла Разрез А-А. Узлы I, II Стояк для кранов раздаточных. Общий вид Архитектурно-строительные решения Общие данные Фасады 1 - 3, Б - А. План на отм. 0.000 План на отм. 2.400 Фасады 3 - 1, А - Б. Разрезы 1-1, 2-2 План кровли Планы полов на отм. 0.000 и 2.400 Узлы 1 - 5 Схема расположения элементов вентплощадки. Разрез 1-1 Разрез 2-2. Узлы 6 - 10 Схема расположения фундаментов. Фрагмент Сечения. Фундамент ФО2 Люк-лаз ЛЛФ1. Фундамент ФО1, ФО3 Схема расположения плит покрытия Стойка металлическая СТ1 Рама опорная РМ3 Анкер А1 Крышка люка-лаза КЛ1 Решетка Р1 Изделие закладное МН1 Крышка приямка КД1 Рамка (РМ1, РМ2) Внутренние водопровод и канализация Общие данные План на отметке 0.000. Схемы систем В1, Т3 и К1 Отопление и вентиляция Общие данные Планы на отм. 0.000 и 2.400 Схемы систем отопления и теплоснабжения установки П1. Схемы систем вентиляции В1, ВЕ1, ВЕ2, ИТП Установки систем П1, В1. Разрез. Узел 3 Спецификация вентиляционных установок П1, В1 Силовое электрооборудование Общие данные Принципиальная электрическая схема распределительной сети 380/220 В Планы расположения электрооборудования и прокладки силовых сетей на отм. 0.000 и 2.400 Планы расположения электрооборудования и прокладки осветительных сетей на отм. 0.000 и 2.400 Кабельный журнал Автоматизация отопления и вентиляции Общие данные Приточная система П1. Схема автоматизации Индивидуальный тепловой пункт. Схема автоматизации Приточная система П1. Схема электрическая принципиальная управления Приточная система П1. Схема соединений внешних проводок Приточная система П1. Схема соединений внешних проводок. План расположения Индивидуальный тепловой пункт. Схема соединений внешних проводок Автоматизация технологии производства Общие данные Резервуары нефте- и маслоскладов. Схема автоматизации (для склада 40 куб. м) Резервуары нефте- и маслоскладов. Схема автоматизации (для склада 80 куб. м) Схемы электрические принципиальные управления приемо-раздаточными агрегатами 1, 2 Схема электрическая принципиальная управления приемо-раздаточным агрегатом 3. Схема сигнализации Приемо-раздаточный агрегат 1. Схема соединений внешних проводок Приемо-раздаточный агрегат 2. Автоматизированная система измерения уровня УГР-1м. Схема соединений внешних проводок Приемо-раздаточный агрегат 3. Схема соединений внешних проводок Резервуары маслосклада. Схема соединений внешних проводок План расположения. Фрагмент 1 Связь и сигнализация Общие данные План расположения сетей связи и сигнализации. Спецификация |
| Разработан: | Гипроагротехпром |
| Утверждён: | 24.10.1990 Гипроагротехпром (373) |
















































































