Скачать Типовой проект 801-2-17 Альбом I. Часть 2. Пояснительная записка. Архитектурно-строительные решения. Конструкции железобетонные. Вариант с рамным каркасомДата актуализации: 01.01.2021
|
| Обозначение: | Типовой проект 801-2-17 |
| Обозначение англ: | 801-2-17 |
| Статус: | действует |
| Название рус.: | Альбом I. Часть 2. Пояснительная записка. Архитектурно-строительные решения. Конструкции железобетонные. Вариант с рамным каркасом |
| Дата добавления в базу: | 01.09.2013 |
| Дата актуализации: | 01.01.2021 |
| Дата введения: | 15.05.1981 |
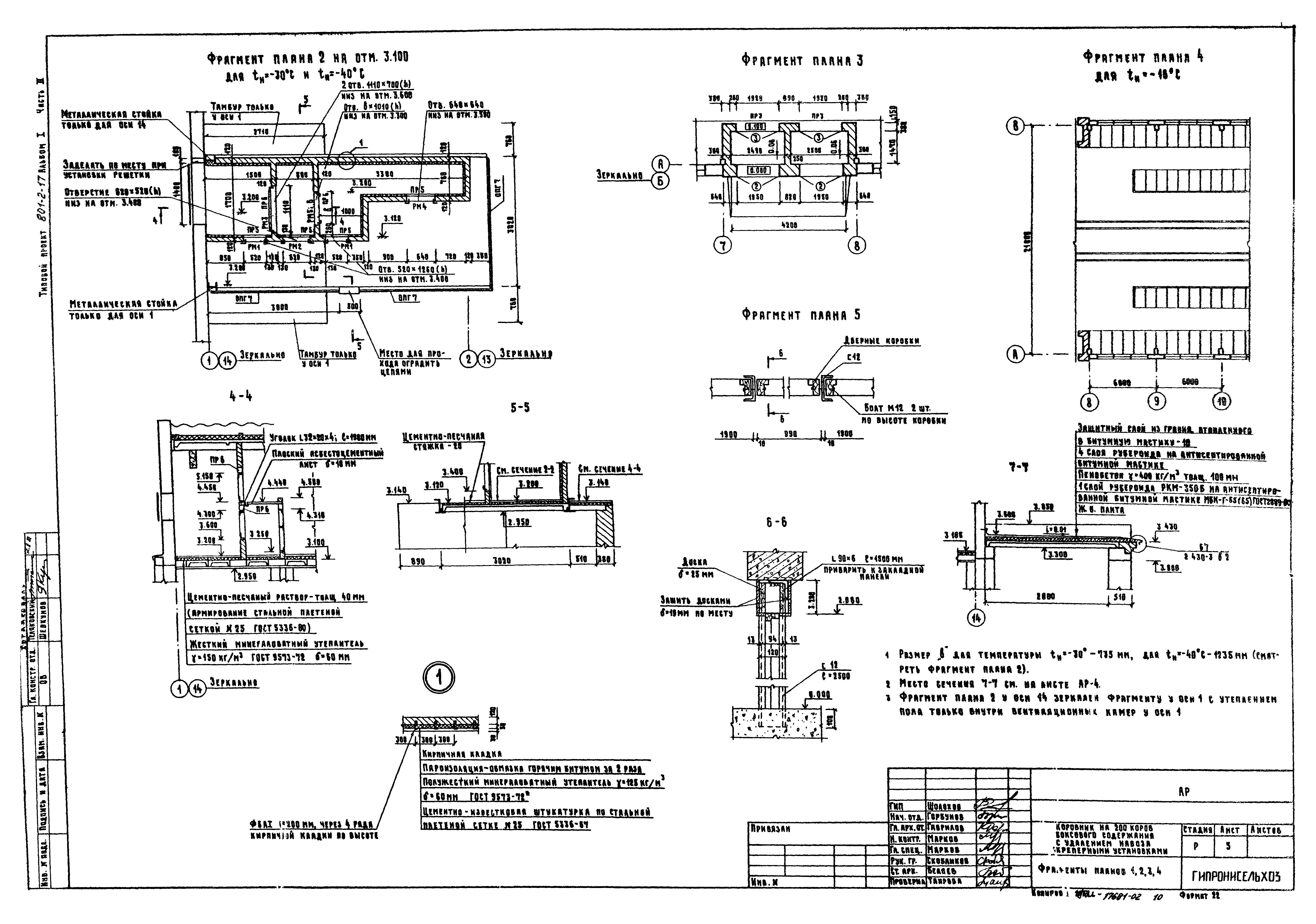
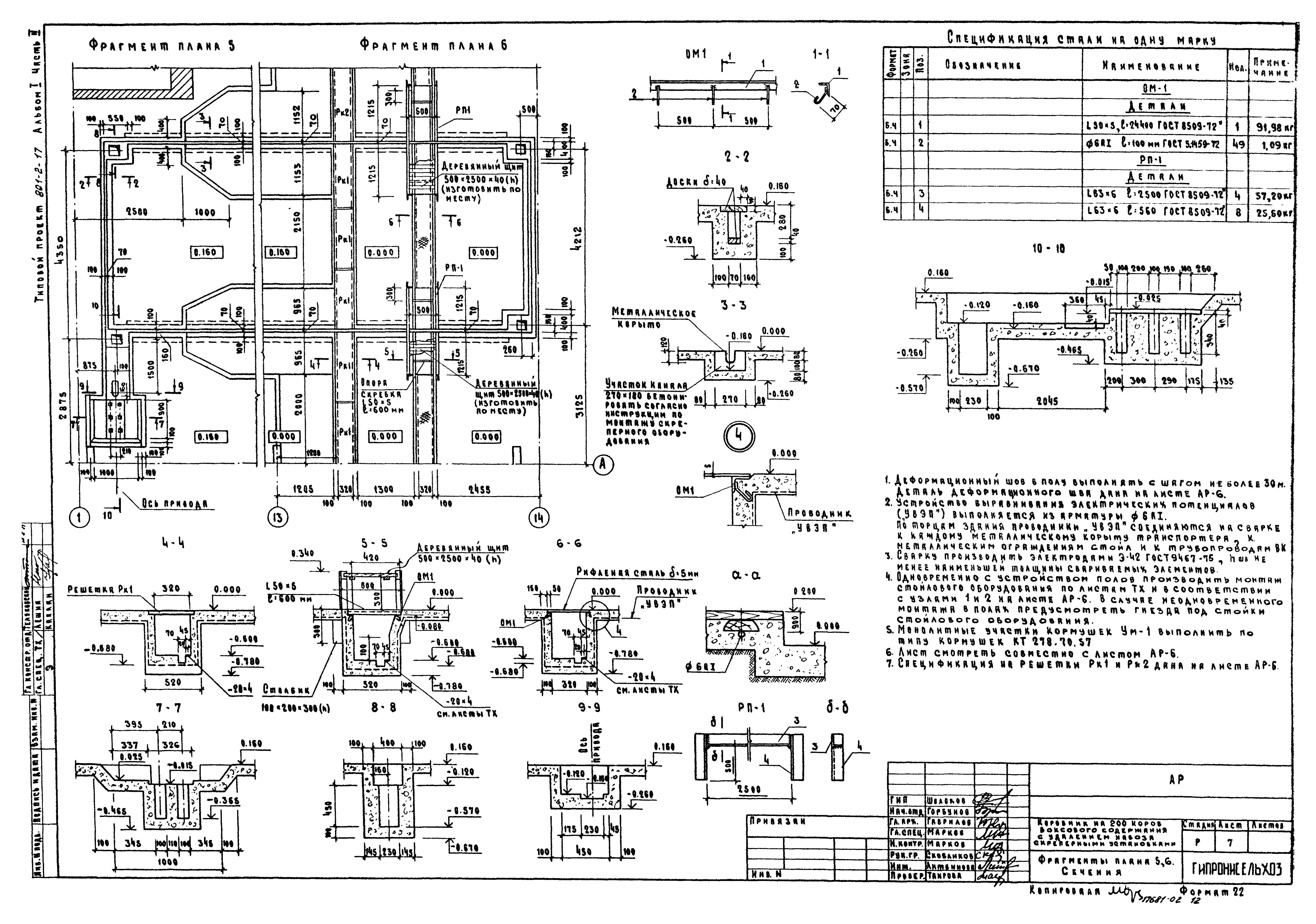
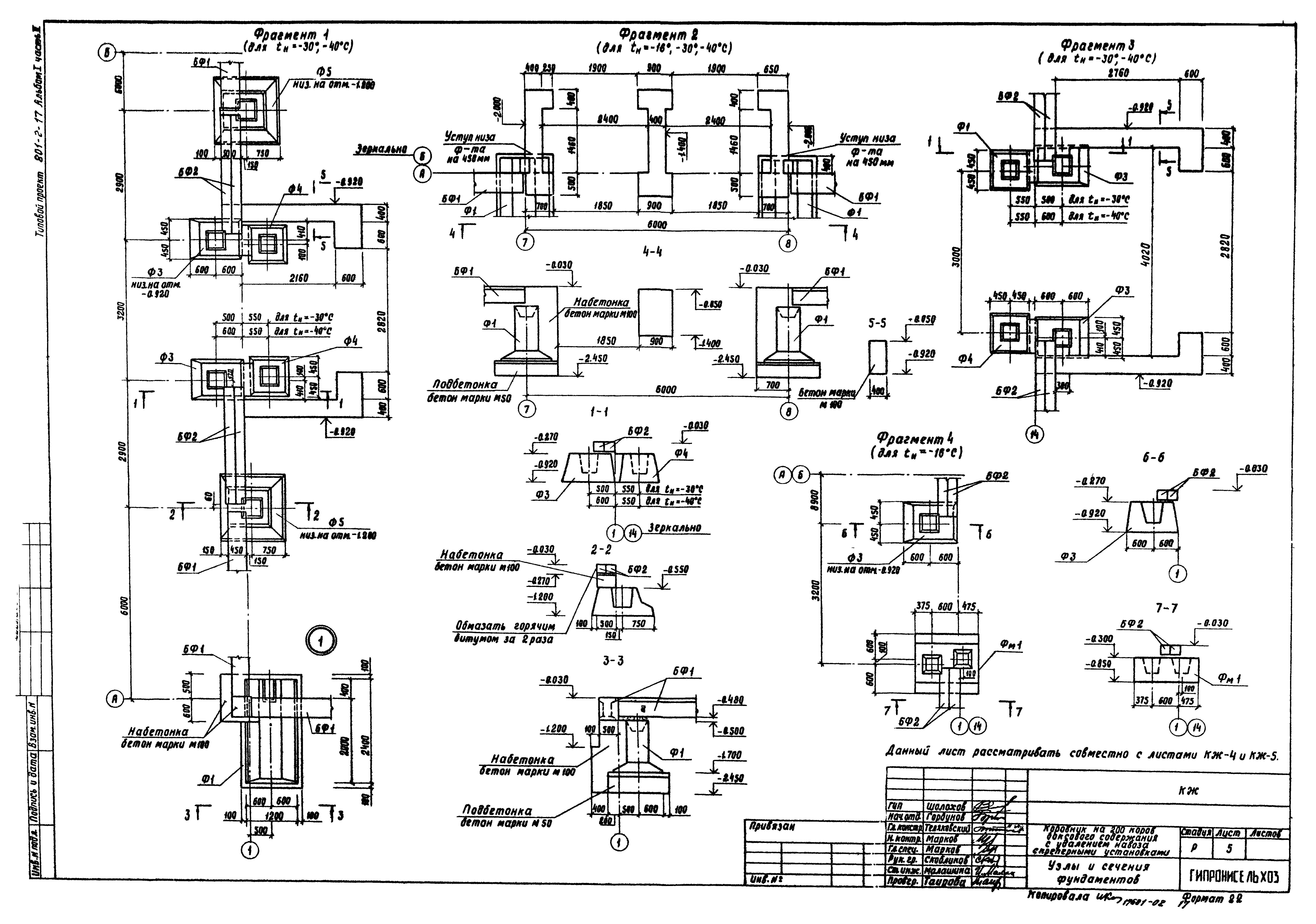
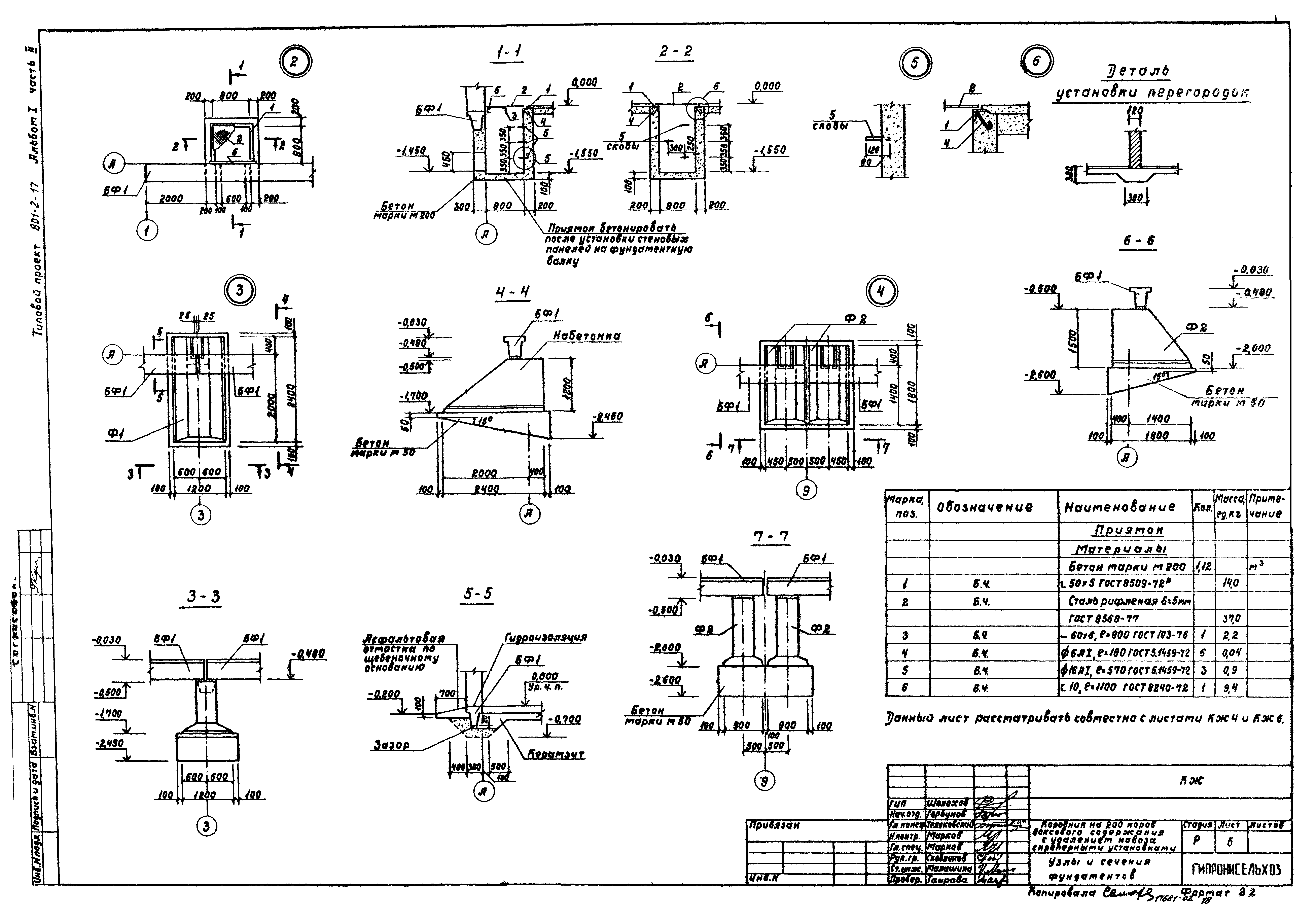
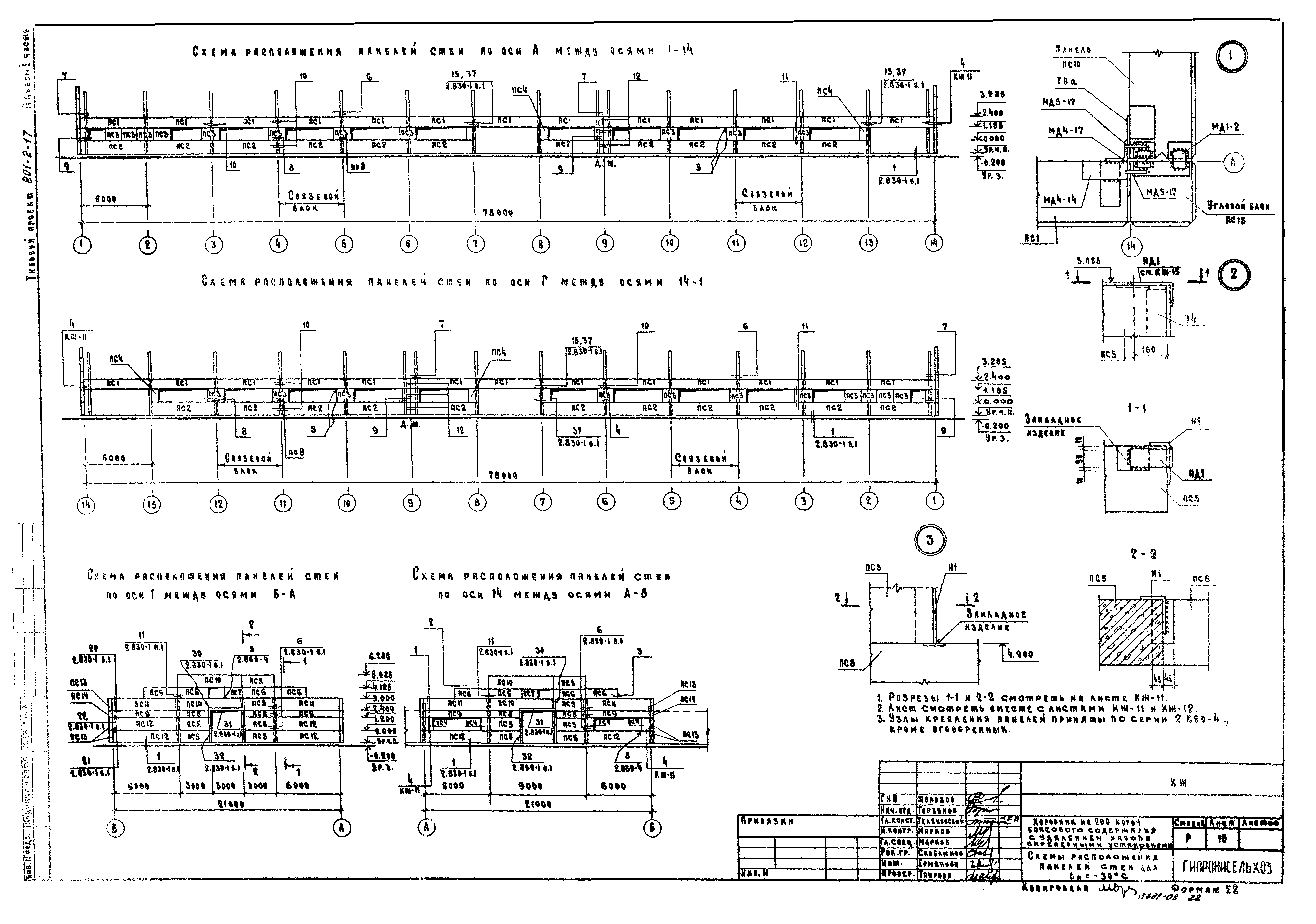
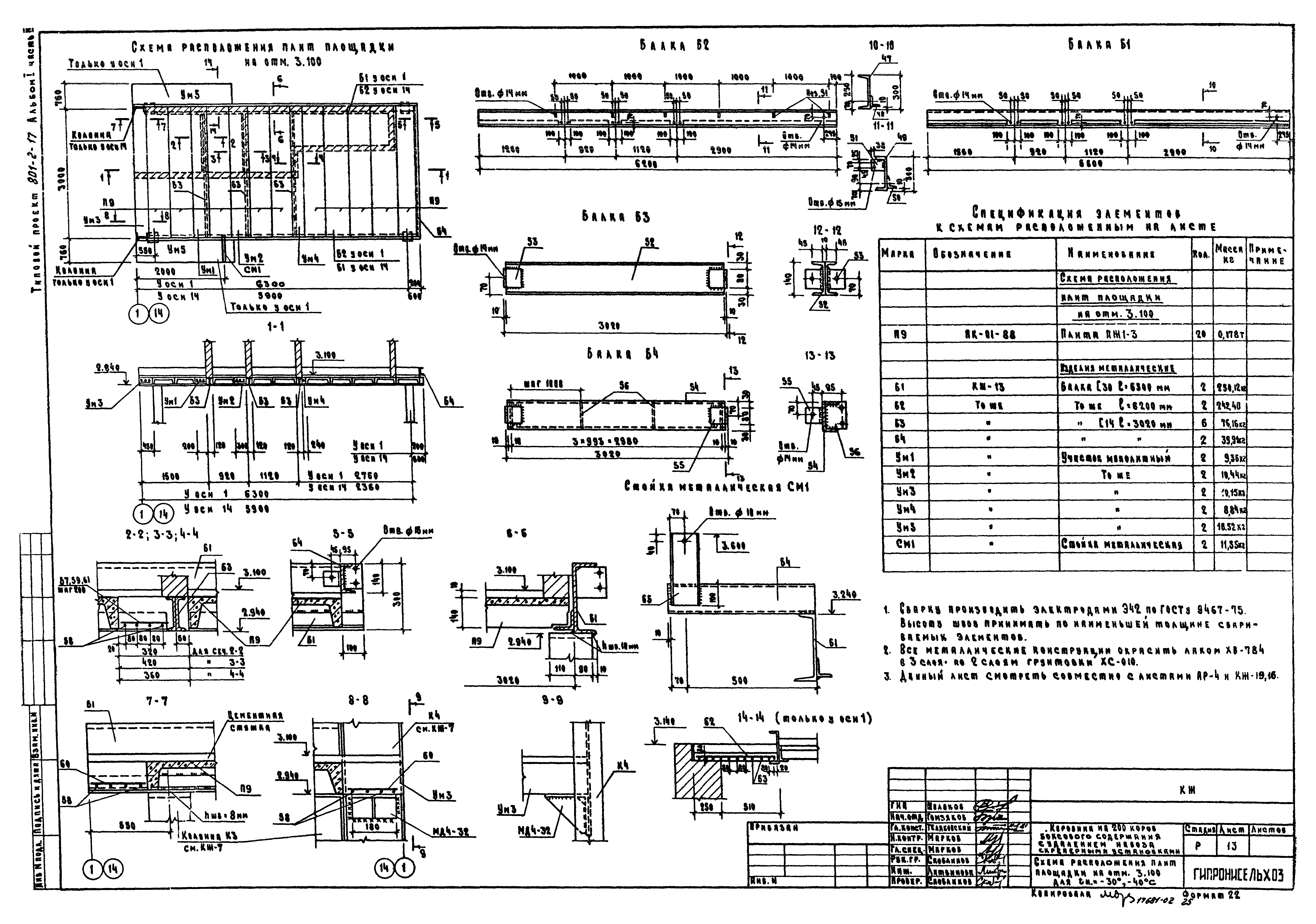
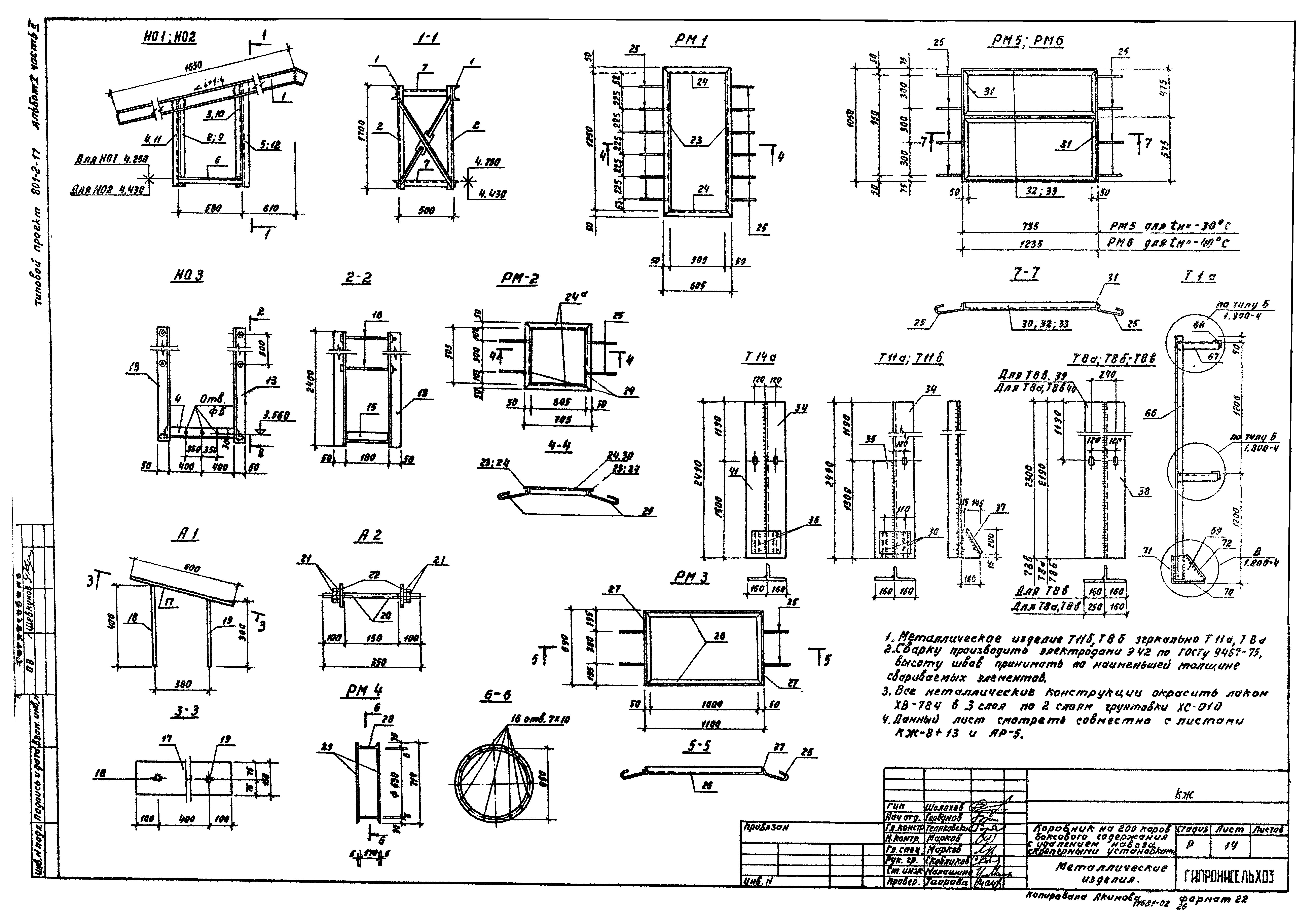
| Оглавление: | Содержание Пояснительная записка Основной комплект марки АР Общие данные Фасады План на отм. 0.000. Разрез 1-1 Фрагменты плана 1, 2, 3, 4 Схема расположения каналов навозоудаления и кормушек. План полов и устройство выравнивания электрических потенциалов Фрагменты плана 5, 6. Сечения Основной комплект марки КЖ Общие данные Схема расположения элементов фундаментов и фундаментных балок Узлы и сечения фундаментов Фрагмент 5. Монолитный железобетонный фундамент Фм-1 Схемы расположения рам, стоек фахверка и плит покрытия Спецификация элементов к схемам расположенным на листе КЖ-8. Узлы 1, 2 Схемы расположения панелей стен для tн = минус 30 градусов Цельсия Схемы расположения панелей стен для tн = минус 16, минус 40 градусов Цельсия Спецификация элементов к схемам расположения панелей стен Схема расположения плит площадки на отметке 3.100 для tн = минус 30, минус 40 градусов Цельсия Металлические изделия Металлические изделия. Спецификация |
| Разработан: | ГипроНИсельхоз (Институт Гипронисельхоз ) |
| Утверждён: | 21.04.1981 Минсельхоз СССР (USSR Minselkhoz 32) |




























