Скачать Типовой проект 801-2-17 Альбом II. Технологические чертежи. Внутренние водопровод и канализация. Отопление и вентиляция. Электротехнические чертежи. Автоматизация отопления и вентиляции. Связь и сигнализацияДата актуализации: 01.01.2021
|
| Обозначение: | Типовой проект 801-2-17 |
| Обозначение англ: | 801-2-17 |
| Статус: | действует |
| Название рус.: | Альбом II. Технологические чертежи. Внутренние водопровод и канализация. Отопление и вентиляция. Электротехнические чертежи. Автоматизация отопления и вентиляции. Связь и сигнализация |
| Дата добавления в базу: | 01.09.2013 |
| Дата актуализации: | 01.01.2021 |
| Дата введения: | 15.05.1981 |
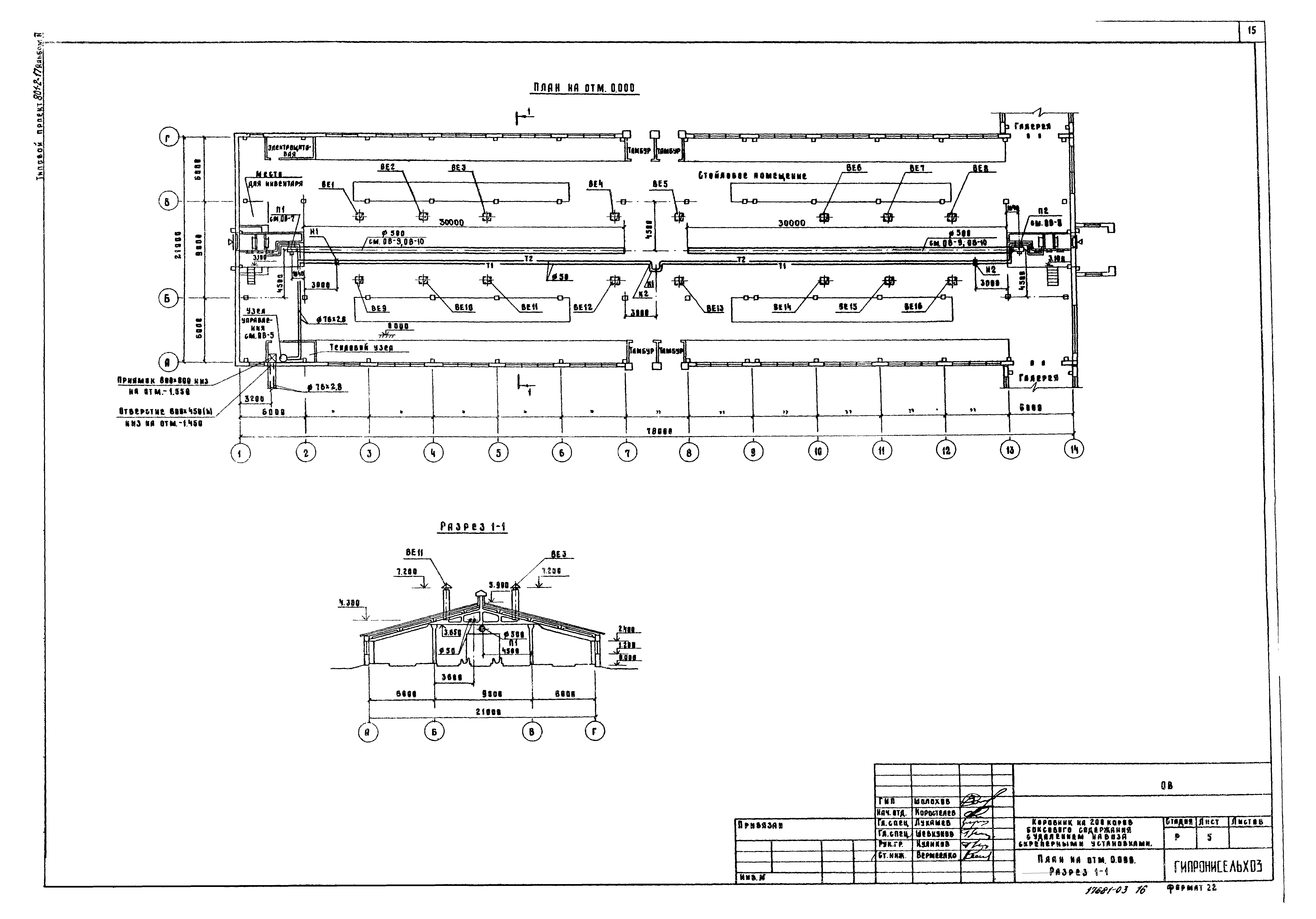
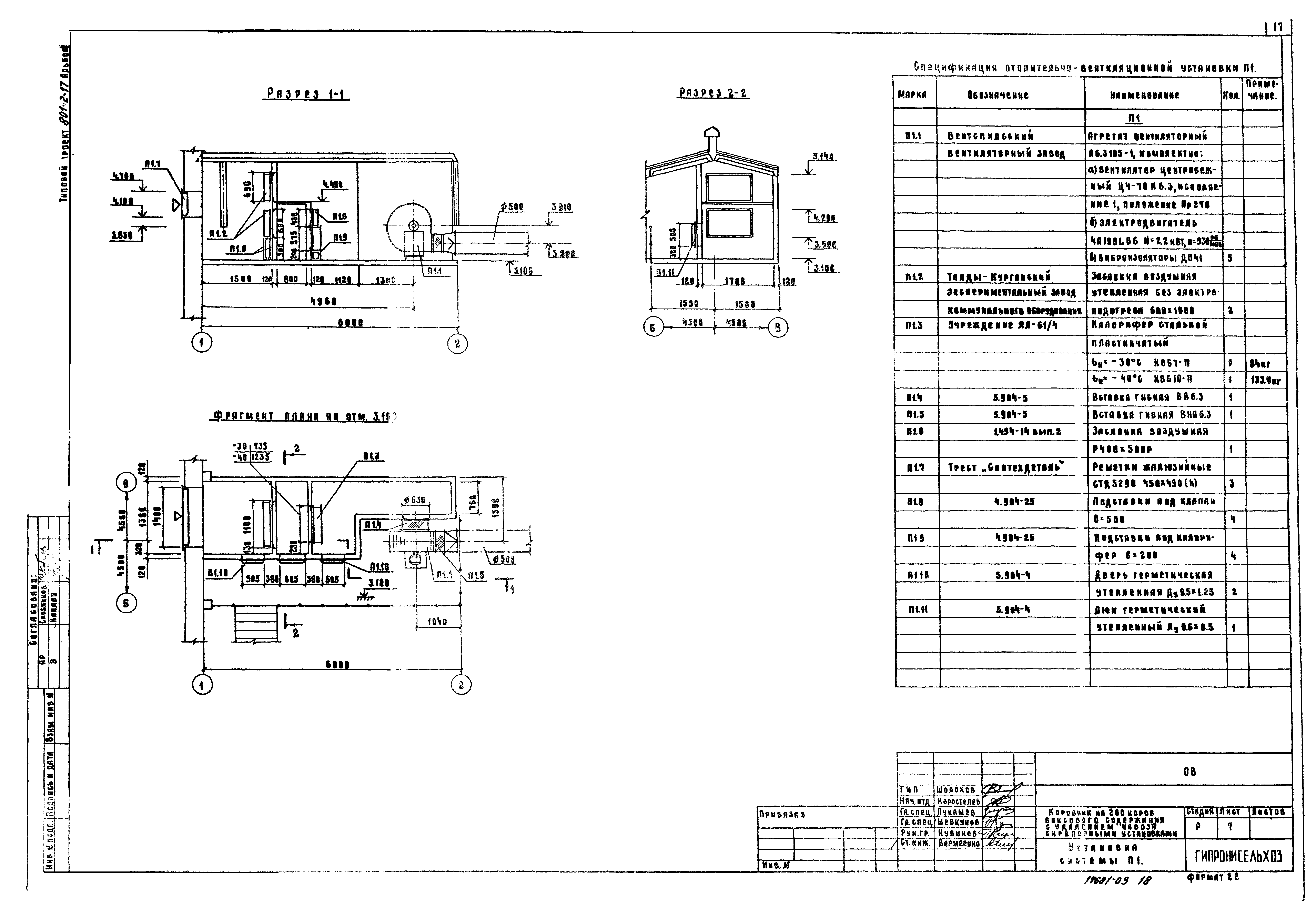
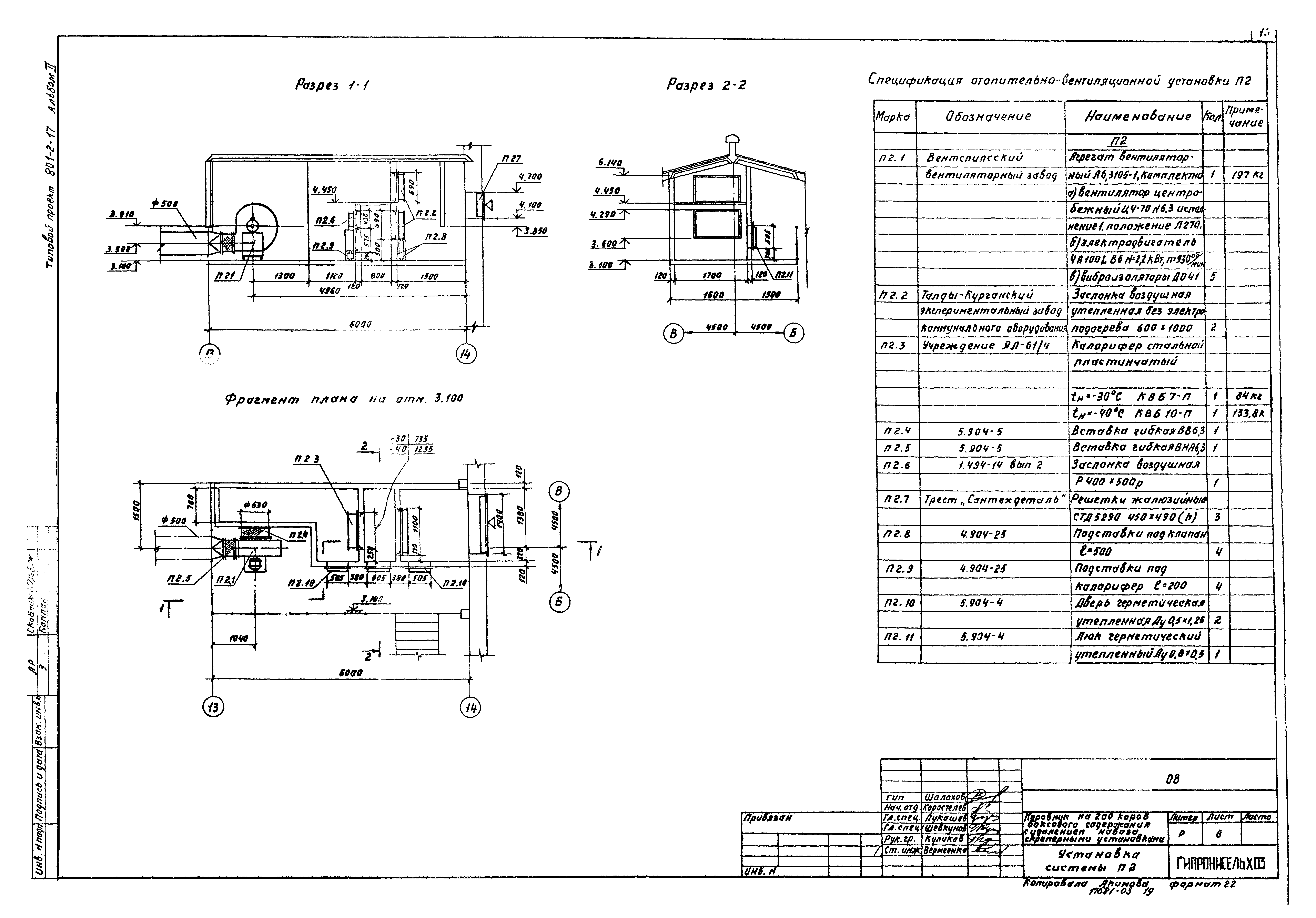
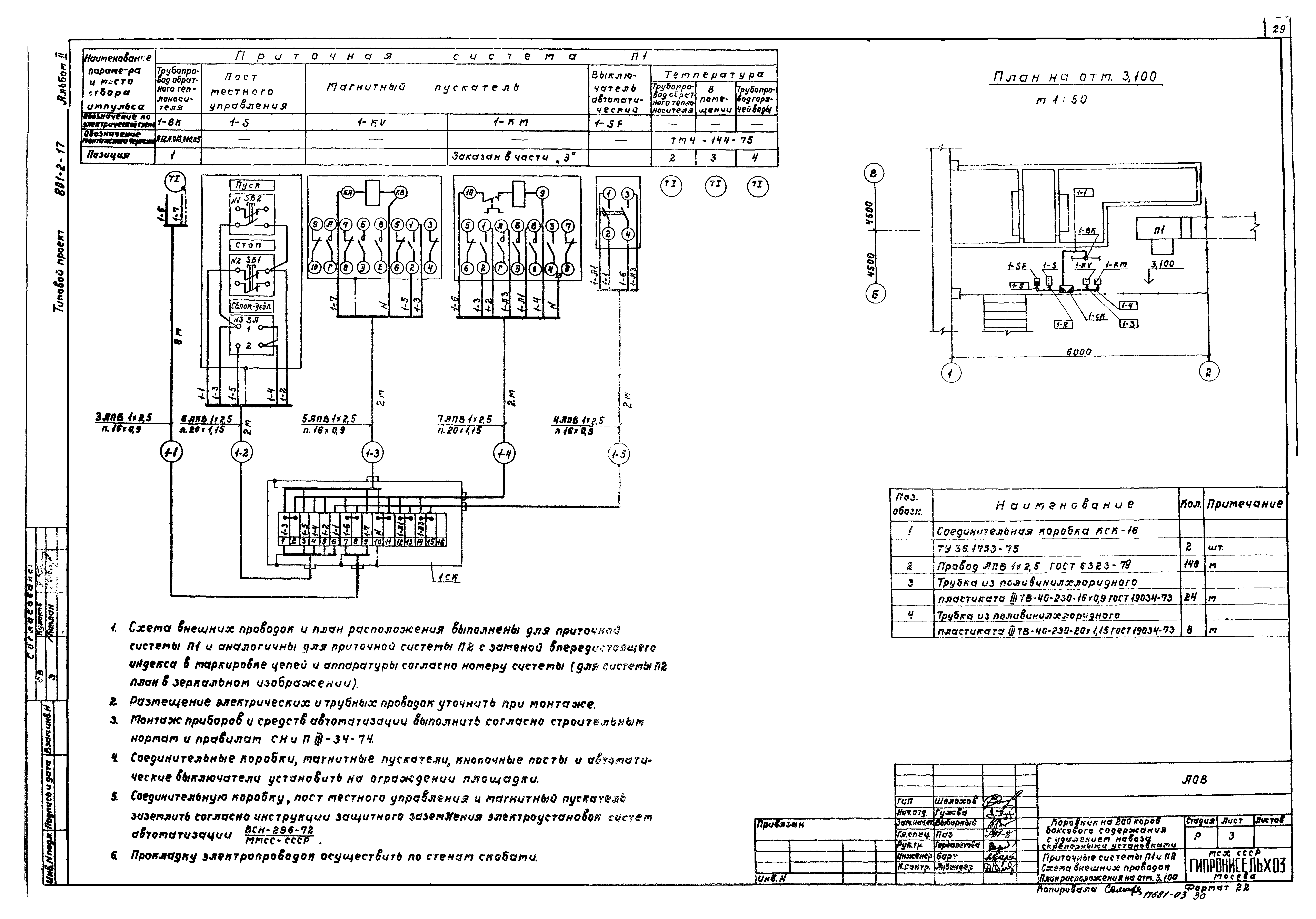
| Оглавление: | Содержание Основной комплект марки ТХ Общие данные Размещение технологического оборудования. План. Разрез (вариант со стоечно-балочным каркасом) Размещение технологического оборудования. Разрезы. Узлы (вариант со стоечно-балочным каркасом) Размещение технологического оборудования. План. Разрез (вариант с рамным каркасом) Размещение технологического оборудования. Разрезы. Узлы (вариант с рамным каркасом) Основной комплект марки ВК Общие данные План на отм. 0.000. Схемы систем ВО, Т31 Основной комплект марки ОВ Общие данные План на отм. 0.000. Разрез 1-1 Схемы систем П1, П2. Схемы системы теплоснабжения установок П1, П2, узлов управления Установка системы П1 Установка системы П2 Узлы крепления воздуховода из полиэтиленовой пленки Детали воздуховода из полиэтиленовой пленки Основной комплект марки Э (для tн = минус 16 градусов Цельсия) Общие данные План электросети. Расчетная схема электросети 380/220 В Основной комплект марки Э (для tн = минус 30, минус 40 градусов Цельсия) Общие данные План электросети. Расчетная схема электросети 380/220 В Основной комплект марки АОВ Общие данные Приточные системы П1 и П2. Схемы функциональная и электрическая принципиальная Приточные системы П1 и П2. Схема внешних проводок. План расположения на отм. 3.100 Основной комплект марки СС Общие данные. План с сетями связи |
| Разработан: | ГипроНИсельхоз (Институт Гипронисельхоз ) |
| Утверждён: | 21.04.1981 Минсельхоз СССР (USSR Minselkhoz 32) |































