Скачать Серия 416-0-1 Выпуск 12. Примеры планировочных решений санитарно-бытовых помещенийДата актуализации: 01.01.2021
|
| Обозначение: | Серия 416-0-1 |
| Обозначение англ: | Series 416-0-1 |
| Статус: | действует |
| Название рус.: | Выпуск 12. Примеры планировочных решений санитарно-бытовых помещений |
| Дата добавления в базу: | 01.09.2013 |
| Дата актуализации: | 01.01.2021 |
| Дата введения: | 13.04.1978 |
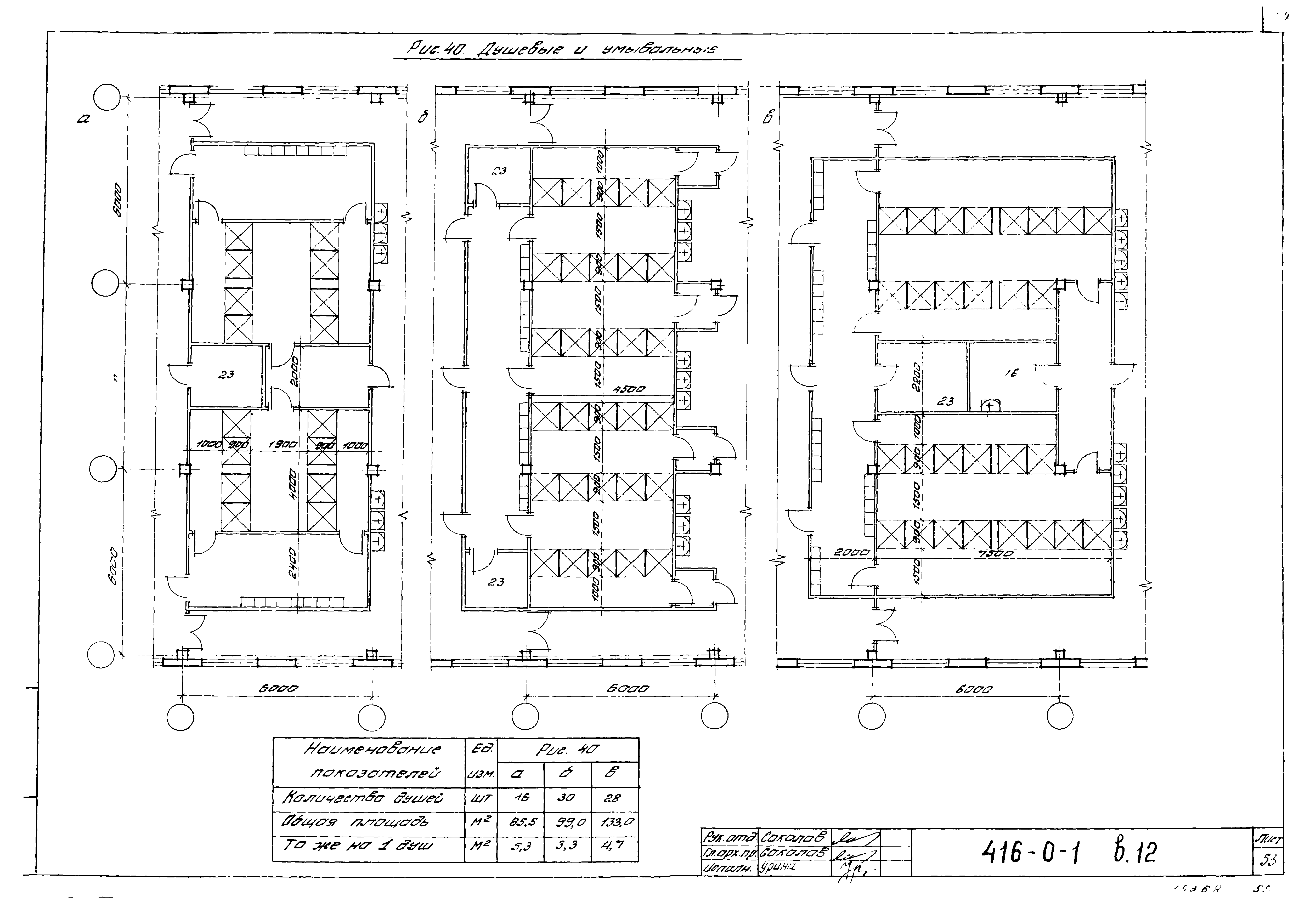
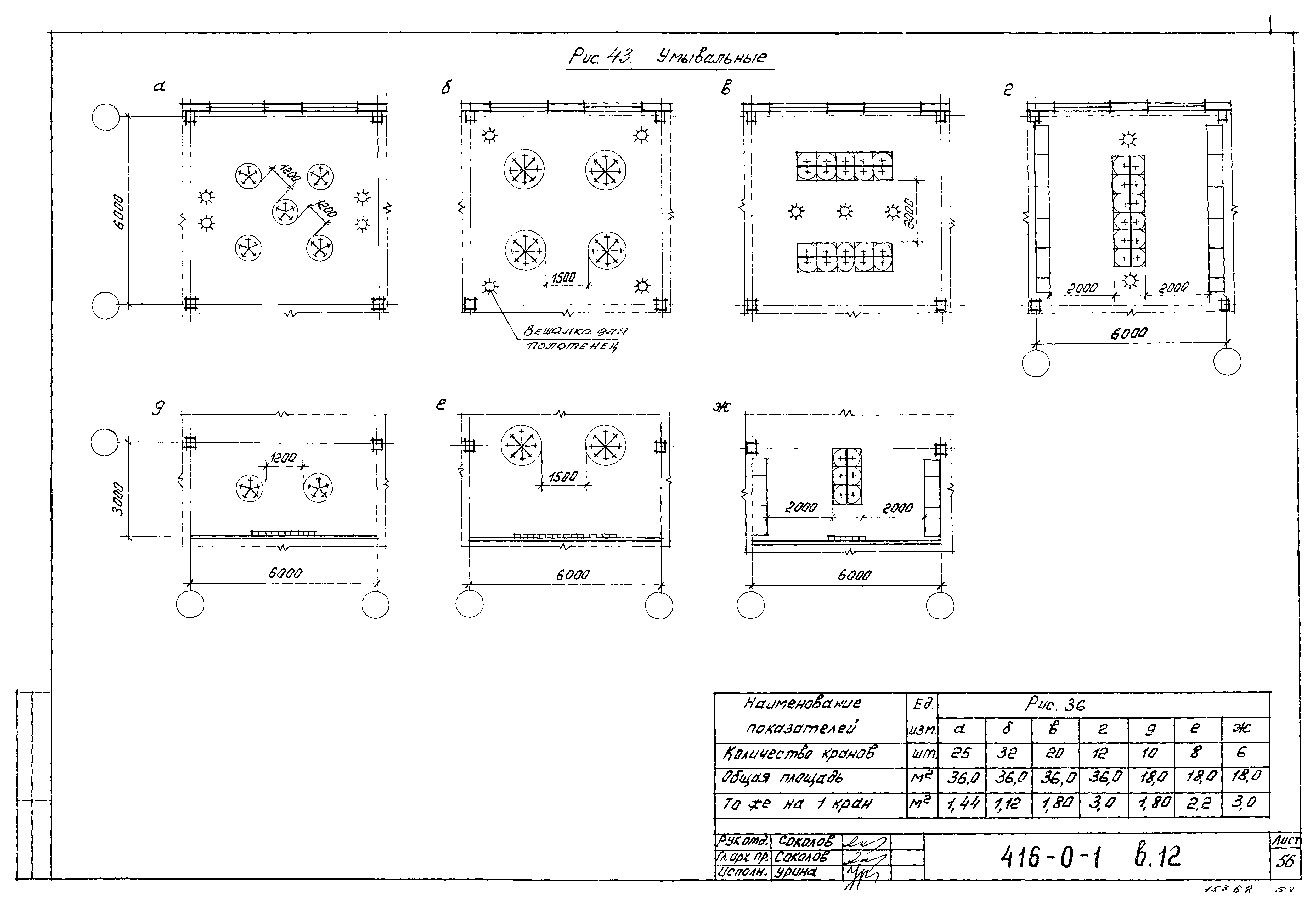
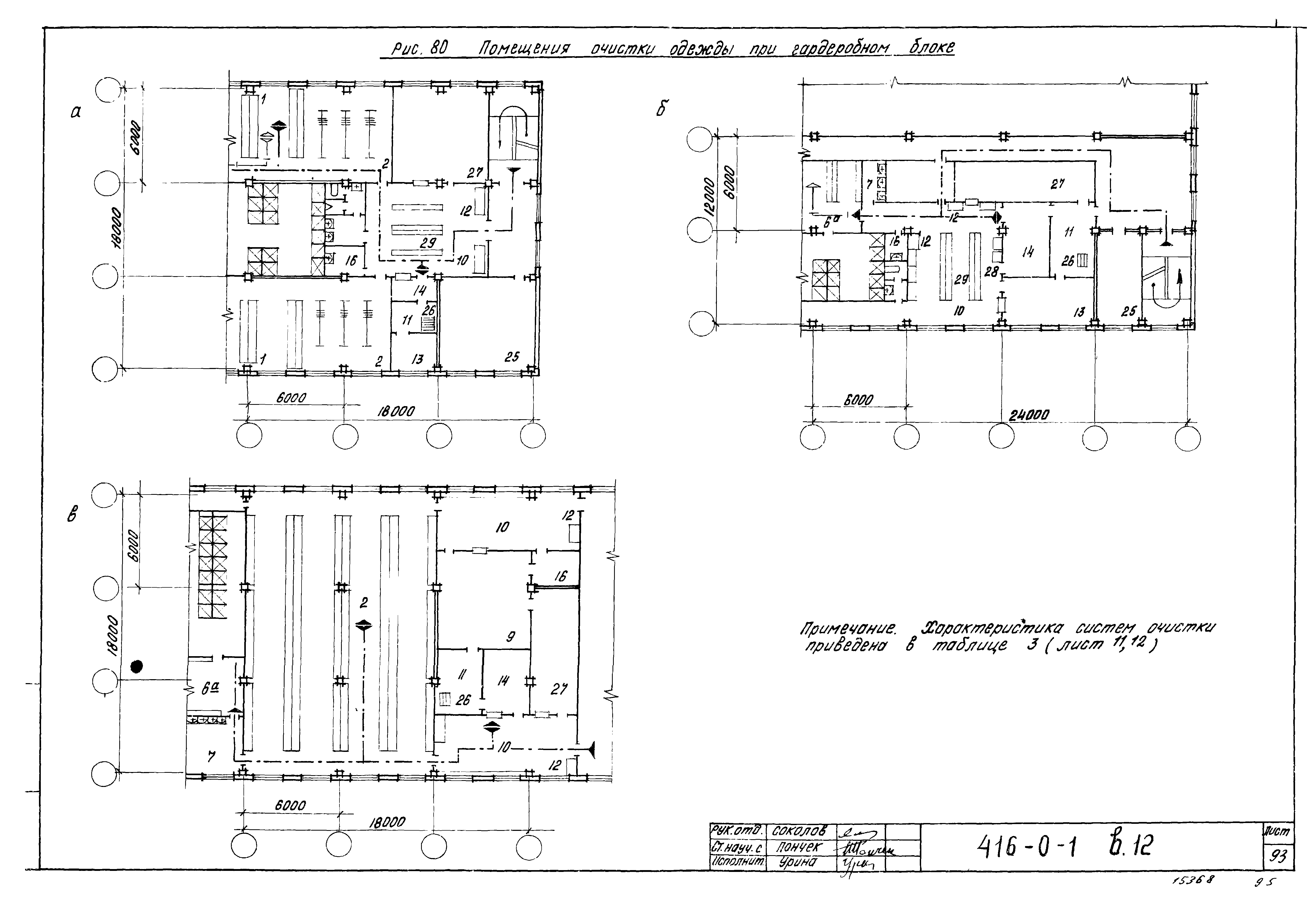
| Оглавление: | Содержание альбома Пояснительная записка Группы производственных процессов. Таблица 1 Усредненные показатели расхода площади помещений гардеробного блока (кв. м на одного работающего списочного состава). Таблица 2 Усредненные показатели расхода площади помещений для очистки специальной одежды. Таблица 3 Рисунок 1. Графики для определения оптимальных параметров зданий Рисунок 2. График для расчета количества санитарно-технического оборудования Рисунок 3. Нормативные габариты оборудования гардеробных и проходов в них Рисунок 4. Нормативные габариты ножных ванн, душевых кабин и проходов между ними Рисунок 5. Нормативные габариты умывальников и проходов между ними Рисунок 6. Нормативные габариты кабин уборных и проходов между ними Рисунок 7. Габариты шкафов и отделений в них Общая экспликация помещений и устройств. Таблица 4 Рисунок 8. Основные схемы гардеробных блоков Рисунок 9. Схемы гардеробных блоков Рисунки 10, 11. Гардеробные с вешалками с крючками Рисунок 12. Гардеробные с консольно-поворотными вешалками Рисунок 13. Гардеробные с вешалками со штангами для плечиков Рисунки 14, 15. Гардеробные с шкафами шириной 1000 мм Рисунки 16, 17. Гардеробные с шкафами шириной 800 мм Рисунки 18, 19. Гардеробные с шкафами шириной 660 мм Рисунок 20. Гардеробные с шкафами шириной 1200 и 800 мм Рисунок 21. Гардеробные с шкафами шириной 1000 и 800 мм Рисунок 22. Гардеробные с шкафами шириной 1000 и 660 мм Рисунок 23. Гардеробные с шкафами шириной 1250 и 1000 мм Рисунок 24. Гардеробные с шкафами 1000 мм (скамьи с одной стороны проходов) Рисунок 25. Гардеробные с шкафами 800 мм (скамьи с одной стороны проходов) Рисунок 26. Гардеробные с шкафами 660 мм (скамьи с одной стороны проходов) Рисунок 27. Гардеробные с шкафами 1000 мм (пролет 9 м) Рисунок 28. Гардеробные с шкафами 800 мм (пролет 9 м) Рисунок 29. Гардеробные с шкафами 660 мм (пролет 9 м) Рисунки 30 - 33. Гардеробные с шкафами 1000 мм и умывальниками Рисунки 34 - 41. Душевые и умывальные Рисунки 42, 43. Умывальные Рисунки 44 - 50. Гардеробный блок. Хранение одежды в шкафах в общем помещении Рисунки 51 - 66. Гардеробный блок. Хранение одежды в шкафах в раздельных помещениях Рисунок 67. Гардеробный блок. Хранение одежды в шкафах и на вешалках в общем помещении Рисунок 68. Гардеробный блок. А) Хранение одежды в шкафах и на вешалках в общем помещении. Б) Хранение одежды в шкафах в раздельных помещениях (вариант) Рисунок 69. Гардеробный блок. А) Хранение одежды в шкафах и на вешалках в раздельных помещениях. Б) Хранение одежды в шкафах в раздельных помещениях (вариант) Рисунок 70. Гардеробный блок. Хранение одежды в шкафах и на вешалках в общем помещении Рисунок 71. Гардеробный блок. А) Хранение одежды в шкафах и на вешалках в раздельных помещениях. Б) Хранение одежды в шкафах в раздельных помещениях (вариант) Рисунок 72. Гардеробный блок. Хранение одежды в шкафах и на вешалках в общем помещении Рисунок 73. Гардеробный блок. Хранение одежды в шкафах и на вешалках в раздельных помещениях Рисунок 74. Гардеробный блок. Хранение одежды в шкафах и на вешалках в общем помещении Рисунки 75, 76. Гардеробный блок. Хранение одежды в шкафах и на вешалках в раздельных помещениях Рисунок 77. Гардеробный блок. А) Хранение одежды в шкафах и на вешалках в общем помещении. Б) Хранение одежды в шкафах в раздельных помещениях (вариант) Рисунки 78, 79. Гардеробный блок и примеры его трансформации Рисунки 80, 81. Помещения очистки одежды при гардеробном блоке |
| Разработан: | ЦНИИпромзданий |
| Утверждён: | 13.10.1977 Госстрой СССР (Государственный комитет Совета Министров СССР по делам строительства) (USSR Gosstroy 2/2-412) |






























































































