Скачать Серия ПК-01-110/81 Выпуск 1. Материалы для проектирования и рабочие чертежи фермДата актуализации: 01.01.2021
|
| Обозначение: | Серия ПК-01-110/81 |
| Обозначение англ: | Series ПК-01-110/81 |
| Статус: | не действует |
| Название рус.: | Выпуск 1. Материалы для проектирования и рабочие чертежи ферм |
| Дата добавления в базу: | 01.09.2013 |
| Дата актуализации: | 01.01.2021 |
| Дата введения: | 19.01.1983 |
| Дата окончания срока действия: | 01.11.1993 |
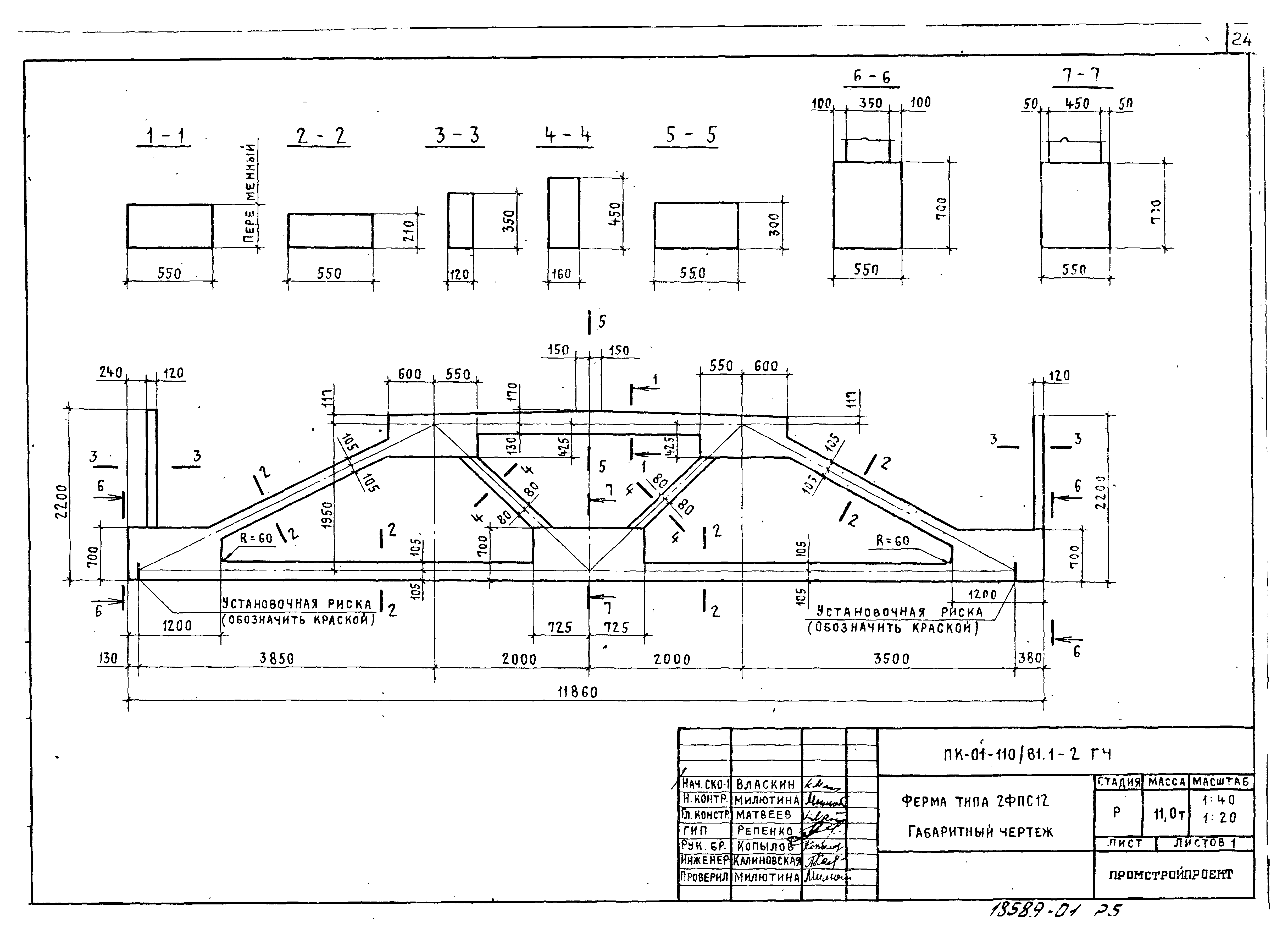
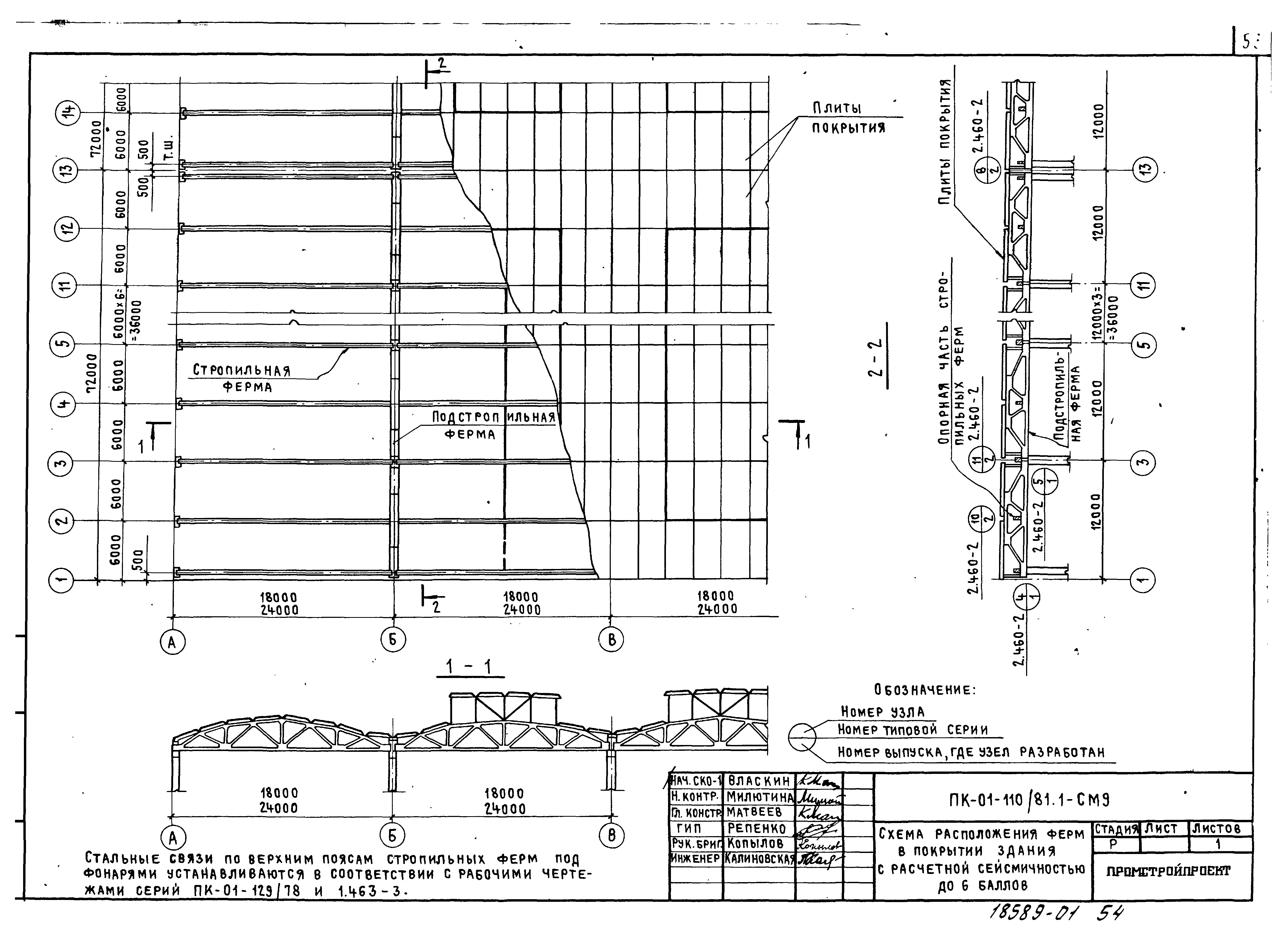
| Оглавление: | Содержание ПК-01-110/81.1-ТО Техническое описание ПК-01-110/81.1-1 ГЧ Ферма типа 1ФПС12. Габаритный чертеж ПК-01-110/81.1-1 ТИ Ферма типа 1ФПС12. Таблица исполнений ПК-01-110/81.1-1 Ферма типа 1ФПС12 ПК-01-110/81.1-1 СЧ Ферма типа 1ФПС12. Сборочный чертеж ПК-01-110/81.1-2 ГЧ Ферма типа 2ФПС12. Габаритный чертеж ПК-01-110/81.1-2 ТИ Ферма типа 2ФПС12. Таблица исполнений ПК-01-110/81.1-2 Ферма типа 2ФПС12 ПК-01-110/81.1-2 СЧ Ферма типа 2ФПС12. Сборочный чертеж ПК-01-110/81.1-ВМС Ведомость расхода стали на ферму ПК-01-110/81.1-СМ1 Данные по подбору, изготовлению, строповке и хранению ферм ПК-01-110/81.1-СМ2 Данные для испытания подстропильных ферм ПК-01-110/81.1-СМ3 Ферма типа 1ФПС12. Вариант замены напрягаемой арматуры ПК-01-110/81.1-СМ4 Ферма типа 2ФПС12. Вариант замены напрягаемой арматуры ПК-01-110/81.1-СМ5 Ферма типа 1ФПС12-С7 для зданий с расчетной сейсмичностью 7 баллов ПК-01-110/81.1-СМ6 Ферма типа 2ФПС12-С7 для зданий с расчетной сейсмичностью 7 баллов ПК-01-110/81.1-СМ7 Ферма типа 1ФПС12-С8 для зданий с расчетной сейсмичностью 8 баллов ПК-01-110/81.1-СМ8 Ферма типа 2ФПС12-С8 для зданий с расчетной сейсмичностью 8 баллов ПК-01-110/81.1-СМ9 Схема расположения ферм в покрытии здания с расчетной сейсмичностью до 6 баллов ПК-01-110/81.1-СМ10 Схема расположения ферм в покрытии здания с расчетной сейсмичностью 7 и 8 баллов |
| Разработан: | НИИЖБ Промстройпроект |
| Утверждён: | 19.01.1983 Госстрой СССР (Государственный комитет Совета Министров СССР по делам строительства) (USSR Gosstroy 14) |
| Заменяет собой: | |
| Чем заменён: |
























































