Скачать Типовые проектные решения 901-03-208.85 Альбом II. ЧертежиДата актуализации: 01.01.2021
|
| Обозначение: | Типовые проектные решения 901-03-208.85 |
| Обозначение англ: | 901-03-208.85 |
| Статус: | справочные материалы, мп, тпр |
| Название рус.: | Альбом II. Чертежи |
| Дата добавления в базу: | 01.09.2013 |
| Дата актуализации: | 01.01.2021 |
| Дата введения: | 25.06.1985 |
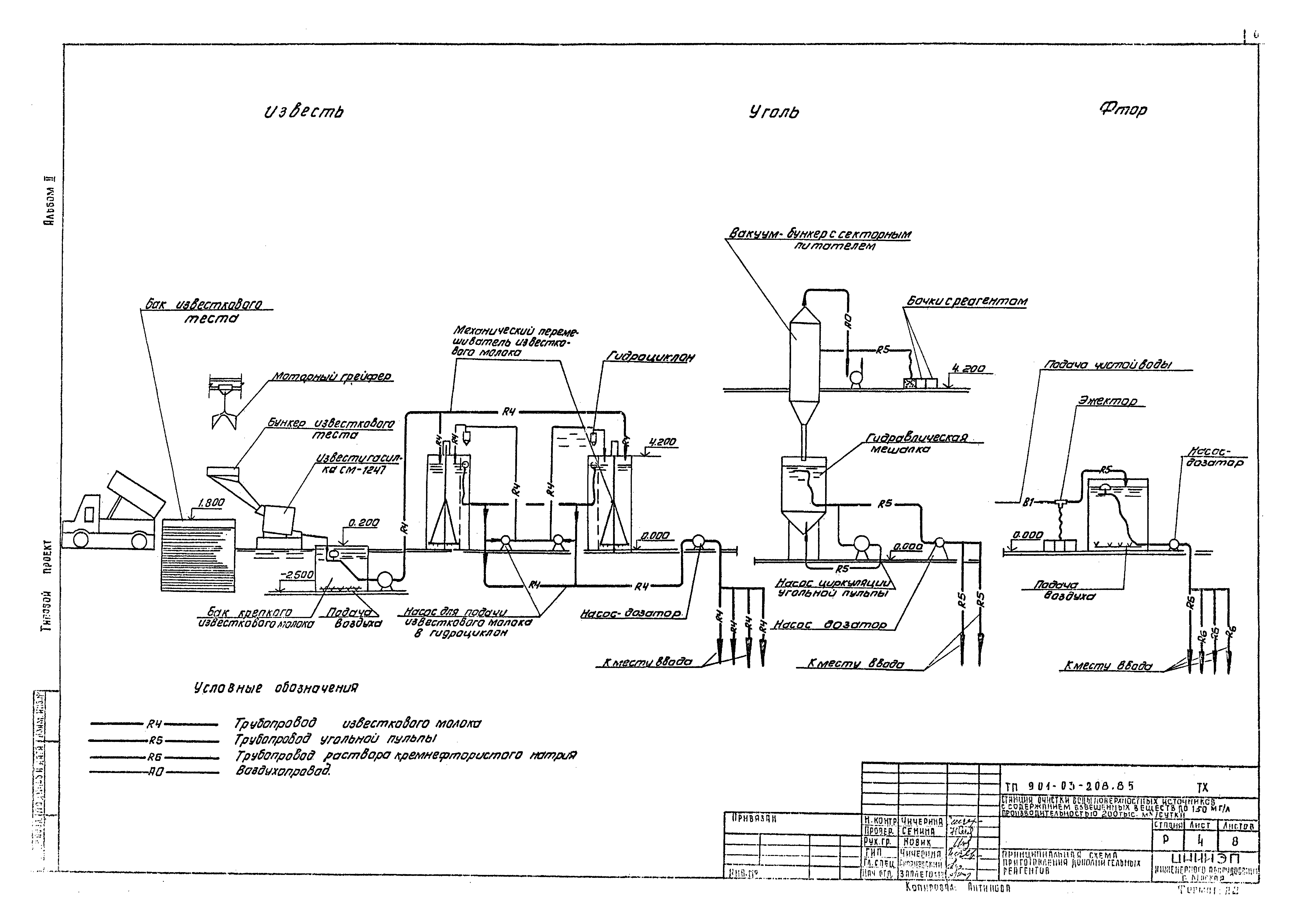
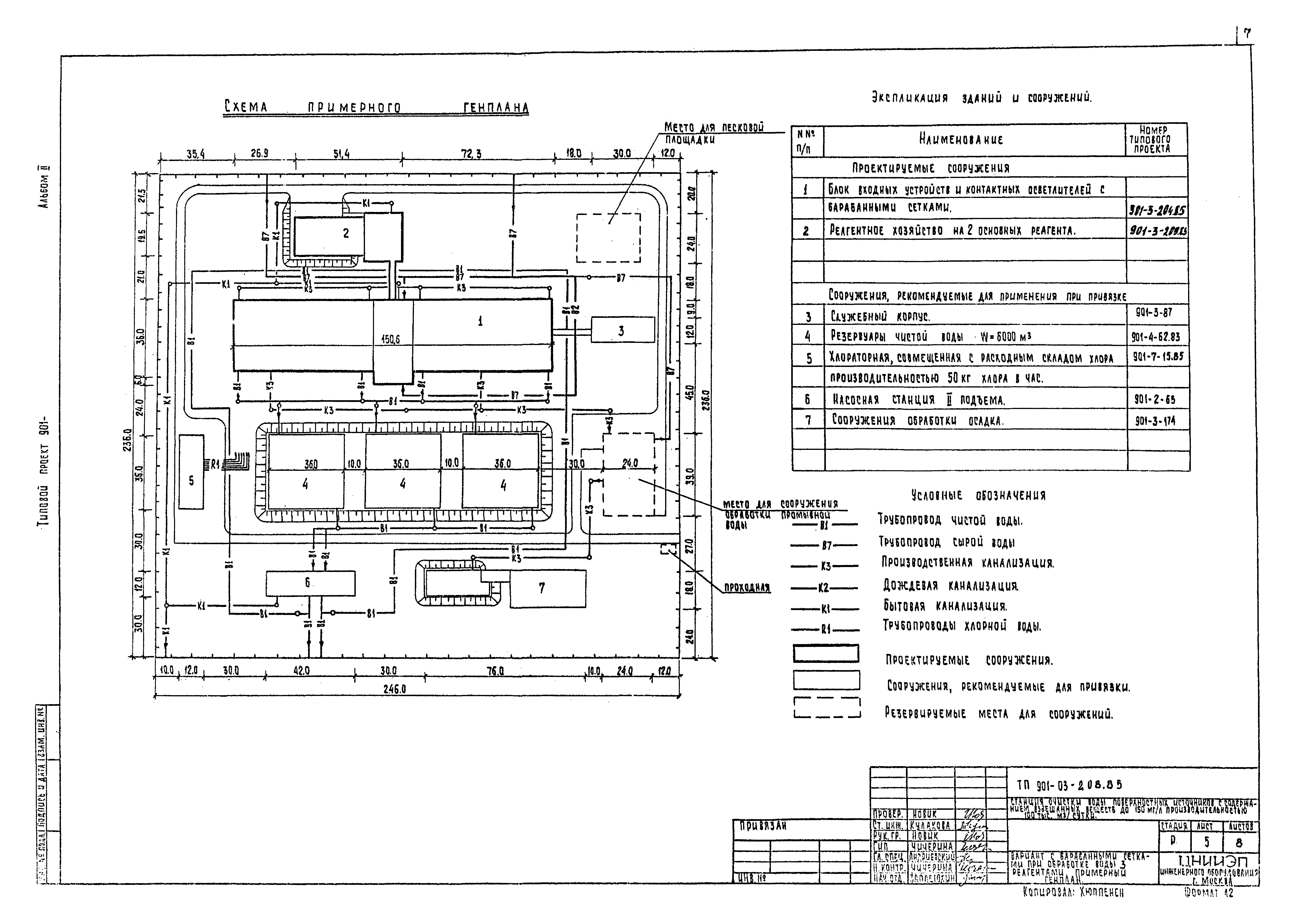
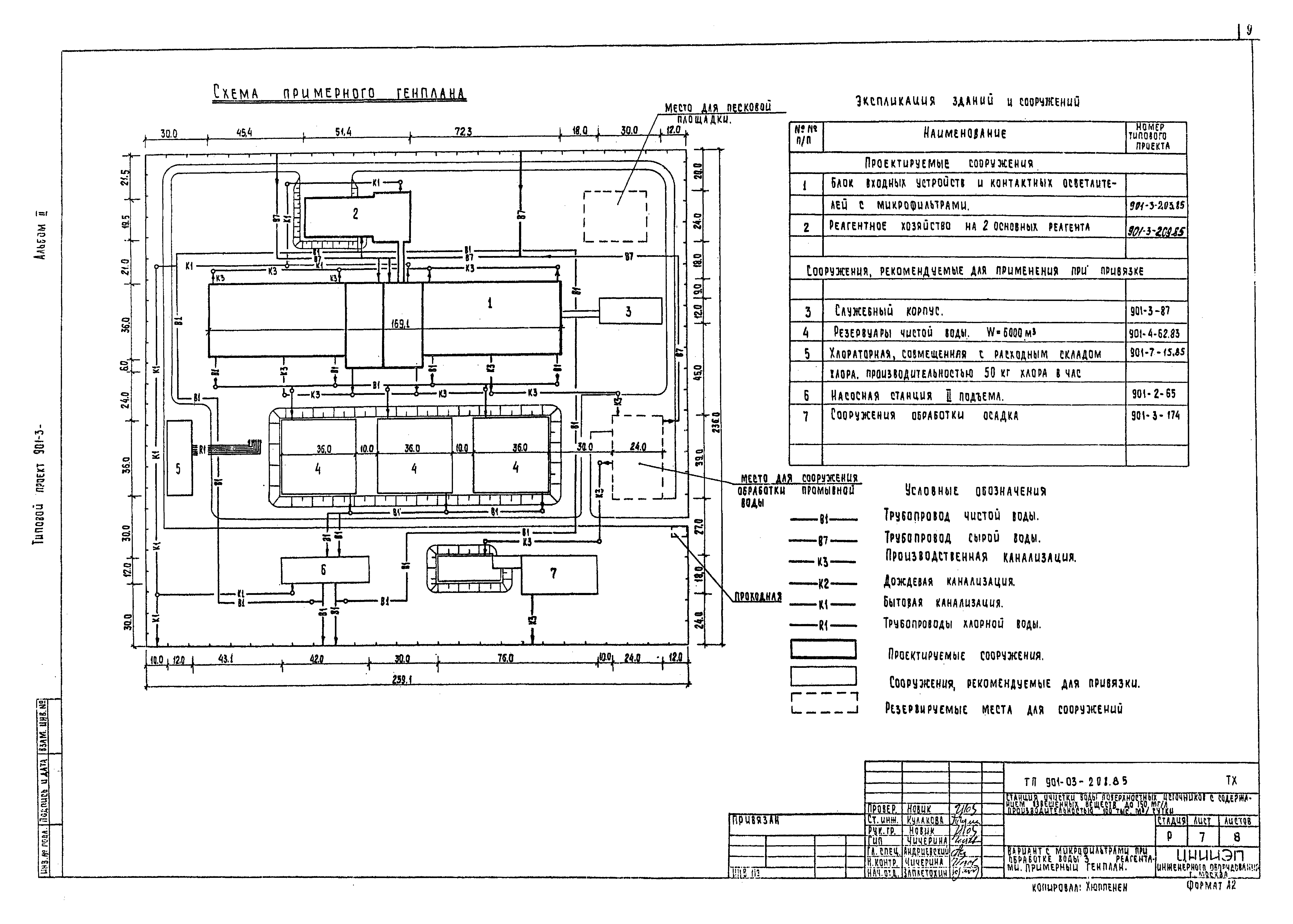
| Оглавление: | Содержание альбома Технологическая часть. Чертежи марки ТХ Структура компоновочных решений Вертикальная схема обработки воды Вертикальная схема приготовления основных реагентов Вертикальная схема приготовления дополнительных реагентов Вариант с барабанными сетками при обработке воды 3 реагентами. Примерный генплан Вариант с барабанными сетками при обработке воды 6 реагентами. Примерный генплан Вариант с микрофильтрами при обработке воды 3 реагентами. Примерный генплан Вариант с микрофильтрами при обработке воды 6 реагентами. Примерный генплан |
| Разработан: | ЦНИИЭП инженерного оборудования |
| Утверждён: | 31.10.1980 Госгражданстрой (Gosgrazhdanstroy 297) |










