Скачать Типовой проект 407-3-452.87 Альбом I. Пояснительная записка. Схемы первичных электрических соединений и конструктивно-монтажные чертежи. Спецификации оборудования. Архитектурно-строительные решения. Ведомости потребности материаловДата актуализации: 01.01.2021
|
| Обозначение: | Типовой проект 407-3-452.87 |
| Обозначение англ: | 407-3-452.87 |
| Статус: | не определен законодательством |
| Название рус.: | Альбом I. Пояснительная записка. Схемы первичных электрических соединений и конструктивно-монтажные чертежи. Спецификации оборудования. Архитектурно-строительные решения. Ведомости потребности материалов |
| Дата добавления в базу: | 01.09.2013 |
| Дата актуализации: | 01.01.2021 |
| Дата введения: | 03.03.1987 |
| Дата окончания срока действия: | 30.06.2003 |
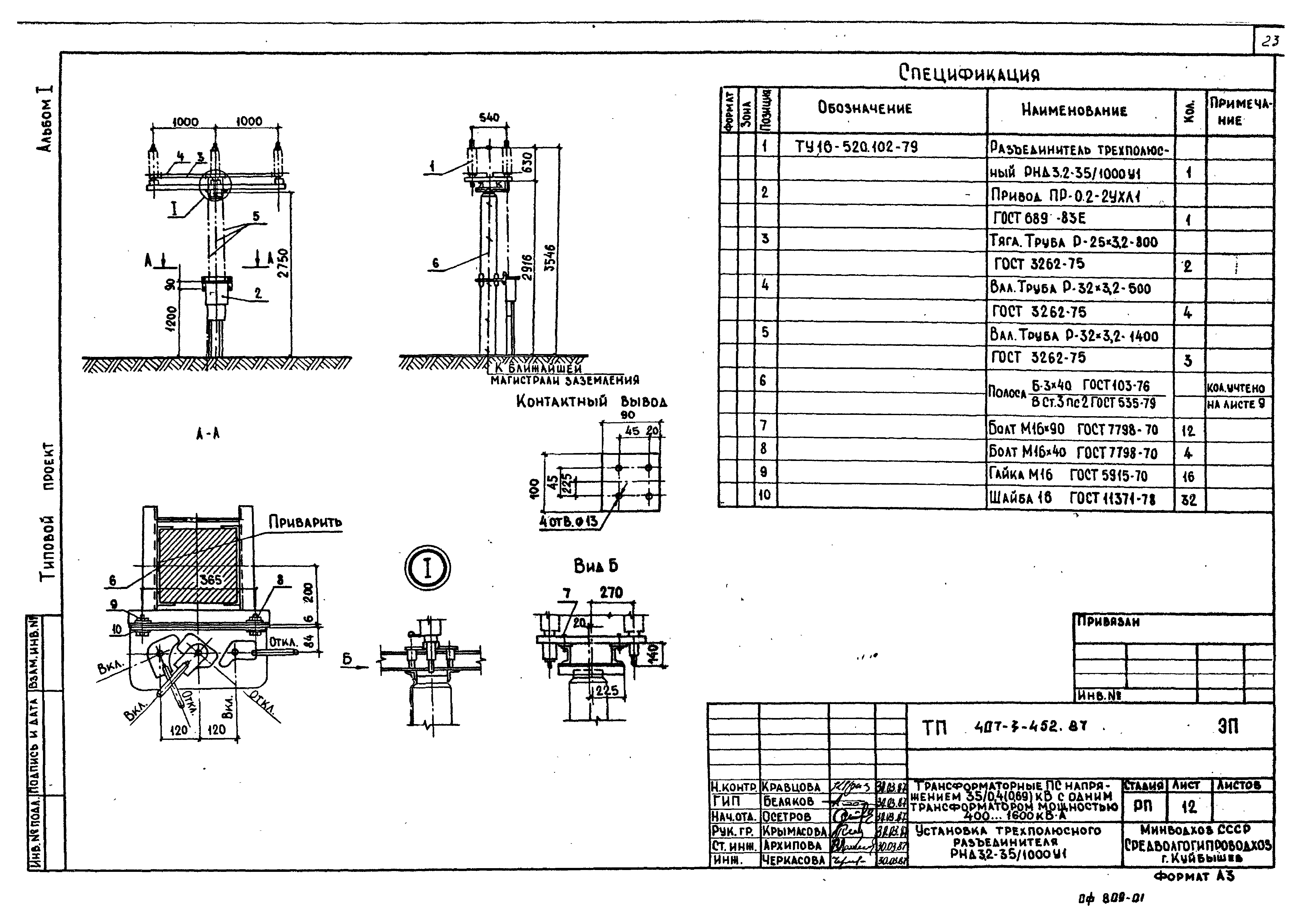
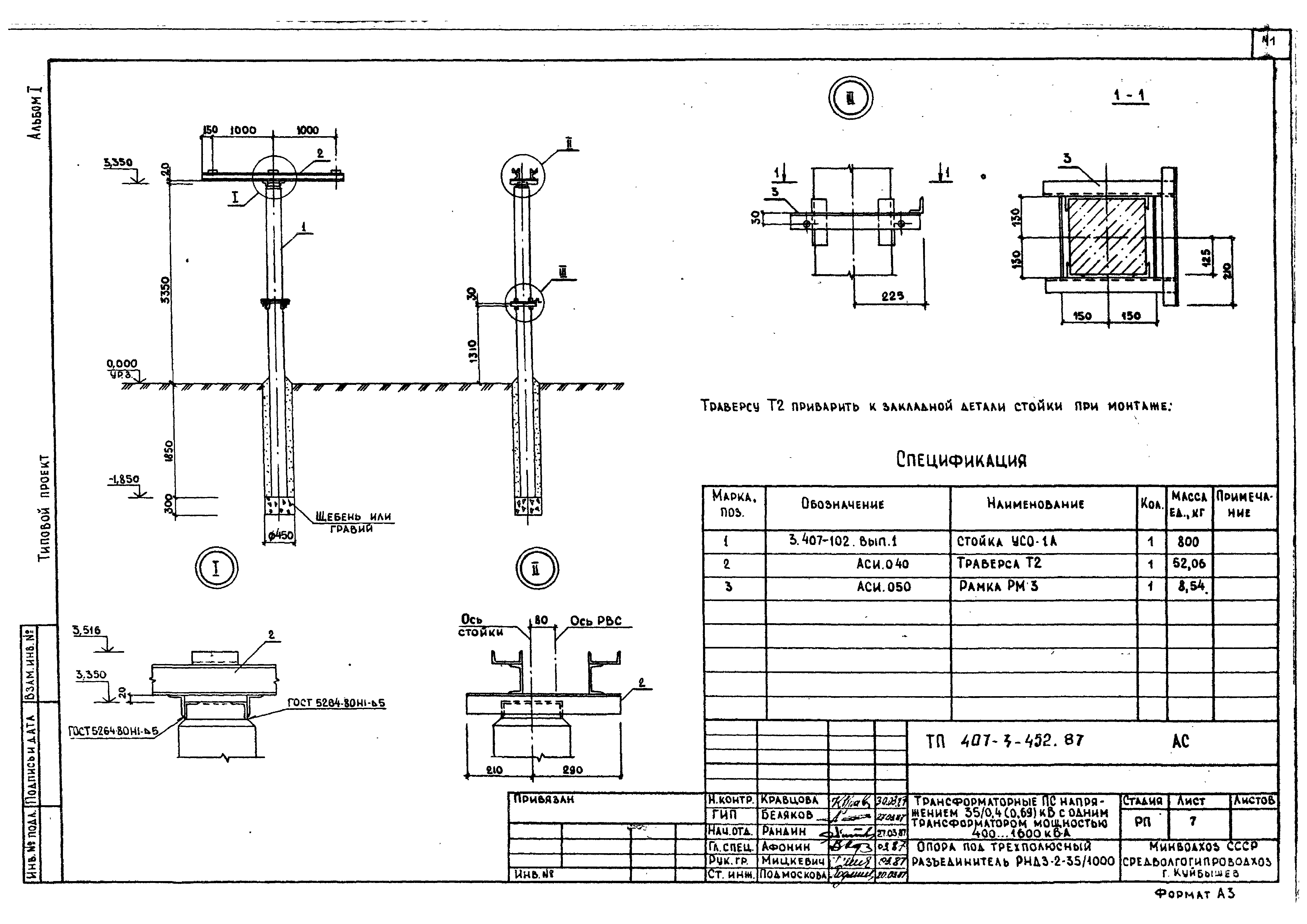
| Оглавление: | Пояснительная записка Электротехническая часть Общие данные Схема электрических соединений План Разрез 1-1 Узел А. Разрез Б-Б Раскладка кабелей. Принципиальная схема сигнализации. Кабельный журнал Схема блокировки Заземляющее устройство и наружное освещение подстанции Блок приема ВЛ35 кВ Спецификация к листу 10 Установка трехполюсного разъединителя РНД3.2-35/1000У1 Установка механического блокировочного замка на приводе ПР-02-2УХЛ1 Установка механического блокировочного замка на калитке внутреннего ограждения Установка предохранителей ПВТ104-35-100-3,2У1 и разрядников РВС-35У1 Спецификация к листу 15 Спецификация оборудования Ведомость потребности в материалах Архитектурно-строительные решения Общие данные План и разрез подстанции Фундамент под трансформаторы мощностью 400 и 630 кВА Фундамент под трансформаторы мощностью 1000 и 1600 кВА Опора под предохранители ПВТ-35 и разрядники РВС-35 Опора под трехполюсный разъединитель РНД3-2-35/1000 Опора под блок приема ВЛ35 кВ. Опора под шкаф противопожарного и эксплуатационного инвентаря Колодец-маслосборник Ограждение подстанции Внутреннее ограждение Узел крепления кронштейнов под опорные изоляторы ОНШ-10 на крышке трансформатора Ведомость потребности в материалах |
| Разработан: | Средволгогипроводхоз |
| Утверждён: | 03.03.1987 Минводхоз СССР (USSR Minvodkhoz 529) |



















































