Скачать Типовой проект 281-1-25-155 Альбом I. Архитектурно-строительные чертежиДата актуализации: 01.01.2021
|
| Обозначение: | Типовой проект 281-1-25-155 |
| Обозначение англ: | 281-1-25-155 |
| Статус: | не определен законодательством |
| Название рус.: | Альбом I. Архитектурно-строительные чертежи |
| Дата добавления в базу: | 01.09.2013 |
| Дата актуализации: | 01.01.2021 |
| Дата введения: | 18.02.1982 |
| Дата окончания срока действия: | 30.06.2003 |
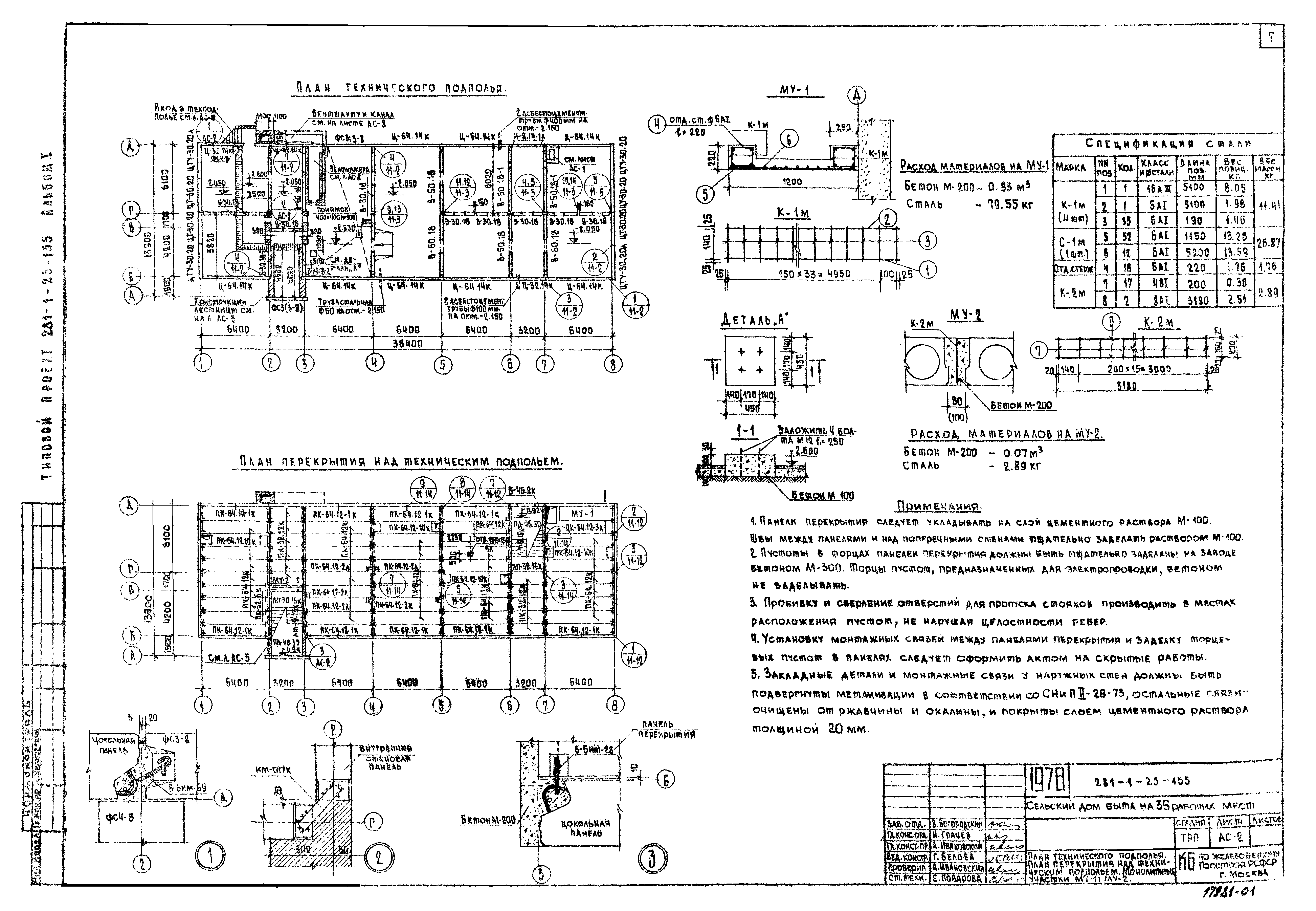
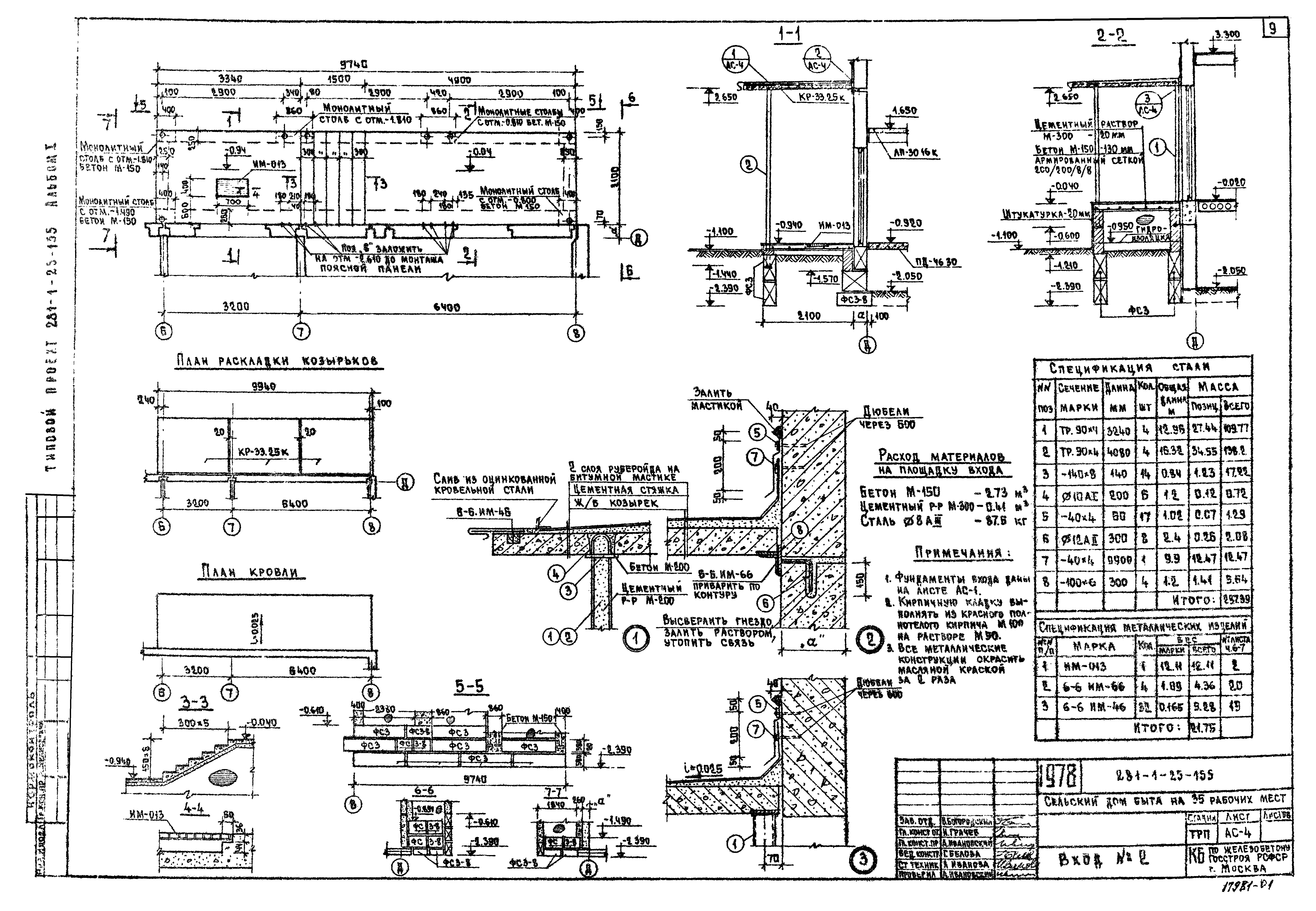
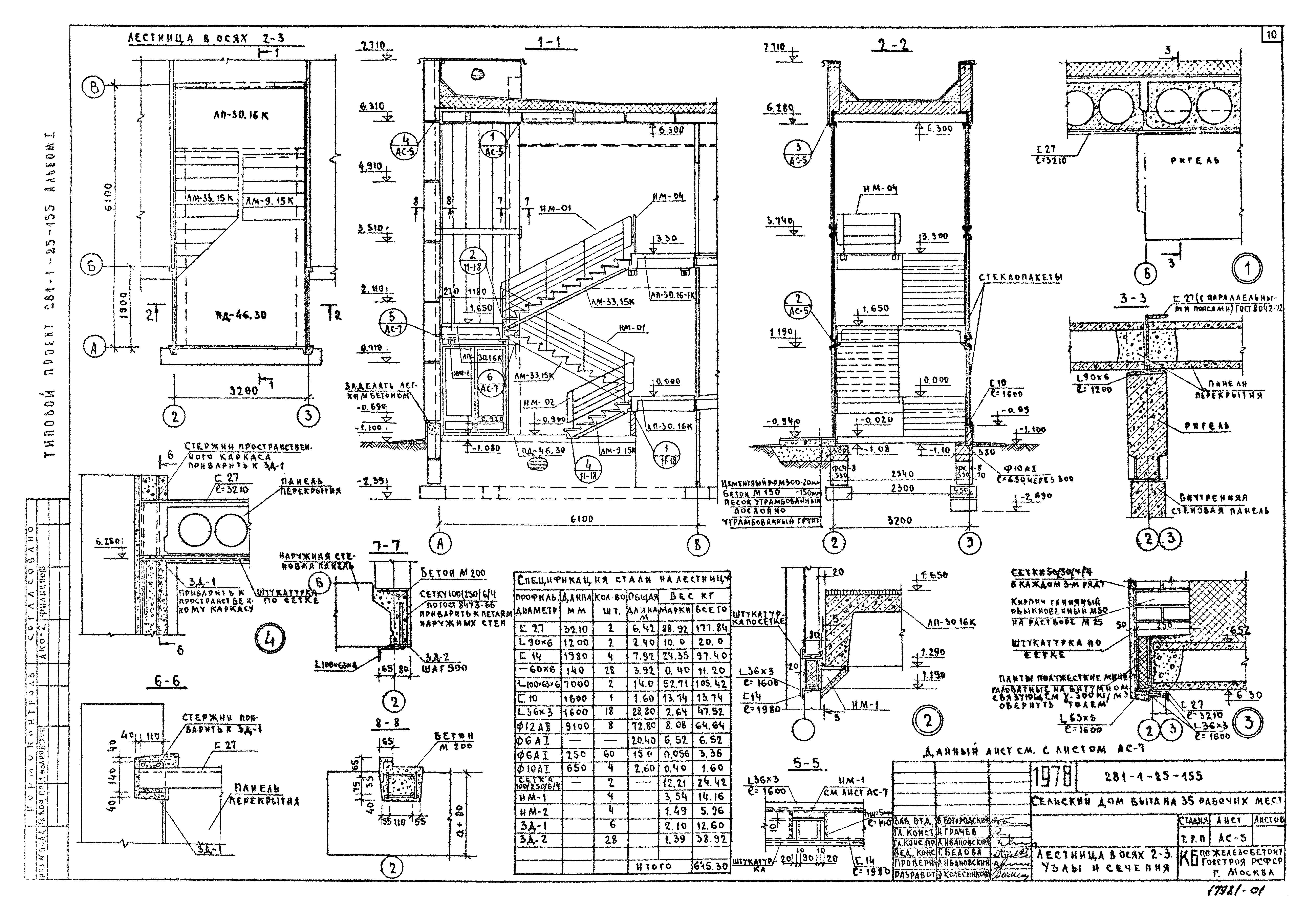
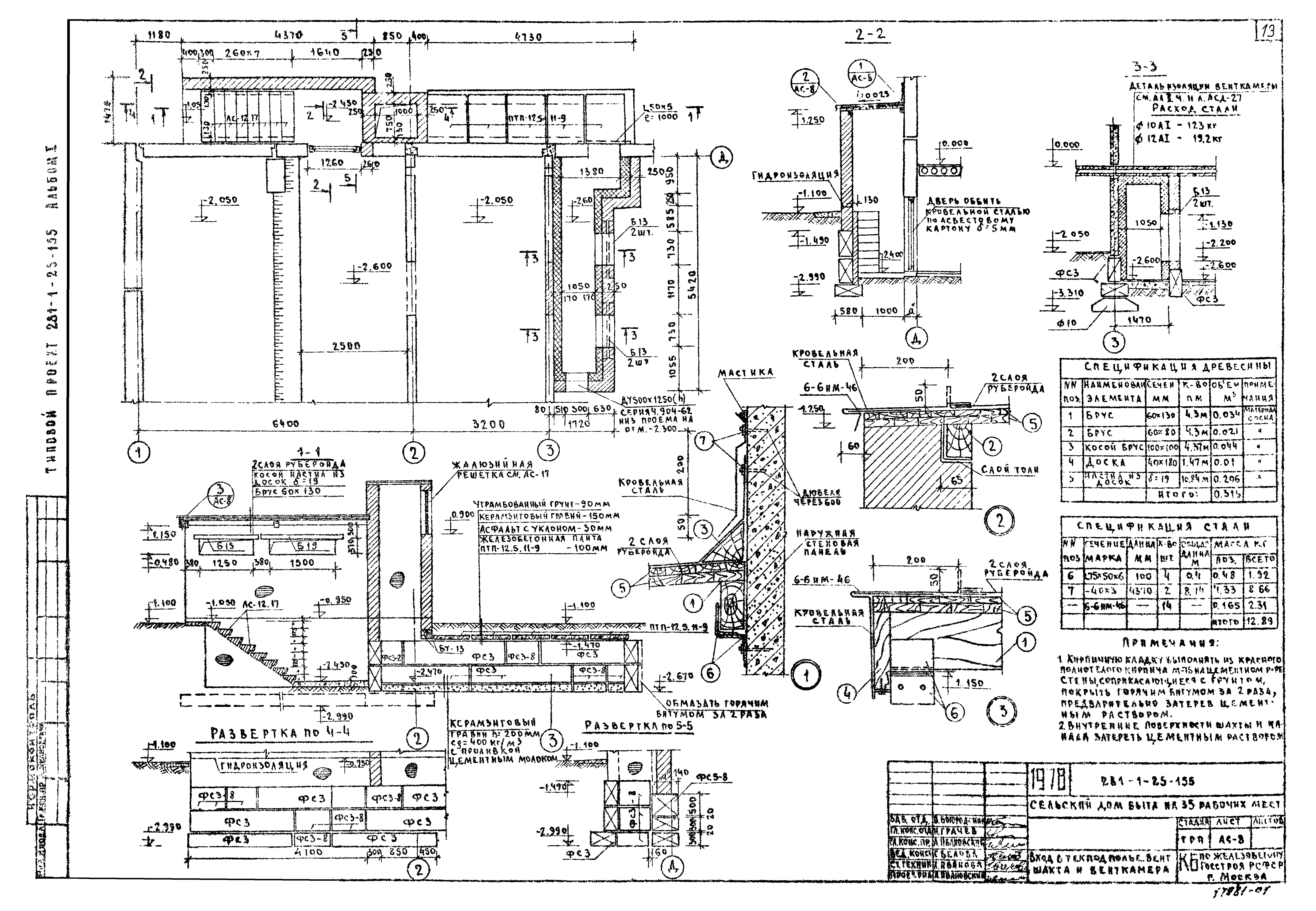
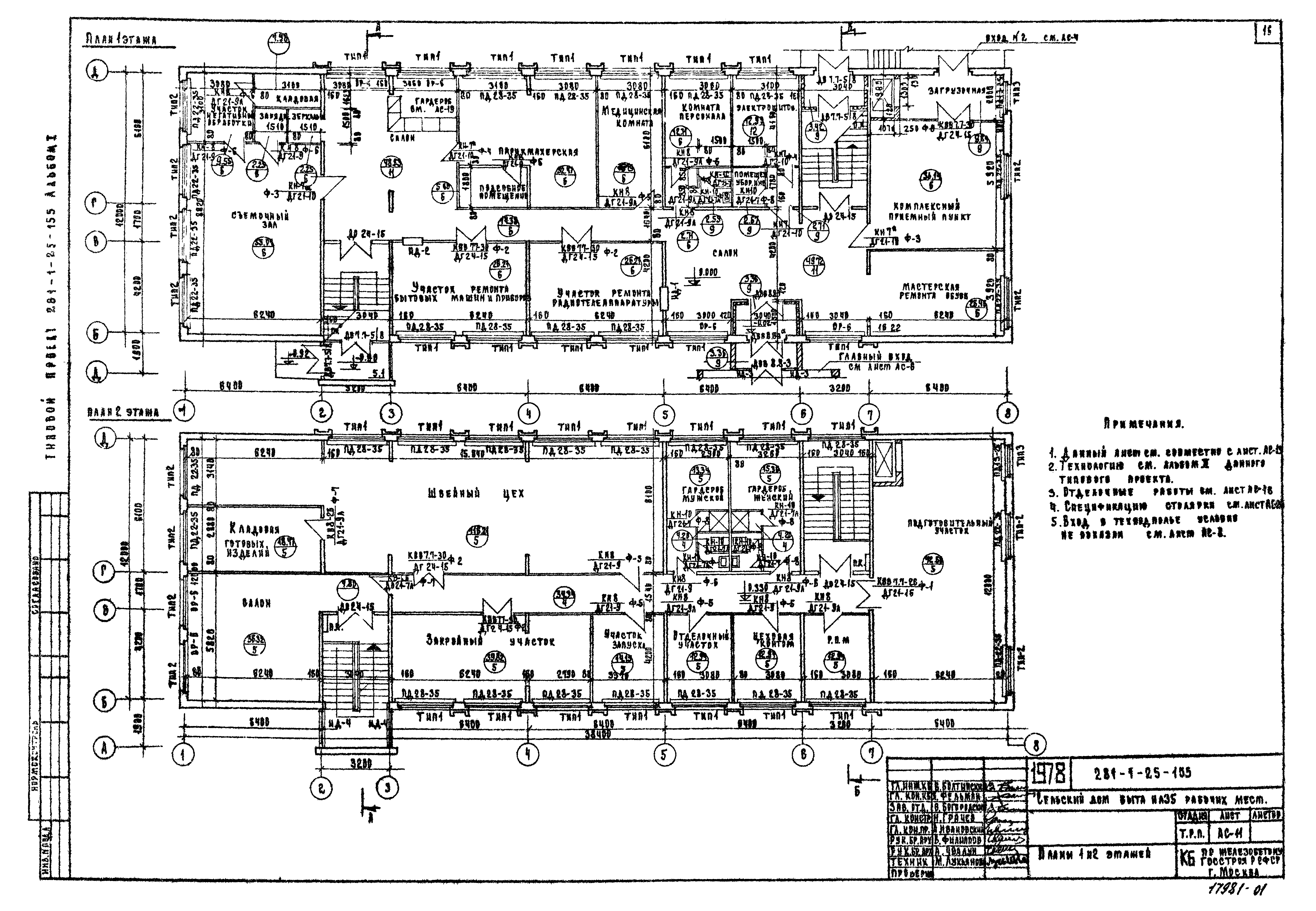
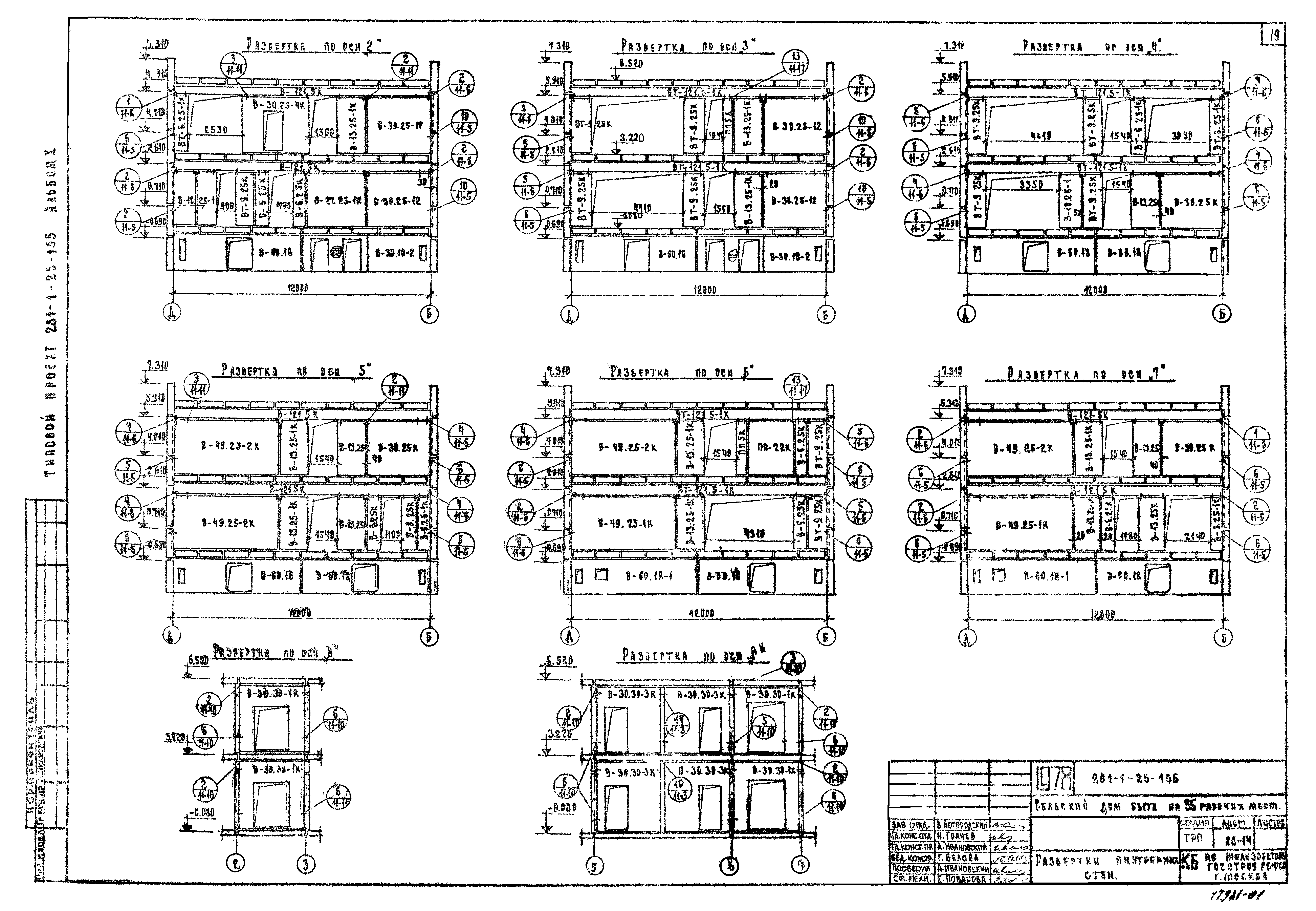
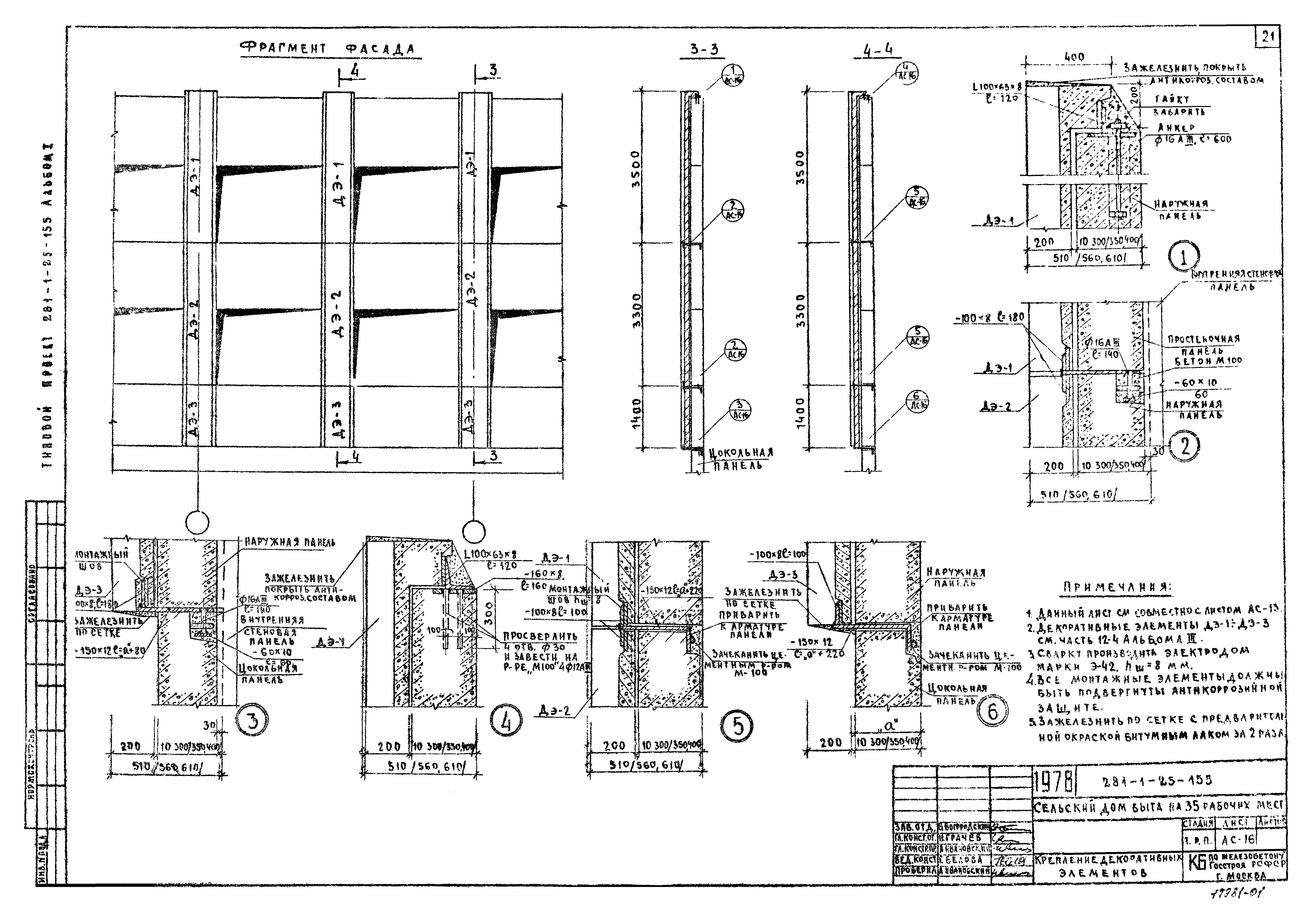
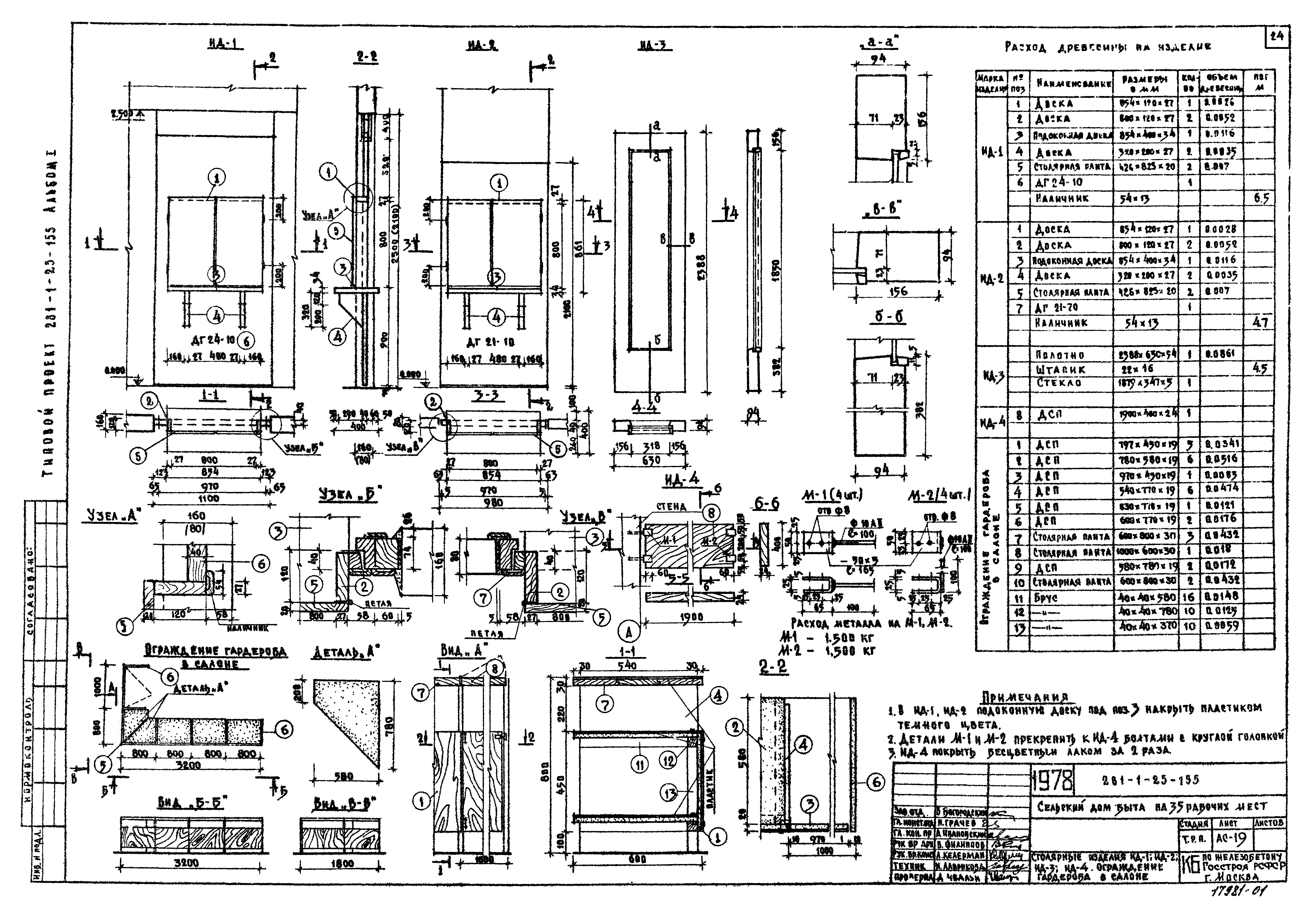
| Оглавление: | Заглавный лист Характеристика проекта Схема генерального плана План фундаментов, сечения 1-1 - 10-10 План технического подполья, плн перекрытия над техническим подпольем. Монолитные участки МУ-1; МУ-2 Развертки стен технического подполья Вход №2 Лестница в осях 2-3. Узлы и сечения Конструкция главного входа. Узлы Главный вход (№1). Развертки стен. Узлы. Лестница в осях 2-3. Узлы и закладные детали Вход в техподполье. Вентшахта и венткамера Спецификация железобетонных конструкций ниже отм. 0.000 Спецификация железобетонных изделий ниже отм. 0.000 и металлических изделий ниже отм. 0.000 Планы 1 и 2 этажей Фасады в осях 1-8; 8-1; Б-Д; Д-Б. Монтажные фасады по осям "А", "Б", "Д", 8-1, Разрезы А-А, Б-Б Монтажные планы 1 и 2 этажей Развертки внутренних стен План перекрытия над 1 этажом. План покрытия. План кровли Крепление декоративных элементов Экран ограждения, жалюзийная решетка Ведомость отделочных работ. Типы окон Столярные изделия ИД-1; ИД-2; ИД-3; ИД-4. Ограждение гардероба в салоне Спецификация столярных изделий Спецификация железобетонных изделий выше отметки 0.000 Спецификация металлических изделий и монтажных связей выше отм. 0.000 |
| Разработан: | Гипробытпром |
| Утверждён: | 15.10.1980 Минбыт РСФСР (409) |





























