Скачать Типовой проект 281-1-135-148 Альбом II. Общая пояснительная записка. Технологические чертежи. Внутренние водопровод и канализация. Отопление и вентиляция. Электроосвещение и электрооборудование. Связь и сигнализацияДата актуализации: 01.01.2021
|
| Обозначение: | Типовой проект 281-1-135-148 |
| Обозначение англ: | 281-1-135-148 |
| Статус: | не определен законодательством |
| Название рус.: | Альбом II. Общая пояснительная записка. Технологические чертежи. Внутренние водопровод и канализация. Отопление и вентиляция. Электроосвещение и электрооборудование. Связь и сигнализация |
| Дата добавления в базу: | 01.09.2013 |
| Дата актуализации: | 01.01.2021 |
| Дата введения: | 14.09.1979 |
| Дата окончания срока действия: | 30.06.2003 |
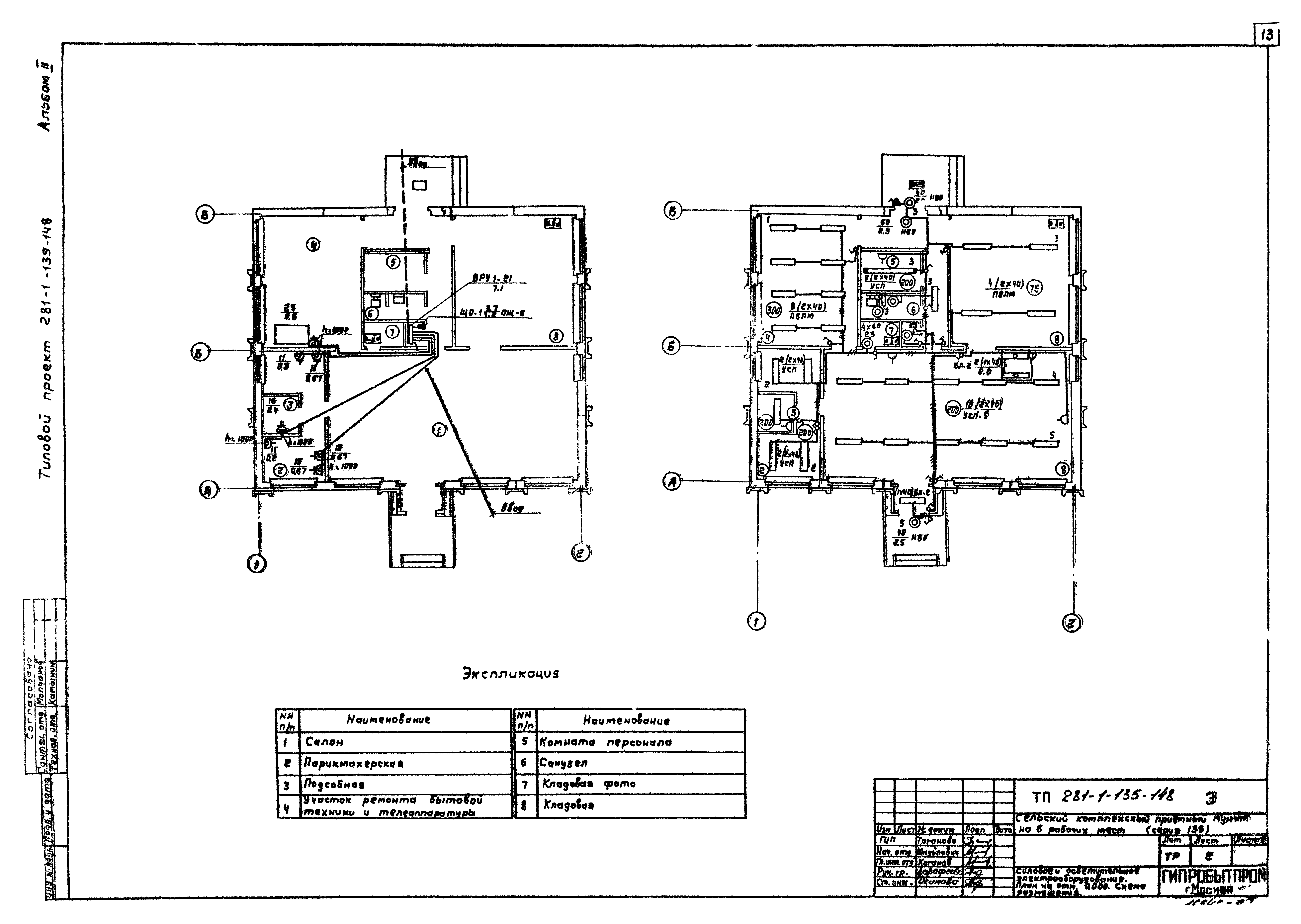
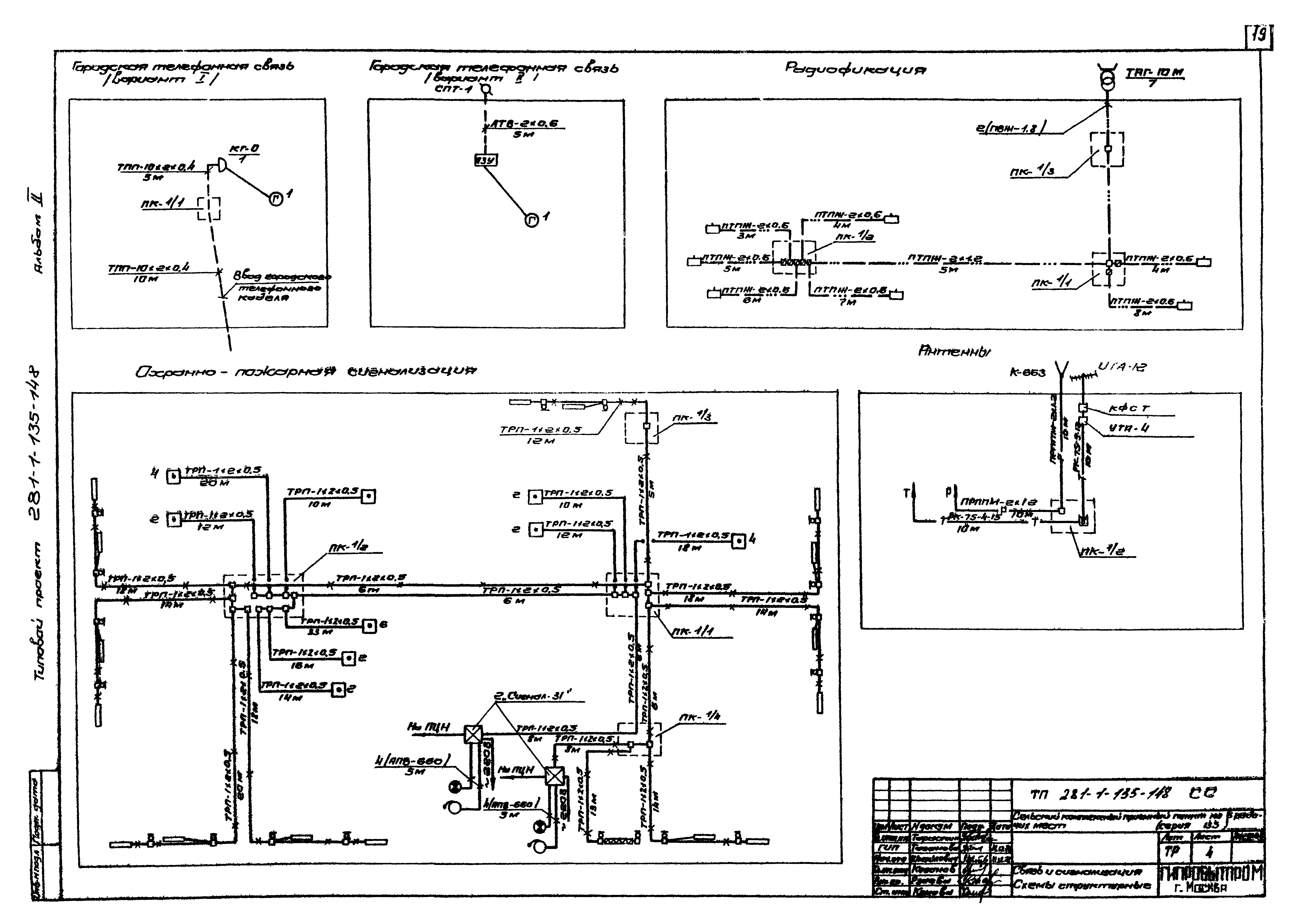
| Оглавление: | Пояснительная записка Чертежи основного комплекта марки ТХ План расположения технологического оборудования и спецификация Чертежи основного комплекта марки ОВ Общие данные Отопление и вентиляция. Планы на отм. 0.000 Отопление и вентиляция. Схемы систем отопления и вентиляции. Тепловой узел ввода горячего водоснабжения Звено прямого участка шовного асбестоцементного воздуховода Чертежи основного комплекта марки ВК Общие данные Планы на отм. 0.000. Схемы систем В1, Т3, К1 Чертежи основного комплекта марки Э Общие данные Силовое и осветительное электрооборудование. План на отм. 0.000. Схема размещения Силовое электрооборудование. Схема расчетная. Шкаф ВРУ1-21 Опросный лист на ВРУ1-21 Ведомость объемов электромонтажных и строительных работ Чертежи основного комплекта марки СС Связь и сигнализация. Общие данные Связь и сигнализация. Схемы структурные Связь и сигнализация. План на отм. 0.000. Схема кабельного ввода. Фрагменты блокировки Связь и сигнализация. Подпольная коробка размером 200х200 мм Связь и сигнализация. Подпольная коробка размером 400х400 мм Связь и сигнализация. Узлы скрытой проводки и крепление платы ПС5-6 |
| Разработан: | Гипробытпром КБ по железобетону Госстроя РСФСР |
| Утверждён: | 27.08.1979 Минбытпром РСФСР (339) |


























