Скачать Типовой проект 284-4-83с Альбом I. Архитектурно-строительная часть ниже отм. 0.000. Архитектурно-строительная часть выше отм. 0.000Дата актуализации: 01.01.2021
|
| Обозначение: | Типовой проект 284-4-83с |
| Обозначение англ: | 284-4-83с |
| Статус: | действует |
| Название рус.: | Альбом I. Архитектурно-строительная часть ниже отм. 0.000. Архитектурно-строительная часть выше отм. 0.000 |
| Дата добавления в базу: | 01.09.2013 |
| Дата актуализации: | 01.01.2021 |
| Дата введения: | 30.03.1981 |
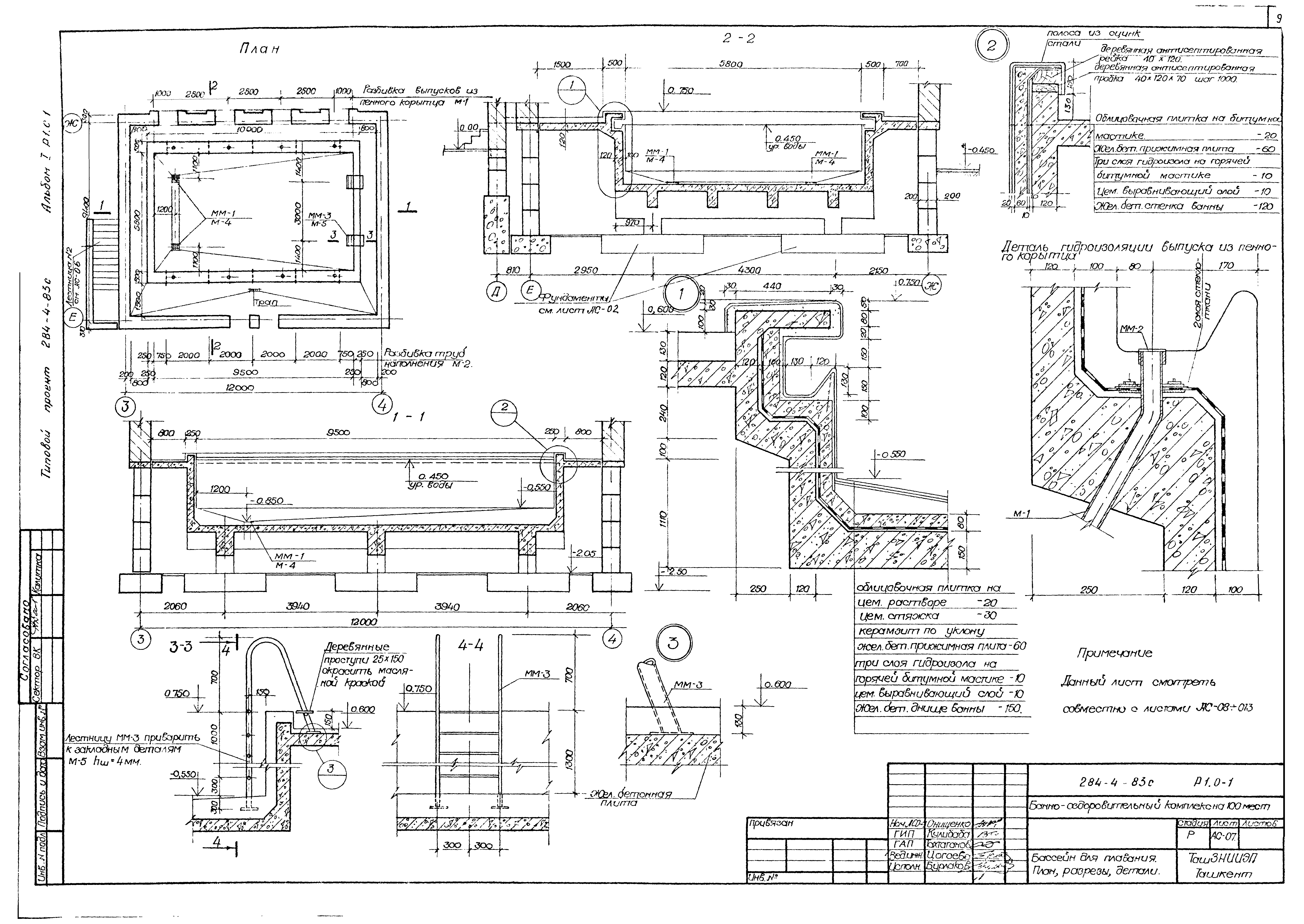
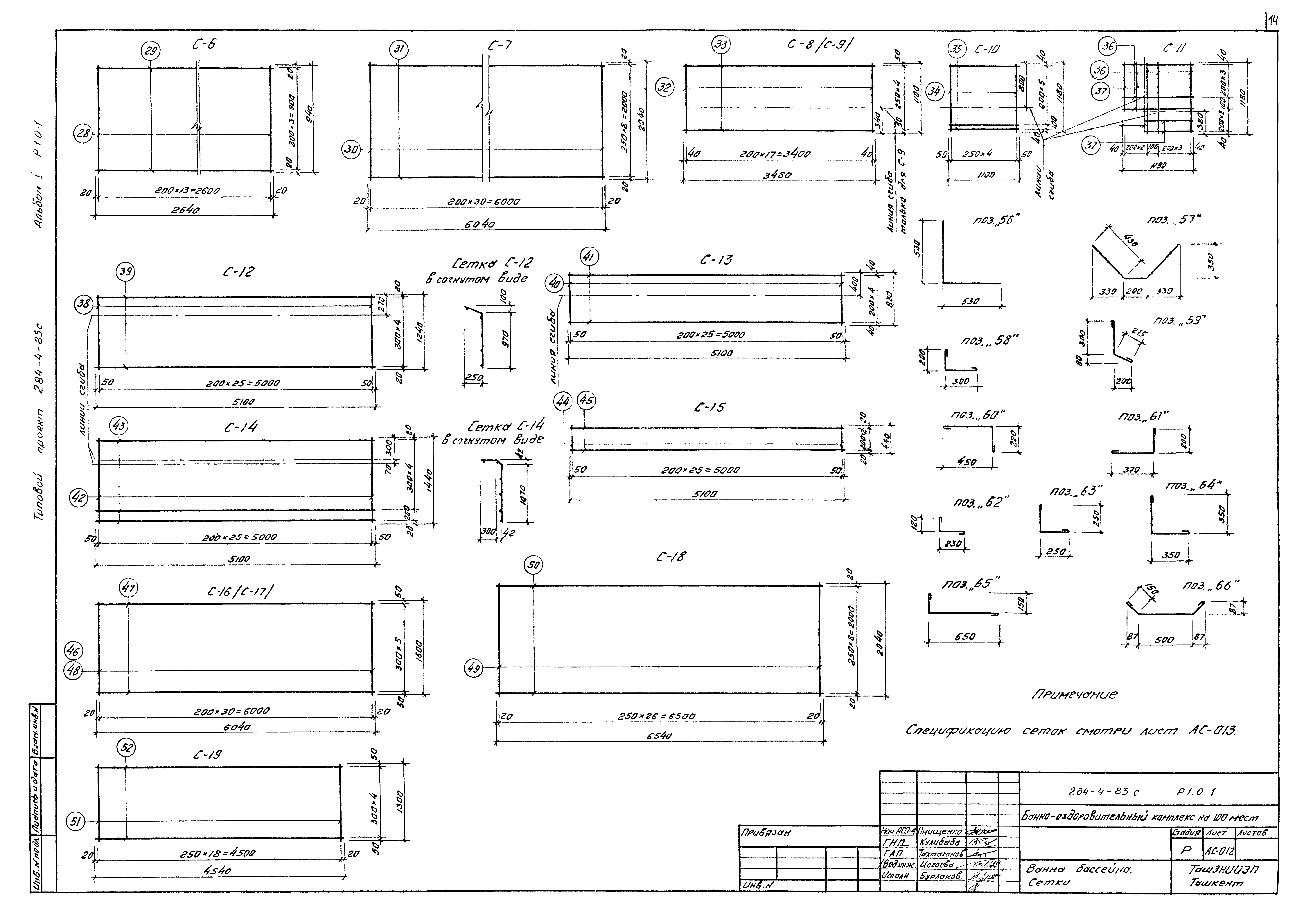
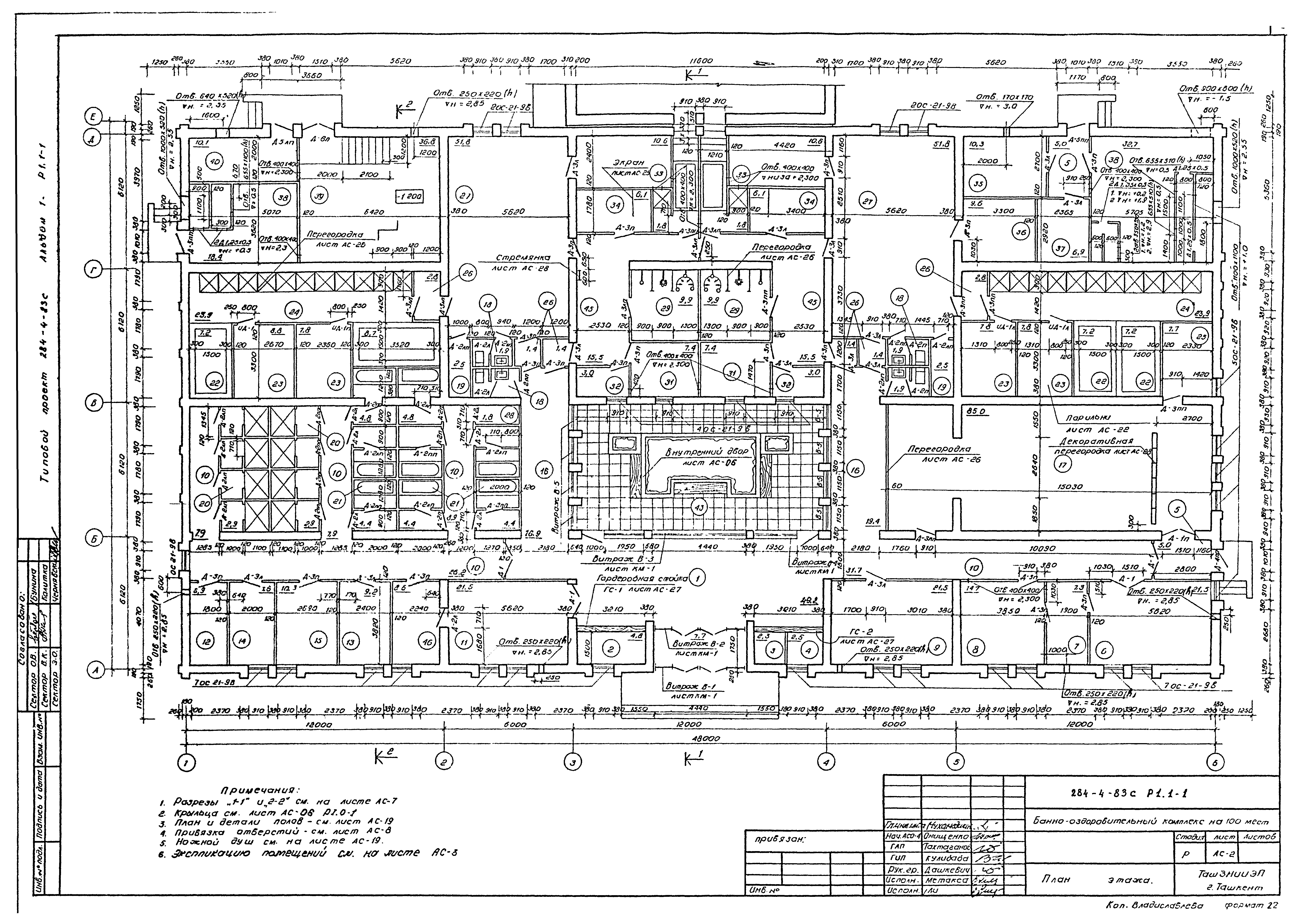
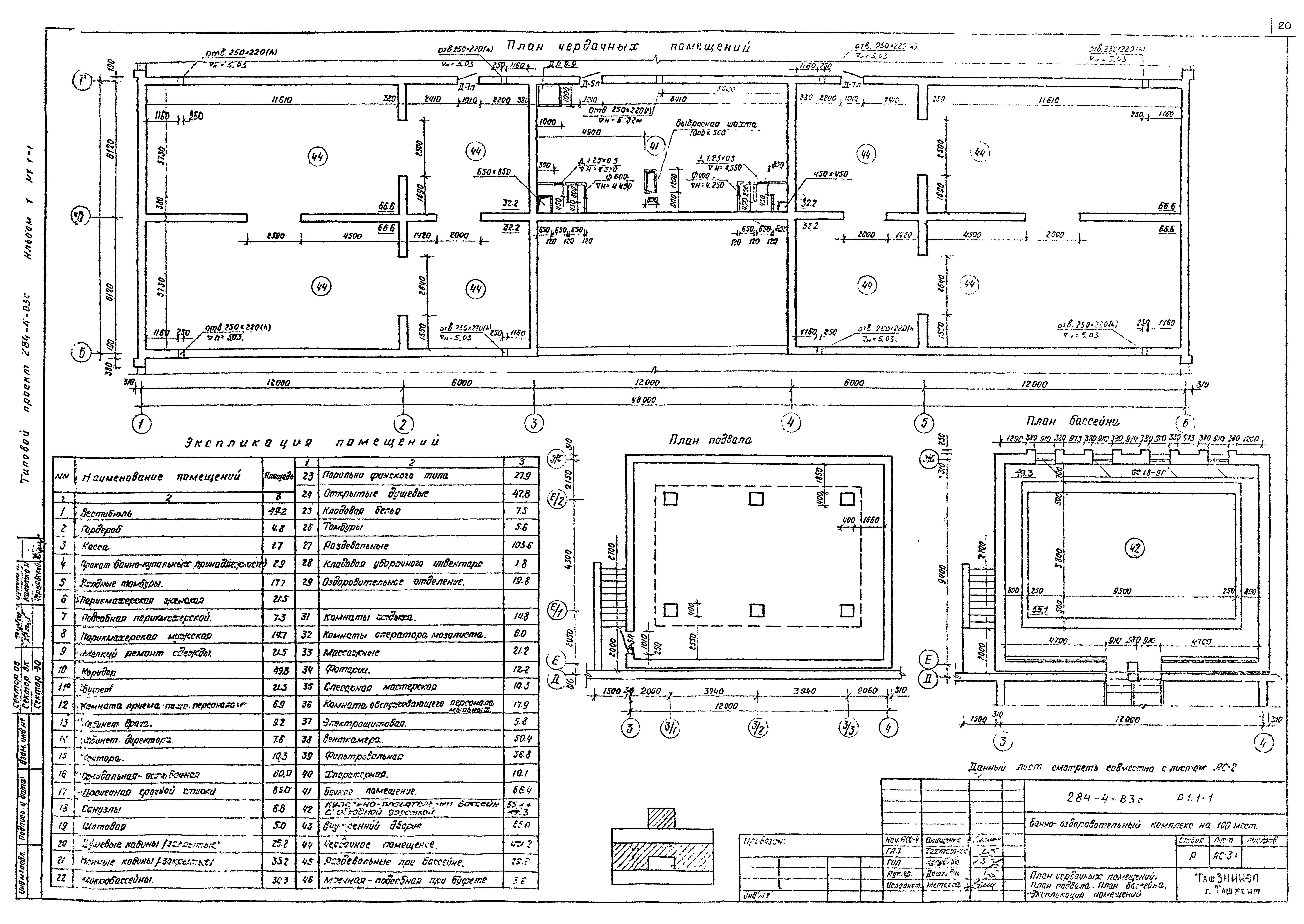
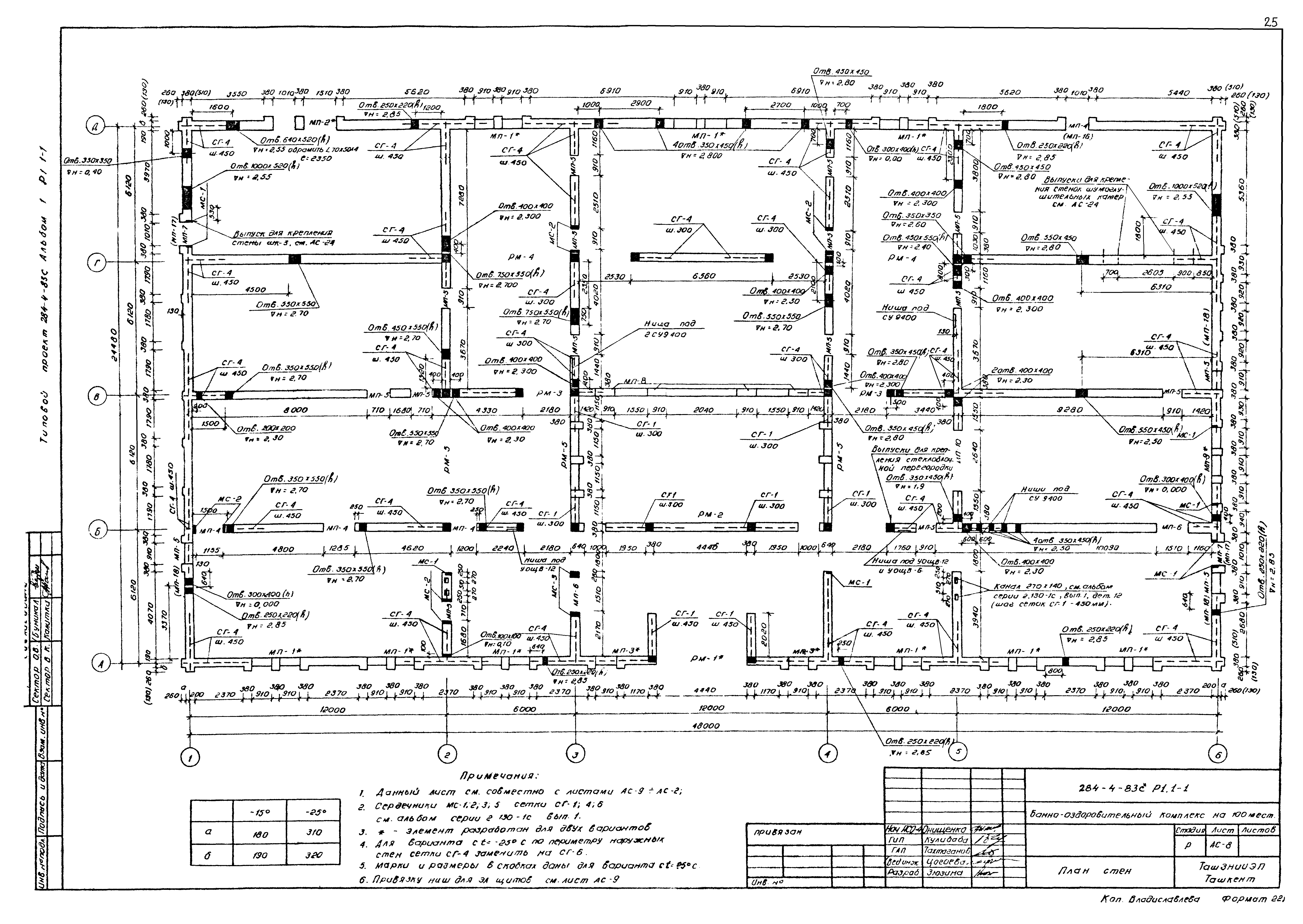
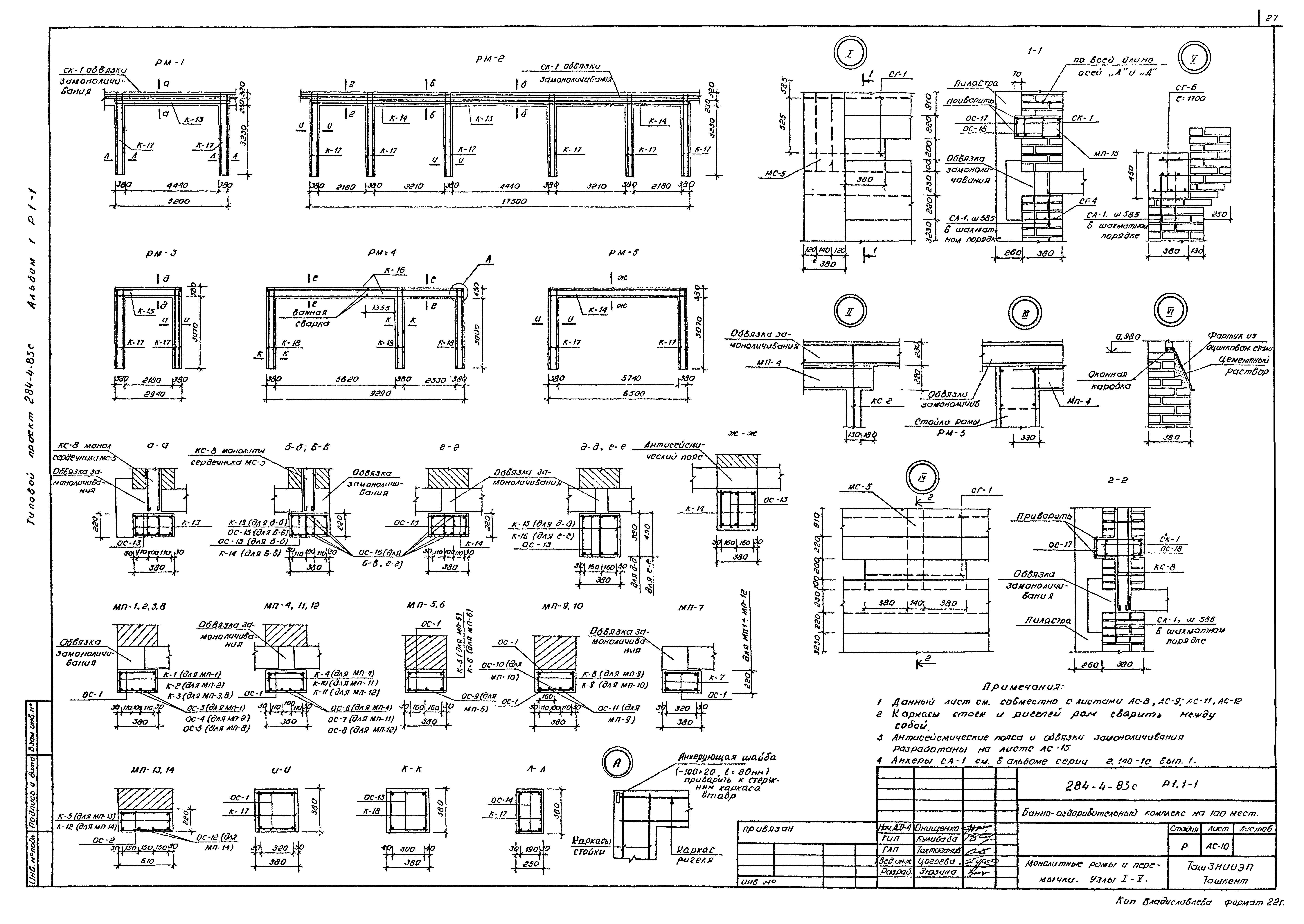
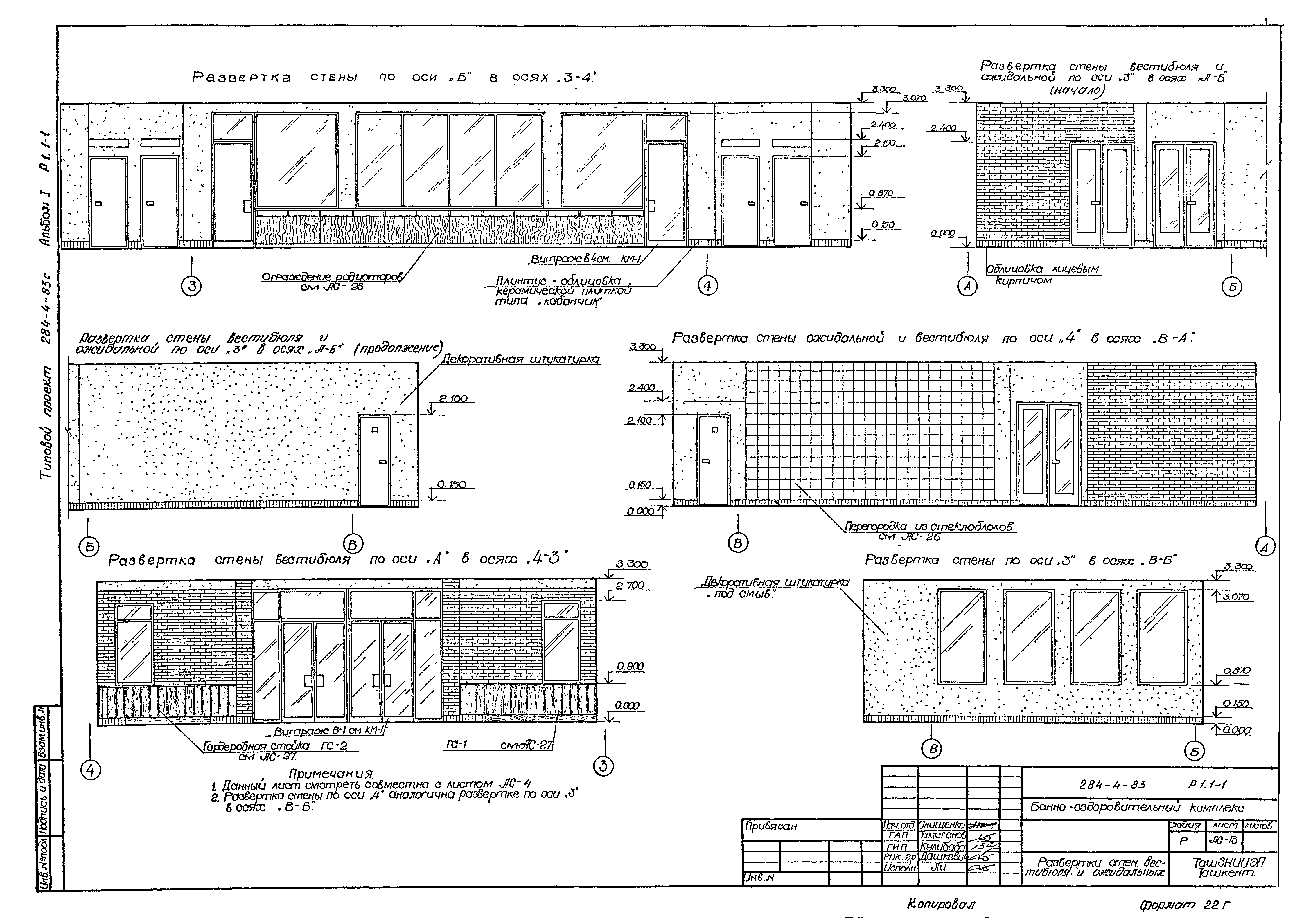
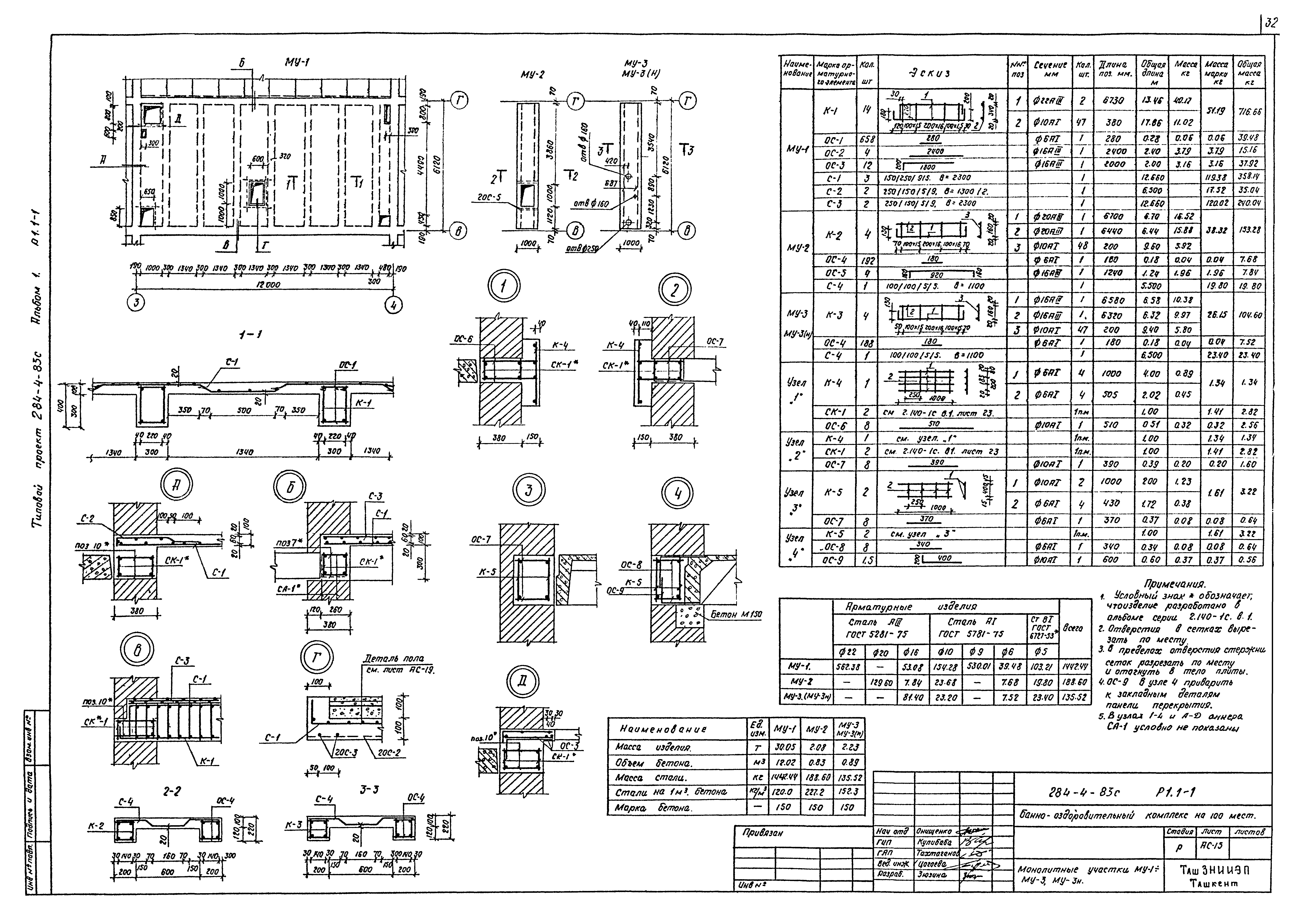
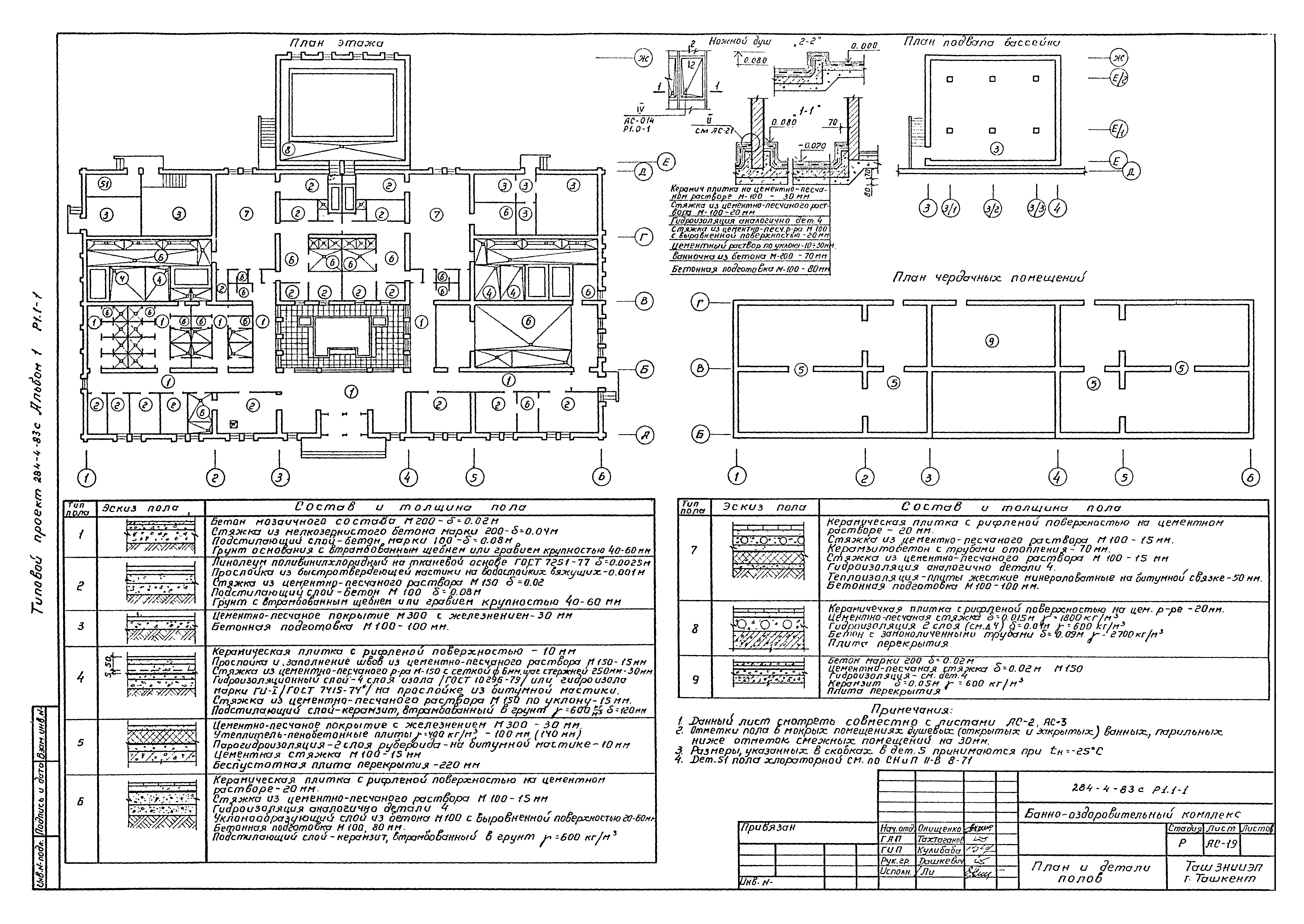
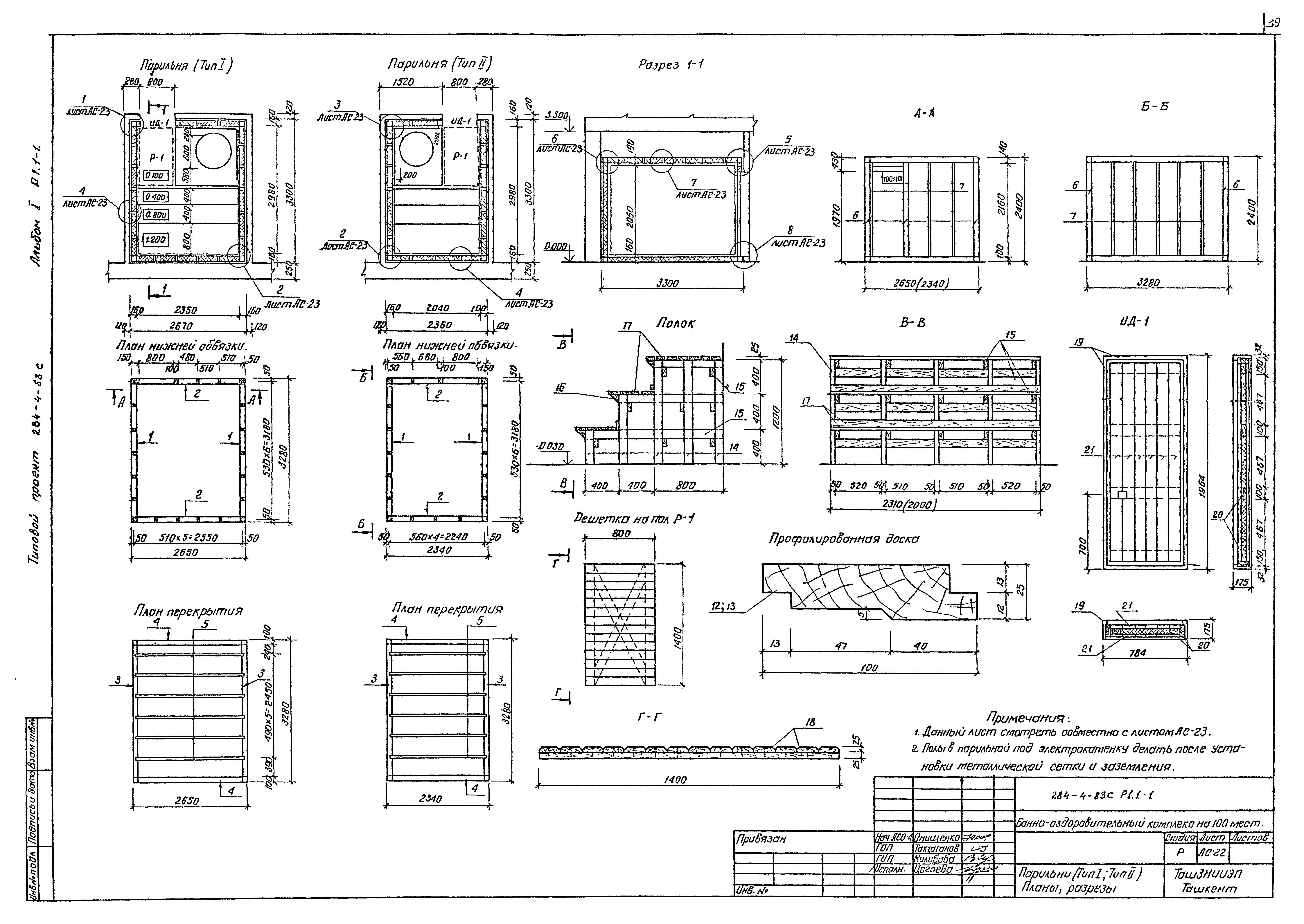
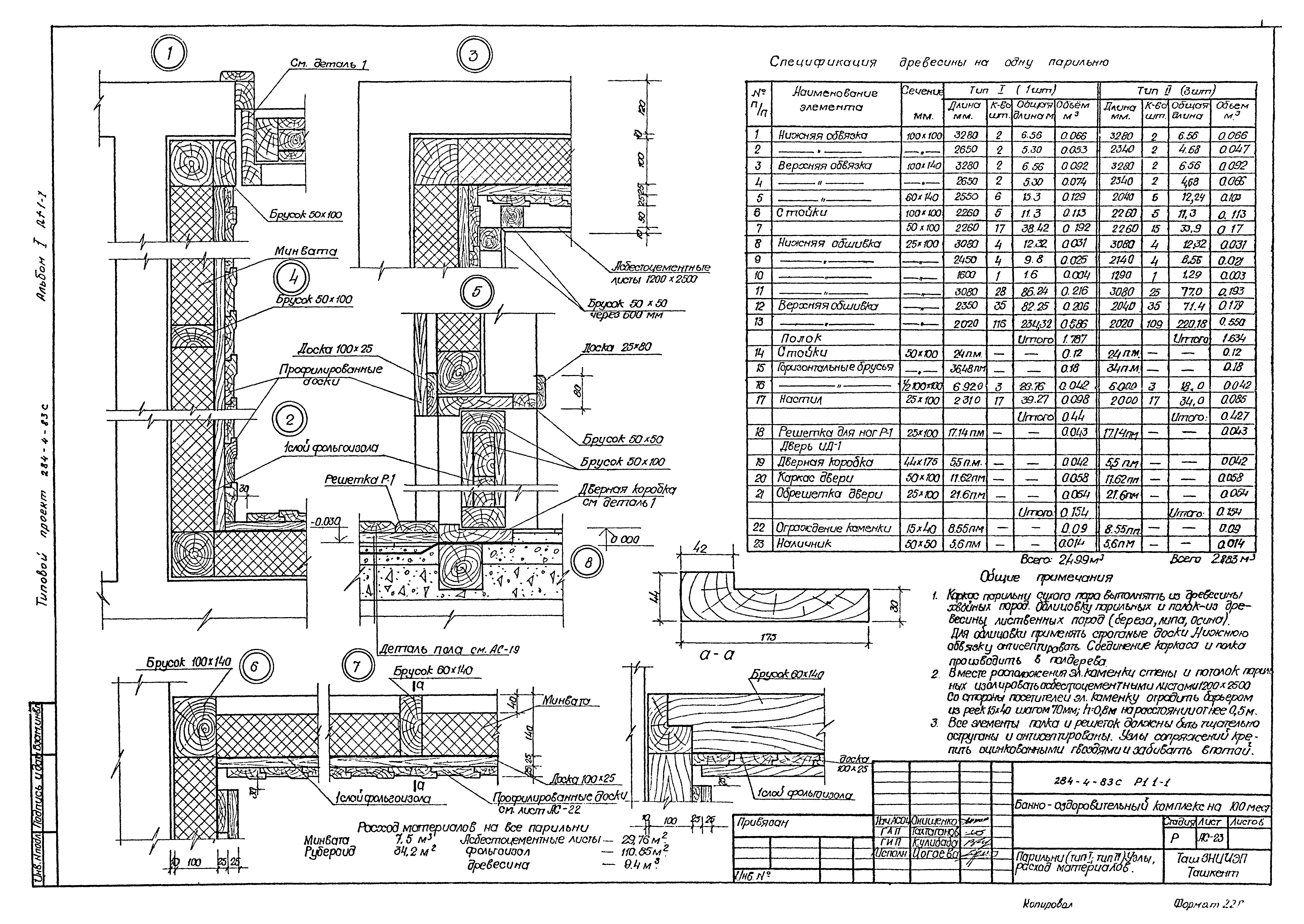
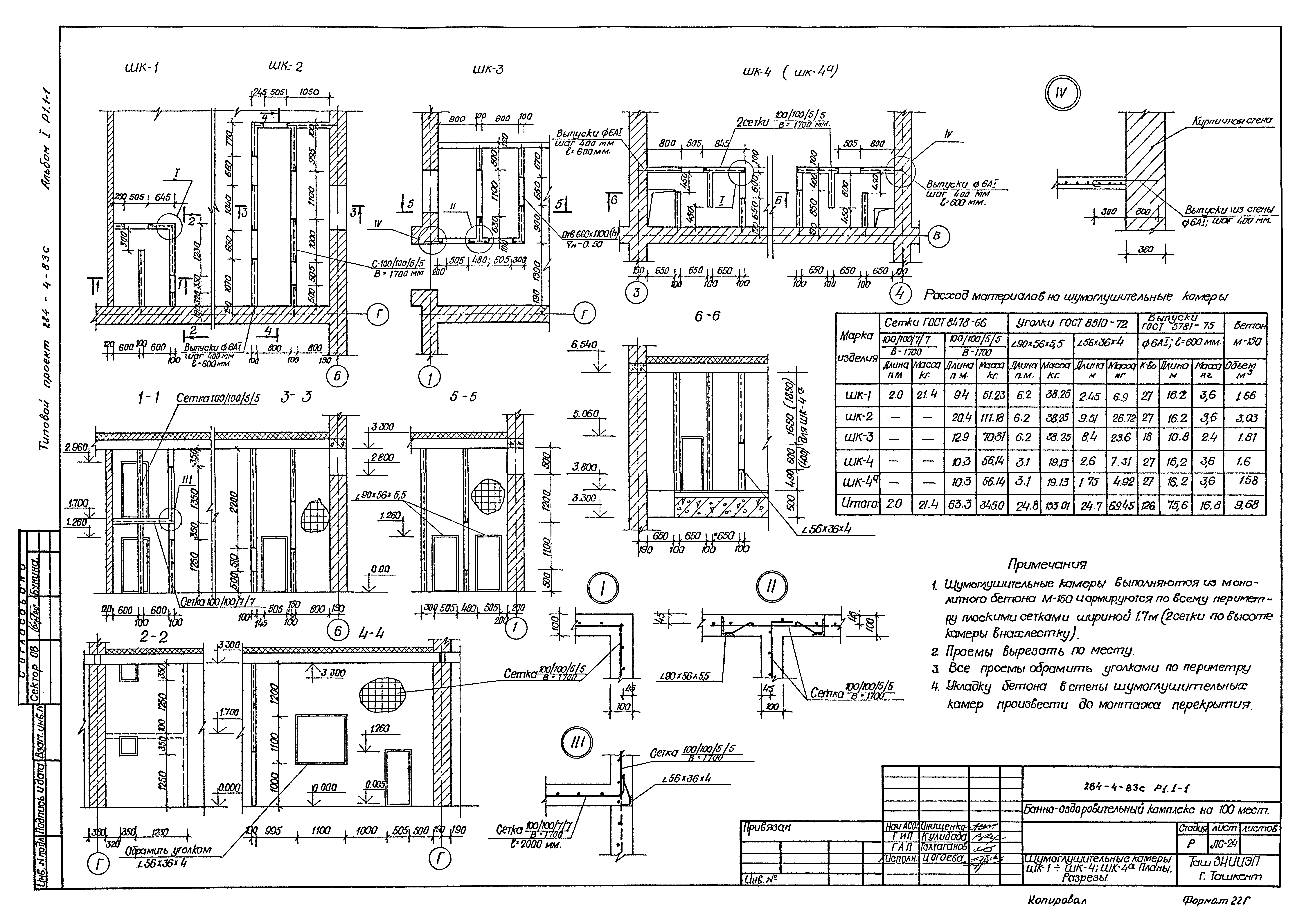
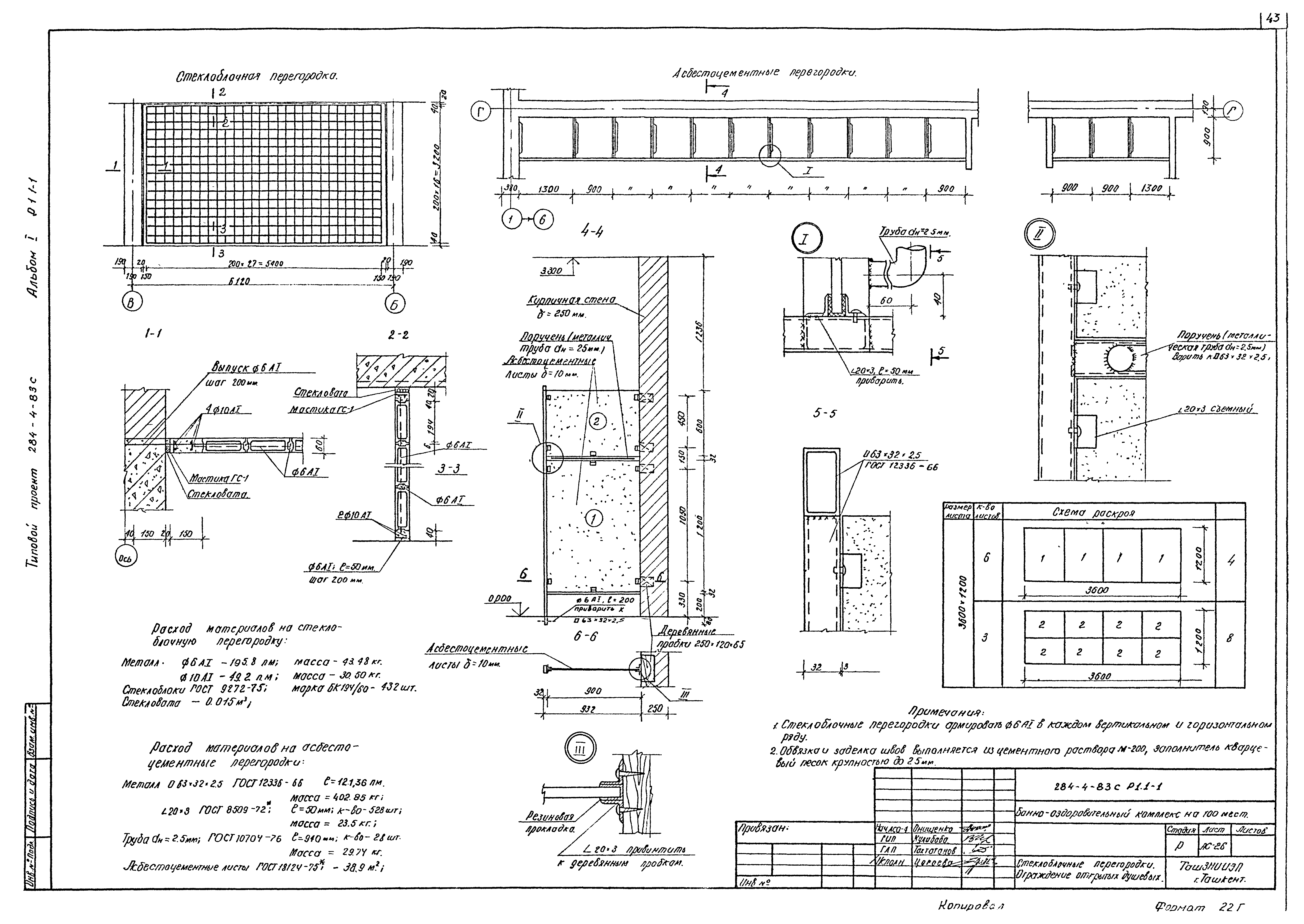
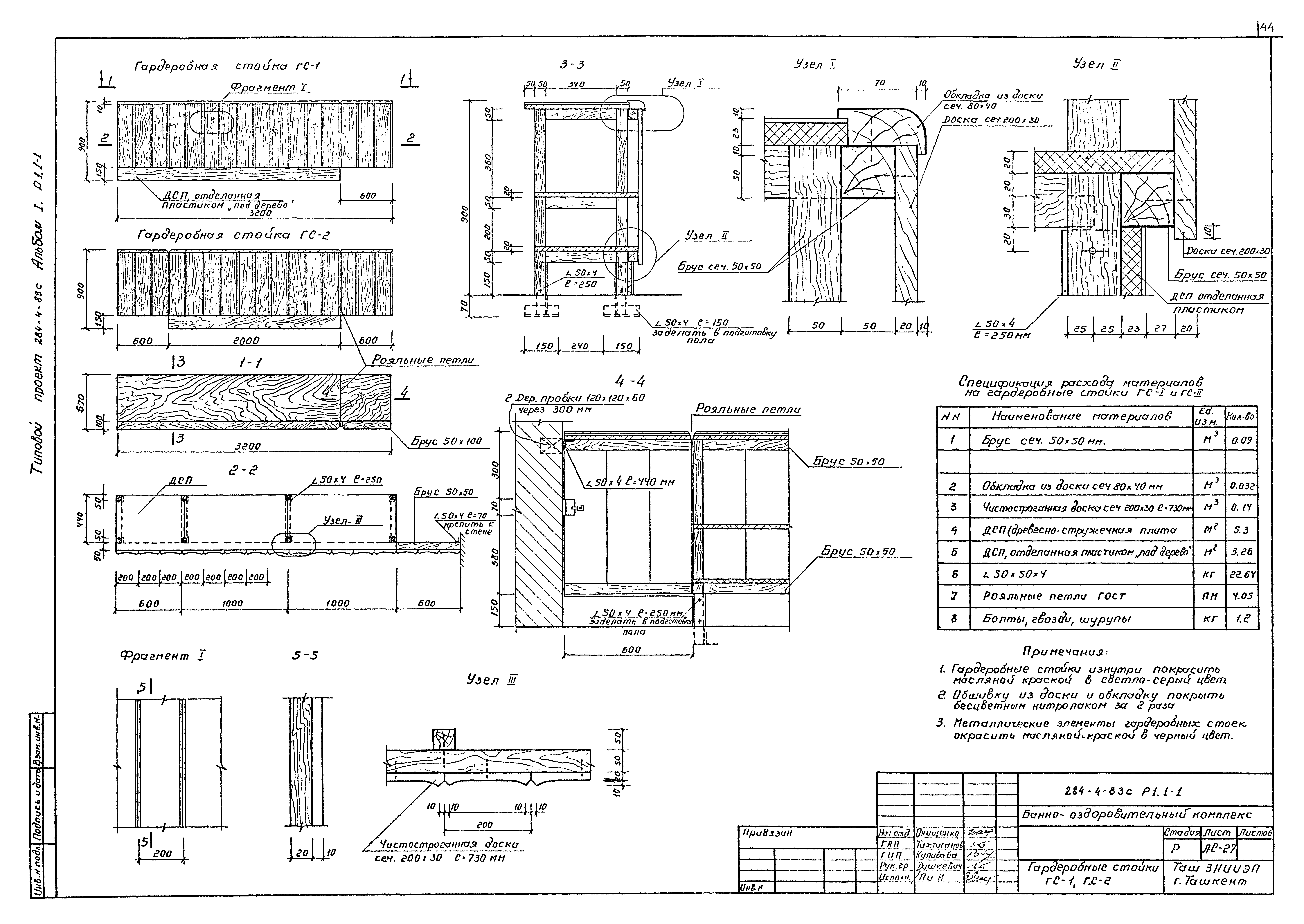
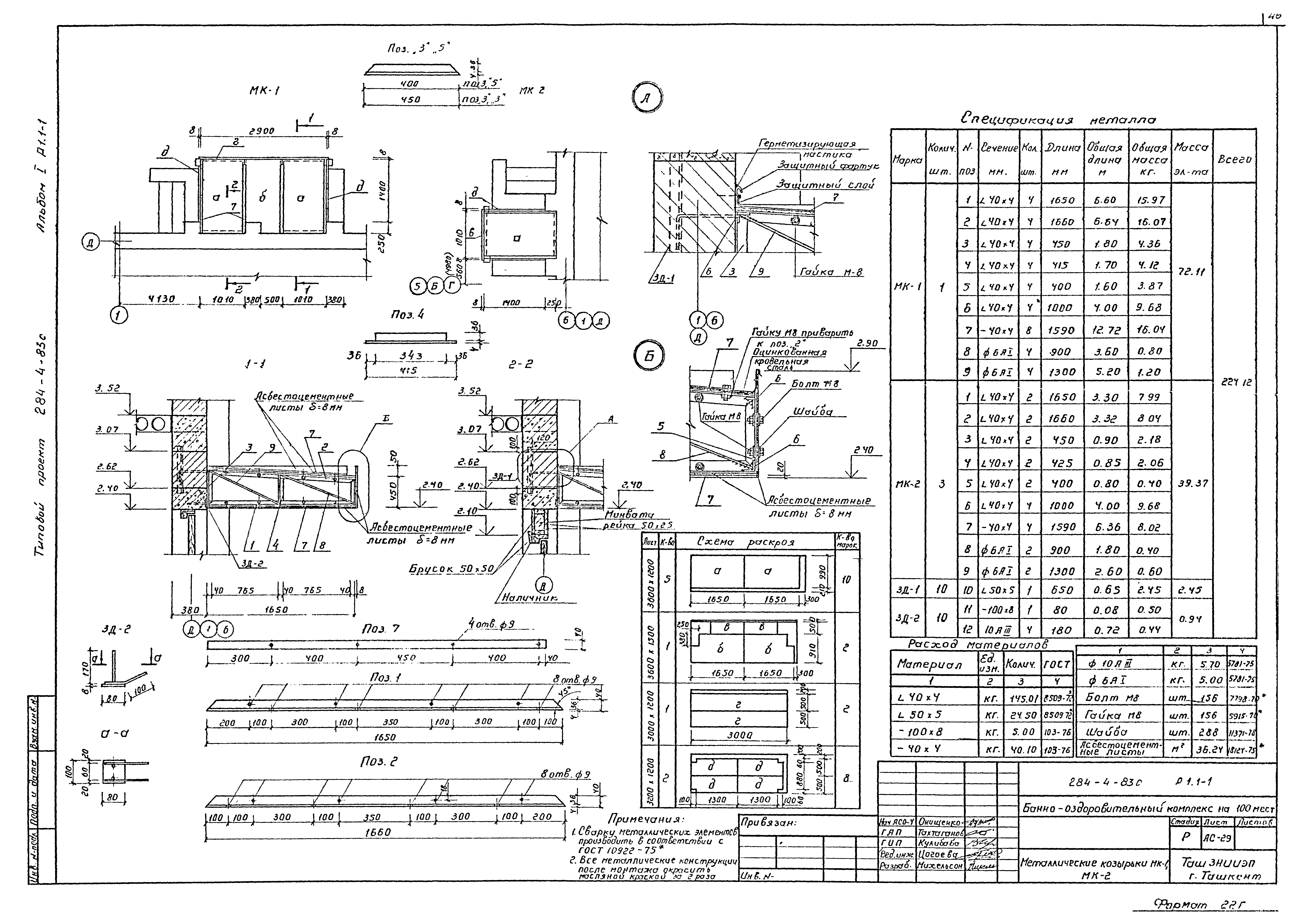
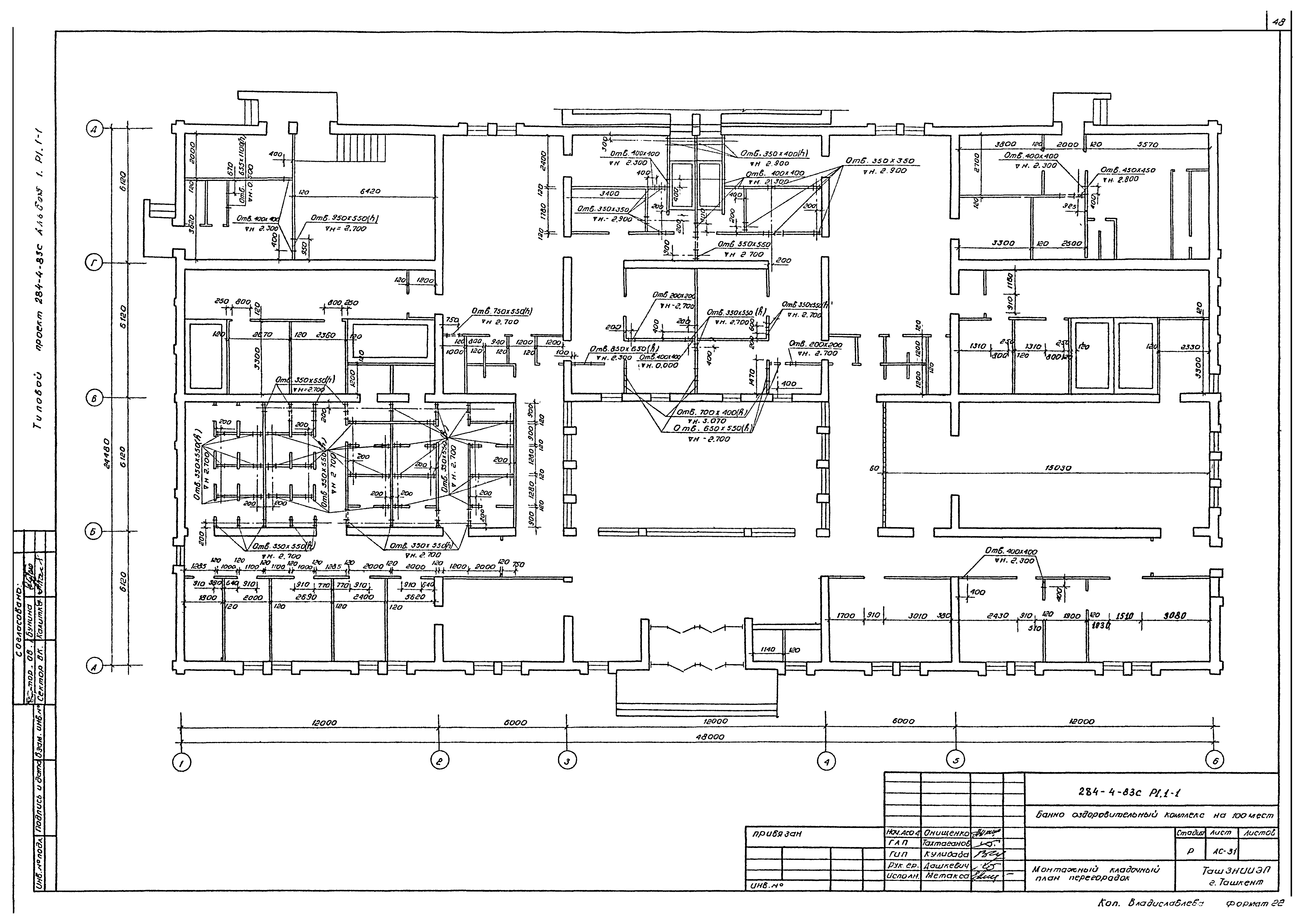
| Оглавление: | Ведомость чертежей Р.1.0-1 Архитектурно-строительная часть ниже отметки 0.000 Заглавный лист План фундаментов на отм. - 1.150 План фундаментов на отм. - 0.050 Раскладка фундаментных блоков Расход материалов Крыльца, лестницы. Внутренний дворик Бассейн для плавания. План. Разрезы Ванна бассейна. Опалубочный чертеж. Детали Ванна бассейна. Армирование Ванна бассейна. Армирование стенок и обходной дорожки ванны. Каркасы, сетки Ванна бассейна. Накладные и закладные детали Ванна бассейна. Сетки Ванна бассейна. Спецификация арматуры Микробассейны №1, 2, 3 Сводная спецификация изделий Р.1.1-1 Архитектурно-строительная часть выше отметки 0.000 Заглавный лист План этажа План чердачных помещений. План подвала. План бассейна Ведомость отделочных работ Фасады в осях "6-1" и "Ж-А" Фасады в осях "1-6" и "А-Ж" Разрезы "1-1" и "2-2" План стен План стен чердачных помещений и бассейна. Развертки стен Монолитные рамы и перемычки. Узлы I - V Спецификация арматурных элементов монолитных железобетонных изделий. Выборка стали Узлы и спецификация стали для варианта стен при tн = минус 25 градусов Цельсия Развертки стен Монтажный план покрытия и перекрытия Монолитные участки МУ1 - МУ3; МУ-3н Опалубочные чертежи плит перекрытия План и детали кровли Шумоглушительная камера ШК-5, выбросная шахта. Вентиляционный канал План и детали полов План парогидроизоляции. Разрезы "1-1", "2-2". Пояснительная записка Узлы и детали парогидроизоляции Парильни (тип I; тип II). Планы, разрезы Парильни (тип I; тип II). Узлы, расход материалов Шумоглушительные камеры ШК1 - ШК, ШК-4а. Планы. Разрезы Бассейн. Подвесной потолок. Узлы, сечения. Ограждения радиаторов Стеклоблочная перегородка. Ограждение открытых душевых Гардеробные стойки ГС-1; ГС-2 Деревянные решетки Р-1; Р-2. Ограждение-скамья. Стремянка Металлические козырьки МК-1; МК-2 Баки запасные БЗ-1; БЗ-2 Монтажный кладочный план перегородок Витражи |
| Разработан: | ТашЗНИИЭП Госгражданстроя |
| Утверждён: | 26.02.1980 Госгражданстрой (Gosgrazhdanstroy 66) |
















































