Скачать Серия ИИ-04-15 Дополнение к выпуску 0-1. Указания по применению изделий. Дополнительные монтажные узлы. Рабочие чертежиДата актуализации: 01.01.2021
|
| Обозначение: | Серия ИИ-04-15 |
| Обозначение англ: | Series ИИ-04-15 |
| Статус: | не действует |
| Название рус.: | Дополнение к выпуску 0-1. Указания по применению изделий. Дополнительные монтажные узлы. Рабочие чертежи |
| Дата добавления в базу: | 01.09.2013 |
| Дата актуализации: | 01.01.2021 |
| Дата введения: | 01.05.1979 |
| Дата окончания срока действия: | 01.04.1981 |
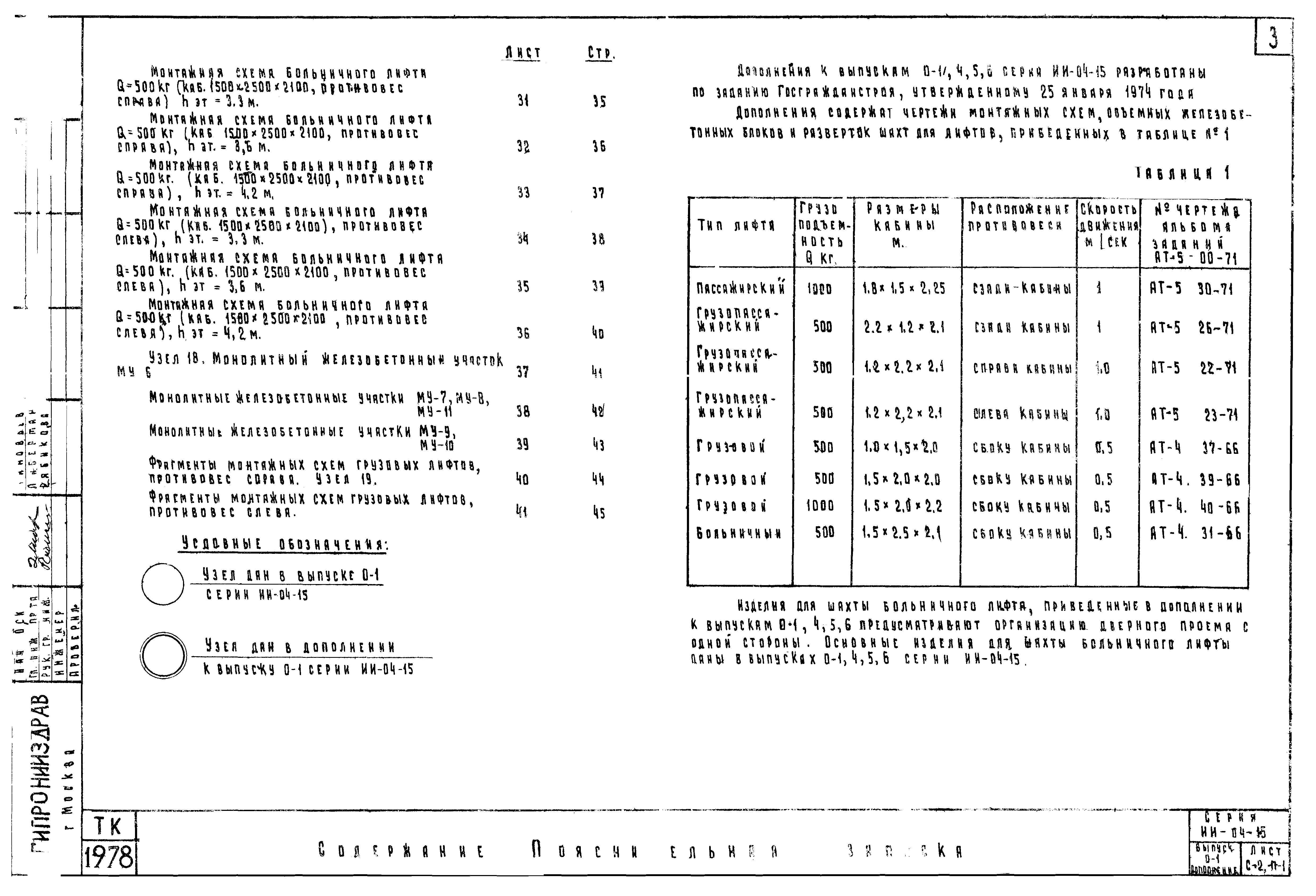
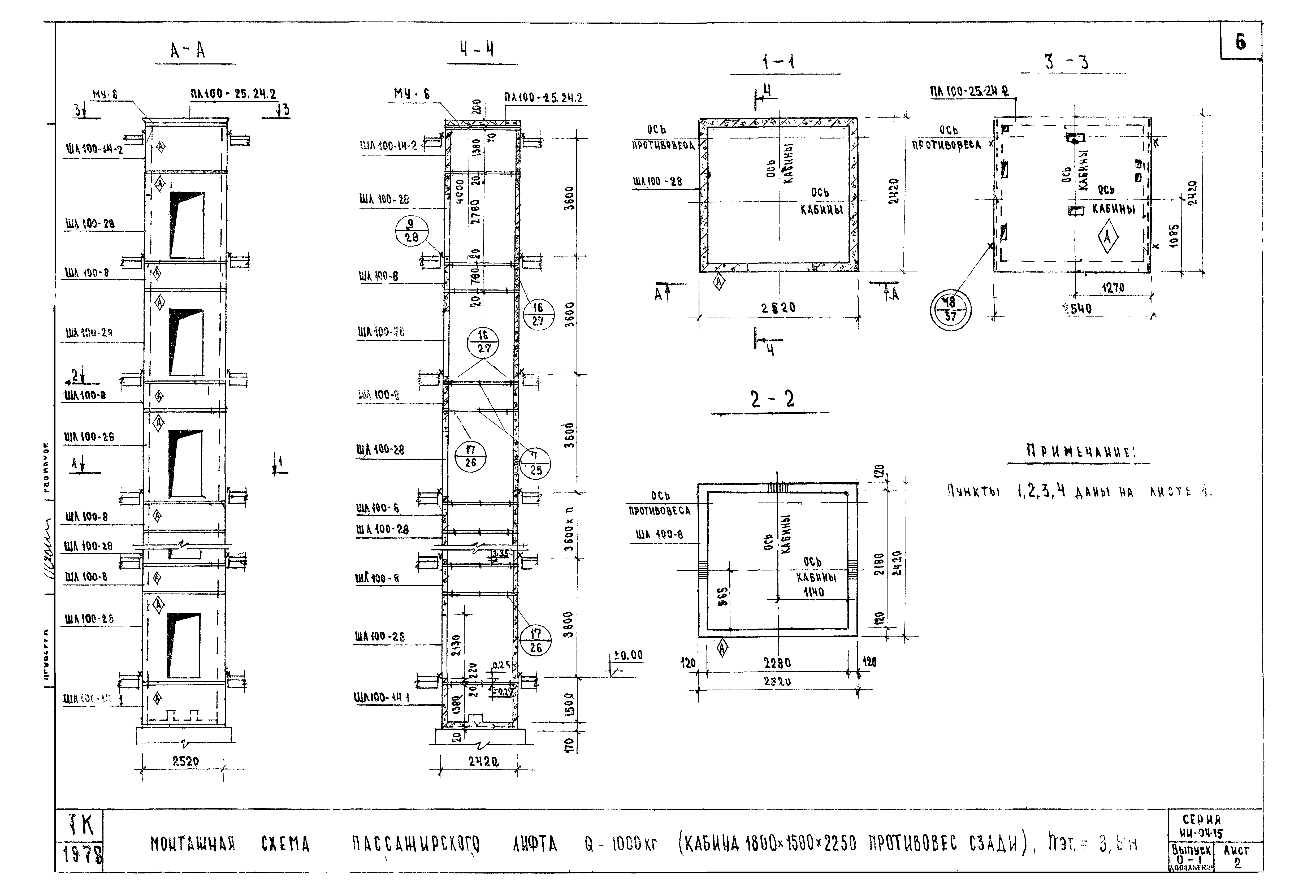
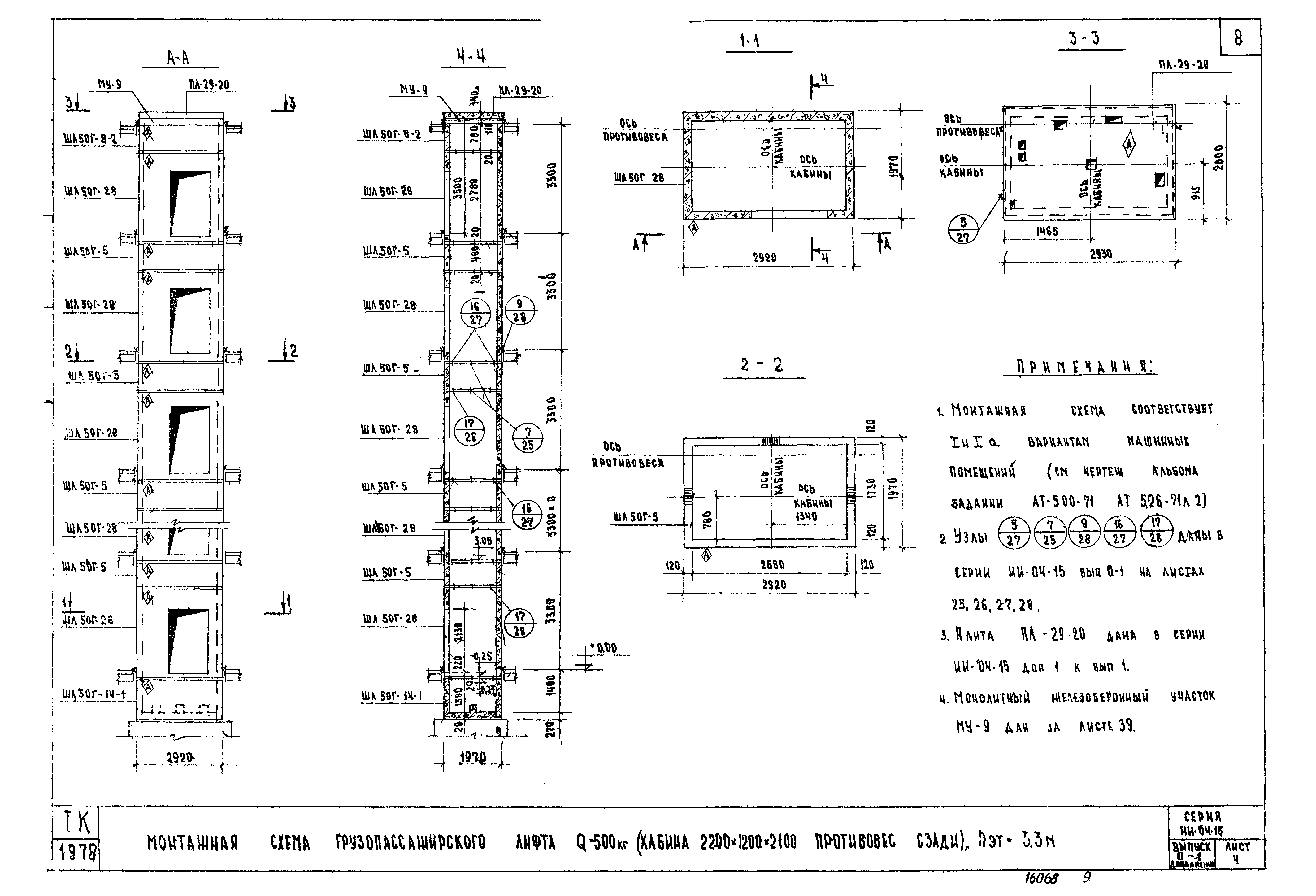
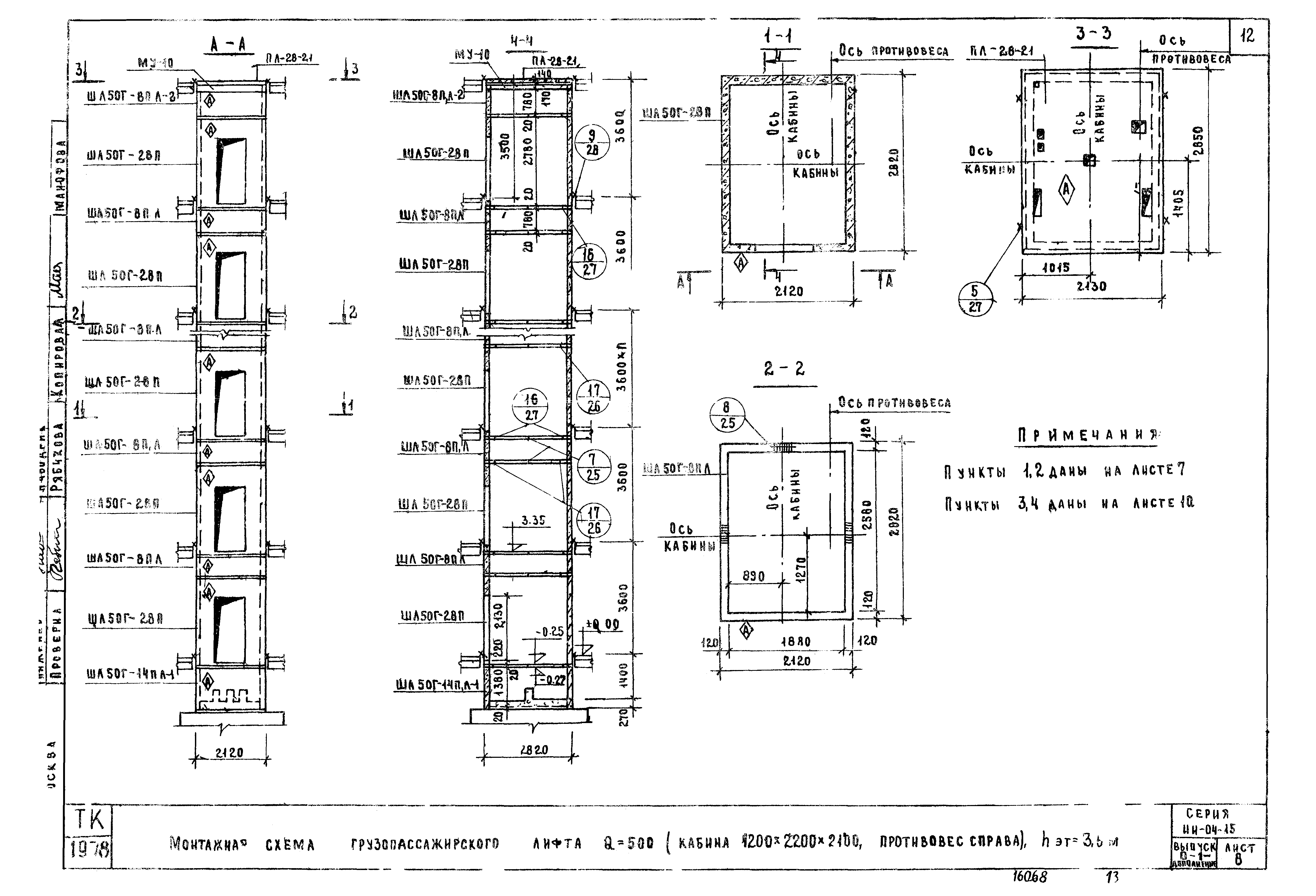
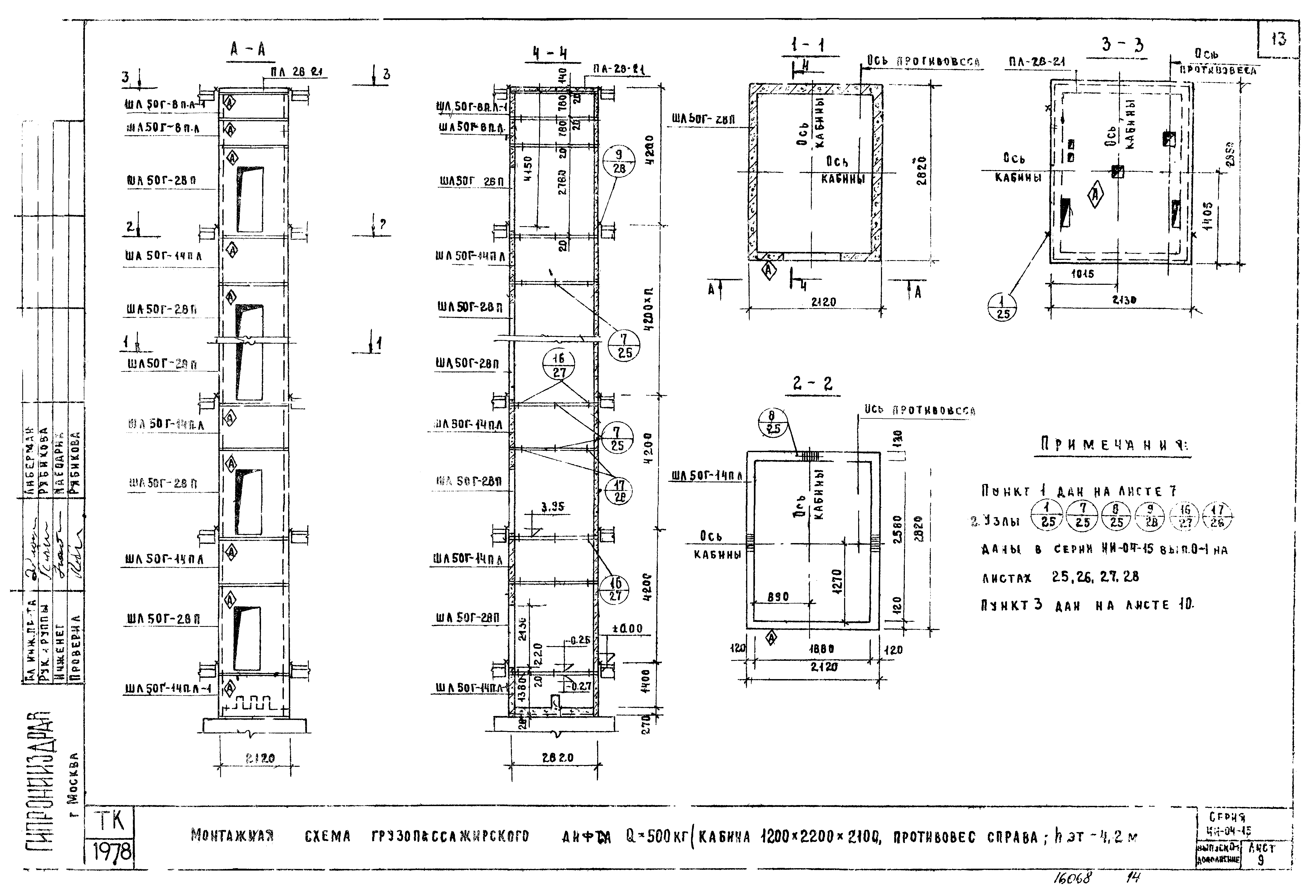
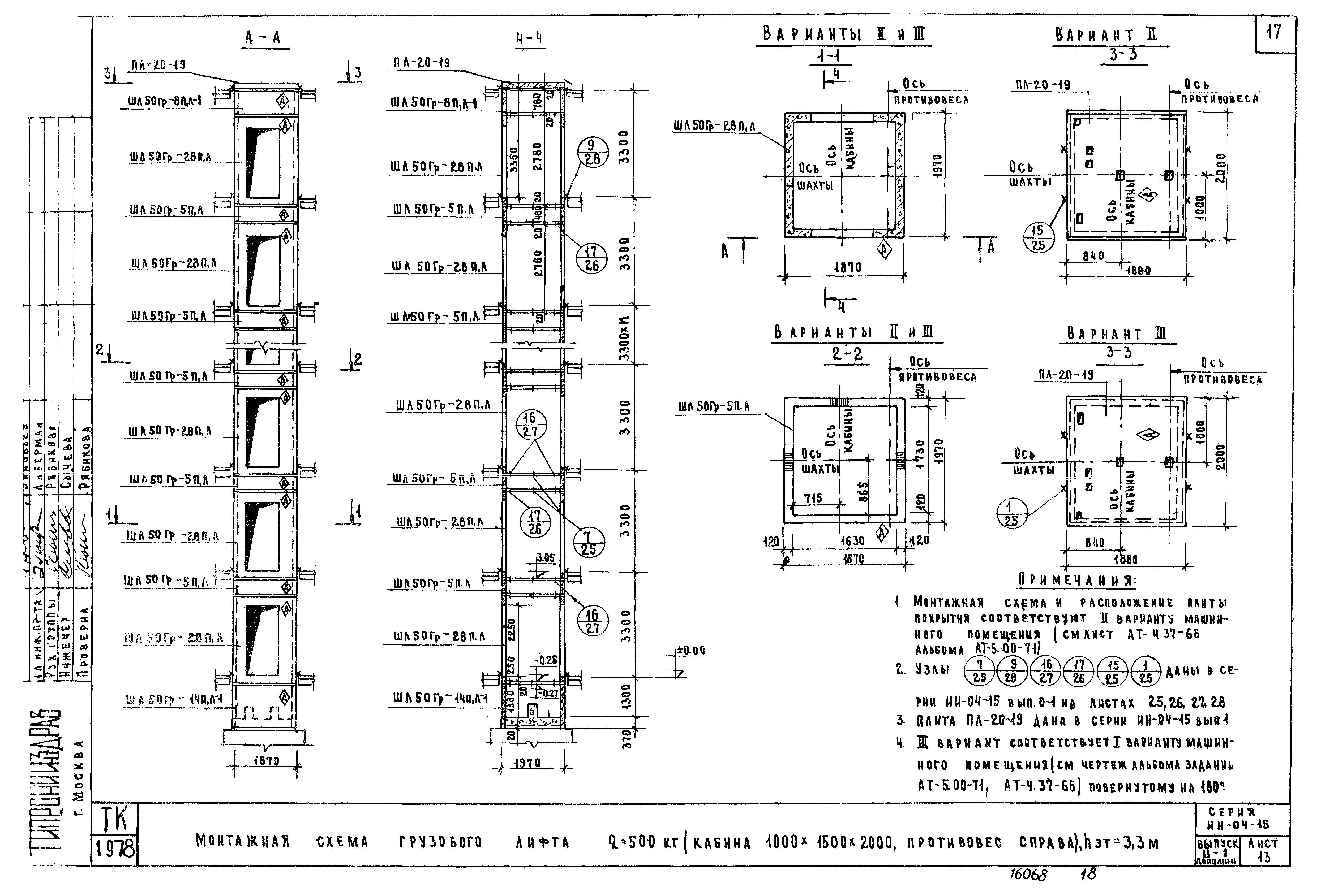
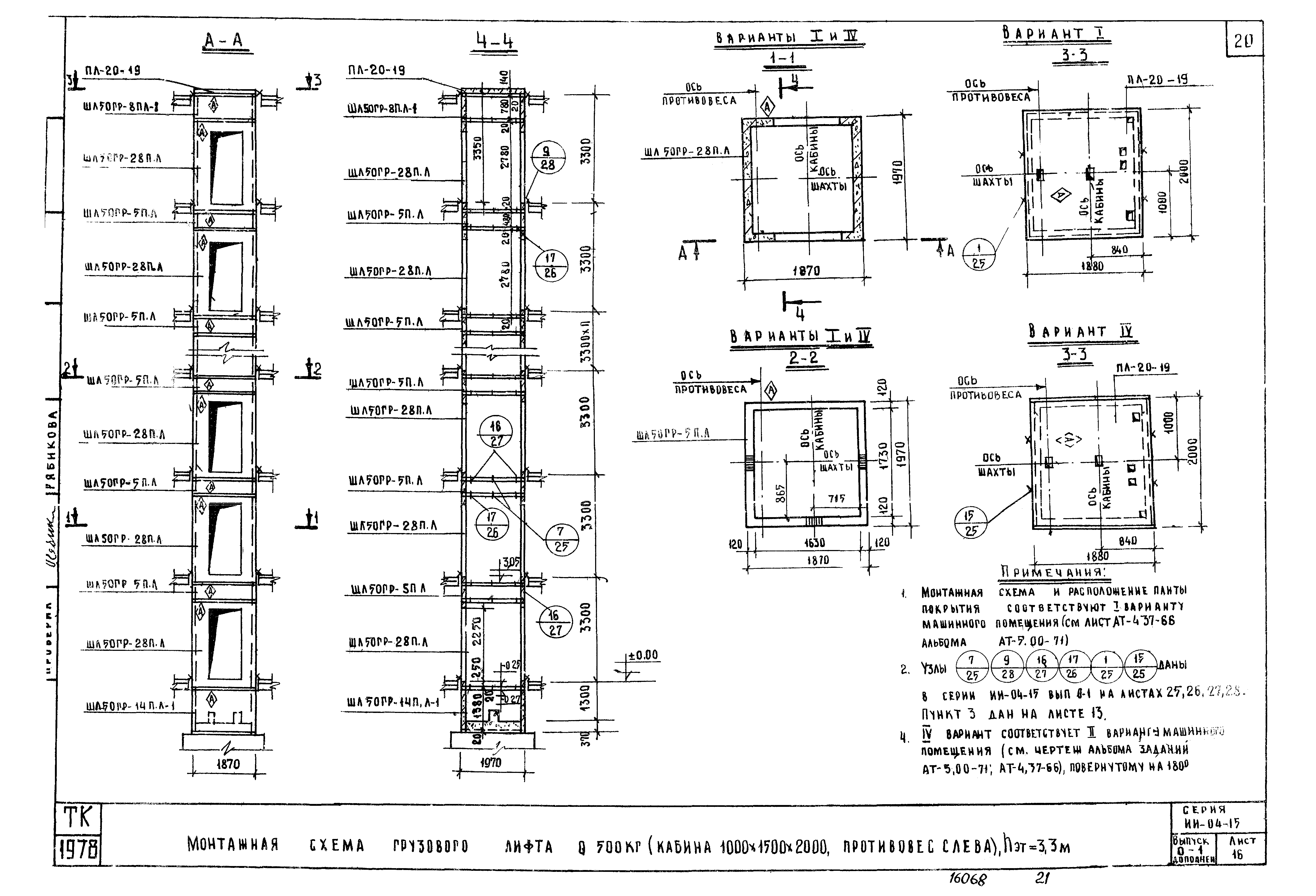
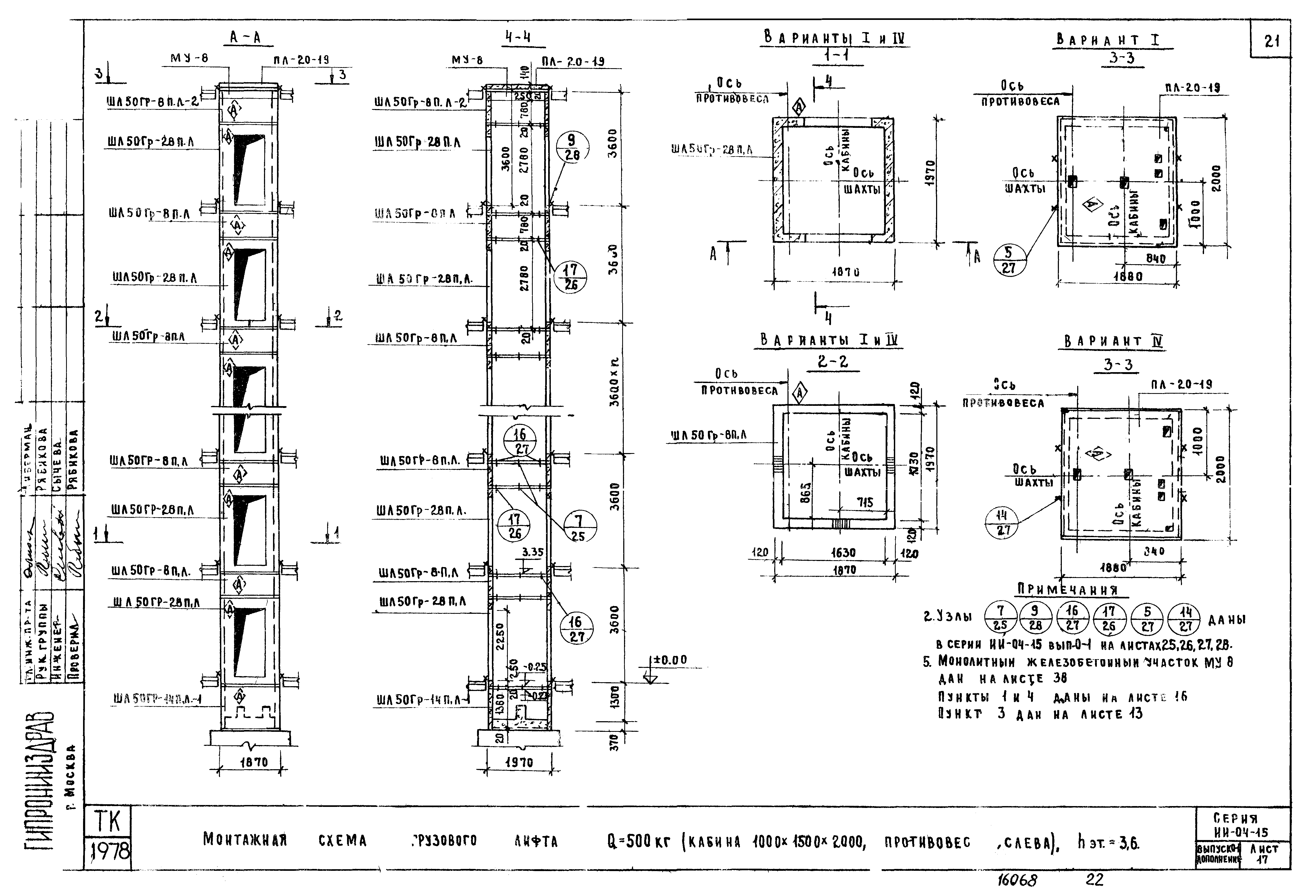
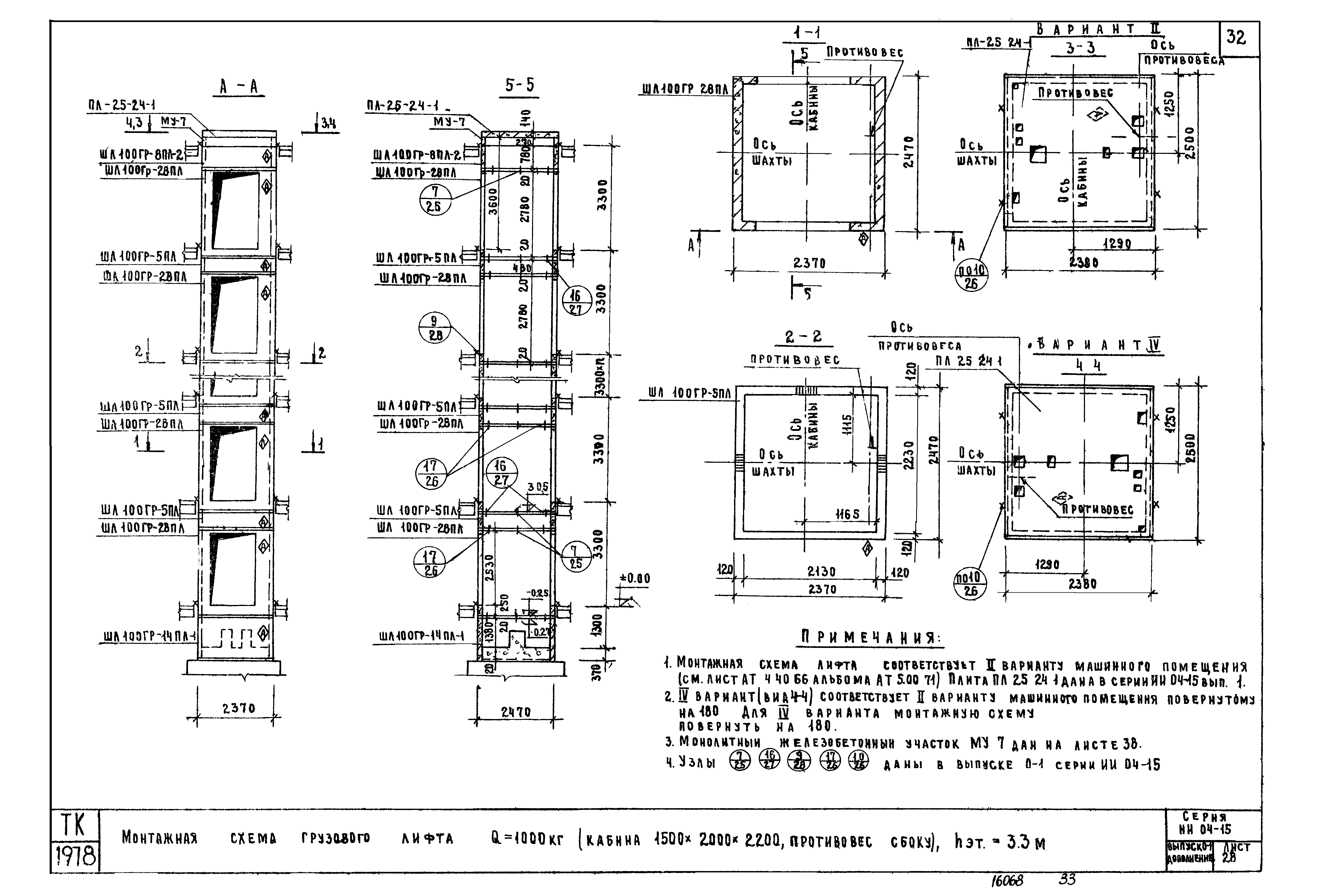
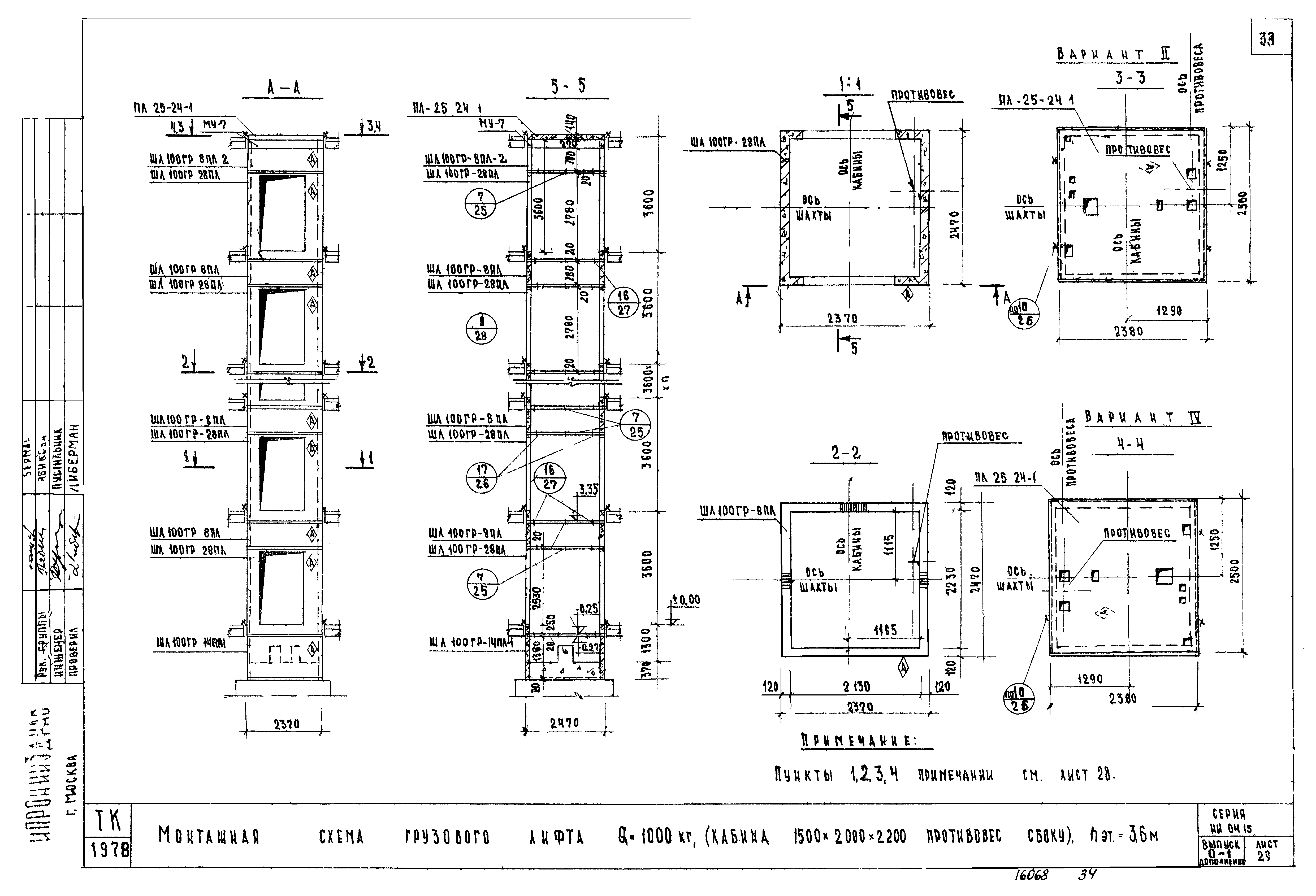
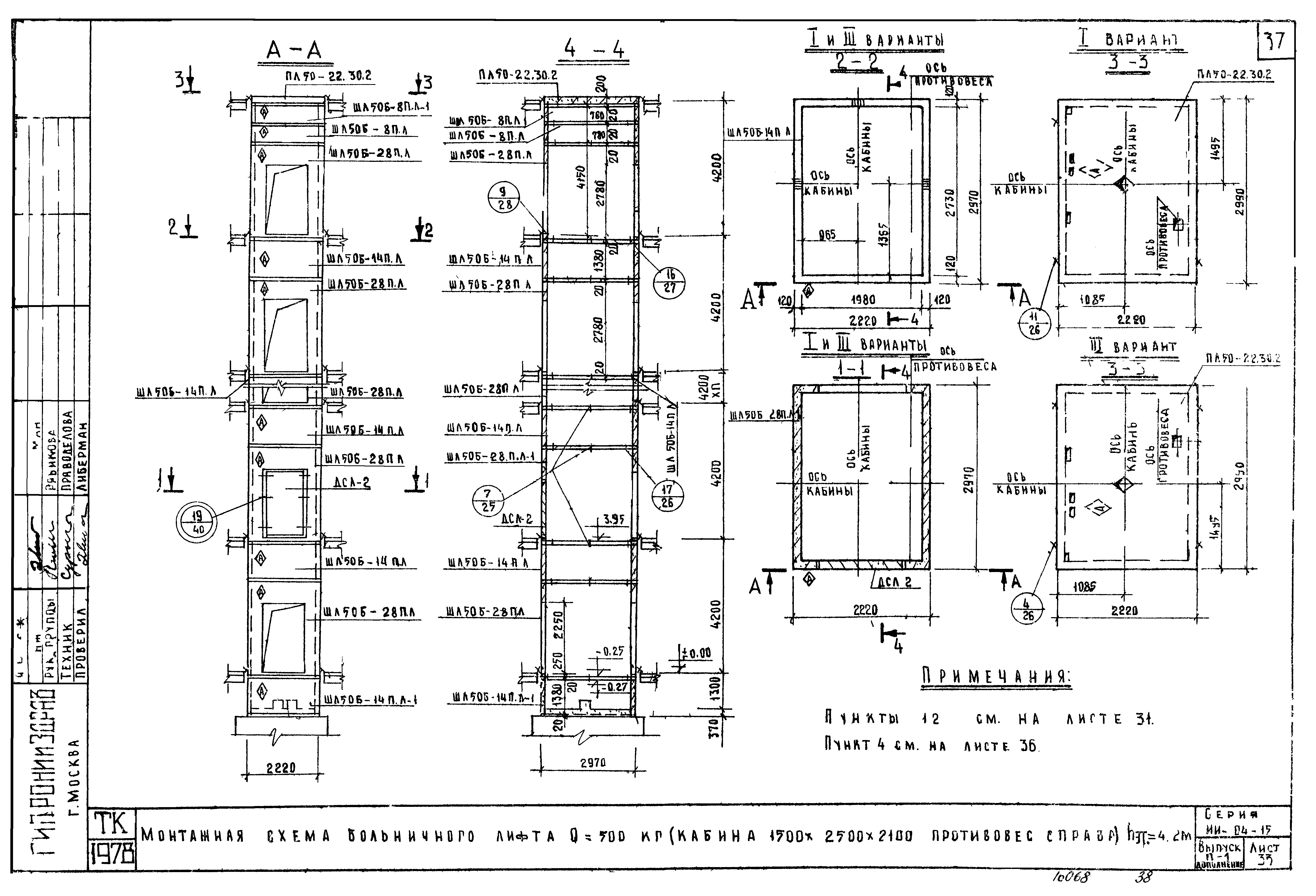
| Оглавление: | Содержание Пояснительная записка Монтажная схема пассажирского лифта Q = 1000 кг (кабина 1800х1500х2250, противовес сзади), h этажа = 3,3 м Монтажная схема пассажирского лифта Q = 1000 кг (кабина 1800х1500х2250, противовес сзади), h этажа = 3,6 м Монтажная схема пассажирского лифта Q = 1000 кг (кабина 1800х1500х2250, противовес сзади), h этажа = 4,2 м Монтажная схема грузопассажирского лифта Q = 500 кг (кабина 2200х1200х2100, противовес сзади), h этажа = 3,3 м Монтажная схема грузопассажирского лифта Q = 500 кг (кабина 2200х1200х2100, противовес сзади), h этажа = 3,6 м Монтажная схема грузопассажирского лифта Q = 500 кг (кабина 2200х1200х2100, противовес сзади), h этажа = 4,2 м Монтажная схема грузопассажирского лифта Q = 500 кг (кабина 1200х2200х2100, противовес справа), h этажа = 3,3 м Монтажная схема грузопассажирского лифта Q = 500 кг (кабина 1200х2200х2100, противовес справа), h этажа = 3,6 м Монтажная схема грузопассажирского лифта Q = 500 кг (кабина 1200х2200х2100, противовес справа), h этажа = 4,2 м Монтажная схема грузопассажирского лифта Q = 500 кг (кабина 1200х2200х2100, противовес слева), h этажа = 3,3 м Монтажная схема грузопассажирского лифта Q = 500 кг (кабина 1200х2200х2100, противовес слева), h этажа = 3,6 м Монтажная схема грузопассажирского лифта Q = 500 кг (кабина 1200х2200х2100, противовес слева), h этажа = 4,2 м Монтажная схема грузового лифта Q = 500 кг (кабина 1000х1500х2000, противовес справа), h этажа = 3,3 м Монтажная схема грузового лифта Q = 500 кг (кабина 1000х1500х2000, противовес справа), h этажа = 3,6 м Монтажная схема грузового лифта Q = 500 кг (кабина 1000х1500х2000, противовес справа), h этажа = 4,2 м Монтажная схема грузового лифта Q = 500 кг (кабина 1000х1500х2000, противовес слева), h этажа = 3,3 м Монтажная схема грузового лифта Q = 500 кг (кабина 1000х1500х2000, противовес слева), h этажа = 3,6 м Монтажная схема грузового лифта Q = 500 кг (кабина 1000х1500х2000, противовес слева), h этажа = 4,2 м Монтажная схема грузового лифта Q = 500 кг (кабина 1500х2000х2000, противовес справа), h этажа = 3,3 м Монтажная схема грузового лифта Q = 500 кг (кабина 1500х2000х2000, противовес справа), h этажа = 3,6 м Монтажная схема грузового лифта Q = 500 кг (кабина 1500х2000х2000, противовес справа), h этажа = 4,2 м Монтажная схема грузового лифта Q = 500 кг (кабина 1500х2000х2000, противовес слева), h этажа = 3,3 м Монтажная схема грузового лифта Q = 500 кг (кабина 1500х2000х2000, противовес слева), h этажа = 3,6 м Монтажная схема грузового лифта Q = 500 кг (кабина 1500х2000х2000, противовес слева), h этажа = 4,2 м Монтажная схема грузового лифта Q = 1000 кг (кабина 1500х2000х2200, противовес сбоку), h этажа = 3,3 м Монтажная схема грузового лифта Q = 1000 кг (кабина 1500х2000х2200, противовес сбоку), h этажа = 3,6 м Монтажная схема грузового лифта Q = 1000 кг (кабина 1500х2000х2200, противовес сбоку), h этажа = 4,2 м Монтажная схема грузового лифта Q = 1000 кг (кабина 1500х2000х2200, противовес сбоку), h этажа = 3,3 м Монтажная схема грузового лифта Q = 1000 кг (кабина 1500х2000х2200, противовес сбоку), h этажа = 3,6 м Монтажная схема грузового лифта Q = 1000 кг (кабина 1500х2000х2200, противовес сбоку), h этажа = 4,2 м Монтажная схема больничного лифта Q = 500 кг (кабина 1500х2500х2100, противовес справа), h этажа = 3,3 м Монтажная схема больничного лифта Q = 500 кг (кабина 1500х2500х2100, противовес справа), h этажа = 3,6 м Монтажная схема больничного лифта Q = 500 кг (кабина 1500х2500х2100, противовес справа), h этажа = 4,2 м Монтажная схема больничного лифта Q = 500 кг (кабина 1500х2500х2100, противовес слева), h этажа = 3,3 м Монтажная схема больничного лифта Q = 500 кг (кабина 1500х2500х2100, противовес слева), h этажа = 3,6 м Монтажная схема больничного лифта Q = 500 кг (кабина 1500х2500х2100, противовес слева), h этажа = 4,2 м Узел 18. Монолитный железобетонный участок МУ-6 Монолитные железобетонные участки МУ-7, МУ-8, МУ-11 Монолитные железобетонные участки МУ-9, МУ-10 Фрагменты монтажных схем грузовых лифтов, противовес справа. Узел 19 Фрагменты монтажных схем грузовых лифтов, противовес слева |
| Разработан: | ГипроНИИздрав Минздрава СССР |
| Утверждён: | 14.03.1979 Госгражданстрой (Gosgrazhdanstroy 57) |
| Чем заменён: |














































