Скачать Серия ОВ-03-31 Бойлерные установки для центральных систем горячего водоснабжения. Пароводяные подогревательные агрегаты. Рабочие чертежиДата актуализации: 01.01.2021
|
| Обозначение: | Серия ОВ-03-31 |
| Обозначение англ: | Series ОВ-03-31 |
| Статус: | не действует |
| Название рус.: | Бойлерные установки для центральных систем горячего водоснабжения. Пароводяные подогревательные агрегаты. Рабочие чертежи |
| Дата добавления в базу: | 01.09.2013 |
| Дата актуализации: | 01.01.2021 |
| Дата введения: | 12.12.1959 |
| Дата окончания срока действия: | 01.07.1987 |
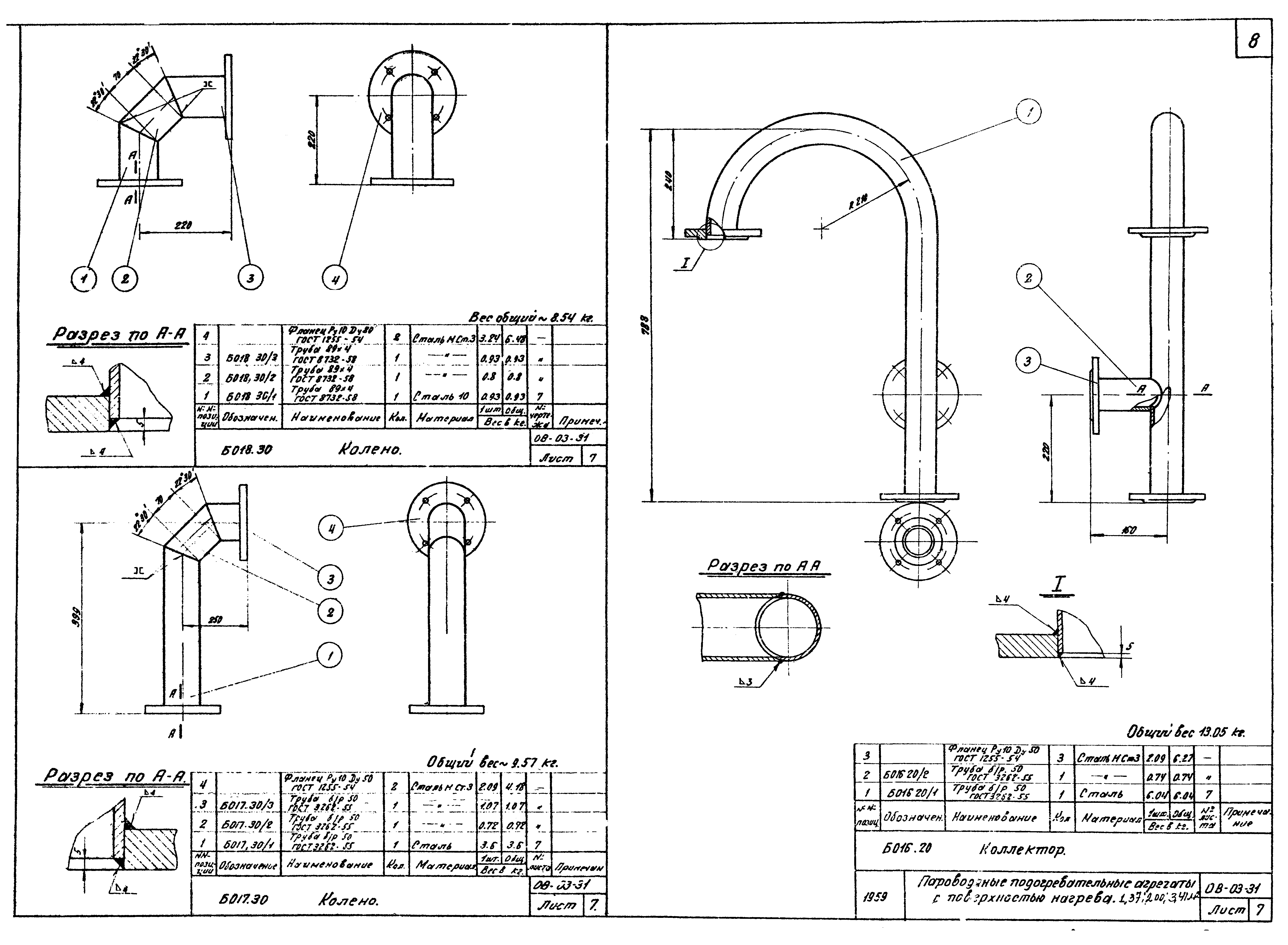
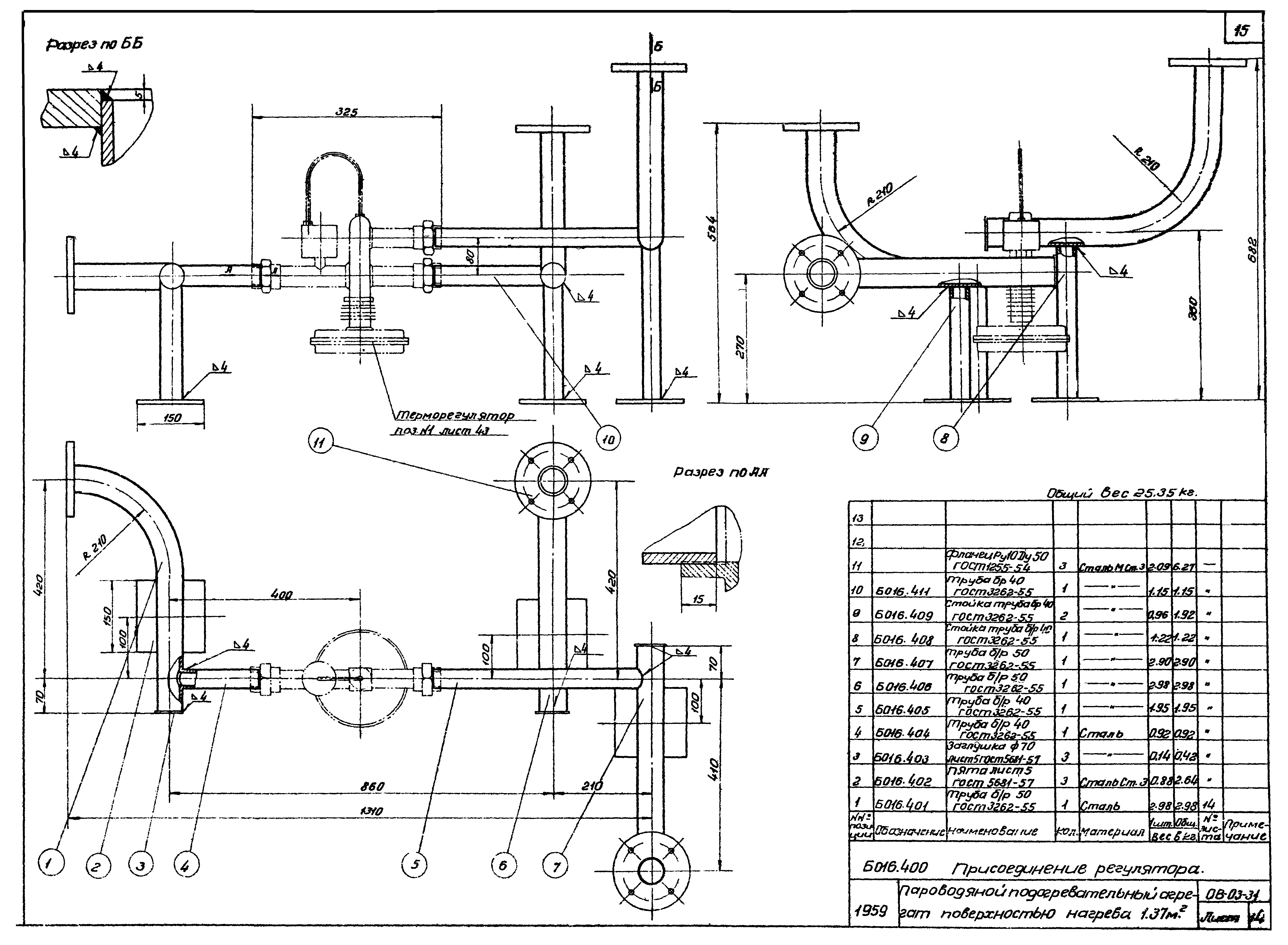
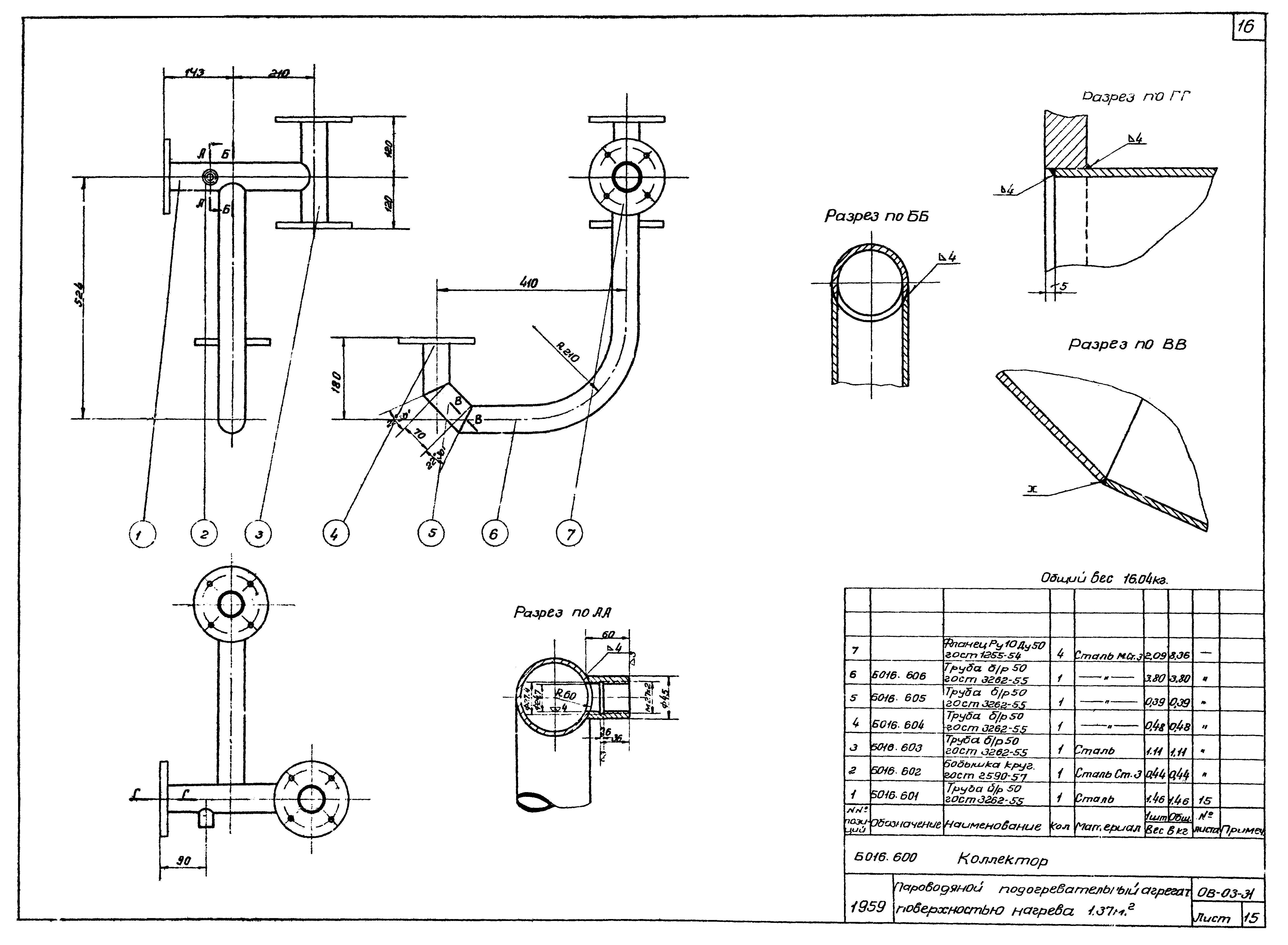
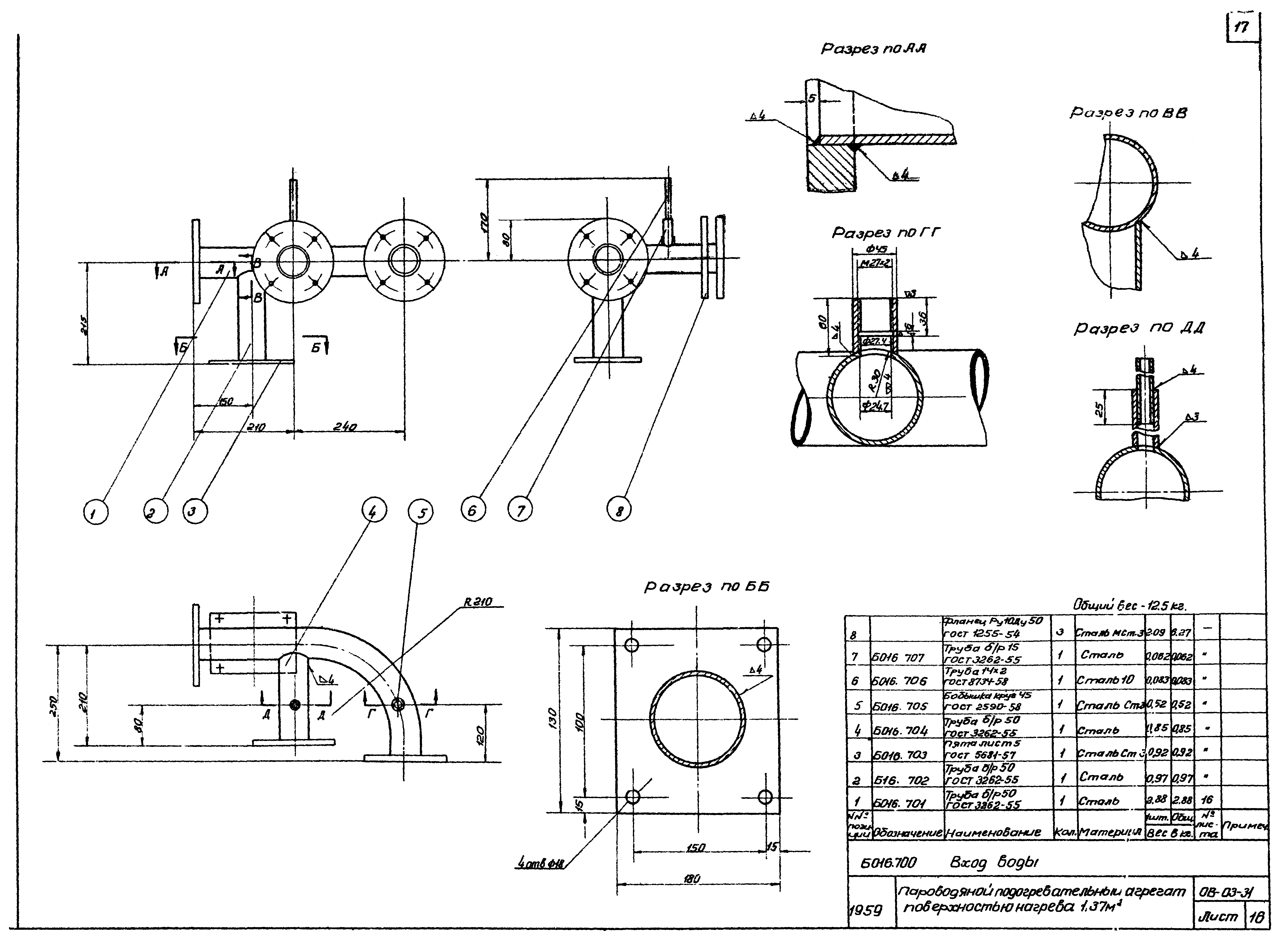
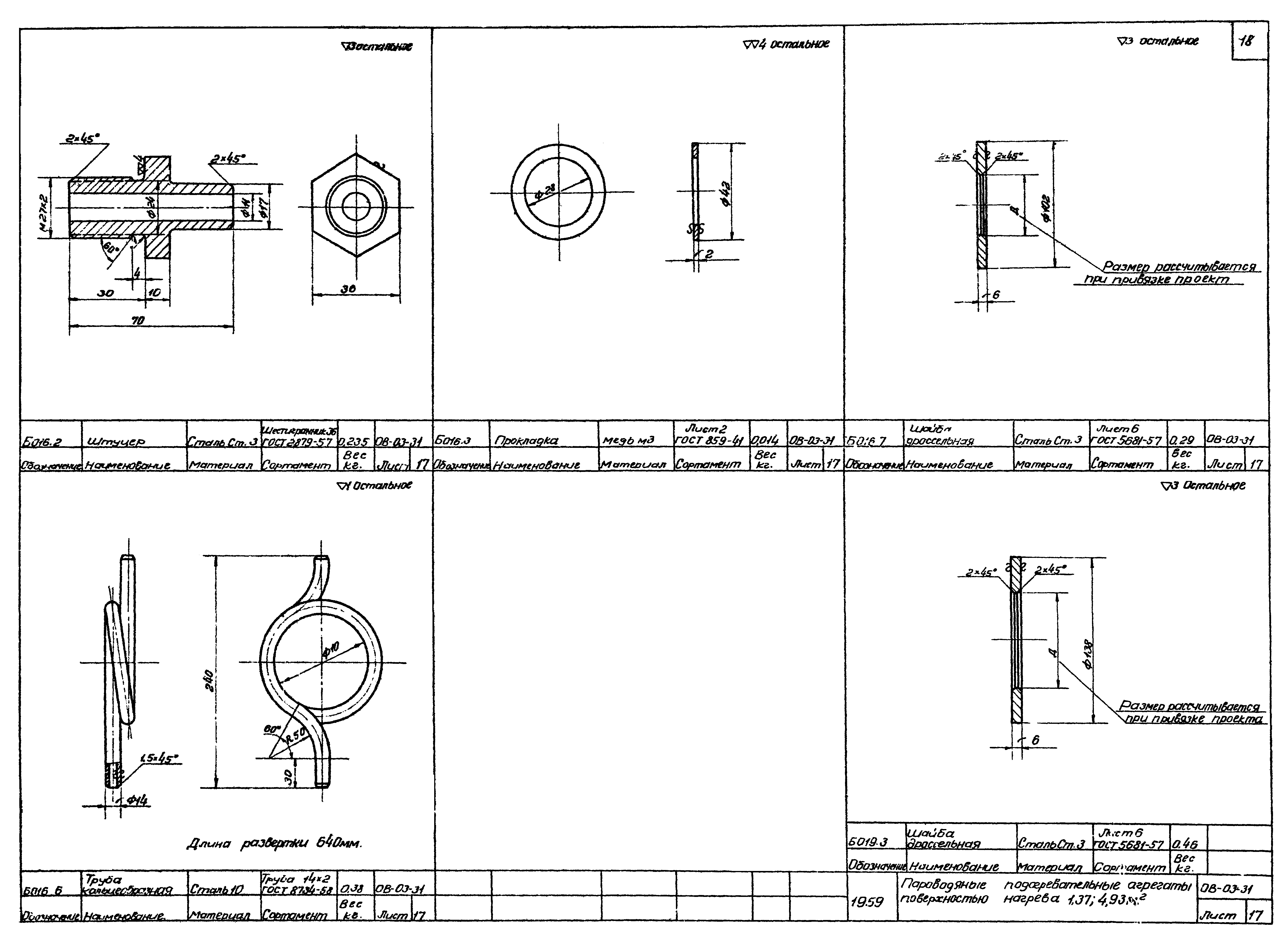
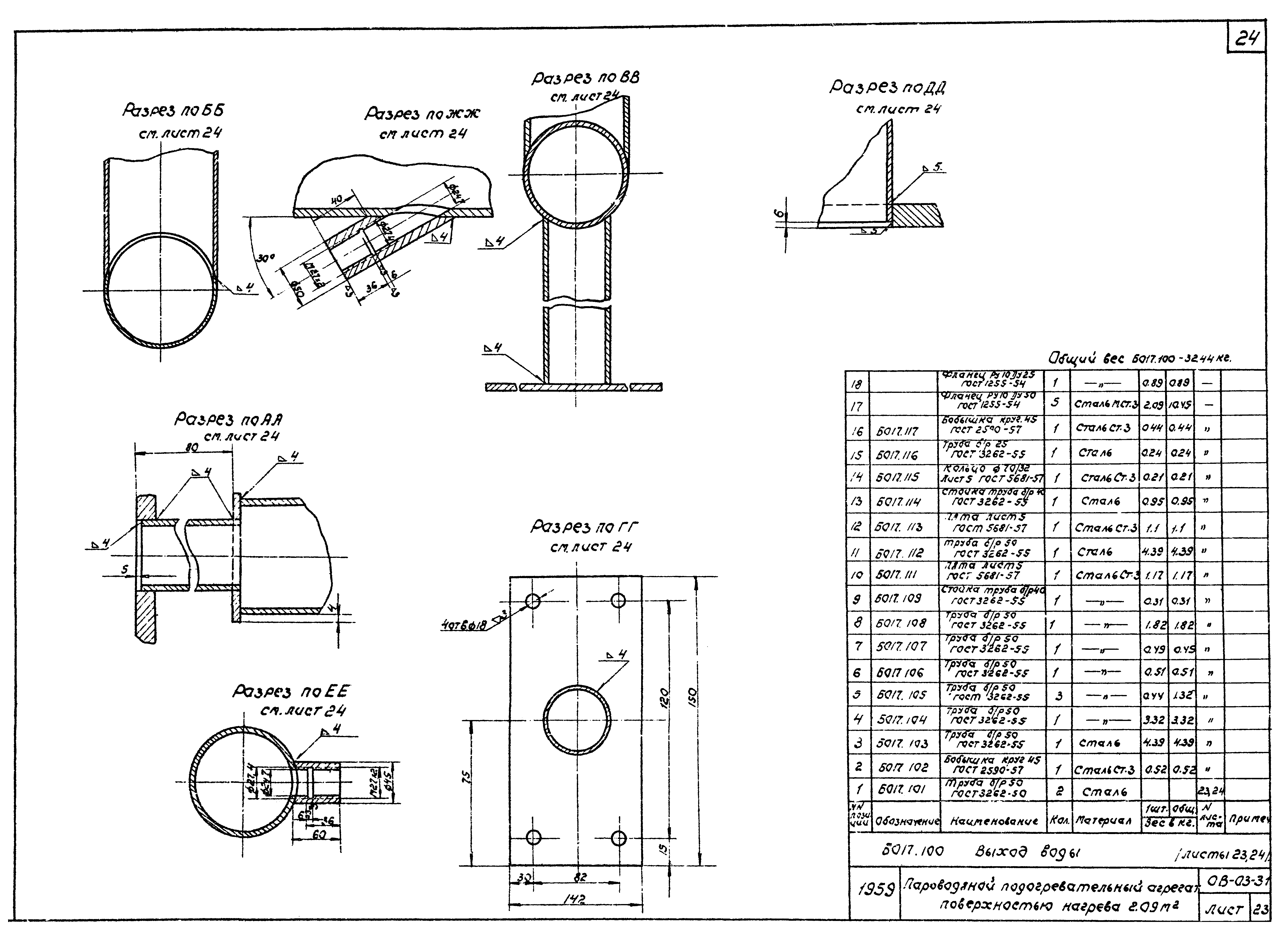
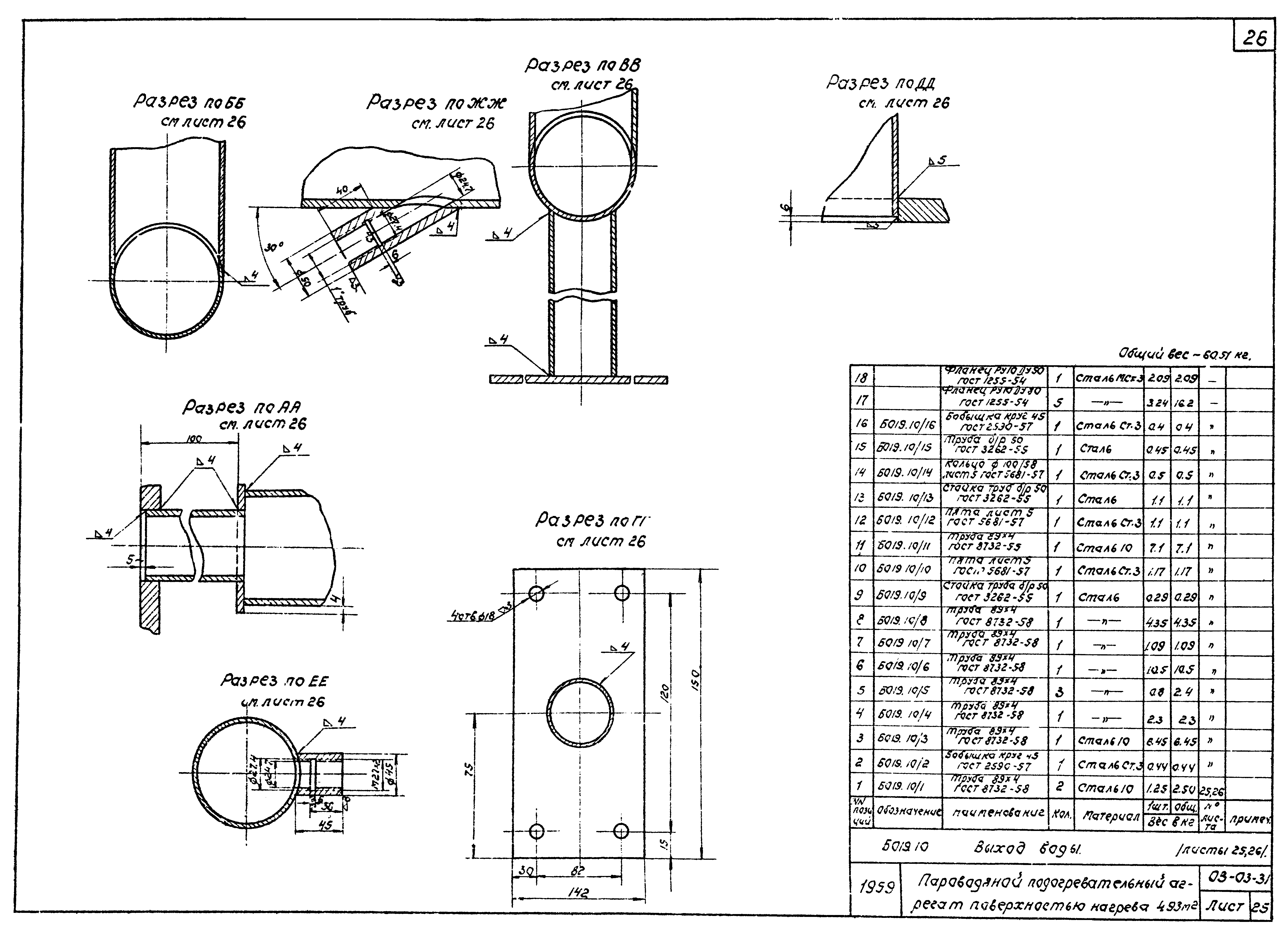
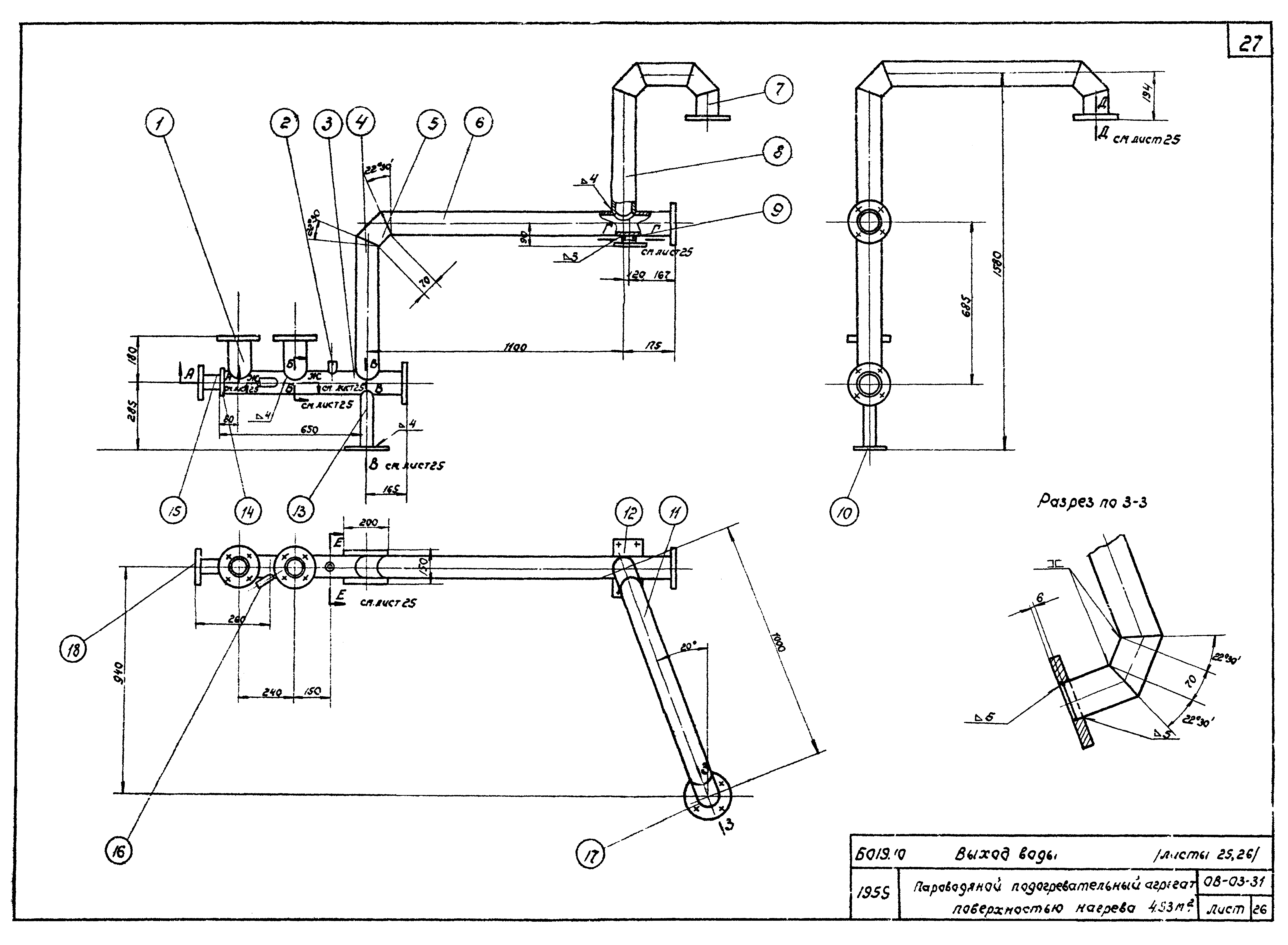
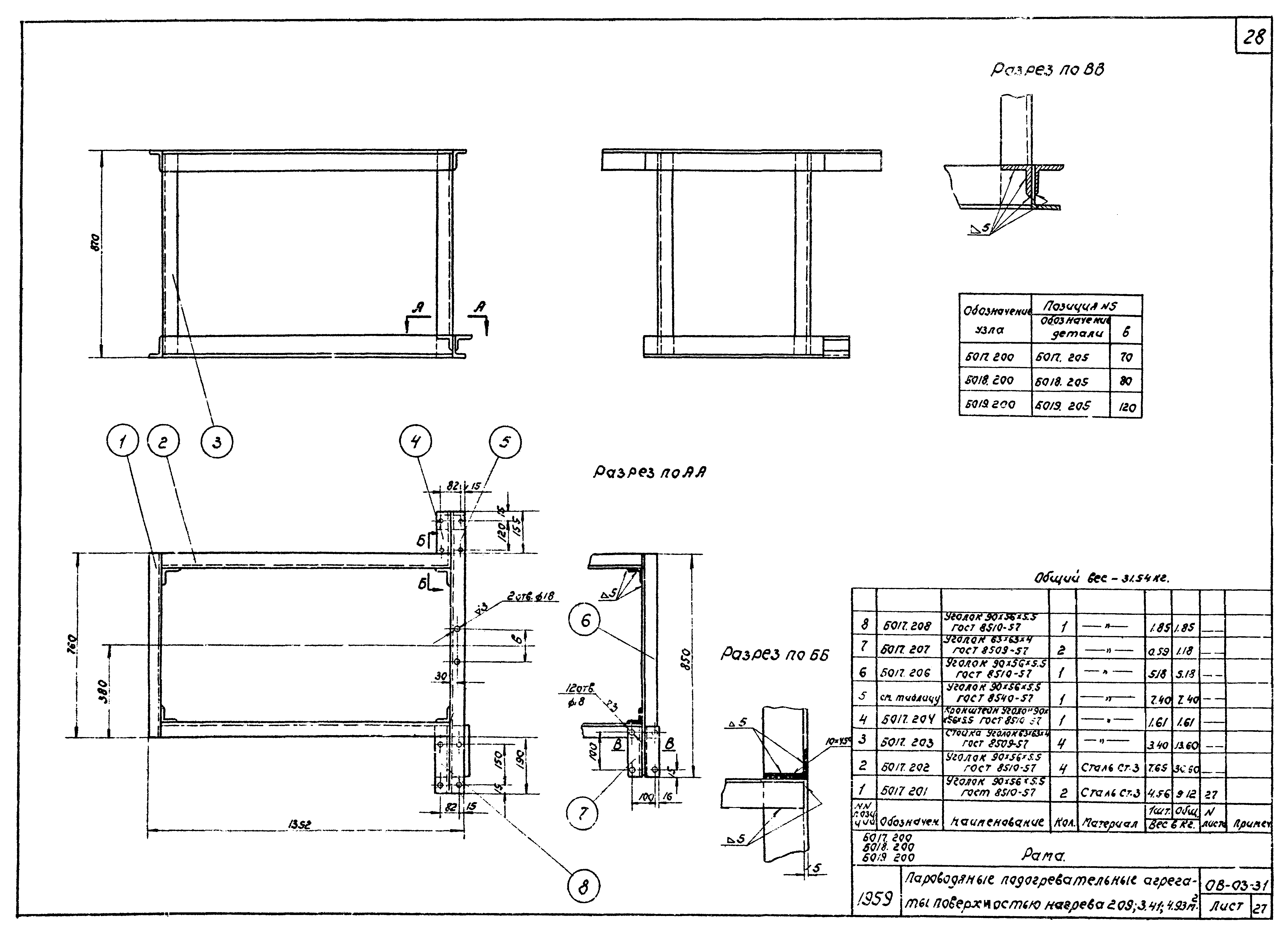
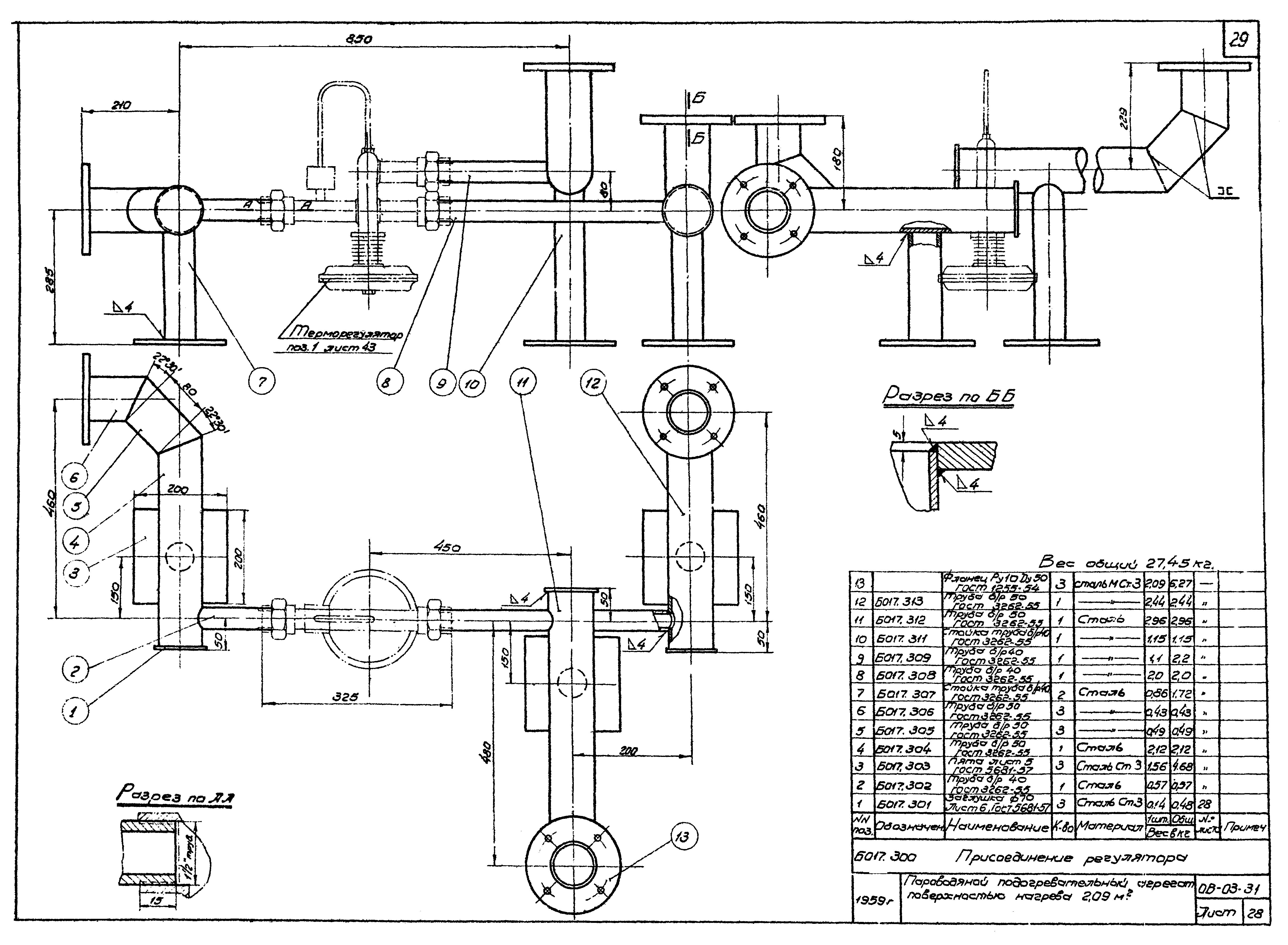
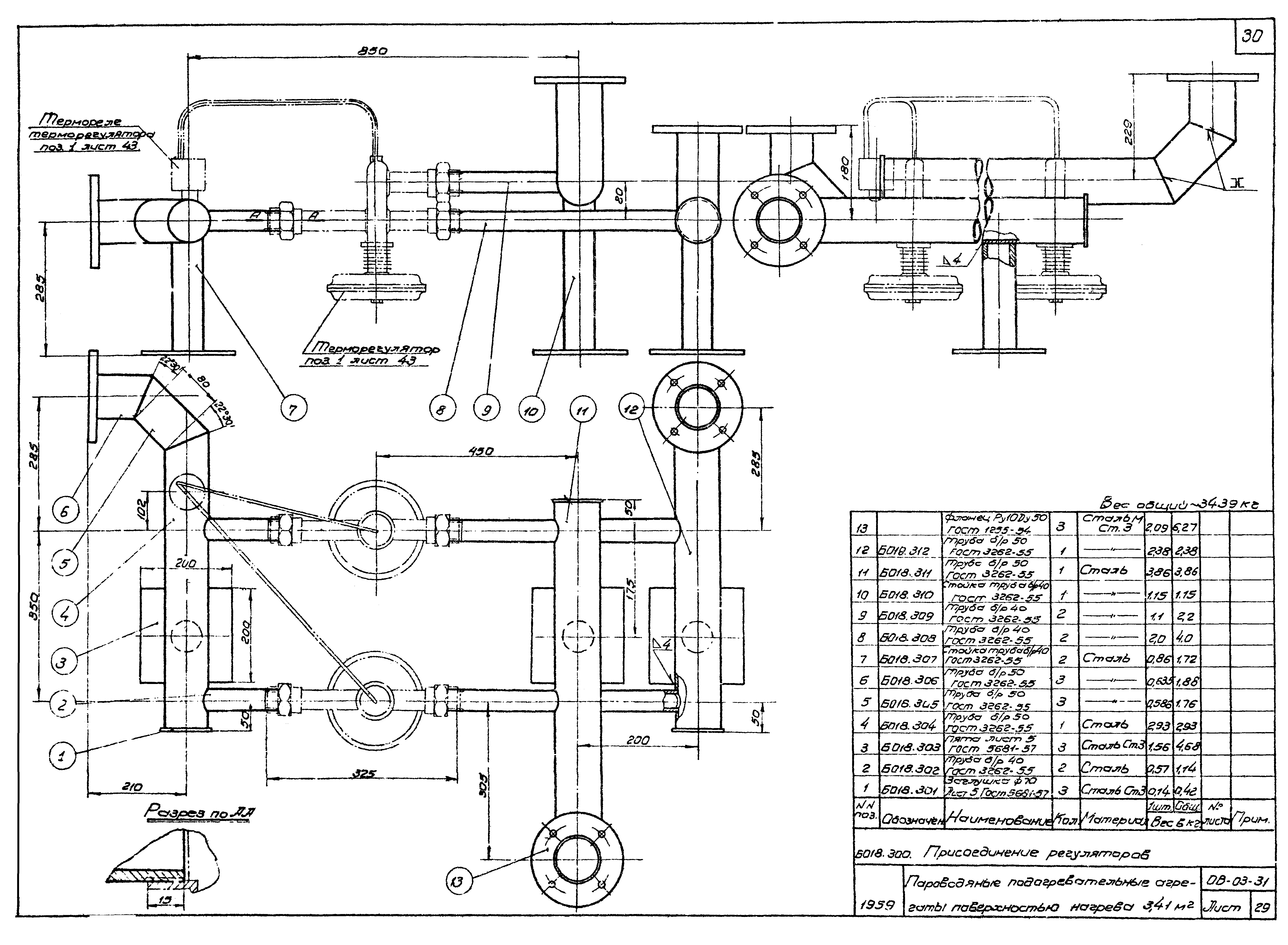
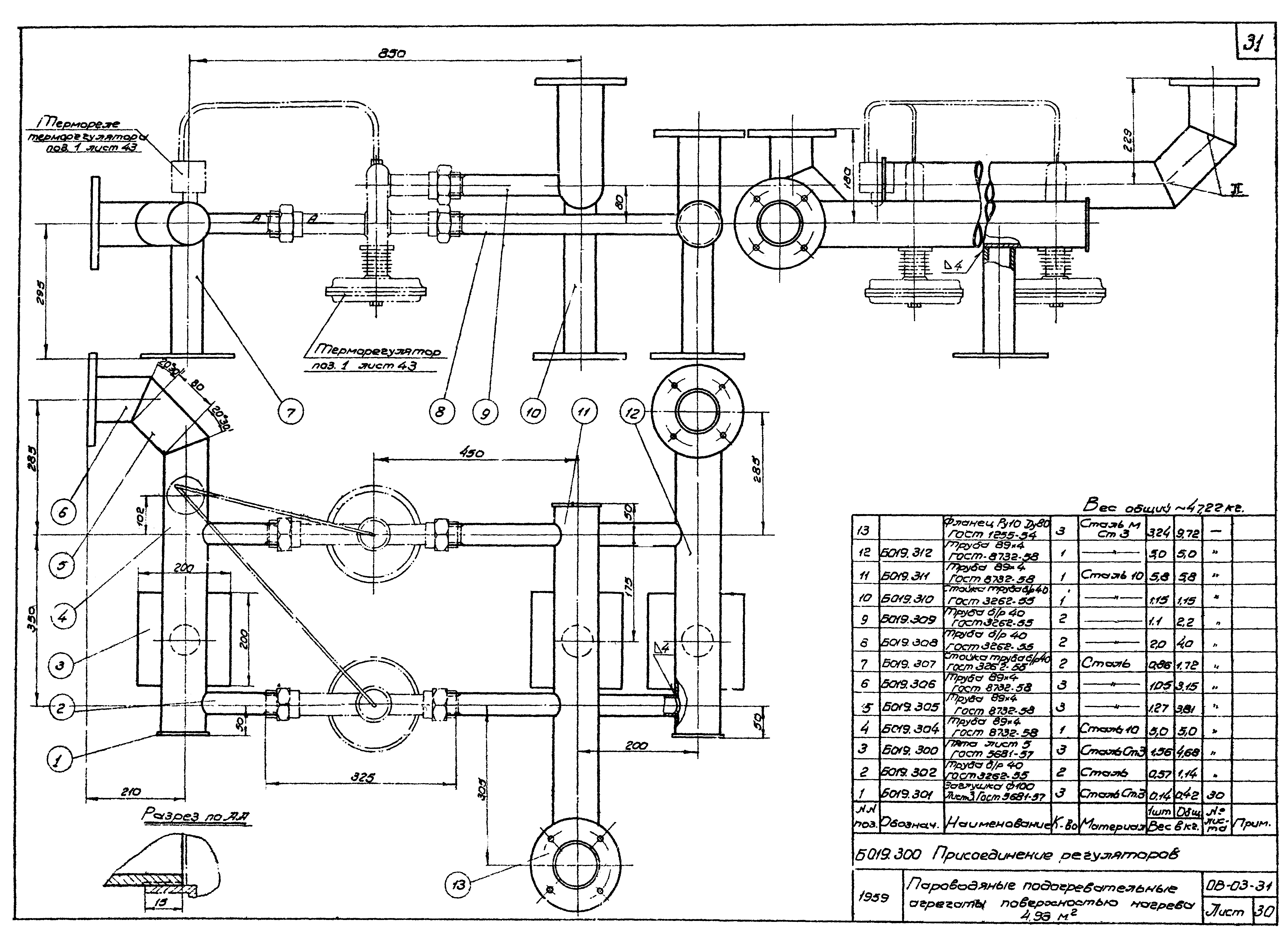
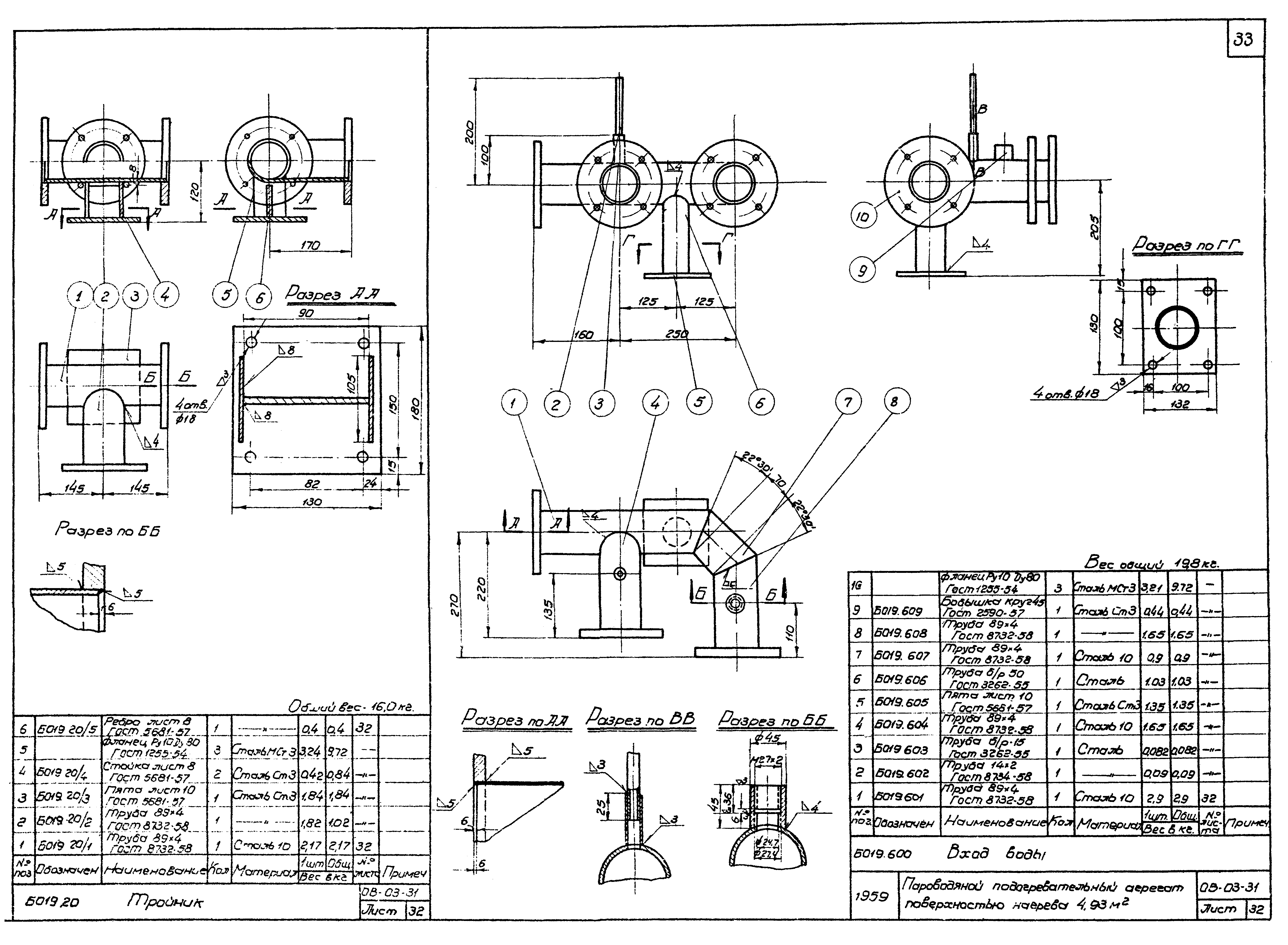
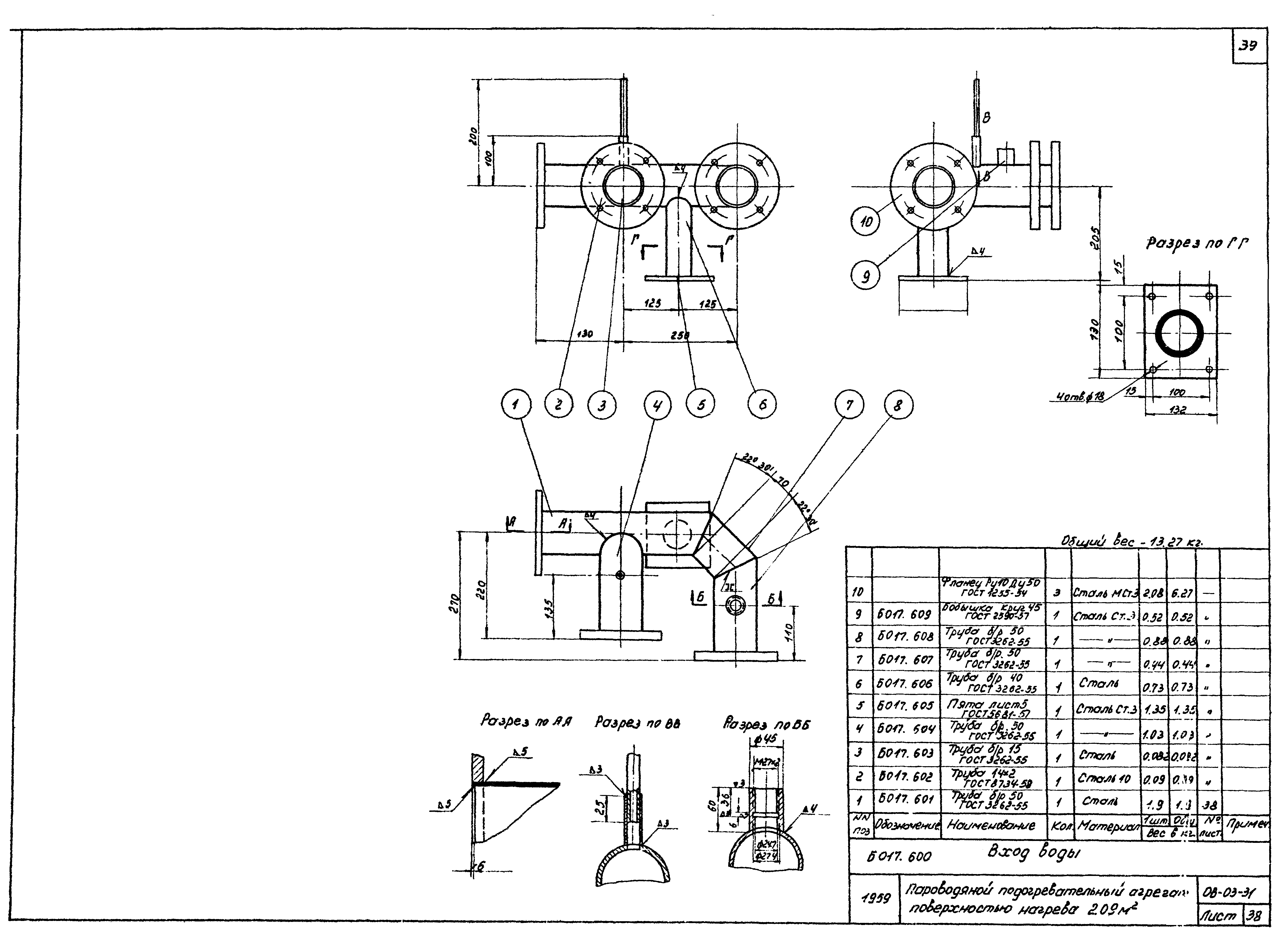
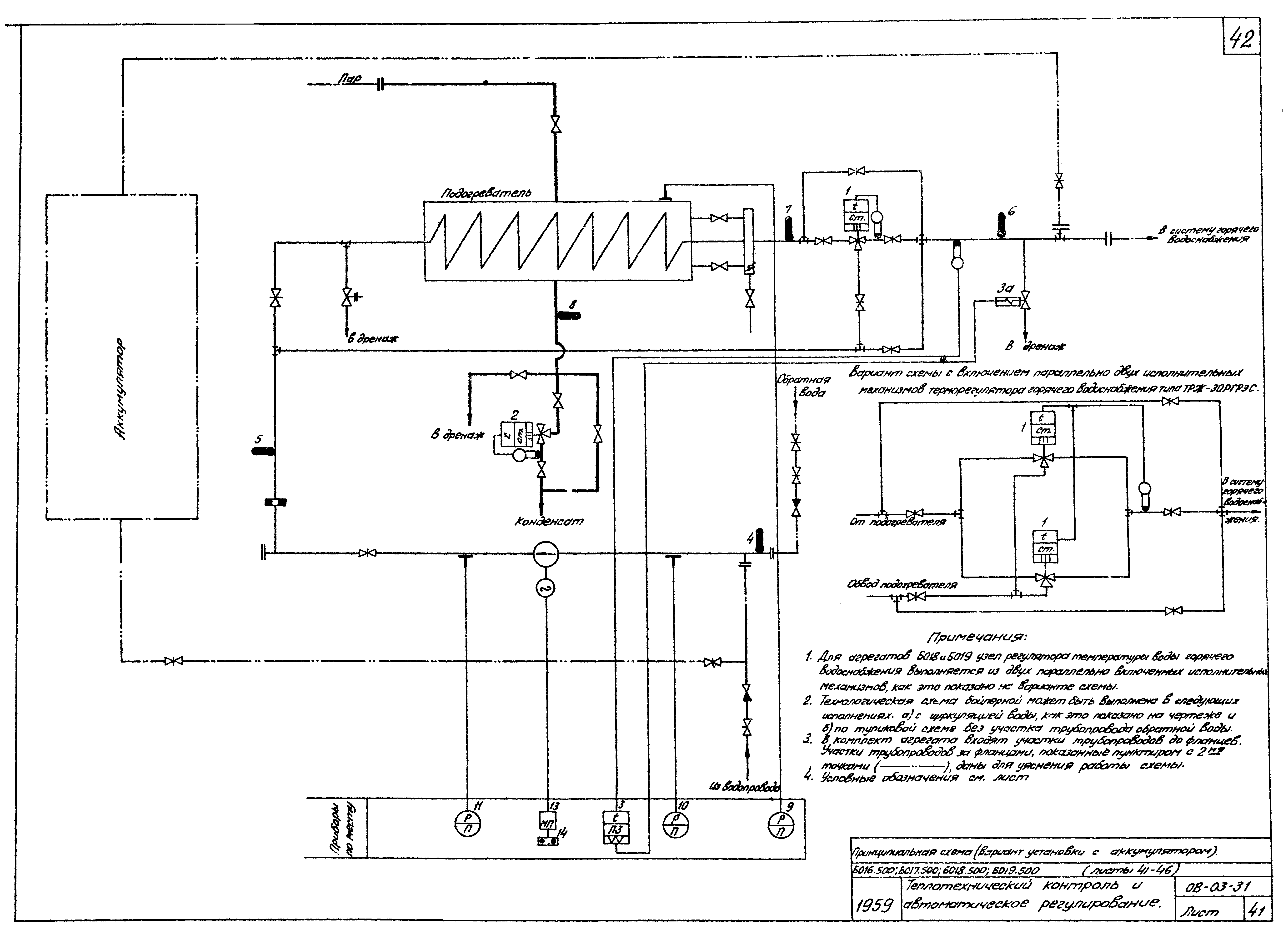
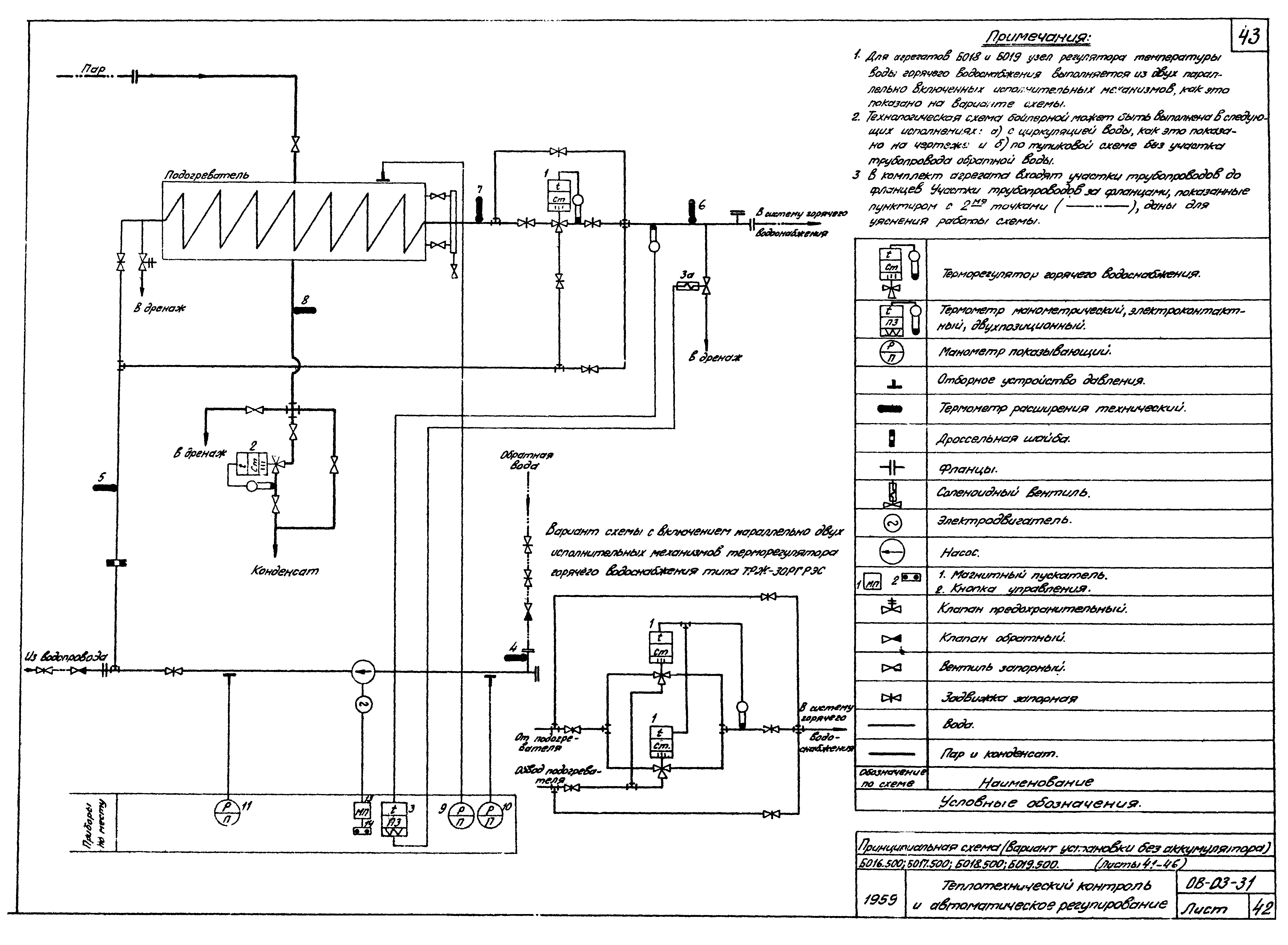
| Оглавление: | Титульный лист Содержание альбома Пояснительная записка Пароводяной подогревательный агрегат поверхностью нагрева 1,37 кв. м (Общий вид) Пароводяной подогревательный агрегат поверхностью нагрева 1,37 кв. м (Узлы) Пароводяной подогревательный агрегат поверхностью нагрева 1,37; 2,09; 3,41 кв. м (Детали) Пароводяной подогревательный агрегат поверхностью нагрева 1,37 кв. м (Детали) Пароводяной подогревательный агрегат поверхностью нагрева 1,37; 3,41; 4,93 кв. м (Линия конденсата) Пароводяной подогревательный агрегат поверхностью нагрева 1,37 кв. м (Выход воды) Пароводяной подогревательный агрегат поверхностью нагрева 1,37 кв. м (Рама) Пароводяной подогревательный агрегат поверхностью нагрева 1,37 кв. м (Присоединение регулятора) Пароводяной подогревательный агрегат поверхностью нагрева 1,37 кв. м (Коллектор) Пароводяной подогревательный агрегат поверхностью нагрева 1,37 кв. м (Вход воды) Пароводяной подогревательный агрегат поверхностью нагрева 1,37 кв. м (Детали) Пароводяные подогревательные агрегаты поверхностью нагрева 2,09; 3,41; 4,93 кв. м (Общий вид) Пароводяной подогревательный агрегат поверхностью нагрева 2,09 кв. м (Общий вид) Пароводяной подогревательный агрегат поверхностью нагрева 3,41 кв. м (Общий вид) Пароводяной подогревательный агрегат поверхностью нагрева 4,93 кв. м (Общий вид) Пароводяной подогревательный агрегат поверхностью нагрева 2,09 кв. м (Выход воды) Пароводяной подогревательный агрегат поверхностью нагрева 4,93 кв. м (Выход воды) Пароводяные подогревательные агрегаты поверхностью нагрева 2,09; 3,41; 4,93 кв. м (Рама) Пароводяной подогревательный агрегат поверхностью нагрева 2,09 кв. м (Присоединение регулятора) Пароводяной подогревательный агрегат поверхностью нагрева 3,41 кв. м (Присоединение регулятора) Пароводяной подогревательный агрегат поверхностью нагрева 4,93 кв. м (Присоединение регулятора) Пароводяные подогревательные агрегаты поверхностью нагрева 2,09; 4,93 кв. м (Узлы) Пароводяной подогревательный агрегат поверхностью нагрева 4,93 кв. м (Узлы) Пароводяной подогревательный агрегат поверхностью нагрева 2,09 кв. м (Коллектор) Пароводяной подогревательный агрегат поверхностью нагрева 4,93 кв. м (Коллектор) Пароводяной подогревательный агрегат поверхностью нагрева 4,93 кв. м (Детали) Пароводяной подогревательный агрегат поверхностью нагрева 2,09 кв. м (Коллектор) Пароводяной подогревательный агрегат поверхностью нагрева 4,93 кв. м (Коллектор) Пароводяной подогревательный агрегат поверхностью нагрева 2,09 кв. м (Вход воды) Виброизолирующее основание для насоса типа 1 1/2 К-6б Теплотехнический контроль и автоматическое регулирование Противокоррозионная установка с магномассовыми фильтрами Дв = 1000 мм |
| Разработан: | Сантехпроект Госстроя СССР |
| Утверждён: | 12.12.1959 ГПИ Сантехпроект (445) |


















































