Скачать Типовой проект 709-4-10.89 Альбом 1. Пояснительная записка. Архитектурные решения. Конструкции железобетонные. Конструкции металлические. Технология производства. Силовое электрооборудование. Электрическое освещение. Автоматизация. Связь и сигнализация. Отопление и вентиляция. Внутренние водопровод и канализацияДата актуализации: 01.01.2021
|
| Обозначение: | Типовой проект 709-4-10.89 |
| Обозначение англ: | 709-4-10.89 |
| Статус: | не определен законодательством |
| Название рус.: | Альбом 1. Пояснительная записка. Архитектурные решения. Конструкции железобетонные. Конструкции металлические. Технология производства. Силовое электрооборудование. Электрическое освещение. Автоматизация. Связь и сигнализация. Отопление и вентиляция. Внутренние водопровод и канализация |
| Дата добавления в базу: | 01.09.2013 |
| Дата актуализации: | 01.01.2021 |
| Дата введения: | 19.04.1989 |
| Дата окончания срока действия: | 30.06.2003 |
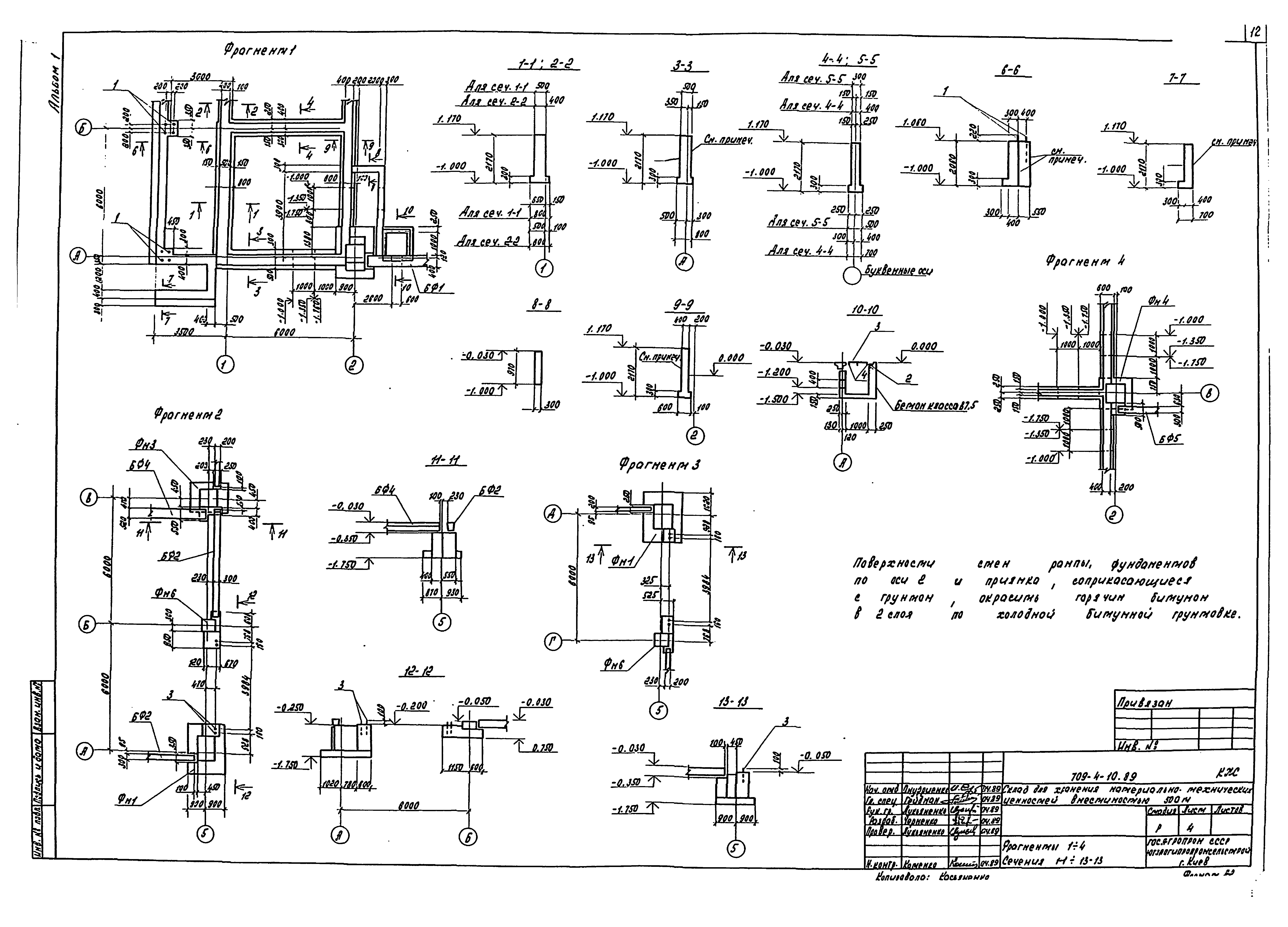
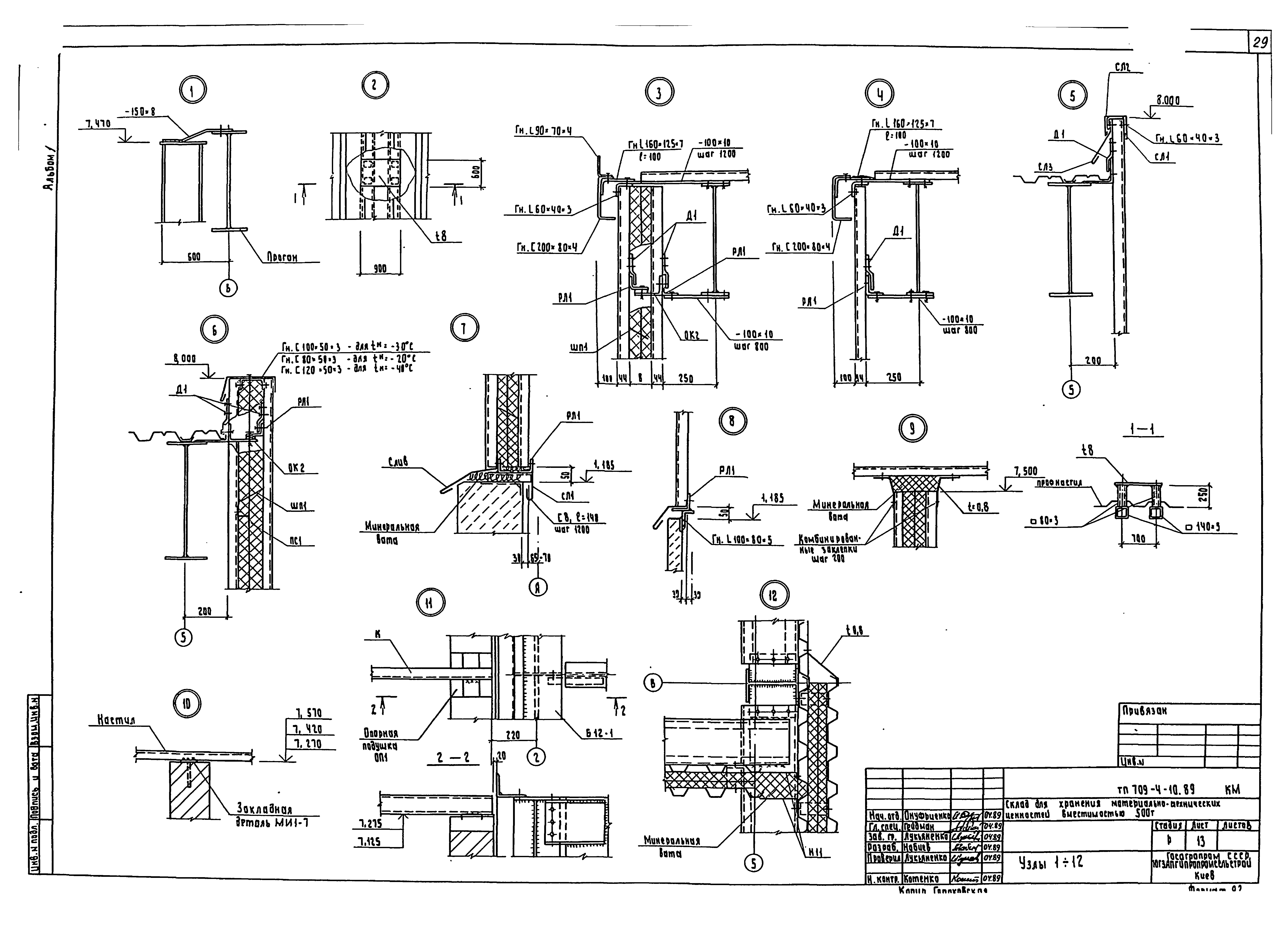
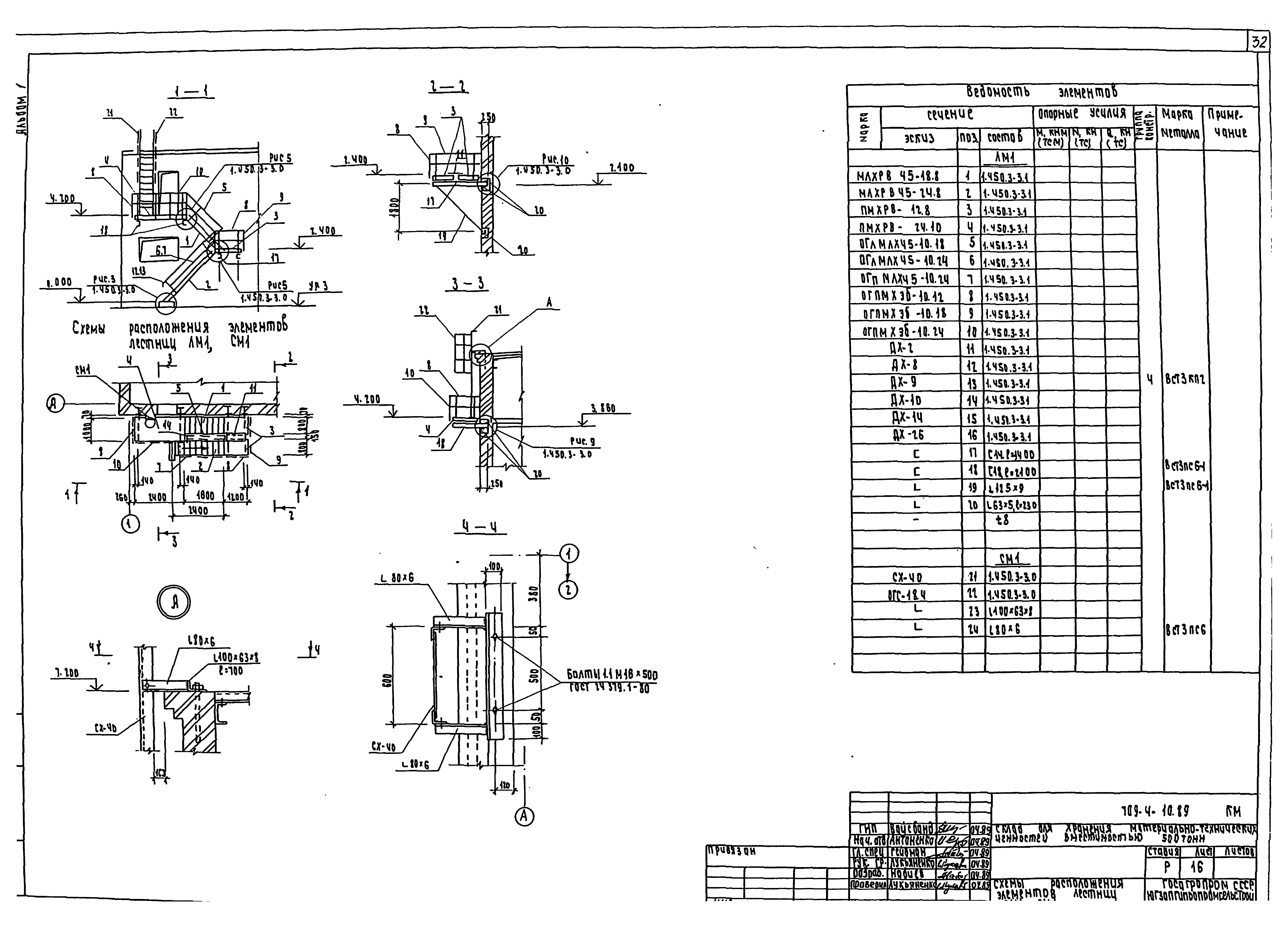
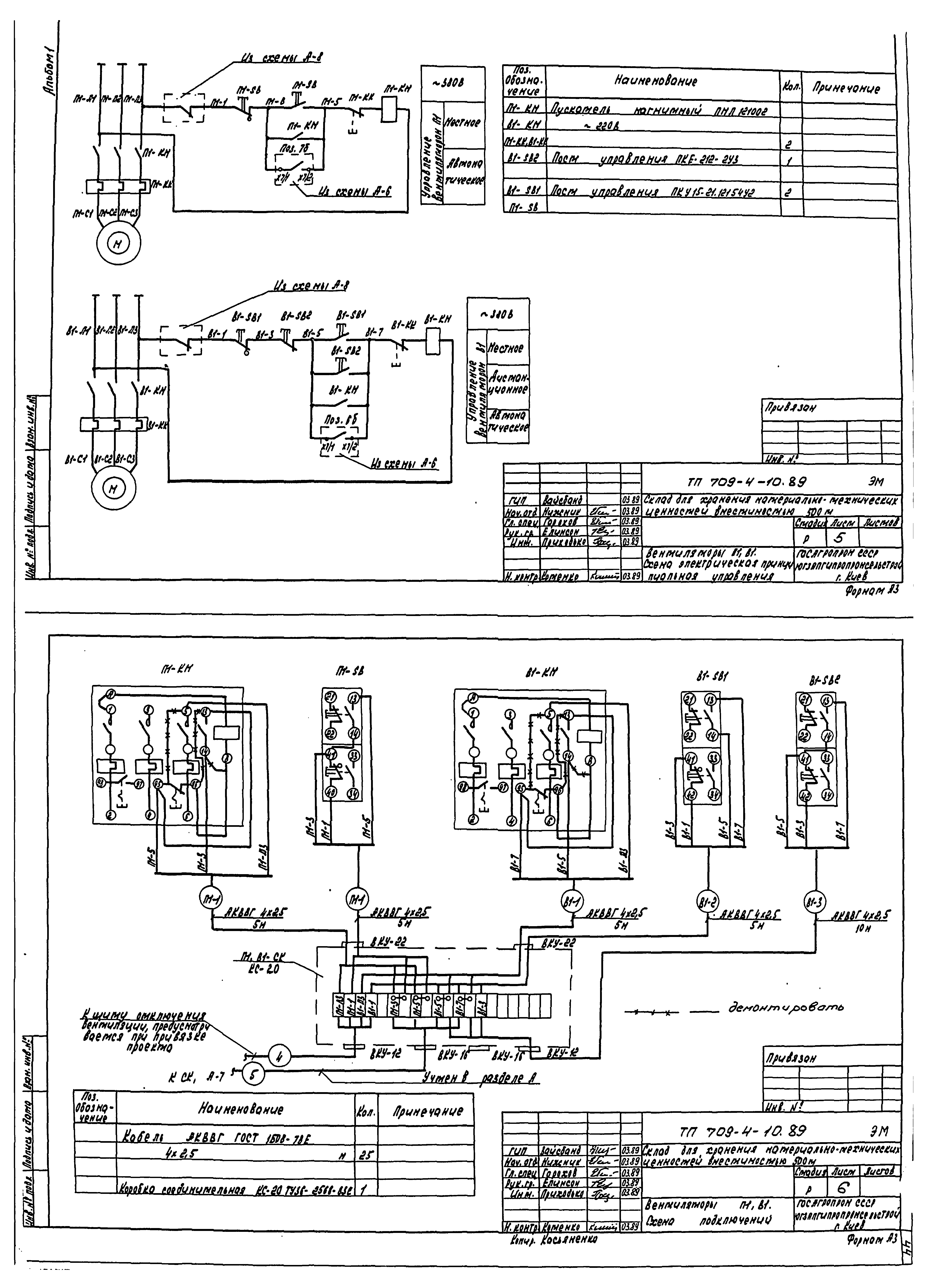
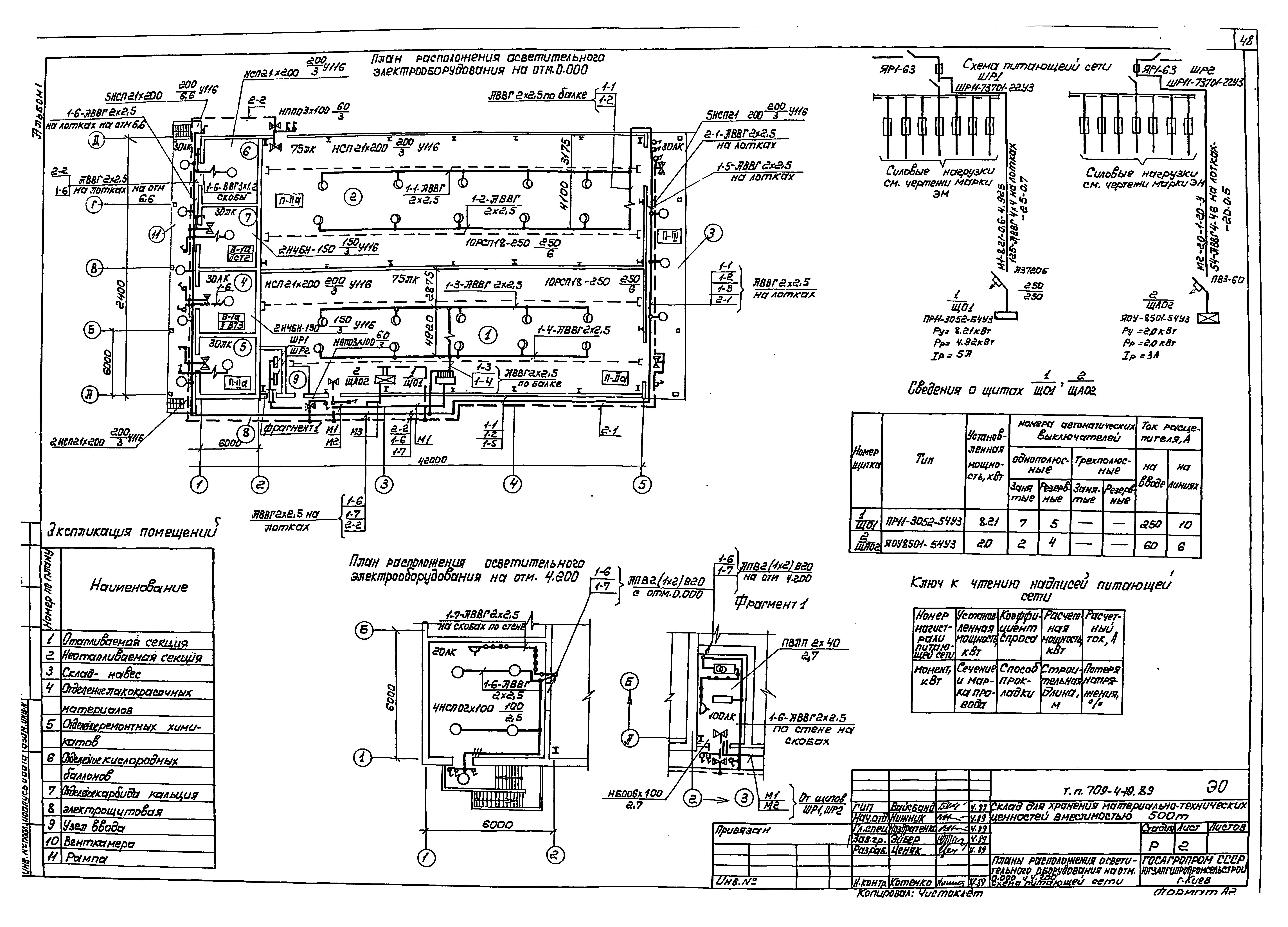
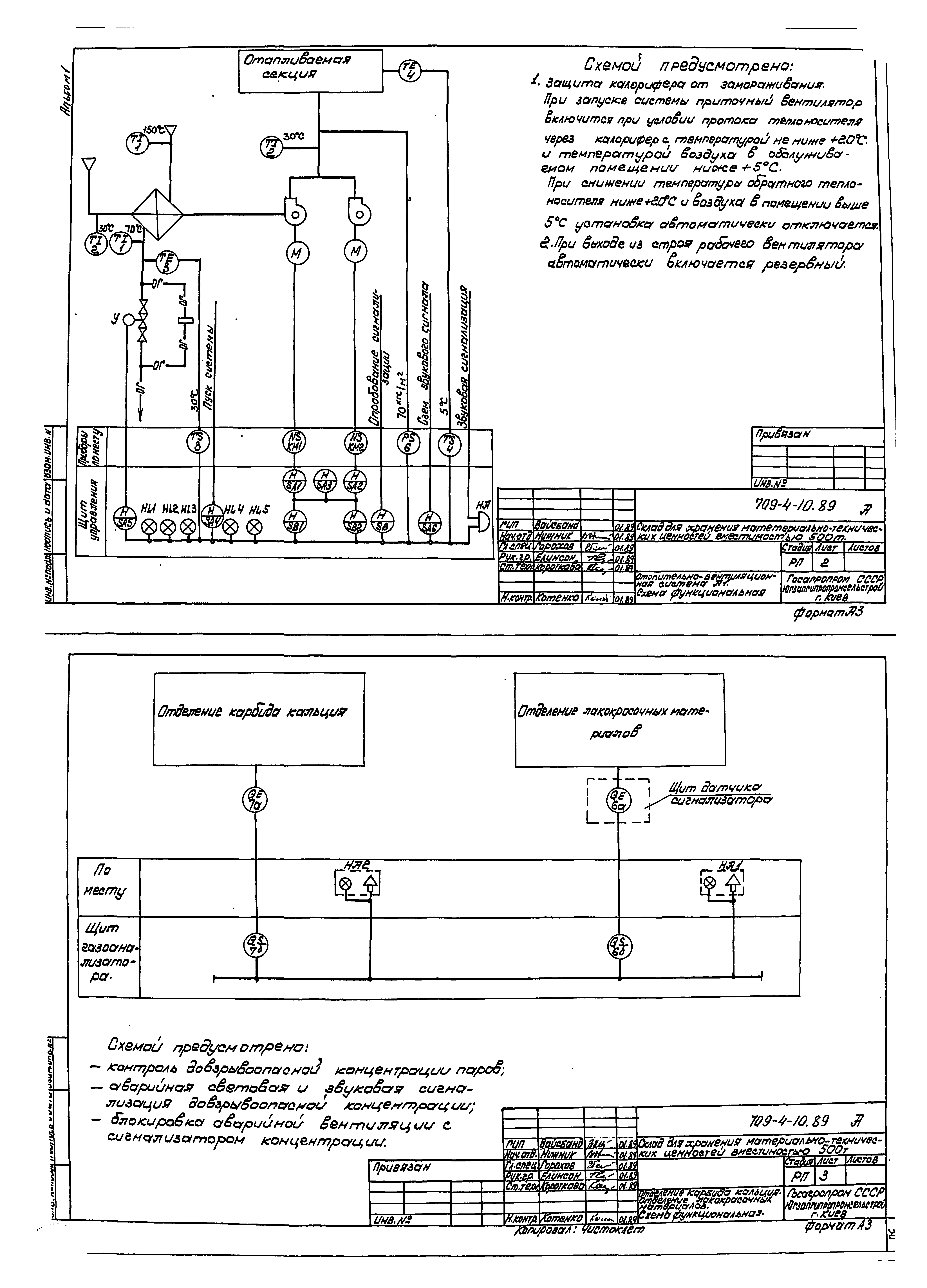
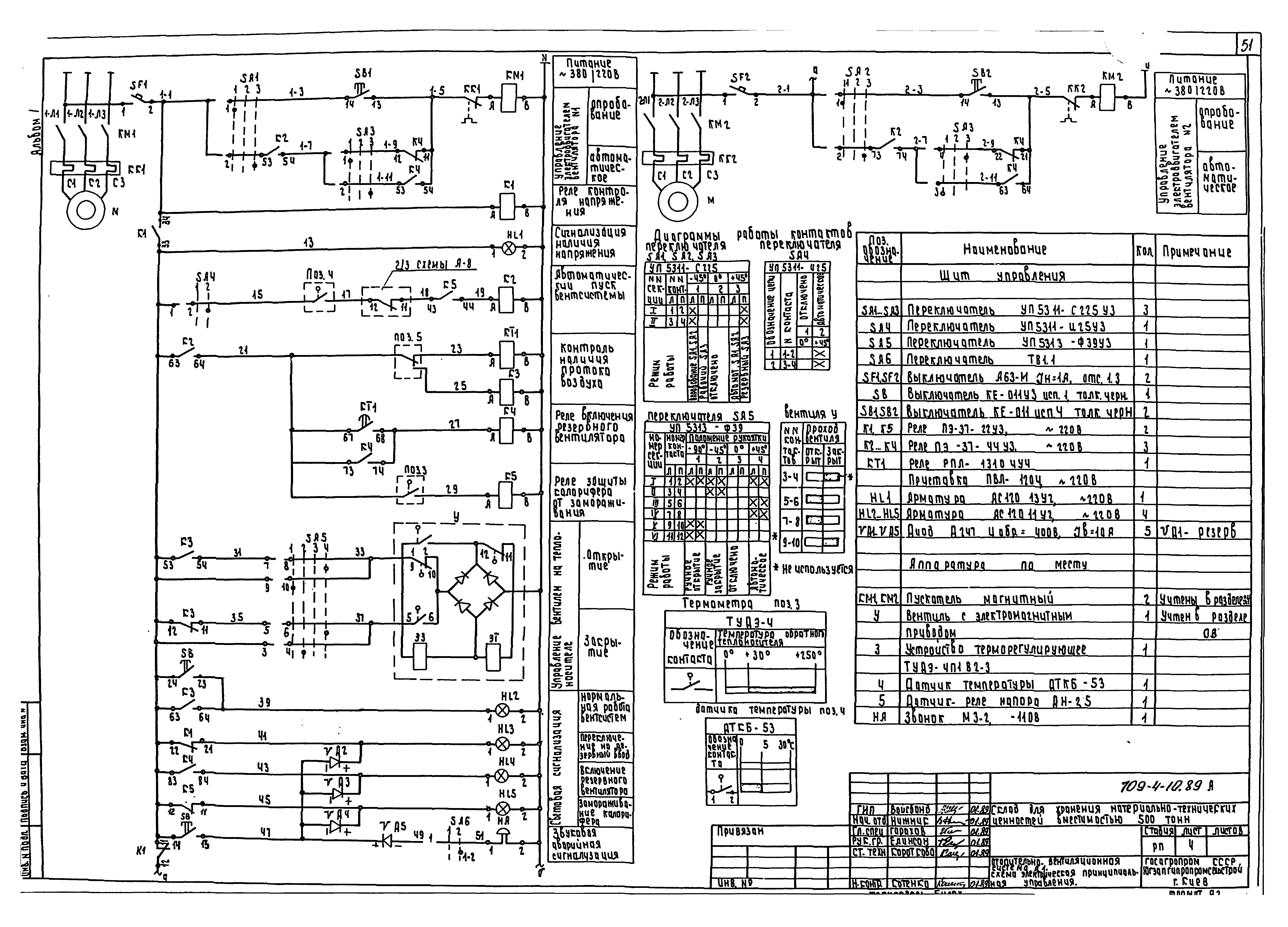
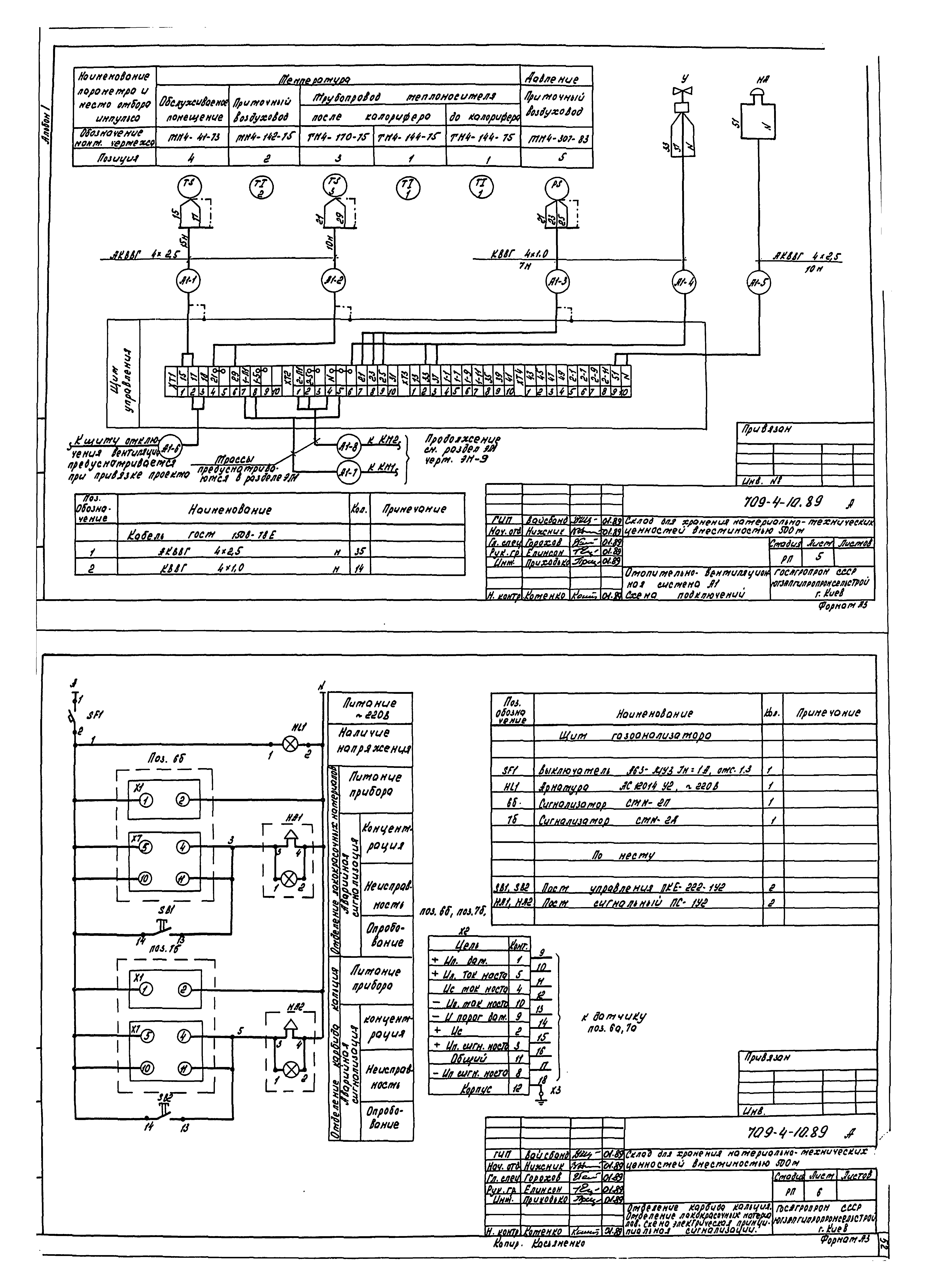
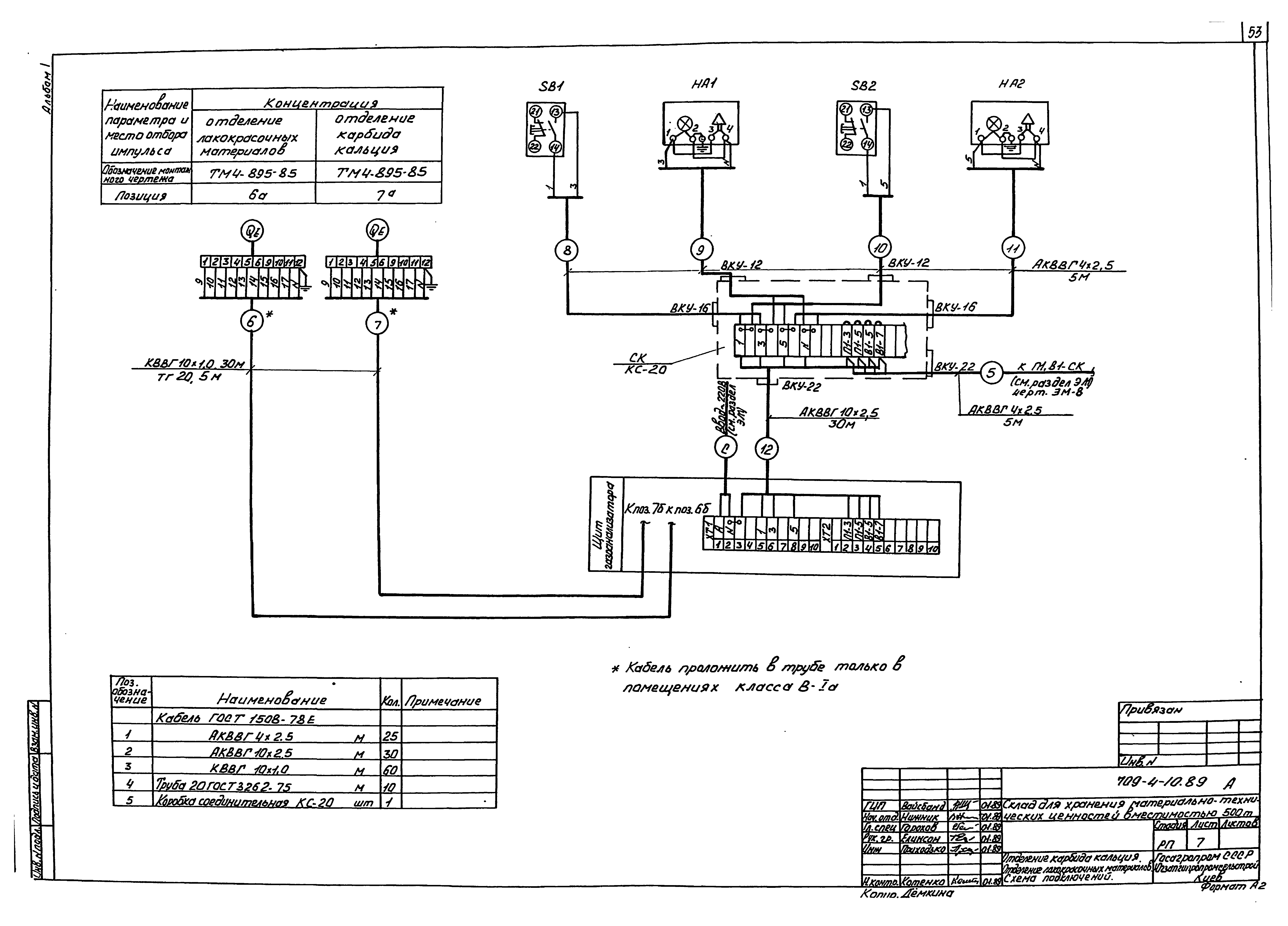
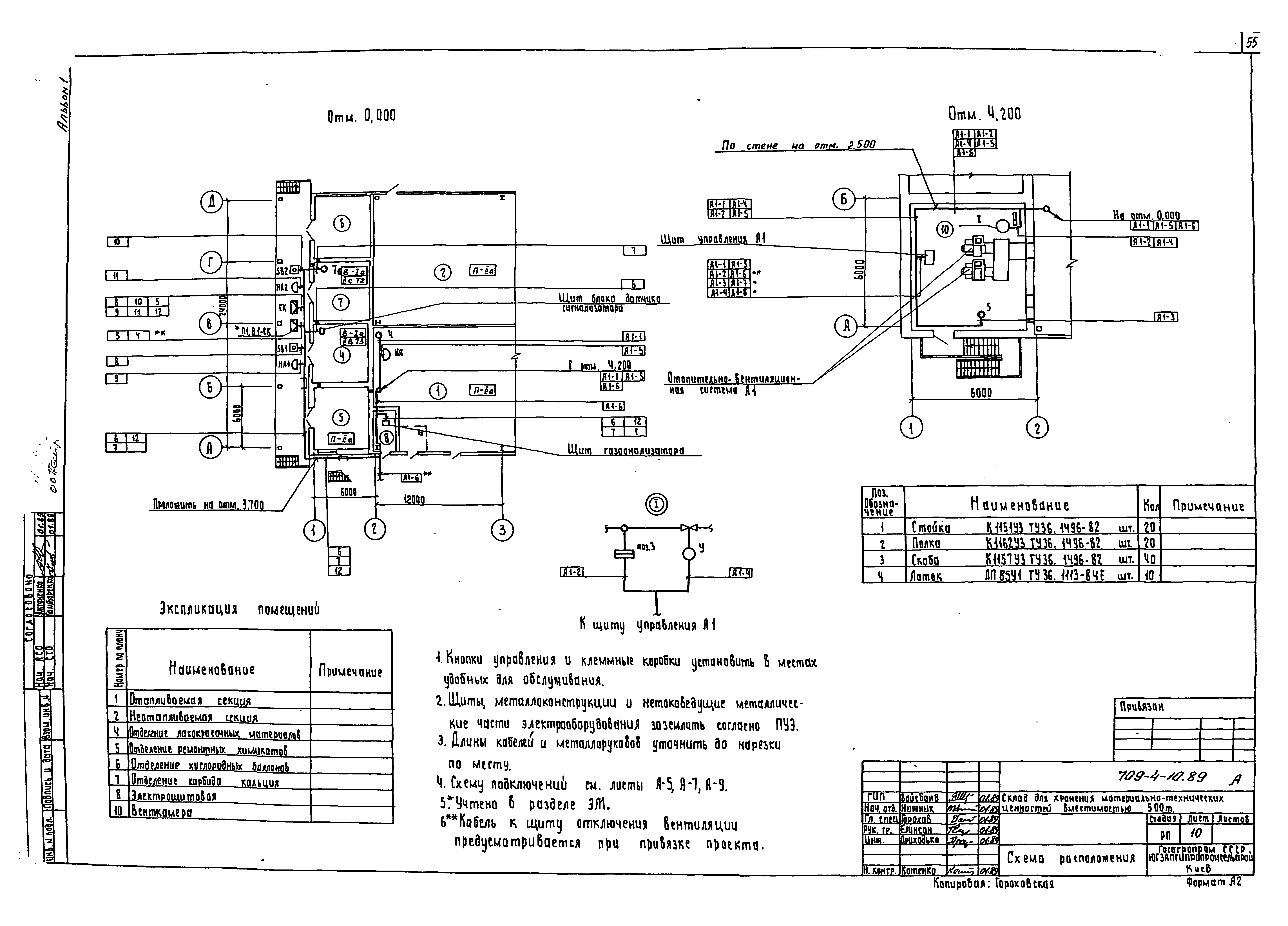
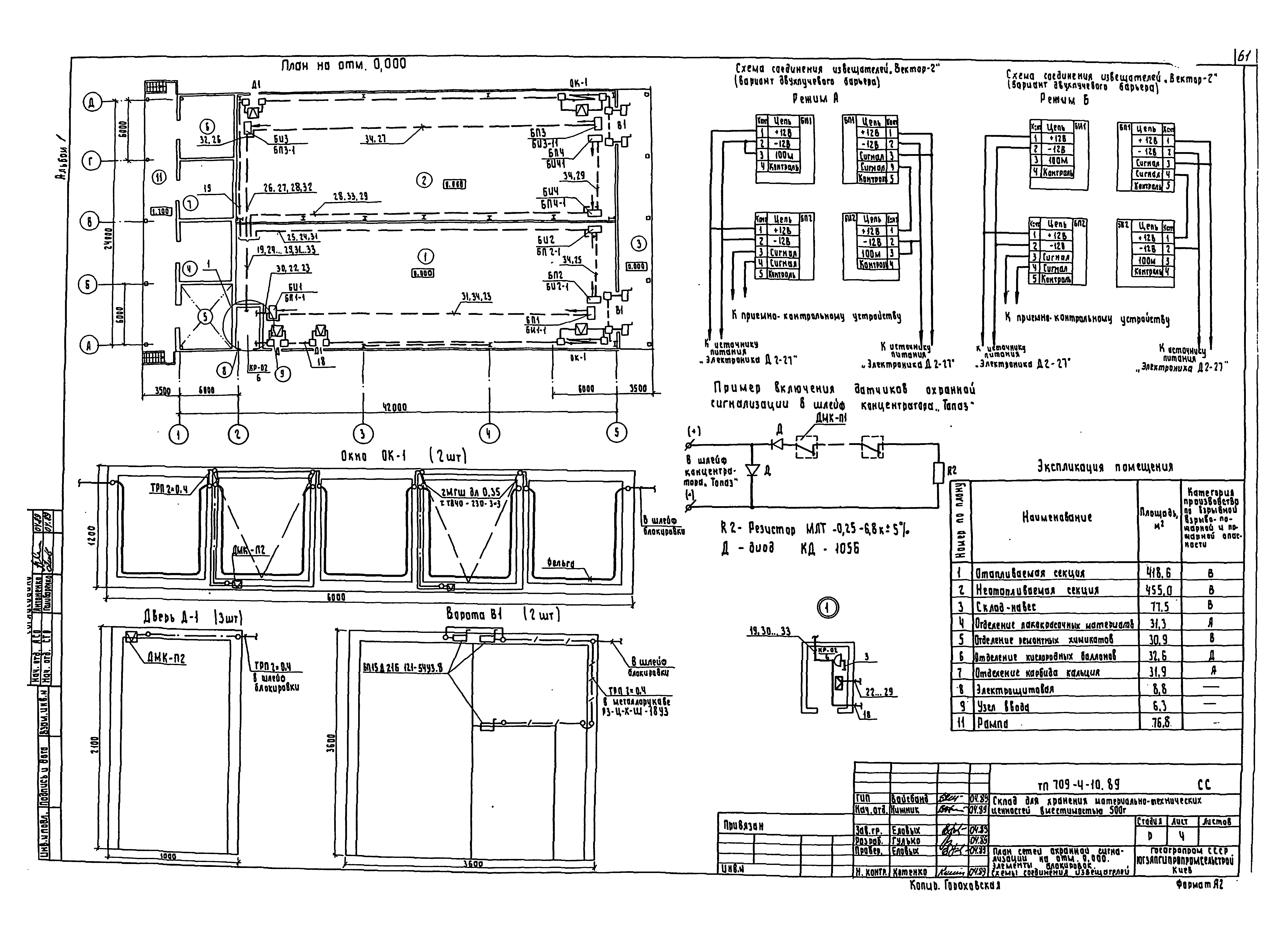
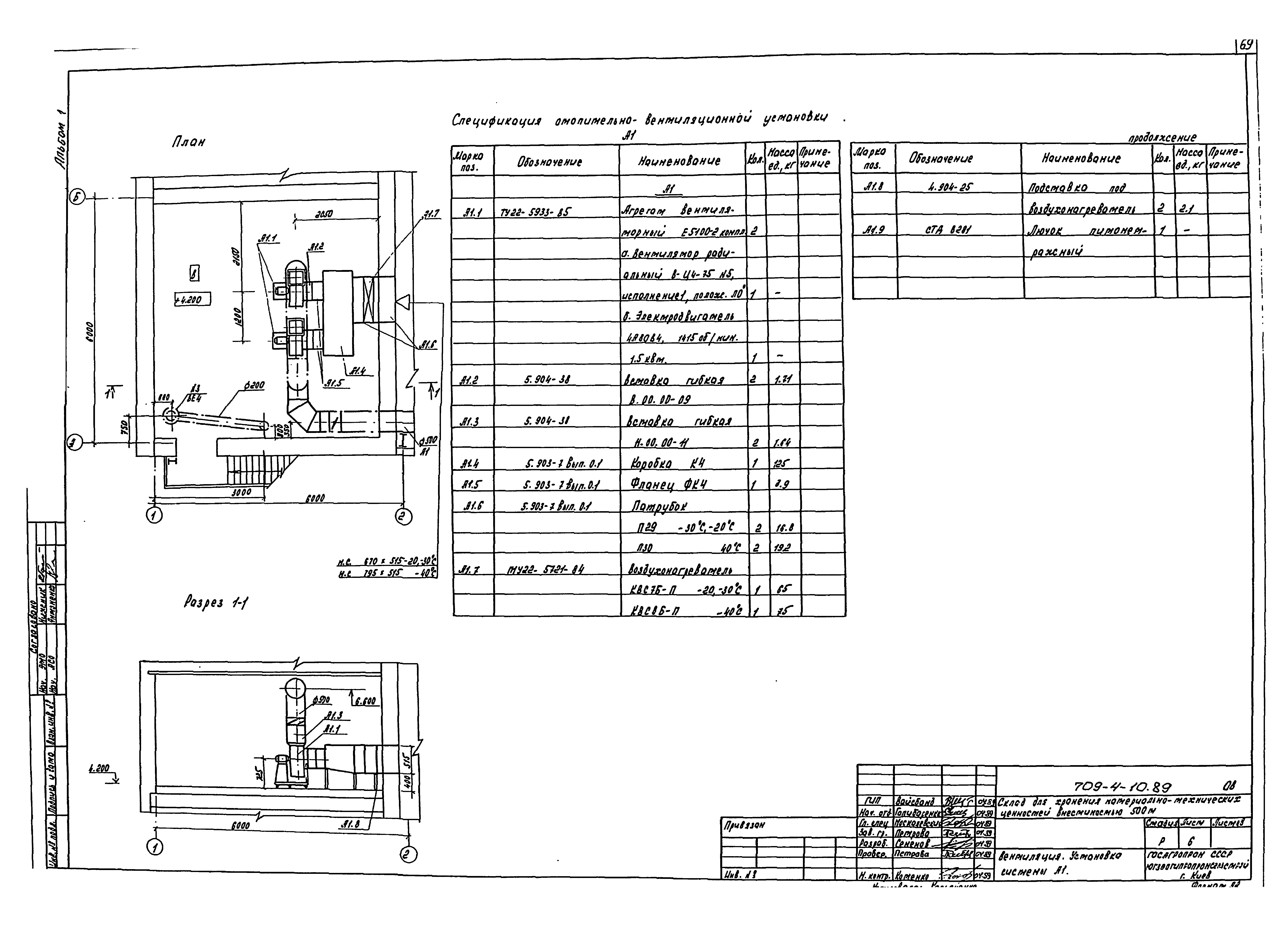
| Оглавление: | Пояснительная записка Чертежи основного комплекта АС Общие данные Планы на отм. 0.000 и 4.200 Фасады 1-8, 8-1, А-Д, Д-А Разрезы 1-1; 2-2. План кровли Чертежи основного комплекта КЖ Общие данные Схема расположения элементов фундаментов Фрагменты 1 - 4. Сечения 1-1 - 13-13 Фундаменты Фм1, Фм3 Фундаменты Фм4 - Фм7 Схема расположения анкерных колодцев под оборудование Схема расположения стеновых панелей и плит перекрытий на отм. 4.200; 3.000 Чертежи основного комплекта КМ Общие данные Схема расположения элементов каркаса Схема расположения элементов фахверка Схема расположения прогонов, опорных конструкций и элементов покрытия Схема расположения элементов ограждения стен Узлы 1 - 12 Схема расположения элементов навесов Узлы 13 - 21 Схема расположения элементов лестниц ЛМ1; СМ1 Чертежи основного комплекта ТХ Общие данные План на отм. 0.000. Разрезы 1-1; 2-2. Схема грузопотоков Шифрация мест хранения. Сечения 1-1 - 11-11 Чертежи основного комплекта ЭМ Общие данные План расположения силового электрооборудования на отм. 0.000; 4.200 и кровле. Молниезащита Принципиальная схема распределительной сети Вентиляторы П1, В1. Схема электрическая принципиальная управления Вентиляторы П1, В1. Схема подключений Отопительно-вентиляционная система А1. Схема подключений Задвижка. Схема электрическая принципиальная управления Задвижка З-2. Схема подключений Задвижка З-1. Схема подключений Чертежи основного комплекта ЭО Общие данные Планы расположения осветительного электрооборудования на отм. 0.000; 4.200. Схема питающей сети Чертежи основного комплекта А Общие данные Отопительно-вентиляционная система А1. Схема функциональная Отделение карбида кальция. Отделение лакокрасочных материалов. Схема функциональная Отопительно-вентиляционная система А1. Схема принципиальная управления Отопительно-вентиляционная система А1. Схема подключений Отделение карбида кальция. Отделение лакокрасочных материалов. Схема электрическая принципиальная сигнализации Отделение карбида кальция. Отделение лакокрасочных материалов. Схема подключений Отключение вентиляции при пожаре. Схема электрическая принципиальная сигнализации Отключение вентиляции при пожаре. Схема подключений Схема расположения Отопительно-вентиляционная система А1. Щит управления. Эскиз общего вида Щит газоанализатора. Эскиз общего вида Щит отключения вентиляции. Эскиз общего вида Щит блока датчика сигнализатора. Эскиз общего вида Чертежи основного комплекта СС Общие данные Спецификация План сетей телефонизации, радиофикации и пожарной сигнализации на отм. 0.000. Примеры включения извещателей План сетей охранной сигнализации на отм. 0.000. Элементы блокировок. Схемы соединения извещателей Схема электрическая подключений. Примеры включения извещателей Кабельный журнал Чертежи основного комплекта ОВ Общие данные Отопление, вентиляция, теплоснабжение. План Отопление, вентиляция, теплоснабжение. Фрагмент 1. План кровли. Схемы систем отопления и теплоснабжения установки А1 Вентиляция. Схемы. Узел управления 1 Вентиляция. Установка системы А1 Чертежи основного комплекта ВК Общие данные План сетей систем В1; К3. Схемы систем В1; К3 |
| Разработан: | Югзапгипропромсельстрой |
| Утверждён: | 28.08.1987 Югзапгипропромсельстрой (89) |







































































