Скачать Типовой проект 802-5-39.85 Альбом II. Архитектурно-строительные решения. Конструкции железобетонные, металлические и деревянныеДата актуализации: 01.01.2021
|
| Обозначение: | Типовой проект 802-5-39.85 |
| Обозначение англ: | 802-5-39.85 |
| Статус: | не определен законодательством |
| Название рус.: | Альбом II. Архитектурно-строительные решения. Конструкции железобетонные, металлические и деревянные |
| Дата добавления в базу: | 01.09.2013 |
| Дата актуализации: | 01.01.2021 |
| Дата введения: | 13.03.1985 |
| Дата окончания срока действия: | 30.06.2003 |
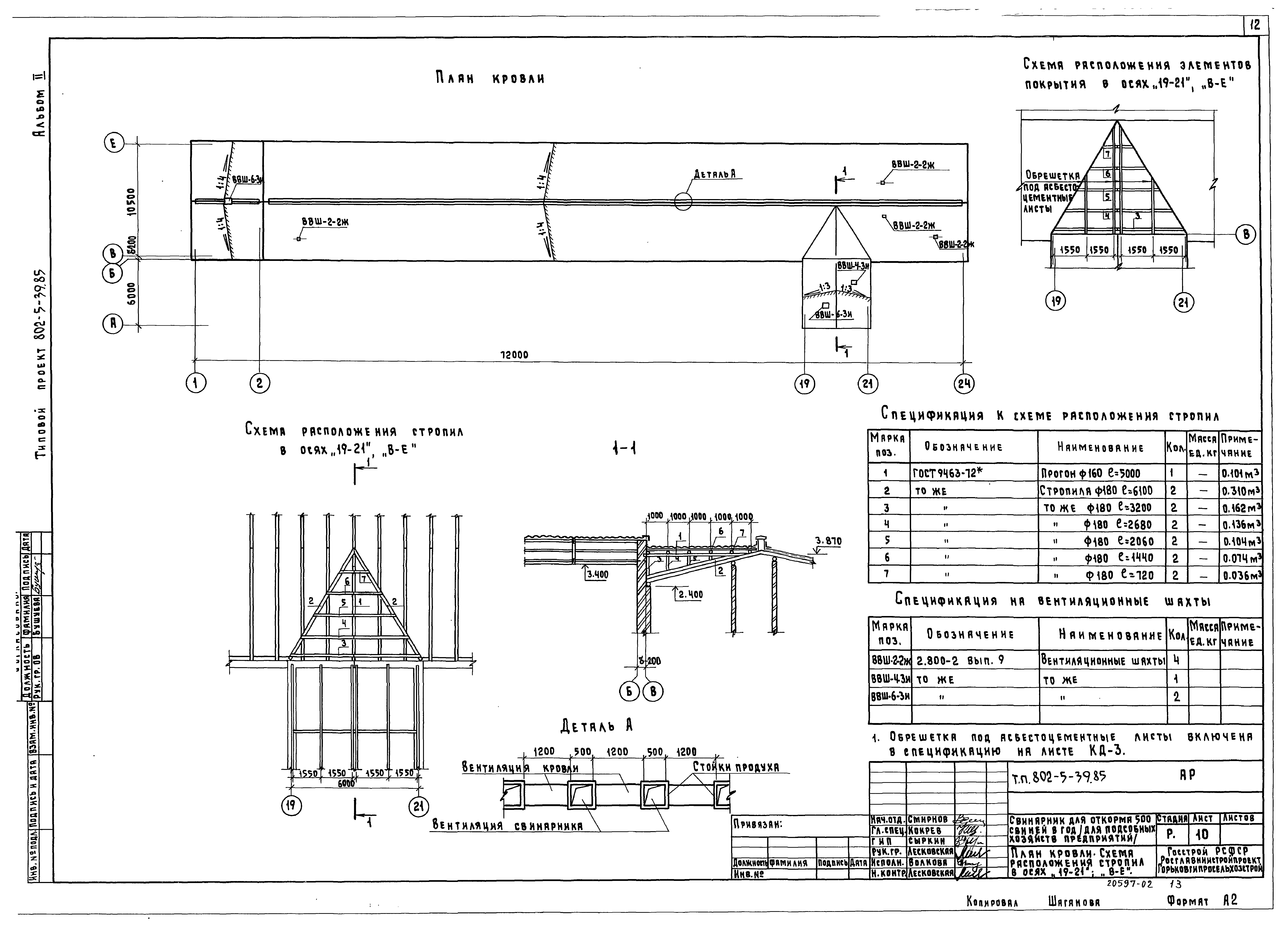
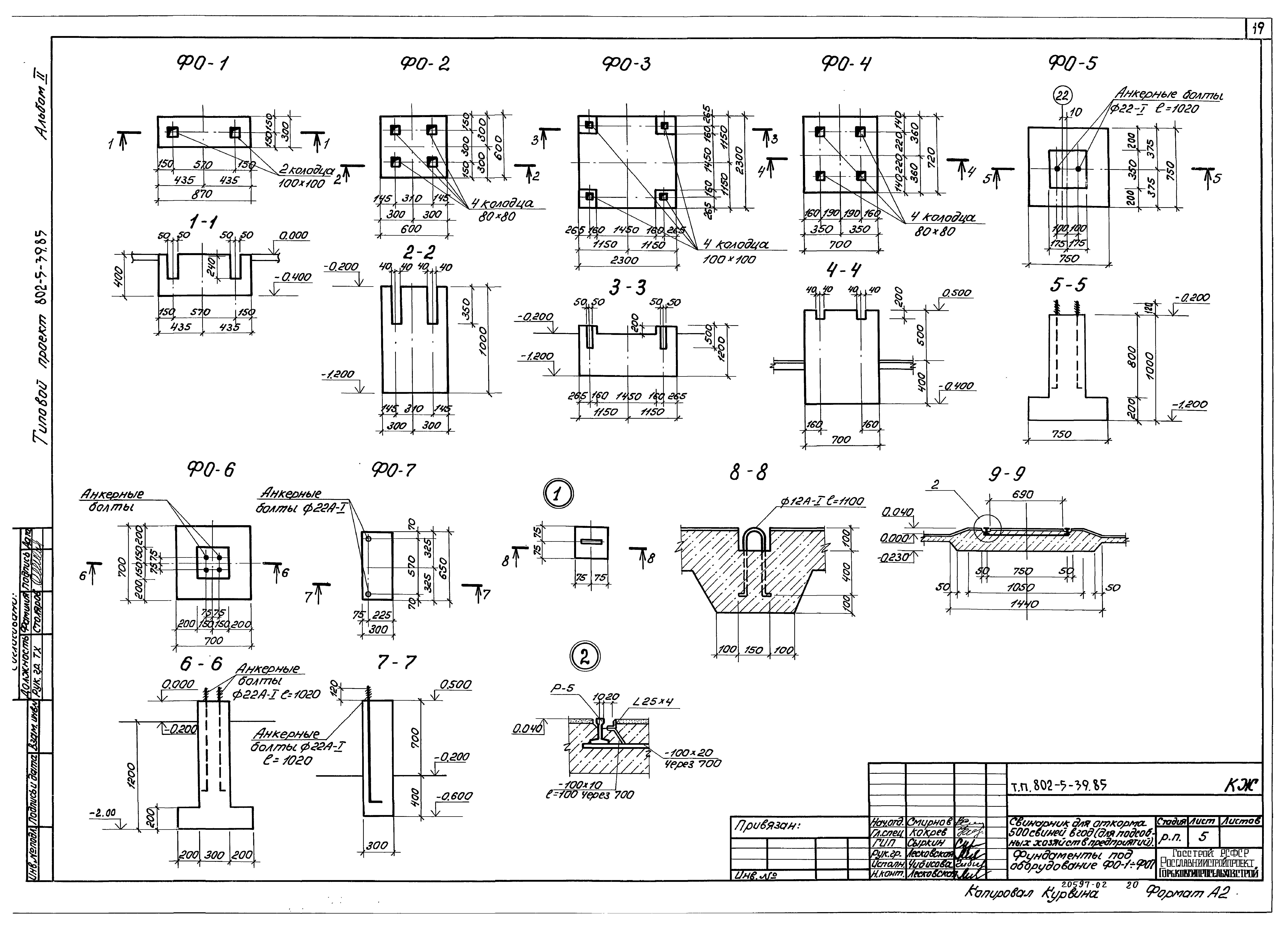
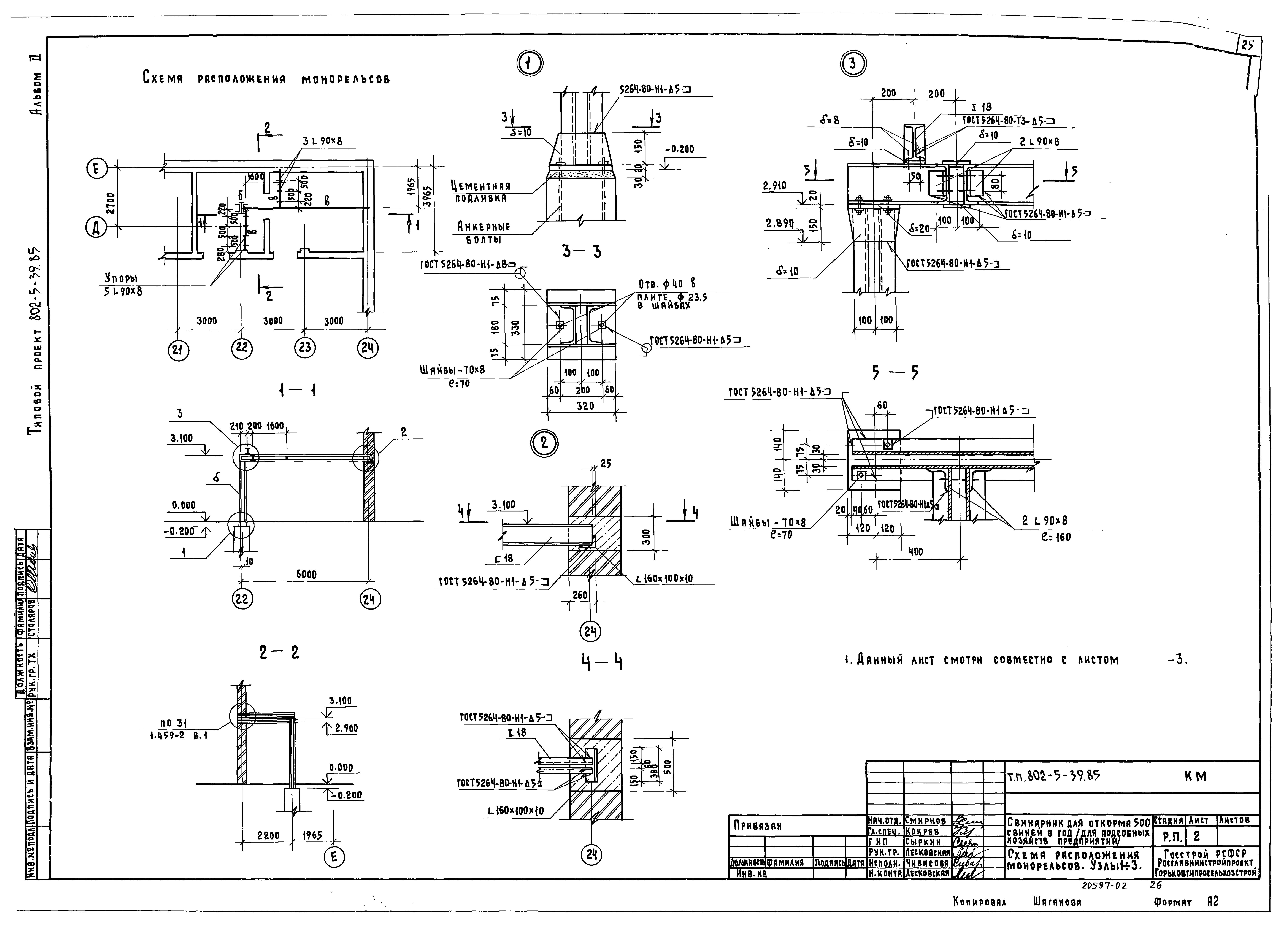
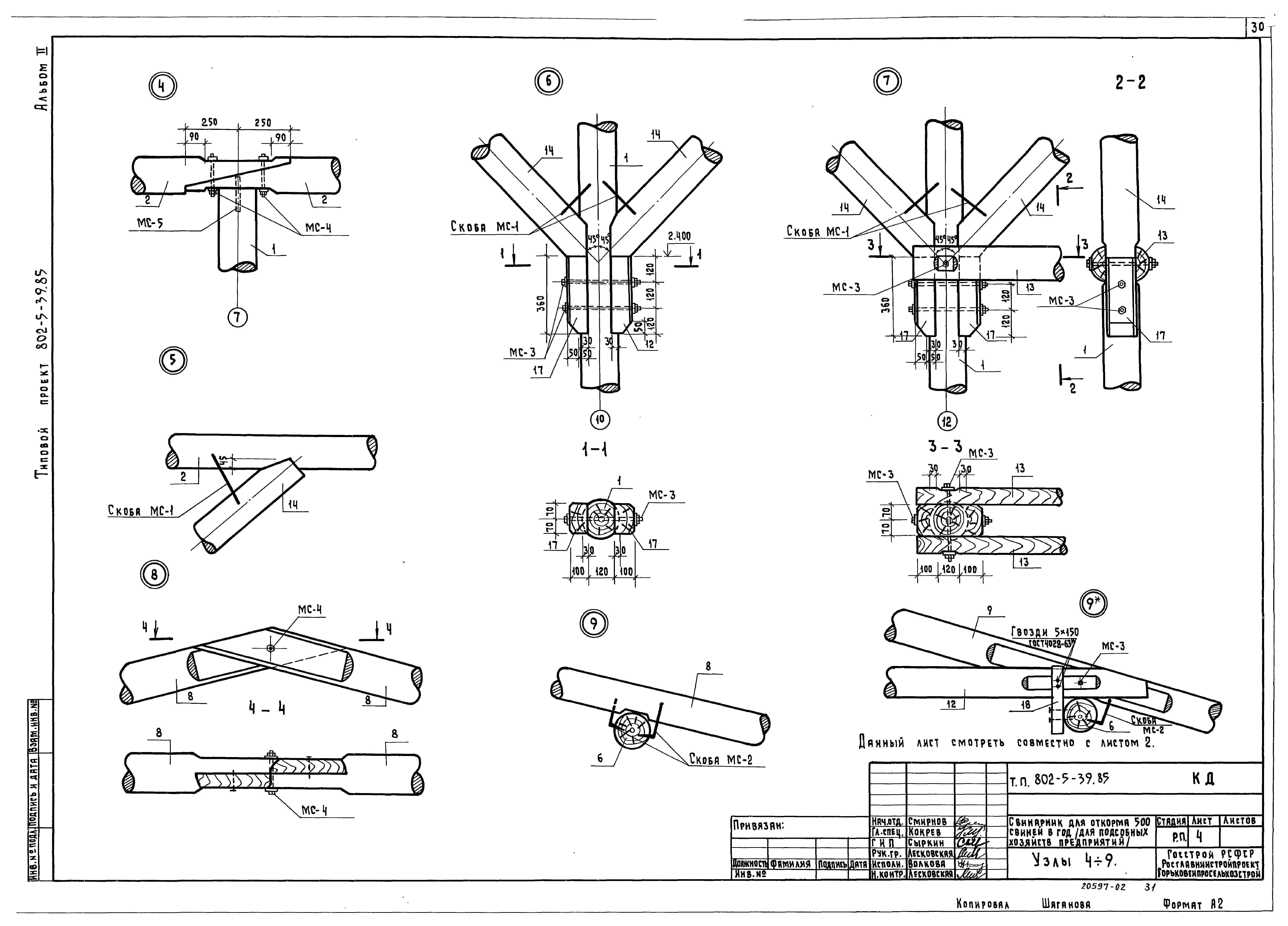
| Оглавление: | Содержание альбома Основной комплект рабочих чертежей марки АР Общие данные Фасады 1 - 24, 24 - 1, Е - А, А - Е План на отм. 0.000 Фрагмент 1. Разрезы Фрагменты 2 и 3 Венткамера Разрезы 1-1, 2-2, 3-3 Схема расположения элементов покрытия План кровли. Схема расположения стропил в осях "19 - 21", "В - Е" План полов и устройство выравнивания электрических потенциалов Обрамление ворот Основной комплект рабочих чертежей марки КЖ Общие данные Схема расположения элементов фундаментов. Сечения Схема расположения каналов навозоудаления и фундаментов под оборудование Фрагменты 2, 3. Сечения 1-1 - 6-6 Фундаменты под оборудование ФО-1 - ФО-7 Кормовой бункер. Сечения Фундамент ФО-8. Узел "3". Приямок под транспортер ТС-40.0 м Схема расположения ограждений станков Схема расположения гнезд в полу для установки стоек станков. Сечение 1-1. Фундамент ФО-1 Основной комплект рабочих чертежей марки КМ Общие данные Схема расположения монорельсов. Узлы 1 - 3 Схема расположения площадки на отм. 6.500; 0.700 и 0.400. Узлы Основной комплект рабочих чертежей марки КД Общие данные Схема расположения стропил. Разрезы Узлы 1 - 3 Узлы 4 - 9 Узлы 10 - 14 Узлы 15 - 18 Схема расположения лотка для кабеля и подвесок. Сечения |
| Разработан: | Горьковгипросельхозстрой |
| Утверждён: | 06.03.1985 Главсельстройпроект Минсельхоза СССР (Glavselstroyproject, USSR Minselkhoz 9ЭГ) |

































