Скачать Типовой проект 802-5-39.85 Альбом III. Технология и механизация производственных процессов. Внутренние водопровод и канализация. Отопление и вентиляция. Электротехнические чертежи. Автоматизация санитарно-технических системДата актуализации: 01.01.2021
|
| Обозначение: | Типовой проект 802-5-39.85 |
| Обозначение англ: | 802-5-39.85 |
| Статус: | не определен законодательством |
| Название рус.: | Альбом III. Технология и механизация производственных процессов. Внутренние водопровод и канализация. Отопление и вентиляция. Электротехнические чертежи. Автоматизация санитарно-технических систем |
| Дата добавления в базу: | 01.09.2013 |
| Дата актуализации: | 01.01.2021 |
| Дата введения: | 13.03.1985 |
| Дата окончания срока действия: | 30.06.2003 |
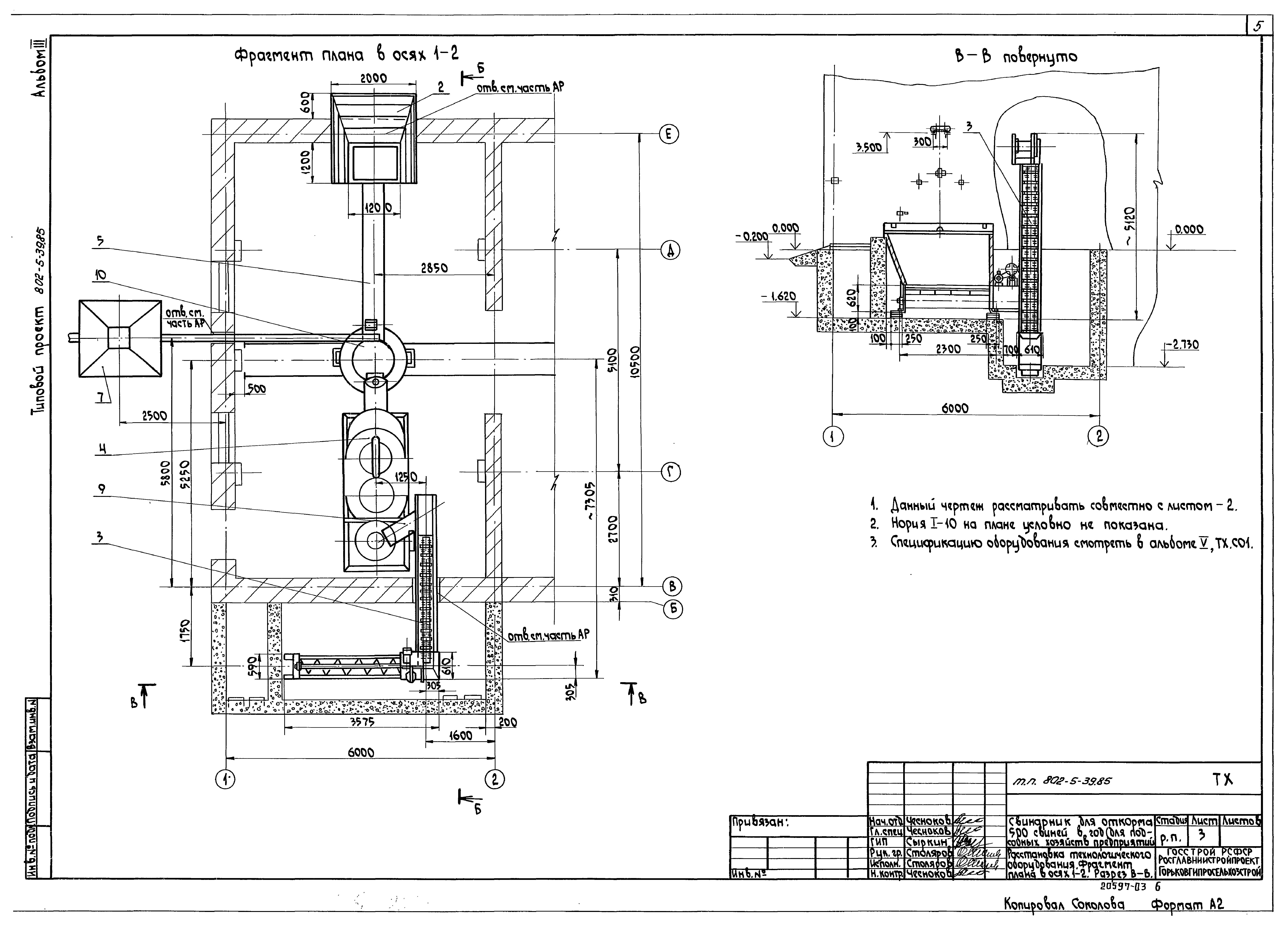
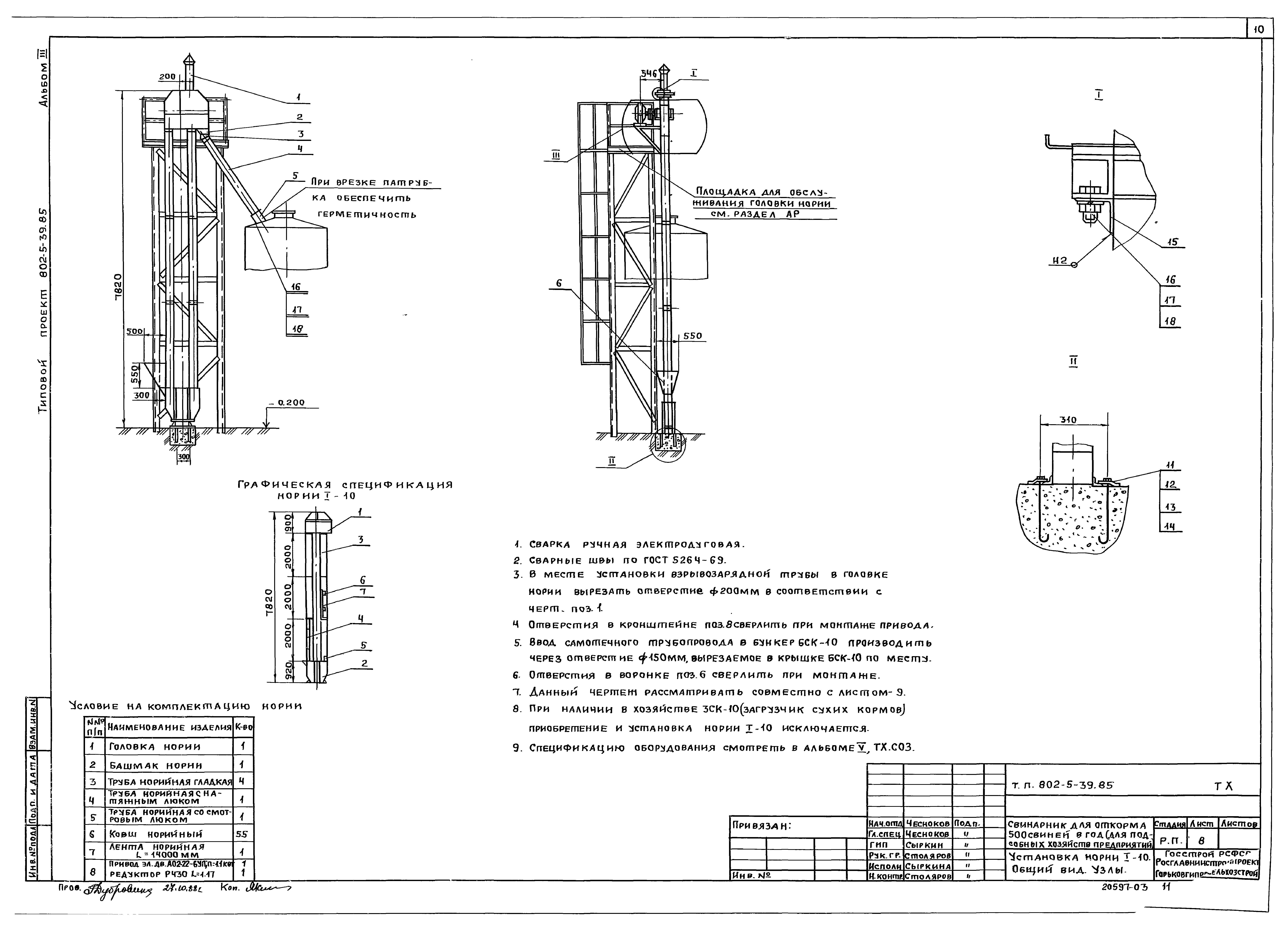
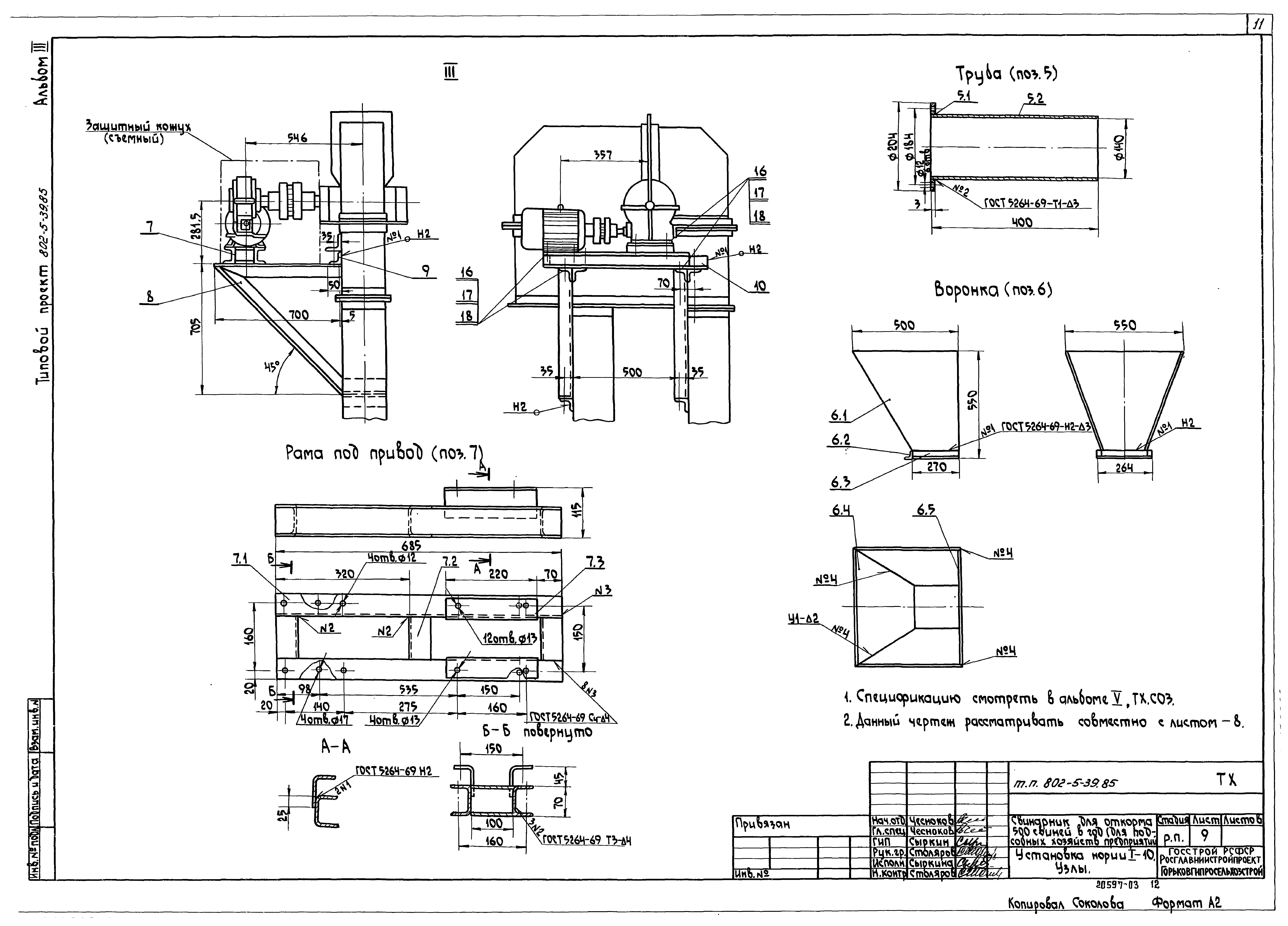
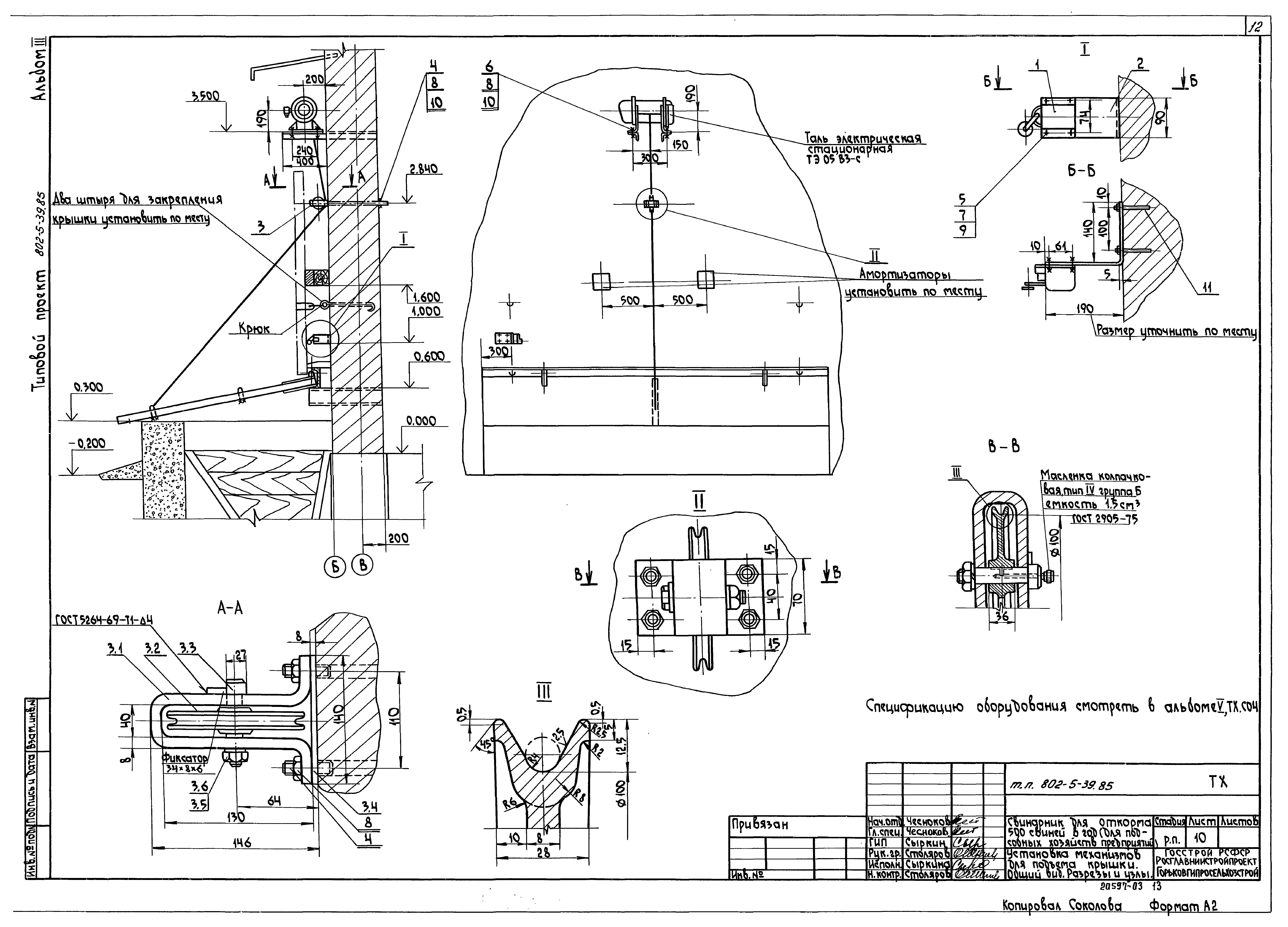
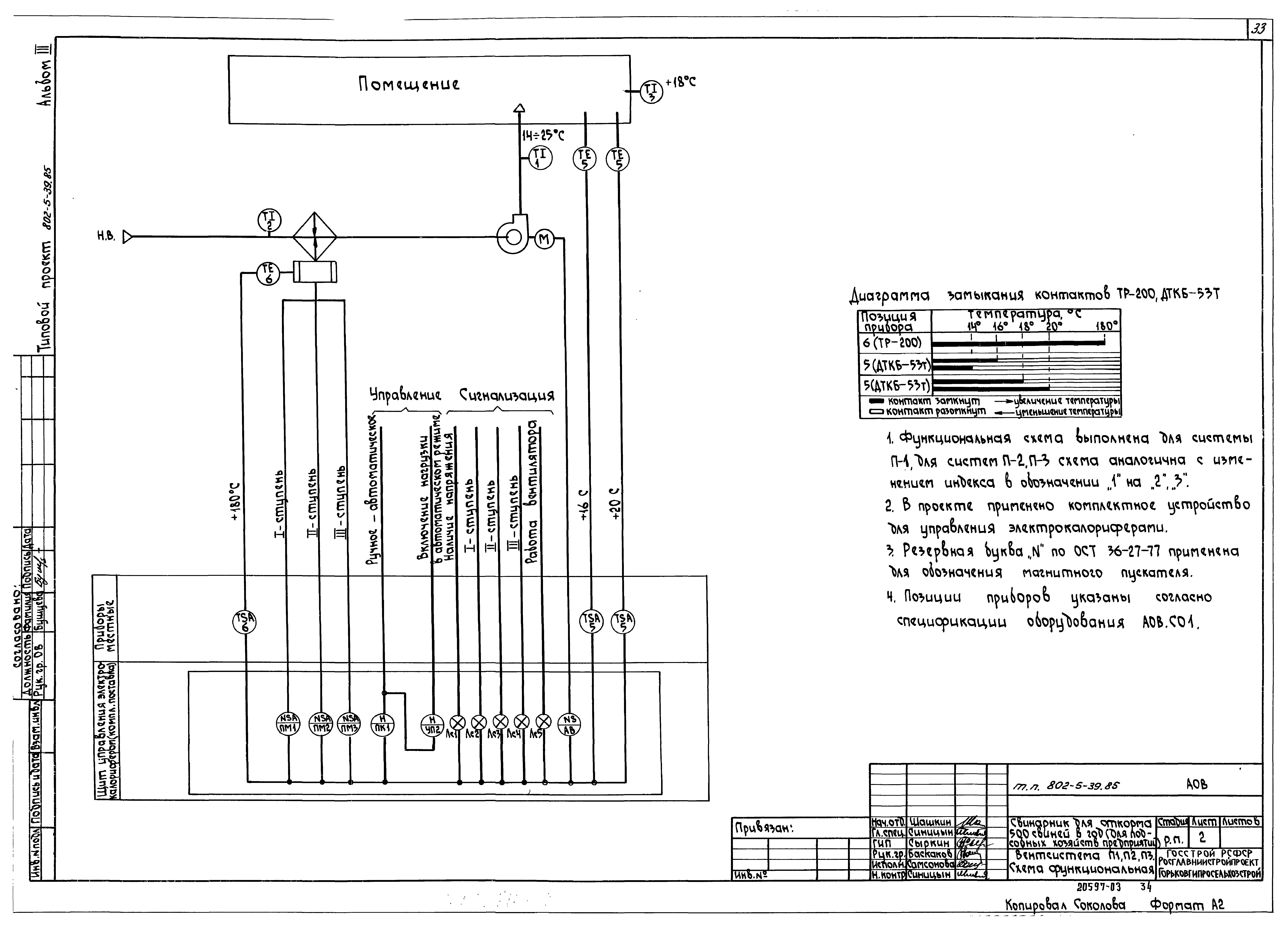
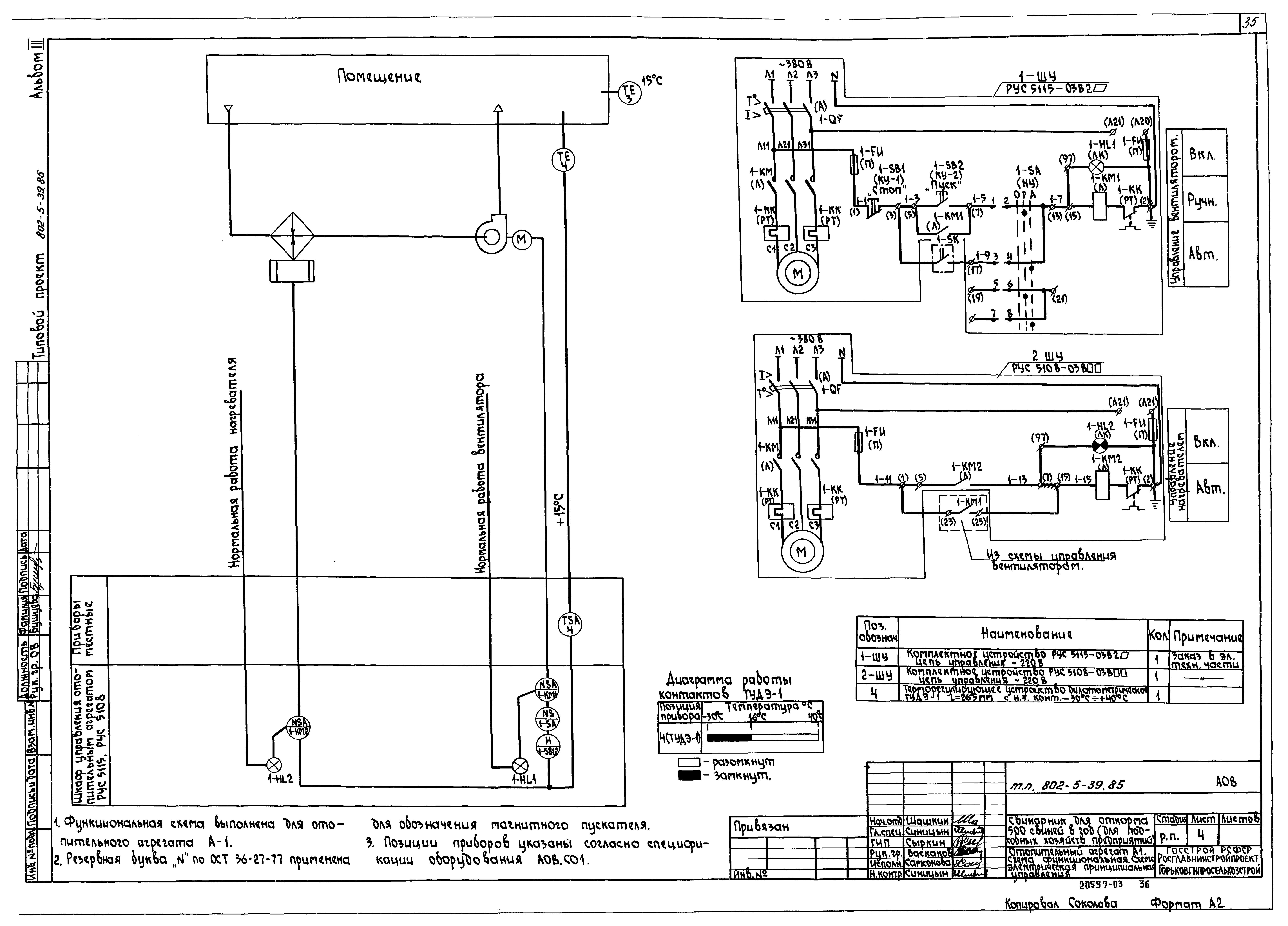
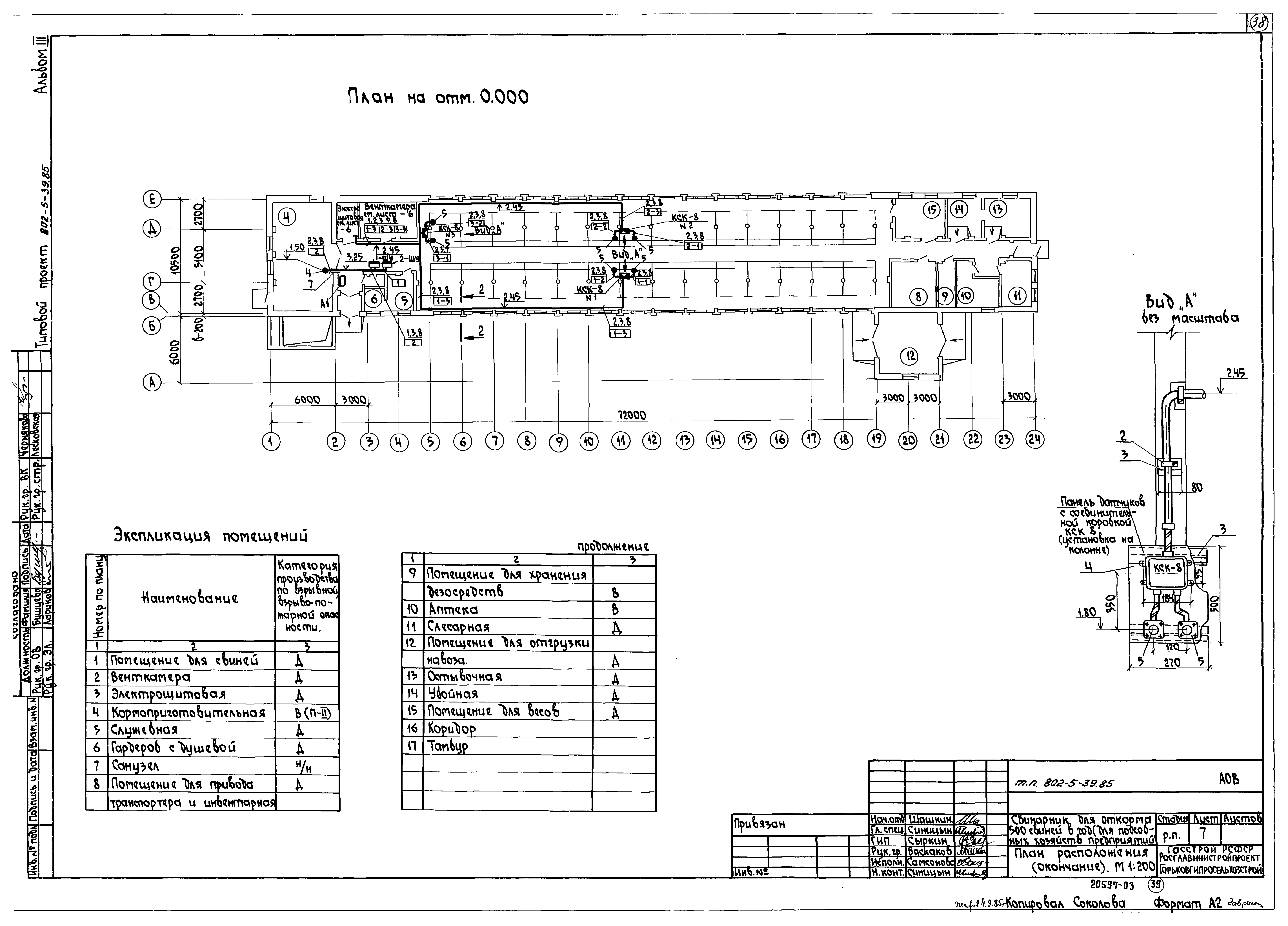
| Оглавление: | Содержание альбома Основной комплект рабочих чертежей марки ТХ Общие данные Расстановка технологического оборудования. План. Разрез А-А Расстановка технологического оборудования. Фрагмент плана в осях 1-2. Разрез В-В Расстановка технологического оборудования. Разрез Б-Б Расстановка технологического оборудования. Разрез Г-Г, Д-Д, Е-Е, Ж-Ж Монтаж подвесного пути. План. Разрезы Установка транспортера ТСН-2.06. План. Разрезы Установка нории 1 - 10. Общий вид. Узлы Установка нории 1 - 10. Узлы Установка механизмов для подъема крышки. Общий вид. Разрезы и узлы Основной комплект рабочих чертежей марки ОВ Общие данные План на отм. 0.000. Экспликация помещений Разрезы 1-1, 2-2. Схемы систем П1, П2, П3, РУ-1, ВЕ-1 - ВЕ-7. Схема пароснабжения Установка систем П1, П2, П3 Основной комплект рабочих чертежей марки ВК Общие данные План на отм. 0.000. Экспликация помещений Фрагменты плана №1, 2 Схемы В1, Т3, Т31 Схемы К0, К1, К3, К4 Основной комплект рабочих чертежей марки ЭМ Общие данные План силового оборудования Расчетная схема электросети 380/220 В Молниезащита Основной комплект рабочих чертежей марки ЭО Общие данные План электроосвещения. Расчетная схема осветительной сети Основной комплект рабочих чертежей марки АОВ Общие данные Вентсистема П1, П2, П3. Схема функциональная Система П1, П2, П3. Система соединений внешних проводов Отопительный агрегат А-1. Схема функциональная. Схема электрическая принципиальная управления Отопительный агрегат А-1. Схема соединений внешних проводок План расположения |
| Разработан: | Горьковгипросельхозстрой |
| Утверждён: | 06.03.1985 Главсельстройпроект Минсельхоза СССР (Glavselstroyproject, USSR Minselkhoz 9ЭГ) |






































