Скачать Типовой проект 802-5-39.85 Альбом IV. Строительные изделияДата актуализации: 01.01.2021
|
| Обозначение: | Типовой проект 802-5-39.85 |
| Обозначение англ: | 802-5-39.85 |
| Статус: | не определен законодательством |
| Название рус.: | Альбом IV. Строительные изделия |
| Дата добавления в базу: | 01.09.2013 |
| Дата актуализации: | 01.01.2021 |
| Дата введения: | 13.03.1985 |
| Дата окончания срока действия: | 30.06.2003 |
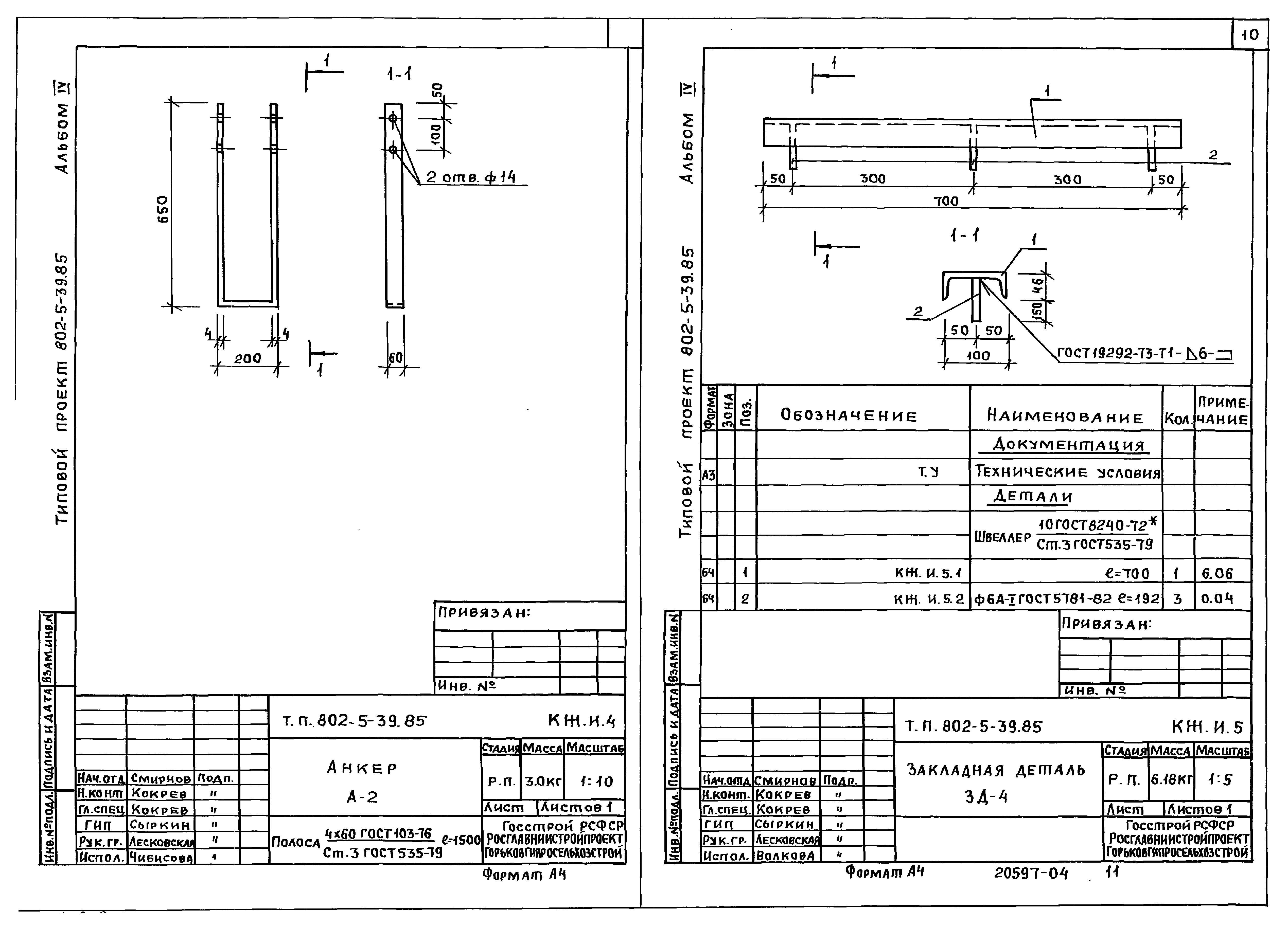
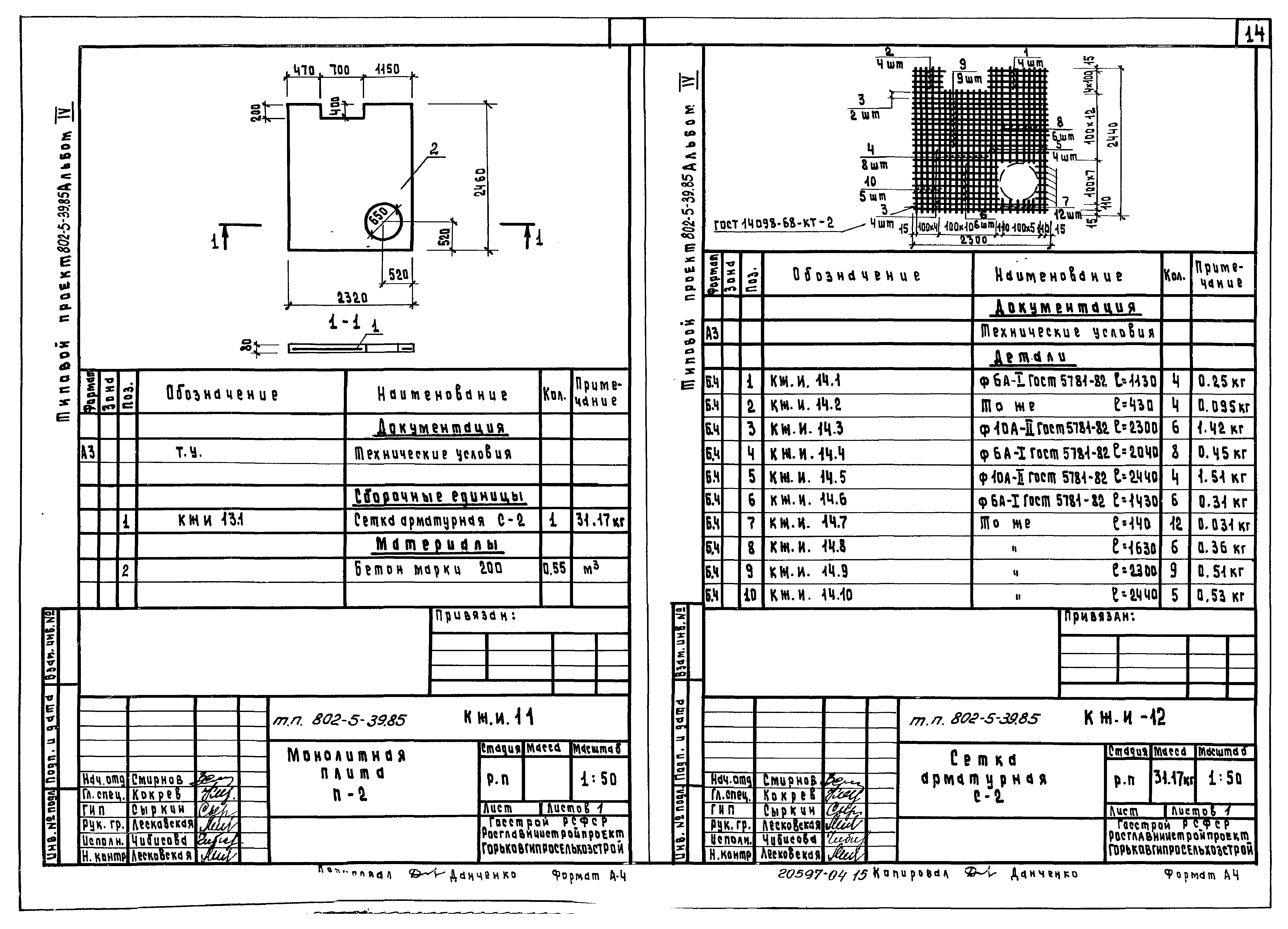
| Оглавление: | Содержание альбома Технические условия Рамка металлическая (РМ-2, РМ-3, РМ-4) Перемычка БПЗ-2А Изделие закладное МД-2 Изделие закладное МД-1 Крышка бункера КБ-1 МН-1 МН-2 Анкер А-2 Закладная деталь ЗД-4 Рама РМ-1 Закладная деталь ЗД-2 Закладная деталь (ЗД-1, ЗД-3, ЗД-5) Монолитная плита П-1 Сетка арматурная С-1 Монолитная плита П-2 Сетка арматурная С-2 Сетка арматурная (С-3, С-4) Ведомость расхода стали на 1 элемент (П-1, П-2, С-3, С-4) Анкер А-3 Соединительный элемент (МС-3, МС-4) Ферма деревянная ФД-1. Сборочный чертеж Ферма деревянная ФД-1 Анкер А-4 Соединительный элемент (МС-1, МС-2) Изоляция трубопровода dн 57 мм Установка термометра ртутного на воздуховоде Установка термометра углового на воздуховоде. Сборочный чертеж Фланец с бобышкой Фланец с бобышкой. Сборочный чертеж Фланец Прокладка Полоса Фланец Изоляция трубопровода |
| Разработан: | Горьковгипросельхозстрой |
| Утверждён: | 06.03.1985 Главсельстройпроект Минсельхоза СССР (Glavselstroyproject, USSR Minselkhoz 9ЭГ) |



























