Скачать Типовой проект 501-5 Часть III. Раздел 1. Пролетные строения для автодорожных и городских мостов и путепроводов. Пролетные строения длиной от 6 до 18 м (пустотные плиты)Дата актуализации: 01.01.2021
|
| Обозначение: | Типовой проект 501-5 |
| Обозначение англ: | 501-5 |
| Статус: | действует |
| Название рус.: | Часть III. Раздел 1. Пролетные строения для автодорожных и городских мостов и путепроводов. Пролетные строения длиной от 6 до 18 м (пустотные плиты) |
| Дата добавления в базу: | 01.09.2013 |
| Дата актуализации: | 01.01.2021 |
| Дата введения: | 01.09.1965 |
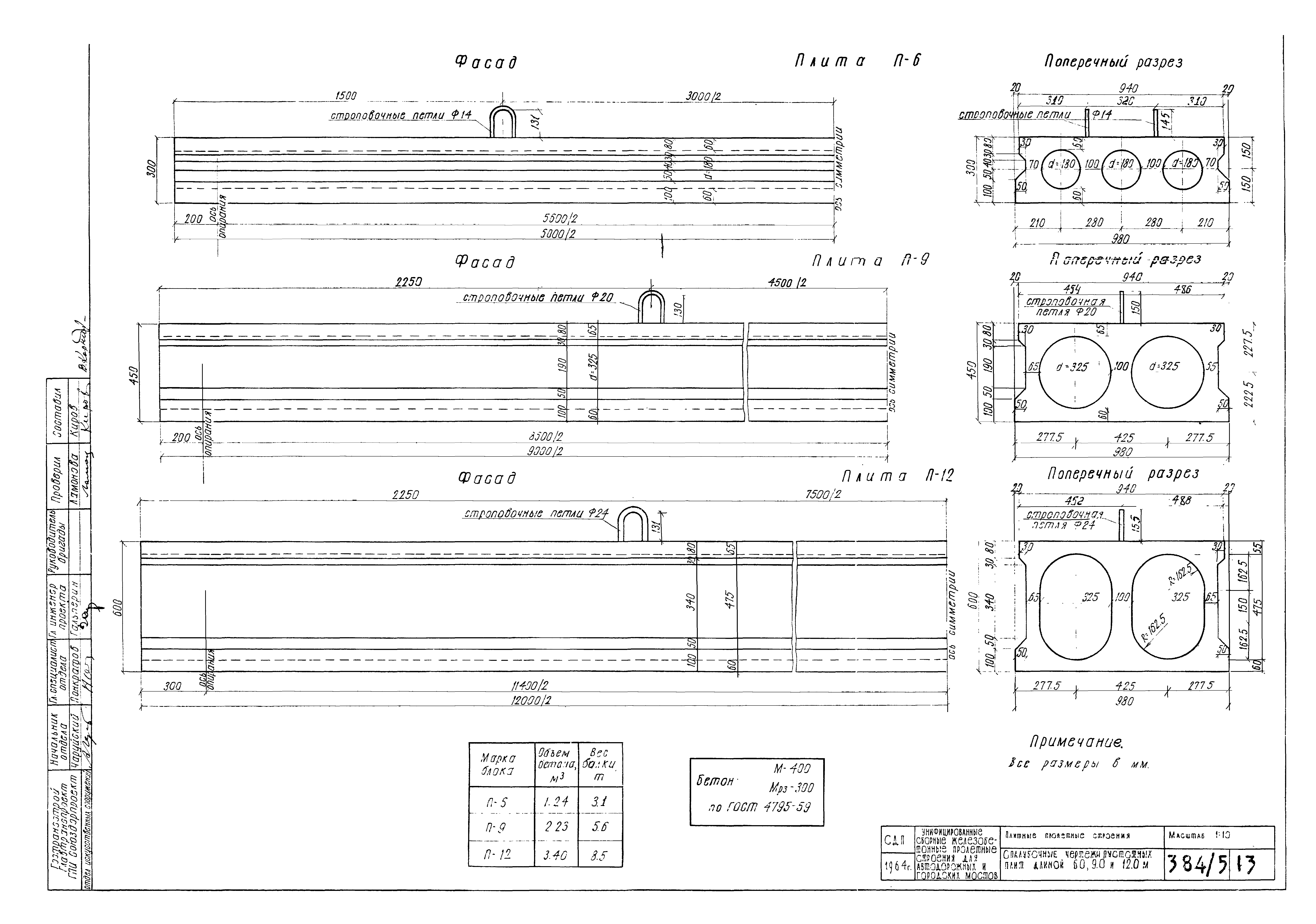
| Оглавление: | Пояснения Расчетные листы Сводные таблицы расхода материалов Общий вид пролетного строения длиной 6 м. Поперечные разрезы Общий вид пролетного строения длиной 6 м. Фасад и таблицы показателей Опалубочные чертежи пустотных плит длиной 6, 9 и 12 м Армирование предварительно напряженной арматурой пустотной плиты длиной 6 м (П-6) Армирование ненапряженной арматурой пустотной плиты длиной 6 м (П-6) Монтажная схема арматурных сеток пустотных плит длиной 6, 9 и 12 м Общий вид пролетного строения длиной 9 м. Поперечные разрезы Общий вид пролетного строения длиной 9 м. Фасад и таблицы показателей Армирование предварительно напряженной арматурой пустотной плиты длиной 9 м (П-9) Армирование ненапряженной арматурой пустотной плиты длиной 9 м (П-9) Общий вид пролетных строений длиной 12 и 15 м. Поперечные разрезы Общий вид пролетного строения длиной 12 м. Фасад и таблицы показателей Армирование предварительно напряженной арматурой пустотной плиты длиной 12 м (П-12) Армирование ненапряженной арматурой пустотной плиты длиной 12 м (П-12) Общий вид пролетного строения длиной 15 м. Фасад и таблицы показателей Опалубочные чертежи пустотных плит длиной 15 и 18 м Армирование предварительно напряженной арматурой пустотной плиты длиной 15 м (П-15) Армирование ненапряженной арматурой пустотной плиты длиной 15 м (П-15) Монтажная схема арматурных сеток пустотных плит длиной 15 и 18 м Общий вид пролетного строения длиной 18 м. Поперечные разрезы Общий вид пролетного строения длиной 18 м. Фасад и таблицы показателей Армирование предварительно напряженной арматурой пустотной плиты длиной 18 м (П-18) Армирование ненапряженной арматурой пустотной плиты длиной 18 м (П-18) Деталь опирания на опорные части. Деталь стыка плит Арматурные сетки Закладные детали и план расположения закладных деталей под тротуарными блоками Схема разбивки тротуарных блоков и подтротуарных балок для пролетов длиной 6 и 9 м Схема разбивки тротуарных блоков и подтротуарных балок для пролетов длиной 12 и 15 м Схема разбивки тротуарных блоков и подтротуарных балок для пролета длиной 18 м Детали крепления тротуарных блоков и перильного ограждения Схемы установки плит стреловыми кранами Схемы монтажа плит агрегатом АМК-20Г-7 Схемы перевозки балок автотранспортом |
| Разработан: | ГПИ Союздорпроект |
| Утверждён: | 06.05.1965 Государственный производственный комитет по транспортному строительству (110) |
















































