Скачать Типовой проект 501-5 Часть III. Раздел 2. Пролетные строения для автодорожных и городских мостов и путепроводов. Балочные бездиафрагменные пролетные строения. Цельноперевозимые балки длиной от 12 до 33 м, армированные горизонтальными пучкамиДата актуализации: 01.01.2021
|
| Обозначение: | Типовой проект 501-5 |
| Обозначение англ: | 501-5 |
| Статус: | действует |
| Название рус.: | Часть III. Раздел 2. Пролетные строения для автодорожных и городских мостов и путепроводов. Балочные бездиафрагменные пролетные строения. Цельноперевозимые балки длиной от 12 до 33 м, армированные горизонтальными пучками |
| Дата добавления в базу: | 01.09.2013 |
| Дата актуализации: | 01.01.2021 |
| Дата введения: | 01.09.1965 |
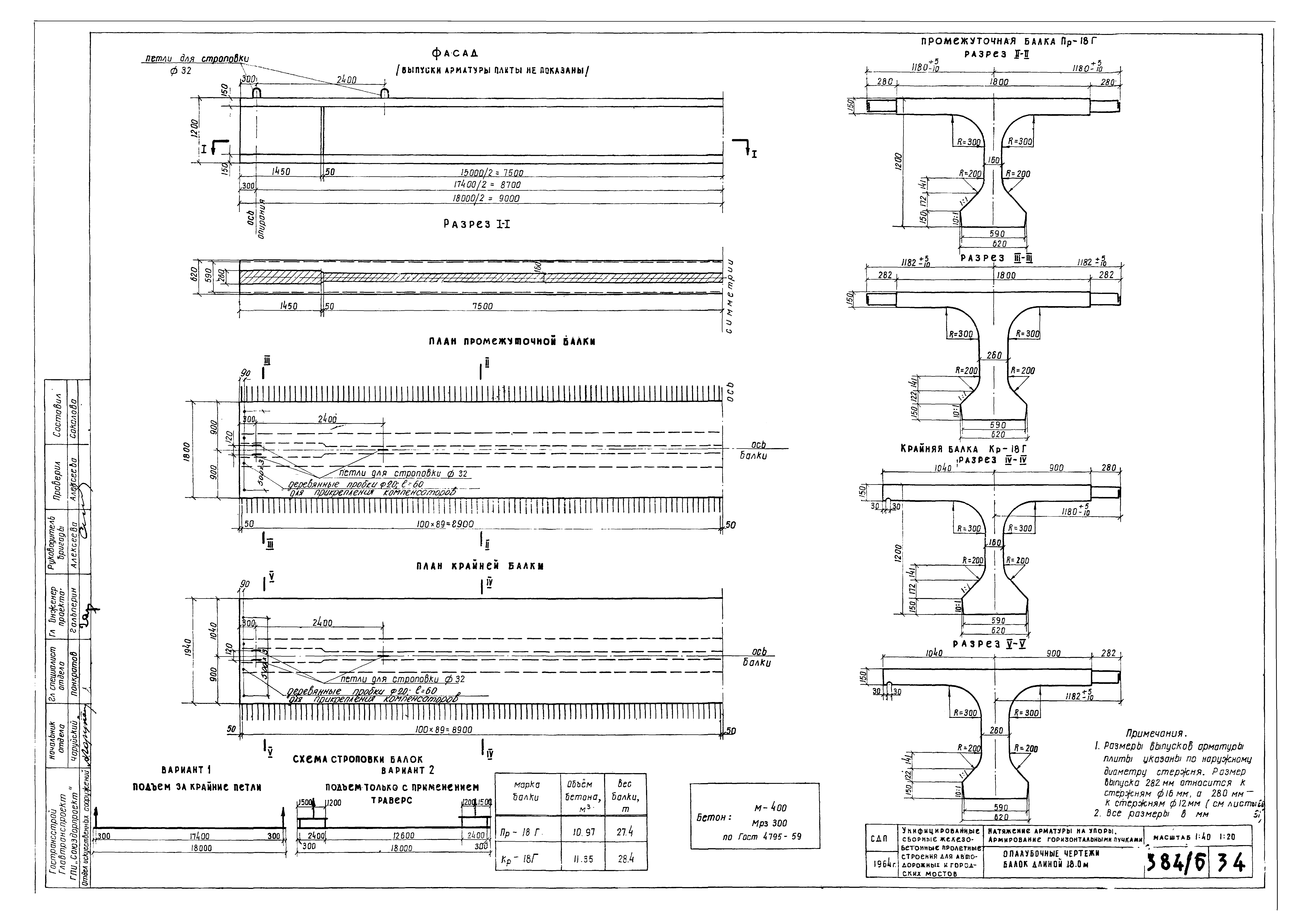
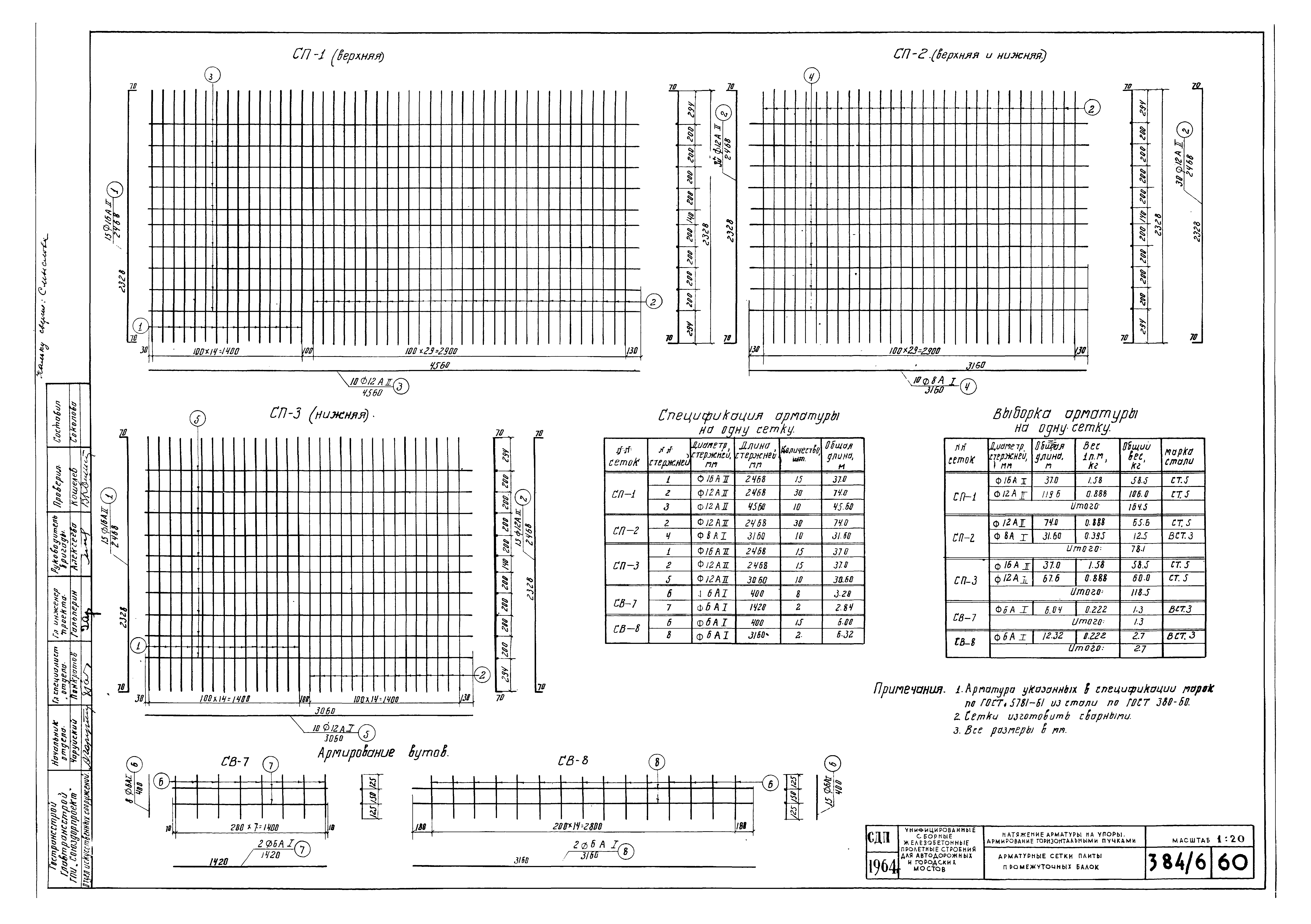
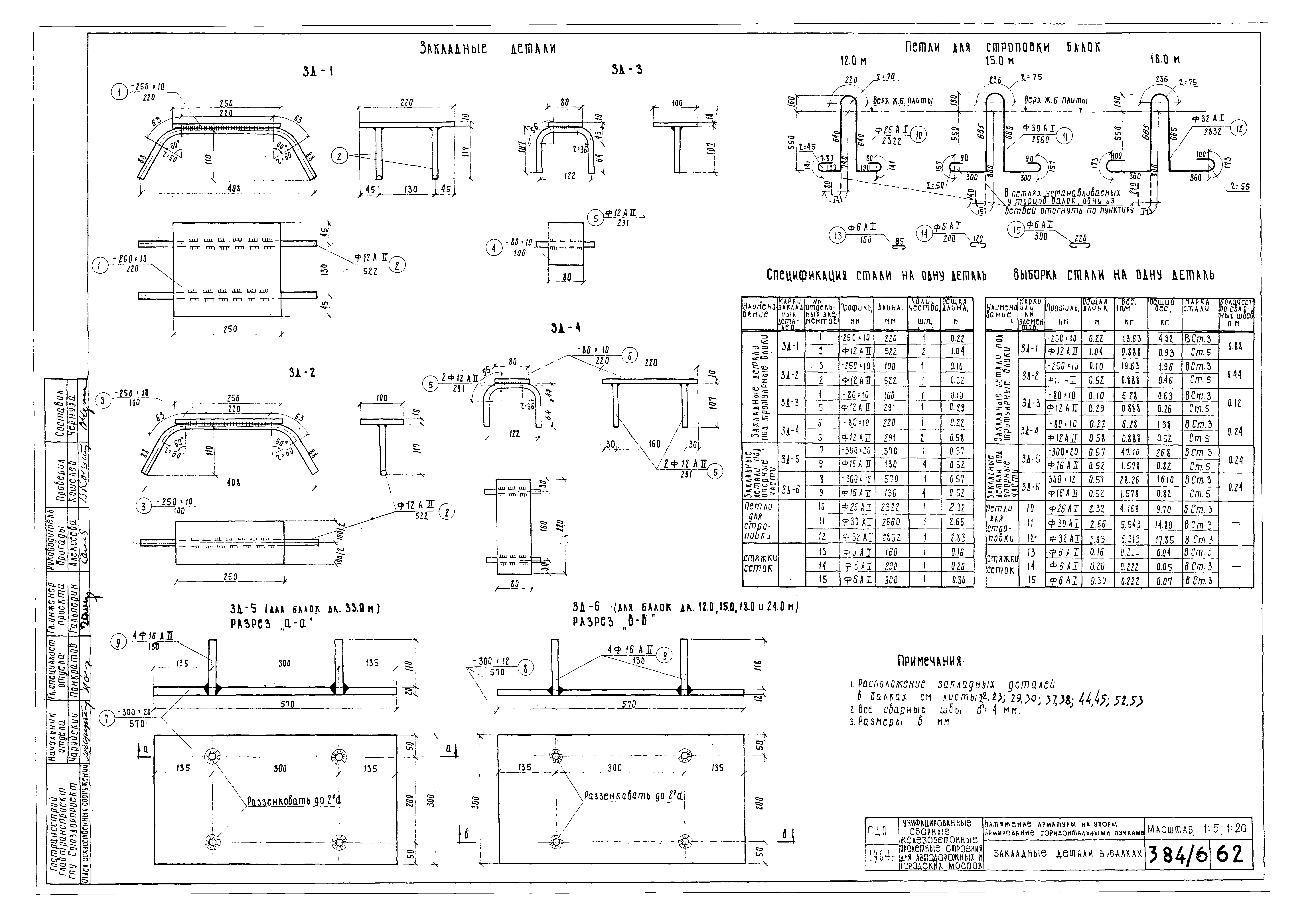
| Оглавление: | Пояснения Общие технологические требования по составу бетона, его укладке, температурному режиму и отпуску натяжений Расчетные листы Сводные таблицы расхода материалов Общий вид пролетного строения длиной 12 и 15 м (Н = 90 см). Поперечные разрезы Общий вид пролетных строений длиной 12 м. Фасад и таблицы показателей Опалубочные чертежи балок длиной 12 м Армирование предварительно напряженной арматурой крайней и промежуточной балок длиной 12 м Армирование ненапрягаемой арматурой крайней балки длиной 12 м Армирование ненапрягаемой арматурой промежуточной балки длиной 12 м Монтажная схема арматурных сеток и каркасов балок длиной 12 м Общий вид пролетного строения длиной 15 м. Фасад и таблицы показателей Опалубочные чертежи балок длиной 15 м Армирование предварительно напряженной арматурой крайней балки длиной 15 м Армирование предварительно напряженной арматурой промежуточной балки длиной 15 м Армирование ненапрягаемой арматурой крайней балки длиной 15 м Армирование ненапрягаемой арматурой промежуточной балки длиной 15 м Монтажная схема арматурных сеток и каркасов балок длиной 15 м Общий вид пролетных строений длиной 18 и 24 м. Поперечные разрезы (Н = 1,20 м) Общий вид пролетного строения длиной до 18 м. Фасад и таблицы показателей Опалубочный чертеж балки длиной 18 м Армирование предварительно напряженной арматурой крайней балки длиной 18 м Армирование предварительно напряженной арматурой промежуточной балки длиной 18 м Армирование ненапрягаемой арматурой крайней балки длиной 18 м Армирование ненапрягаемой арматурой промежуточной балки длиной 18 м Монтажная схема арматурных сеток и каркасов балок длиной 18 м Общий вид пролетного строения длиной 24 м. Фасад и таблицы показателей Опалубочные чертежи балок длиной 24 м Армирование предварительно напряженной арматурой крайней балки длиной 24 м Армирование предварительно напряженной арматурой промежуточной балки длиной 24 м Армирование ненапрягаемой арматурой крайней балки длиной 24 м Армирование ненапрягаемой арматурой промежуточной балки длиной 24 м Монтажная схема арматурных сеток и каркасов балок длиной 24 м Общий вид пролетного строения длиной 33 м (Н = 1,50 м). Поперечные разрезы Общий вид пролетного строения длиной 33 м. Фасад и таблицы показателей Опалубочные чертежи балок длиной 33 м Армирование предварительно напряженной арматурой крайней балки длиной 33 м Армирование предварительно напряженной арматурой промежуточной балки длиной 33 м Армирование ненапрягаемой арматурой крайней балки длиной 33 м Армирование ненапрягаемой арматурой промежуточной балки длиной 33 м Монтажная схема арматурных сеток и каркасов балок длиной 33 м Конструкция и расположения фиксаторов между сетками Конструкция каркасно-стержневого анкера Арматурные сетки ребер балок Н = 0,9 м, Н = 1,20 м Арматурные сетки ребер балок Н = 1,50 м Арматурные каркасы нижнего пояса балки Арматурные сетки плиты промежуточных балок Арматурные сетки плиты крайних балок Закладные детали в балках Расход стали на закладные детали в балках Поперечное соединение балок Опорные части Схема разбивки тротуарных блоков и подтротуарных балок для пролетов длиной 12 и 15 м Схема разбивки тротуарных блоков и подтротуарных балок для пролетов длиной 12 м Схема разбивки тротуарных блоков и подтротуарных балок для пролета длиной 24 м Схема разбивки тротуарных блоков и подтротуарных балок для пролета длиной 33 м Детали установки тротуарных блоков и перильного ограждения Схема установки балок стреловыми кранами Схема монтажа агрегатом АМК-20Г-7 Схема монтажа пролетных строений шлюзовым краном Схема монтажа пролетных строений портальными (козловыми) кранами Схема продольно-поперечной перекатки балок на тележках в уровне верха опор по эстакадам Схемы перевозки балок пролетных строений автотранспортом Схемы перевозки балок пролетных строений на прицепах-тяжеловозах |
| Разработан: | ГПИ Союздорпроект |
| Утверждён: | 06.05.1965 Государственный производственный комитет по транспортному строительству (110) |















































































