Скачать Серия 3.505.1-15 Выпуск 0. Часть 1. Материалы для проектирования. Монтажные схемы набережных, узлы соединения изделий и армирование монолитных железобетонных конструкцийДата актуализации: 01.01.2021
|
| Обозначение: | Серия 3.505.1-15 |
| Обозначение англ: | Series 3.505.1-15 |
| Статус: | не действует |
| Название рус.: | Выпуск 0. Часть 1. Материалы для проектирования. Монтажные схемы набережных, узлы соединения изделий и армирование монолитных железобетонных конструкций |
| Дата добавления в базу: | 01.09.2013 |
| Дата актуализации: | 01.01.2021 |
| Дата введения: | 01.04.1980 |
| Дата окончания срока действия: | 01.11.1991 |
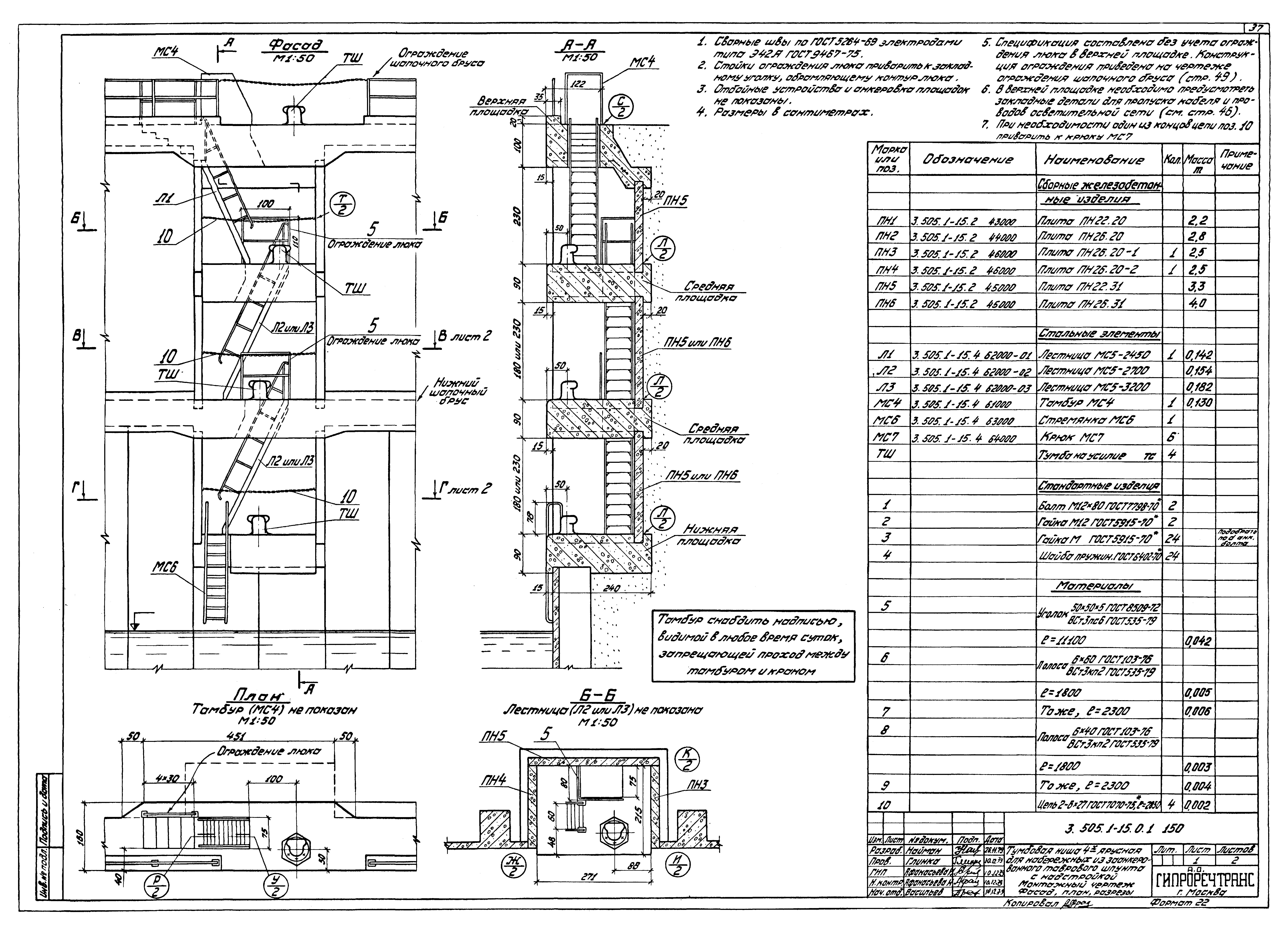
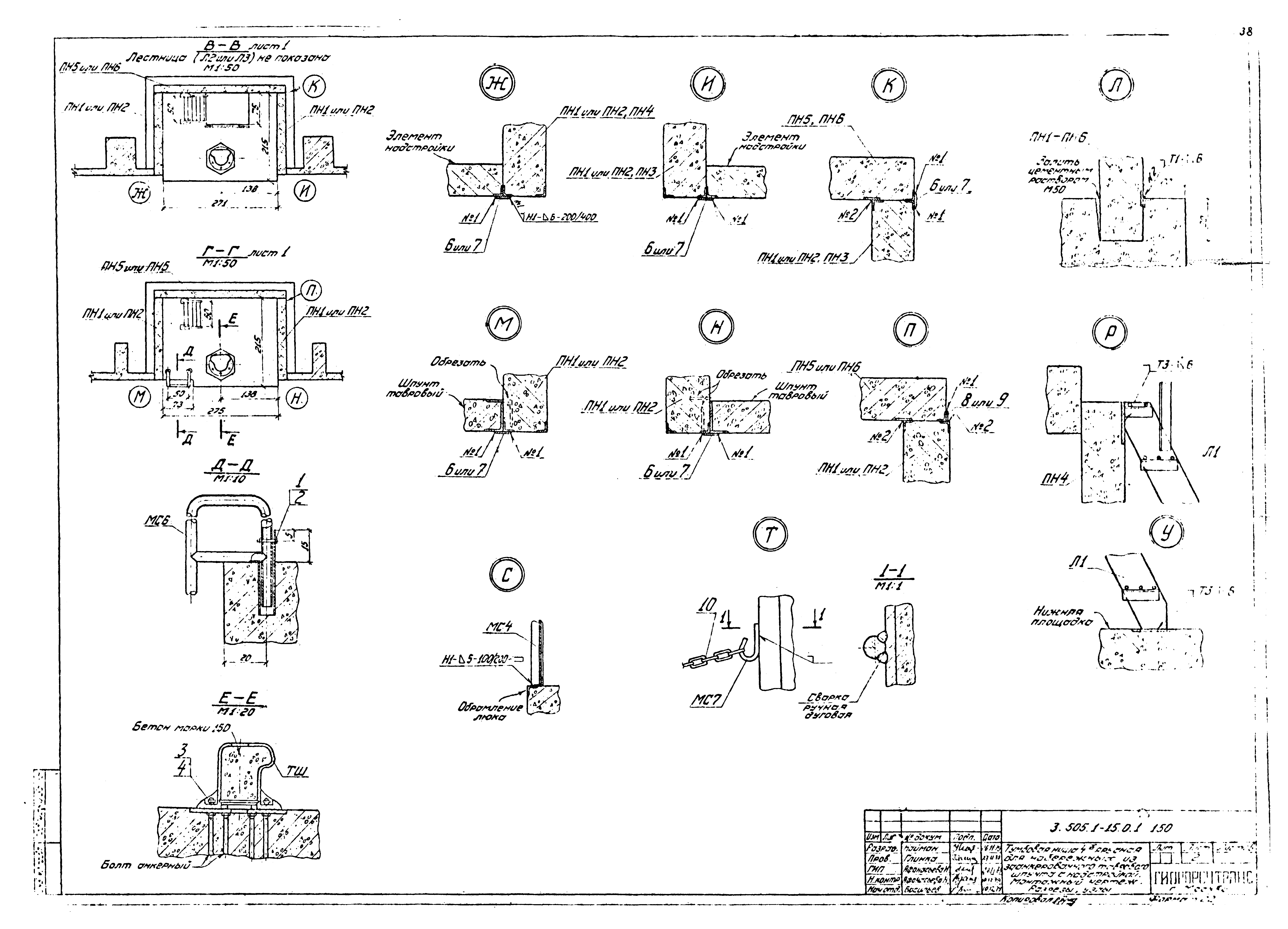
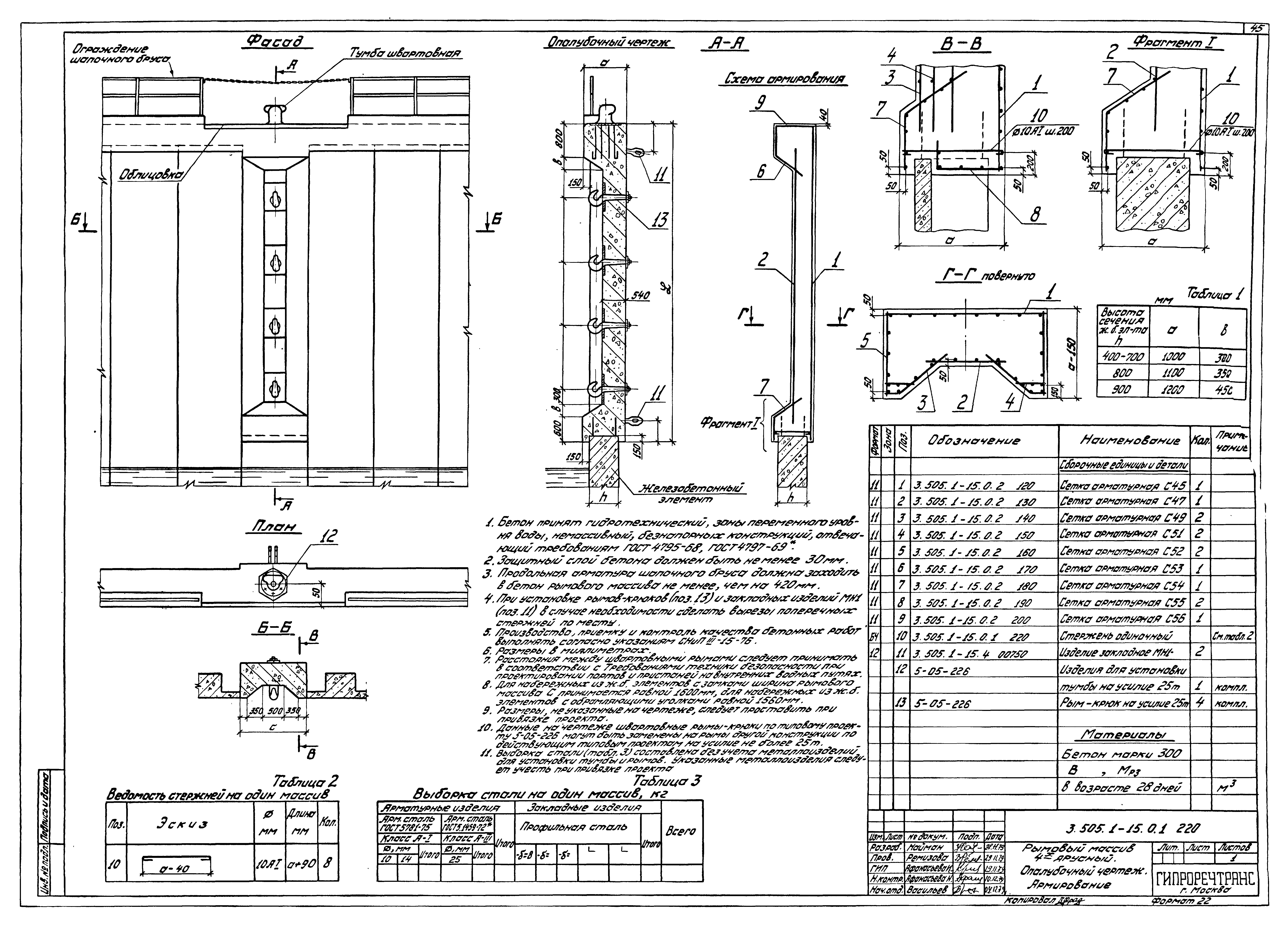
| Оглавление: | 3.505.1-15.0.1 000 Д Общие данные 3.505.1-15.0.1 000 ПЗ Пояснительная записка 3.505.1-15.0.1 000 ВД Ведомость ссылочных документов 3.505.1-15.0.1 010 Набережная из заанкерованного железобетонного таврового шпунта. Фасад, план 3.505.1-15.0.1 010 Набережная из заанкерованного железобетонного таврового шпунта. Разрезы 3.505.1-15.0.1 020 Набережная из заанкерованного железобетонного таврового шпунта с надстройкой. Фасад, план 3.505.1-15.0.1 020 Набережная из заанкерованного железобетонного таврового шпунта с надстройкой. Разрезы 3.505.1-15.0.1 020 Набережная из заанкерованного железобетонного таврового шпунта с надстройкой. Монтаж элемента надстройки 3.505.1-15.0.1 030 Набережная из заанкерованного железобетонного прямоугольного шпунта. Фасад, план 3.505.1-15.0.1 030 Набережная из заанкерованного железобетонного прямоугольного шпунта. Разрезы 3.505.1-15.0.1 030 Набережная из заанкерованного железобетонного прямоугольного шпунта. Перекрытие швов между шпунтами. Вариант 1 3.505.1-15.0.1 030 Набережная из заанкерованного железобетонного прямоугольного шпунта. Перекрытие швов между шпунтами. Вариант 2 3.505.1-15.0.1 040 Набережная из заанкерованного железобетонного таврового шпунта с наклонными анкерующими сваями. Фасад, план 3.505.1-15.0.1 040 Набережная из заанкерованного железобетонного таврового шпунта с наклонными анкерующими сваями. Разрезы 3.505.1-15.0.1 050 Набережная уголкового профиля. Фасад, план 3.505.1-15.0.1 050 Набережная уголкового профиля. Разрезы 3.505.1-15.0.1 050 Набережная уголкового профиля. Монтаж элементов насухо 3.505.1-15.0.1 050 Набережная уголкового профиля. Монтаж элементов в воду собранными блоками 3.505.1-15.0.1 050 Набережная уголкового профиля. Монтаж в воду отдельными элементами 3.505.1-15.0.1 060 Монтаж анкерной тяги из 2-х звеньев 3.505.1-15.0.1 070 Монтаж анкерной тяги из 3-х звеньев 3.505.1-15.0.1 080 Ниша для выхода судовых команд в набережных из заанкерованного таврового шпунта и уголкового профиля при строительстве в воду. Монтажный чертеж 3.505.1-15.0.1 090 Ниша для выхода судовых команд в набережных уголкового профиля при строительстве насухо. Монтажный чертеж 3.505.1-15.0.1 100 Ниша для выхода судовых команд в набережных из заанкерованного прямоугольного шпунта. Монтажный чертеж 3.505.1-15.0.1 110 Ниша для выхода судовых команд в набережных из железобетонного шпунта с наклонными анкерующими сваями. Монтажный чертеж 3.505.1-15.0.1 120 Тумбовая ниша 2-х ярусная для набережных из заанкерованного таврового шпунта и уголкового профиля при строительстве в воду. Монтажный чертеж 3.505.1-15.0.1 130 Тумбовая ниша 2-х ярусная для набережных из заанкерованного таврового шпунта с надстройкой и уголкового профиля при строительстве насухо. Монтажный чертеж 3.505.1-15.0.1 140 Тумбовая ниша 3-х ярусная. Монтажный чертеж. Фасад, план, разрезы 3.505.1-15.0.1 140 Тумбовая ниша 3-х ярусная. Монтажный чертеж. Разрезы и узлы 3.505.1-15.0.1 150 Тумбовая ниша 4-х ярусная для набережных из заанкерованного таврового шпунта с надстройкой. Монтажный чертеж. Фасад, план, разрезы 3.505.1-15.0.1 150 Тумбовая ниша 4-х ярусная для набережных из заанкерованного таврового шпунта с надстройкой. Монтажный чертеж. Разрезы, узлы 3.505.1-15.0.1 160 Нижние площадки ниш для выхода судовых команд в набережных с лицевыми элементами таврового сечения НПм5.15, НПм6.15 3.505.1-15.0.1 170 Нижние площадки ниш для выхода судовых команд в набережных с лицевыми элементами прямоугольного сечения НПм5.15-1, НПм6.15-1 3.505.1-15.0.1 180 Нижняя площадка 2-х ярусной тумбовой ниши Нпм9.19 3.505.1-15.0.1 190 Нижняя площадка 3-х и 4-х ярусных тумбовых ниш Нпм9.25 3.505.1-15.0.1 200 Средние площадки тумбовых ниш СПм9,25 СПм9,25-1 3.505.1-15.0.1 210 Рымовый массив 3-х ярусный. Опалубочный чертеж. Армирование 3.505.1-15.0.1 220 Рымовый массив 4-х ярусный. Опалубочный чертеж. Армирование 3.505.1-15.0.1 230 Шапочный брус. Опалубочный чертеж 3.505.1-15.0.1 230 Шапочный брус. Армирование 3.505.1-15.0.1 240 Нижний шапочный брус набережной из заанкерованного шпунта с надстройкой. Опалубочный чертеж. Схема армирования 3.505.1-15.0.1 250 Ограждение шапочного бруса. Монтажный чертеж |
| Разработан: | Гипроречтранс |
| Утверждён: | 28.03.1980 Министерство речного флота СССР |

















































