Скачать Серия 3.505.1-15 Выпуск 2. Сборные железобетонные изделия (без предварительного напряжения)Дата актуализации: 01.01.2021
|
| Обозначение: | Серия 3.505.1-15 |
| Обозначение англ: | Series 3.505.1-15 |
| Статус: | не действует |
| Название рус.: | Выпуск 2. Сборные железобетонные изделия (без предварительного напряжения) |
| Дата добавления в базу: | 01.09.2013 |
| Дата актуализации: | 01.01.2021 |
| Дата введения: | 01.04.1980 |
| Дата окончания срока действия: | 01.11.1991 |
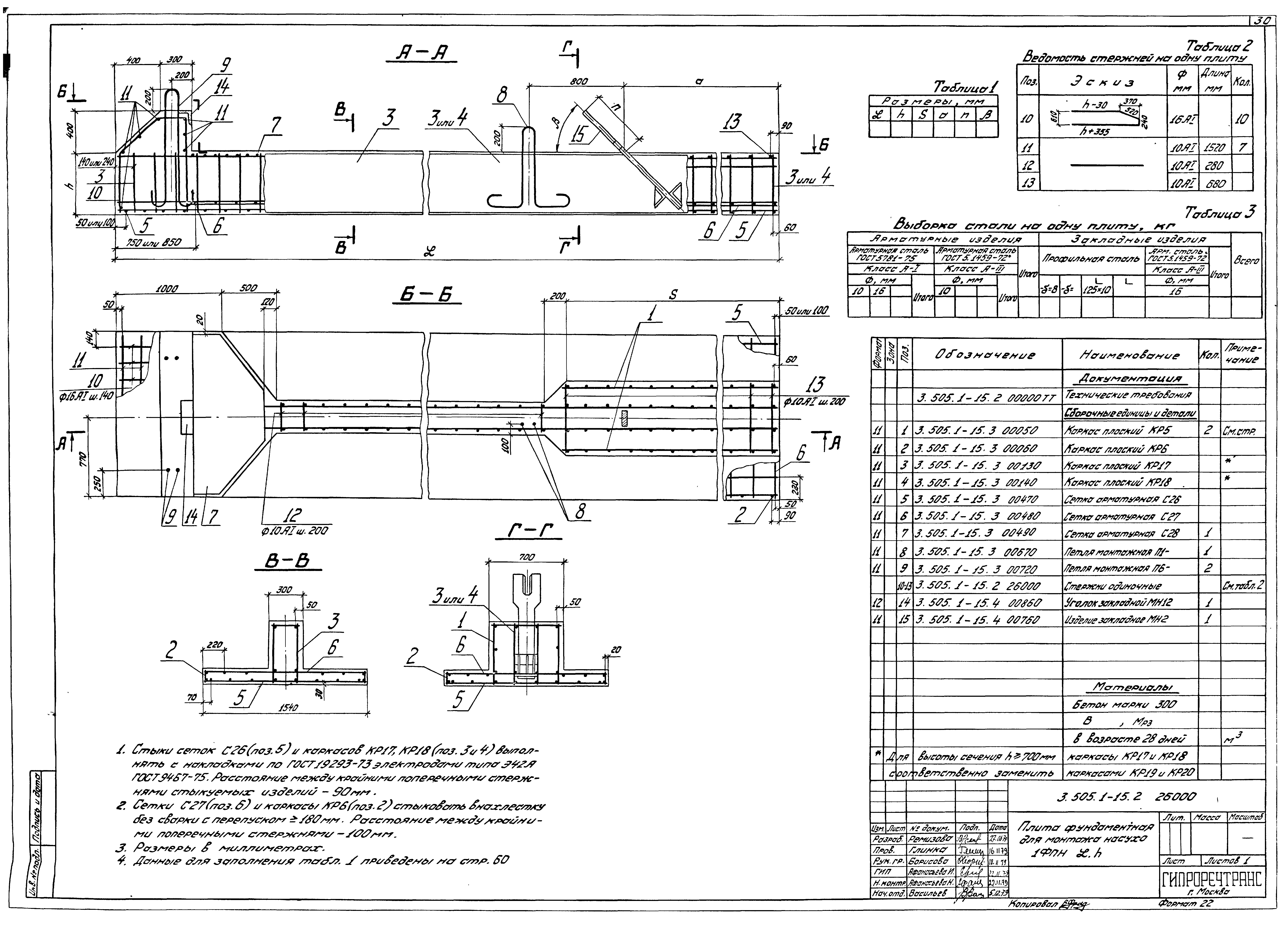
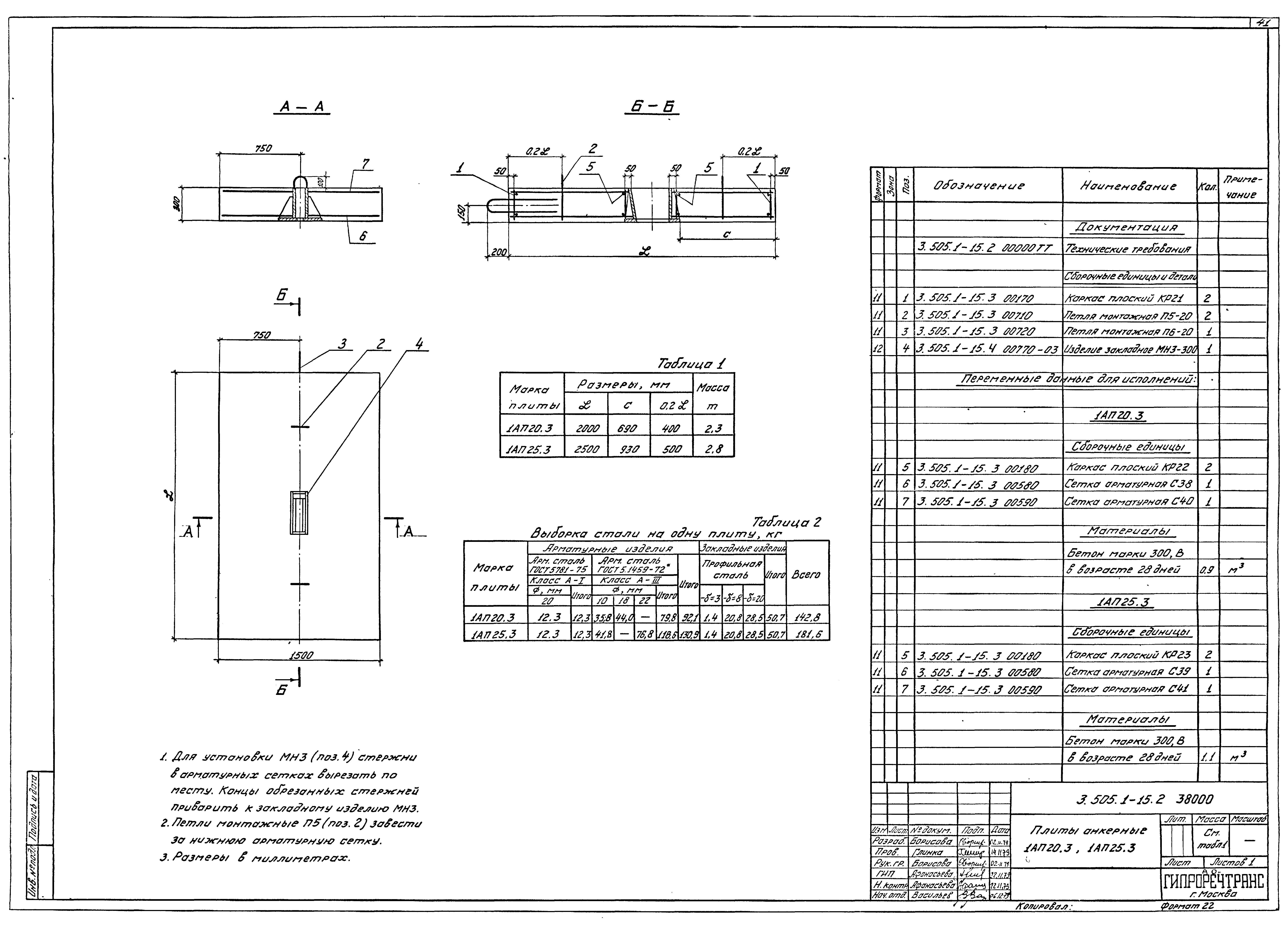
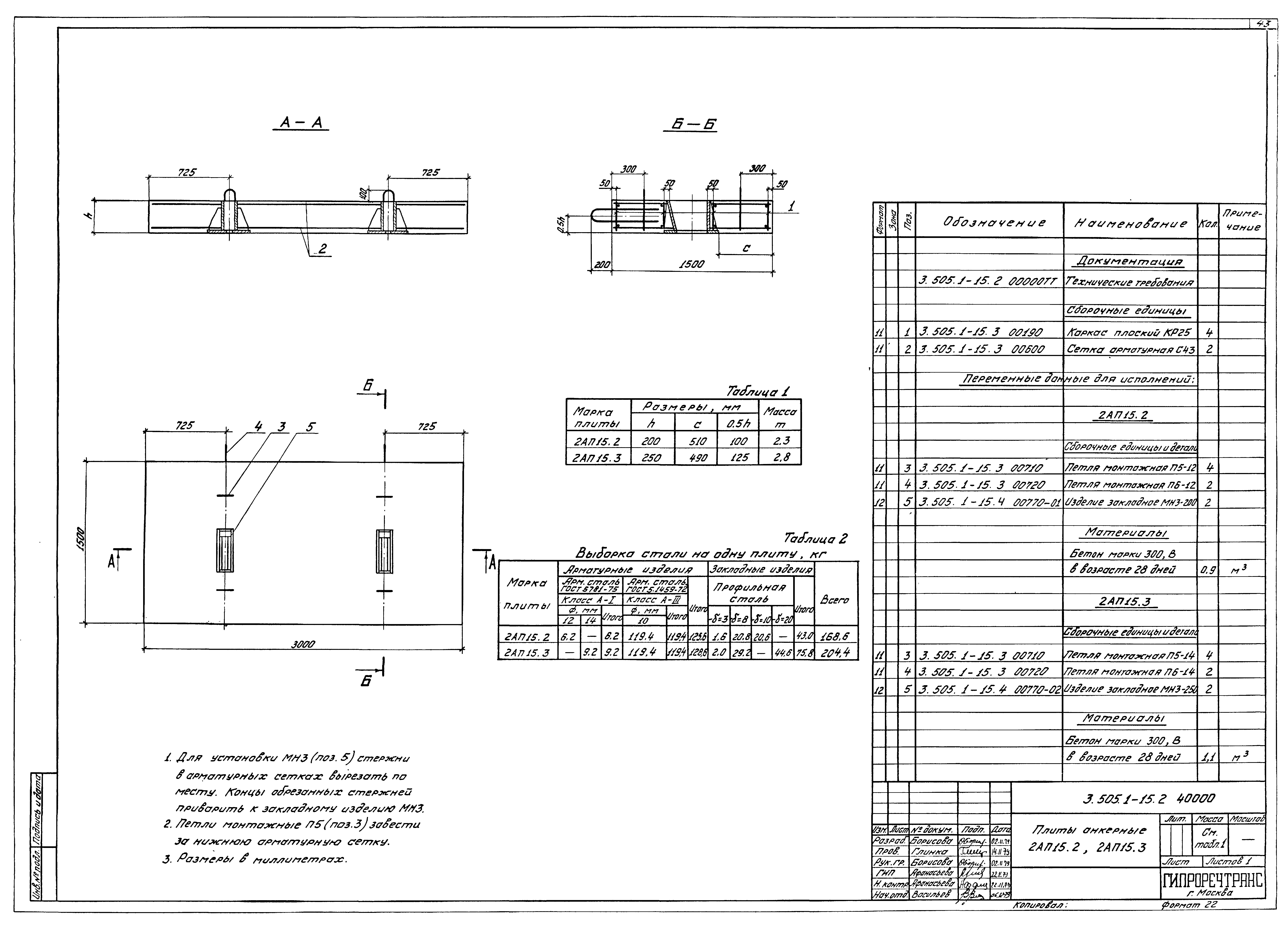
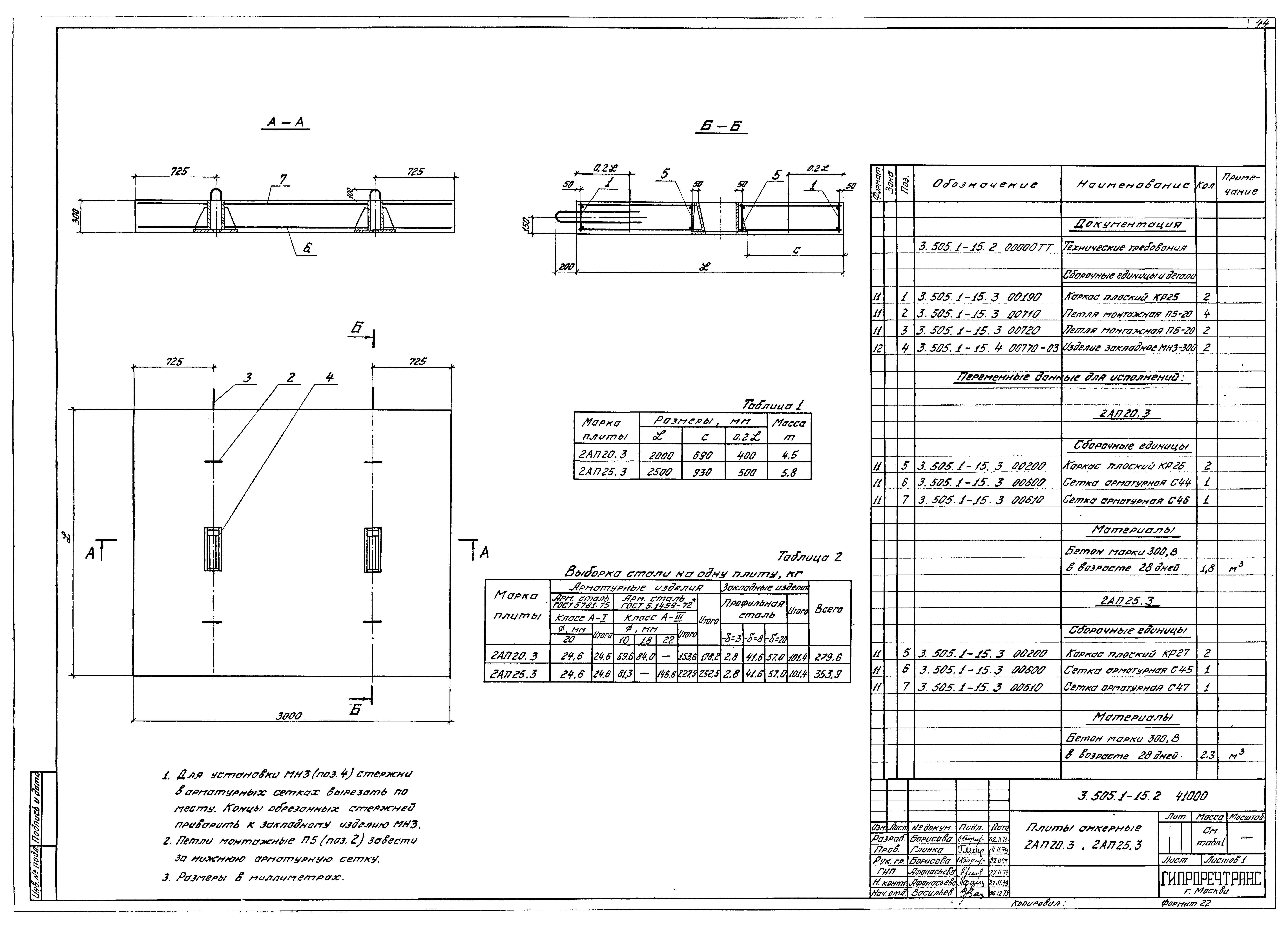
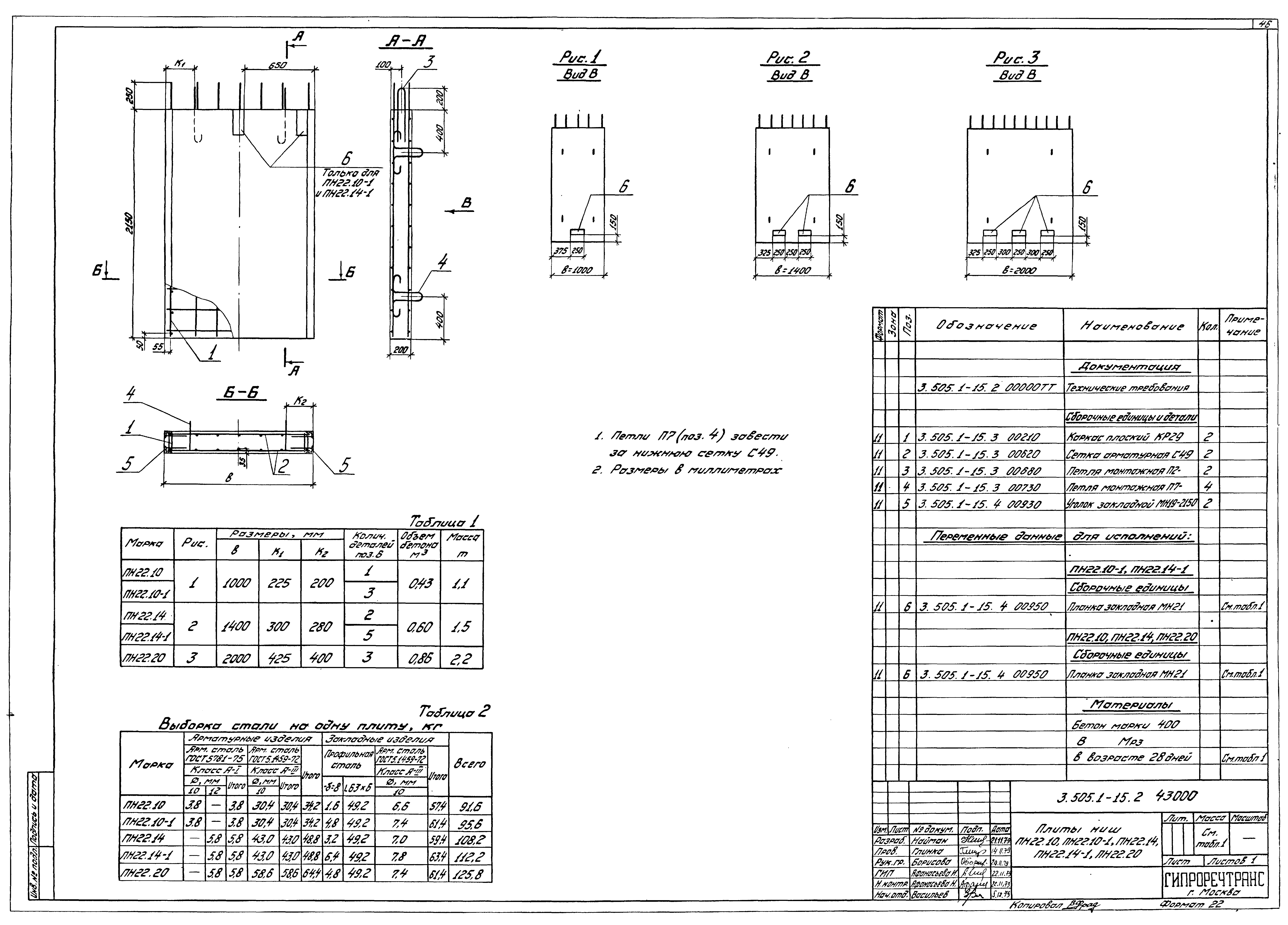
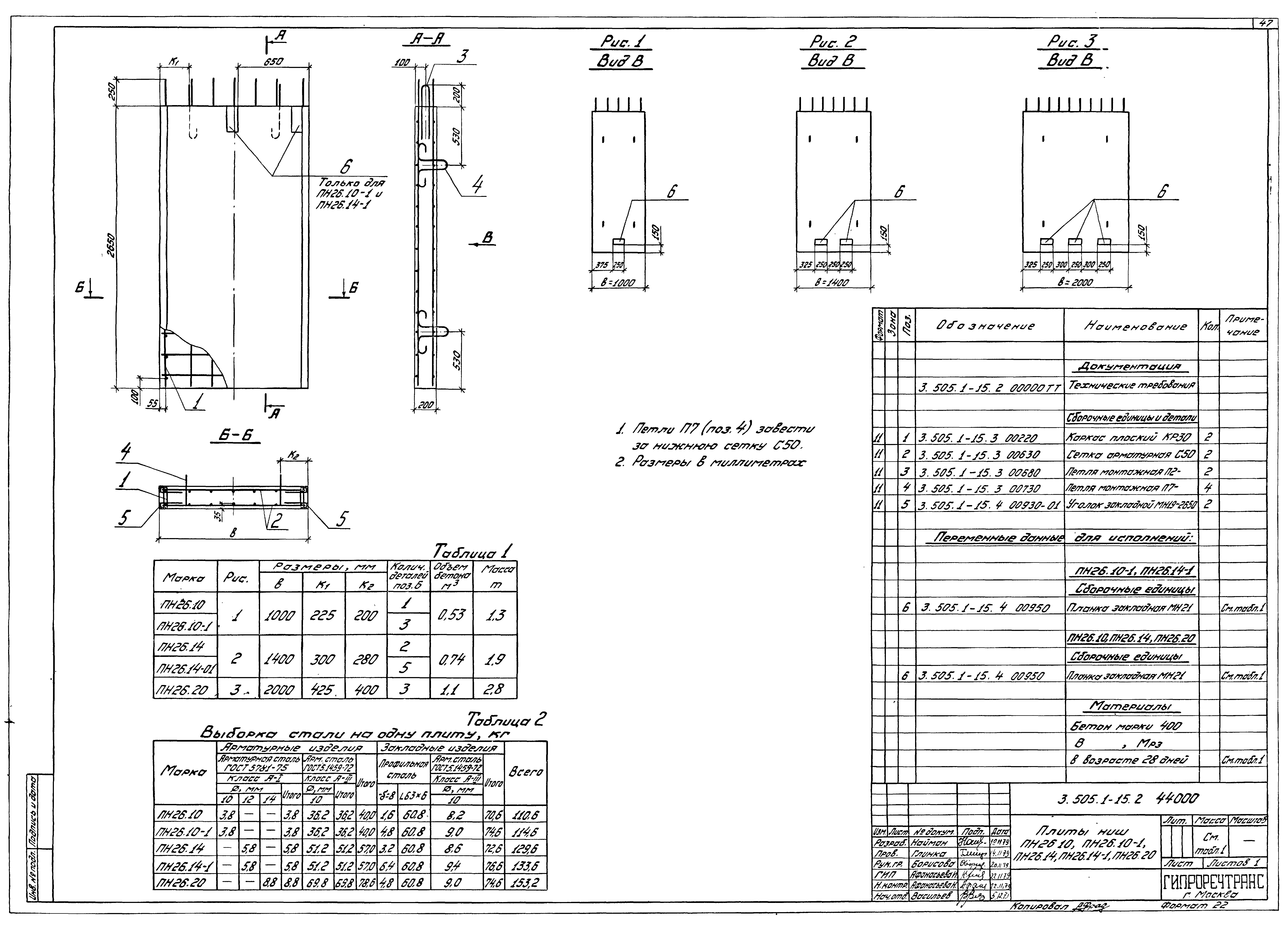
| Оглавление: | 3.505.1-15.2 00000ПЗ Пояснительная записка 3.505.1-15.2 00000ВД Ведомость ссылочных документов 3.505.1-15.2 14000 Шпунт тавровый (без предварительного напряжения) для погружения в грунт вибратором ШТВ 3.505.1-15.2 15000 Шпунт тавровый (без предварительного напряжения) для погружения в грунт подмывом ШТП 3.505.1-15.2 16000 Шпунт тавровый (без предварительного напряжения) для погружения в грунт вибратором ШТВ-1 3.505.1-15.2 17000 Шпунт тавровый (без предварительного напряжения) для погружения в грунт подмывом ШТП-1 3.505.1-15.2 18000 Шпунт прямоугольный (без предварительного напряжения) ШП 3.505.1-15.2 19000 Элемент вертикальный (без предварительного напряжения) для монтажа насухо 1ВЭН 3.505.1-15.2 20000 Элемент вертикальный (без предварительного напряжения) для монтажа в воду собранными блоками 1ВЭБ 3.505.1-15.2 21000 Элемент вертикальный (без предварительного напряжения) для монтажа в воду отдельными элементами 1ВЭО 3.505.1-15.2 22000 Элемент надстройки (без предварительного напряжения) ЭН 3.505.1-15.2 23000 Элемент вертикальный (без предварительного напряжения) для монтажа насухо 2ВЭН 3.505.1-15.2 24000 Элемент вертикальный (без предварительного напряжения) для монтажа в воду собранными блоками 2ВЭБ 3.505.1-15.2 25000 Элемент вертикальный (без предварительного напряжения) для монтажа в воду отдельными элементами 2ВЭО 3.505.1-15.2 26000 Плита фундаментная для монтажа насухо 1ФПН 3.505.1-15.2 27000 Плита фундаментная для монтажа в воду собранными блоками 1ФПБ 3.505.1-15.2 28000 Плита фундаментная для монтажа в воду отдельными элементами 1ФПО 3.505.1-15.2 29000 Плита фундаментная для монтажа насухо 2ФПН 3.505.1-15.2 30000 Плита фундаментная для монтажа в воду собранными блоками 2ФПБ 3.505.1-15.2 31000 Плита фундаментная для монтажа в воду отдельными элементами 2ФПО 3.505.1-15.2 32000 Плита фундаментная для монтажа насухо ФКН 3.505.1-15.2 33000 Плита фундаментная для монтажа в воду собранными блоками ФКБ 3.505.1-15.2 34000 Плита фундаментная для монтажа в воду отдельными элементами ФКО 3.505.1-15.2 35000 Плита анкерная 1АП10.2 3.505.1-15.2 36000 Плита анкерная 2АП10.2 3.505.1-15.2 37000 Плиты анкерные 1АП15.2, 1АП15.3 3.505.1-15.2 38000 Плиты анкерные 1АП20.3, 1АП25.3 3.505.1-15.2 39000 Плиты анкерные 1АП25.4, 1АП30.4 3.505.1-15.2 40000 Плиты анкерные 2АП15.2, 2АП15.3 3.505.1-15.2 41000 Плиты анкерные 2АП20.3, 2АП25.3 3.505.1-15.2 42000 Плиты анкерные 2АП25.4, 2АП30.4 3.505.1-15.2 43000 Плиты ниш ПН22.10, ПН22.10-1, ПН22.14, ПН22.14-1, ПН22.20 3.505.1-15.2 44000 Плиты ниш ПН26.10, ПН26.10-1, ПН26.14, ПН26.14-1, ПН26.20 3.505.1-15.2 45000 Плиты ниш ПН22.31, ПН26.31 3.505.1-15.2 46000 Плиты ниш ПН26.20-1, ПН26.20-2 3.505.1-15.2 00000ТТ Технические требования 3.505.1-15.2 00000ТБ Шпунт тавровый (без предварительного напряжения). Таблицы 3.505.1-15.2 00000ТБ Элементы вертикальные (без предварительного напряжения). Таблицы 3.505.1-15.2 00000ГР Шпунт тавровый, элементы вертикальные (без предварительного напряжения). Графики 3.505.1-15.2 00000ТБ Элементы надстройки (без предварительного напряжения). Таблицы 3.505.1-15.2 00000ТБ Шпунт прямоугольный (без предварительного напряжения). Таблицы 3.505.1-15.2 00000ТБ Плиты фундаментные 1ФНП, 1ФПБ, 1ФПО, ФКН, ФКБ, ФКО. Таблицы 3.505.1-15.2 00000ТБ Плиты фундаментные 2ФНП, 2ФПБ, 2ФПО. Таблицы |
| Разработан: | Гипроречтранс |
| Утверждён: | 28.03.1980 Министерство речного флота СССР |




























































