Скачать Типовой проект 407-3-631.92 Альбом 2. Схемы электрические принципиальные, планы, узлыДата актуализации: 01.01.2021
|
| Обозначение: | Типовой проект 407-3-631.92 |
| Обозначение англ: | 407-3-631.92 |
| Статус: | не определен законодательством |
| Название рус.: | Альбом 2. Схемы электрические принципиальные, планы, узлы |
| Дата добавления в базу: | 01.09.2013 |
| Дата актуализации: | 01.01.2021 |
| Дата введения: | 28.10.1992 |
| Дата окончания срока действия: | 30.06.2003 |
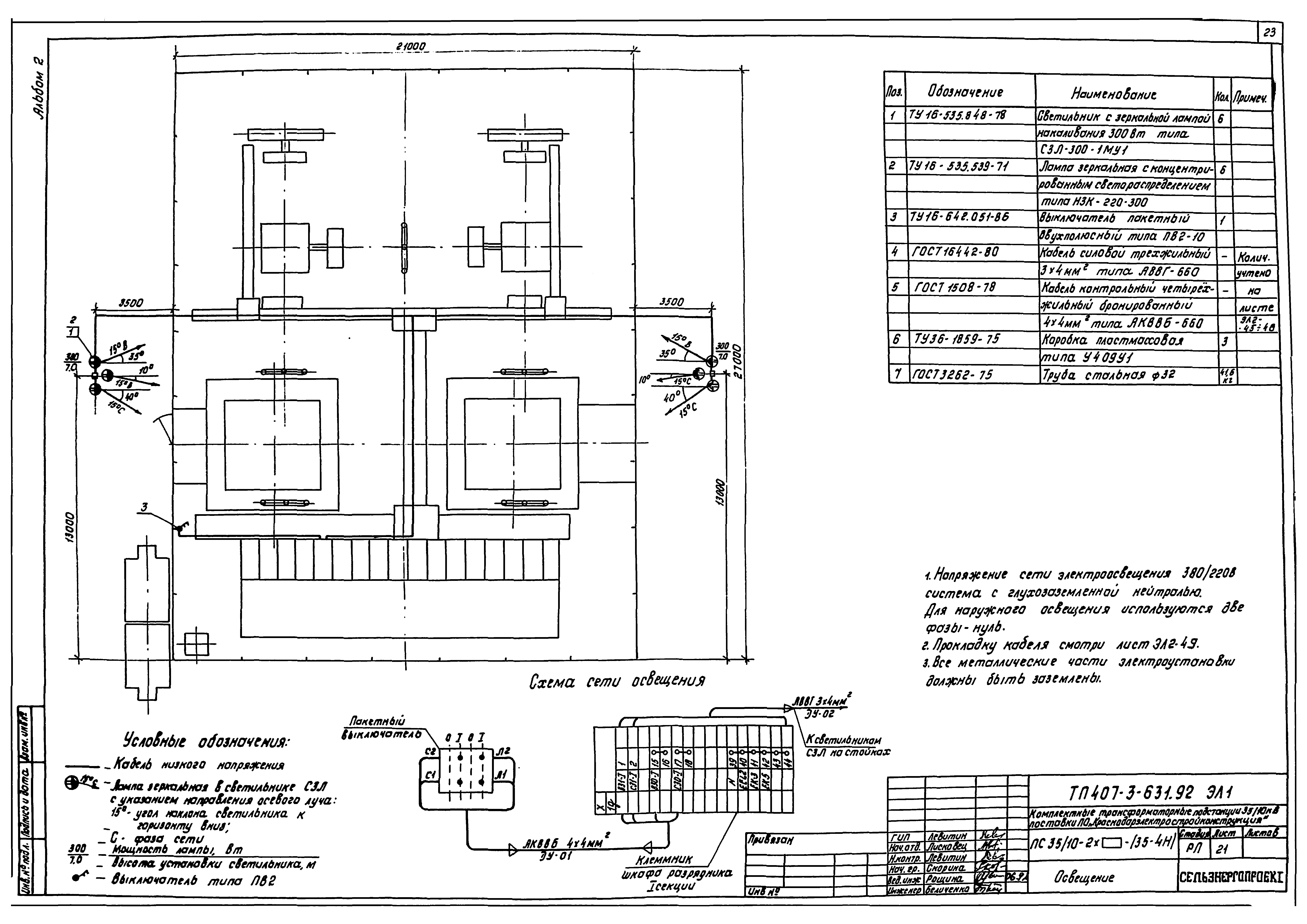
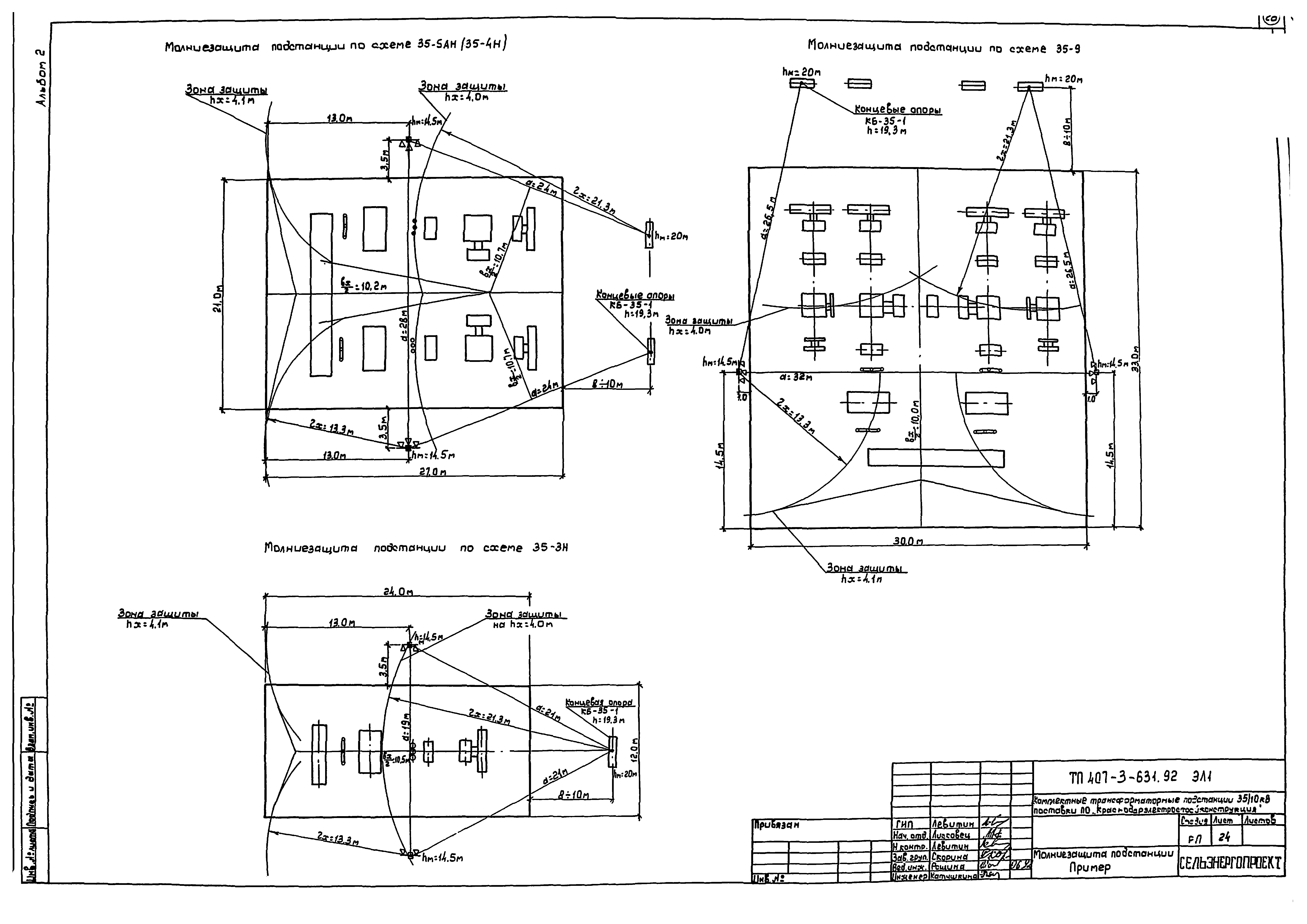
| Оглавление: | Содержание альбома 2 Схемы электрические принципиальные, планы, узлы "ЭЛ1" Общие данные Сетка схем ОРУ 35 кВ ПС 35/10 кВ ПС 35/10-1х - (35-3н). Схема электрических соединений подстанции ПС 35/10-2х - (35-4н). Схема электрических соединений подстанции ПС 35/10-2х - (35-5ан). Схема электрических соединений подстанции ПС 35/10-2х - (35-9). Схема электрических соединений подстанции ПС 35/10-1х - (35-3н). Вариант с АТС. Общий вид подстанции. План. Разрез А-А ПС 35/10-2х - (35-4н). Вариант с АТС. Общий вид подстанции. План ПС 35/10-2х - (35-4н). Вариант с АТС. Общий вид подстанции. Разрезы А-А и Б-Б ПС 35/10-2х - (35-5ан). Вариант с АТС. Общий вид подстанции. План ПС 35/10-2х - (35-5ан). Вариант с АТС. Общий вид подстанции. Разрезы А-А и Б-Б ПС 35/10-2х - (35-9). Вариант с АТС. Общий вид подстанции. План ПС 35/10-2х - (35-9). Вариант с АТС. Общий вид подстанции. Разрезы А-А и Б-Б ПС 35/10-2х - (35-4н). Вариант с ПУОС. Общий вид подстанции. План ПС 35/10-2х - (35-4н). Вариант с ПУОС. Общий вид подстанции. Разрезы А-А и Б-Б ПС 35/10-2х - (35-5ан). Вариант с ПУОС. Общий вид подстанции. План ПС 35/10-2х - (35-5ан). Вариант с ПУОС. Общий вид подстанции. Разрезы А-А и Б-Б ПС 35/10-2х - (35-9). Вариант с ПУОС. Общий вид подстанции. План ПС 35/10-2х - (35-9). Вариант с ПУОС. Общий вид подстанции. Разрезы А-А и Б-Б Освещение подстанции. ПС 35/10-1х - (35-3н) Освещение подстанции. ПС 35/10-2х - (35-4н) Освещение подстанции. ПС 35/10-2х - (35-5ан) Освещение подстанции. ПС 35/10-2х - (35-9) Молниезащита подстанции. Пример |
| Разработан: | Сельэнергопроект |
| Утверждён: | 28.10.1992 Сельэнергопроект (30-П) |
| Издан: | ЦИТП Госстроя СССР (CITP, Gosstroy (USSR) ) |


























