Скачать Типовой проект 503-7-14.88 Альбом 2. Архитектурные решения. Конструкции железобетонные. Отопление и вентиляция. Водопровод и канализацияДата актуализации: 01.01.2021
|
| Обозначение: | Типовой проект 503-7-14.88 |
| Обозначение англ: | 503-7-14.88 |
| Статус: | не определен законодательством |
| Название рус.: | Альбом 2. Архитектурные решения. Конструкции железобетонные. Отопление и вентиляция. Водопровод и канализация |
| Дата добавления в базу: | 01.09.2013 |
| Дата актуализации: | 01.01.2021 |
| Дата введения: | 15.09.1988 |
| Дата окончания срока действия: | 30.06.2003 |
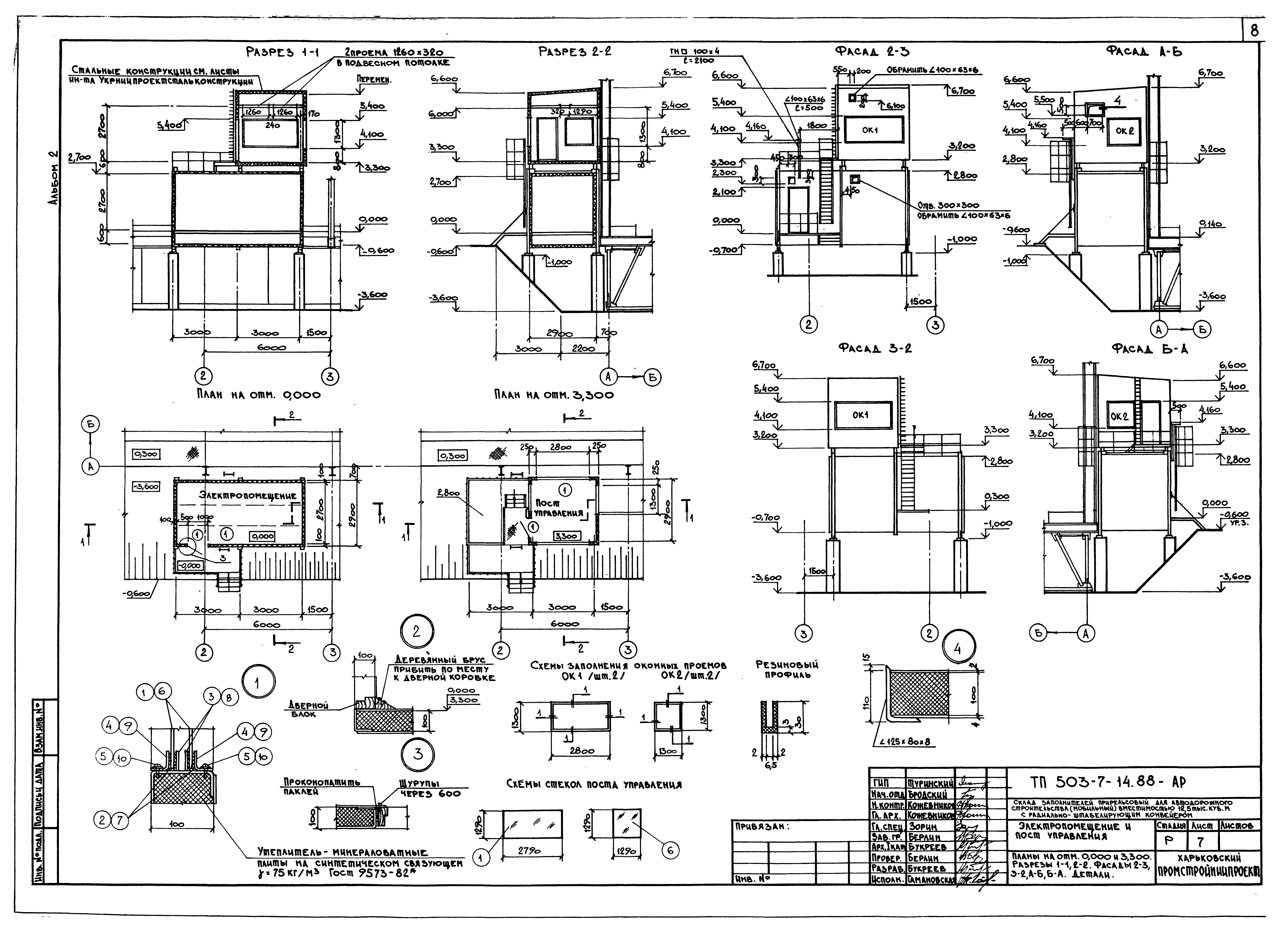
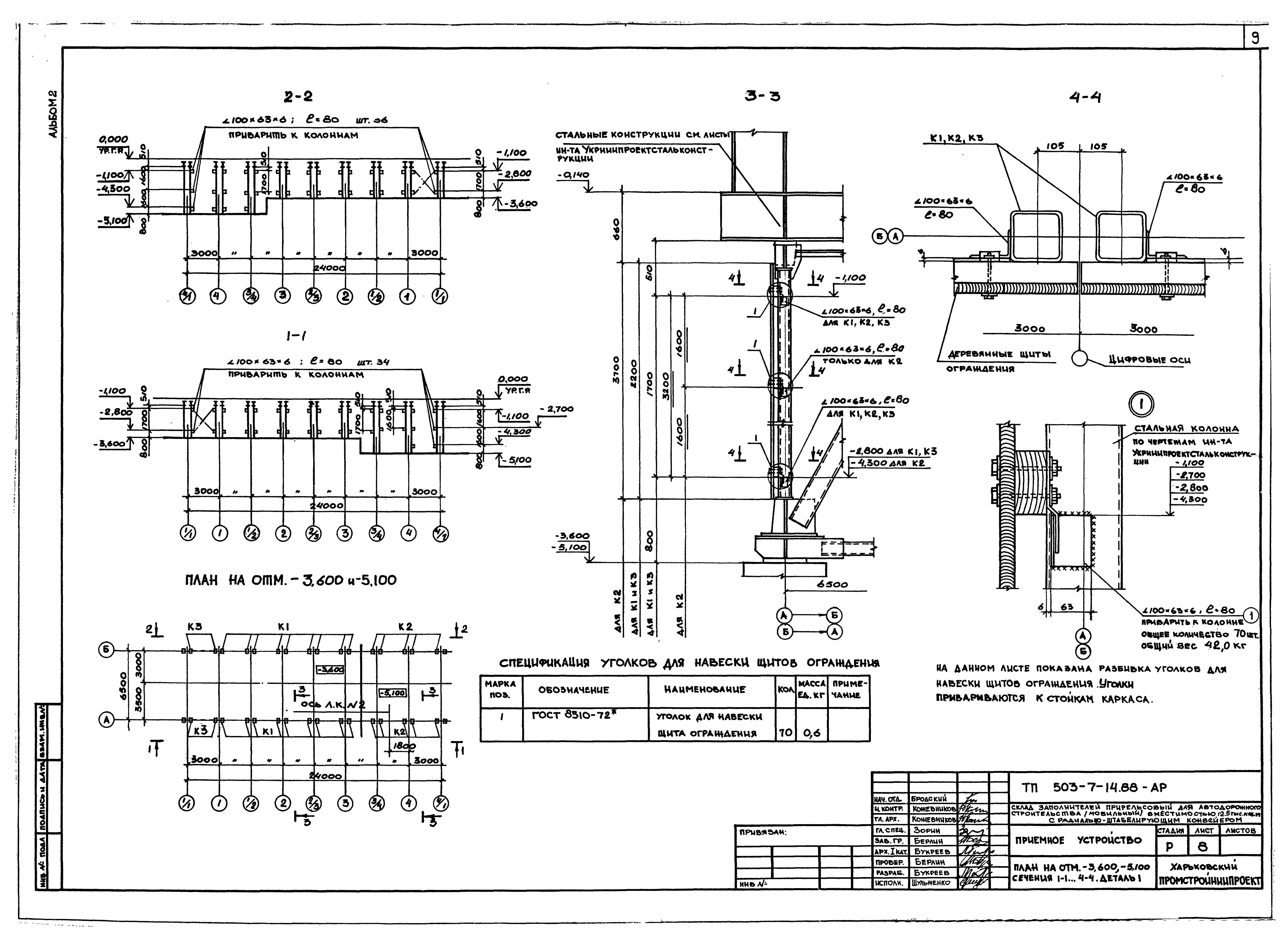
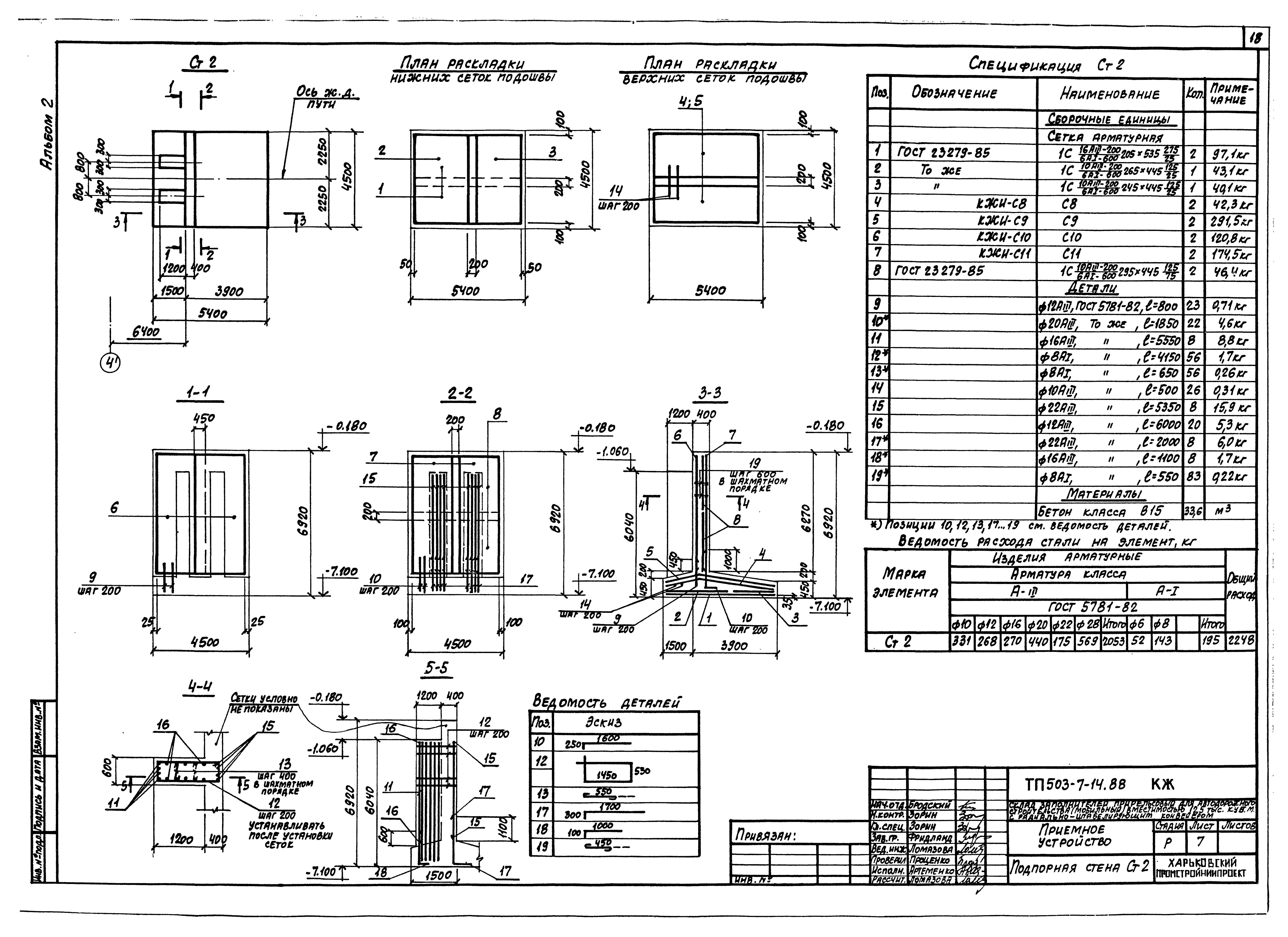
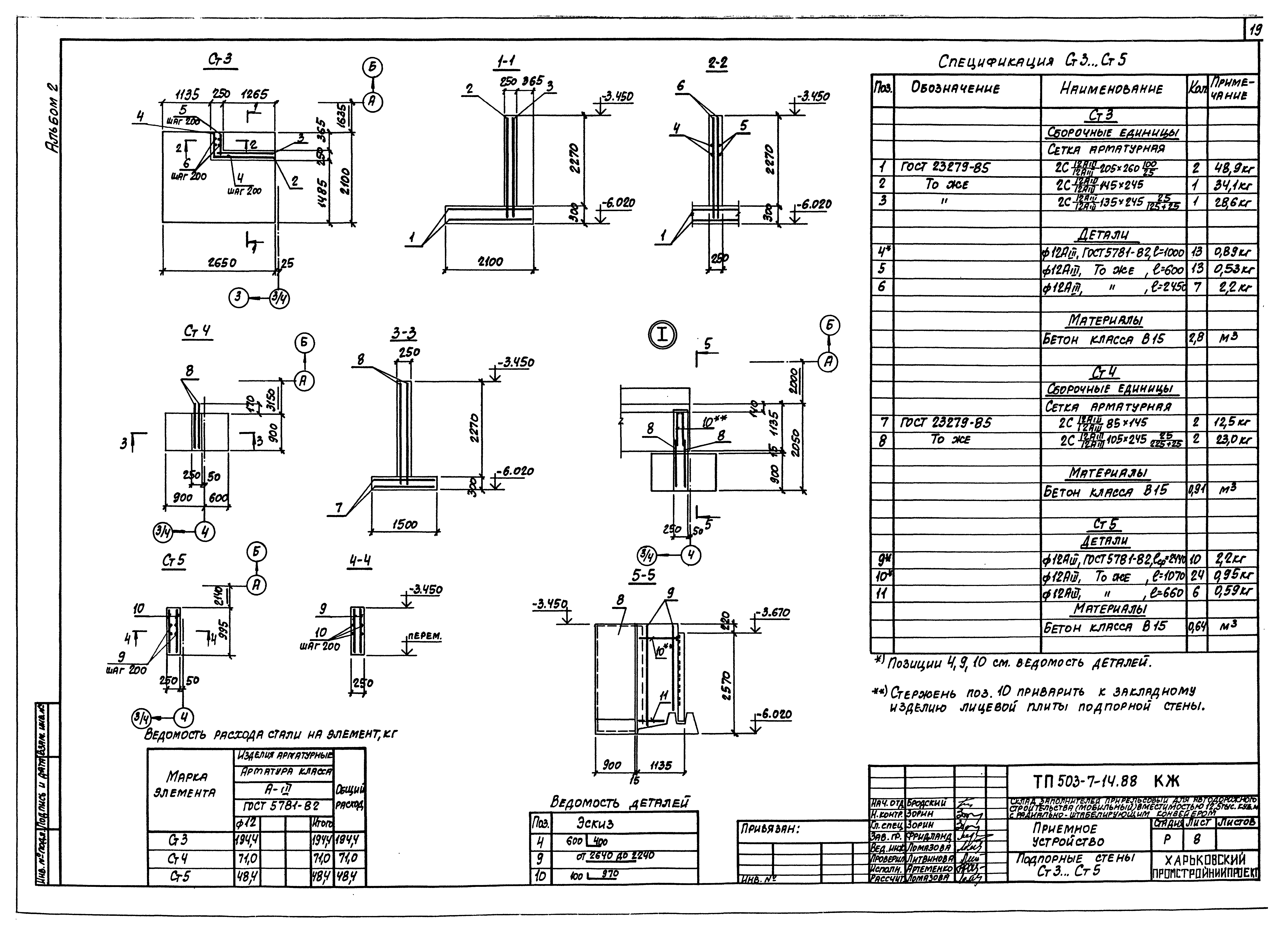
| Оглавление: | Чертежи основного комплекта марки АР Общие данные Схематический план склада Приемное устройство. Планы на отм. -3.600; - 5.100; 0.000; 0.300; 0.600; 6.000. План полов Приемное устройство. Разрезы 1-1; 2-2. Лестницы Л1, Л2, Л3, Л4 Галерея ленточного конвейера №2. План и разрезы 1-1; 2-2. Ходовая доска ХД1 Электропомещение и пост управления. Планы на отм. 0.000 и 3.300. Разрезы 1-1; 2-2. Фасады 2-3; 3-2; А-Б; Б-А. Детали Приемное устройство. Планы на отм. -3.600; - 5.100. Сечения 1-1 - 4-4. Деталь 1 Приемное устройство. Щиты ограждения и настила Приемное устройство. План кровли. Фасады 1-4; А-Б; 4-1; Б-А Чертежи основного комплекта марки КЖ Общие данные Приемное устройство. Схема расположения конструктивных элементов. Разрез 1-1 Приемное устройство. Схема расположения конструктивных элементов. Разрез 2-2 - 6-6 Приемное устройство. Схема расположения конструктивных элементов. Элемент плана №1, №2. Спецификация Приемное устройство. Фундамент монолитный Фм1, Фм2 Приемное устройство. Подпорная стена Ст1 Приемное устройство. Подпорная стена Ст2 Приемное устройство. Подпорные стены Ст3 - Ст5 Приемное устройство. Канал №1. Схема расположения конструктивных элементов Приемное устройство. Канал №1. Участок монолитный Ум1 - Ум5 Ленточный конвейер №2. Схема расположения конструктивных элементов Ленточный конвейер №2. Фундамент под оборудование ФОм1 - ФОм2 Чертежи основного комплекта марки КЖИ Фундамент Ф1 Лоток ЛТ1б-3-2 Фундамент Ф2 Фундамент Ф3 Сетка арматурная С1 Сетка арматурная С2 Сетка арматурная С3 Техническое описание Сетка арматурная С4 Сетка арматурная С5 Сетка арматурная С6 Сетка арматурная С7 Сетка арматурная С8 Сетка арматурная С9 Сетка арматурная С10 Сетка арматурная С11 Плита П1 Плита П2 Сетка арматурная С12 Каркас плоский Кр1 Плита лицевая ПЛ3-2а - ПЛ3-2в Изделие закладное МН5 Изделие закладное МН6 Изделие закладное МН1, МН2 Изделие закладное МН3 Изделие закладное МН4 Каркас плоский Кр2 Чертежи основного комплекта марки ОВ Общие данные Планы на отм. 0.000; 2.800; 3.300. Разрез 1-1. Схема системы П1 Установка П1 Чертежи основного комплекта марки ВК Водоснабжение и канализация |
| Разработан: | Харьковский Промстройниипроект |
| Утверждён: | 04.12.1986 Госстрой СССР (Государственный комитет Совета Министров СССР по делам строительства) (USSR Gosstroy АЧ-89) |



































