Скачать Типовой проект 503-7-14.88 Альбом 3. Конструкции металлическиеДата актуализации: 01.01.2021
|
| Обозначение: | Типовой проект 503-7-14.88 |
| Обозначение англ: | 503-7-14.88 |
| Статус: | не определен законодательством |
| Название рус.: | Альбом 3. Конструкции металлические |
| Дата добавления в базу: | 01.09.2013 |
| Дата актуализации: | 01.01.2021 |
| Дата введения: | 15.09.1988 |
| Дата окончания срока действия: | 30.06.2003 |
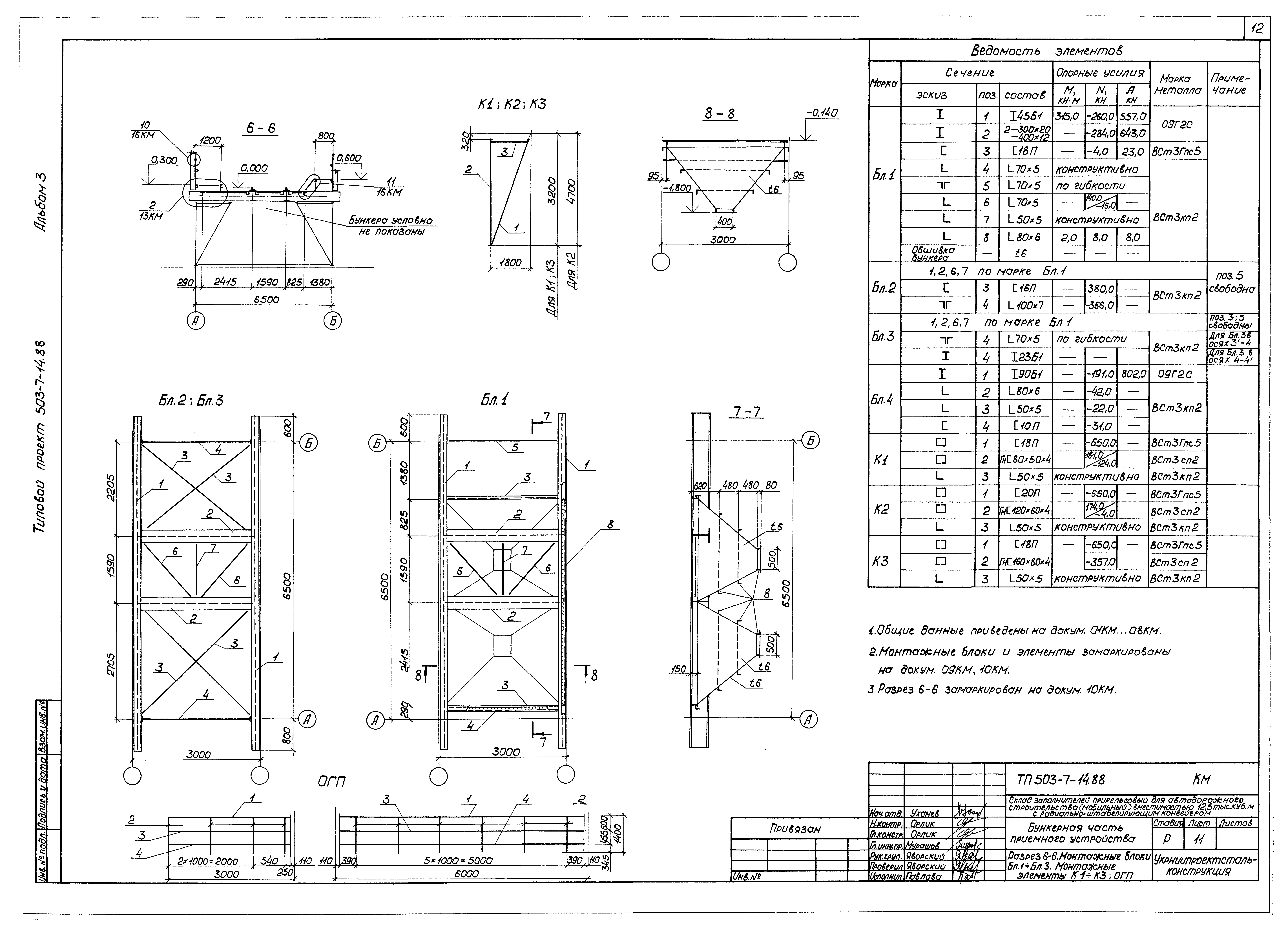
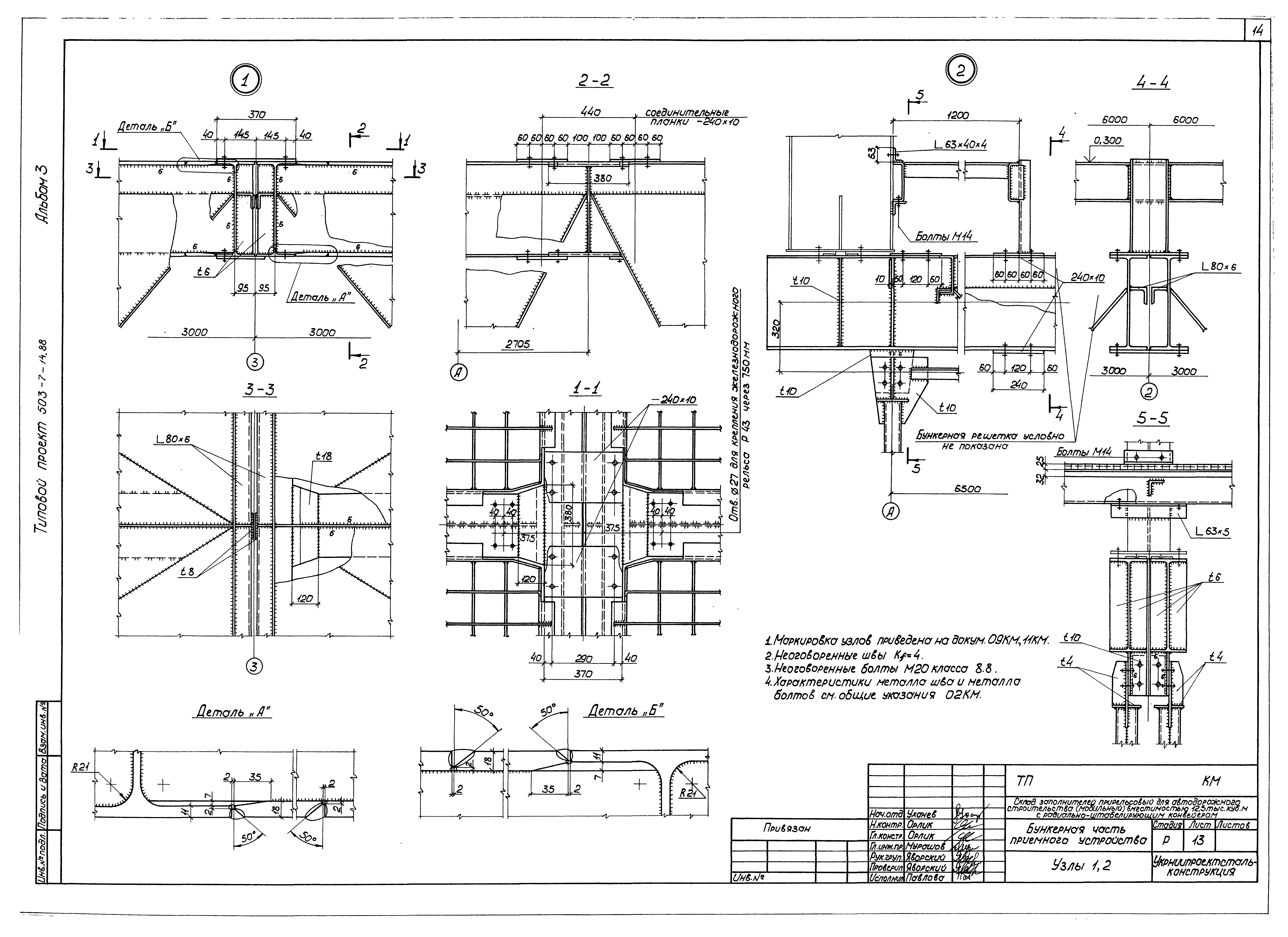
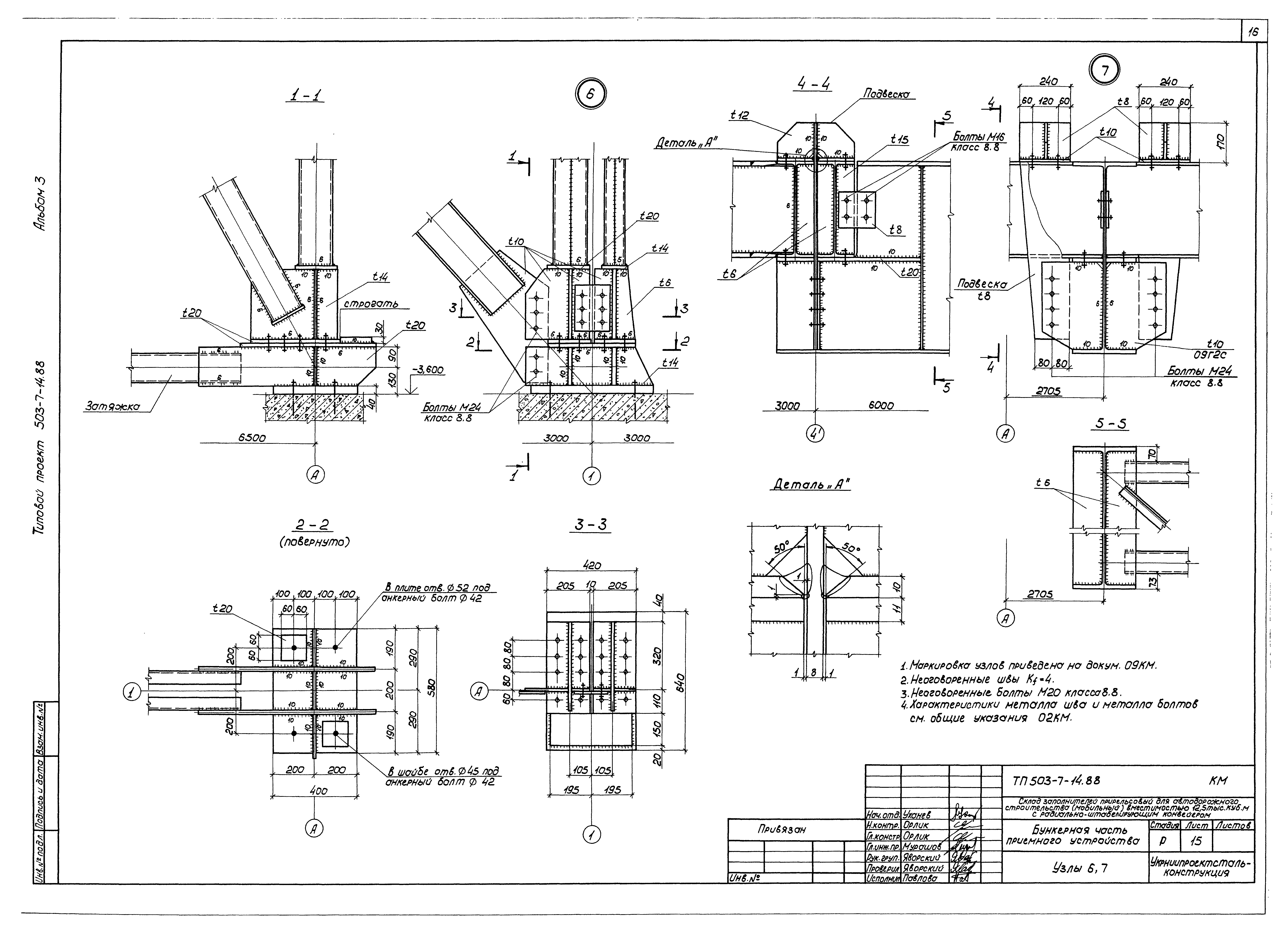
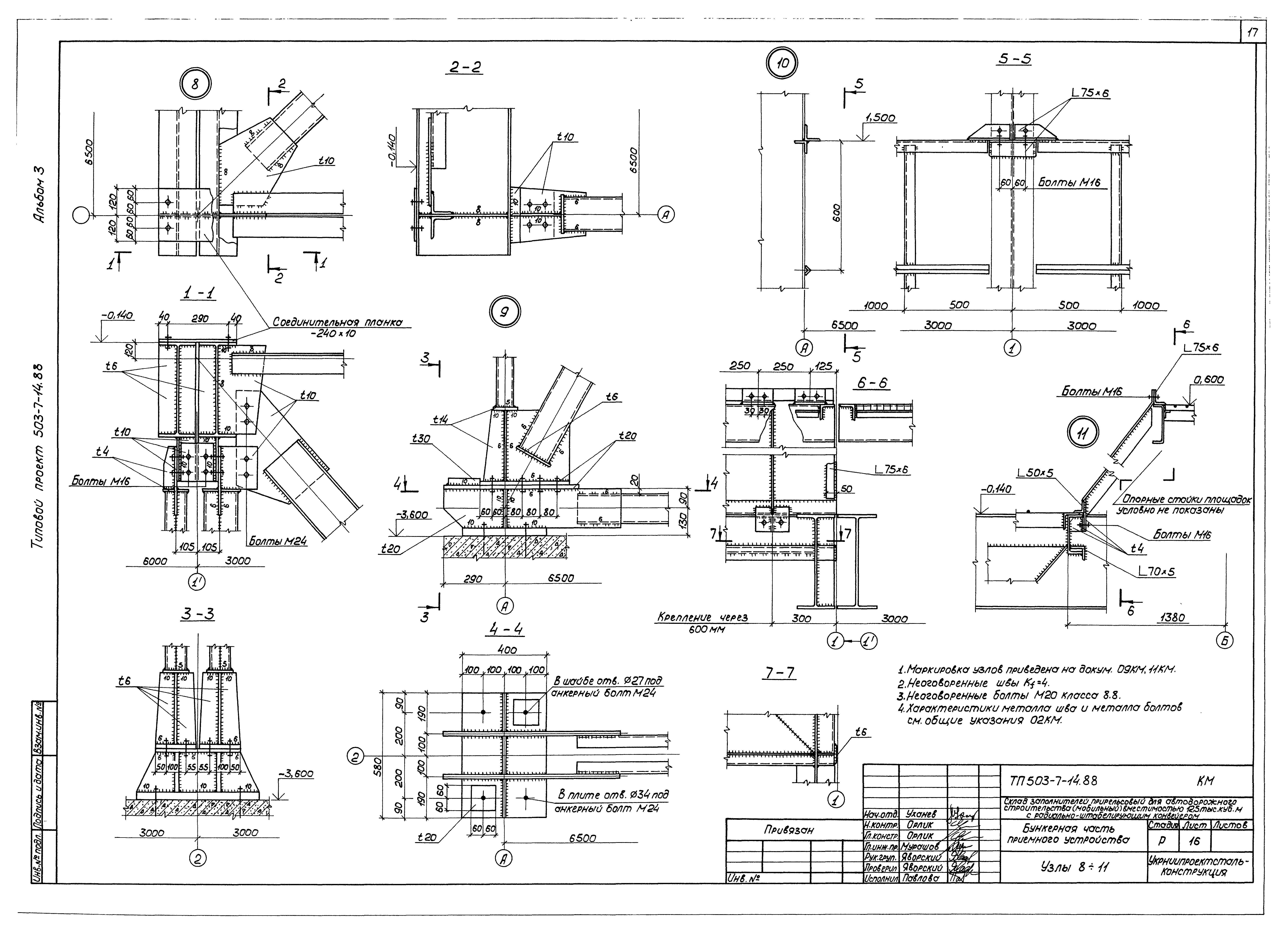
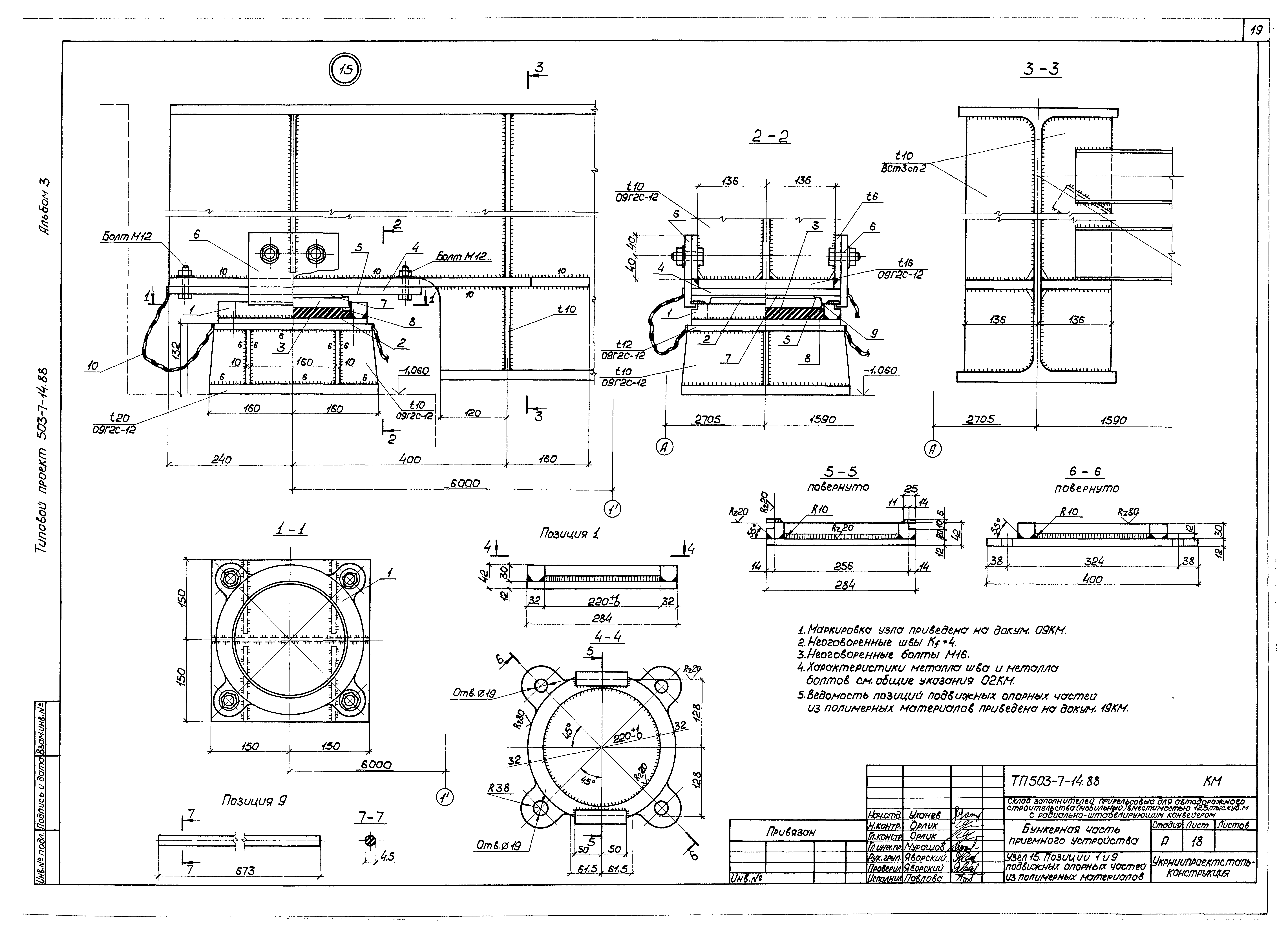
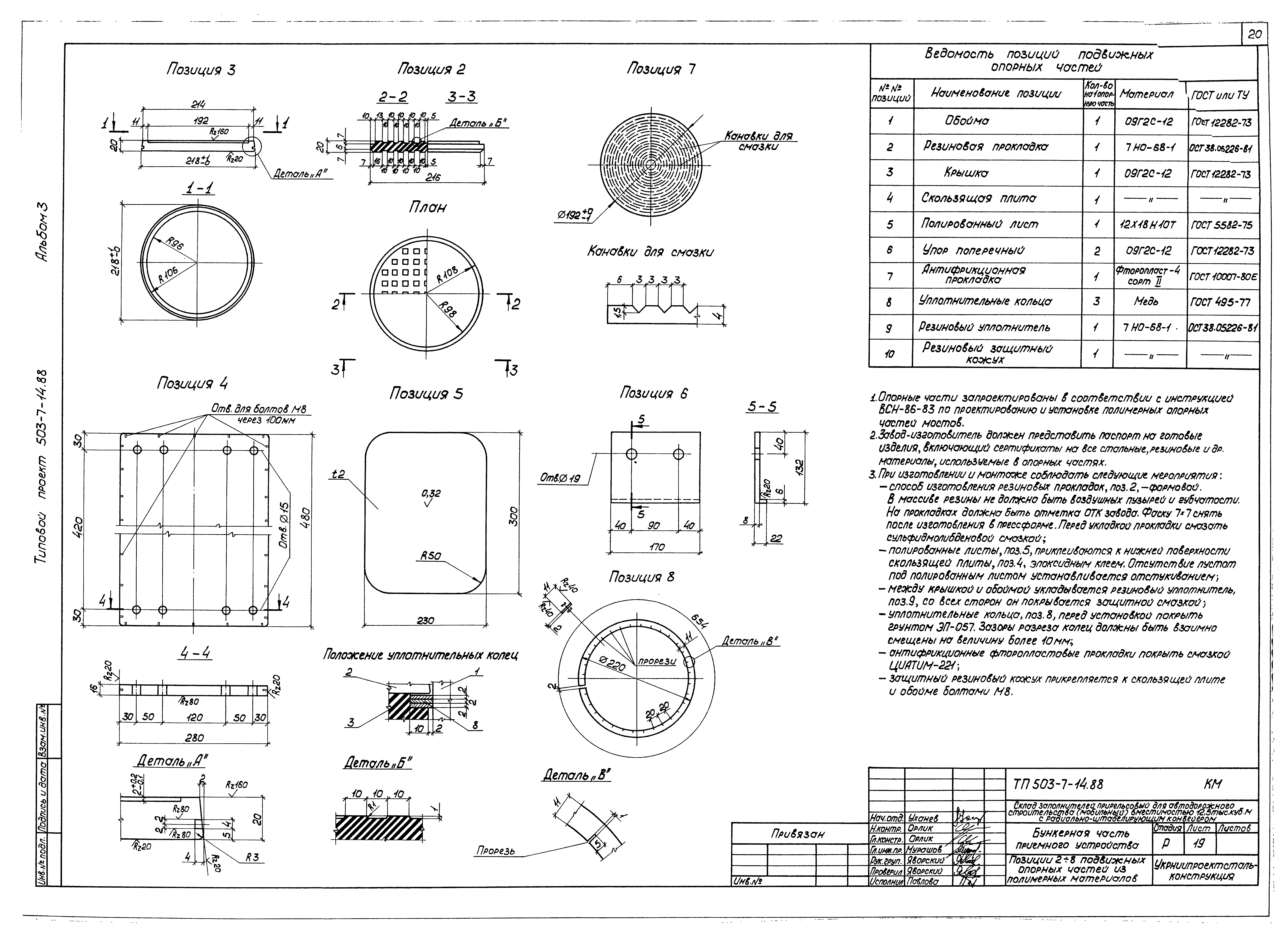
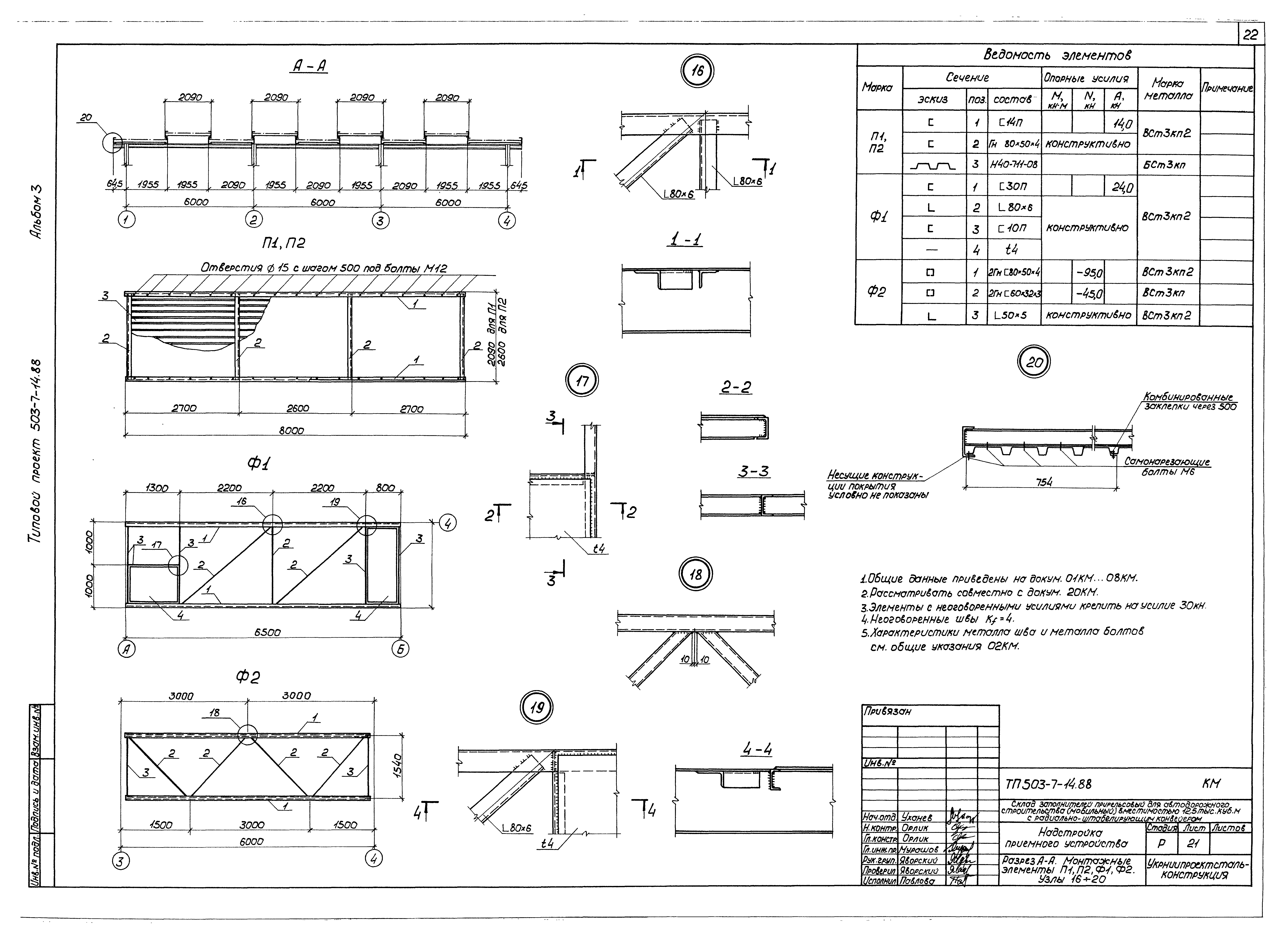
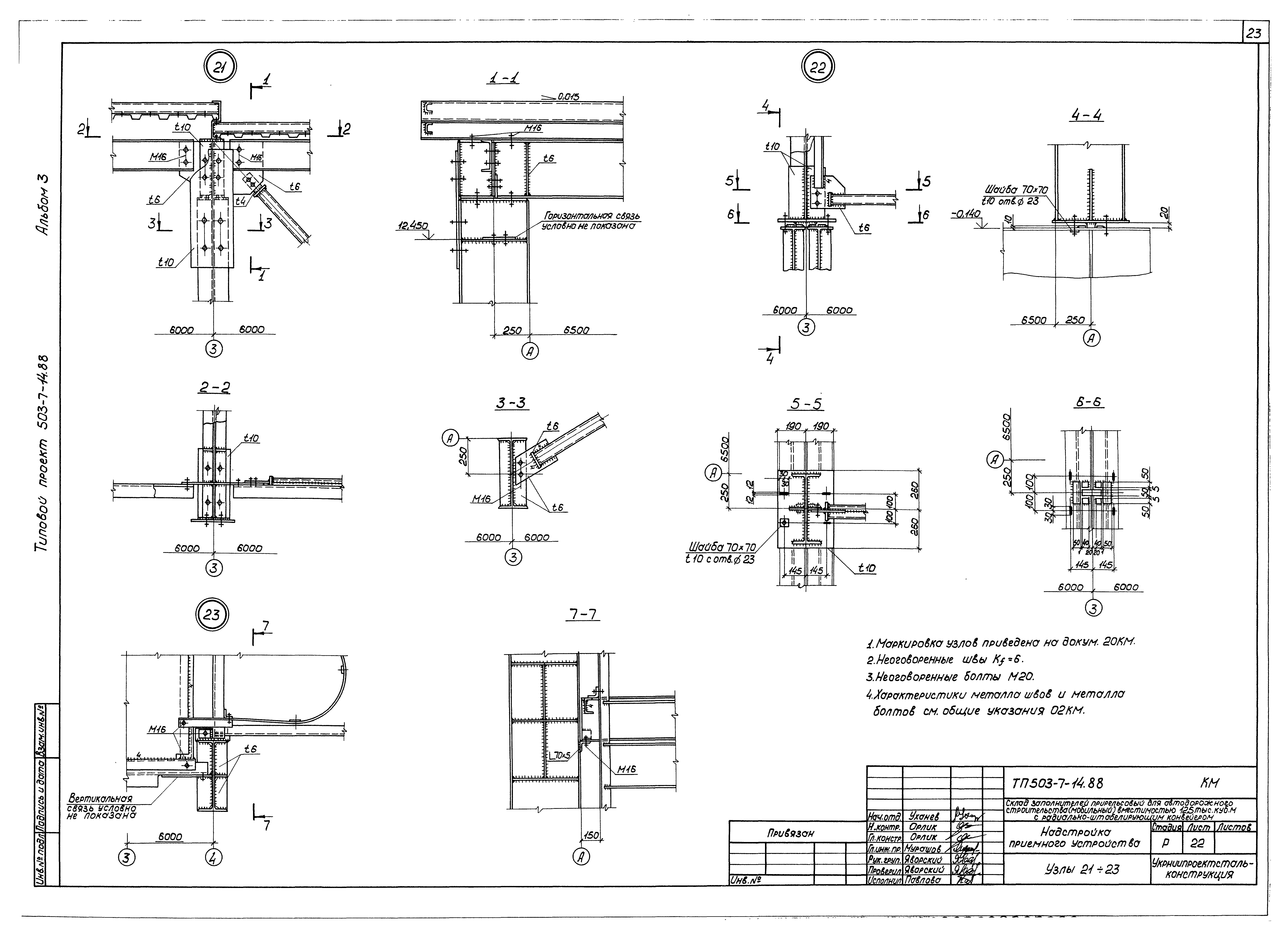
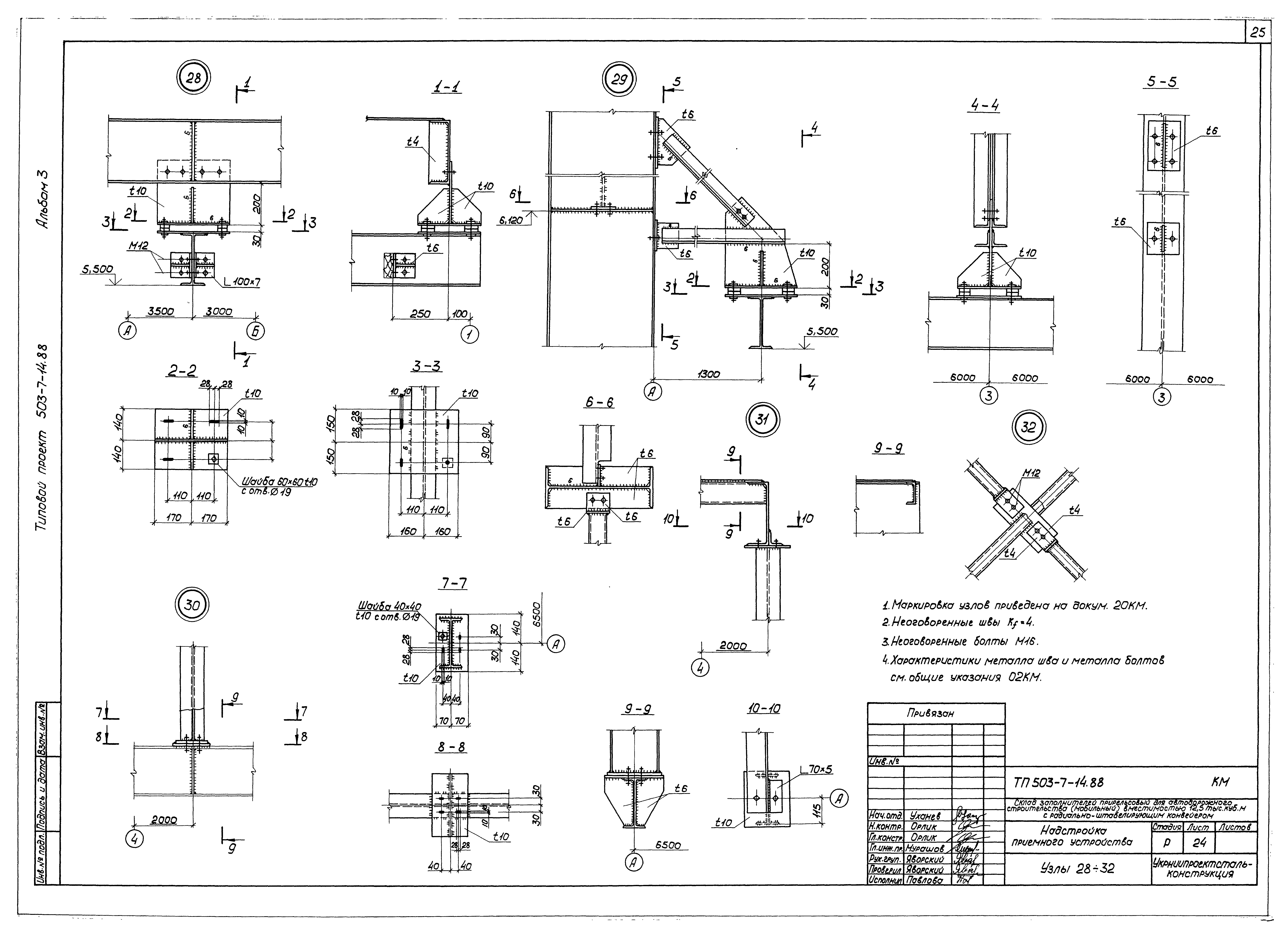
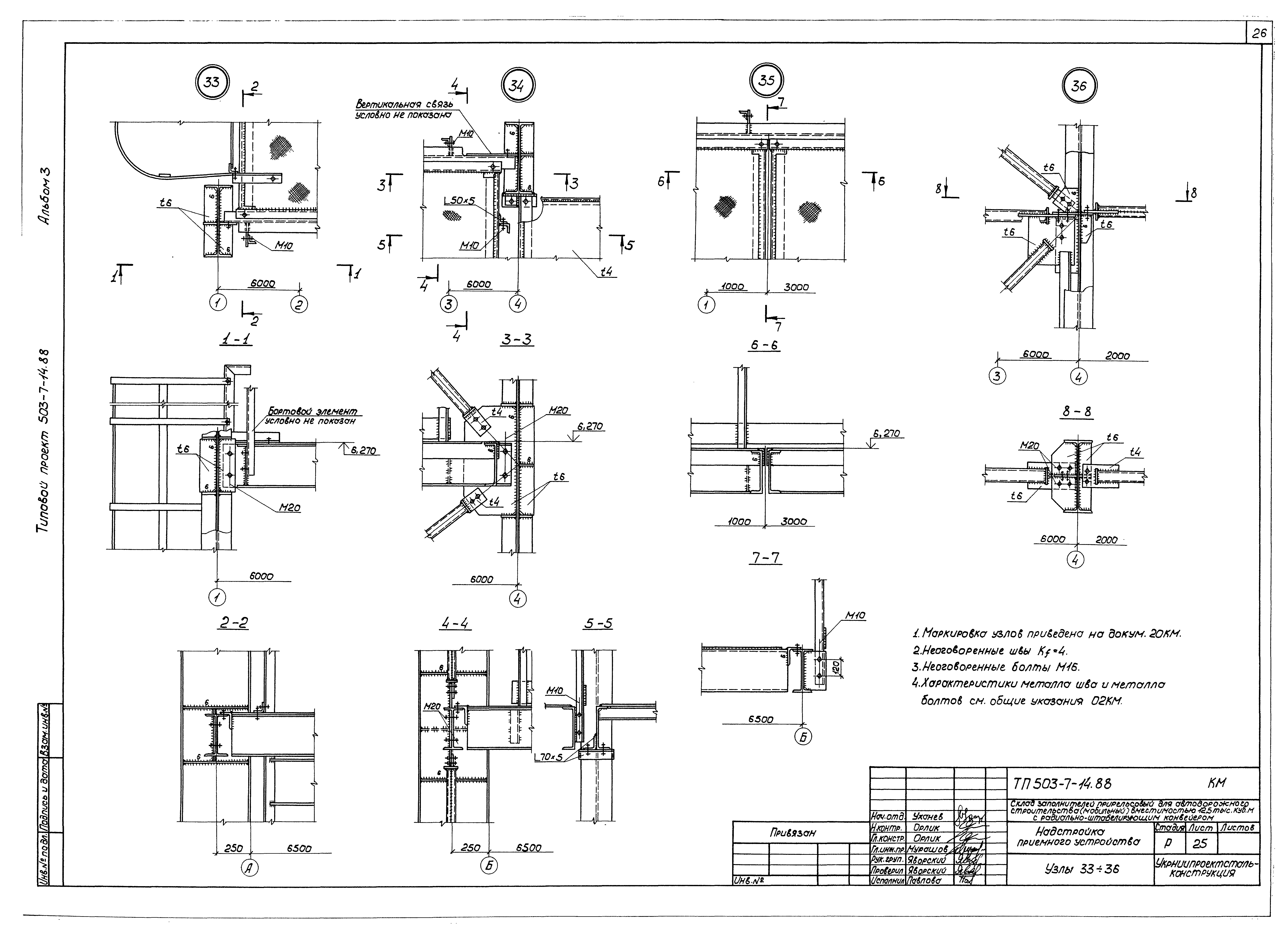
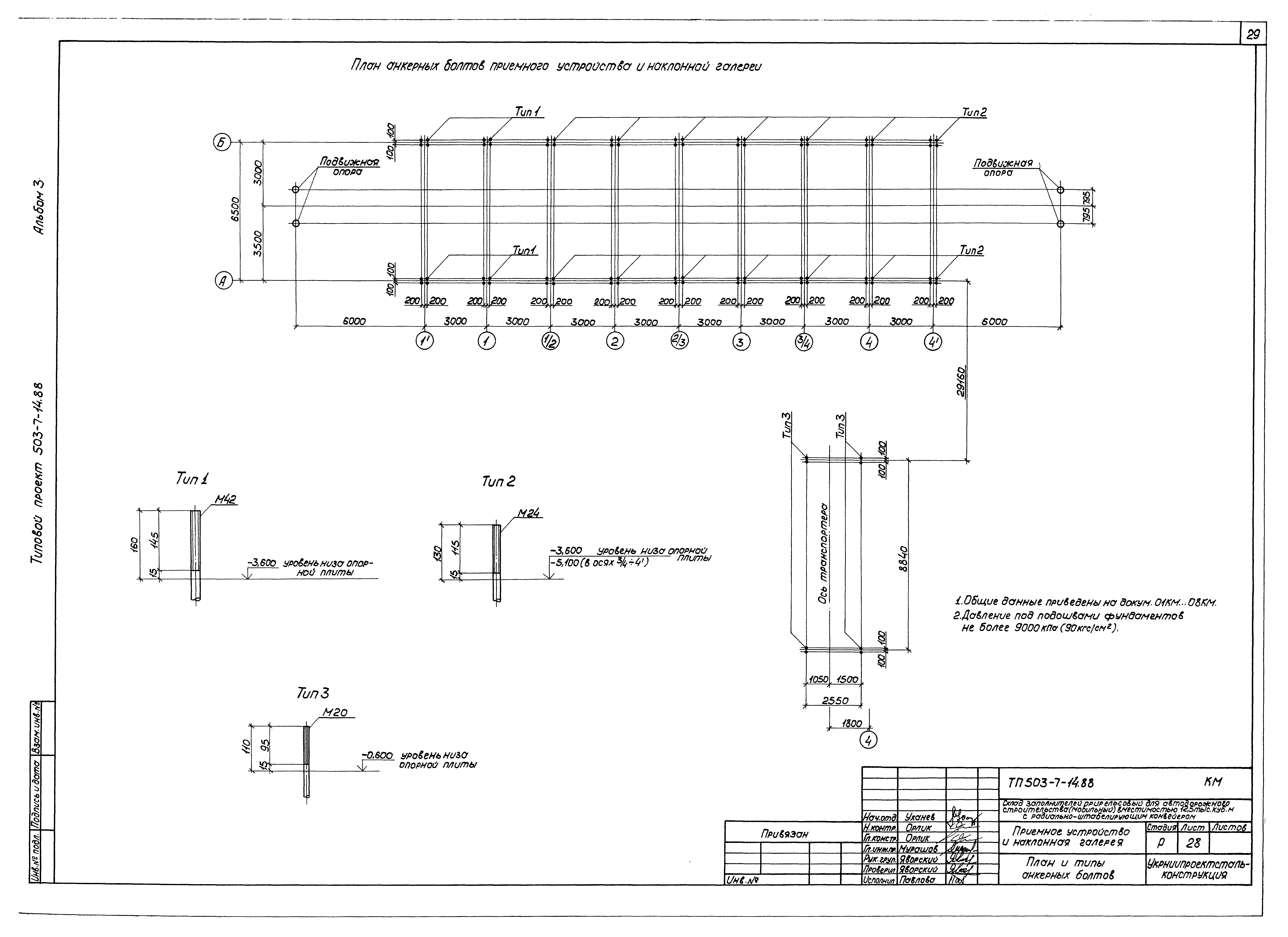
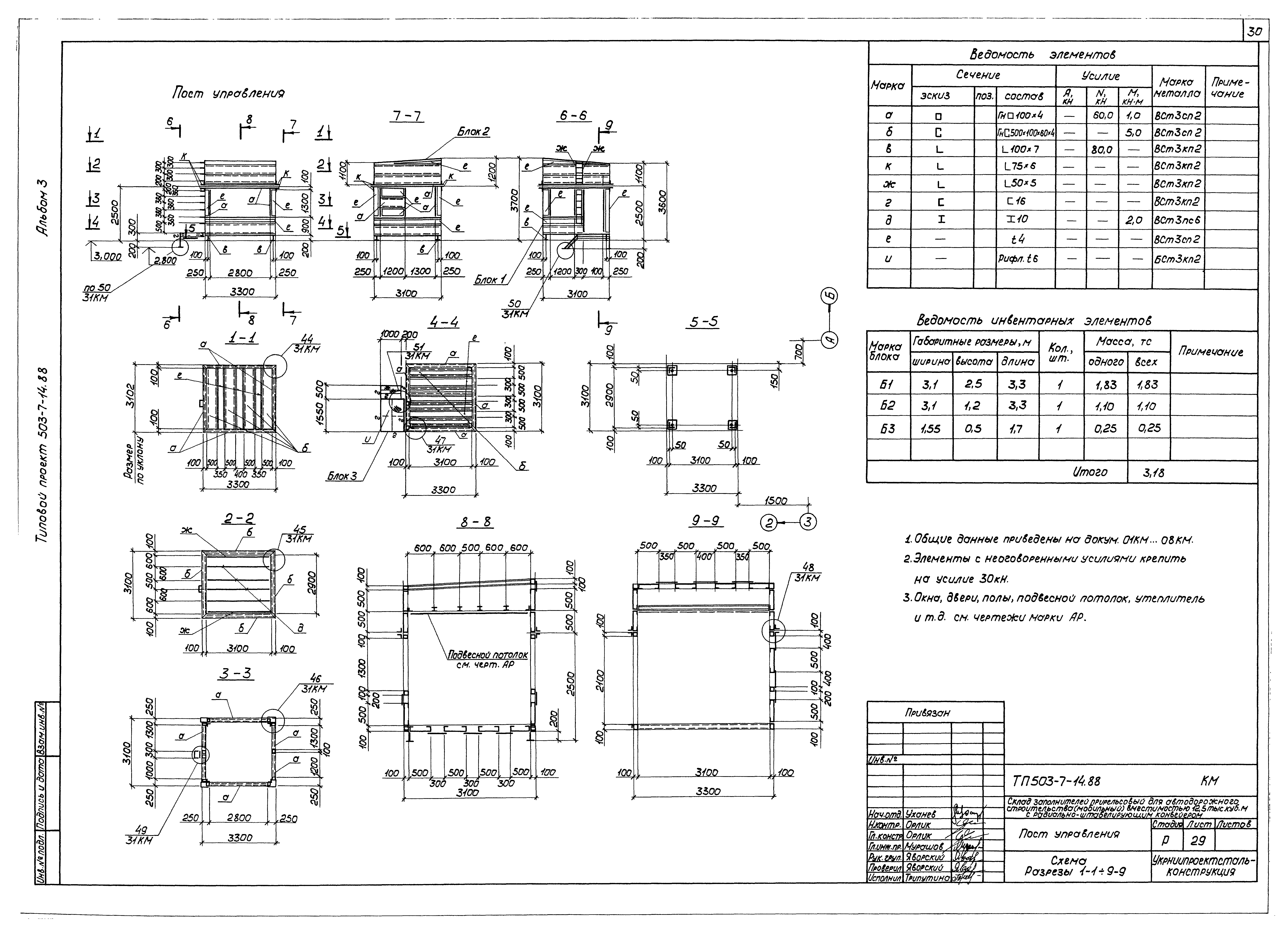
| Оглавление: | Чертежи основного комплекта марки КМ Общие данные Бункерная часть приемного устройства. Схема. Разрезы 1-1 - 4-4 Бункерная часть приемного устройства. Планы опор затяжек, бункерных решеток и площадок для обслуживания составов Бункерная часть приемного устройства. Разрез 6-6. Монтажные блоки Бл1 - Бл3. Монтажные элементы К1 - К3, ОГП Бункерная часть приемного устройства. Разрез 6-6. Монтажный блок Бл4. Монтажные элементы Н1, П1, П2, Р1 - Р3 Бункерная часть приемного устройства. Узлы 1, 2 Бункерная часть приемного устройства. Узлы 3 - 5 Бункерная часть приемного устройства. Узлы 6, 7 Бункерная часть приемного устройства. Узлы 8 - 11 Бункерная часть приемного устройства. Узлы 12 - 14 Бункерная часть приемного устройства. Узел 15. Позиции 1 и 9 подвижных опорных частей из полимерных материалов Бункерная часть приемного устройства. Позиции 2 - 8 подвижных опорных частей из полимерных материалов Надстройка приемного устройства. Планы на отм. - 0.140; 5.500; 6.270; 12.000. Раскладка панелей покрытия. Разрезы 1-1; 2-2; 3-3 Надстройка приемного устройства. Разрез А-А. Монтажные элементы П1, П2, Ф1, Ф2. Узлы 16 - 20 Надстройка приемного устройства. Узлы 21 - 23 Надстройка приемного устройства. Узлы 24 - 27 Надстройка приемного устройства. Узлы 28 - 32 Надстройка приемного устройства. Узлы 33 - 36 Наклонная галерея. Схема наклонной галереи. Разрезы 1-1; 2-2; 3-3. Раскладка трапов технологических проходов. Узел 37 Наклонная галерея. Узлы 38 - 43 Приемное устройство. Наклонная галерея. План анкерных болтов. Типы анкерных болтов Пост управления. Схема. Разрезы 1-1 - 9-9 Электропомещение. Схема. Разрезы 1-1 - 7-7 Пост управления. Узлы 44 - 53 Электропомещение. Узлы 54 - 62 |
| Разработан: | Укрниипроектстальконструкция |
| Утверждён: | 04.12.1986 Госстрой СССР (Государственный комитет Совета Министров СССР по делам строительства) (USSR Gosstroy АЧ-89) |

































