Скачать Типовой проект 708-43.89 Альбом 1. Пояснительная записка. Технология производства. Общие виды нетиповых технологических конструкций. Связь и сигнализацияДата актуализации: 01.01.2021
|
| Обозначение: | Типовой проект 708-43.89 |
| Обозначение англ: | 708-43.89 |
| Статус: | не определен законодательством |
| Название рус.: | Альбом 1. Пояснительная записка. Технология производства. Общие виды нетиповых технологических конструкций. Связь и сигнализация |
| Дата добавления в базу: | 01.09.2013 |
| Дата актуализации: | 01.01.2021 |
| Дата введения: | 17.03.1989 |
| Дата окончания срока действия: | 30.06.2003 |
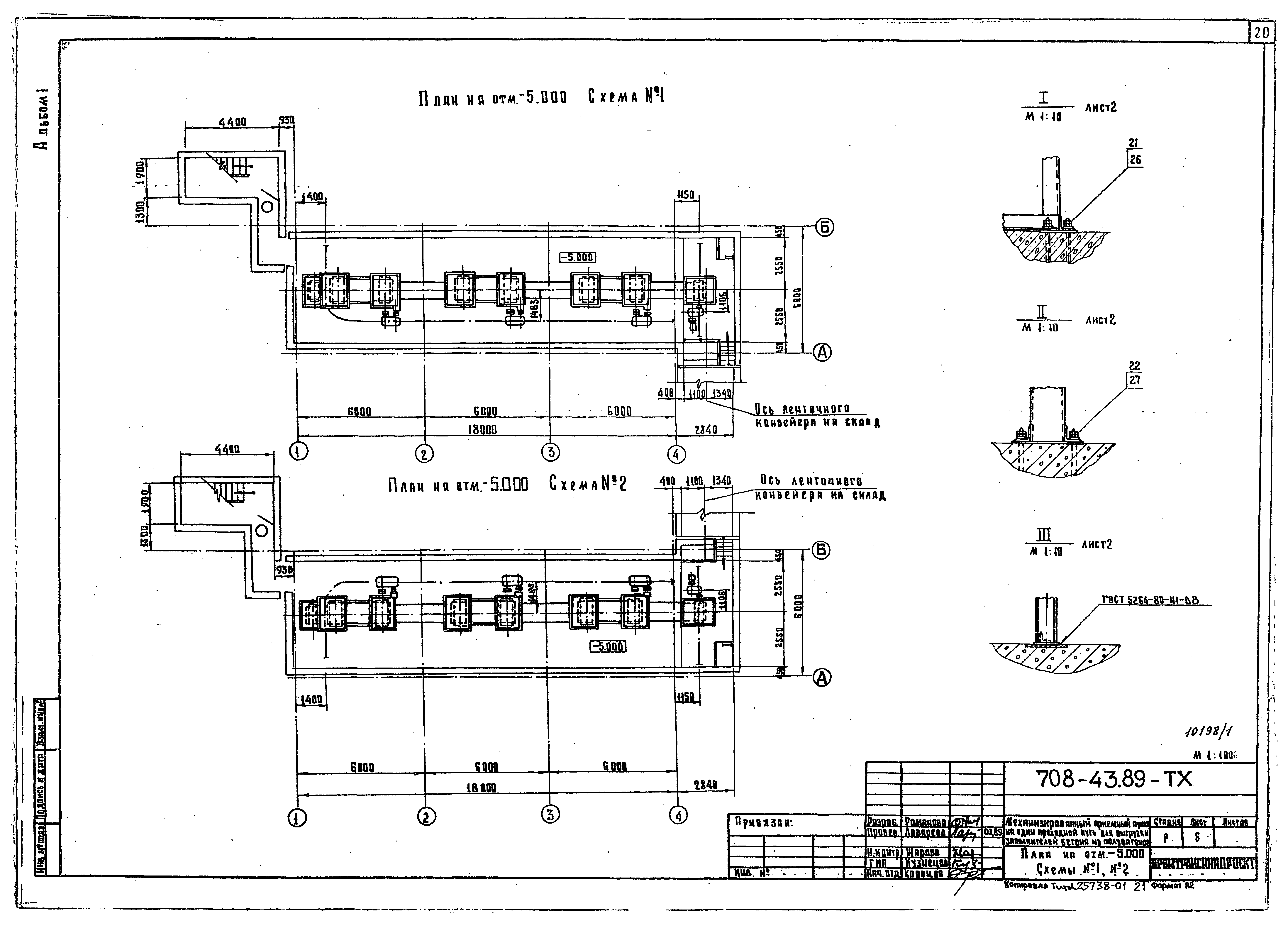
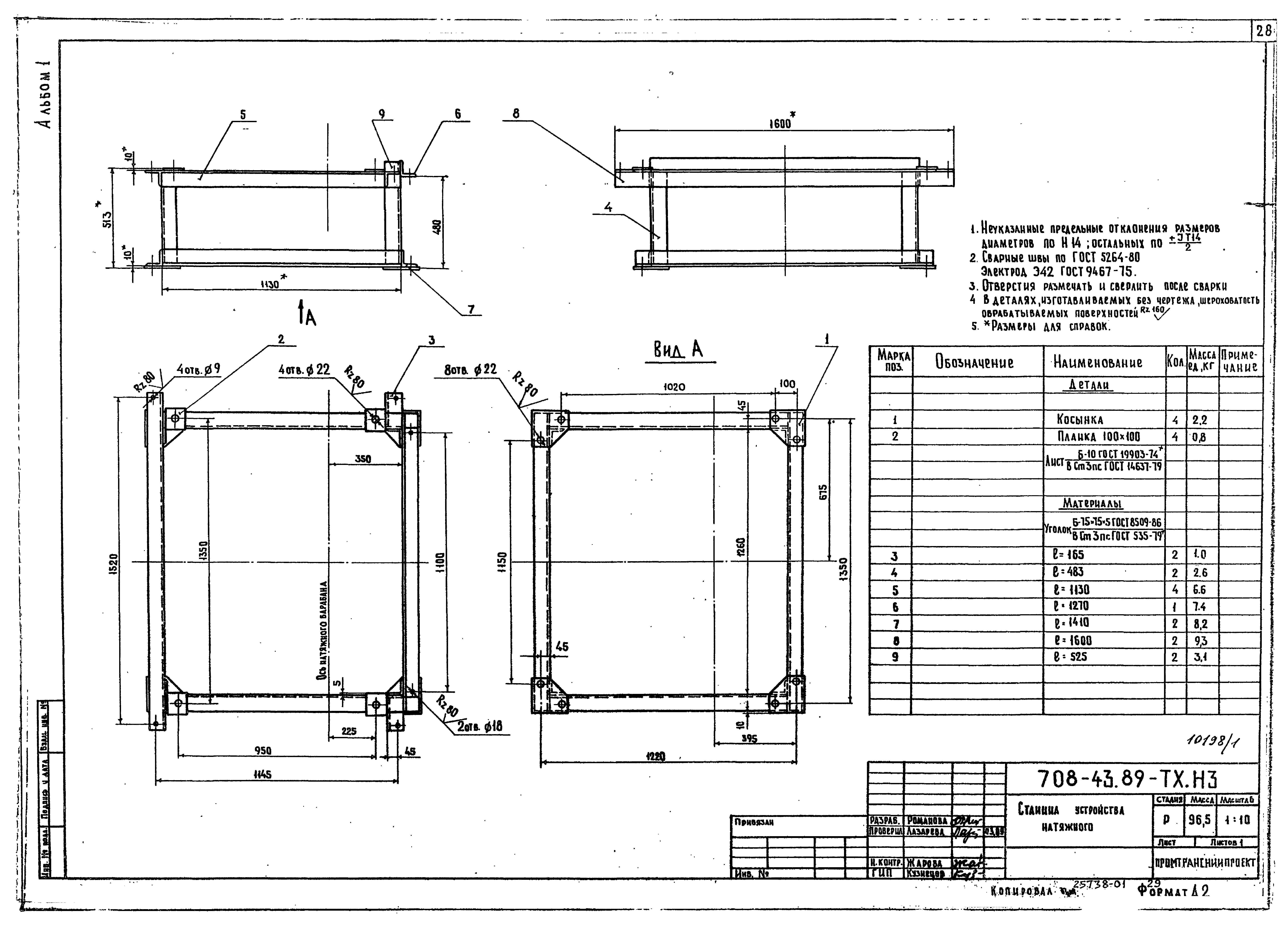
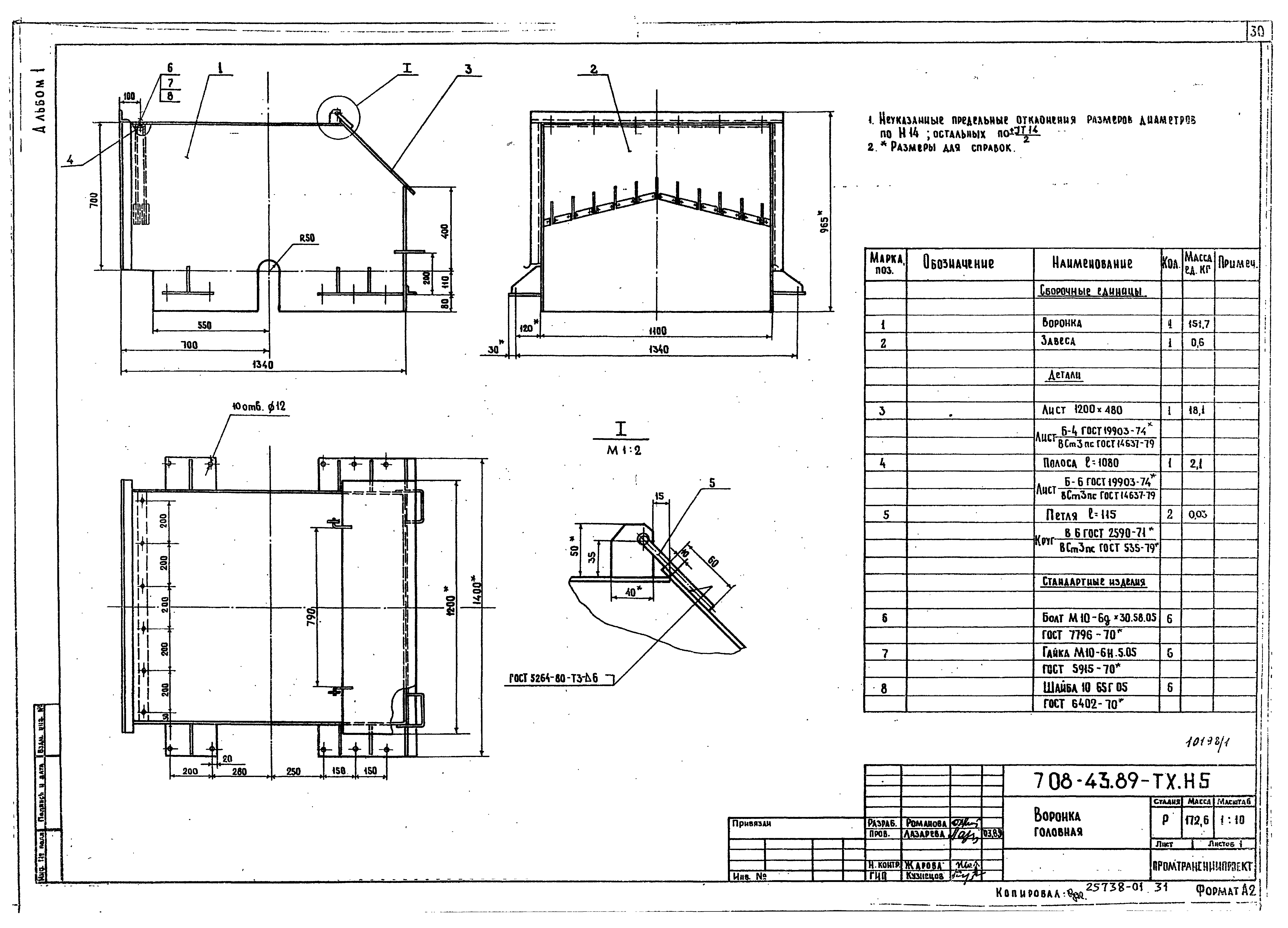
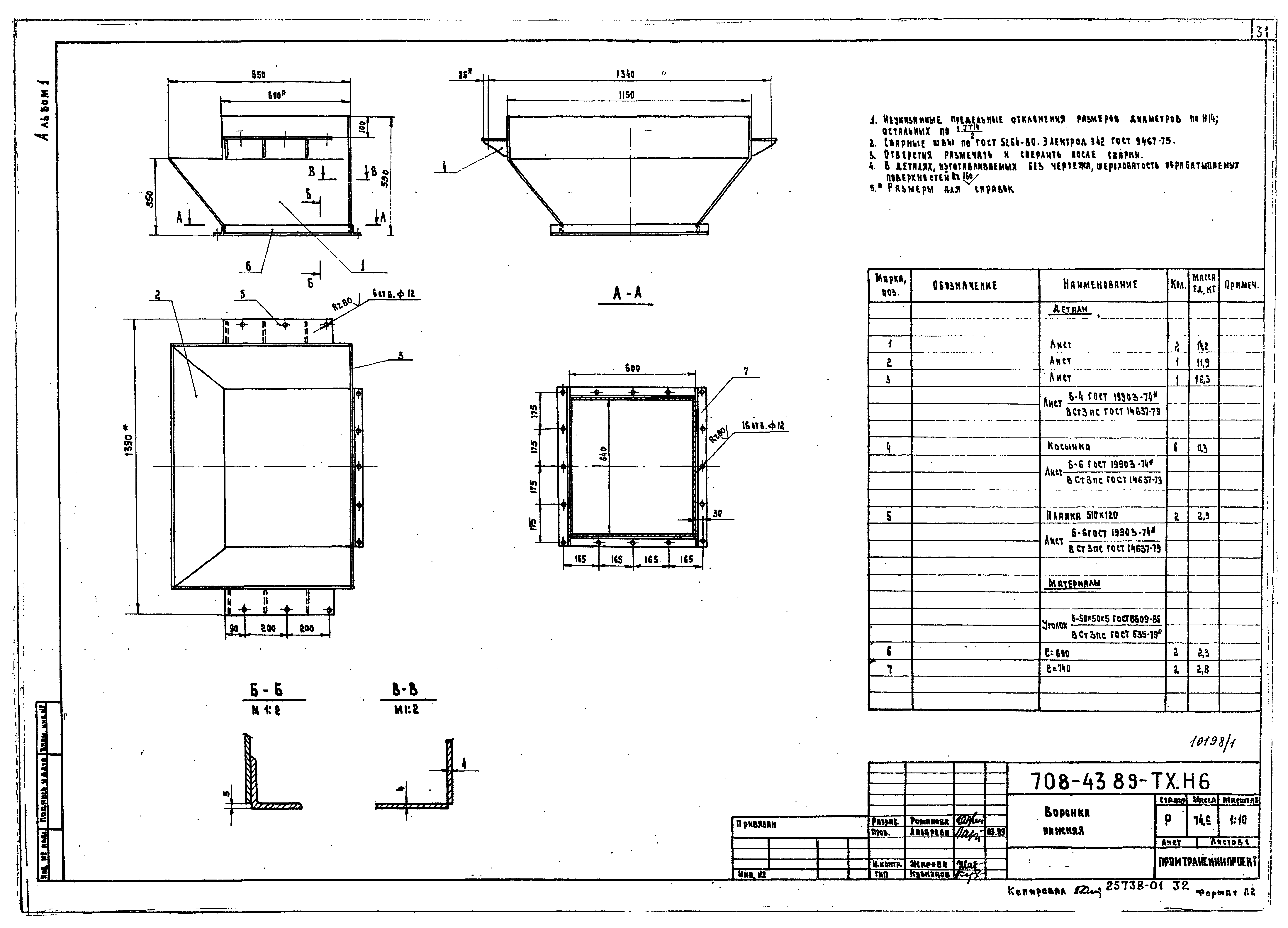
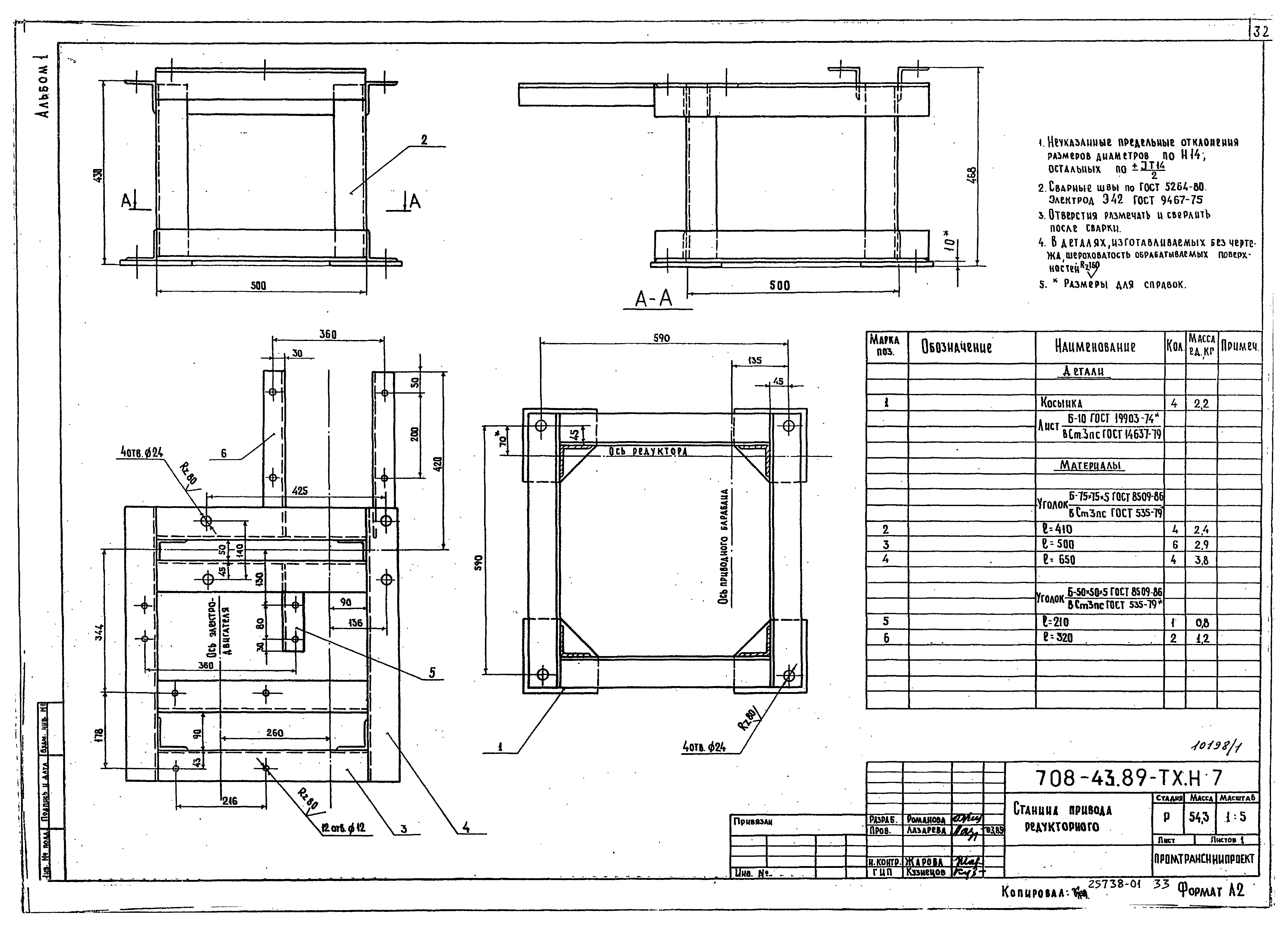
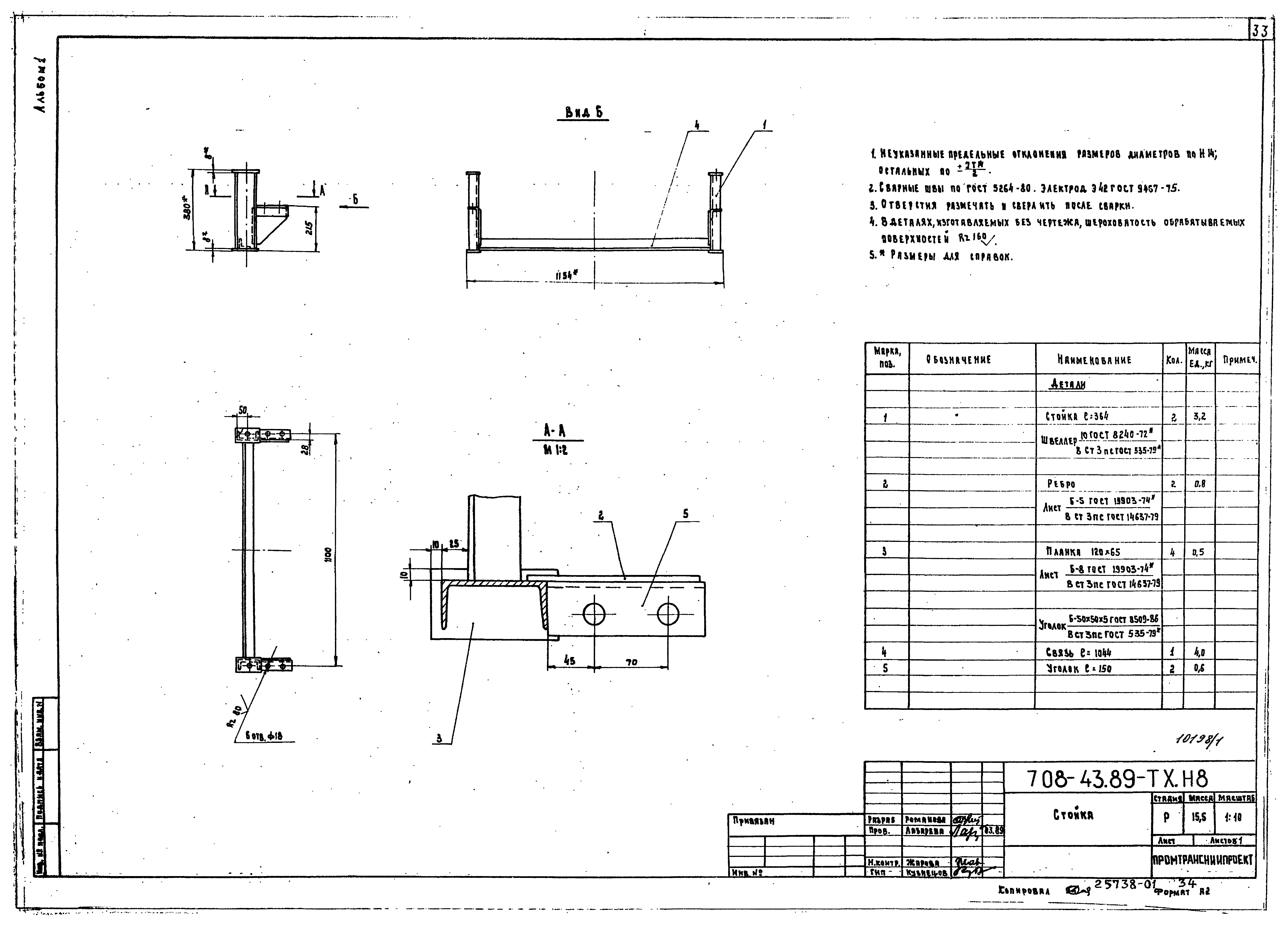
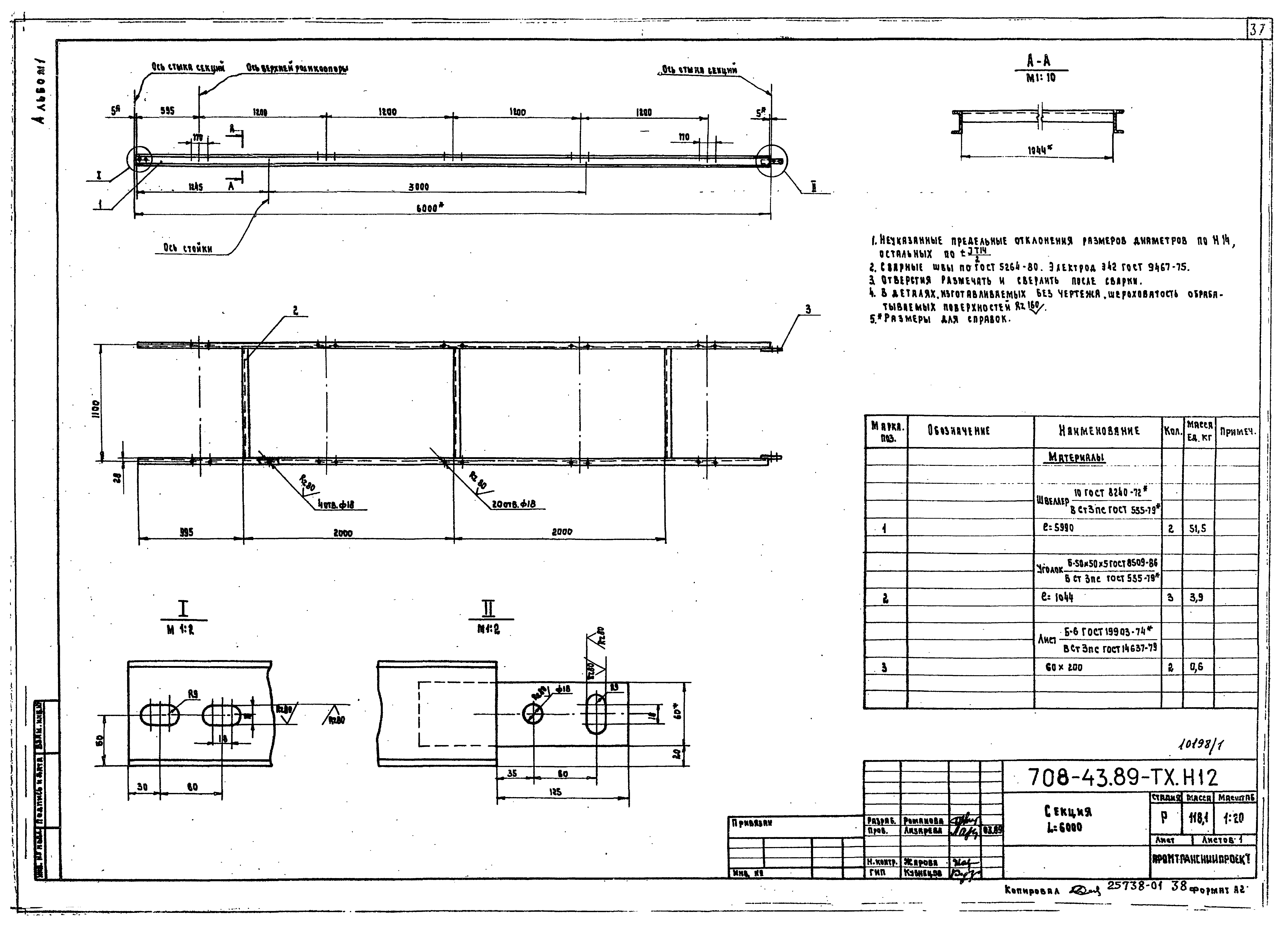
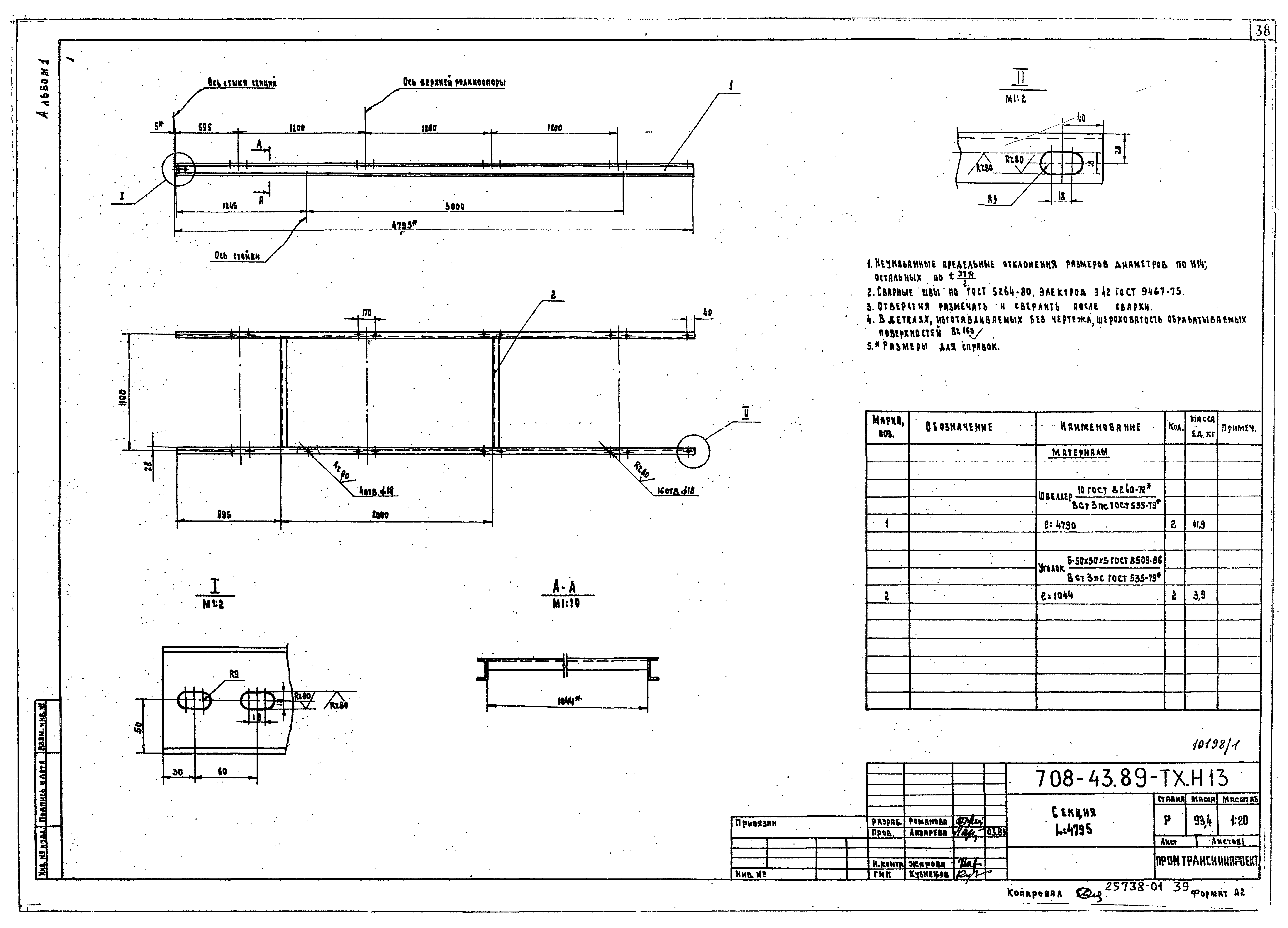
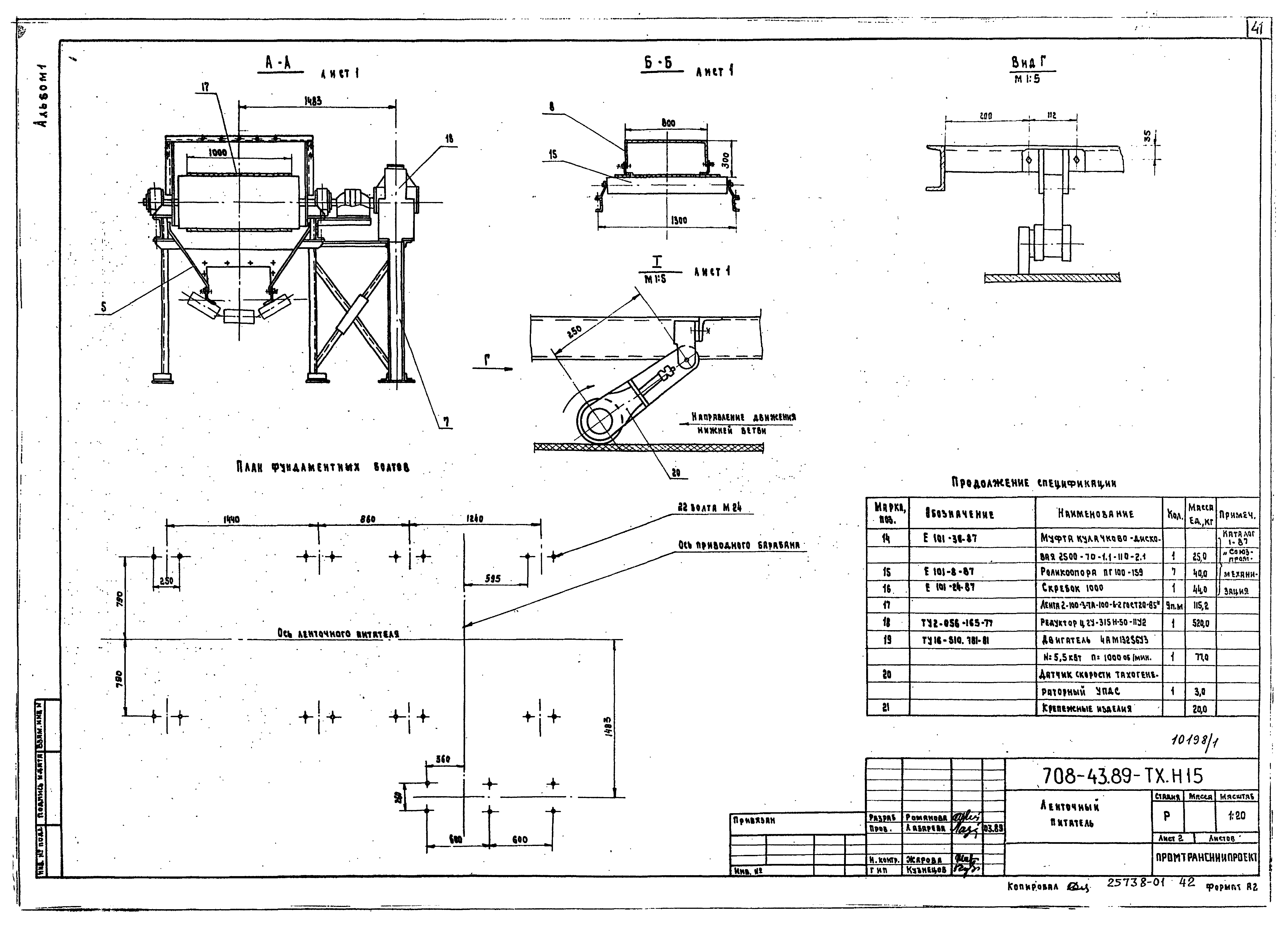
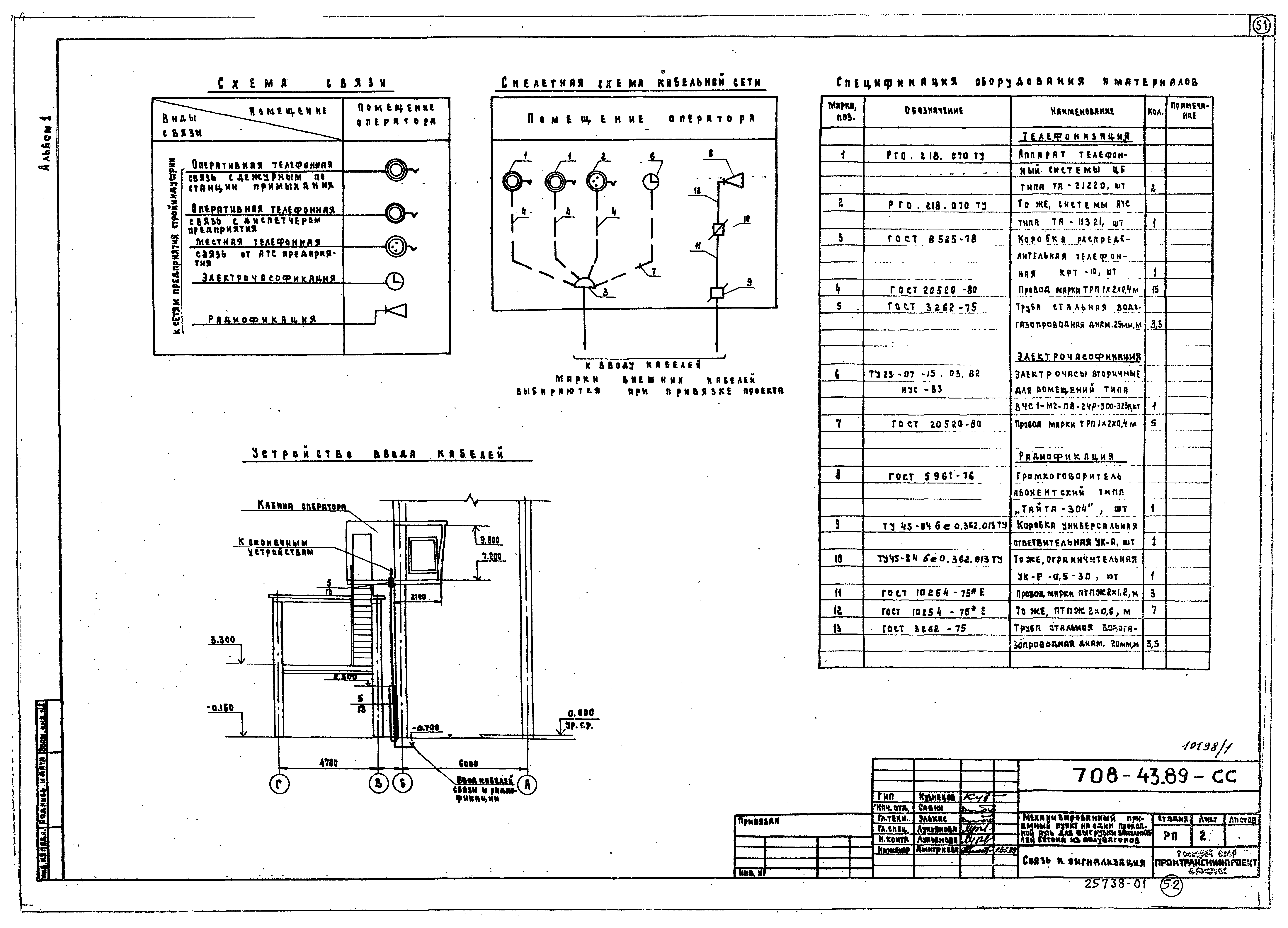
| Оглавление: | Пояснительная записка Чертежи основного комплекта марки ТХ Общие данные Разрез А-А План на отм. 0.000. Схемы №1, 2, 3, 4 Разрезы 6-6; 8-8; Г-Г; Д-Д План на отм. - 5.000. Схемы №1, 2 План на отм. - 5.000. Схемы №3, 4 План закладных элементов на отм. 0.000 и на отм. - 5.000. Схема №1 План закладных элементов на отм. - 5.000. Схемы №2, 3, 4 Ленточный конвейер Станина приводного барабана Станина устройства натяжного Ограждение устройства натяжного Воронка головная Воронка нижняя Станина привода редукторного Стойка Лоток аспирационный Лоток проходной Секция L = 6000 Секция L = 4795 Ограждение Ленточный питатель Станина приводного барабана Ограждение устройства натяжного Воронка головная Воронка нижняя Панель Станина привода редукторного Стенка торцевая Задвижка Чертежи основного комплекта марки СС Общие данные Связь и сигнализация |
| Разработан: | Харьковский Промстройниипроект Тяжпромэлектропроект Промтрансниипроект |
| Утверждён: | 27.10.1988 Госстрой СССР (Государственный комитет Совета Министров СССР по делам строительства) (USSR Gosstroy ) |



















































