Скачать Типовой проект 708-43.89 Альбом 6. Электрооборудование силовое. ЭлектроосвещениеДата актуализации: 01.01.2021
|
| Обозначение: | Типовой проект 708-43.89 |
| Обозначение англ: | 708-43.89 |
| Статус: | не определен законодательством |
| Название рус.: | Альбом 6. Электрооборудование силовое. Электроосвещение |
| Дата добавления в базу: | 01.09.2013 |
| Дата актуализации: | 01.01.2021 |
| Дата введения: | 17.03.1989 |
| Дата окончания срока действия: | 30.06.2003 |
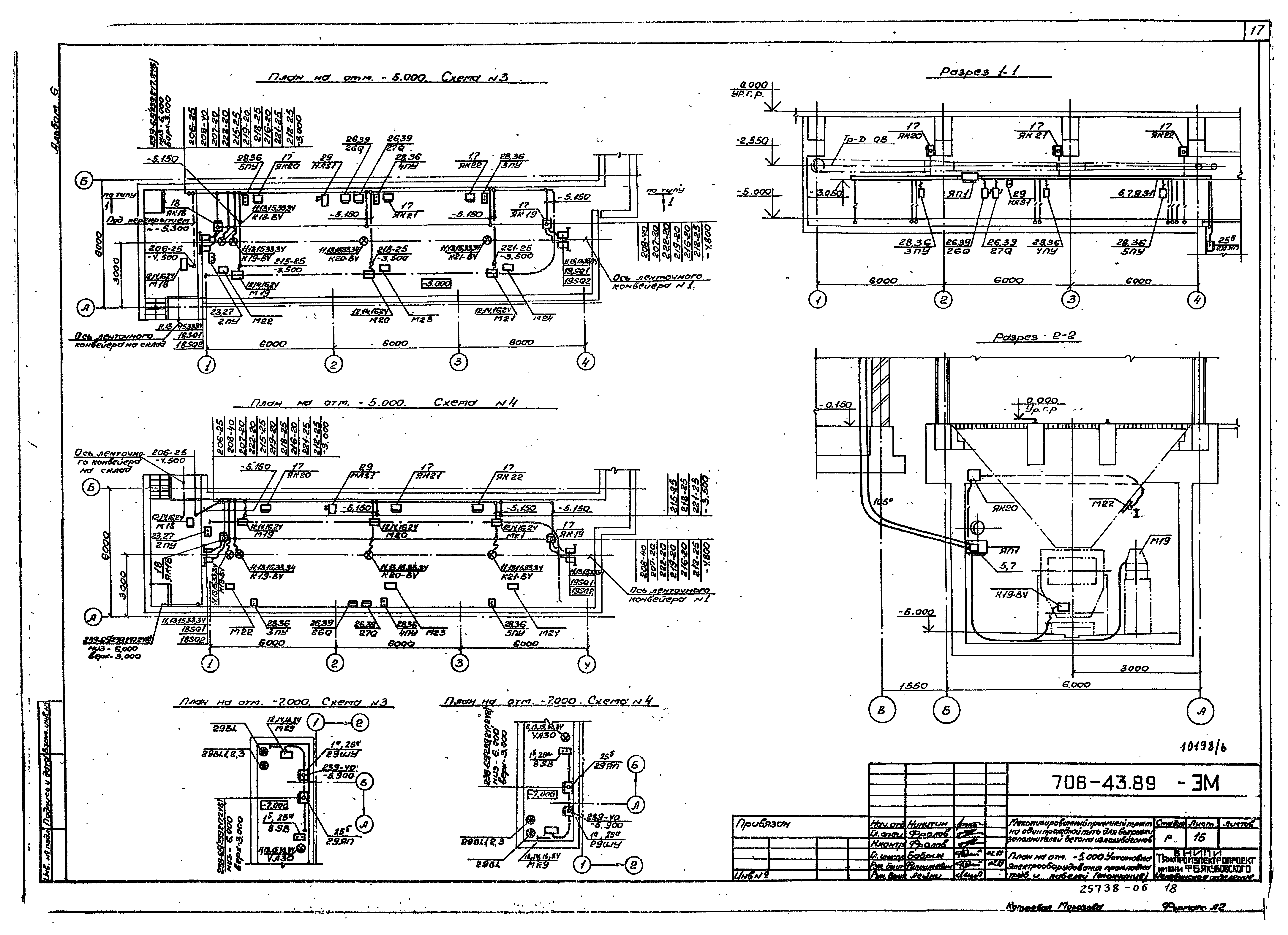
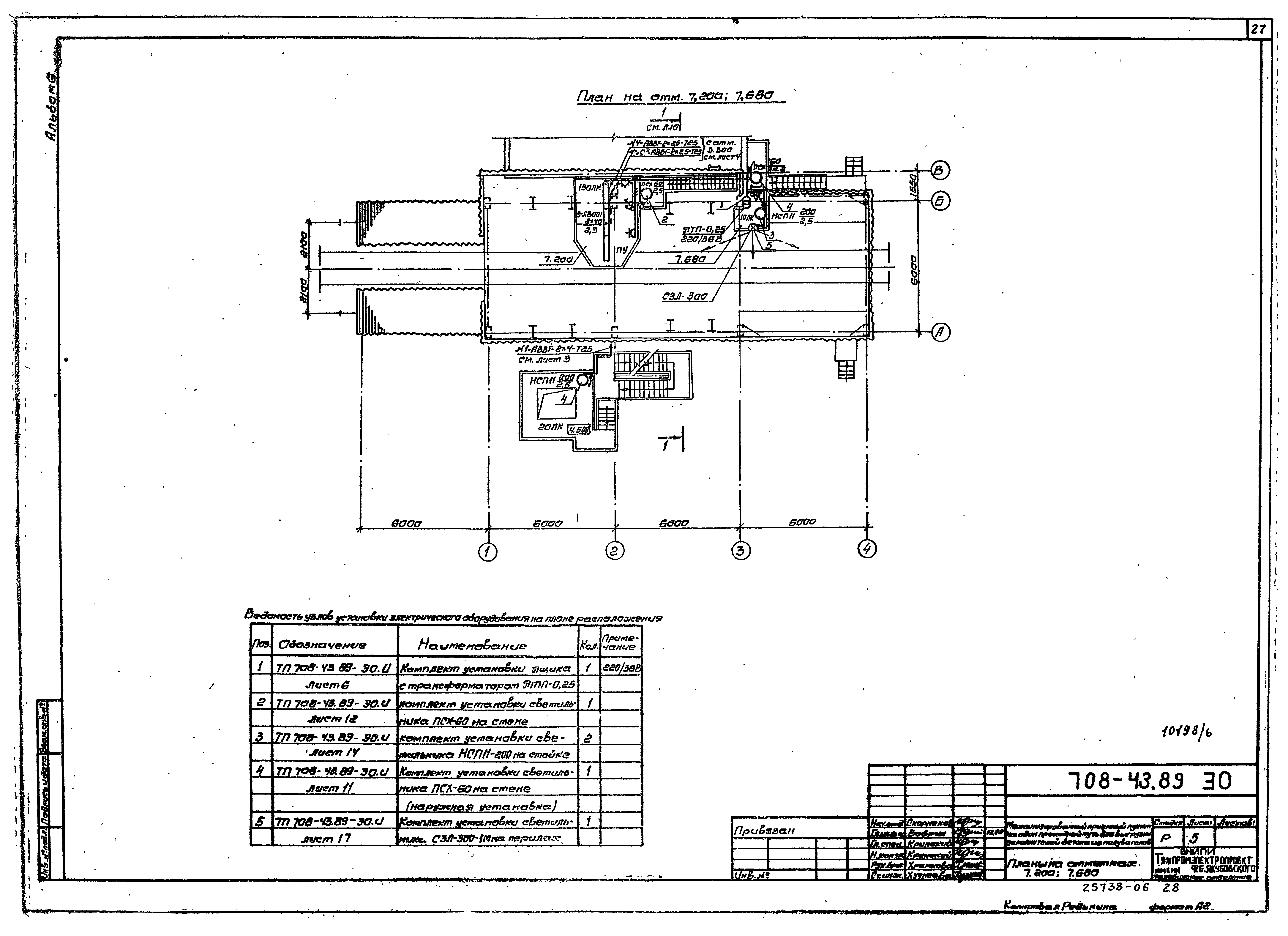
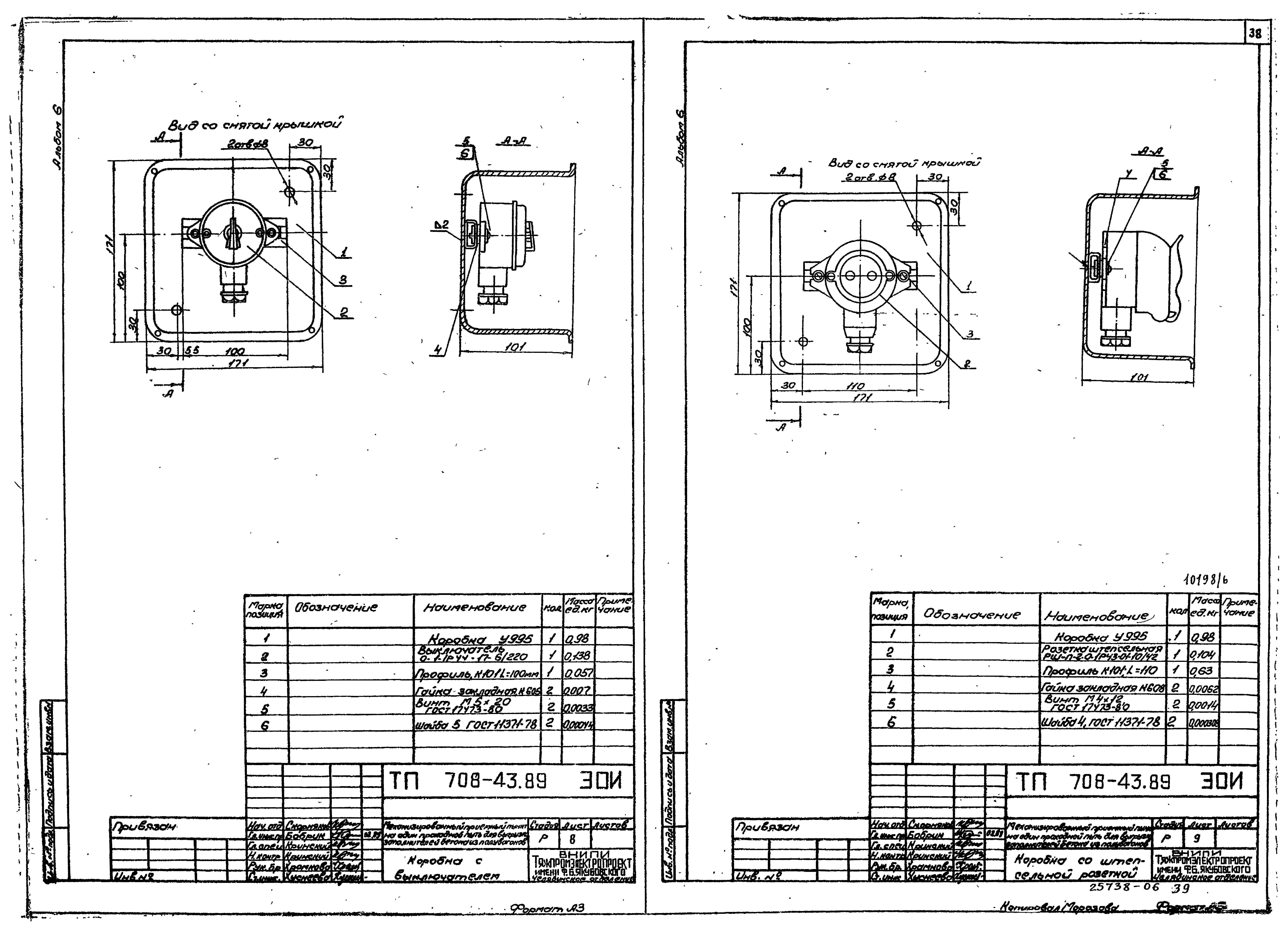
| Оглавление: | Обложка Титульный лист Содержание альбома Чертежи основного комплекта ЭМ Общие данные Питающая и распределительная сеть 380/220 В. Схема электрическая принципиальная Тракт разгрузки. Схема электрическая принципиальная 29. Насос №1; 30. Вентиль №1. Схема электрическая принципиальная 29. Насос №1; 30. Вентиль №1. Схема электрическая подключения Схема электрическая подключения Кабельный журнал План на отм. - 5.000. Установка электрооборудования, прокладка труб и кабелей Спецификация к листам 18, 19 План на отм. - 0.150; 6.000. Установка электрооборудования, прокладка труб и кабелей План на отм. 3.300; 3.900; 7.200; 12.400. Установка электрооборудования, прокладка труб и кабелей Чертежи ЭМ.Н, прилагаемые к основному комплекту ЭМ Габаритный чертеж НКУ Чертежи ЭМ.И, прилагаемые к основному комплекту ЭМ Ведомость изделий МЭЗ Чертежи ЭМ.ВР, прилагаемые к основному комплекту ЭМ Ведомость объемов электромонтажных работ Чертежи основного комплекта ЭО Общие данные План на отметке 0.000 План на отметке 3.300. План кровли Планы на отметках 7.200; 7.680 Планы на отметках - 5.000; - 7.000. Схема №1 Планы на отметках - 5.000; - 7.000. Схема №2 Планы на отметках - 5.000; - 7.000. Схема №3 Планы на отметках - 5.000; - 7.000. Схема №4 Разрезы 1-1; 2-2 Чертежи ЭО.И, прилагаемые к основному комплекту ЭО Ведомость конструкций и изделий, подлежащих изготовлению в МЭЗ Конструкция для установки АП50Б на строительном основании Установка щитка ЯОУ-8501 - 8504 на строительном основании Конструкция для установки трансформатора ОСВМ-0,25 на строительном основании Конструкция для установки трансформатора ОСВМ-1 на строительном основании Установка ящика ЯТП-0,25 на конструкции Концевое крепление троса к металлическому основанию Коробка с выключателем Коробка со штепсельной розеткой Комплект установки светильника РКУ01-250 на стене на кронштейне с вылетом 1000 мм Наружная установка светильника ПСК-60М Конструкция для установки светильника НППОЗ-100 или ПСК-60М на строительном основании Конструкция для установки светильника с лампой накаливания на крюке на перекрытии Стойка К987 со светильником с лампой накаливания для установки на вибрирующем ограждении Установка кронштейна со светильником с лампой накаливания на строительном основании Установка прожектора ПКН-1000А на конструкции Установка светильника СЗЛ-300-1М на перилах Чертежи ЭМ.ВР, прилагаемые к основному комплекту ЭО Ведомость объемов электромонтажных работ |
| Разработан: | Харьковский Промстройниипроект Тяжпромэлектропроект Промтрансниипроект |
| Утверждён: | 27.10.1988 Госстрой СССР (Государственный комитет Совета Министров СССР по делам строительства) (USSR Gosstroy ) |











































