Скачать Типовой проект 802-5-47м.13.86 Альбом 1. Общая пояснительная записка. Архитектурно-строительные решения (варианты I и II)Дата актуализации: 01.01.2021
|
| Обозначение: | Типовой проект 802-5-47м.13.86 |
| Обозначение англ: | 802-5-47м.13.86 |
| Статус: | не определен законодательством |
| Название рус.: | Альбом 1. Общая пояснительная записка. Архитектурно-строительные решения (варианты I и II) |
| Дата добавления в базу: | 01.09.2013 |
| Дата актуализации: | 01.01.2021 |
| Дата введения: | 23.12.1985 |
| Дата окончания срока действия: | 30.06.2003 |
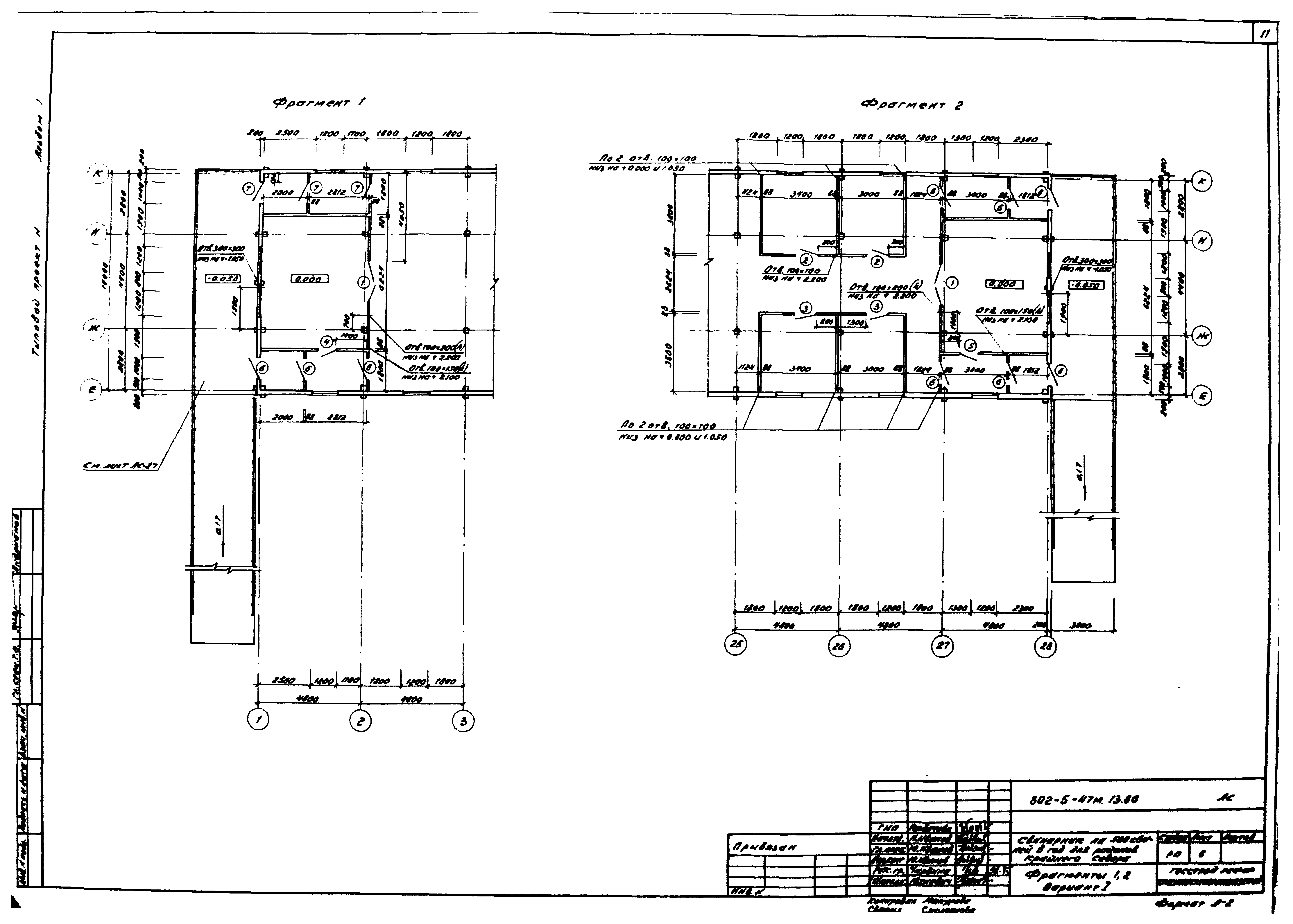
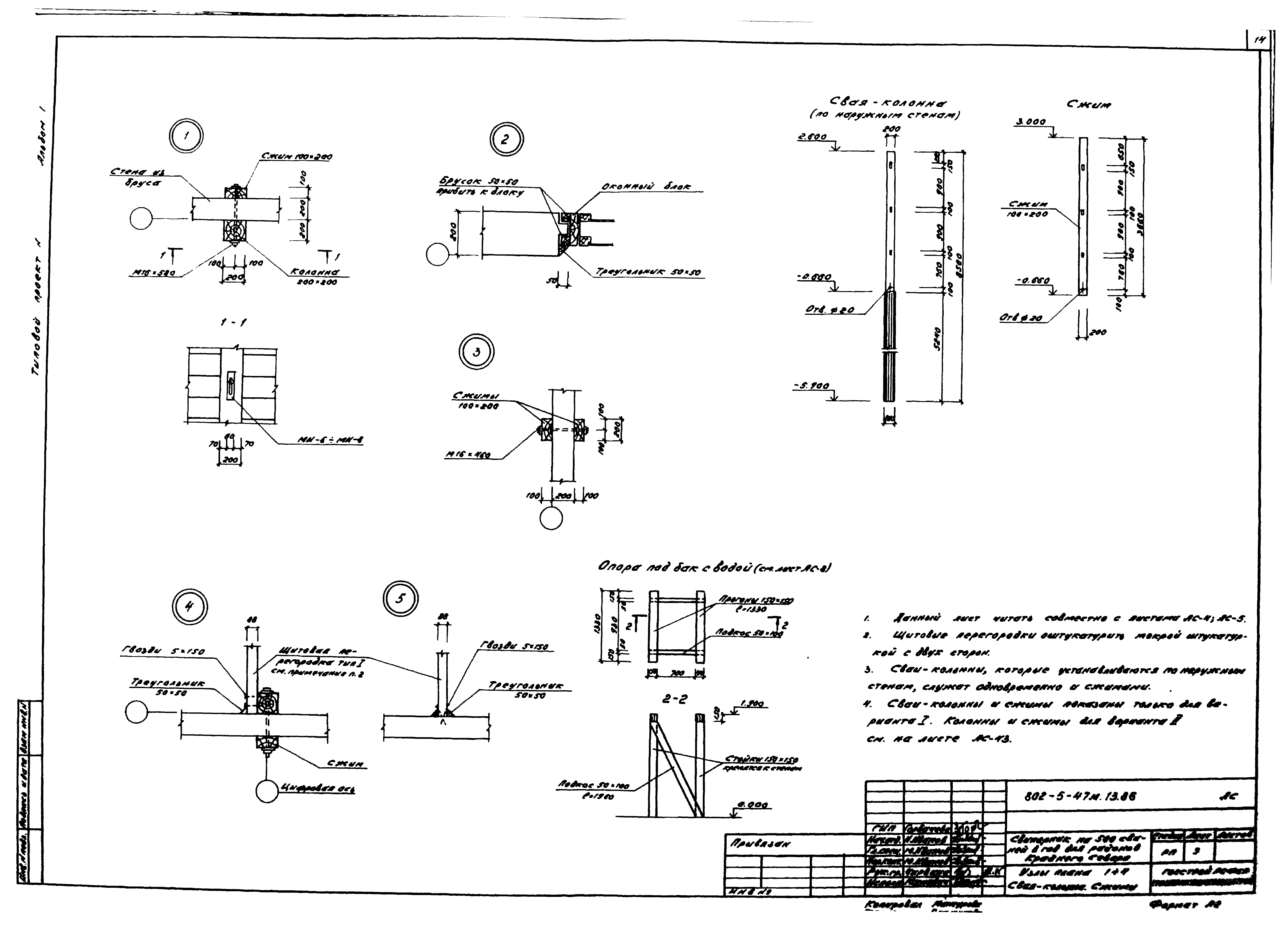
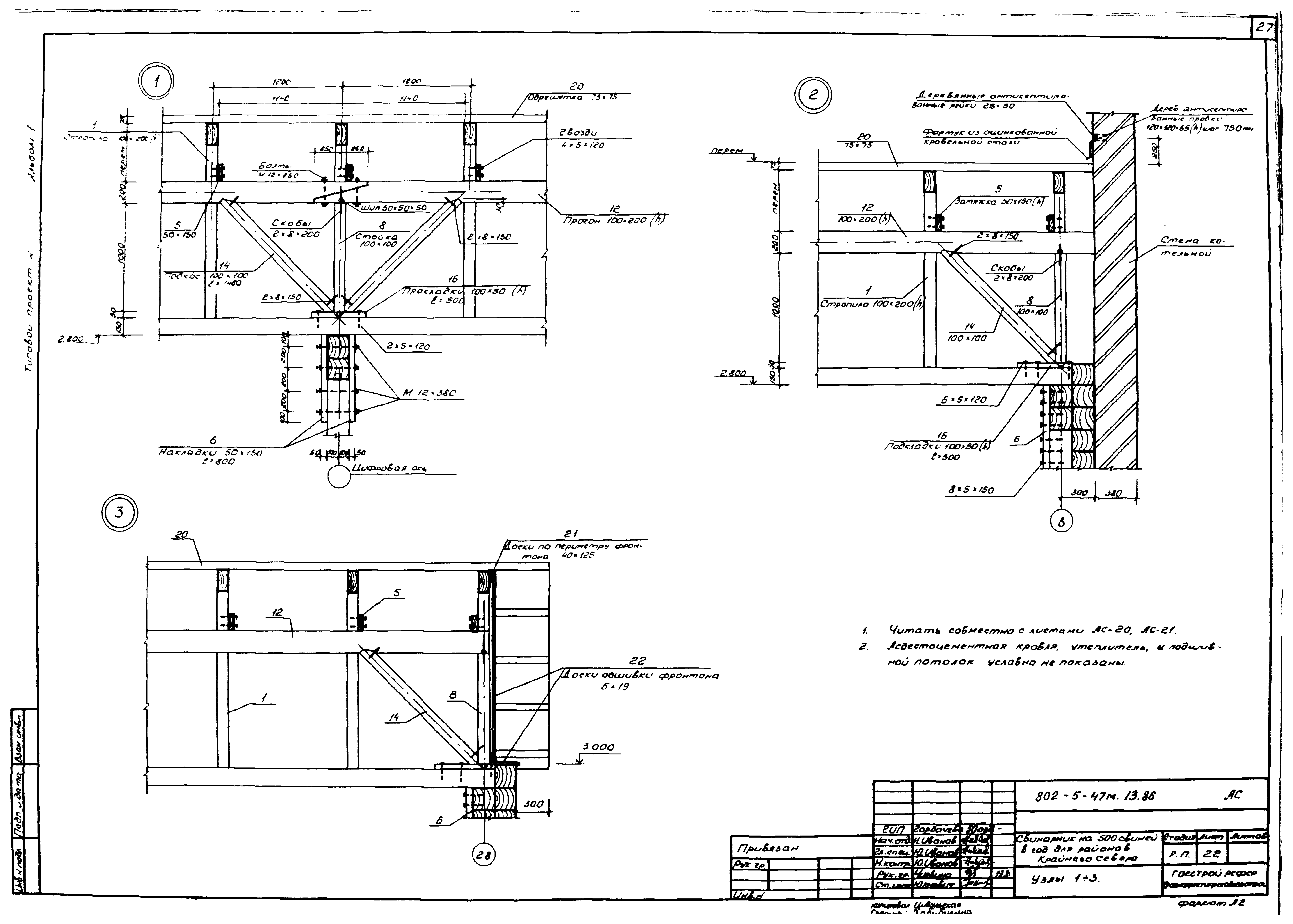
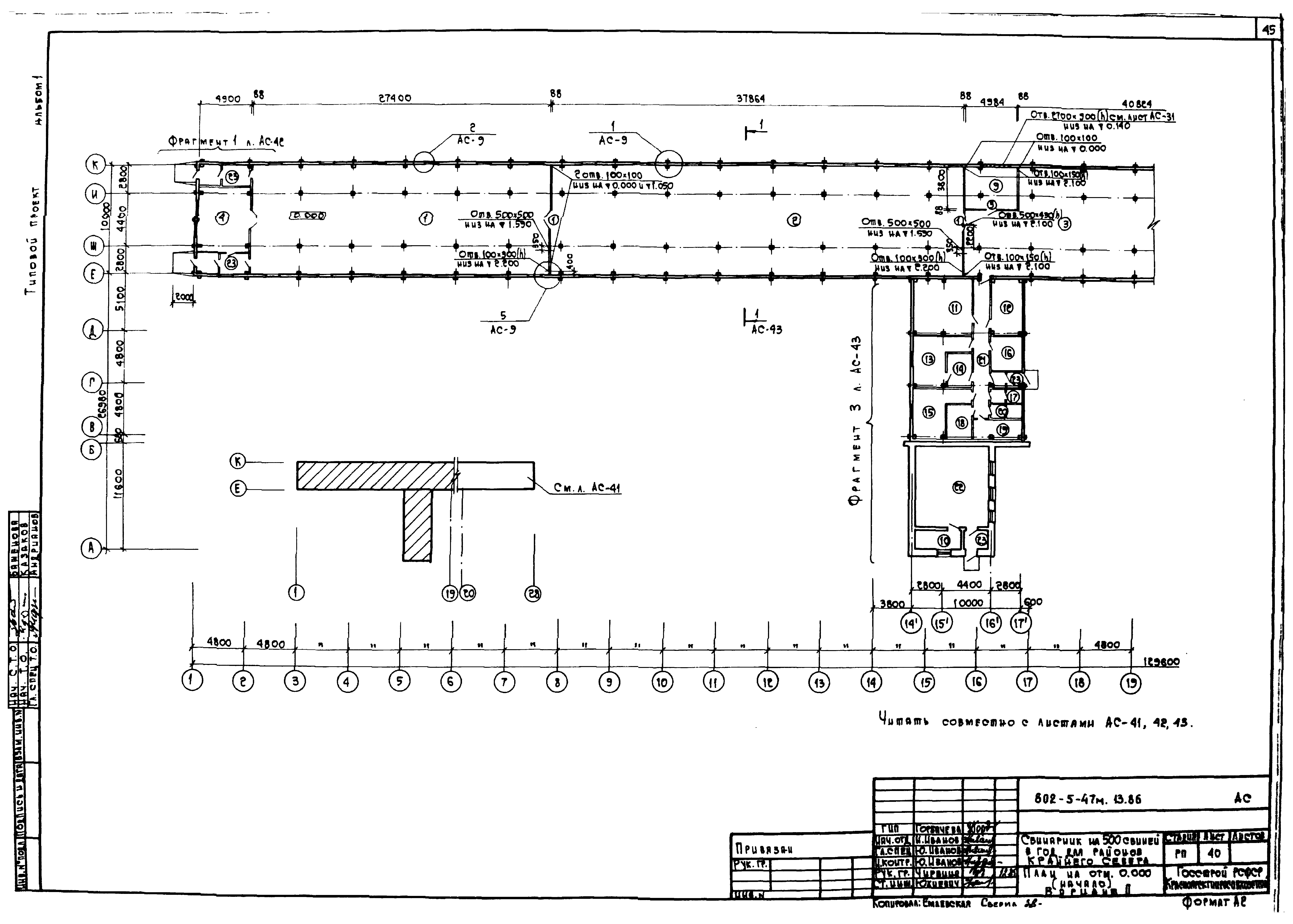
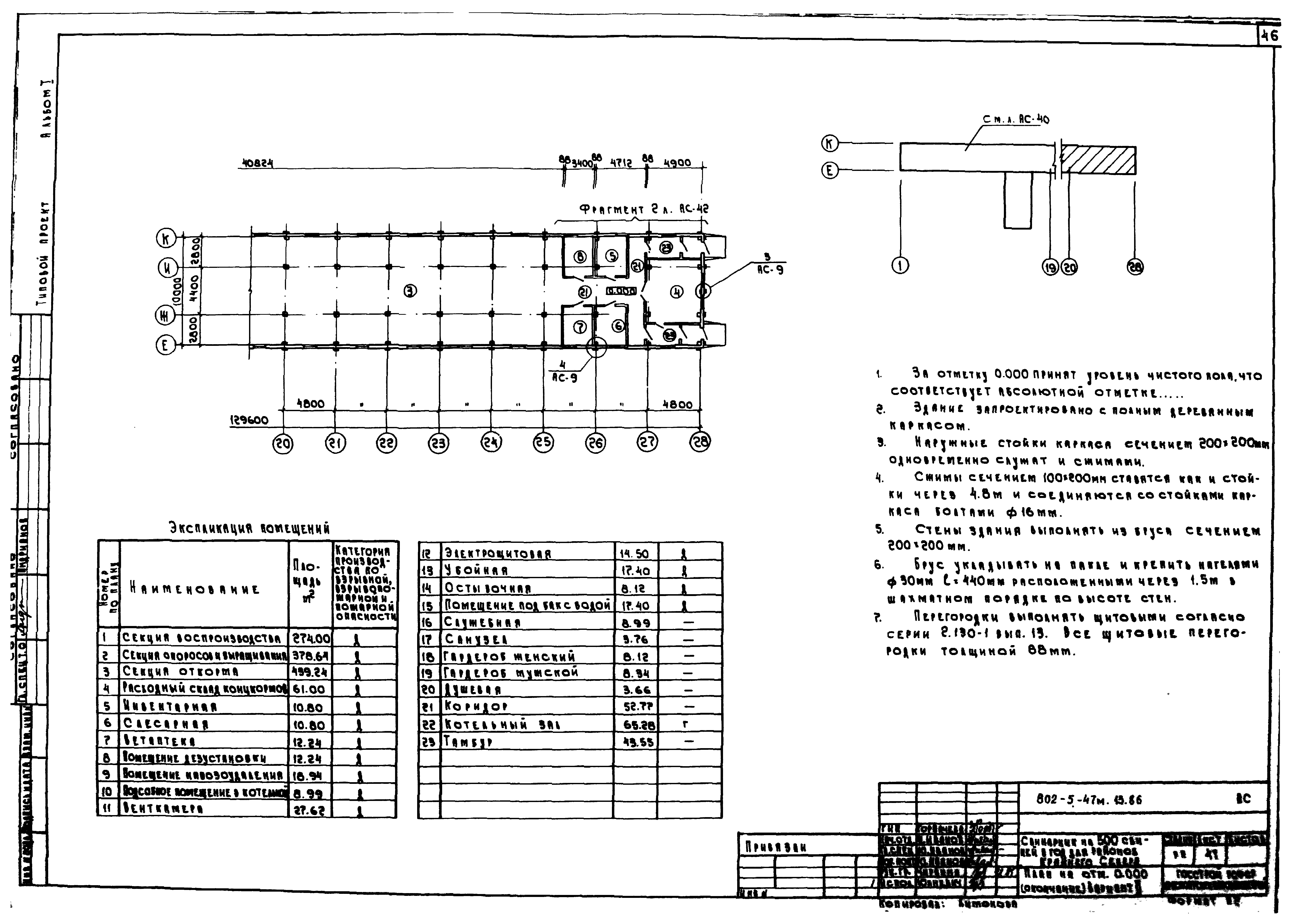
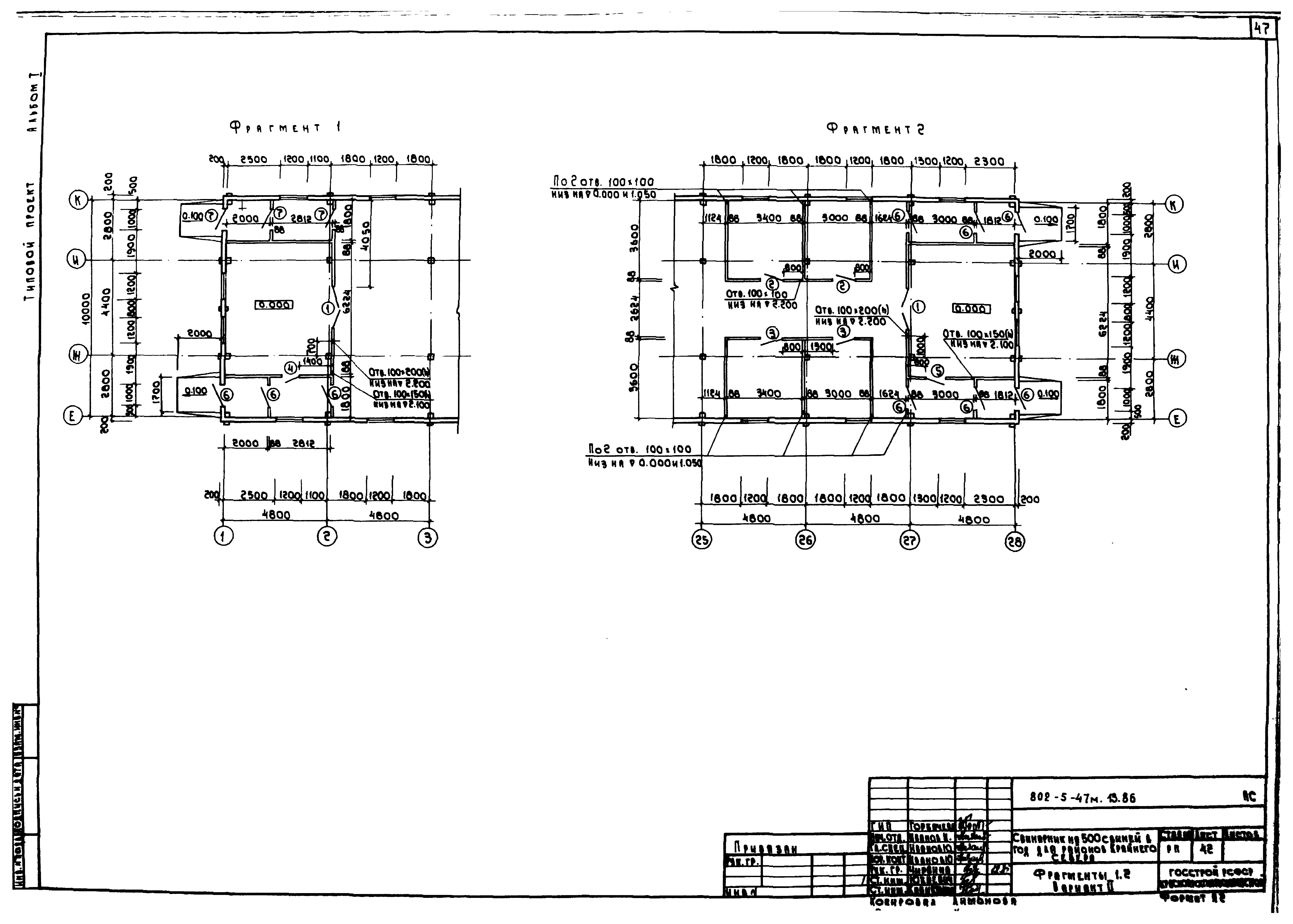
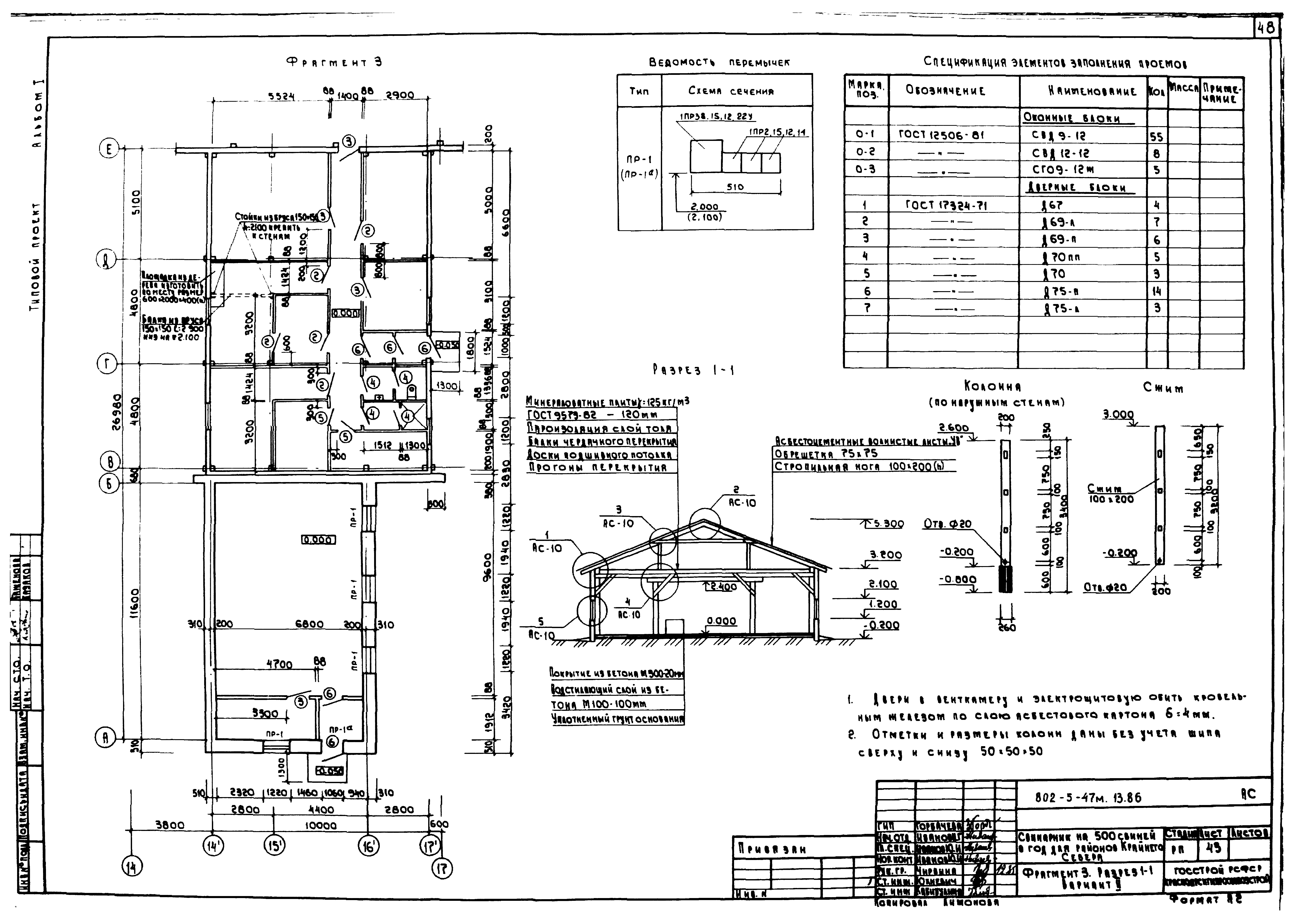
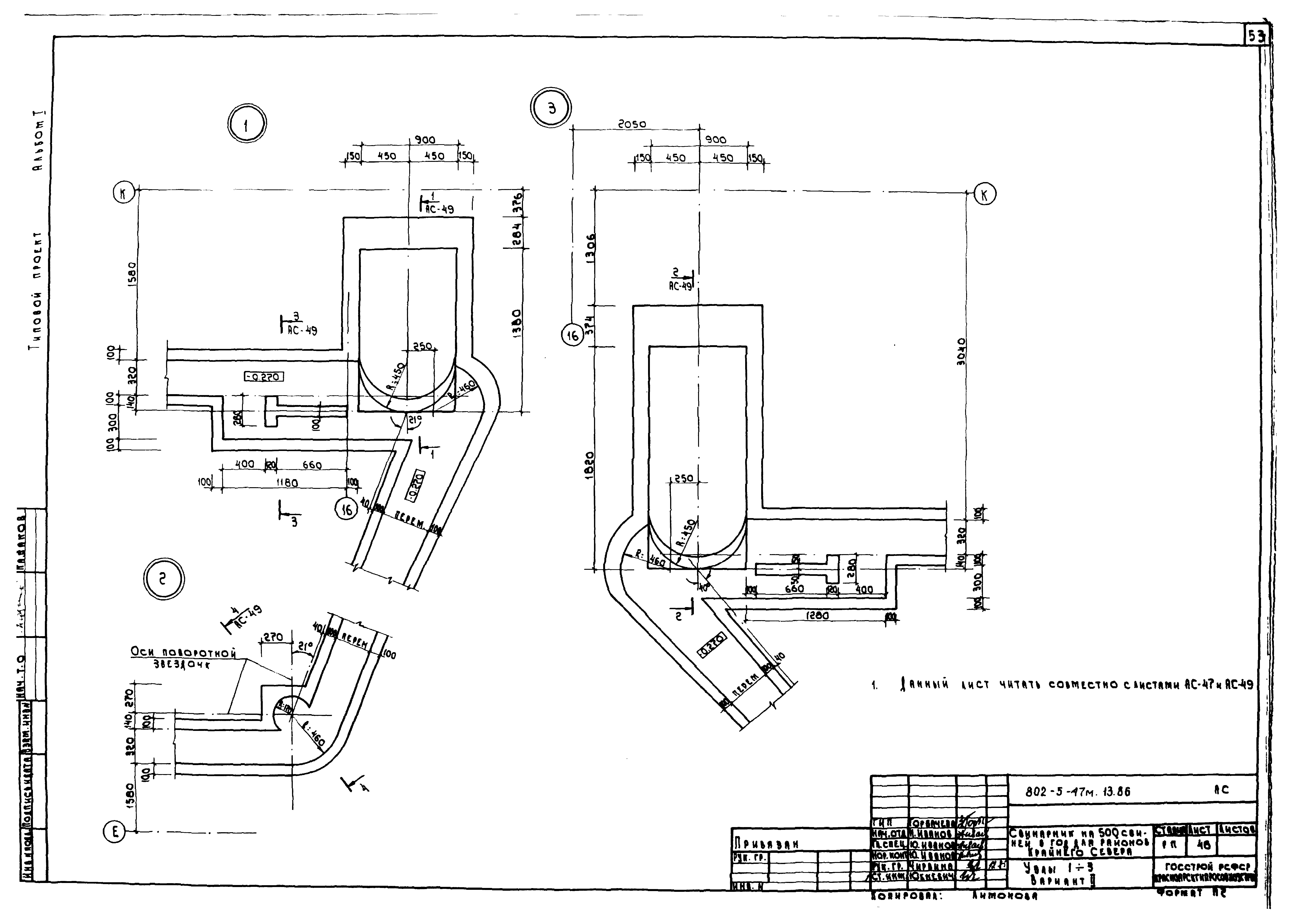
| Оглавление: | Титульный лист Содержание альбома Пояснительная записка Схема генплана Основной комплект рабочих чертежей марки АС Общие данные Фасады в осях 1-28; 28-1; А-К; К-А. Вариант I План на отм. 0.000. Вариант I Фрагменты 1, 2. Вариант I Фрагмент 3. Разрез 1-1. Вариант I План с отверстиями. Венткамера (элемент) Узлы плана 1 - 4. Свая-колонна. Сжимы Узлы 1 - 5 План свайного поля. Вариант I Схема расположения прогонов и обвязки цокольного перекрытия. Сечения А-А - Д-Д. Вариант I Сечения Е-Е: Ж-Ж. Узлы 1, 2. Вариант I Схема расположения балок цокольного перекрытия. Вариант I Узлы 1, 2. Вариант I План полов. Вариант I. План кровли. Экспликация полов. Вариант I Разрез пола 1-1, 2-2. Вариант I Разрез 3-3. Спецификация пиломатериалов на полы. Вариант I Схема расположения балок и прогонов чердачного перекрытия. Разрезы 1-1 - 3-3 Схема расположения стропил Разрезы 1-1 - 3-3 Узлы 1 - 3 Разрезы А-А; Б-Б Слуховое окно. Подкарнизный щит Осушающий продух. Элемент продуха вентилируемого подполья. Вариант I План крыльца. Разрезы 1-1; 2-2. Вариант I План разгрузочной рампы. Сечения 1-1; 2-2. Вариант I План канала навозоудаления и путей кормораздатчика. Вариант I Узлы 1 - 5. Вариант I Сечения 1-1 - 5-5. Вариант I Утепленный короб. Вариант I Схема расстановки станков Детали крепления стен станков. Деревянный подвесной короб для кабеля кормораздатчика Металлические изделия МИ1 - МИ12 Котельная. План. Разрез 1-1. Планы перекрытий. Вариант I План свайного поля. План ростверка. Сечения. Фундаменты под насосы. Вариант I Схема расположения стропил. Разрезы 1-1; 2-2. Узлы 1- 3. Вариант I Свайные спецификации. Вариант I Фасады в осях 1 - 28; 28 - 1; А - К; К - А. Вариант II План на отм. 0.000. Вариант II Фрагменты 1, 2. Вариант II Фрагмент 3. Разрез 1-1. Вариант II План фундаментов. Вариант II Сечения 1-1 - 5-; В-В; Г-Г. Фундаменты Ф-1, Ф-2. Вариант II План полов. Экспликация полов. Вариант II План каналов навозоудаления и путей кормораздатчика. Вариант II Узлы 1 - 3. Вариант II Узлы 4; 5; А; Б. Сечения 1-1 - 6-6. Вариант II Утепленный короб. Вариант II Схема расположения фундаментов под стойки ограждения станков. Фундамент Ф1. Вариант II Котельная. План. Разрез 1-1. План чердачного перекрытия. Вариант II Схема расположения стропил. Разрезы 1-1; 2-2. Узлы 1 - 3. Вариант II Сводные спецификации. Вариант II План выгульных дворов |
| Разработан: | Красноярскгипросовхозстрой |
| Утверждён: | 26.11.1985 Минсельхоз СССР (USSR Minselkhoz 80-ЭГ) |




























































