Скачать Серия 1.272.5-6 Часть 1. Рабочие чертежиДата актуализации: 01.01.2021
|
| Обозначение: | Серия 1.272.5-6 |
| Обозначение англ: | Series 1.272.5-6 |
| Статус: | не действует |
| Название рус.: | Часть 1. Рабочие чертежи |
| Дата добавления в базу: | 01.09.2013 |
| Дата актуализации: | 01.01.2021 |
| Дата введения: | 01.11.1983 |
| Дата окончания срока действия: | 01.10.2000 |
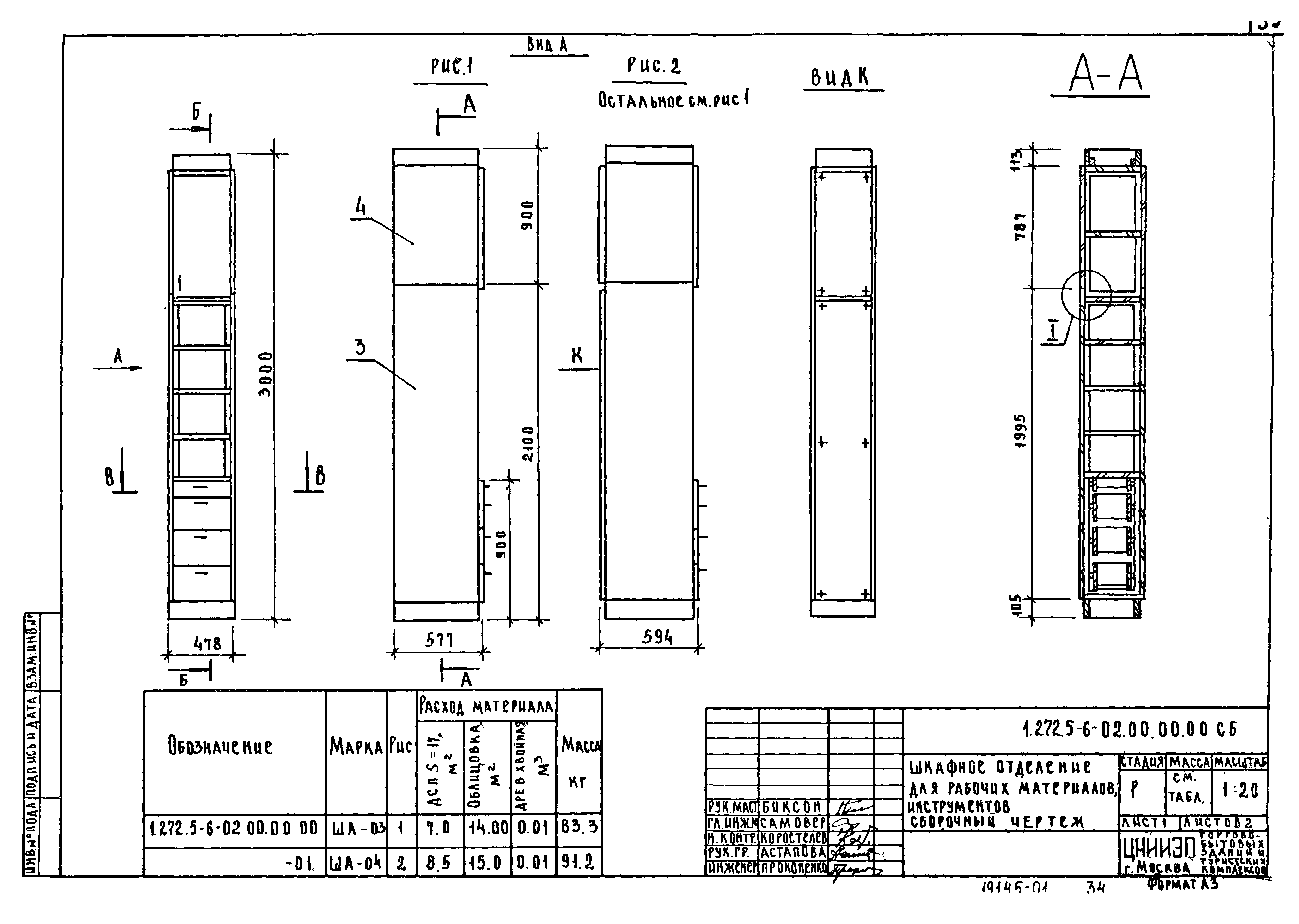
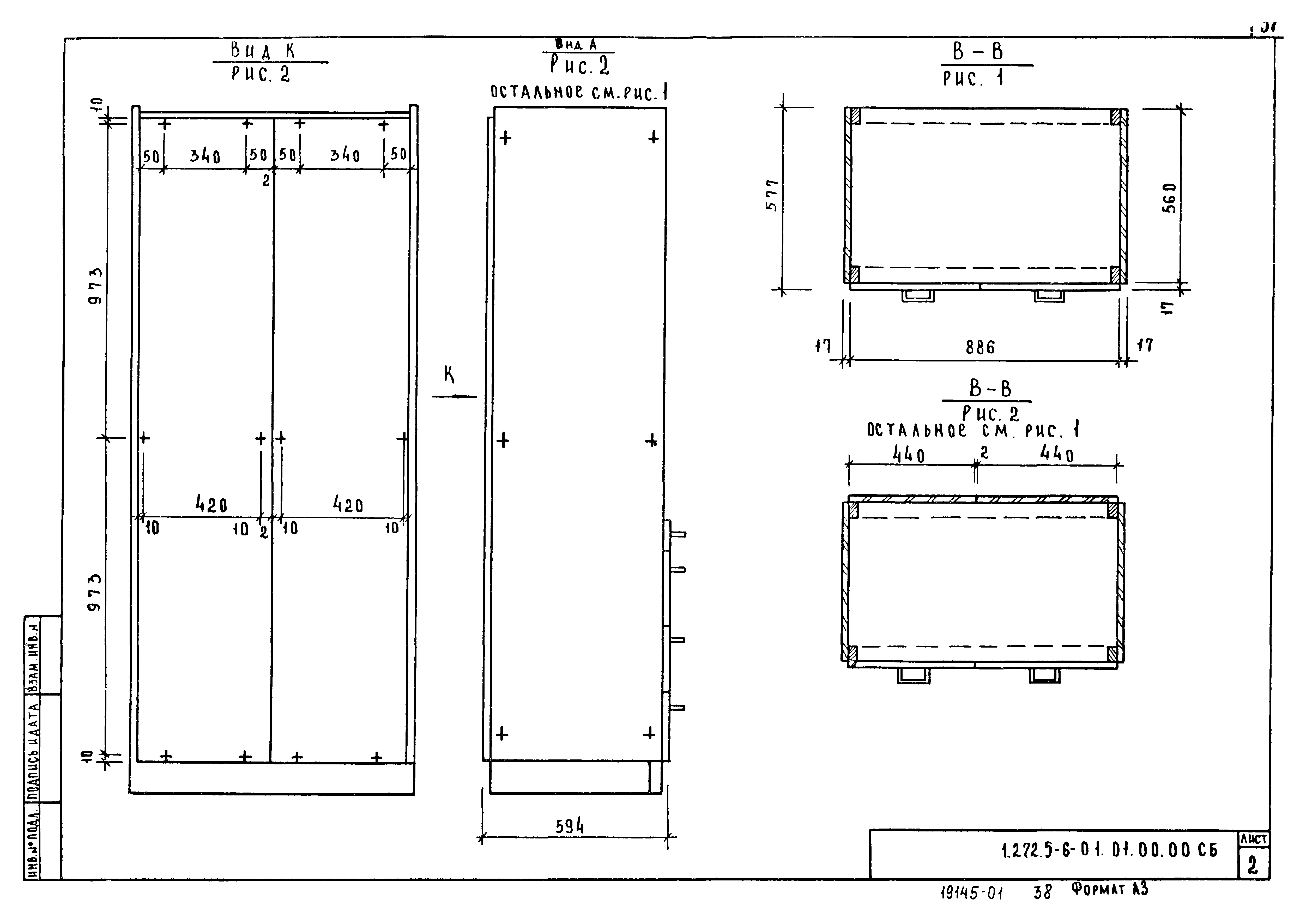
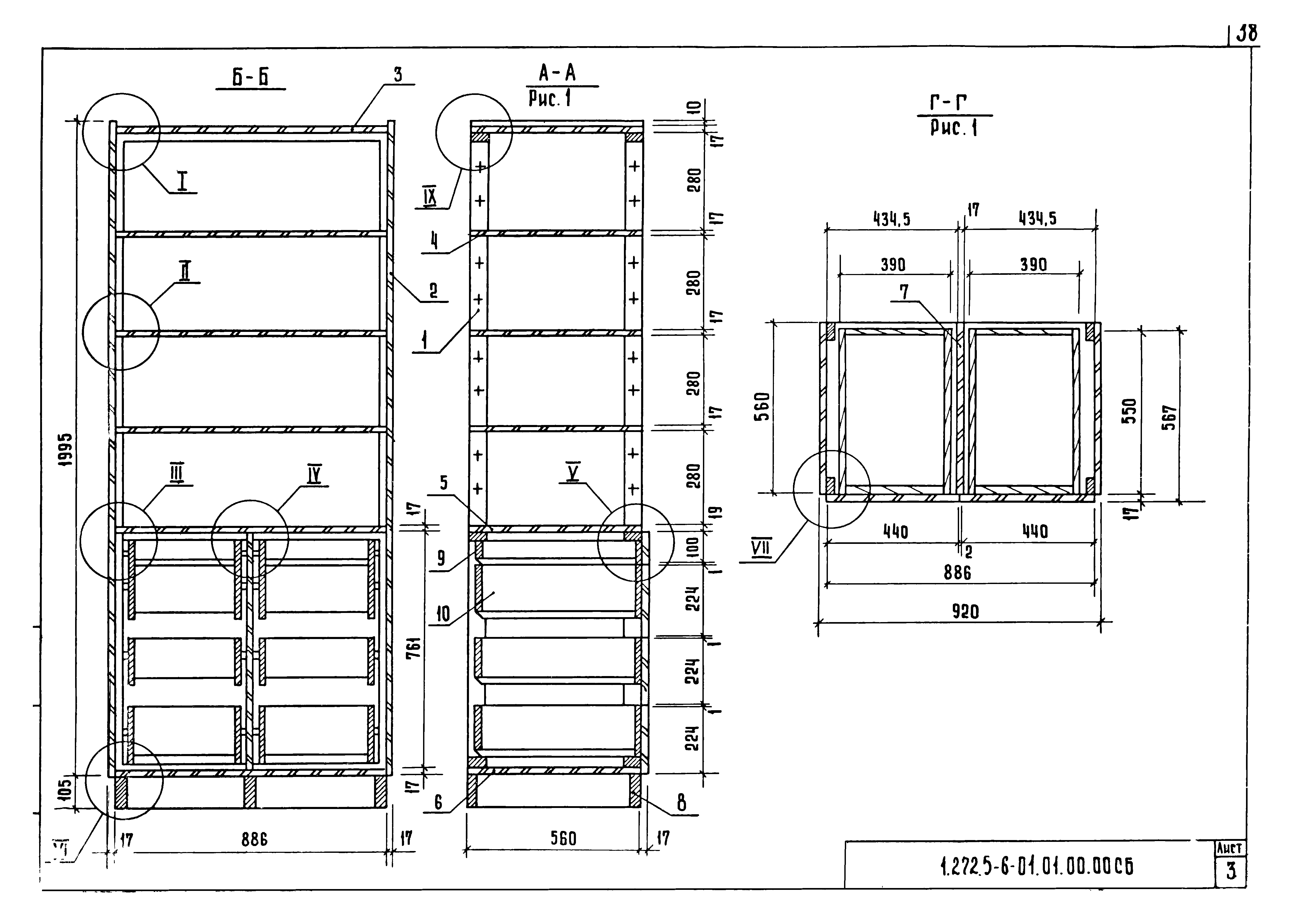
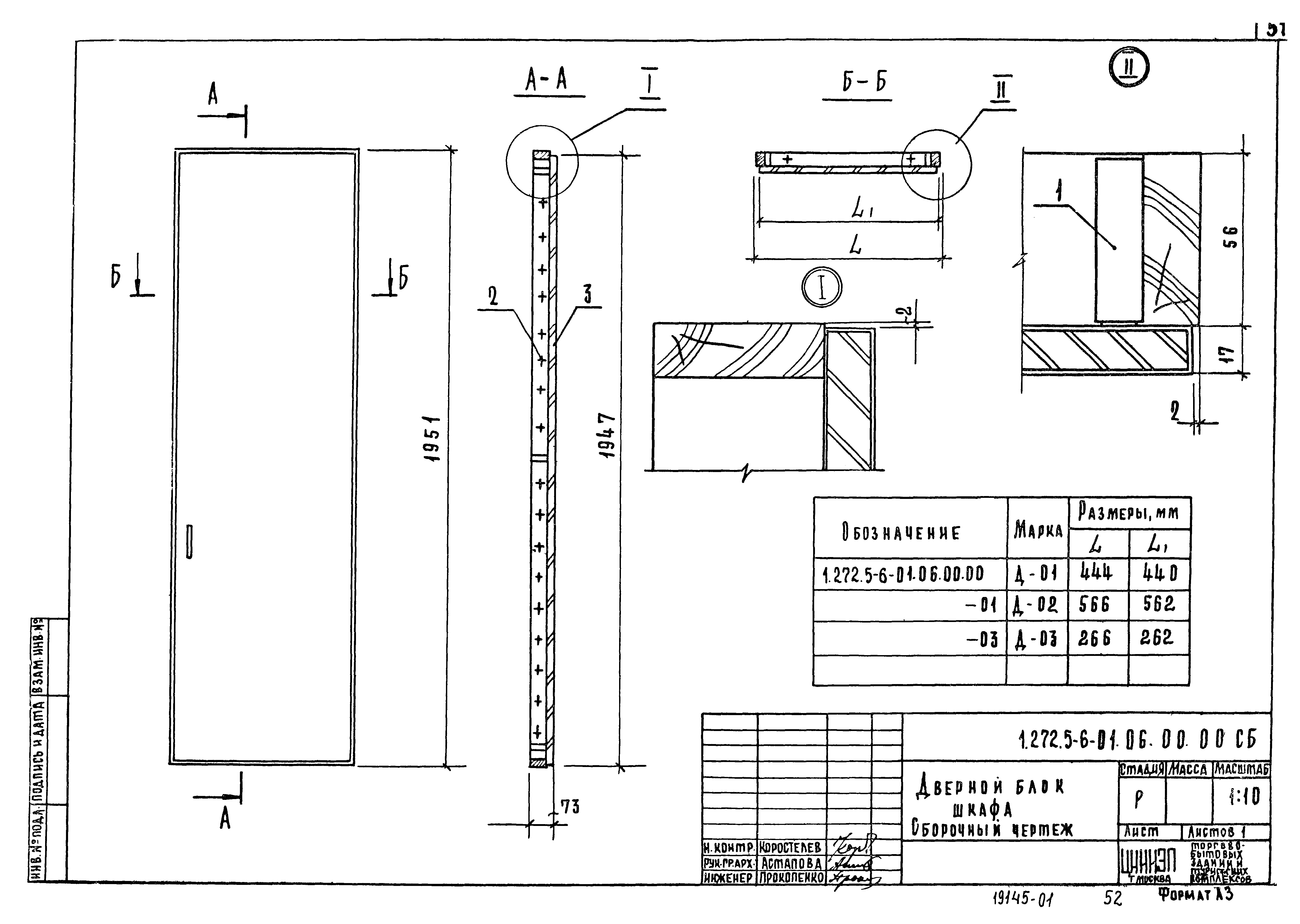
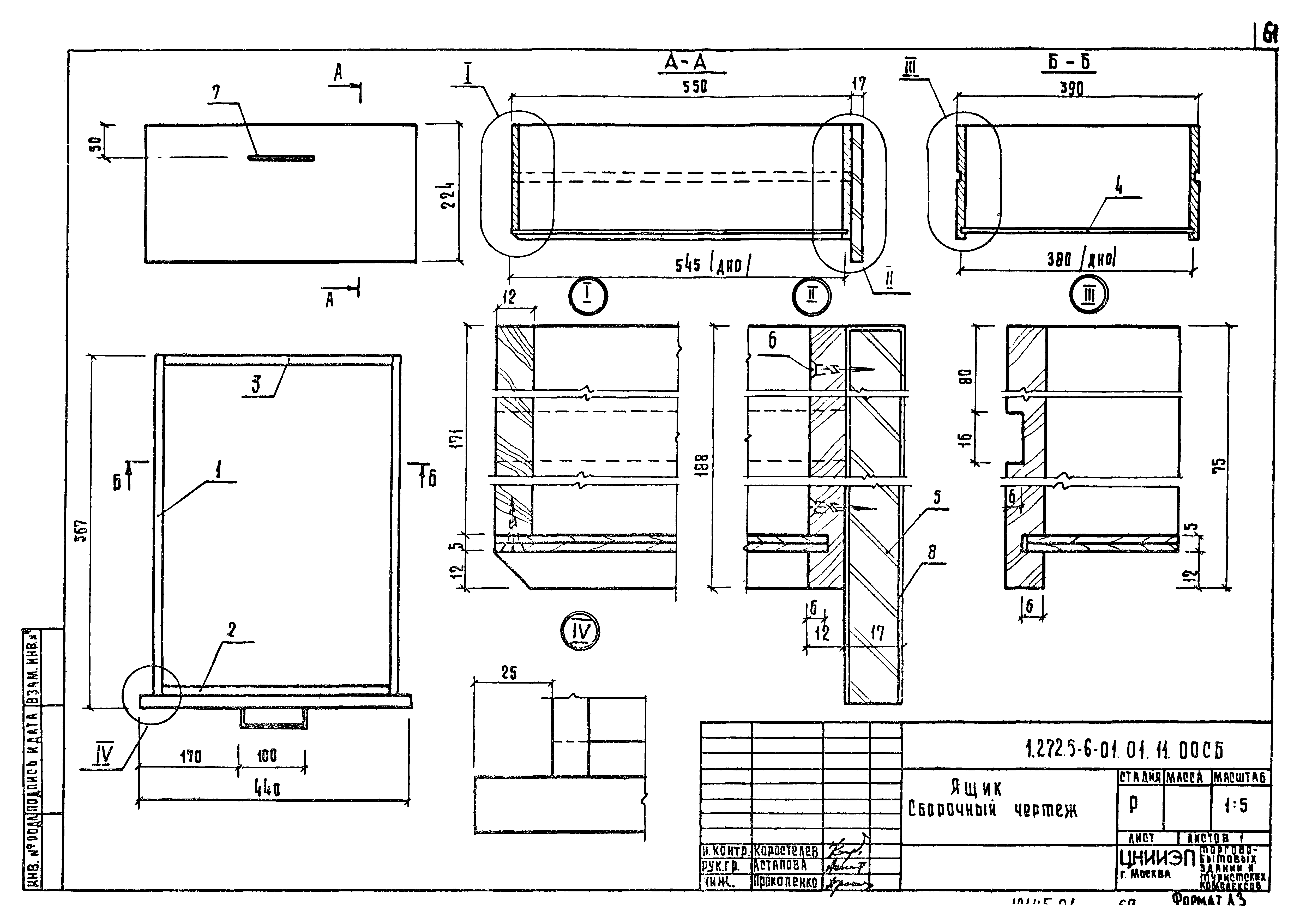
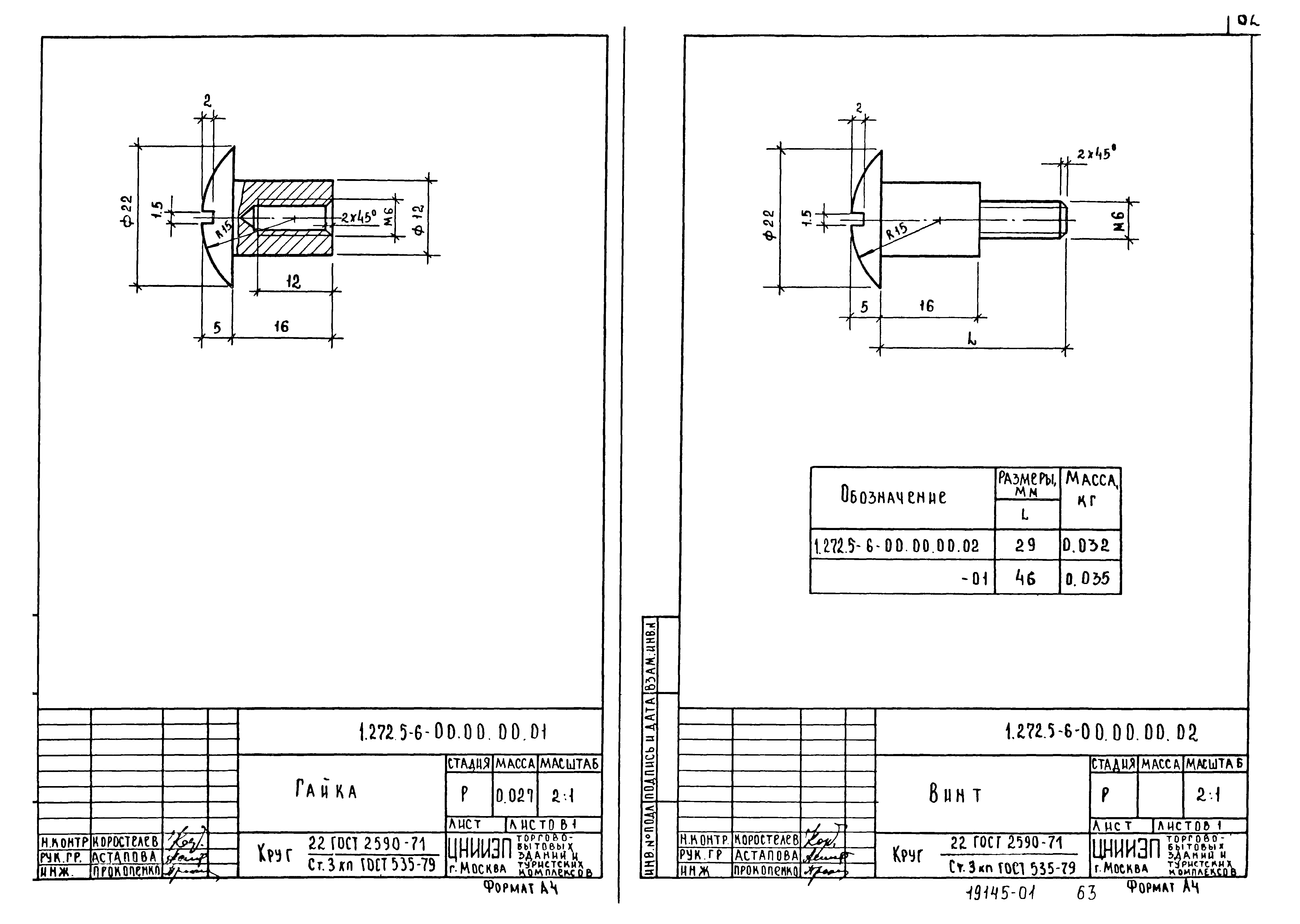
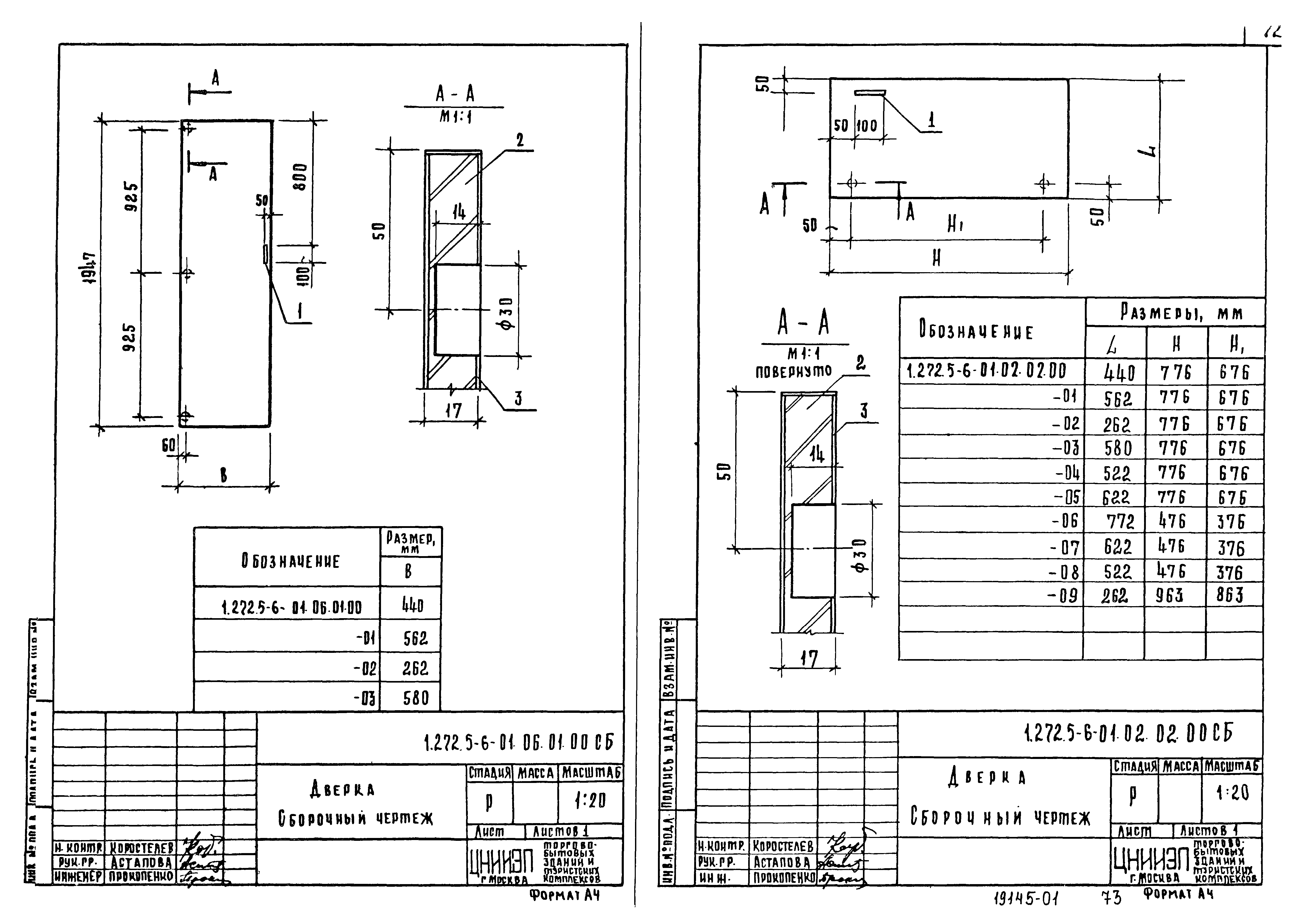
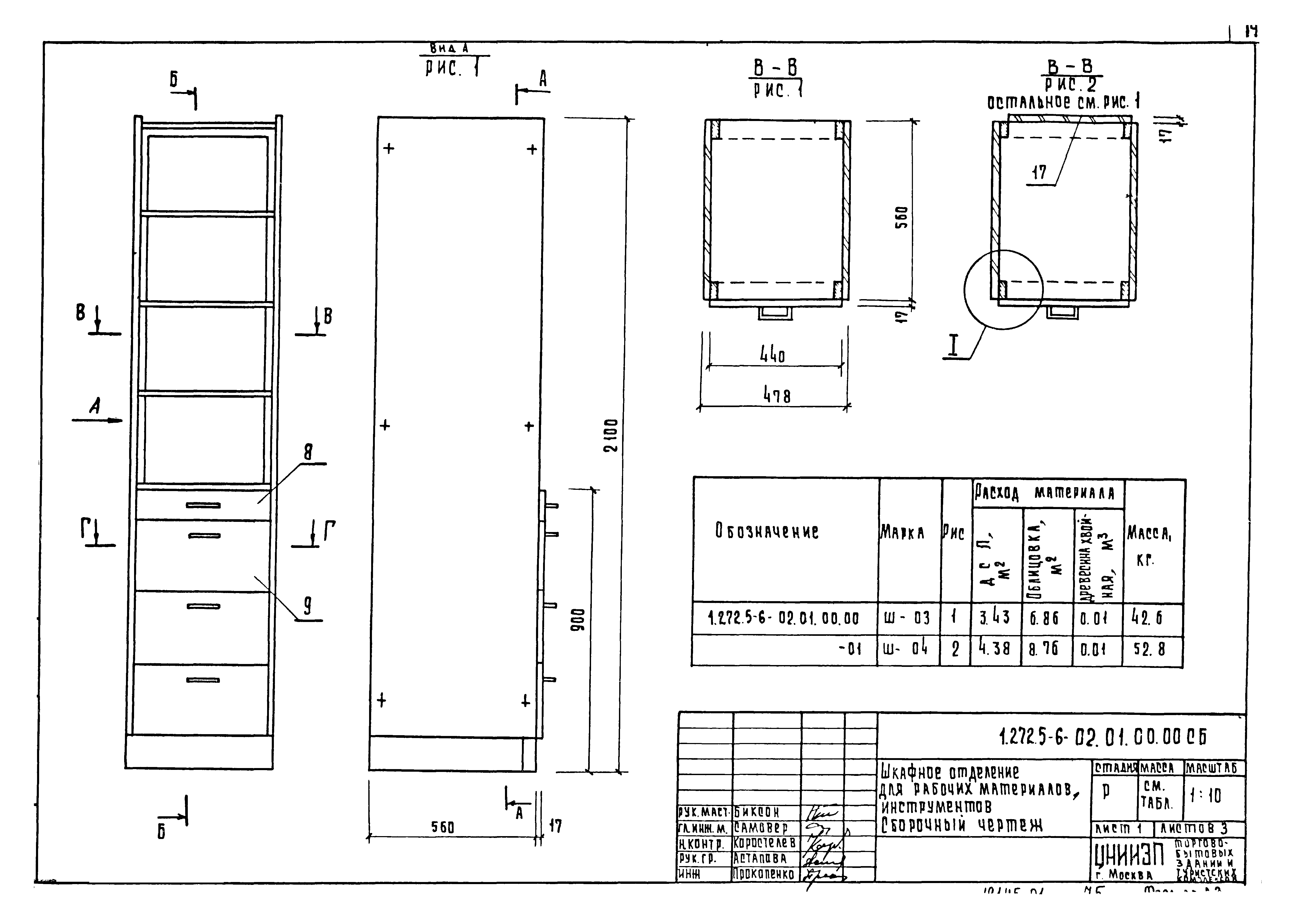
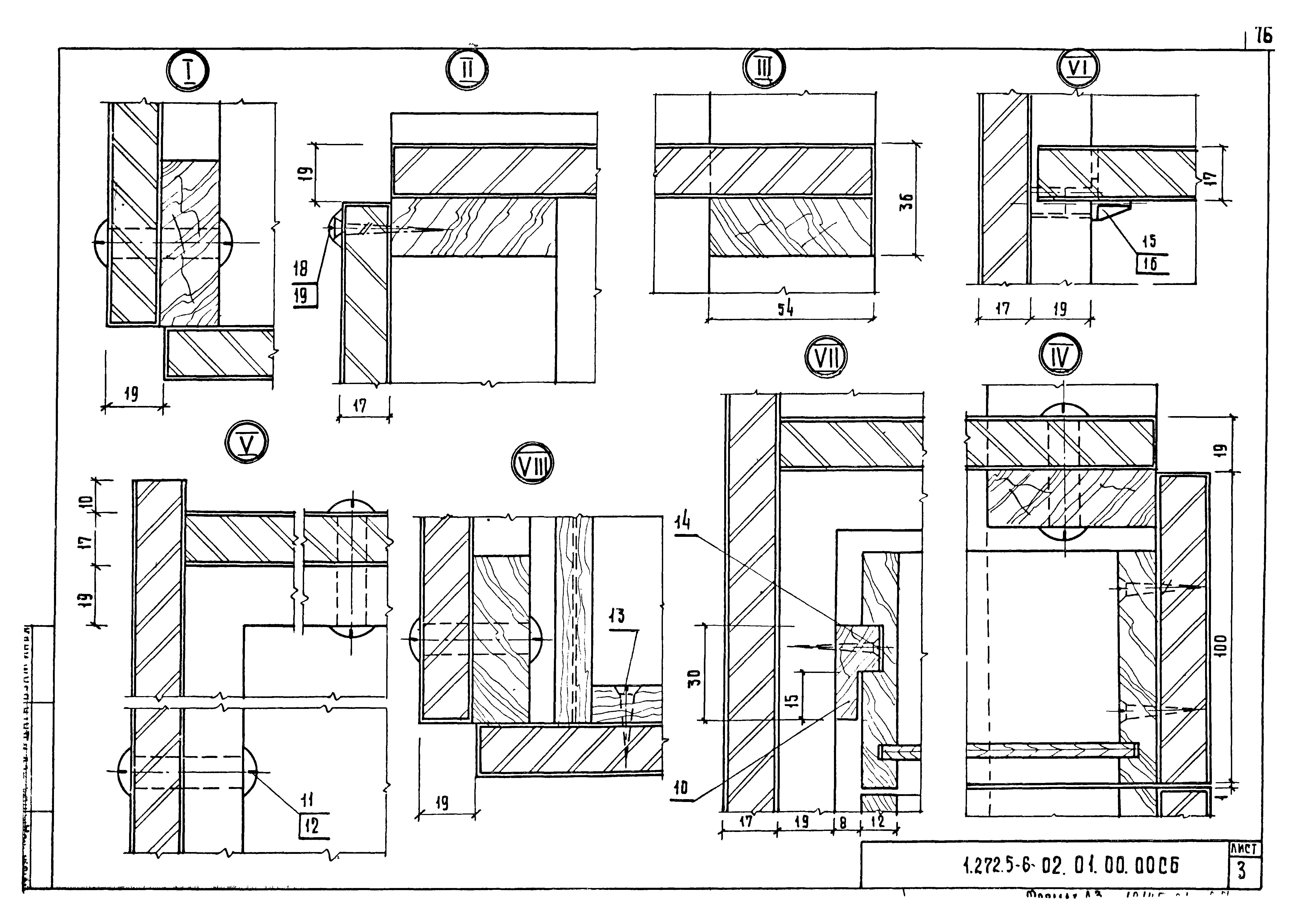
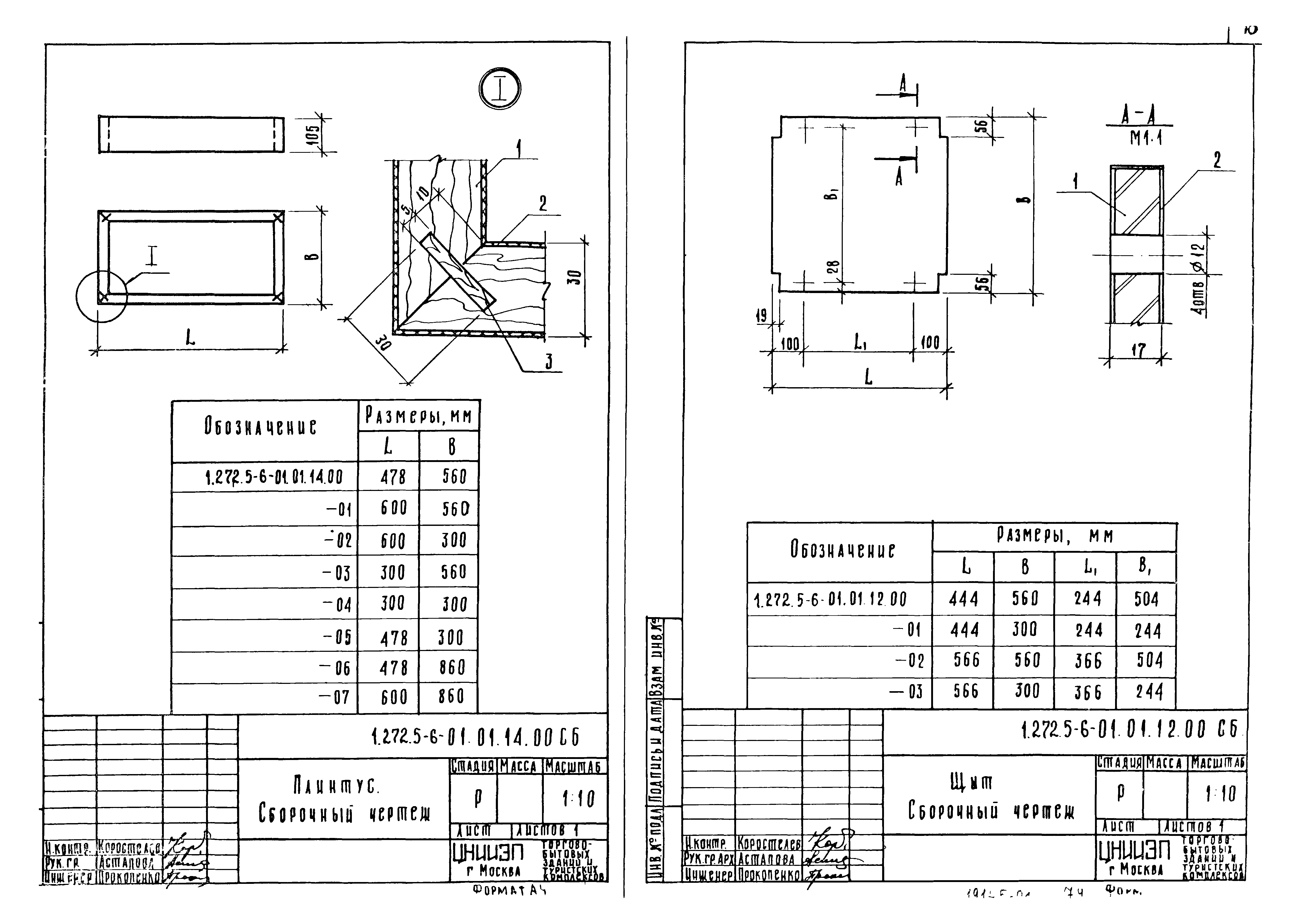
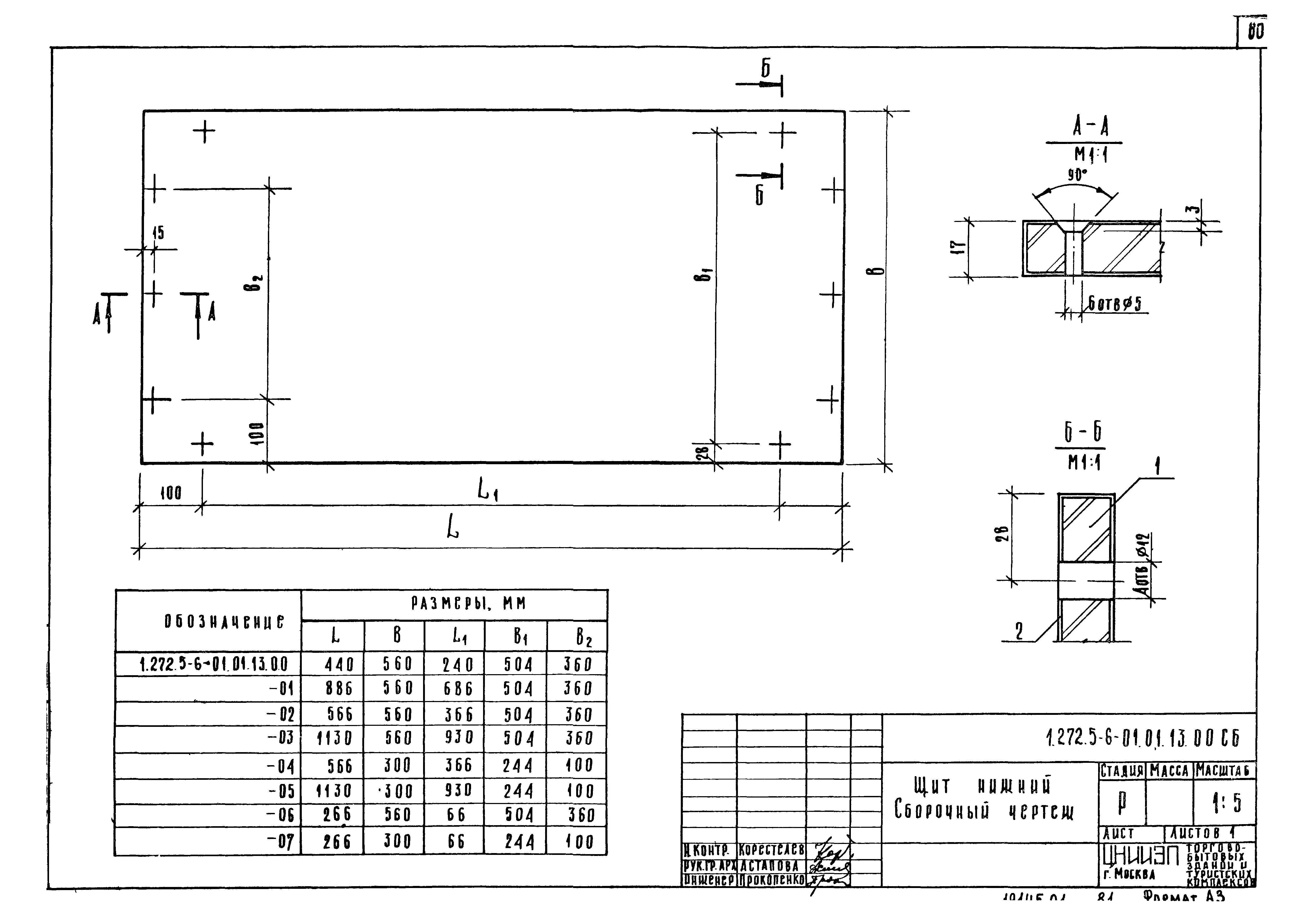
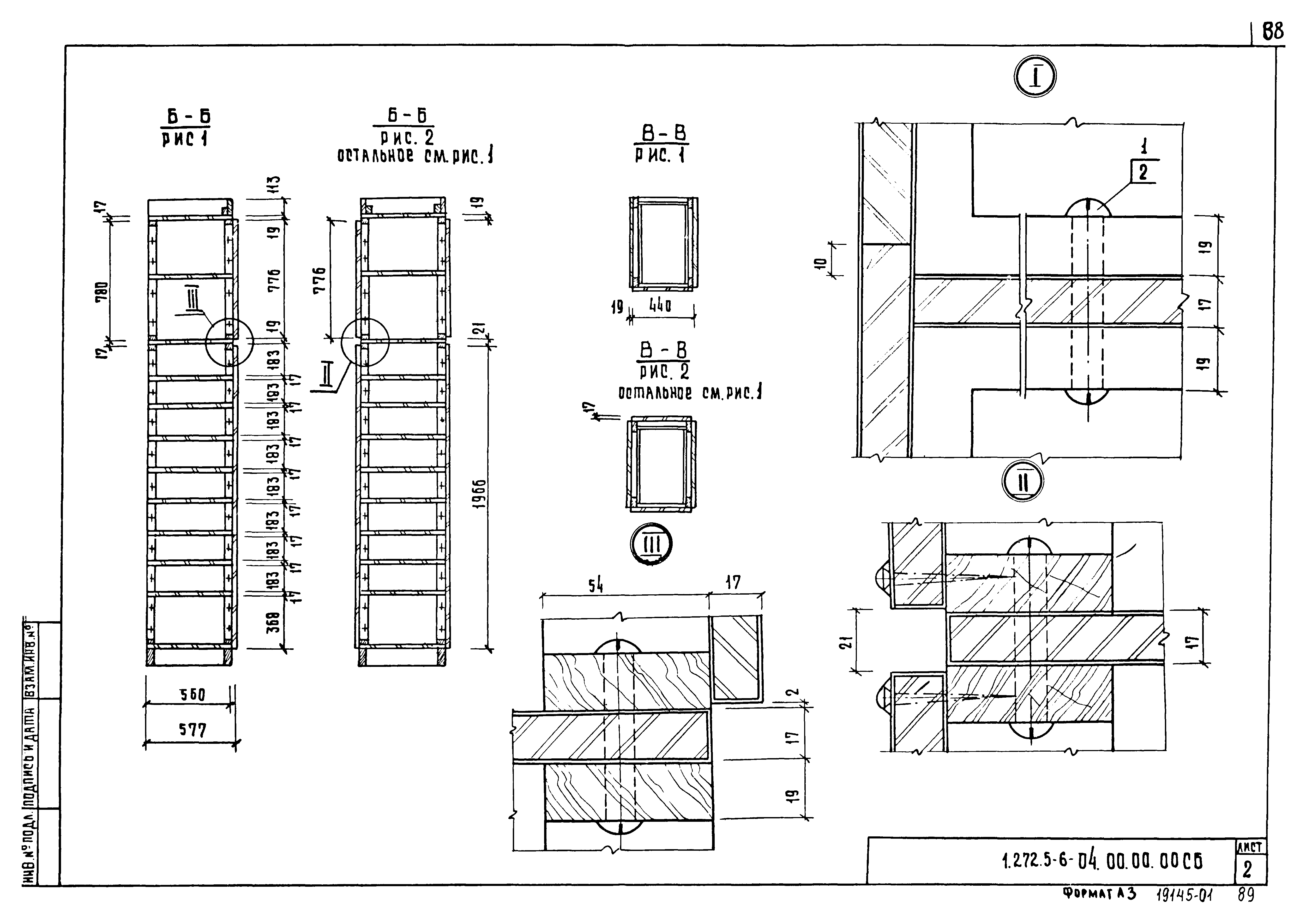
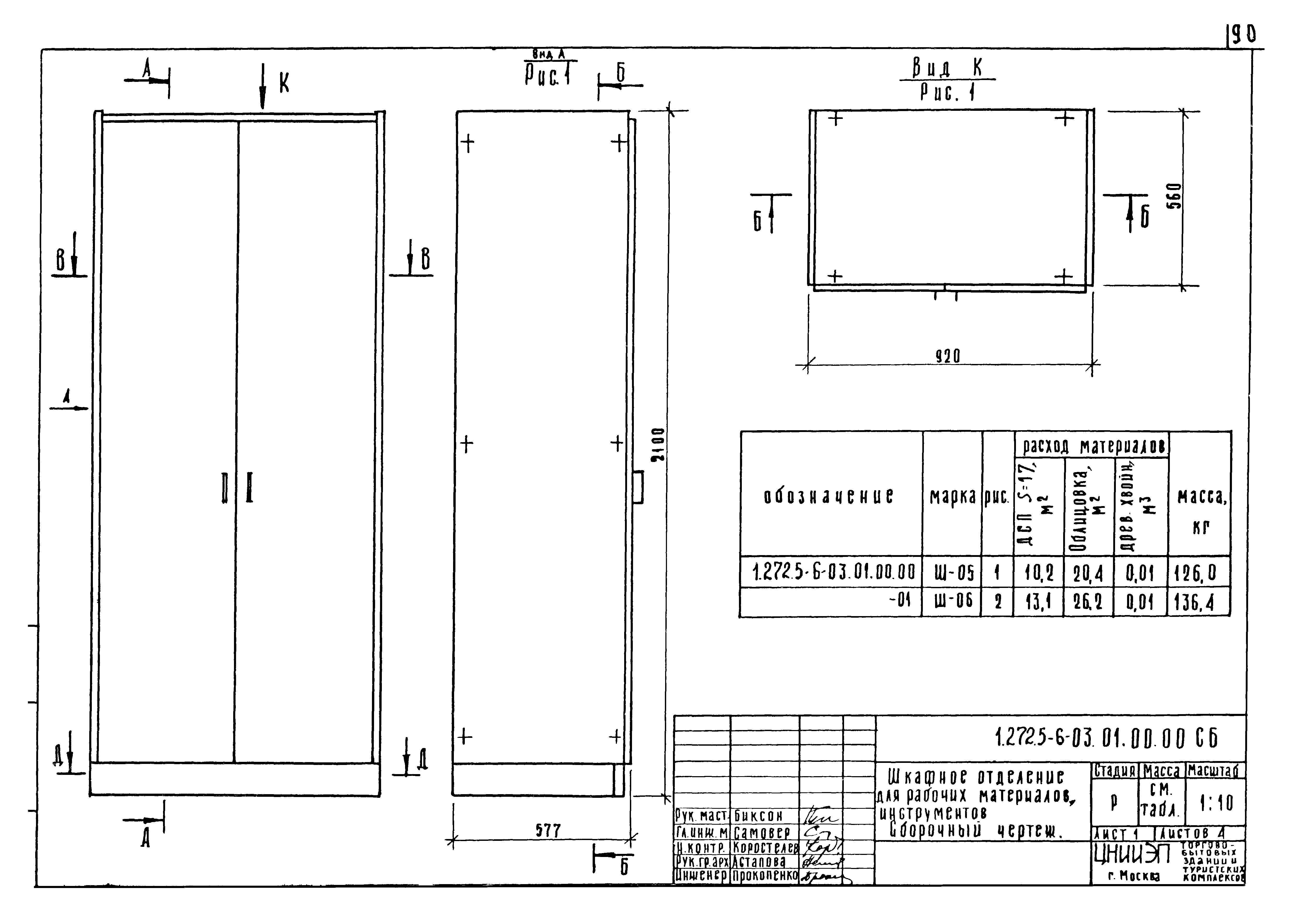
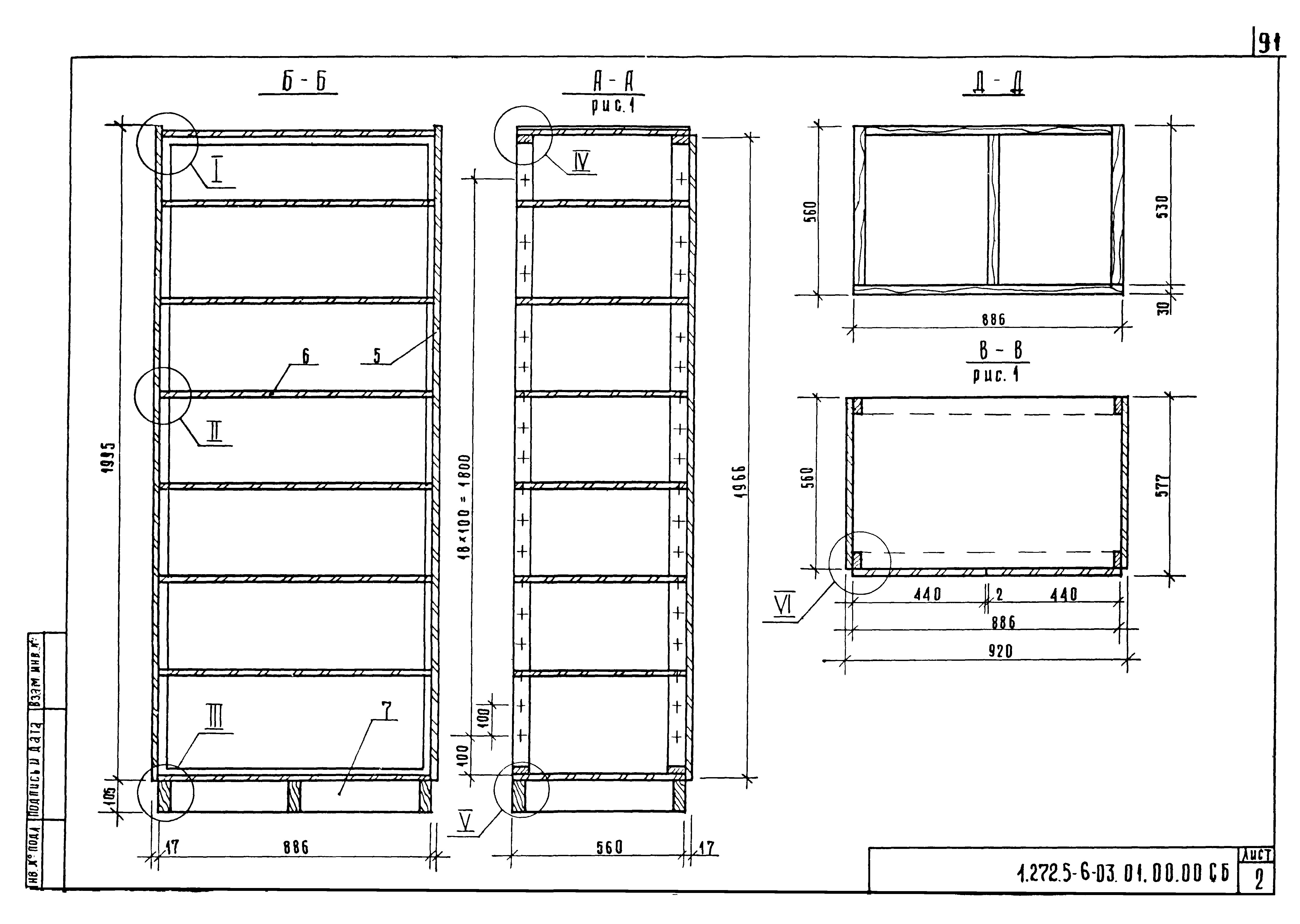
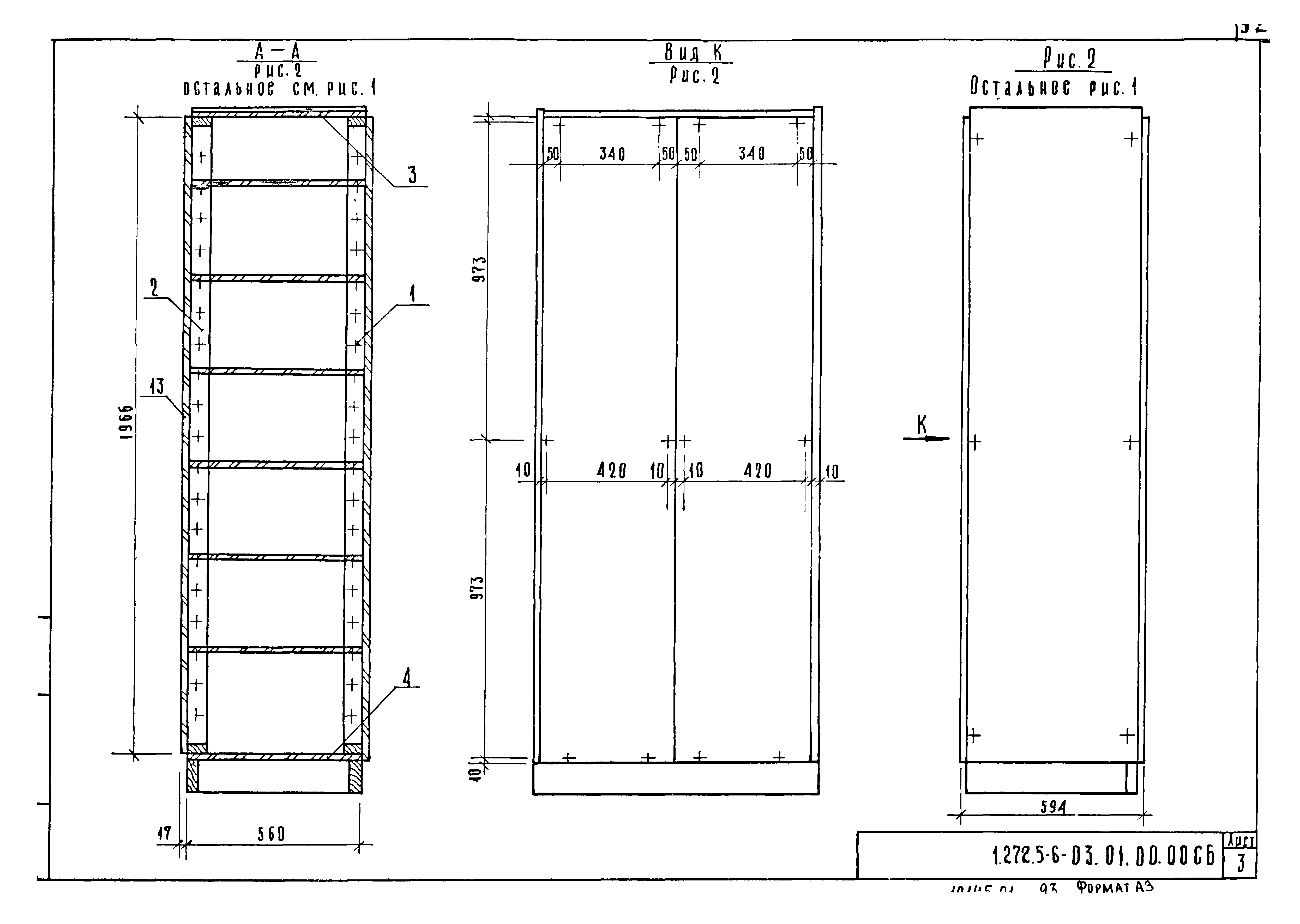
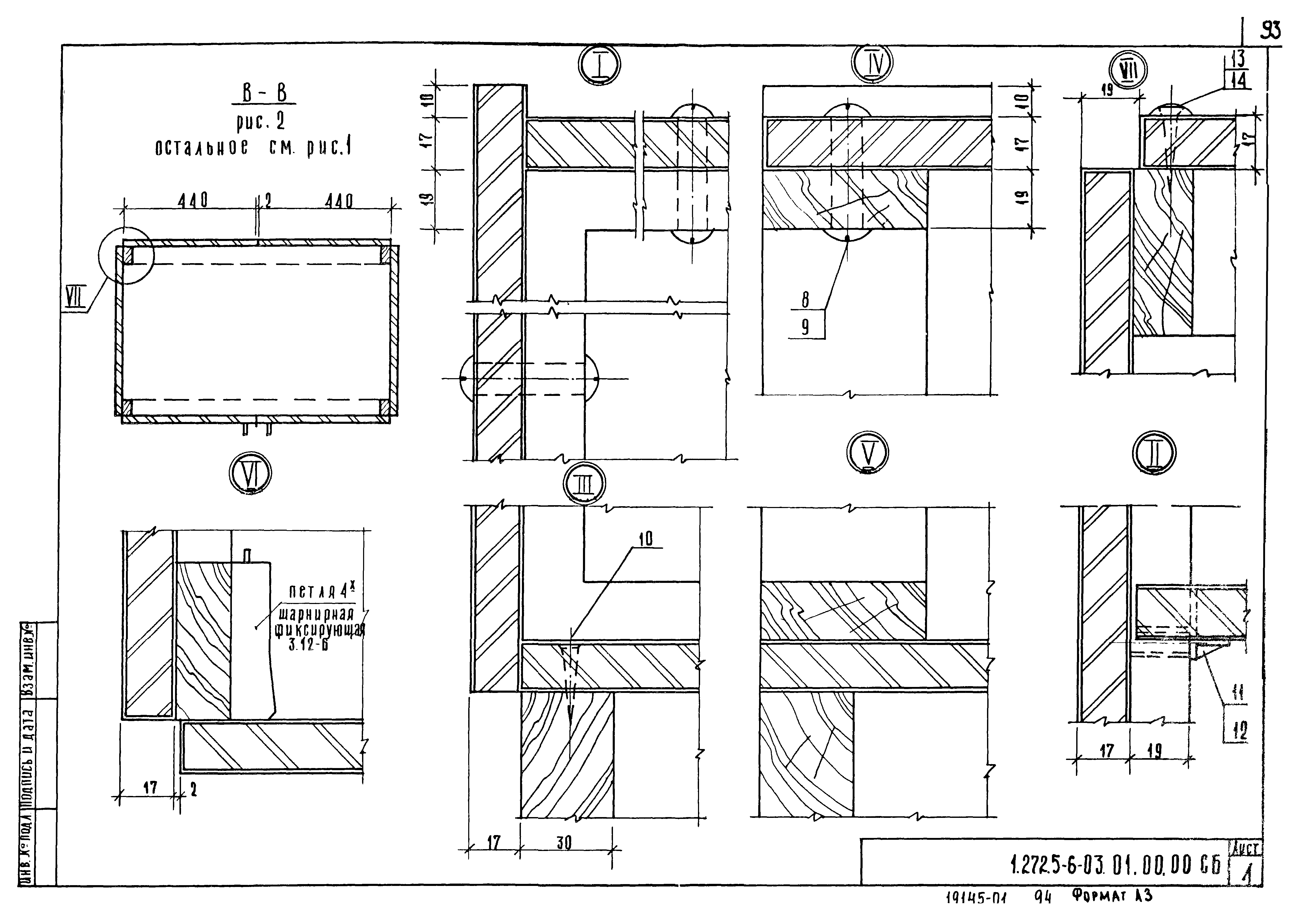
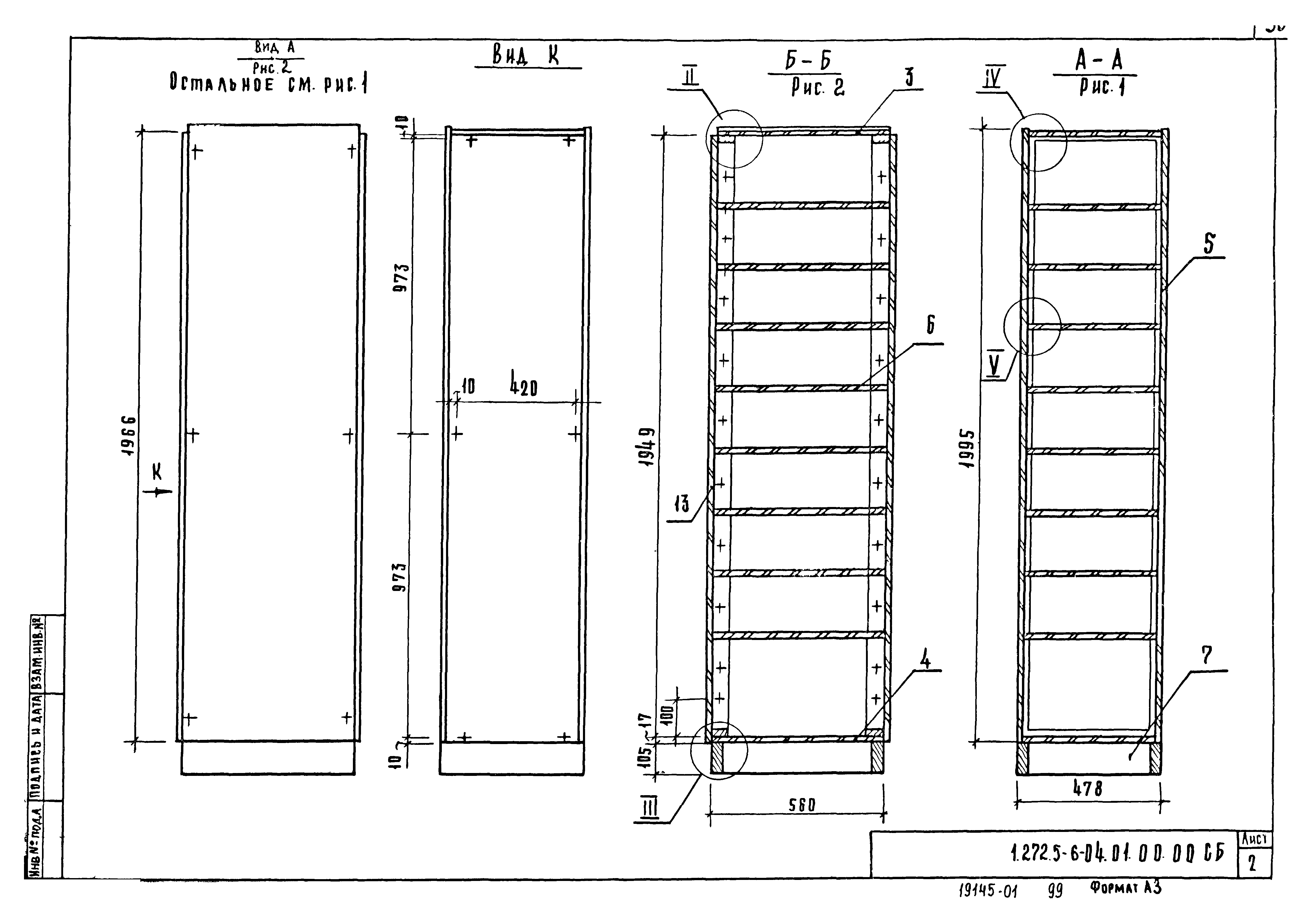
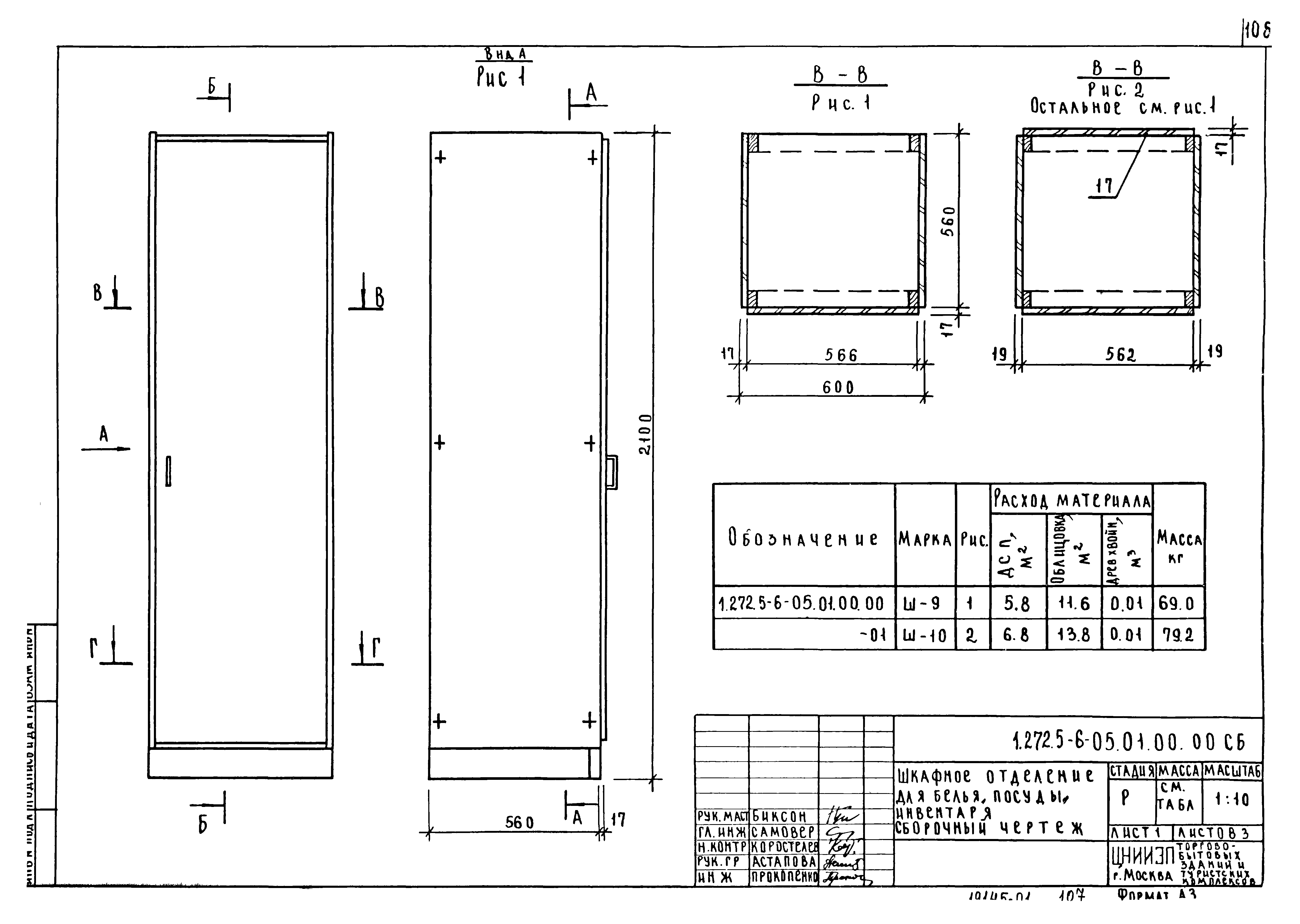
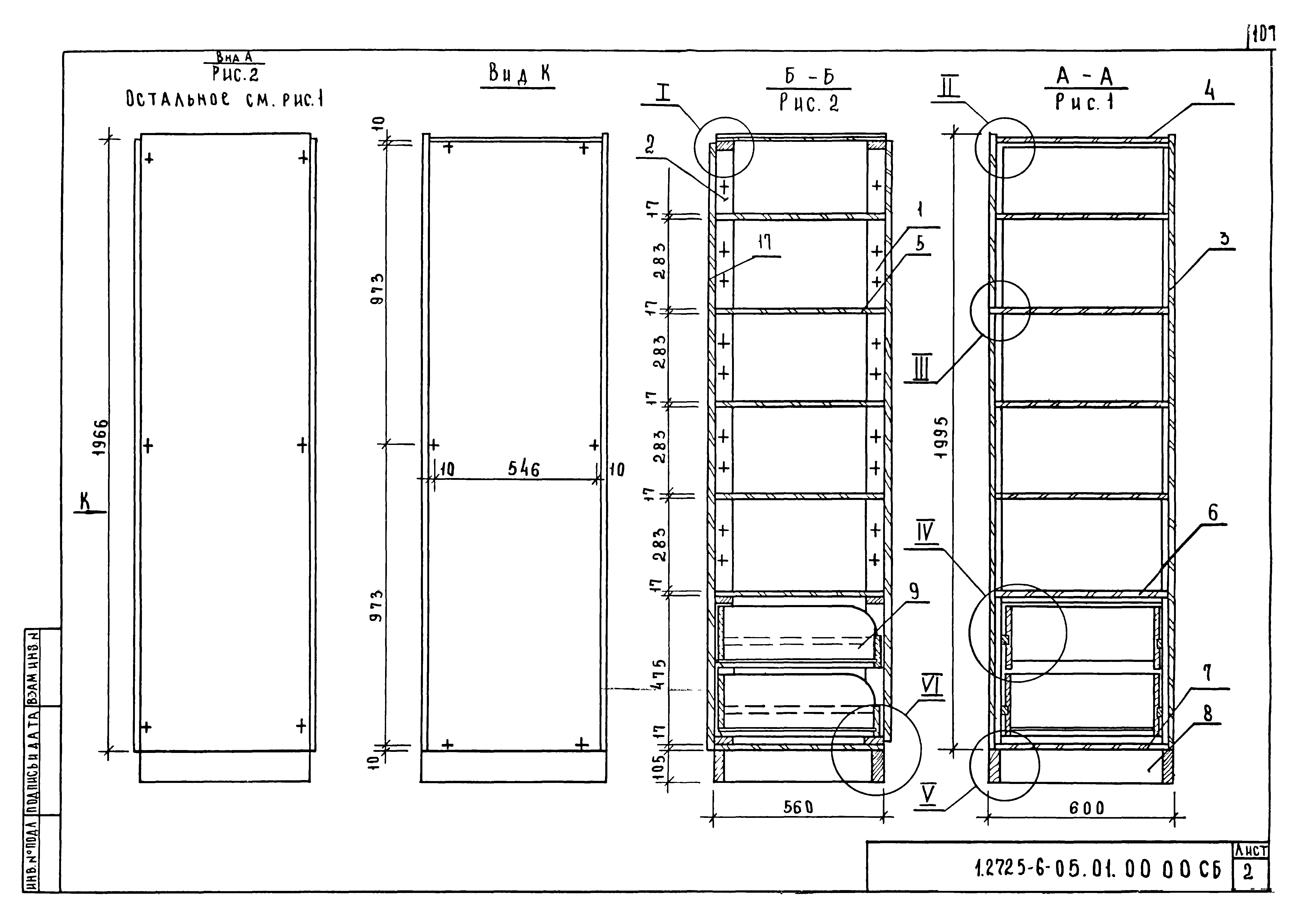
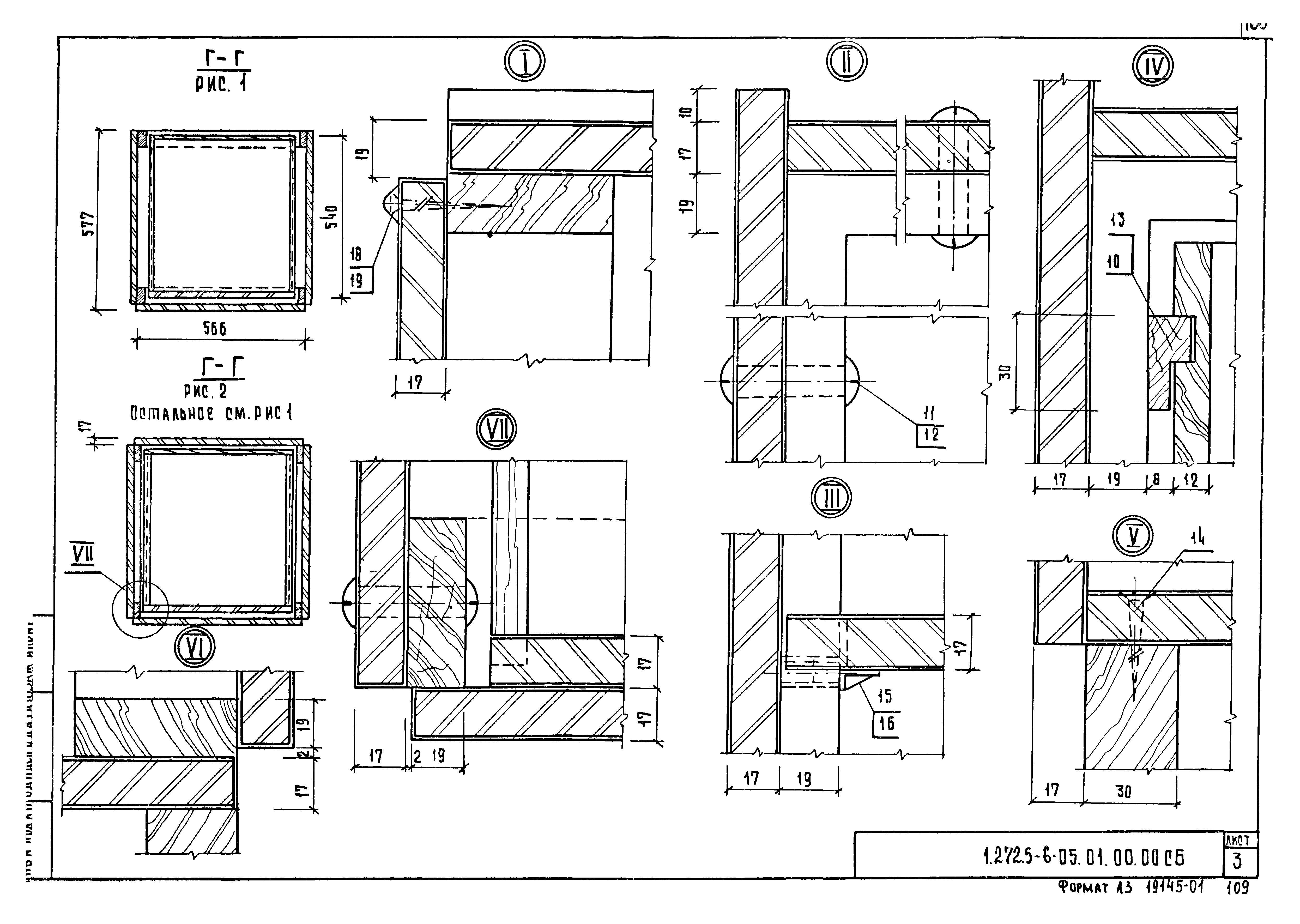
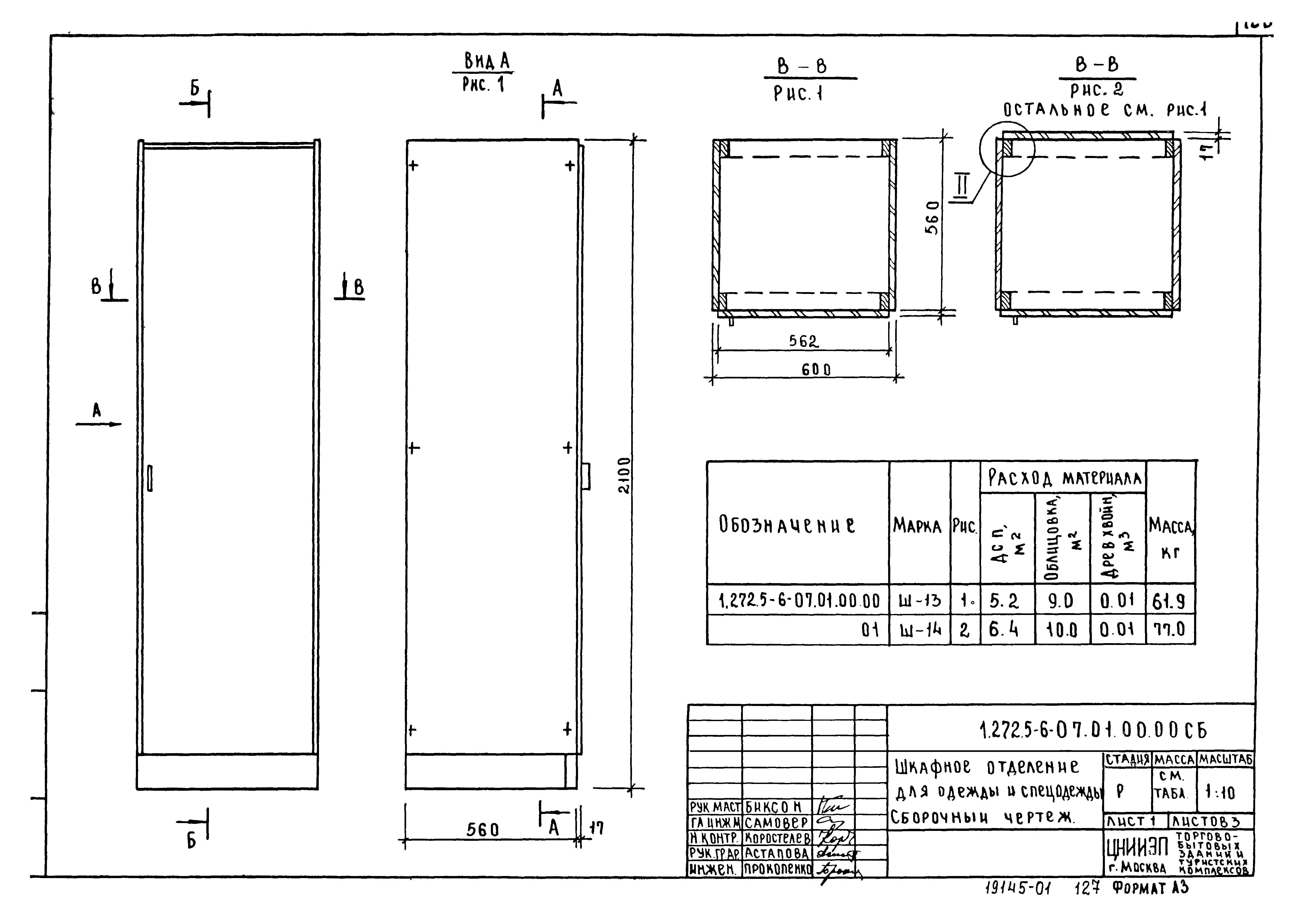
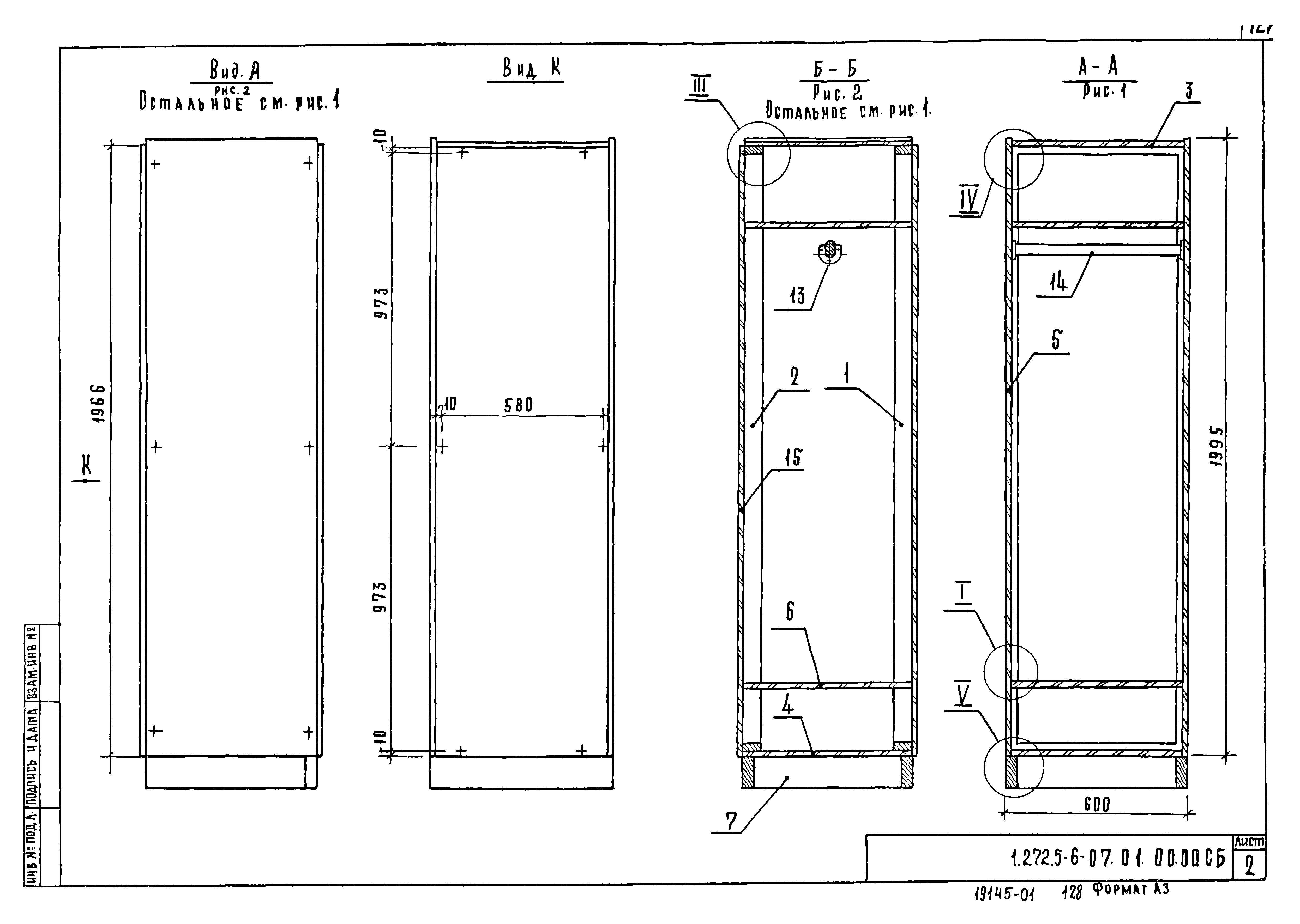
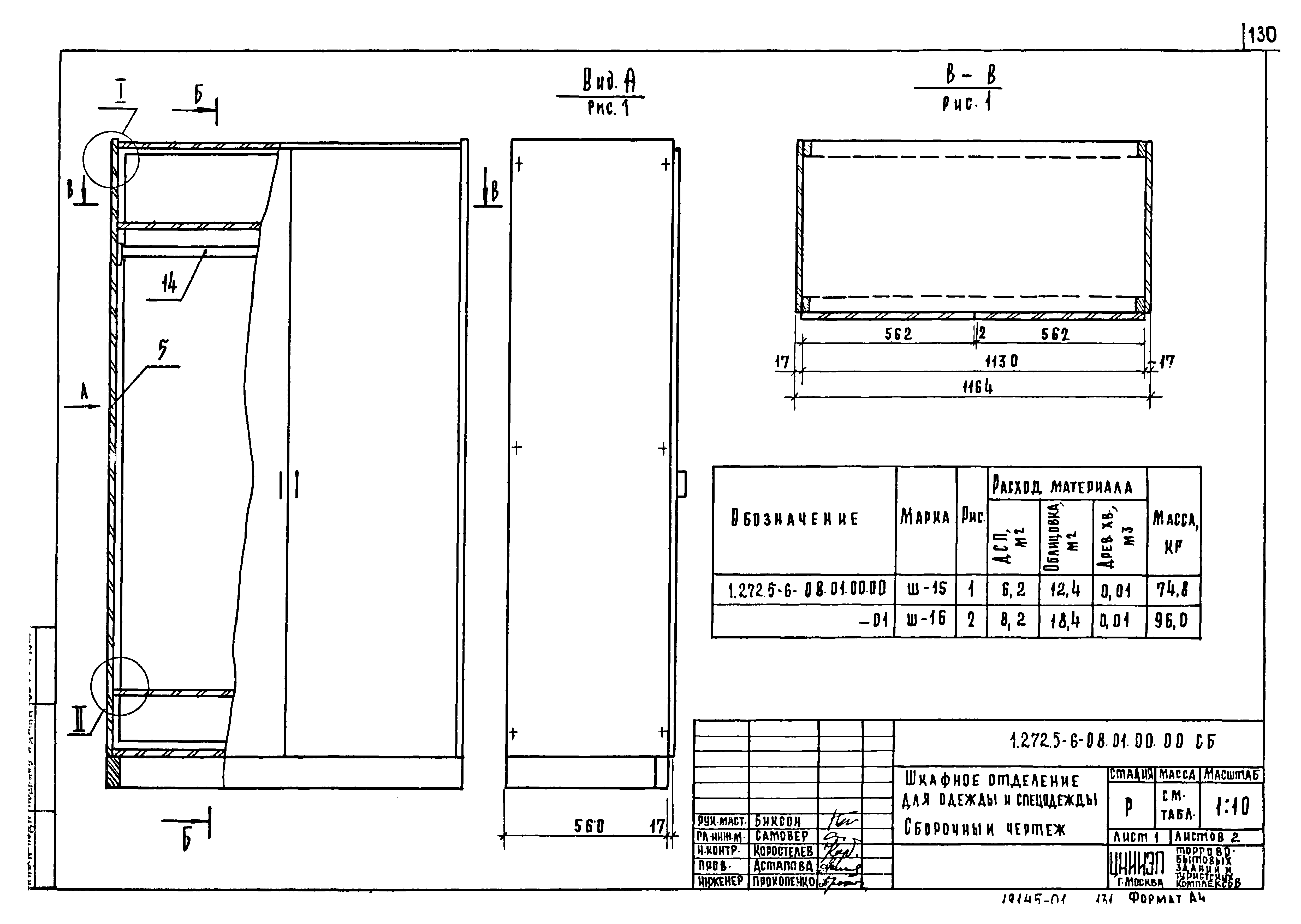
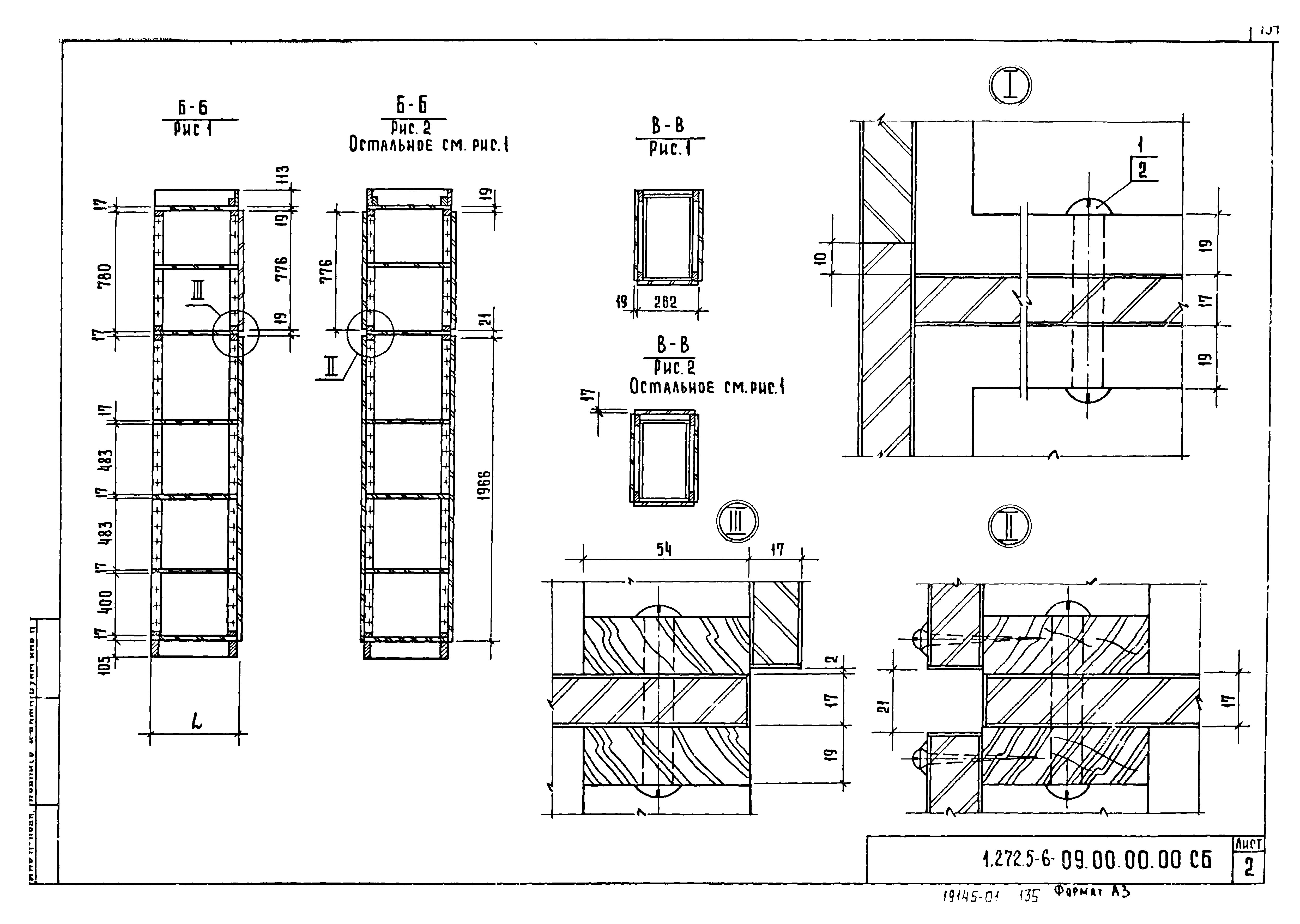
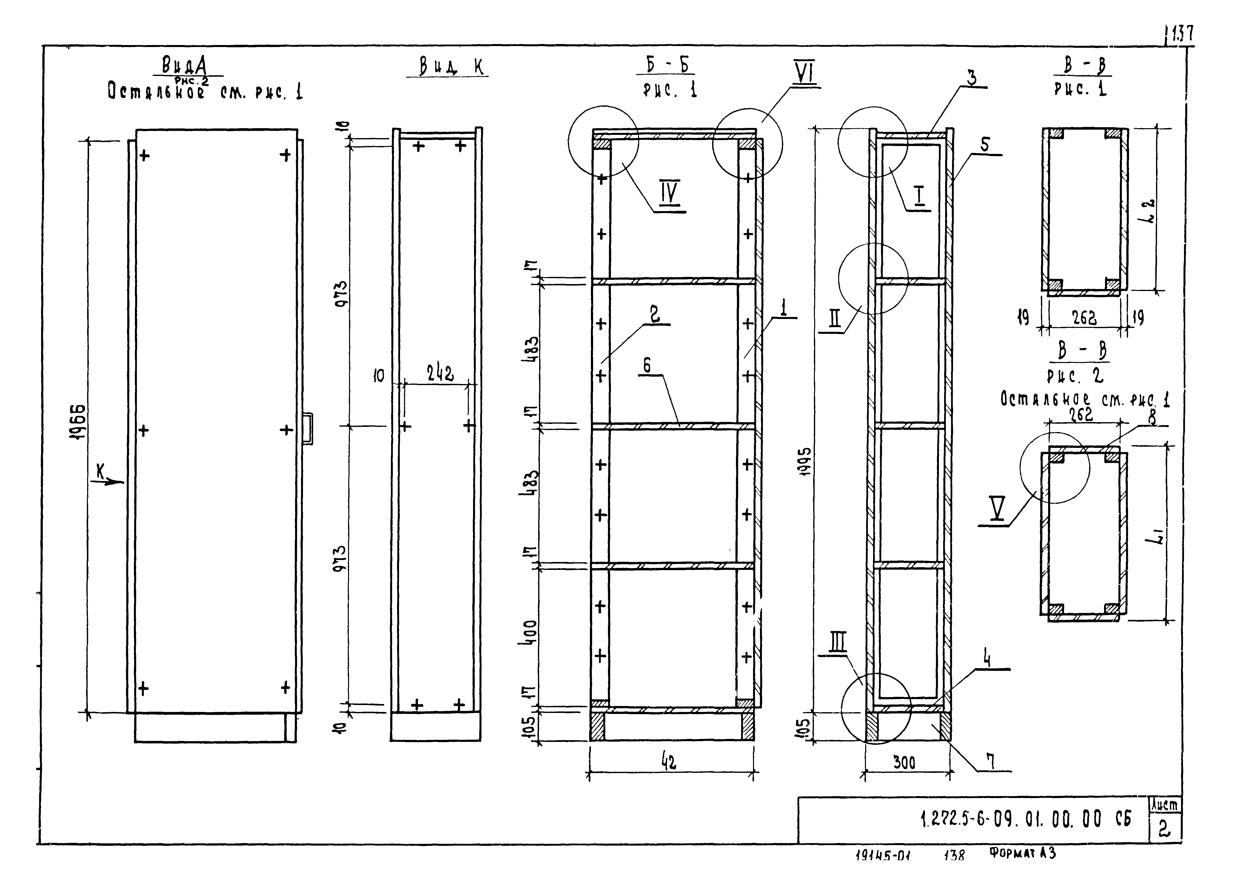
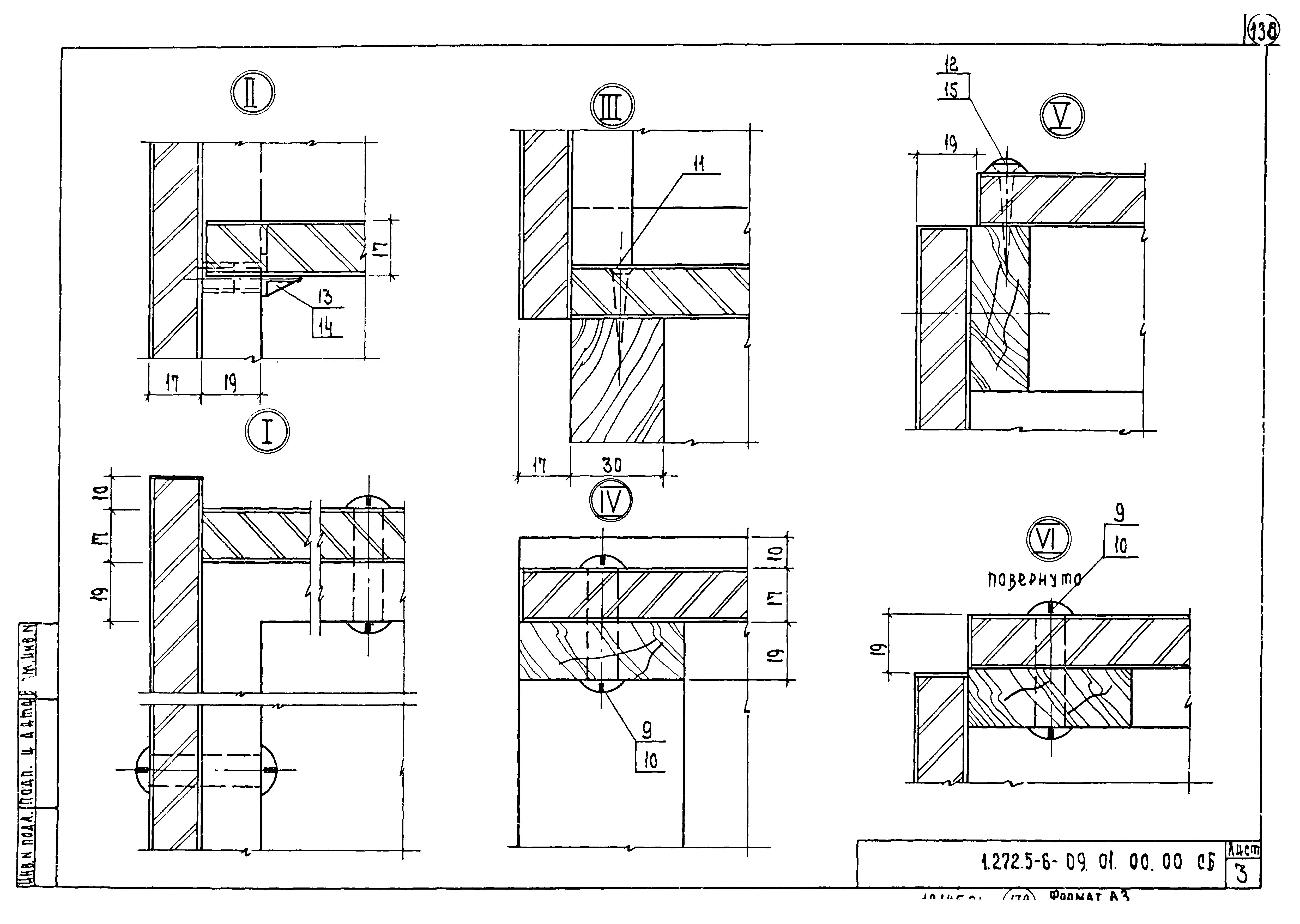
| Оглавление: | 1.272.5-6-1-00 Содержание 1.272.5-6-00.00.00.00ТО Техническое описание 1.272.5-6-Н Номенклатура изделий 1.272.5-6-0-02 Пример схемы расположения шкафов пристенных и шкафов перегородок 1.272.5-6-16.00.00.00 Шкафное отделение для хранения корреспонденции 1.272.5-6-16.00.00.00СБ Шкафное отделение для хранения корреспонденции. Сборочный чертеж 1.272.5-6-01.00.00.00 Шкафное отделение для рабочих материалов, инструментов 1.272.5-6-02.00.00.00 Шкафное отделение для рабочих материалов, инструментов 1.272.5-6-01.00.00.00СБ Шкафное отделение для рабочих материалов, инструментов. Сборочный чертеж 1.272.5-6-02.00.00.00СБ Шкафное отделение для рабочих материалов, инструментов. Сборочный чертеж 1.272.5-6-01.01.00.00 Шкафное отделение для рабочих материалов, инструментов 1.272.5-6-01.01.00.00СБ Шкафное отделение для рабочих материалов, инструментов. Сборочный чертеж 1.272.5-6-01.01.01.00 Каркас 1.272.5-6-01.01.06.00 Щит 1.272.5-6-01.01.01.00СБ Каркас. Сборочный чертеж 1.272.5-6-01.01.06.00СБ Щит. Сборочный чертеж 1.272.5-6-01.01.03.00 Щит верхний 1.272.5-6-01.01.03.00СБ Щит верхний. Сборочный чертеж 1.272.5-6-01.02.03.00СБ Щит боковой. Сборочный чертеж 1.272.5-6-01.02.03.00 Щит боковой 1.272.5-6-15.00.01.00 Перегородка 1.272.5-6-15.00.01.00СБ Перегородка. Сборочный чертеж 1.272.5-6-16.01.00.01 Щит горизонтальный 1.272.5-6-01.01.02.00 Щит боковой 1.272.5-6-01.06.00.00 Дверной блок шкафа 1.272.5-6-01.01.04.00 Полка 1.272.5-6-01.01.02.00СБ Щит боковой. Сборочный чертеж 1.272.5-6-01.01.04.00СБ Полка. Сборочный чертеж 1.272.5-6-01.06.00.00СБ Дверной блок шкафа. Сборочный чертеж 1.272.5-6-17.00.01.00 Полка 1.272.5-6-01.01.07.00 Щит 1.272.5-6-17.00.01.00СБ Полка. Сборочный чертеж 1.272.5-6-01.01.08.00 Плинтус 1.272.5-6-01.01.08.00СБ Плинтус. Сборочный чертеж 1.272.5-6-01.01.09.00 Щит задний 1.272.5-6-01.01.09.00СБ Щит задний. Сборочный чертеж 1.272.5-6-01.07.00.00 Дверной блок шкафа 1.272.5-6-01.07.00.00СБ Дверной блок шкафа. Сборочный чертеж 1.272.5-6-01.01.10.00 Ящик 1.272.5-6-01.01.11.00 Ящик 1.272.5-6-01.01.10.00СБ Ящик. Сборочный чертеж 1.272.5-6-01.01.11.00СБ Ящик. Сборочный чертеж 1.272.5-6-00.00.00.01 Гайка 1.272.5-6-00.00.00.02 Винт 1.272.5-6-01.02.00.00 Антресольная секция 1.272.5-6-01.03.00.00 Антресольная секция 1.272.5-6-01.02.00.00СБ Антресольная секция. Сборочный чертеж 1.272.5-6-01.02.04.00 Щит задний 1.272.5-6-01.02.04.00СБ Щит задний. Сборочный чертеж 1.272.5-6-01.02.01.00 Каркас 1.272.5-6-01.02.01.00СБ Каркас. Сборочный чертеж 1.272.5-6-01.02.02.00 Дверка 1.272.5-6-01.06.01.00 Дверка 1.272.5-6-01.06.01.00СБ Дверка. Сборочный чертеж 1.272.5-6-01.02.02.00СБ Дверка. Сборочный чертеж 1.272.5-6-02.01.00.00 Шкафное отделение для рабочих материалов, инструментов 1.272.5-6-02.01.00.00СБ Шкафное отделение для рабочих материалов, инструментов. Сборочный чертеж 1.272.5-6-01.01.14.00 Плинтус 1.272.5-6-01.01.12.00 Щит 1.272.5-6-01.01.14.00СБ Плинтус. Сборочный чертеж 1.272.5-6-01.01.12.00СБ Щит. Сборочный чертеж 1.272.5-6-01.01.13.00 Щит нижний 1.272.5-6-01.01.13.00СБ Щит нижний. Сборочный чертеж 1.272.5-6-01.03.00.00 Антресольная секция 1.272.5-6-01.03.00.00СБ Антресольная секция. Сборочный чертеж 1.272.5-6-03.00.00.00 Шкафное отделение для рабочих материалов, инструментов 1.272.5-6-04.00.00.00 Шкафное отделение для рабочих материалов, инструментов 1.272.5-6-03.00.00.00СБ Шкафное отделение для рабочих материалов, инструментов. Сборочный чертеж 1.272.5-6-04.00.00.00СБ Шкафное отделение для рабочих материалов, инструментов. Сборочный чертеж 1.272.5-6-03.01.00.00 Шкафное отделение для рабочих материалов, инструментов 1.272.5-6-03.01.00.00СБ Шкафное отделение для рабочих материалов, инструментов. Сборочный чертеж 1.272.5-6-01.07.01.00 Каркас 1.272.5-6-01.07.01.00СБ Каркас. Сборочный чертеж 1.272.5-6-04.01.00.00 Шкафное отделение для рабочих материалов, инструментов 1.272.5-6-04.01.00.00СБ Шкафное отделение для рабочих материалов, инструментов. Сборочный чертеж 1.272.5-6-05.00.00.00 Шкафное отделение для белья, посуды, инвентаря 1.272.5-6-06.00.00.00 Шкафное отделение для белья, посуды, инвентаря 1.272.5-6-05.00.00.00СБ Шкафное отделение для белья, посуды, инвентаря. Сборочный чертеж 1.272.5-6-06.00.00.00СБ Шкафное отделение для белья, посуды, инвентаря. Сборочный чертеж 1.272.5-6-05.01.00.00 Шкафное отделение для белья, посуды, инвентаря 1.272.5-6-05.01.00.00СБ Шкафное отделение для белья, посуды, инвентаря. Сборочный чертеж 1.272.5-6-1.05.01.00.00 Дверной блок шкафа 1.272.5-6-01.00.00.05 Уголок 1.272.5-6-05.01.01.00 Щит 1.272.5-6-05.01.02.00 Ящик 1.272.5-6-45.00.01.00 Щит горизонтальный 1.272.5-6-05.01.02.00СБ Ящик. Сборочный чертеж 1.272.5-6-45.01.00.00 Дверной блок 1.272.5-6-45.01.00.00СБ Дверной блок. Сборочный чертеж 1.272.5-6-45.00.01.00СБ Щит горизонтальный. Сборочный чертеж 1.272.5-6-06.01.00.00 Шкафное отделение для белья, посуды, инвентаря 1.272.5-6-06.01.00.00СБ Шкафное отделение для белья, посуды, инвентаря. Сборочный чертеж 1.272.5-6-1.06.01.00.00 Дверной блок шкафа 1.272.5-6-07.00.00.00 Шкафное отделение для одежды и спецодежды 1.272.5-6-08.00.00.00 Шкафное отделение для одежды и спецодежды 1.272.5-6-07.00.00.00СБ Шкафное отделение для одежды и спецодежды. Сборочный чертеж 1.272.5-6-08.00.00.00СБ Шкафное отделение для одежды и спецодежды. Сборочный чертеж 1.272.5-6-07.01.00.00 Шкафное отделение для одежды и спецодежды 1.272.5-6-07.01.00.00СБ Шкафное отделение для одежды и спецодежды. Сборочный чертеж 1.272.5-6-08.01.00.00 Шкафное отделение для одежды и спецодежды 1.272.5-6-08.01.00.00СБ Шкафное отделение для одежды и спецодежды. Сборочный чертеж 1.272.5-6-09.00.00.00 Шкафное отделение для одежды и белья 1.272.5-6-09.00.00.00СБ Шкафное отделение для одежды и белья. Сборочный чертеж 1.272.5-6-09.01.00.00 Шкафное отделение для одежды и белья 1.272.5-6-09.01.00.00СБ Шкафное отделение для одежды и белья. Сборочный чертеж |
| Разработан: | ЦНИИЭП торгово-бытовых зданий и туристских комплексов |
| Утверждён: | 19.09.1983 Госгражданстрой (Gosgrazhdanstroy 270) |











































































































































