Скачать Серия 1.272.5-6 Часть 2. Рабочие чертежиДата актуализации: 01.01.2021
|
| Обозначение: | Серия 1.272.5-6 |
| Обозначение англ: | Series 1.272.5-6 |
| Статус: | не действует |
| Название рус.: | Часть 2. Рабочие чертежи |
| Дата добавления в базу: | 01.09.2013 |
| Дата актуализации: | 01.01.2021 |
| Дата введения: | 01.11.1983 |
| Дата окончания срока действия: | 01.10.2000 |
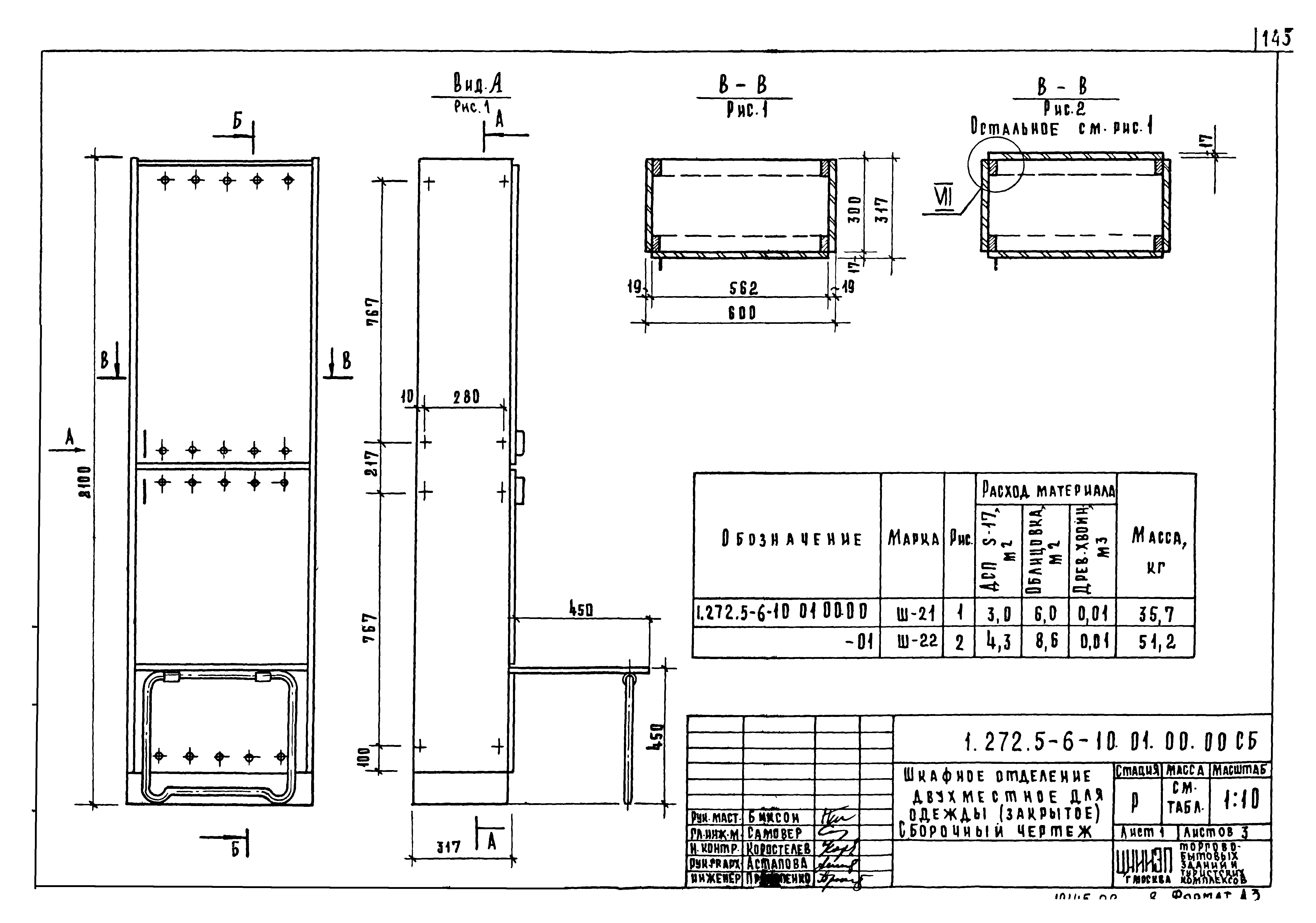
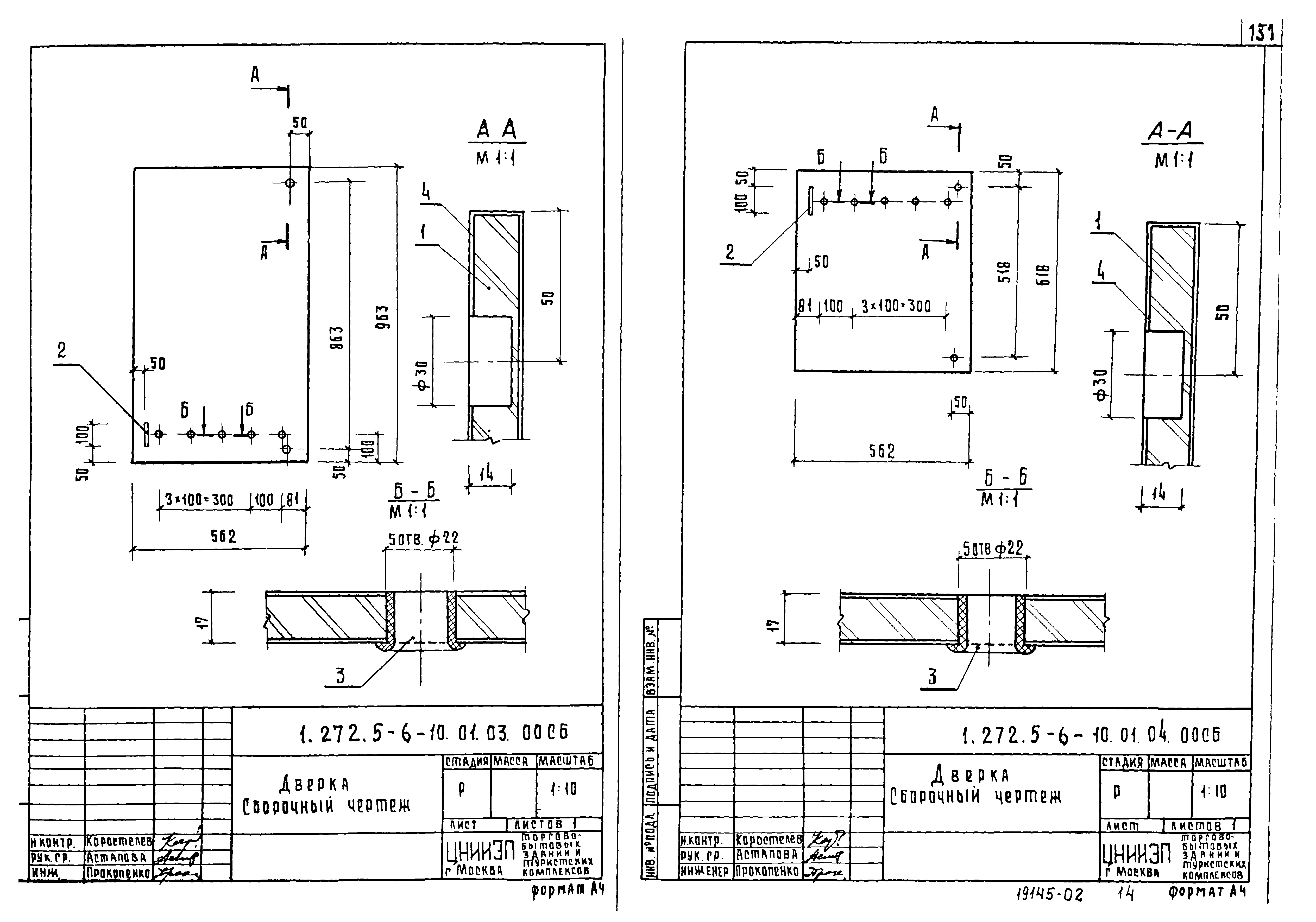
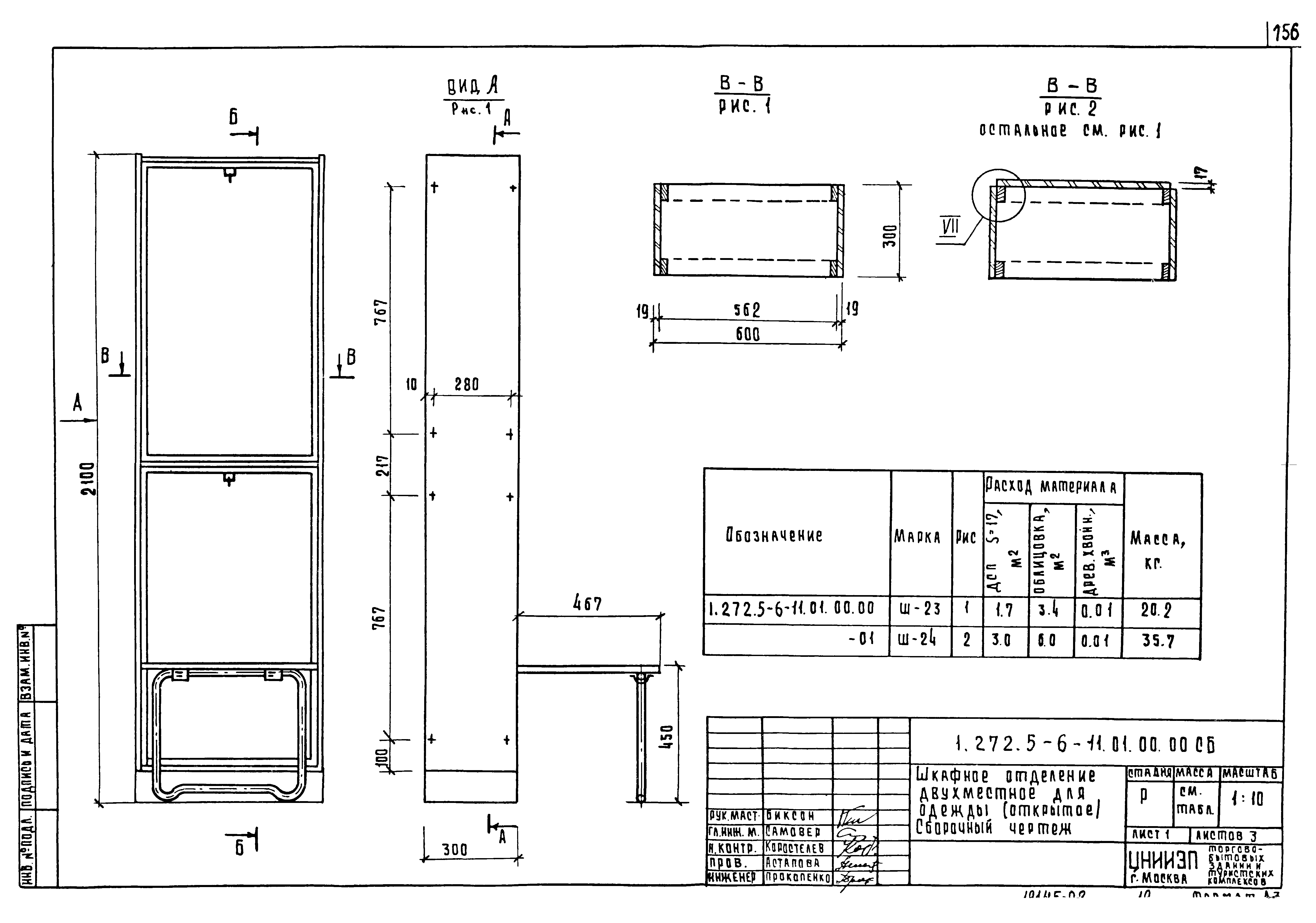
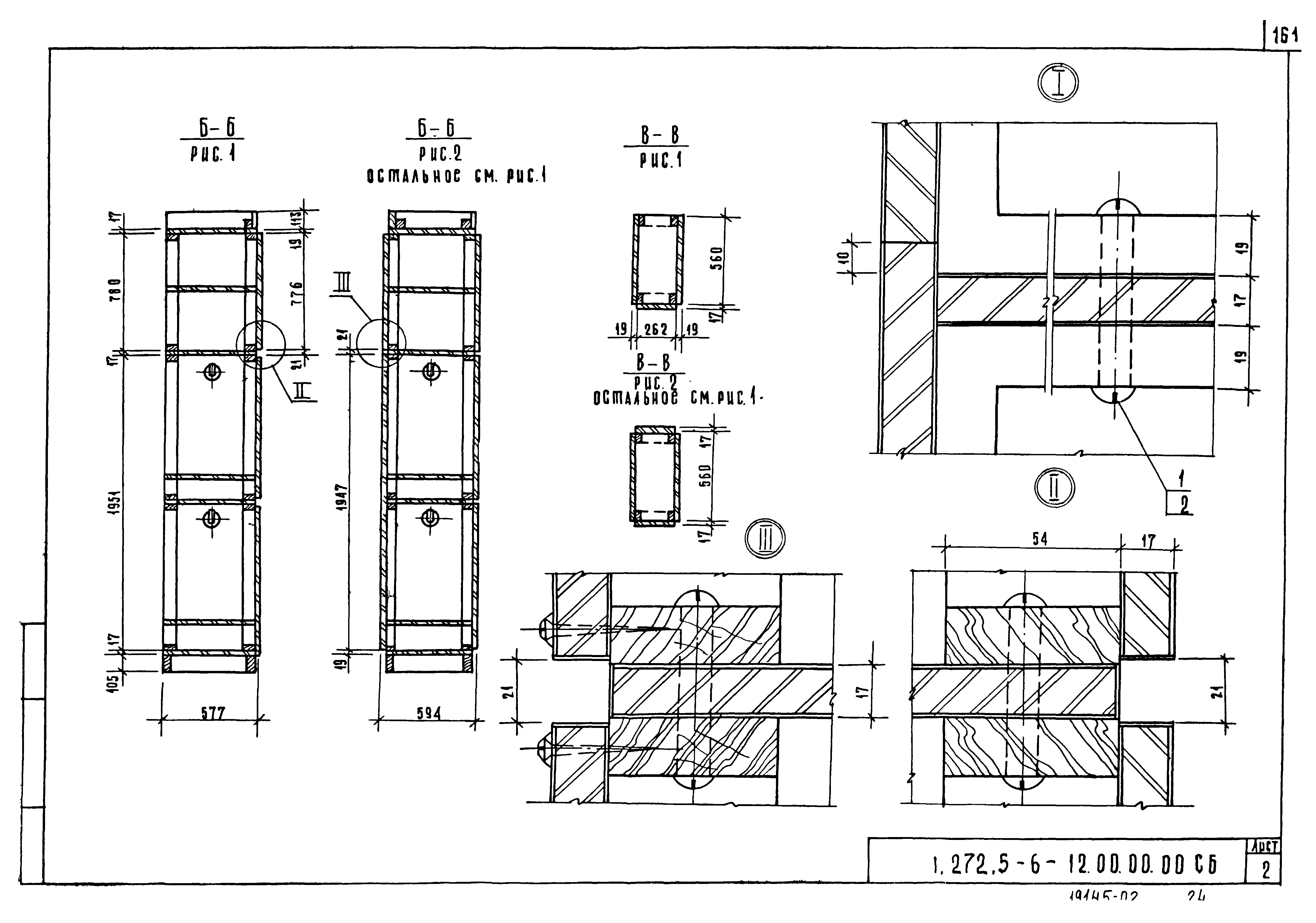
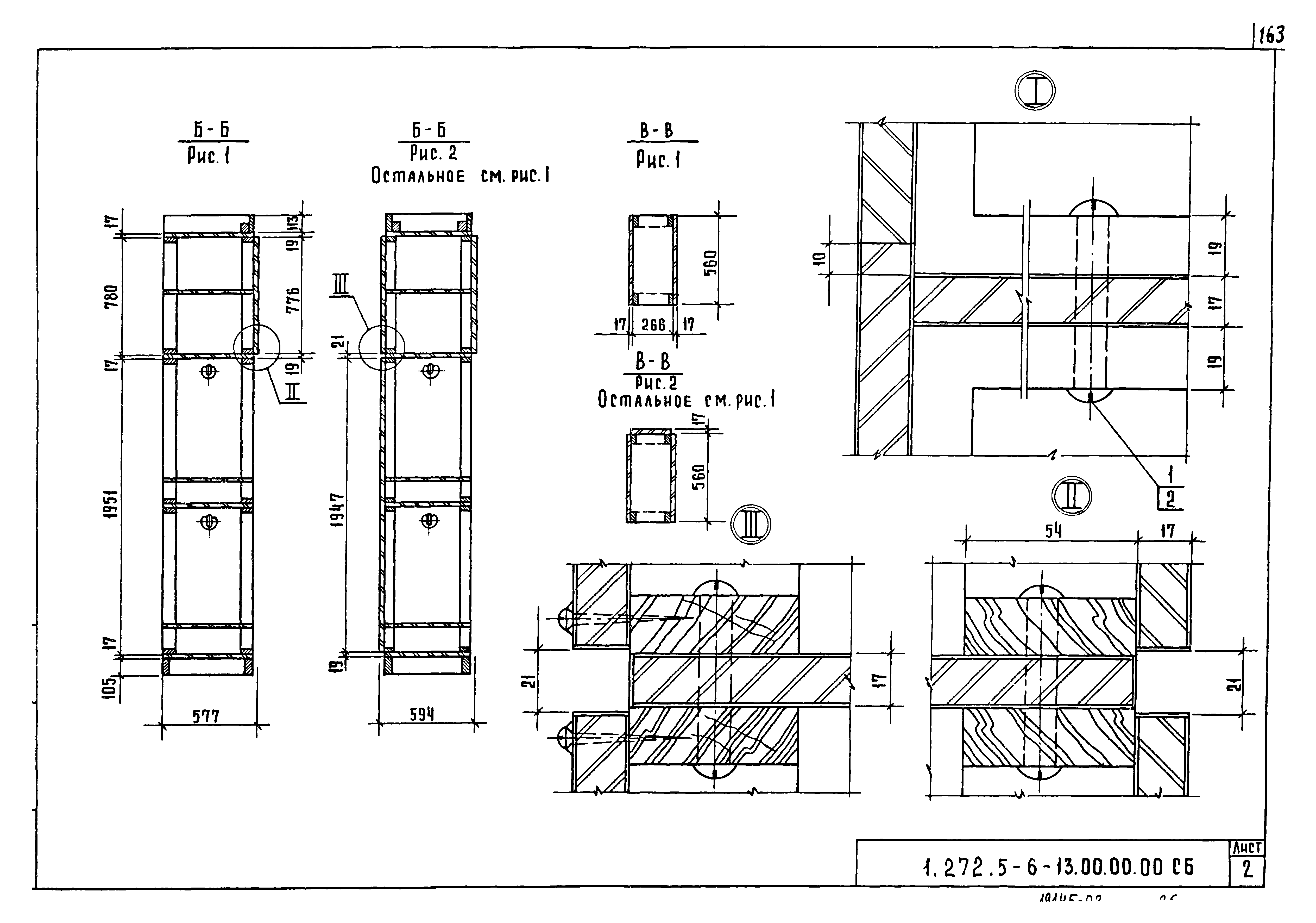
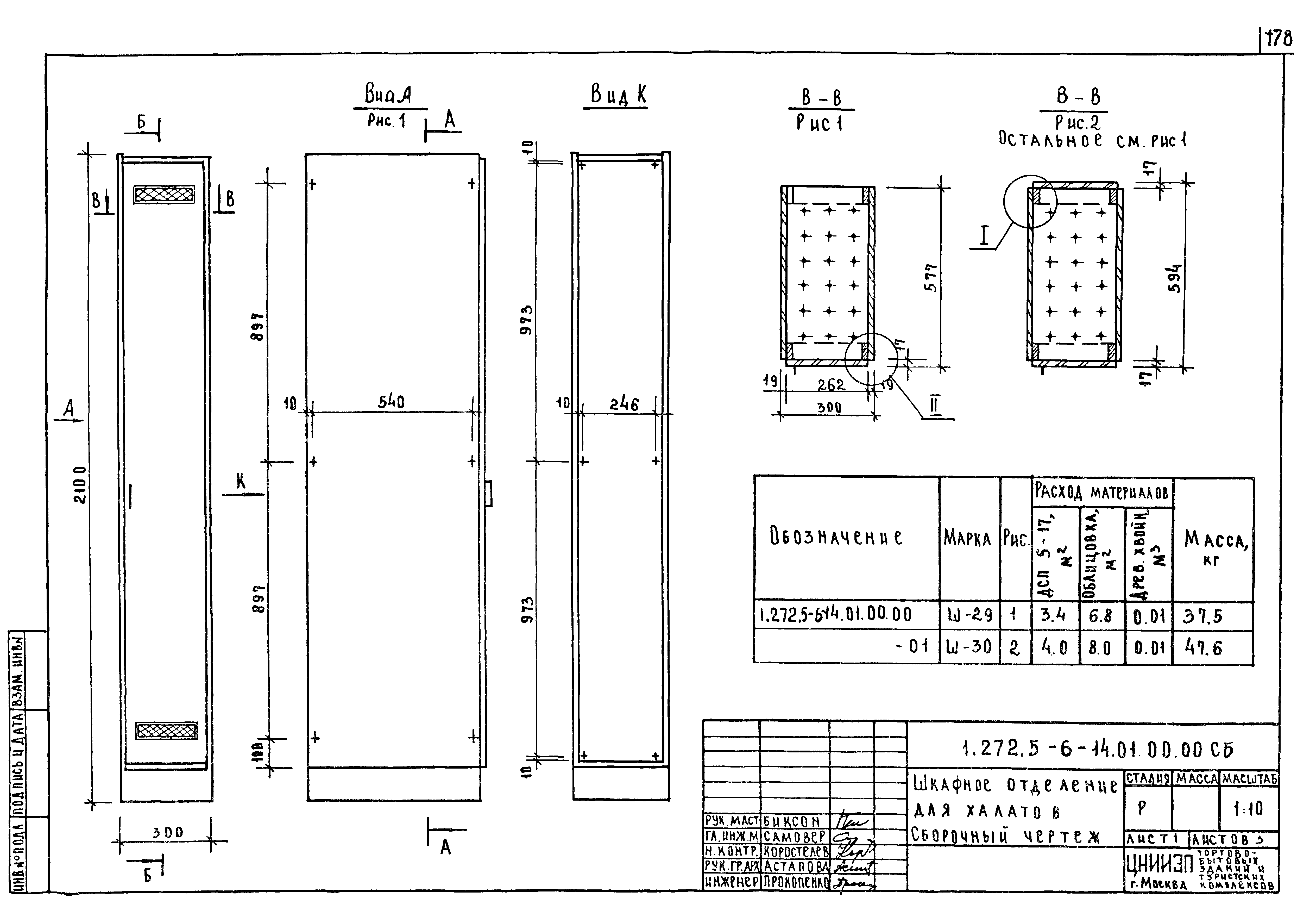
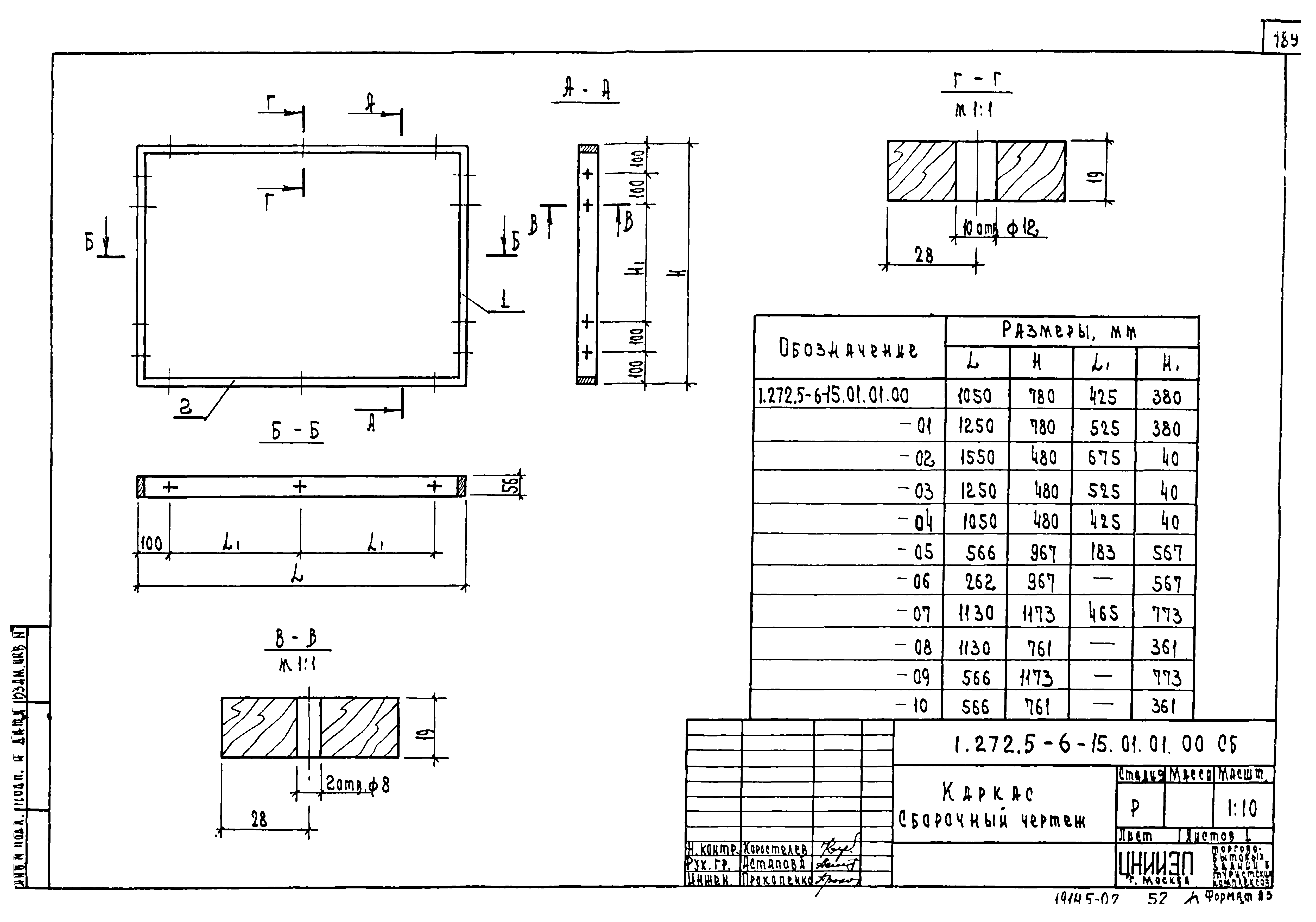
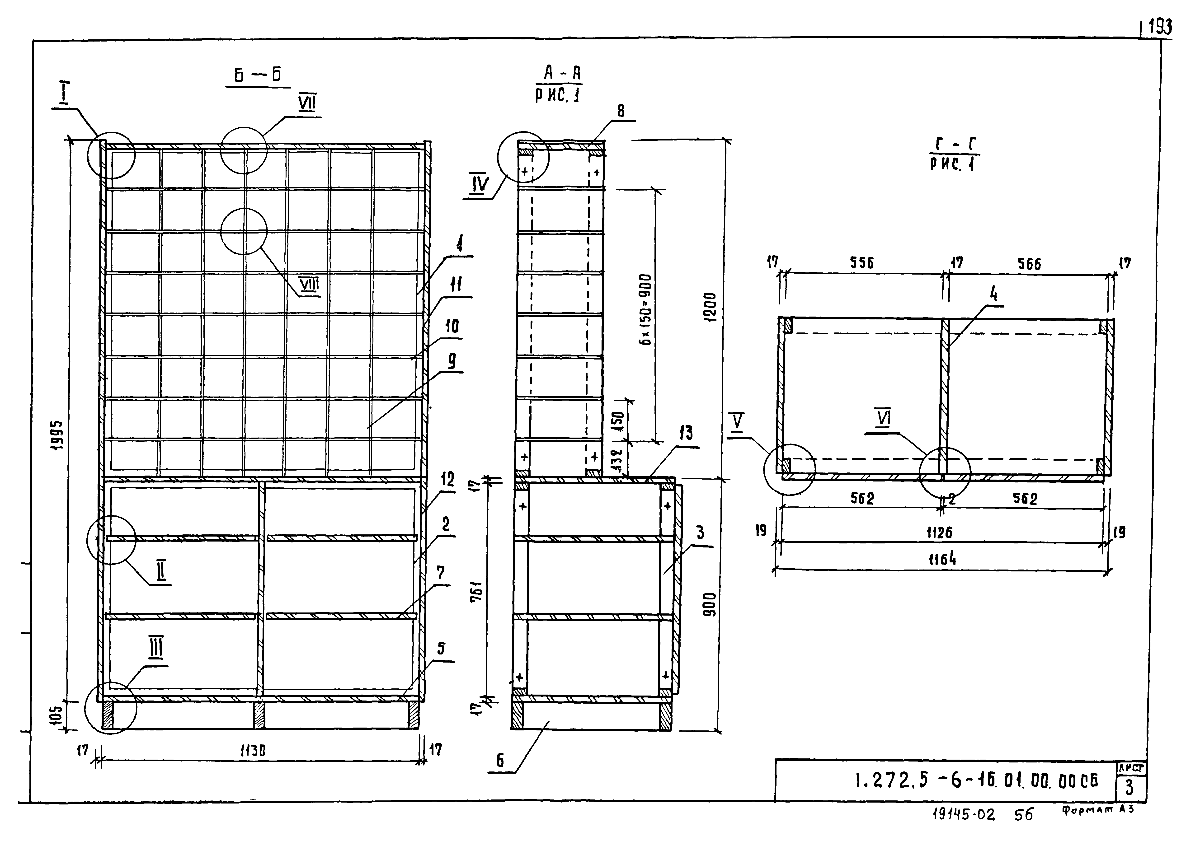
| Оглавление: | 1.272.5-6-10.00.00.00 Шкафное отделение двухместное для одежды (закрытое) 1.272.5-6-11.00.00.00 Шкафное отделение двухместное для одежды (открытое) 1.272.5-6-10.00.00.00СБ Шкафное отделение двухместное для одежды (закрытое). Сборочный чертеж 1.272.5-6-11.00.00.00СБ Шкафное отделение двухместное для одежды (открытое). Сборочный чертеж 1.272.5-6-10.01.00.00 Шкафное отделение двухместное для одежды (закрытое) 1.272.5-6-10.01.00.00СБ Шкафное отделение двухместное для одежды (закрытое). Сборочный чертеж 1.272.5-6-10.01.01.00 Дверной блок шкафа 1.272.5-6-10.01.02.00 Дверной блок шкафа 1.272.5-6-10.01.01.00СБ Дверной блок шкафа. Сборочный чертеж 1.272.5-6-10.01.02.00СБ Дверной блок шкафа. Сборочный чертеж 1.272.5-6-10.01.03.00 Дверка 1.272.5-6-10.01.04.00 Дверка 1.272.5-6-10.01.03.00СБ Дверка. Сборочный чертеж 1.272.5-6-10.01.04.00СБ Дверка. Сборочный чертеж 1.272.5-6-10.01.05.00 Сиденье 1.272.5-6-10.01.07.00 Щит 1.272.5-6-10.01.05.00СБ Сиденье. Сборочный чертеж 1.272.5-6-10.01.07.00СБ Щит. Сборочный чертеж 1.272.5-6-10.01.06.00 Опора 1.272.5-6-11.01.07.00 Шкафное отделение двухместное для одежды (открытое) 1.272.5-6-11.01.07.00СБ Шкафное отделение двухместное для одежды (открытое). Сборочный чертеж 1.272.5-6-12.00.00.00 Шкафное отделение двухместное для одежды (закрытое) 1.272.5-6-13.00.00.00 Шкафное отделение двухместное для одежды (открытое) 1.272.5-6-12.00.00.00СБ Шкафное отделение двухместное для одежды (закрытое). Сборочный чертеж 1.272.5-6-13.00.00.00СБ Шкафное отделение двухместное для одежды (открытое). Сборочный чертеж 1.272.5-6-12.01.00.00 Шкафное отделение двухместное для одежды (закрытое) 1.272.5-6-12.01.00.00СБ Шкафное отделение двухместное для одежды (закрытое). Сборочный чертеж 1.272.5-6-13.01.00.00 Шкафное отделение двухместное для одежды (открытое) 1.272.5-6-13.01.00.00СБ Шкафное отделение двухместное для одежды (открытое). Сборочный чертеж 1.272.5-6-14.00.00.00 Шкафное отделение для халатов 1.272.5-6-15.00.00.00 Шкафное отделение для хранения корреспонденции 1.272.5-6-14.00.00.00СБ Шкафное отделение для халатов. Сборочный чертеж 1.272.5-6-15.00.00.00СБ Шкафное отделение для хранения корреспонденции. Сборочный чертеж 1.272.5-6-14.01.00.00 Шкафное отделение для халатов 1.272.5-6-14.01.00.00СБ Шкафное отделение для халатов. Сборочный чертеж 1.272.5-6-14.01.01.00 Полка 1.272.5-6-14.01.02.00 Дверка 1.272.5-6-14.01.01.00СБ Полка. Сборочный чертеж 1.272.5-6-14.01.02.00СБ Дверка. Сборочный чертеж 1.272.5-6-15.01.00.00 Шкафное отделение для хранения корреспонденции 1.272.5-6-15.01.00.00СБ Шкафное отделение для хранения корреспонденции. Сборочный чертеж 1.272.5-6-15.01.01.00 Каркас 1.272.5-6-15.01.01.00СБ Каркас. Сборочный чертеж 1.272.5-6-16.01.00.00 Шкафное отделение для хранения корреспонденции 1.272.5-6-16.01.00.00СБ Шкафное отделение для хранения корреспонденции. Сборочный чертеж 1.272.5-6-17.00.00.00 Шкафное отделение с полками 1.272.5-6-17.00.00.00СБ Шкафное отделение с полками. Сборочный чертеж 1.272.5-6-17.01.00.00 Шкафное отделение с полками 1.272.5-6-17.01.00.00СБ Шкафное отделение с полками. Сборочный чертеж 1.272.5-6-18.00.00.00 Шкафное отделение с полка 1.272.5-6-18.00.00.00СБ Шкафное отделение с полками. Сборочный чертеж 1.272.5-6-45.00.00.00 Шкафное отделение над дверным проемом 1.272.5-6-45.00.00.00СБ Шкафное отделение над дверным проемом. Сборочный чертеж |
| Разработан: | ЦНИИЭП торгово-бытовых зданий и туристских комплексов |
| Утверждён: | 19.09.1983 Госгражданстрой (Gosgrazhdanstroy 270) |











































































