Скачать Типовой проект 234-1-107 Альбом III. Электротехнические чертежиДата актуализации: 01.01.2021
|
| Обозначение: | Типовой проект 234-1-107 |
| Обозначение англ: | 234-1-107 |
| Статус: | действует |
| Название рус.: | Альбом III. Электротехнические чертежи |
| Дата добавления в базу: | 01.09.2013 |
| Дата актуализации: | 01.01.2021 |
| Дата введения: | 28.11.1980 |
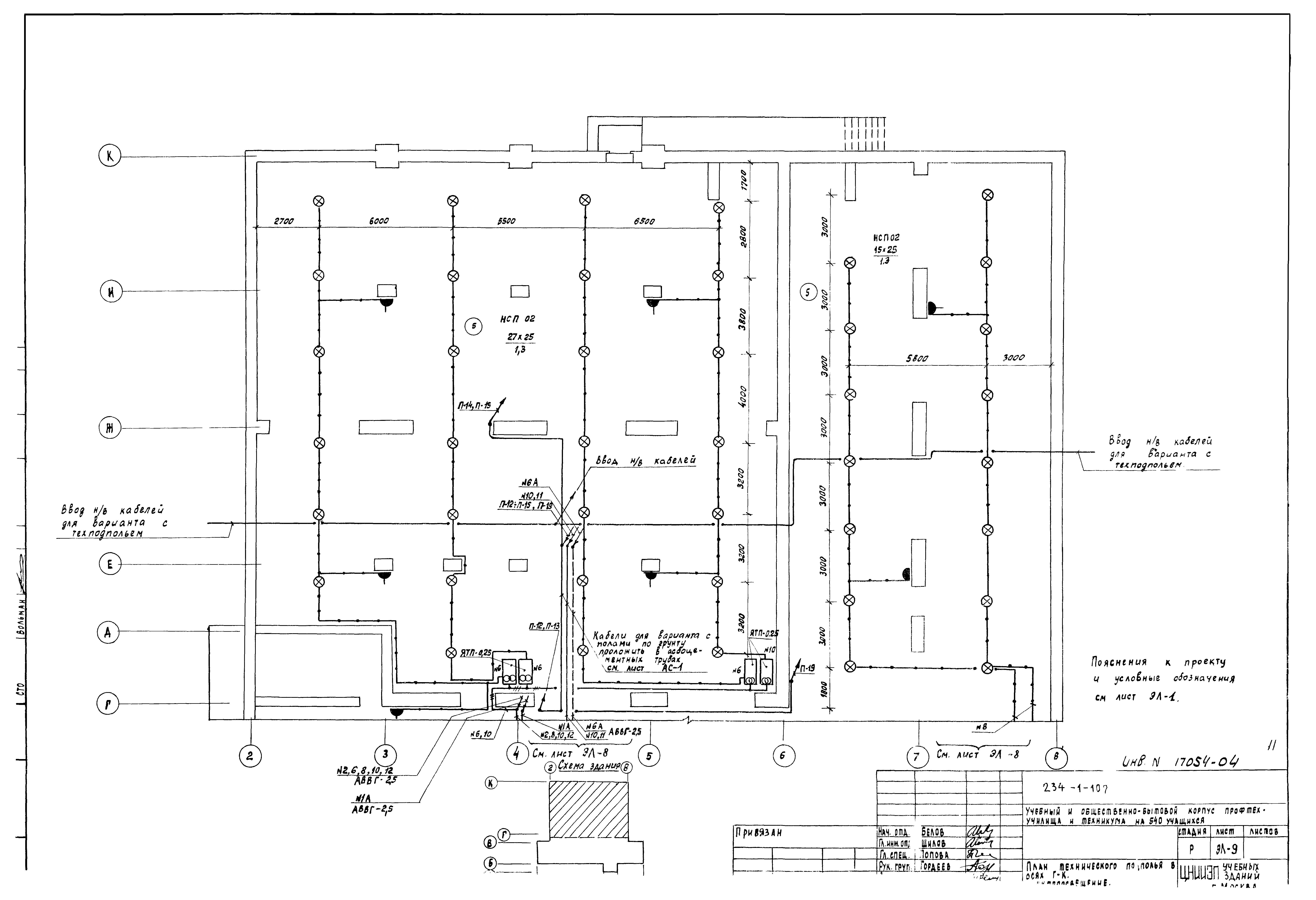
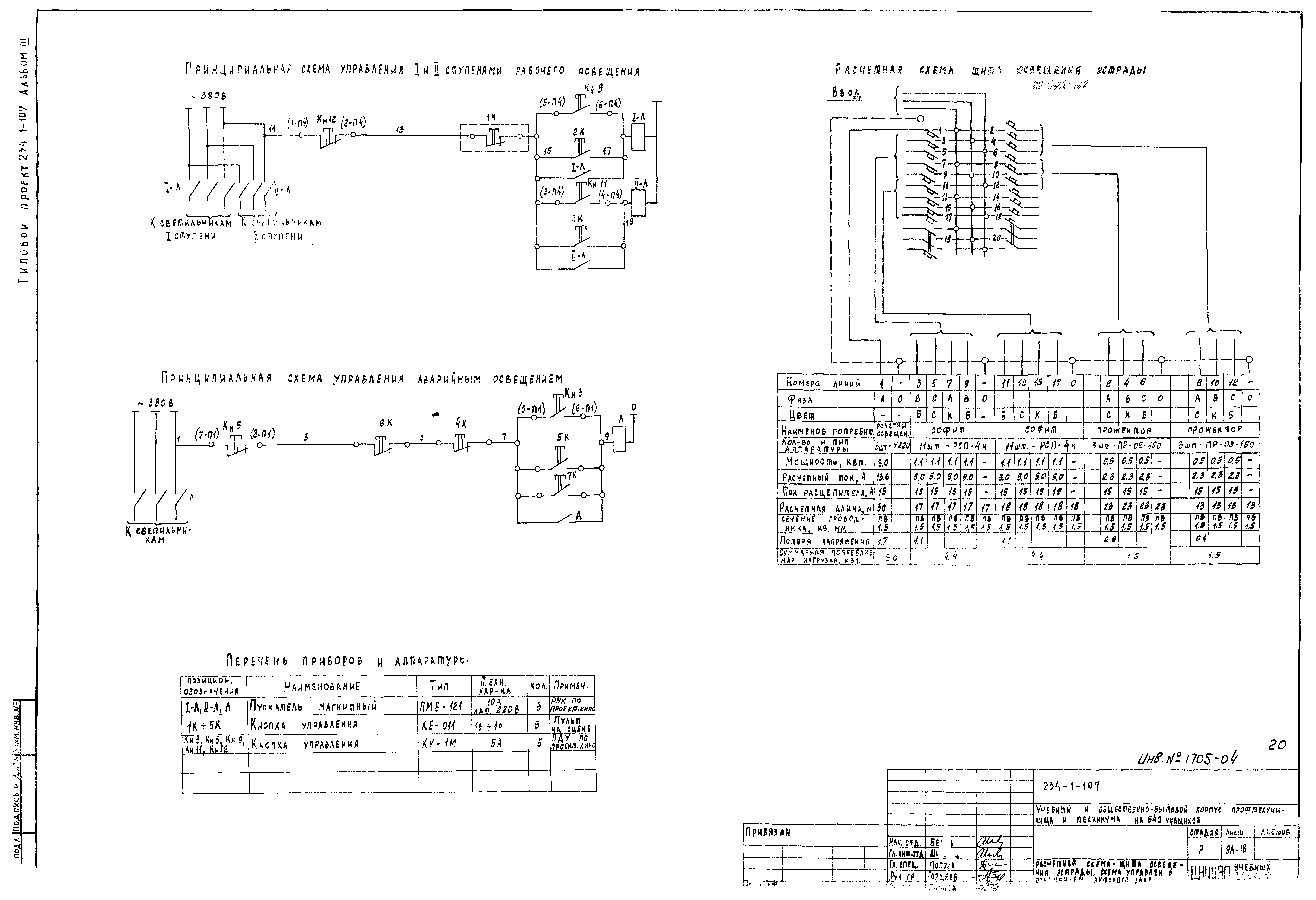
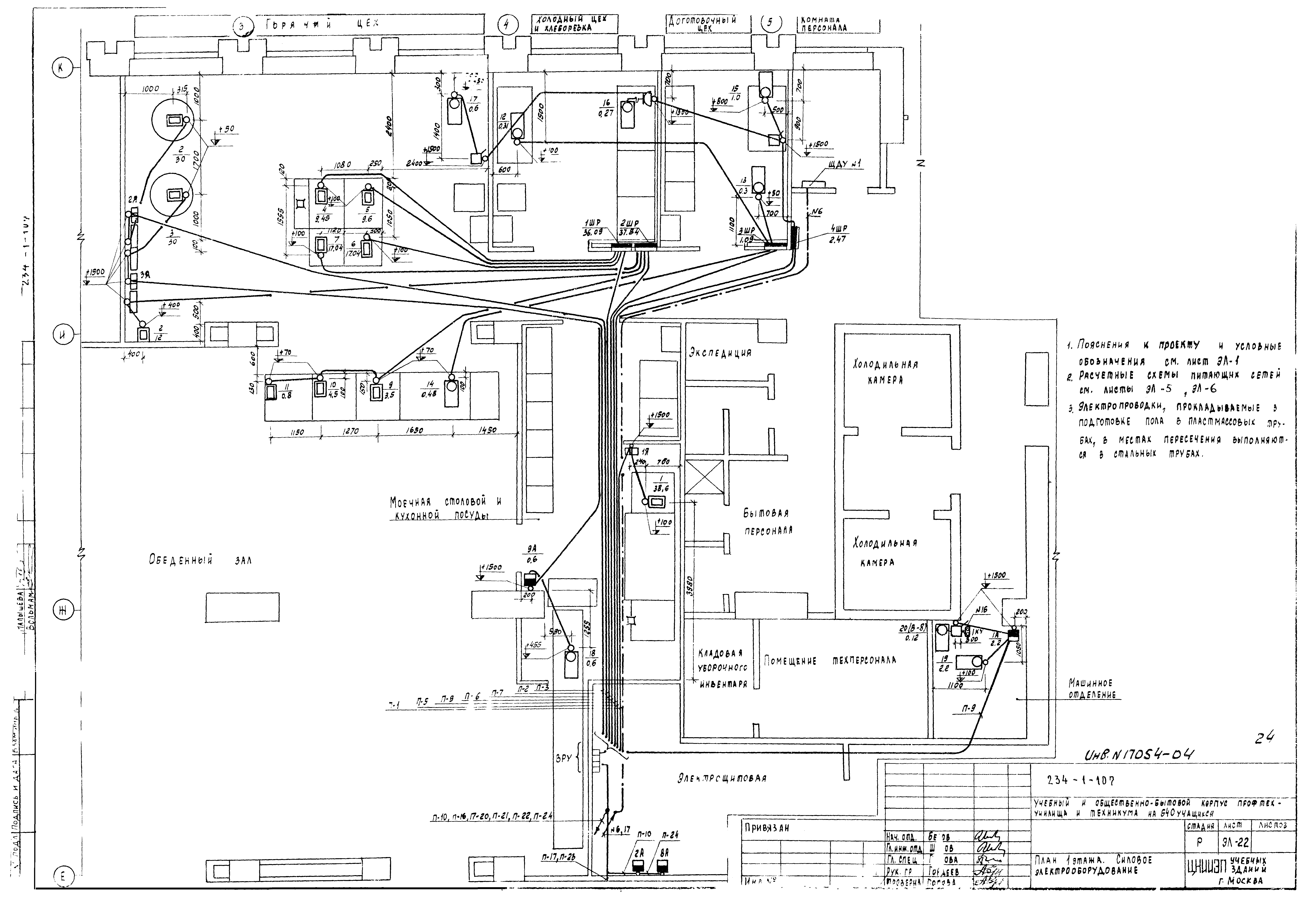
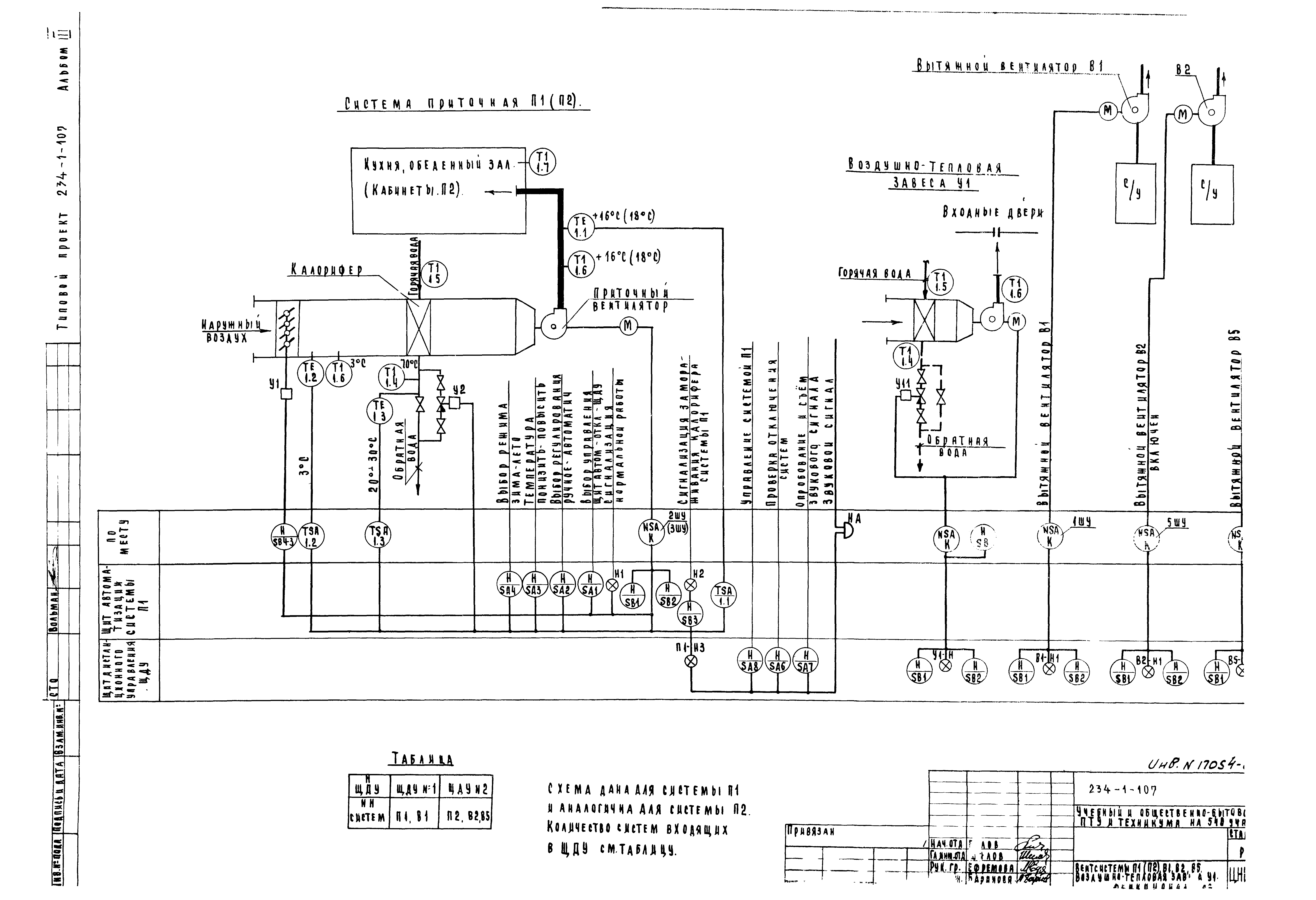
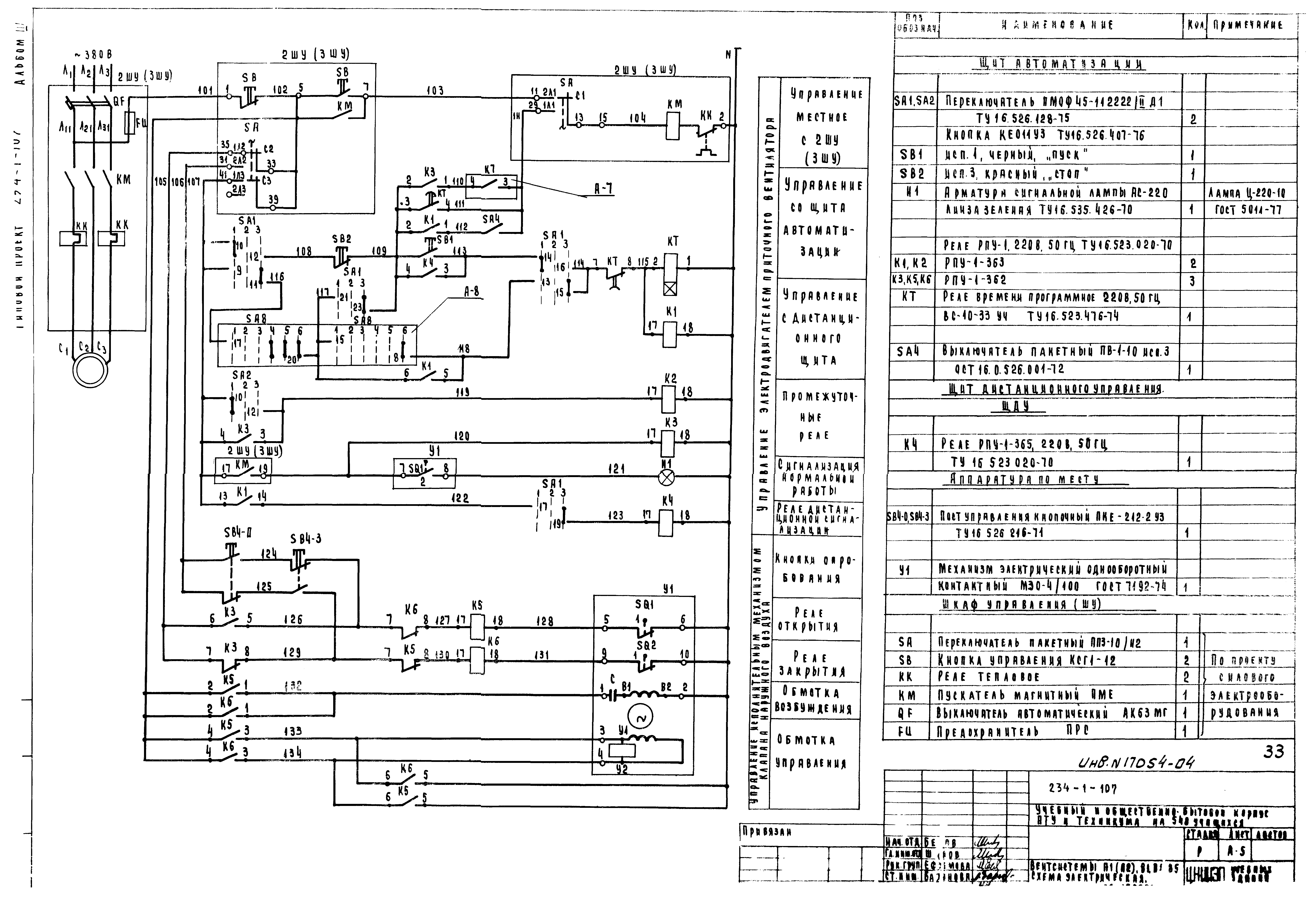
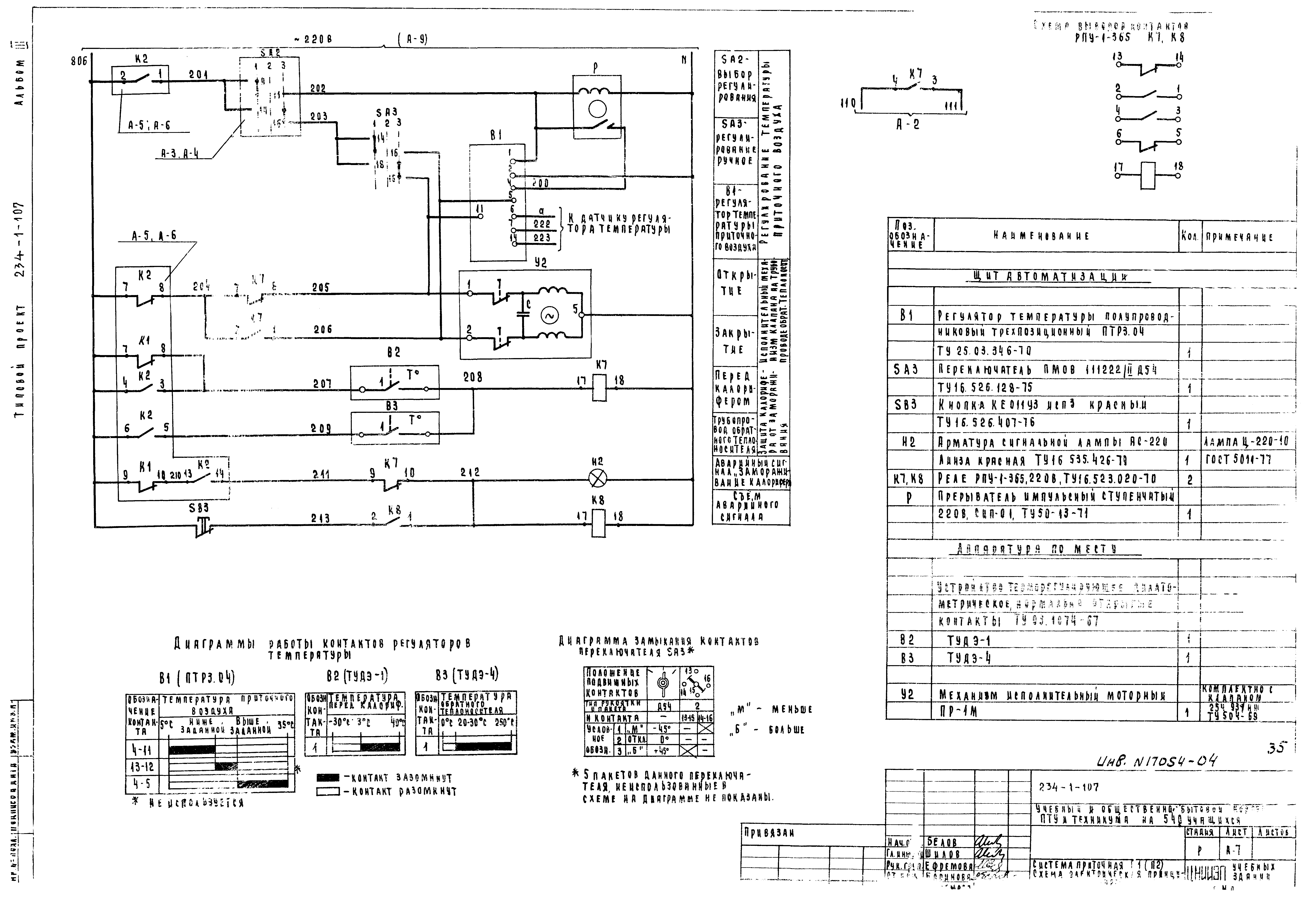
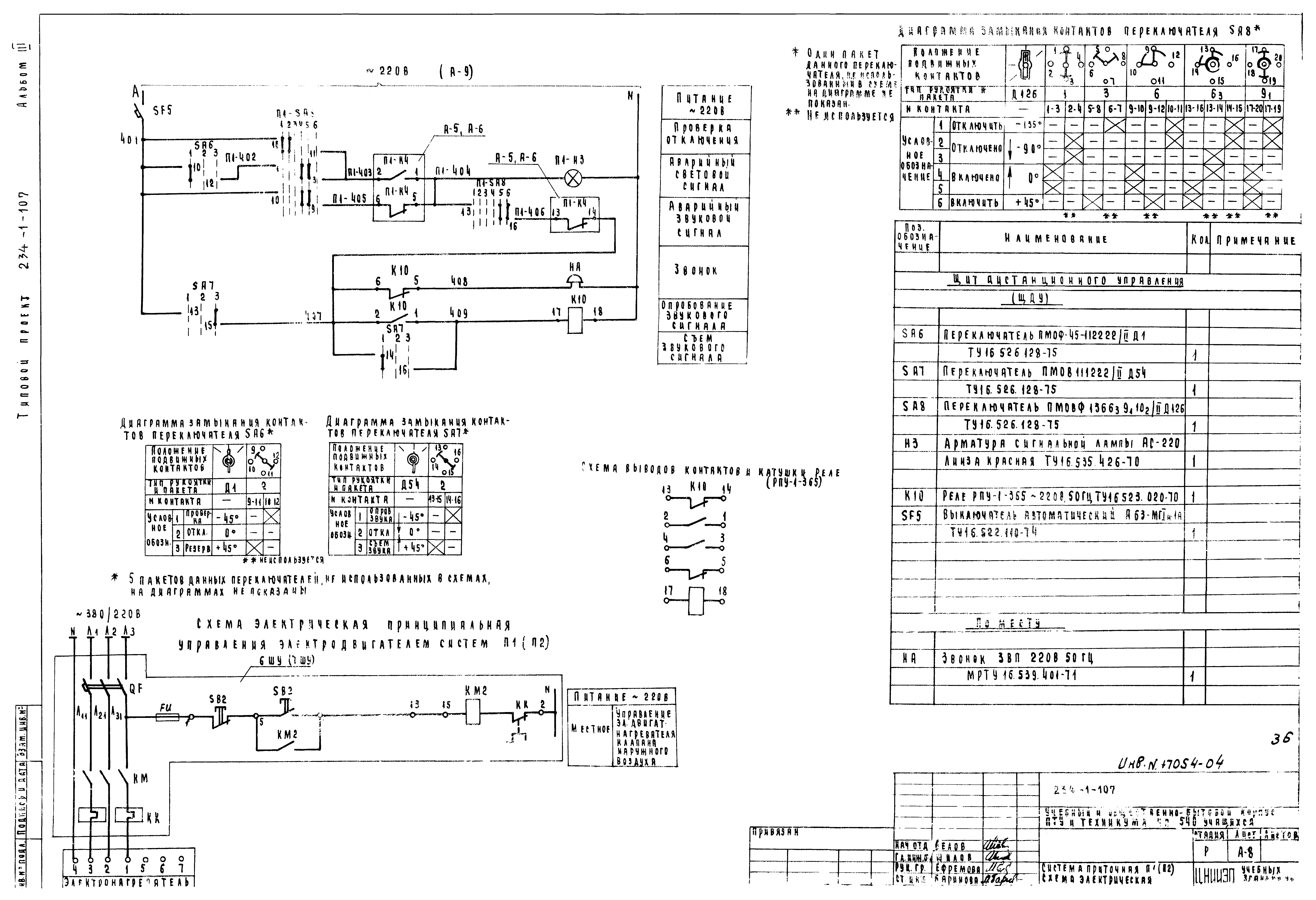
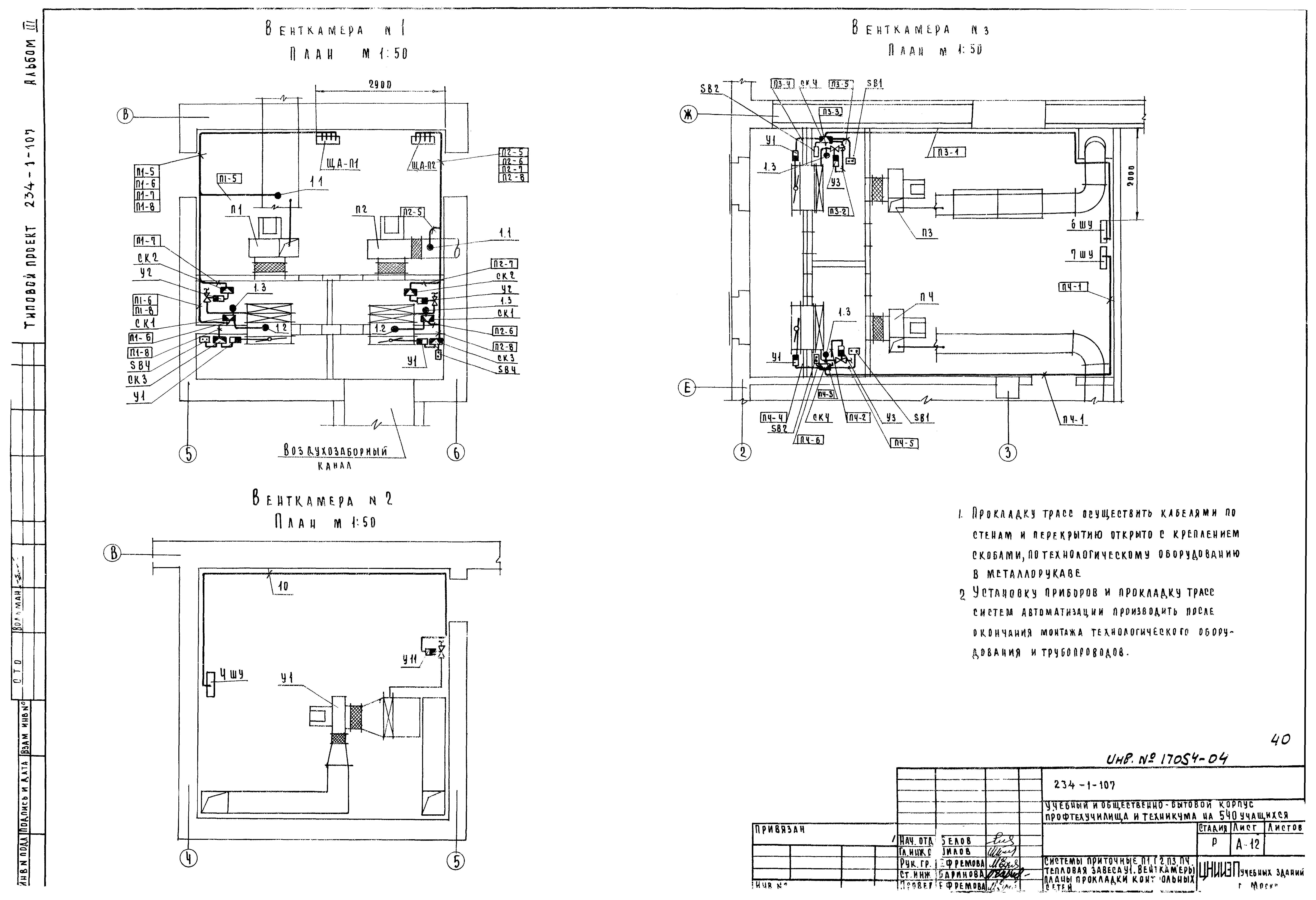
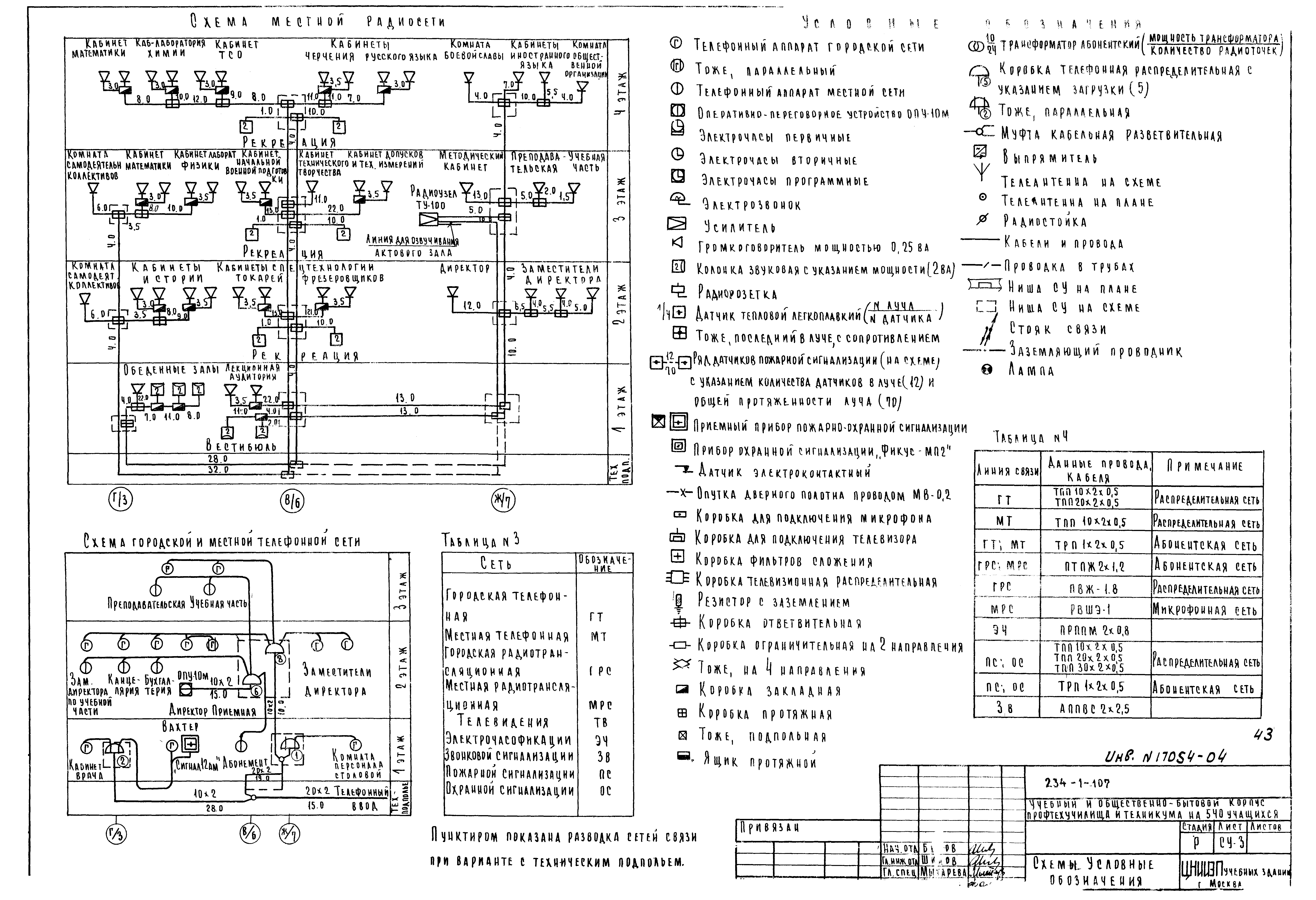
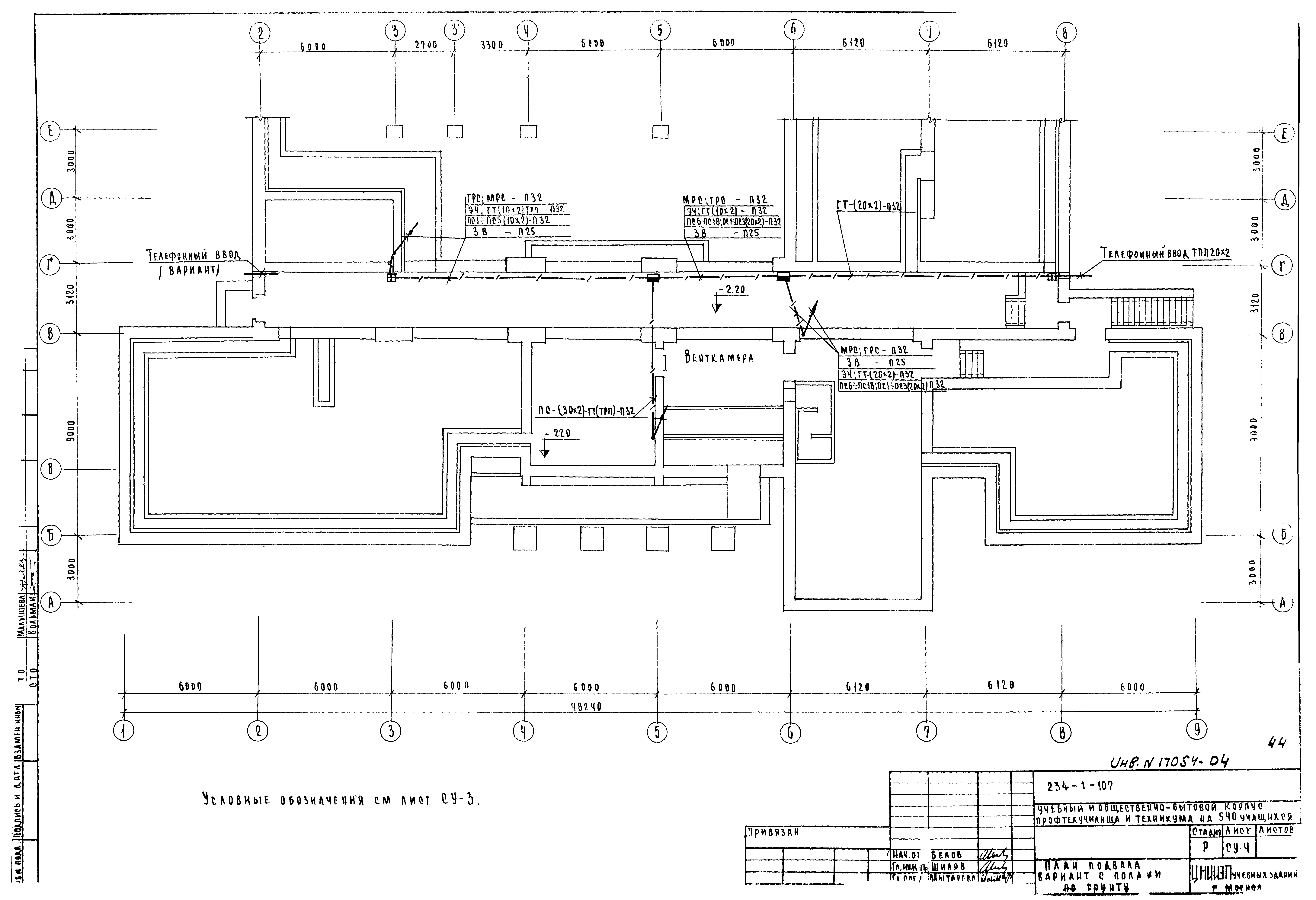
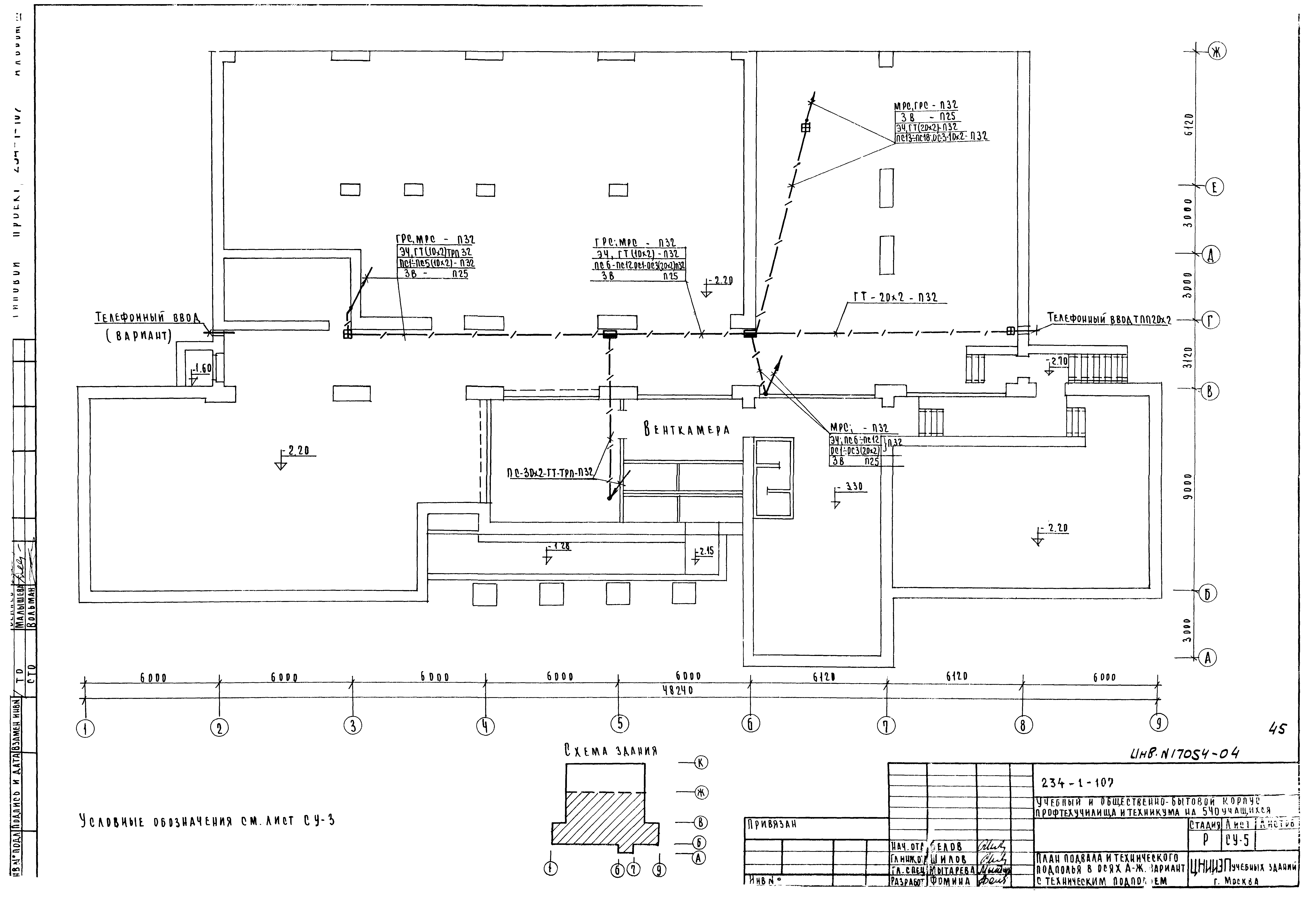
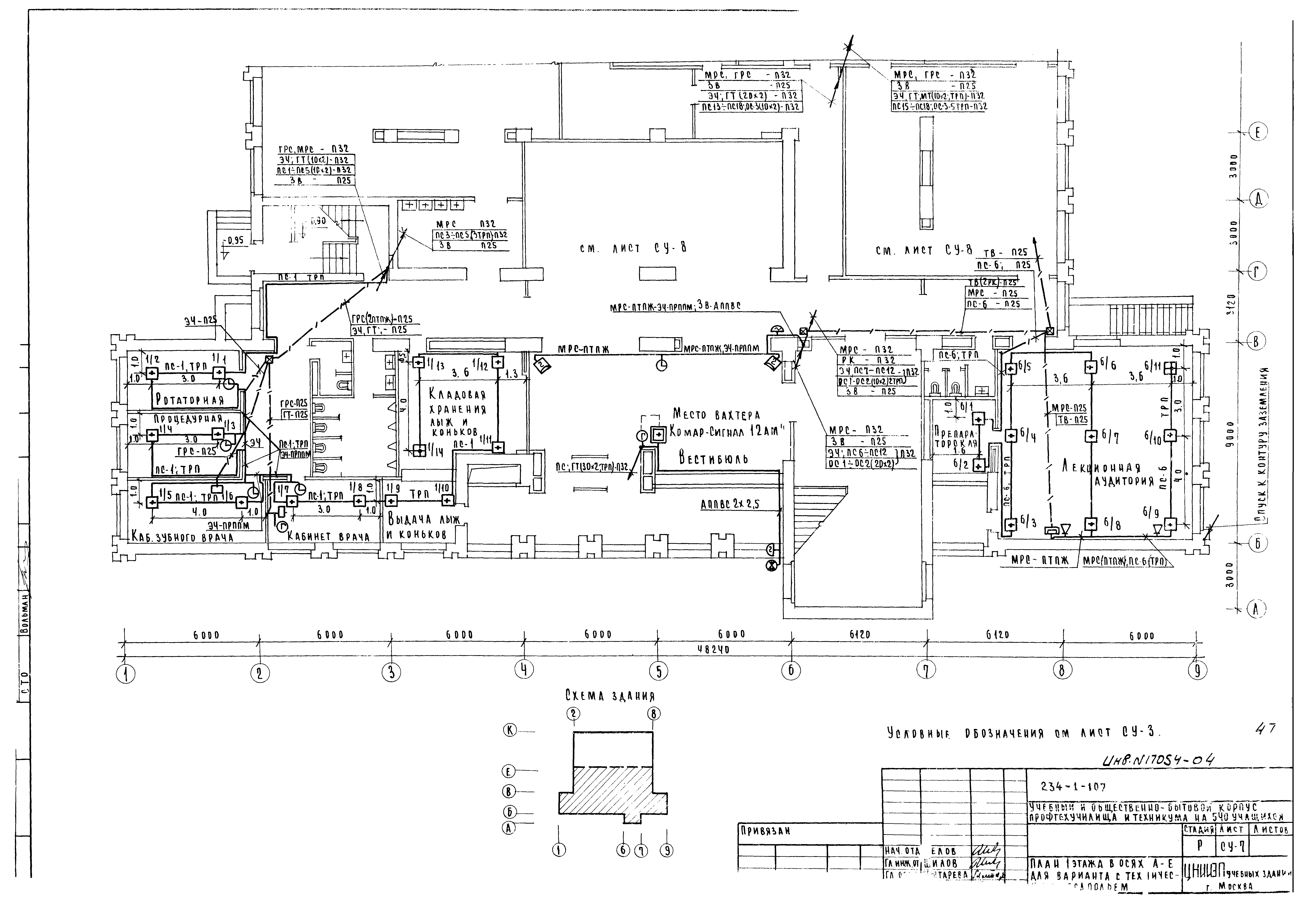
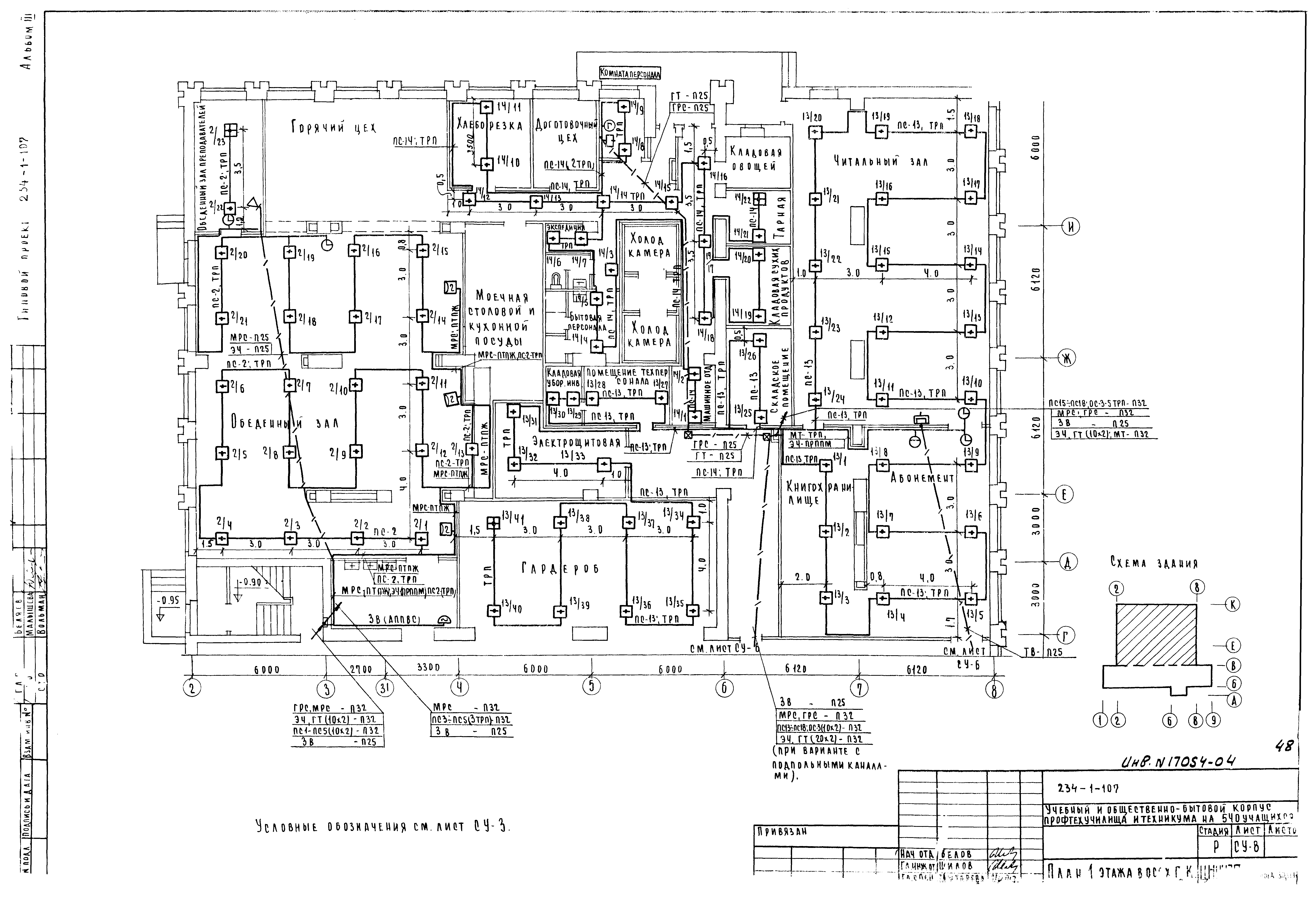
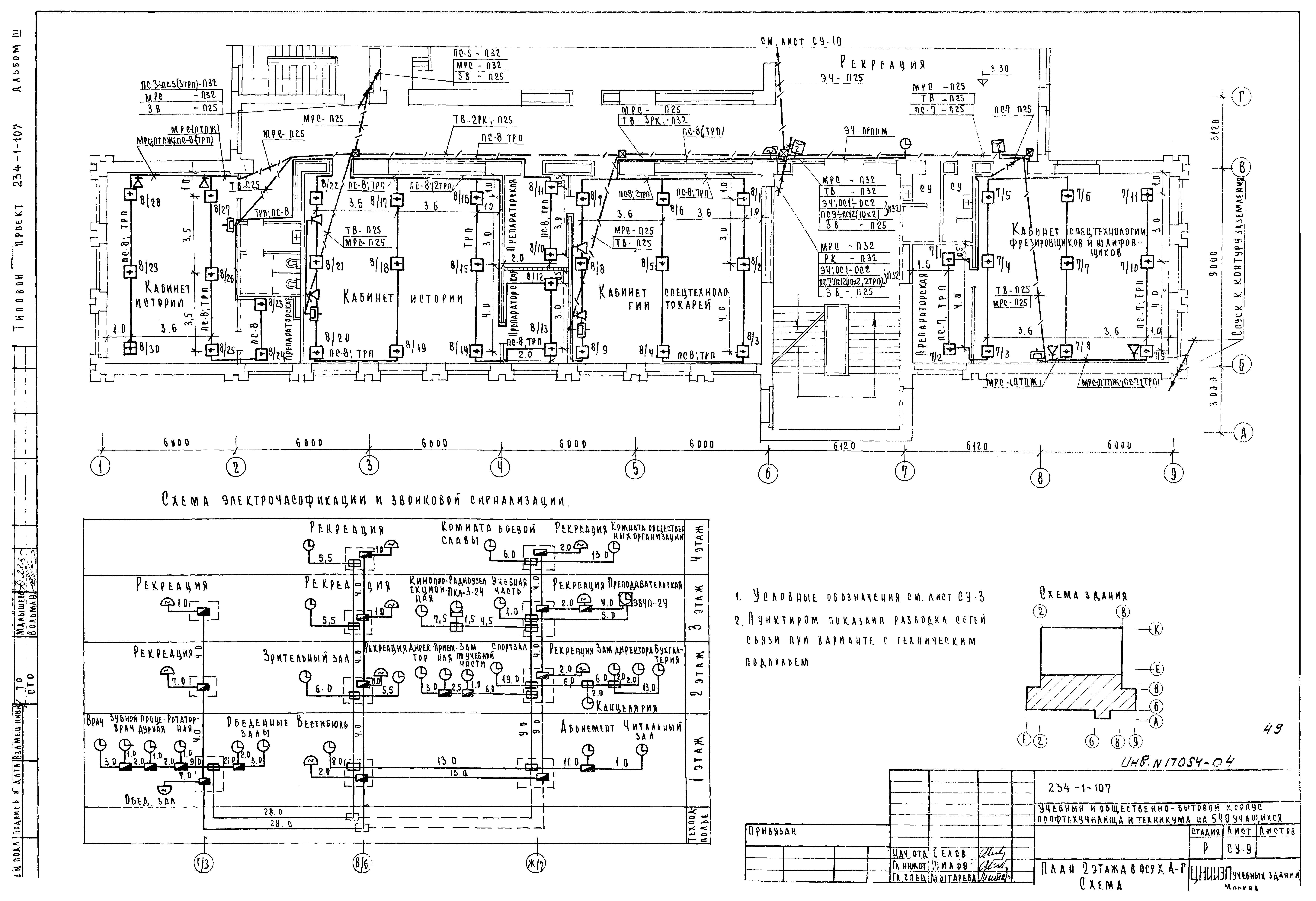
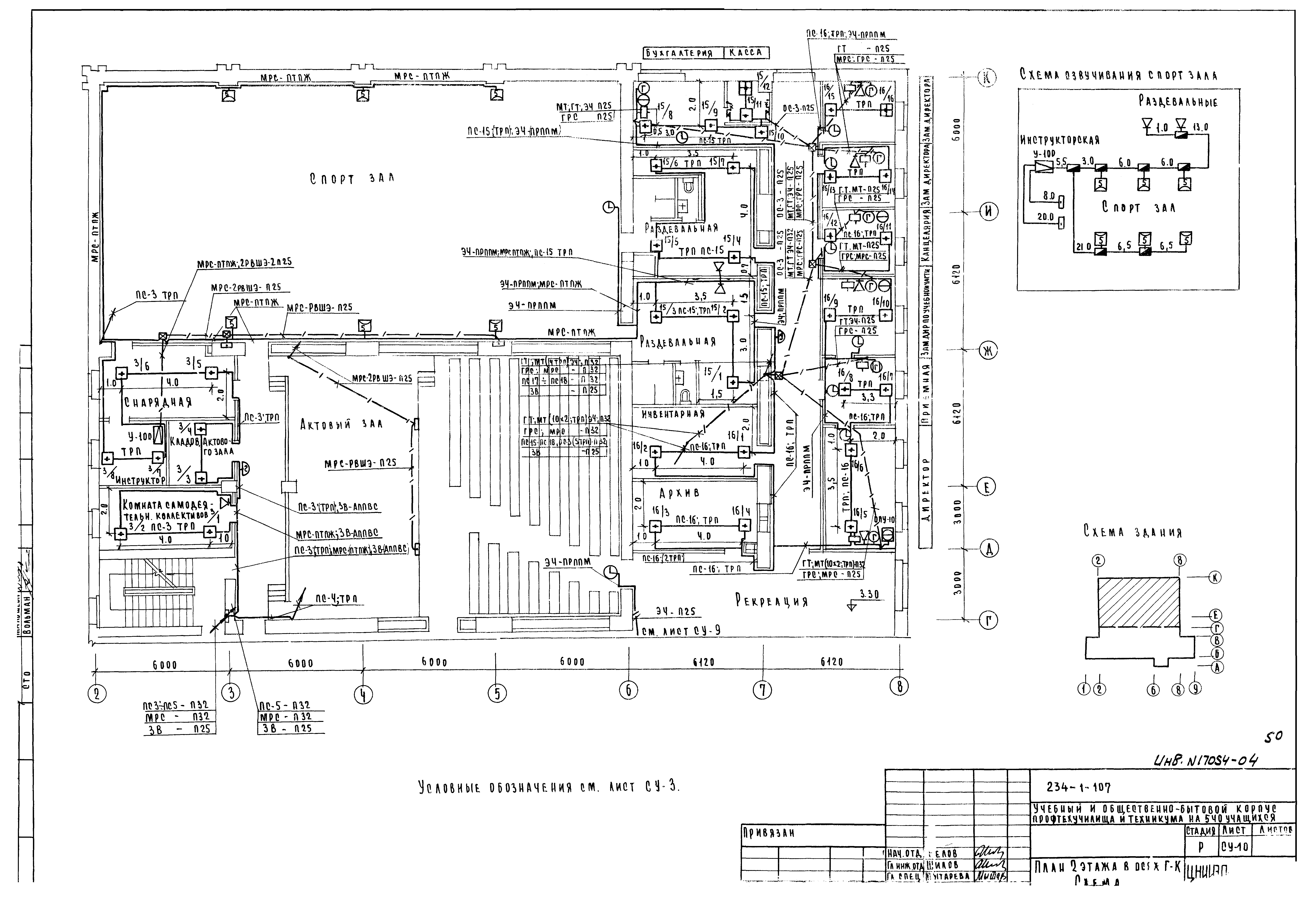
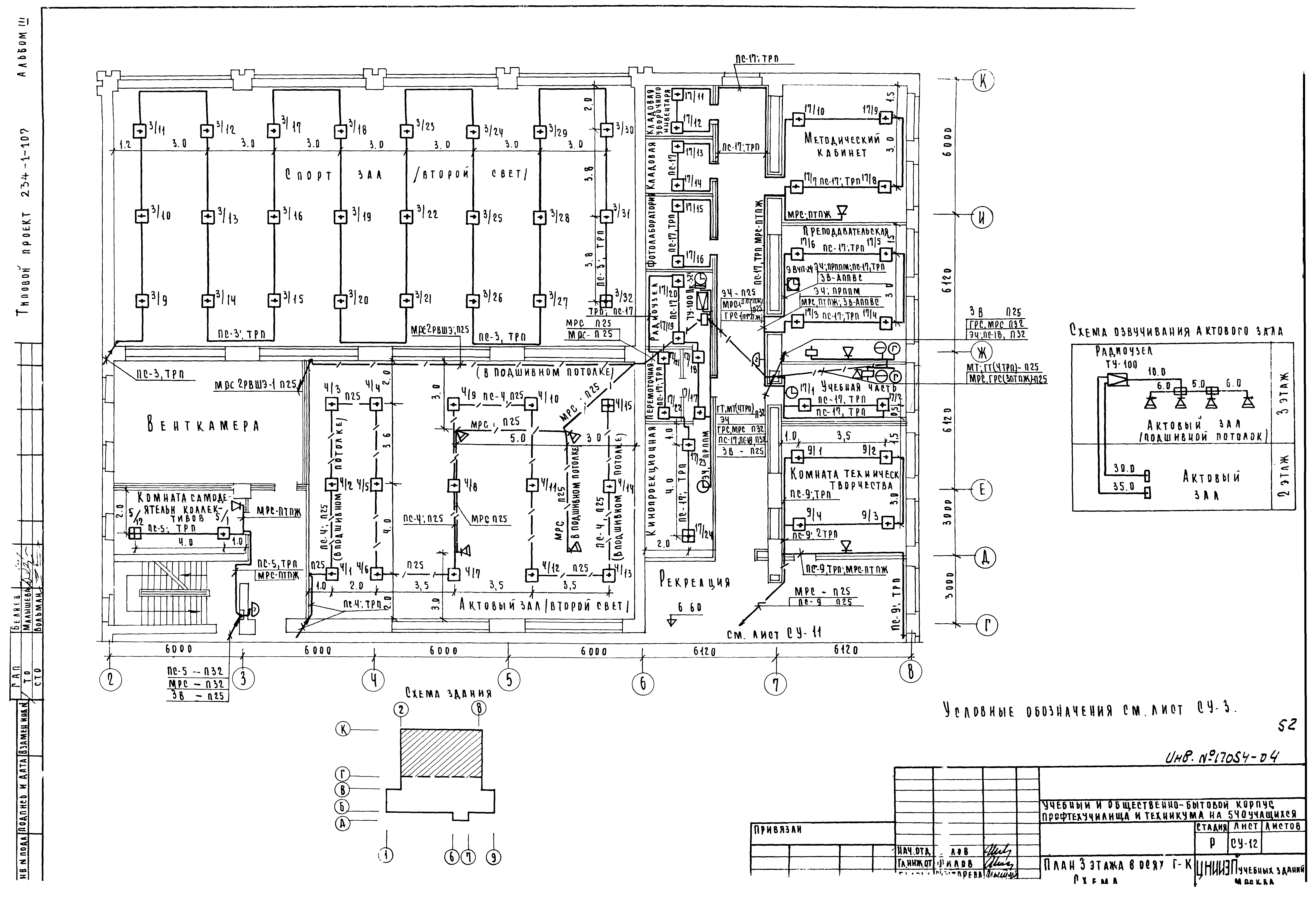
| Оглавление: | Содержание альбома III Электрооборудование Пояснения к проекту. Условные обозначения Сводная спецификация Расчетная схема питающих сетей. Силовое электрооборудование План подвала в осях А -Е. Вариант с полами по грунту. Электроосвещение План подвала и технического подполья. Вариант с техническим подпольем в осях А - Г. Электроосвещение План технического подполья в осях Г - К. Электроосвещение План 1 этажа в осях А - Г. Электроосвещение План 1 этажа в осях Г - К. Электроосвещение План 2 этажа в осях А - Д. Электроосвещение План 2 этажа в осях Г - Д. Электроосвещение План 3 этажа в осях А - Д. Электроосвещение План 3 этажа в осях Г - К. Электроосвещение План 4 этажа в осях А - Д. Электроосвещение План 4 этажа в осях Д - К. Электроосвещение Расчетная схема щита освещения эстрады. Схемы управления освещением актового зала. Электроосвещение Расчетная таблица-схема распределительной сети. Силовое электрооборудование Расчетная таблица-схема распределительной сети. Фрагмент 1 этажа. Кабельный журнал. Силовое электрооборудование План подвала и технического подполья. План кровли. Фрагменты планов 3 и 4 этажей. Силовое электрооборудование План 1 этажа. Силовое электрооборудование Фрагменты планов 1 - 4 этажей. Силовое электрооборудование Отключение вентиляции при пожаре. Схемы принципиальная и присоединений. Силовое электрооборудование Панели постов управления Вводно-распределительное устройство. Опросный лист Автоматизация сантехустройств Ведомость чертежей. Пояснения к проекту Сводная спецификация Вентсистема П1 (П2), В1 (В2, В5). Тепловая завеса У1. Схема функциональная Система приточная П3 (П4). Схема функциональная. Схема электрическая принципиальная управления Вентсистемы П1 (П2), В1 (В2, В5). Схема электрическая принципиальная управления Система приточная П1 (П2). Схема электрическая принципиальная регулирования температуры Система приточная П1 (П2). Схема электрическая принципиальная сигнализации Система приточная П1 (П2). Тепловая завеса У1. Схемы электрические принципиальные питания и управления Система приточная П3 (П4). Схема электрическая присоединений Система приточная П1 (П2). Схема электрическая присоединений Системы приточные П1, П2, П3, П4. Тепловая завеса У1. Венткамеры. Планы прокладки контрольных сетей Устройства связи Общие данные Сводная спецификация Схемы. Условные обозначения План подвала. Вариант с полами по грунту План подвала и техподполья в осях А - 14. Вариант с техподпольем План 1 этажа в осях А - Г для варианта с полами по грунту. Схема План 1 этажа в осях А - Е для варианта с техническим подпольем План 1 этажа в осях Г - К План 2 этажа в осях А - Г. Схема План 2 этажа в осях Г - К. Схема План 3 этажа в осях А - Г. Схема План 3 этажа в осях Г - К. Схема План 4 этажа в осях А - Д. Схема План 4 этажа в осях 6 - 8; Д - К. Фрагмент плана кровли в осях 6 - 9; А - Ж Пожарная сигнализация. Схема электропитания Коробка для подключения телевизора Коробка для подключения микрофона |
| Разработан: | ЦНИИЭП учебных зданий Госгражданстроя |
| Утверждён: | 17.08.1979 Госгражданстрой (Gosgrazhdanstroy 179) |

























































