Скачать Типовой проект 272-14-16 Альбом II. Архитектурно-строительные решения (окончание)Дата актуализации: 01.01.2021
|
| Обозначение: | Типовой проект 272-14-16 |
| Обозначение англ: | 272-14-16 |
| Статус: | действует |
| Название рус.: | Альбом II. Архитектурно-строительные решения (окончание) |
| Дата добавления в базу: | 01.09.2013 |
| Дата актуализации: | 01.01.2021 |
| Дата введения: | 23.10.1981 |
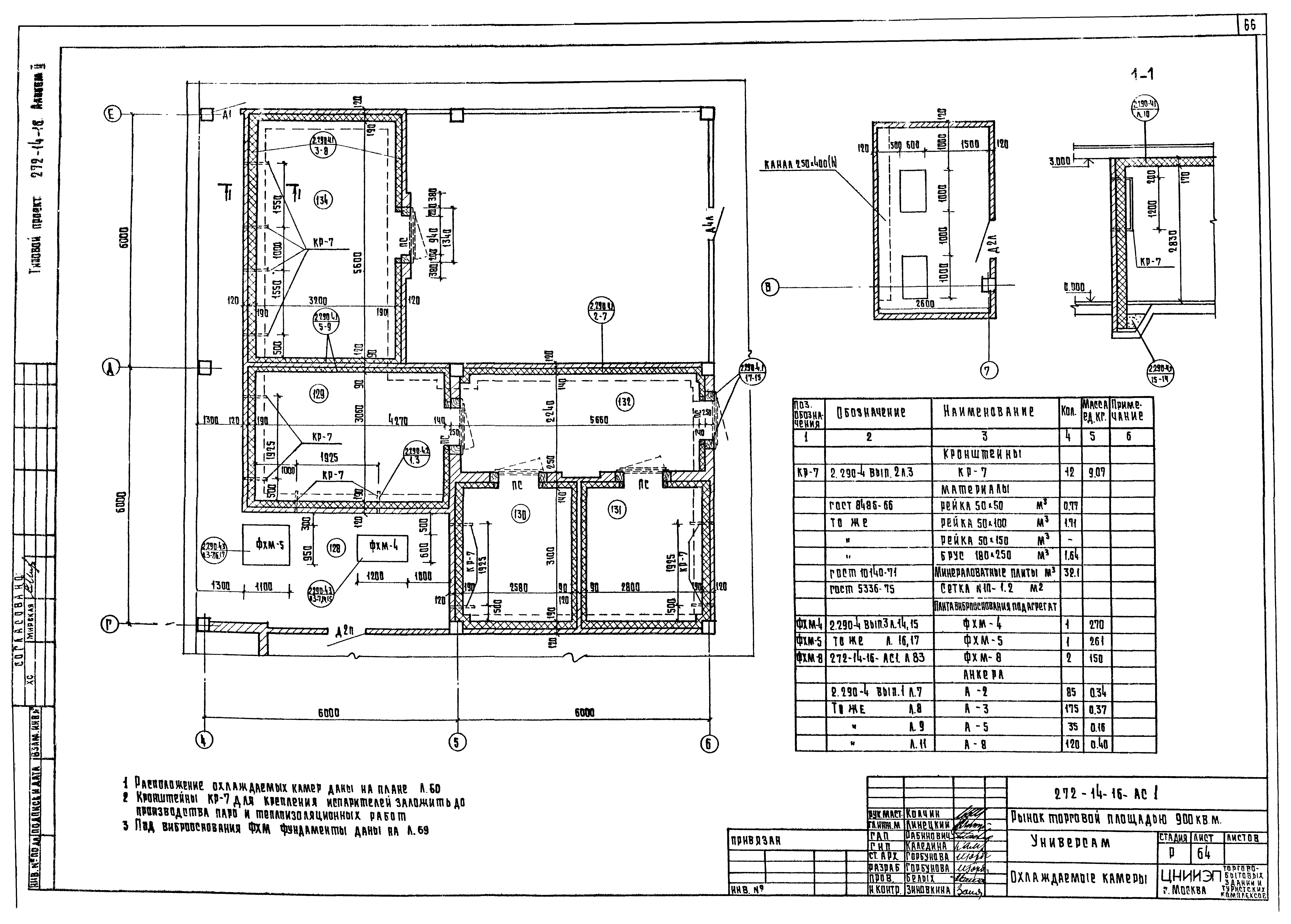
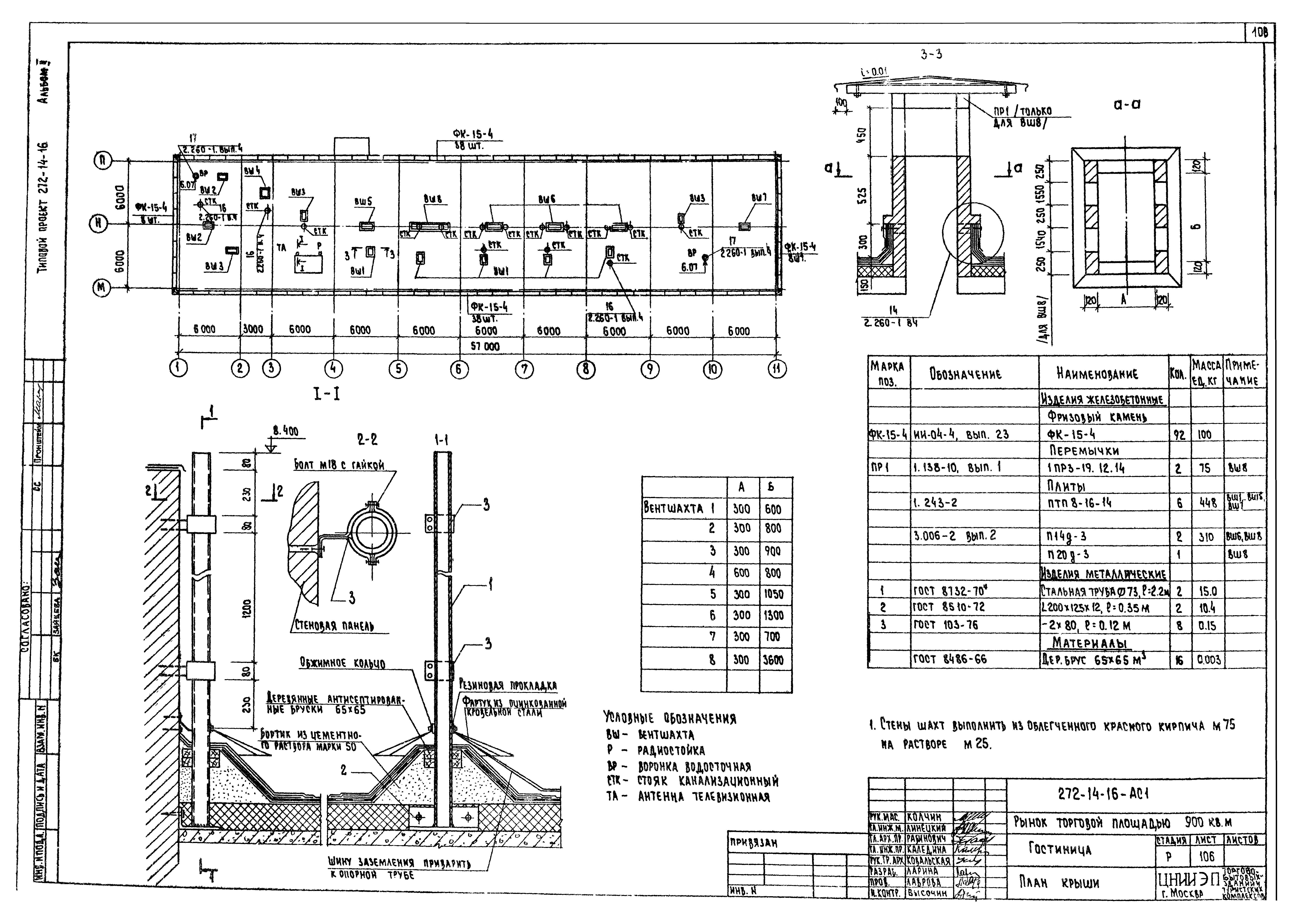
| Оглавление: | Универсам. План 1 этажа в осях Д - И; 4 - 11 Универсам. План 1 этажа в осях А - Д; 4 - 11 Универсам. Разрезы 1-1; 2-2 Универсам. Фасады А - Ж; 4 - 12 Универсам. Фасады 11 - 4; Ж - А Универсам. Охлаждаемые камеры Универсам. Развертки стен и потолок торгового зала универсама Универсам. Конструкция и крепление газосветной рекламы Универсам. Схема нагрузок на элементы фундамента Универсам. Схема расположения элементов фундаментов Универсам. Схема расположения элементов подпольных каналов Универсам. Схемы расположения элементов каркаса по осям 11, В, Д Универсам. Схемы расположения элементов каркаса по осям 4, 7 и схема плана Универсам. Спецификация элементов покрытия в осях А - Ж и 4 - 11 Универсам. Схема расположения элементов покрытия в осях А - Д Универсам. Схема расположения элементов покрытия в осях Д - Ж Универсам. Спецификация элементов участков монолитных УМ1 - УМ7. Выборка стали Универсам. Участки монолитные УМ1 - УМ7 Универсам. Спецификация к схемам расположения панелей стен. Узлы Универсам. Схемы расположения панелей стен Универсам. Спецификация к схемам расположения перегородок и перемычек Универсам. Схема расположения фонарей Ф2. Схема разбивки закладных деталей под витражи Универсам. План крыши Универсам. Сечения крыши Универсам. Фундамент ФХМ8. Лестница Л4. Сечение дебаркадера Гостиница. План 1 этажа Гостиница. План 2 этажа. План на отм. 6.100 Гостиница. Разрезы 1-1; 2-2 Гостиница. Развертки стен и потолок вестибюля гостиницы Гостиница. Фасады 11 - 1; П - М Гостиница. Фасады 1 - 11, М - П Гостиница. Конструкция и крепление газосветной рекламы Гостиница. Схема нагрузок на элементы фундамента Гостиница. Схемы расположения элементов фундаментов и подпольных каналов Гостиница. Спецификация элементов каркаса Гостиница. Схемы расположения элементов каркаса 1 и 2 этажей Гостиница. Спецификация элементов перекрытия и покрытия Гостиница. Схема расположения элементов перекрытия Гостиница. Схема расположения элементов покрытия Гостиница. Спецификация элементов монолитных участков УМ1 - УМ17. Выборка стали Гостиница. Участки монолитные УМ1 - УМ4; УМ10; УМ17 Гостиница. Участки монолитные УМ5 - УМ9 Гостиница. Спецификация к схемам панелей стен Гостиница. Схемы расположения панелей стен по осям П, 1 Гостиница. Схема расположения панелей стен по осям М, 11 Гостиница. Лестницы Л2, Л3 Гостиница. Спецификация к схемам расположения панелей перегородок, перемычек и закладных деталей под витражи Гостиница. План крыши Рынок. Звено асбоцементного воздуховода |
| Разработан: | ЦНИИЭП торгово-бытовых зданий и туристских комплексов |
| Утверждён: | 13.03.1980 Госгражданстрой (Gosgrazhdanstroy 78) |



















































